mobile_sound +7 (930) 655-55-90

Техническая документация и чертежи (ТП 901-6-43)

Поделиться:
Поделиться:

Документ ТП 901-6-43 описывает область применения, номенклатуру и ключевые требования, опираясь на действующие нормы и практику проектирования. Типовой проект ТП 901-6-43 максимально детально описывает производство унифицированных железобетонных изделия и конструкции и их монтаж, используемых в качестве каркаса при возведении капельных и брызгальных градирен, оборудованных вентиляторами 2ВГ70. Они отличаются наличием секций и могут иметь площадь 192 квадратных метра. В номенклатурный перечень вошли такие изделия и конструкции, как балки, колонны, плиты, панели и ригеля.

Файлы для скачивания:
picture_as_pdf

3187.pdf

10,697.7 KB

скачать
picture_as_pdf

3192.pdf

4,668.3 KB

скачать
picture_as_pdf

3188.pdf

14,087.9 KB

скачать
picture_as_pdf

3189.pdf

7,780.1 KB

скачать
picture_as_pdf

3190.pdf

2,709.5 KB

скачать
picture_as_pdf

3191.pdf

6,380.1 KB

скачать
Товары ТП 901-6-43 (24)
Б 1 (ТП 901-6-43)
Балки ТП 901-6-43
  • Длина 3870 мм.
  • Ширина 150 мм.
  • Высота 250 мм.
  • Вес 380 кг.
  • Объем бетона 0,15 м3
  • Геометрический объем 0,1451 м3
Цена: 6548 руб.
Подробнее
К 1
Колонны ТП 901-6-43
  • Длина 6370 мм.
  • Ширина 300 мм.
  • Высота 300 мм.
  • Вес 1470 кг.
  • Объем бетона 0,69 м3
  • Геометрический объем 0,5733 м3
Цена: 16063 руб.
Подробнее
К 4 с
Колонны ТП 901-6-43
  • Длина 6580 мм.
  • Ширина 200 мм.
  • Высота 200 мм.
  • Вес 650 кг.
  • Объем бетона 0,26 м3
  • Геометрический объем 0,2632 м3
Цена: 6053 руб.
Подробнее
К 3
Колонны ТП 901-6-43
  • Длина 5150 мм.
  • Ширина 300 мм.
  • Высота 300 мм.
  • Вес 1180 кг.
  • Объем бетона 0,47 м3
  • Геометрический объем 0,4635 м3
Цена: 10942 руб.
Подробнее
К 2
Колонны ТП 901-6-43
  • Длина 7360 мм.
  • Ширина 200 мм.
  • Высота 200 мм.
  • Вес 740 кг.
  • Объем бетона 0,29 м3
  • Геометрический объем 0,2944 м3
Цена: 6751 руб.
Подробнее
К 2 с
Колонны ТП 901-6-43
  • Длина 7360 мм.
  • Ширина 200 мм.
  • Высота 200 мм.
  • Вес 740 кг.
  • Объем бетона 0,29 м3
  • Геометрический объем 0,2944 м3
Цена: 6751 руб.
Подробнее
К 4
Колонны ТП 901-6-43
  • Длина 6580 мм.
  • Ширина 200 мм.
  • Высота 200 мм.
  • Вес 650 кг.
  • Объем бетона 0,26 м3
  • Геометрический объем 0,2632 м3
Цена: 6053 руб.
Подробнее
ПНБ 1
Панели ТП 901-6-43
  • Длина 3920 мм.
  • Ширина 1990 мм.
  • Высота 120 мм.
  • Вес 2300 кг.
  • Объем бетона 0,93 м3
  • Геометрический объем 0,9361 м3
Цена: 31574 руб.
Подробнее
ПНК 1
Панели ТП 901-6-43
  • Длина 3000 мм.
  • Ширина 6800 мм.
  • Высота 120 мм.
  • Вес 6000 кг.
  • Объем бетона 2,42 м3
  • Геометрический объем 2,448 м3
Цена: 82159 руб.
Подробнее
ПНБ 1 а
Панели ТП 901-6-43
  • Длина 3920 мм.
  • Ширина 1990 мм.
  • Высота 120 мм.
  • Вес 2300 кг.
  • Объем бетона 0,93 м3
  • Геометрический объем 0,9361 м3
Цена: 31574 руб.
Подробнее
ПНБ 2
Панели ТП 901-6-43
  • Длина 1670 мм.
  • Ширина 1990 мм.
  • Высота 120 мм.
  • Вес 1000 кг.
  • Объем бетона 0,4 м3
  • Геометрический объем 0,3988 м3
Цена: 13580 руб.
Подробнее
ПНК 3
Панели ТП 901-6-43
  • Длина 3300 мм.
  • Ширина 5700 мм.
  • Высота 120 мм.
  • Вес 5550 кг.
  • Объем бетона 2,22 м3
  • Геометрический объем 2,2572 м3
Цена: 75369 руб.
Подробнее
ПНК 2 а
Панели ТП 901-6-43
  • Длина 1200 мм.
  • Ширина 6800 мм.
  • Высота 120 мм.
  • Вес 2450 кг.
  • Объем бетона 0,98 м3
  • Геометрический объем 0,9792 м3
Цена: 33271 руб.
Подробнее
ПНК 4
Панели ТП 901-6-43
  • Длина 1450 мм.
  • Ширина 5550 мм.
  • Высота 120 мм.
  • Вес 2400 кг.
  • Объем бетона 0,96 м3
  • Геометрический объем 0,9657 м3
Цена: 32592 руб.
Подробнее
ПНК 2
Панели ТП 901-6-43
  • Длина 1200 мм.
  • Ширина 6800 мм.
  • Высота 120 мм.
  • Вес 2450 кг.
  • Объем бетона 0,98 м3
  • Геометрический объем 0,9792 м3
Цена: 33271 руб.
Подробнее
ПНК 5
Панели ТП 901-6-43
  • Длина 1200 мм.
  • Ширина 6170 мм.
  • Высота 120 мм.
  • Вес 2200 кг.
  • Объем бетона 0,89 м3
  • Геометрический объем 0,8885 м3
Цена: 30216 руб.
Подробнее
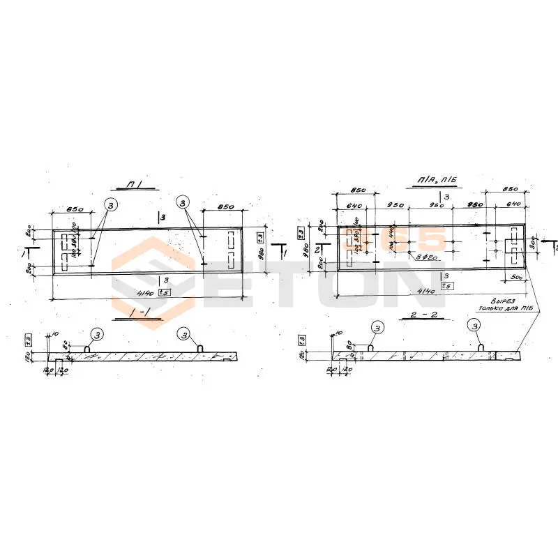
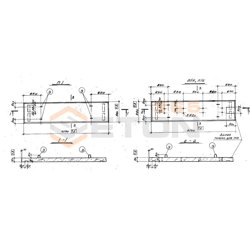
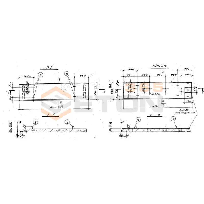
П 1 а
Плиты ТП 901-6-43
  • Длина 4140 мм.
  • Ширина 980 мм.
  • Высота 120 мм.
  • Вес 1200 кг.
  • Объем бетона 0,49 м3
  • Геометрический объем 0,4869 м3
Цена: 15210 руб.
Подробнее
П 1 б
Плиты ТП 901-6-43
  • Длина 4140 мм.
  • Ширина 980 мм.
  • Высота 120 мм.
  • Вес 1200 кг.
  • Объем бетона 0,49 м3
  • Геометрический объем 0,4869 м3
Цена: 15210 руб.
Подробнее
П 1
Плиты ТП 901-6-43
  • Длина 4140 мм.
  • Ширина 980 мм.
  • Высота 120 мм.
  • Вес 1200 кг.
  • Объем бетона 0,49 м3
  • Геометрический объем 0,4869 м3
Цена: 15210 руб.
Подробнее
Р 2
Ригели ТП 901-6-43
  • Длина 8190 мм.
  • Ширина 500 мм.
  • Высота 250 мм.
  • Вес 1400 кг.
  • Объем бетона 0,56 м3
  • Геометрический объем 1,0237 м3
Цена: 22814 руб.
Подробнее
Р 3
Ригели ТП 901-6-43
  • Длина 7880 мм.
  • Ширина 500 мм.
  • Высота 250 мм.
  • Вес 1370 кг.
  • Объем бетона 0,55 м3
  • Геометрический объем 0,985 м3
Цена: 22407 руб.
Подробнее
Р 4
Ригели ТП 901-6-43
  • Длина 4190 мм.
  • Ширина 500 мм.
  • Высота 250 мм.
  • Вес 720 кг.
  • Объем бетона 0,29 м3
  • Геометрический объем 0,5238 м3
Цена: 11815 руб.
Подробнее
Р 1
Ригели ТП 901-6-43
  • Длина 8500 мм.
  • Ширина 500 мм.
  • Высота 250 мм.
  • Вес 1450 кг.
  • Объем бетона 0,58 м3
  • Геометрический объем 1,0625 м3
Цена: 23629 руб.
Подробнее
Р 7
Ригели ТП 901-6-43
  • Длина 5940 мм.
  • Ширина 500 мм.
  • Высота 250 мм.
  • Вес 980 кг.
  • Объем бетона 0,39 м3
  • Геометрический объем 0,7425 м3
Цена: 15889 руб.
Подробнее

Уведомление о файлах cookie

Мы используем файлы cookie для улучшения вашего опыта просмотра и анализа трафика. Нажимая "Принять все", вы соглашаетесь с нашей политикой конфиденциальности и политикой обработки файлов cookie.

MAX Дзен Телеграм Вконтакте vk