mobile_sound +7 (930) 655-55-90

Техническая документация и чертежи (Шифр М25.13/98)

Поделиться:
Поделиться:

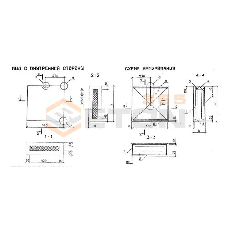
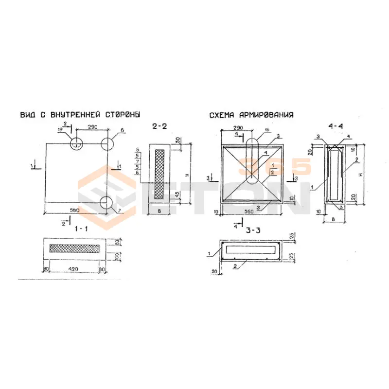
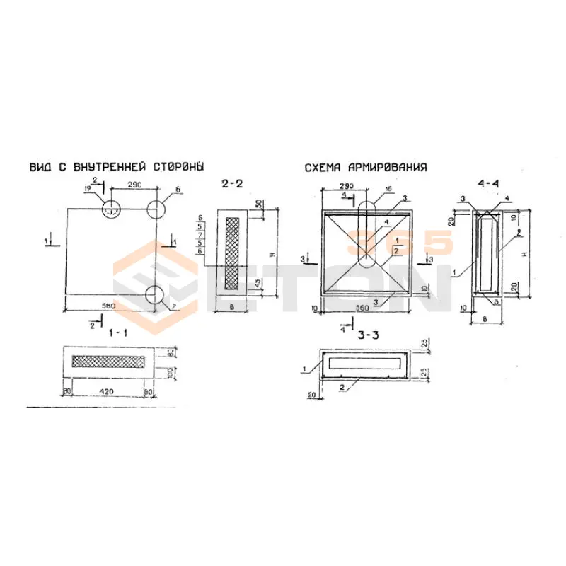
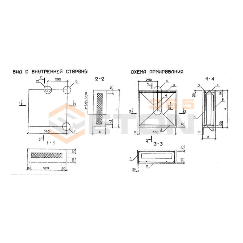
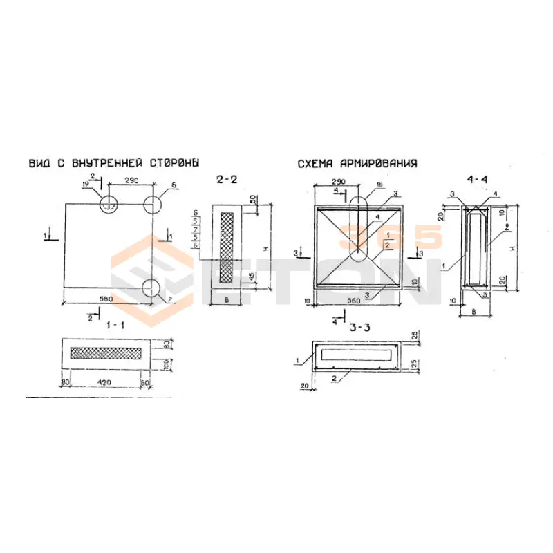
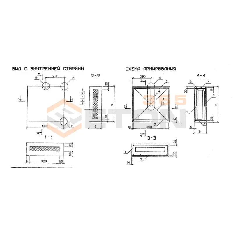
Документ Шифр М25.13/98 описывает область применения, номенклатуру и ключевые требования, опираясь на действующие нормы и практику проектирования. Шифр М25.13/98 был разработан ЦНИИПромзданий, введён в действие в эксплуатацию в 1999 году и состоит из четырех выпусков. Регламент определяет и регламентирует подробные опалубочные чертежи конструкций, рекомендации по проектированию и производству, арматурные чертежи, условия проведения испытаний, правила транспортировки и хранения, а также много других полезных сведений, распространяющихся на трехслойные железобетонные панели. изделия и конструкции предназначены для применения в гражданском строительстве для стен общественных зданий.

Файлы для скачивания:
picture_as_pdf

3539.pdf

7,560.4 KB

скачать
picture_as_pdf

3540.pdf

23,554.1 KB

скачать
picture_as_pdf

3541.pdf

6,916.9 KB

скачать
picture_as_pdf

3542.pdf

5,286.6 KB

скачать
Товары Шифр М25.13/98 (60)
2ПСТ 6-18-3,5 (м25.13/89)
Панели стеновые трехслойные Шифр м25.13/89
  • Длина 580 мм.
  • Ширина 350 мм.
  • Высота 1785 мм.
  • Вес 470 кг.
  • Объем бетона 0,2 м3
  • Геометрический объем 0,3624 м3
Цена: 7760 руб.
Подробнее
2ПСТ 6-21-3,5 (м25.13/89)
Панели стеновые трехслойные Шифр м25.13/89
  • Длина 580 мм.
  • Ширина 350 мм.
  • Высота 2085 мм.
  • Вес 550 кг.
  • Объем бетона 0,23 м3
  • Геометрический объем 0,4233 м3
Цена: 8924 руб.
Подробнее
2ПСТ 8-18-3,5 (м25.13/89)
Панели стеновые трехслойные Шифр м25.13/89
  • Длина 790 мм.
  • Ширина 350 мм.
  • Высота 1785 мм.
  • Вес 610 кг.
  • Объем бетона 0,2 м3
  • Геометрический объем 0,4936 м3
Цена: 7760 руб.
Подробнее
2ПСТ 8-12-3,5 (м25.13/89)
Панели стеновые трехслойные Шифр м25.13/89
  • Длина 790 мм.
  • Ширина 350 мм.
  • Высота 1185 мм.
  • Вес 370 кг.
  • Объем бетона 0,13 м3
  • Геометрический объем 0,3277 м3
Цена: 5044 руб.
Подробнее
2ПСТ 8-15-3,5 (м25.13/89)
Панели стеновые трехслойные Шифр м25.13/89
  • Длина 790 мм.
  • Ширина 350 мм.
  • Высота 1485 мм.
  • Вес 480 кг.
  • Объем бетона 0,16 м3
  • Геометрический объем 0,4106 м3
Цена: 6208 руб.
Подробнее
2ПСТ 8-21-3,5 (м25.13/89)
Панели стеновые трехслойные Шифр м25.13/89
  • Длина 790 мм.
  • Ширина 350 мм.
  • Высота 2085 мм.
  • Вес 660 кг.
  • Объем бетона 0,23 м3
  • Геометрический объем 0,5765 м3
Цена: 8924 руб.
Подробнее
2ПСТ 9-12-3,5 (м25.13/89)
Панели стеновые трехслойные Шифр м25.13/89
  • Длина 860 мм.
  • Ширина 350 мм.
  • Высота 1185 мм.
  • Вес 420 кг.
  • Объем бетона 0,13 м3
  • Геометрический объем 0,3567 м3
Цена: 5044 руб.
Подробнее
2ПСТ 9-15-3,5 (м25.13/89)
Панели стеновые трехслойные Шифр м25.13/89
  • Длина 860 мм.
  • Ширина 350 мм.
  • Высота 1485 мм.
  • Вес 500 кг.
  • Объем бетона 0,16 м3
  • Геометрический объем 0,447 м3
Цена: 6208 руб.
Подробнее
2ПСТ 9-21-3,5 (м25.13/89)
Панели стеновые трехслойные Шифр м25.13/89
  • Длина 860 мм.
  • Ширина 350 мм.
  • Высота 2085 мм.
  • Вес 710 кг.
  • Объем бетона 0,23 м3
  • Геометрический объем 0,6276 м3
Цена: 8924 руб.
Подробнее
3ПСТ 63-18-2,5 (м25.13/89)
Панели стеновые трехслойные Шифр м25.13/89
  • Длина 6280 мм.
  • Ширина 250 мм.
  • Высота 1785 мм.
  • Вес 4600 кг.
  • Объем бетона 1,7 м3
  • Геометрический объем 2,8024 м3
Цена: 65960 руб.
Подробнее
3ПСТ 63-12-3,0 (м25.13/89)
Панели стеновые трехслойные Шифр м25.13/89
  • Длина 6330 мм.
  • Ширина 300 мм.
  • Высота 1185 мм.
  • Вес 3150 кг.
  • Объем бетона 1,19 м3
  • Геометрический объем 2,2503 м3
Цена: 46172 руб.
Подробнее
3ПСТ 35-12-3,5 (м25.13/89)
Панели стеновые трехслойные Шифр м25.13/89
  • Длина 3560 мм.
  • Ширина 350 мм.
  • Высота 1185 мм.
  • Вес 1650 кг.
  • Объем бетона 0,63 м3
  • Геометрический объем 1,4765 м3
Цена: 24444 руб.
Подробнее
3ПСТ 63-12-2,5 (м25.13/89)
Панели стеновые трехслойные Шифр м25.13/89
  • Длина 6280 мм.
  • Ширина 250 мм.
  • Высота 1185 мм.
  • Вес 3060 кг.
  • Объем бетона 1,13 м3
  • Геометрический объем 1,8604 м3
Цена: 43844 руб.
Подробнее
2ПСТ 9-18-3,5 (м25.13/89)
Панели стеновые трехслойные Шифр м25.13/89
  • Длина 860 мм.
  • Ширина 350 мм.
  • Высота 1785 мм.
  • Вес 610 кг.
  • Объем бетона 0,2 м3
  • Геометрический объем 0,5373 м3
Цена: 7760 руб.
Подробнее
3ПСТ 63-18-3,0 (м25.13/89)
Панели стеновые трехслойные Шифр м25.13/89
  • Длина 6330 мм.
  • Ширина 300 мм.
  • Высота 1785 мм.
  • Вес 4740 кг.
  • Объем бетона 1,8 м3
  • Геометрический объем 3,3897 м3
Цена: 69840 руб.
Подробнее
3ПСТ 66-12-3,5 (м25.13/89)
Панели стеновые трехслойные Шифр м25.13/89
  • Длина 6560 мм.
  • Ширина 350 мм.
  • Высота 1185 мм.
  • Вес 3070 кг.
  • Объем бетона 1,54 м3
  • Геометрический объем 2,7208 м3
Цена: 59752 руб.
Подробнее
4ПСТ 63-12-3,5 (м25.13/89)
Панели стеновые трехслойные Шифр м25.13/89
  • Длина 6260 мм.
  • Ширина 350 мм.
  • Высота 1185 мм.
  • Вес 2910 кг.
  • Объем бетона 1,54 м3
  • Геометрический объем 2,5963 м3
Цена: 59752 руб.
Подробнее
3ПСТ 66-15-3,5 (м25.13/89)
Панели стеновые трехслойные Шифр м25.13/89
  • Длина 6560 мм.
  • Ширина 350 мм.
  • Высота 1485 мм.
  • Вес 3820 кг.
  • Объем бетона 1,6 м3
  • Геометрический объем 3,4096 м3
Цена: 62080 руб.
Подробнее
3ПСТ 66-21-3,5 (м25.13/89)
Панели стеновые трехслойные Шифр м25.13/89
  • Длина 6560 мм.
  • Ширина 350 мм.
  • Высота 2085 мм.
  • Вес 5350 кг.
  • Объем бетона 2,1 м3
  • Геометрический объем 4,7872 м3
Цена: 81480 руб.
Подробнее
3ПСТ 66-18-3,5 (м25.13/89)
Панели стеновые трехслойные Шифр м25.13/89
  • Длина 6560 мм.
  • Ширина 350 мм.
  • Высота 1785 мм.
  • Вес 4060 кг.
  • Объем бетона 1,9 м3
  • Геометрический объем 4,0984 м3
Цена: 73720 руб.
Подробнее
3ПСТ 66-9-3,5 (м25.13/89)
Панели стеновые трехслойные Шифр м25.13/89
  • Длина 6560 мм.
  • Ширина 350 мм.
  • Высота 885 мм.
  • Вес 2290 кг.
  • Объем бетона 0,95 м3
  • Геометрический объем 2,032 м3
Цена: 36860 руб.
Подробнее
4ПСТ 63-15-3,5 (м25.13/89)
Панели стеновые трехслойные Шифр м25.13/89
  • Длина 6260 мм.
  • Ширина 350 мм.
  • Высота 1485 мм.
  • Вес 3660 кг.
  • Объем бетона 1,6 м3
  • Геометрический объем 3,2536 м3
Цена: 62080 руб.
Подробнее
4ПСТ 63-18-3,5 (м25.13/89)
Панели стеновые трехслойные Шифр м25.13/89
  • Длина 6260 мм.
  • Ширина 350 мм.
  • Высота 1785 мм.
  • Вес 4390 кг.
  • Объем бетона 1,9 м3
  • Геометрический объем 3,9109 м3
Цена: 73720 руб.
Подробнее
4ПСТ 63-9-3,5 (м25.13/89)
Панели стеновые трехслойные Шифр м25.13/89
  • Длина 6260 мм.
  • Ширина 350 мм.
  • Высота 885 мм.
  • Вес 2330 кг.
  • Объем бетона 0,95 м3
  • Геометрический объем 1,939 м3
Цена: 36860 руб.
Подробнее
4ПСТ 63-21-3,5 (м25.13/89)
Панели стеновые трехслойные Шифр м25.13/89
  • Длина 5980 мм.
  • Ширина 350 мм.
  • Высота 2085 мм.
  • Вес 4830 кг.
  • Объем бетона 2,1 м3
  • Геометрический объем 4,3639 м3
Цена: 81480 руб.
Подробнее
ПСТ 30-12-2,5 (м25.13/89)
Панели стеновые трехслойные Шифр м25.13/89
  • Длина 2980 мм.
  • Ширина 250 мм.
  • Высота 1185 мм.
  • Вес 1300 кг.
  • Объем бетона 0,57 м3
  • Геометрический объем 0,8828 м3
Цена: 22116 руб.
Подробнее
ПСТ 30-12-3,5 (м25.13/89)
Панели стеновые трехслойные Шифр м25.13/89
  • Длина 2980 мм.
  • Ширина 350 мм.
  • Высота 1185 мм.
  • Вес 1450 кг.
  • Объем бетона 0,63 м3
  • Геометрический объем 1,236 м3
Цена: 24444 руб.
Подробнее
ПСТ 30-12-3,0 (м25.13/89)
Панели стеновые трехслойные Шифр м25.13/89
  • Длина 2980 мм.
  • Ширина 300 мм.
  • Высота 1185 мм.
  • Вес 1370 кг.
  • Объем бетона 0,6 м3
  • Геометрический объем 1,0594 м3
Цена: 23280 руб.
Подробнее
ПСТ 30-15-3,5 (м25.13/89)
Панели стеновые трехслойные Шифр м25.13/89
  • Длина 2980 мм.
  • Ширина 350 мм.
  • Высота 1485 мм.
  • Вес 1830 кг.
  • Объем бетона 0,8 м3
  • Геометрический объем 1,5489 м3
Цена: 31040 руб.
Подробнее
ПСТ 30-21-3,5 (м25.13/89)
Панели стеновые трехслойные Шифр м25.13/89
  • Длина 2980 мм.
  • Ширина 350 мм.
  • Высота 2085 мм.
  • Вес 2530 кг.
  • Объем бетона 1,1 м3
  • Геометрический объем 2,1747 м3
Цена: 42680 руб.
Подробнее
ПСТ 30-18-2,5 (м25.13/89)
Панели стеновые трехслойные Шифр м25.13/89
  • Длина 2980 мм.
  • Ширина 250 мм.
  • Высота 1785 мм.
  • Вес 1950 кг.
  • Объем бетона 0,85 м3
  • Геометрический объем 1,3298 м3
Цена: 32980 руб.
Подробнее
ПСТ 30-18-3,0 (м25.13/89)
Панели стеновые трехслойные Шифр м25.13/89
  • Длина 2980 мм.
  • Ширина 300 мм.
  • Высота 1785 мм.
  • Вес 2070 кг.
  • Объем бетона 0,9 м3
  • Геометрический объем 1,5958 м3
Цена: 34920 руб.
Подробнее
ПСТ 30-18-3,5 (м25.13/89)
Панели стеновые трехслойные Шифр м25.13/89
  • Длина 2980 мм.
  • Ширина 350 мм.
  • Высота 1785 мм.
  • Вес 2180 кг.
  • Объем бетона 0,95 м3
  • Геометрический объем 1,8618 м3
Цена: 36860 руб.
Подробнее
ПСТ 32-12-3,5 (м25.13/89)
Панели стеновые трехслойные Шифр м25.13/89
  • Длина 3190 мм.
  • Ширина 350 мм.
  • Высота 1185 мм.
  • Вес 1490 кг.
  • Объем бетона 0,63 м3
  • Геометрический объем 1,3231 м3
Цена: 24444 руб.
Подробнее
ПСТ 30-9-3,5 (м25.13/89)
Панели стеновые трехслойные Шифр м25.13/89
  • Длина 2980 мм.
  • Ширина 350 мм.
  • Высота 885 мм.
  • Вес 1100 кг.
  • Объем бетона 0,48 м3
  • Геометрический объем 0,9231 м3
Цена: 18624 руб.
Подробнее
ПСТ 32-15-3,5 (м25.13/89)
Панели стеновые трехслойные Шифр м25.13/89
  • Длина 3190 мм.
  • Ширина 350 мм.
  • Высота 1485 мм.
  • Вес 1860 кг.
  • Объем бетона 0,8 м3
  • Геометрический объем 1,658 м3
Цена: 31040 руб.
Подробнее
ПСТ 32-21-3,5 (м25.13/89)
Панели стеновые трехслойные Шифр м25.13/89
  • Длина 2980 мм.
  • Ширина 350 мм.
  • Высота 2085 мм.
  • Вес 2610 кг.
  • Объем бетона 1,1 м3
  • Геометрический объем 2,1747 м3
Цена: 42680 руб.
Подробнее
ПСТ 32-18-3,5 (м25.13/89)
Панели стеновые трехслойные Шифр м25.13/89
  • Длина 3190 мм.
  • Ширина 350 мм.
  • Высота 1785 мм.
  • Вес 2240 кг.
  • Объем бетона 0,95 м3
  • Геометрический объем 1,993 м3
Цена: 36860 руб.
Подробнее
ПСТ 32-9-3,5 (м25.13/89)
Панели стеновые трехслойные Шифр м25.13/89
  • Длина 3190 мм.
  • Ширина 350 мм.
  • Высота 885 мм.
  • Вес 1130 кг.
  • Объем бетона 0,48 м3
  • Геометрический объем 0,9881 м3
Цена: 18624 руб.
Подробнее
ПСТ 60-12-3,0 (м25.13/89)
Панели стеновые трехслойные Шифр м25.13/89
  • Длина 5980 мм.
  • Ширина 300 мм.
  • Высота 1185 мм.
  • Вес 2720 кг.
  • Объем бетона 1,19 м3
  • Геометрический объем 2,1259 м3
Цена: 46172 руб.
Подробнее
ПСТ 60-12-2,5 (м25.13/89)
Панели стеновые трехслойные Шифр м25.13/89
  • Длина 5980 мм.
  • Ширина 250 мм.
  • Высота 1185 мм.
  • Вес 2580 кг.
  • Объем бетона 1,13 м3
  • Геометрический объем 1,7716 м3
Цена: 43844 руб.
Подробнее
ПСТ 60-12-3,5 (м25.13/89)
Панели стеновые трехслойные Шифр м25.13/89
  • Длина 5980 мм.
  • Ширина 350 мм.
  • Высота 1185 мм.
  • Вес 2860 кг.
  • Объем бетона 1,54 м3
  • Геометрический объем 2,4802 м3
Цена: 59752 руб.
Подробнее
ПСТ 60-15-3,5 (м25.13/89)
Панели стеновые трехслойные Шифр м25.13/89
  • Длина 5980 мм.
  • Ширина 350 мм.
  • Высота 1485 мм.
  • Вес 3520 кг.
  • Объем бетона 1,6 м3
  • Геометрический объем 3,1081 м3
Цена: 62080 руб.
Подробнее
ПСТ 60-18-3,0 (м25.13/89)
Панели стеновые трехслойные Шифр м25.13/89
  • Длина 5980 мм.
  • Ширина 300 мм.
  • Высота 1785 мм.
  • Вес 4090 кг.
  • Объем бетона 1,8 м3
  • Геометрический объем 3,2023 м3
Цена: 69840 руб.
Подробнее
ПСТ 60-18-2,5 (м25.13/89)
Панели стеновые трехслойные Шифр м25.13/89
  • Длина 5980 мм.
  • Ширина 250 мм.
  • Высота 1785 мм.
  • Вес 3900 кг.
  • Объем бетона 1,7 м3
  • Геометрический объем 2,6686 м3
Цена: 65960 руб.
Подробнее
ПСТ 60-18-3,5 (м25.13/89)
Панели стеновые трехслойные Шифр м25.13/89
  • Длина 5980 мм.
  • Ширина 350 мм.
  • Высота 1785 мм.
  • Вес 4320 кг.
  • Объем бетона 1,9 м3
  • Геометрический объем 3,736 м3
Цена: 73720 руб.
Подробнее
ПСТ 60-21-3,5 (м25.13/89)
Панели стеновые трехслойные Шифр м25.13/89
  • Длина 5980 мм.
  • Ширина 350 мм.
  • Высота 2085 мм.
  • Вес 4830 кг.
  • Объем бетона 2,1 м3
  • Геометрический объем 4,3639 м3
Цена: 81480 руб.
Подробнее
ПСТ 60-9-3,5 (м25.13/89)
Панели стеновые трехслойные Шифр м25.13/89
  • Длина 5980 мм.
  • Ширина 350 мм.
  • Высота 885 мм.
  • Вес 2180 кг.
  • Объем бетона 0,95 м3
  • Геометрический объем 1,8523 м3
Цена: 36860 руб.
Подробнее
ПСТ 60-18-3,5 (м25.13/89)
Панели стеновые трехслойные Шифр м25.13/89
  • Длина 6540 мм.
  • Ширина 350 мм.
  • Высота 1785 мм.
  • Вес 4570 кг.
  • Объем бетона 1,9 м3
  • Геометрический объем 4,0859 м3
Цена: 73720 руб.
Подробнее
ПСТ 62-12-3,5 (м25.13/89)
Панели стеновые трехслойные Шифр м25.13/89
  • Длина 6190 мм.
  • Ширина 350 мм.
  • Высота 1185 мм.
  • Вес 2860 кг.
  • Объем бетона 1,54 м3
  • Геометрический объем 2,5673 м3
Цена: 59752 руб.
Подробнее
ПСТ 62-15-3,5 (м25.13/89)
Панели стеновые трехслойные Шифр м25.13/89
  • Длина 6190 мм.
  • Ширина 350 мм.
  • Высота 1485 мм.
  • Вес 3610 кг.
  • Объем бетона 1,6 м3
  • Геометрический объем 3,2173 м3
Цена: 62080 руб.
Подробнее
ПСТ 62-18-3,5 (м25.13/89)
Панели стеновые трехслойные Шифр м25.13/89
  • Длина 6190 мм.
  • Ширина 350 мм.
  • Высота 1785 мм.
  • Вес 4320 кг.
  • Объем бетона 1,9 м3
  • Геометрический объем 3,8672 м3
Цена: 73720 руб.
Подробнее
ПСТ 65-12-3,5 (м25.13/89)
Панели стеновые трехслойные Шифр м25.13/89
  • Длина 6540 мм.
  • Ширина 350 мм.
  • Высота 1185 мм.
  • Вес 3040 кг.
  • Объем бетона 1,54 м3
  • Геометрический объем 2,7125 м3
Цена: 59752 руб.
Подробнее
ПСТ 62-9-3,5 (м25.13/89)
Панели стеновые трехслойные Шифр м25.13/89
  • Длина 6190 мм.
  • Ширина 350 мм.
  • Высота 885 мм.
  • Вес 2180 кг.
  • Объем бетона 0,95 м3
  • Геометрический объем 1,9174 м3
Цена: 36860 руб.
Подробнее
ПСТ 65-15-3,5 (м25.13/89)
Панели стеновые трехслойные Шифр м25.13/89
  • Длина 6540 мм.
  • Ширина 350 мм.
  • Высота 1485 мм.
  • Вес 3820 кг.
  • Объем бетона 1,6 м3
  • Геометрический объем 3,3992 м3
Цена: 62080 руб.
Подробнее
ПСТ 62-21-3,5 (м25.13/89)
Панели стеновые трехслойные Шифр м25.13/89
  • Длина 6190 мм.
  • Ширина 350 мм.
  • Высота 2085 мм.
  • Вес 5060 кг.
  • Объем бетона 2,1 м3
  • Геометрический объем 4,5172 м3
Цена: 81480 руб.
Подробнее
ПСТ 65-21-3,5 (м25.13/89)
Панели стеновые трехслойные Шифр м25.13/89
  • Длина 6540 мм.
  • Ширина 350 мм.
  • Высота 2085 мм.
  • Вес 5350 кг.
  • Объем бетона 2,1 м3
  • Геометрический объем 4,7726 м3
Цена: 81480 руб.
Подробнее
ПСТ 65-9-3,5 (м25.13/89)
Панели стеновые трехслойные Шифр м25.13/89
  • Длина 6540 мм.
  • Ширина 350 мм.
  • Высота 885 мм.
  • Вес 2280 кг.
  • Объем бетона 0,95 м3
  • Геометрический объем 2,0258 м3
Цена: 36860 руб.
Подробнее
ПСТ 72-15-3,5 (м25.13/89)
Панели стеновые трехслойные Шифр м25.13/89
  • Длина 7180 мм.
  • Ширина 350 мм.
  • Высота 1485 мм.
  • Вес 4340 кг.
  • Объем бетона 1,88 м3
  • Геометрический объем 3,7318 м3
Цена: 72944 руб.
Подробнее
ПСТ 72-21-3,5 (м25.13/89)
Панели стеновые трехслойные Шифр м25.13/89
  • Длина 7180 мм.
  • Ширина 350 мм.
  • Высота 2085 мм.
  • Вес 6000 кг.
  • Объем бетона 2,6 м3
  • Геометрический объем 5,2396 м3
Цена: 100880 руб.
Подробнее

Уведомление о файлах cookie

Мы используем файлы cookie для улучшения вашего опыта просмотра и анализа трафика. Нажимая "Принять все", вы соглашаетесь с нашей политикой конфиденциальности и политикой обработки файлов cookie.

MAX Дзен Телеграм Вконтакте vk