mobile_sound +7 (930) 655-55-90

Типовые конструкции и железобетонные изделия. Рабочие чертежи (Серия ПК 01-116)

Поделиться:
Поделиться:

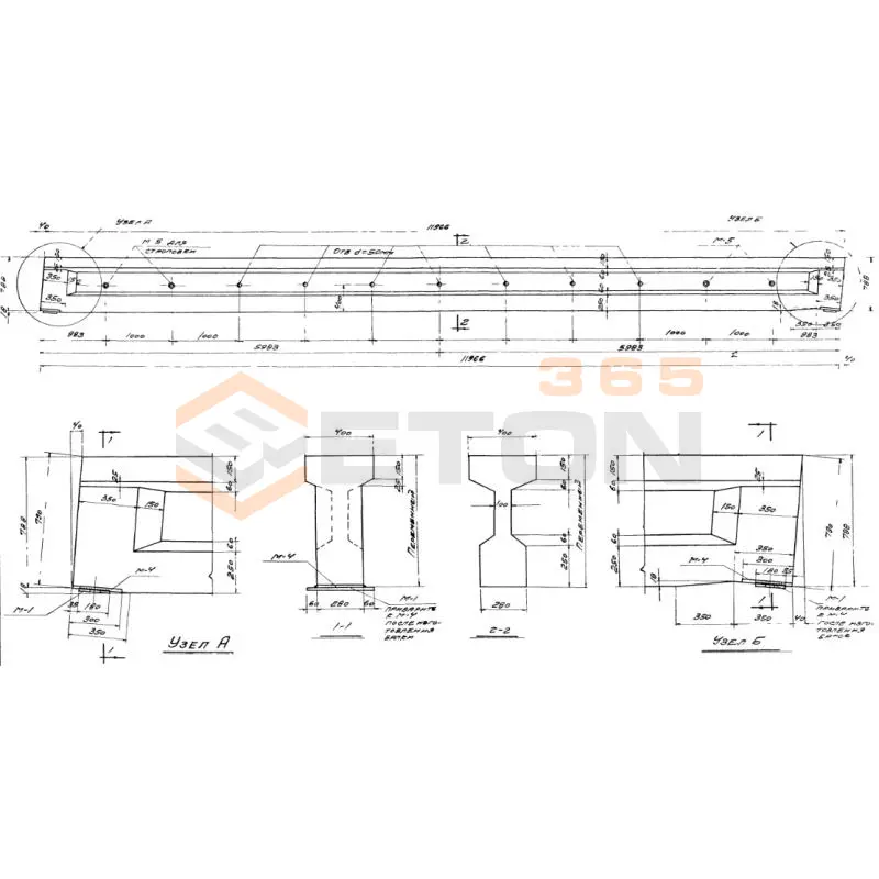
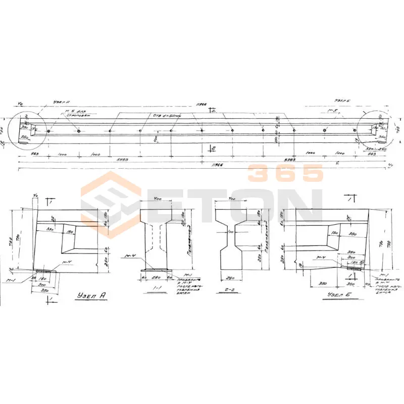
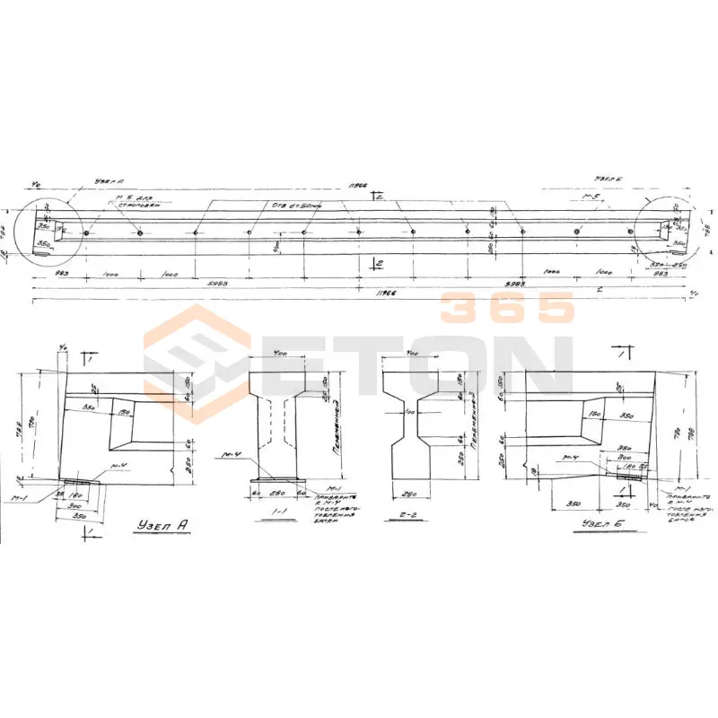
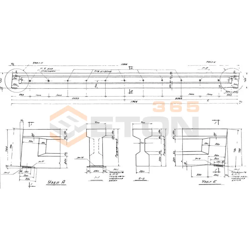
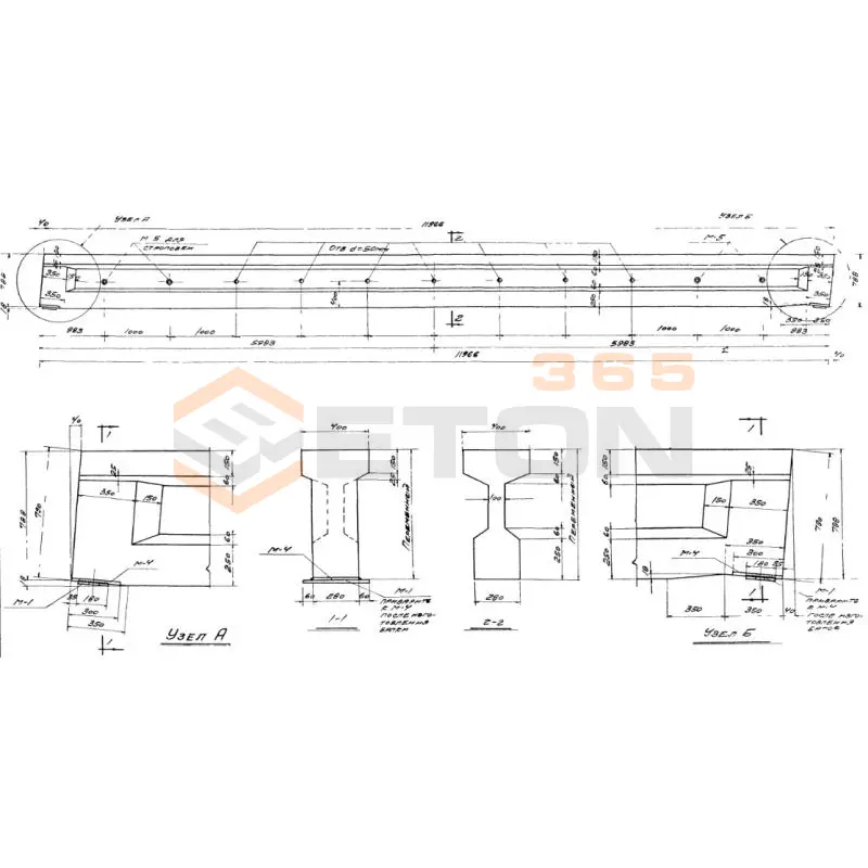
Документ Серия ПК 01-116 описывает область применения, номенклатуру и ключевые требования, опираясь на действующие нормы и практику проектирования. Серия ПК 01-116 отражает поэтапное описание производства односкатных унифицированных балок из железобетона, которые применяются в качестве элементов покрытий сооружений межвидового назначения с пролетами, равными 12 метров. Шаг балок в возводимых зданиях принят равным 6 метрам, а сами изделия и конструкции запроектированы сечением 400х788 мм. Разработками нормативного документа занимался проектный институт ПРОМСТРОЙПРОЕКТ, работы осуществлялись совместно с НИИЖБ.

Файлы для скачивания:
picture_as_pdf

2710.pdf

5,868.7 KB

скачать
picture_as_pdf

2711.pdf

5,431.1 KB

скачать
Товары Серия ПК 01-116 (6)
БОП 12-1
Балки односкатные Серия ПК 01-116
  • Длина 11966 мм.
  • Ширина 400 мм.
  • Высота 788 мм.
  • Вес 5500 кг.
  • Объем бетона 2,2 м3
  • Геометрический объем 3,7717 м3
Цена: 106700 руб.
Подробнее
БОП 12-2
Балки односкатные Серия ПК 01-116
  • Длина 11966 мм.
  • Ширина 400 мм.
  • Высота 788 мм.
  • Вес 5500 кг.
  • Объем бетона 2,2 м3
  • Геометрический объем 3,7717 м3
Цена: 106700 руб.
Подробнее
БОП 12-3
Балки односкатные Серия ПК 01-116
  • Длина 11966 мм.
  • Ширина 400 мм.
  • Высота 788 мм.
  • Вес 5500 кг.
  • Объем бетона 2,2 м3
  • Геометрический объем 3,7717 м3
Цена: 106700 руб.
Подробнее
БОС 12-2
Балки односкатные Серия ПК 01-116
  • Длина 11966 мм.
  • Ширина 400 мм.
  • Высота 788 мм.
  • Вес 5500 кг.
  • Объем бетона 2,2 м3
  • Геометрический объем 3,7717 м3
Цена: 106700 руб.
Подробнее
БОС 12-1
Балки односкатные Серия ПК 01-116
  • Длина 11966 мм.
  • Ширина 400 мм.
  • Высота 788 мм.
  • Вес 5500 кг.
  • Объем бетона 2,2 м3
  • Геометрический объем 3,7717 м3
Цена: 106700 руб.
Подробнее
БОС 12-3
Балки односкатные Серия ПК 01-116
  • Длина 11966 мм.
  • Ширина 400 мм.
  • Высота 788 мм.
  • Вес 5500 кг.
  • Объем бетона 2,2 м3
  • Геометрический объем 3,7717 м3
Цена: 106700 руб.
Подробнее

Уведомление о файлах cookie

Мы используем файлы cookie для улучшения вашего опыта просмотра и анализа трафика. Нажимая "Принять все", вы соглашаетесь с нашей политикой конфиденциальности и политикой обработки файлов cookie.

MAX Дзен Телеграм Вконтакте vk