mobile_sound +7 (930) 655-55-90

Типовые конструкции и железобетонные изделия. Рабочие чертежи (Серия ИЖ 840)

Поделиться:
Поделиться:

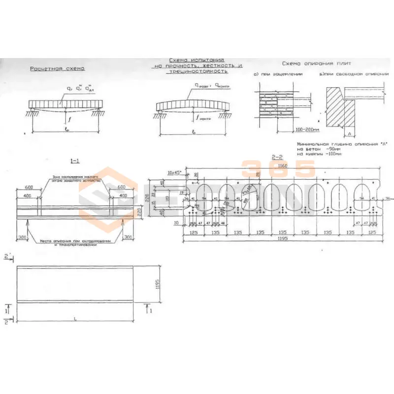
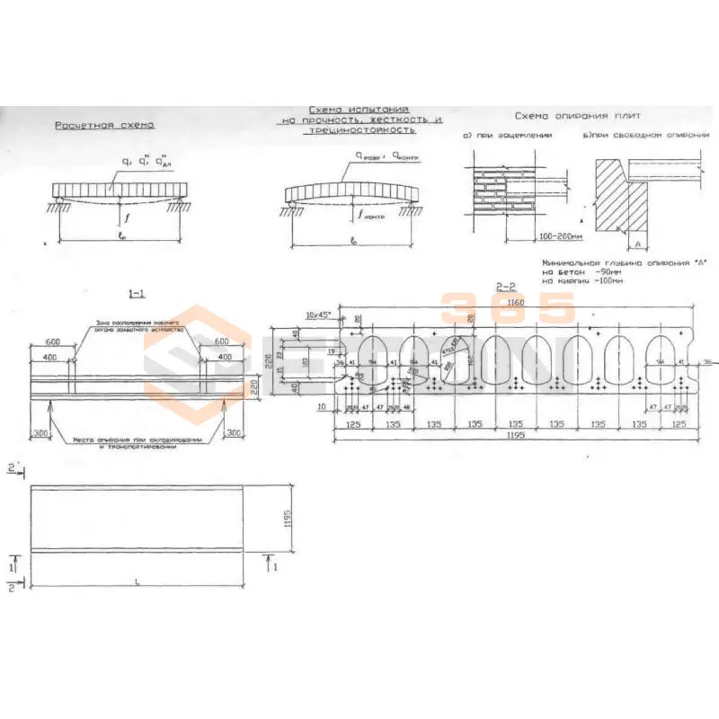
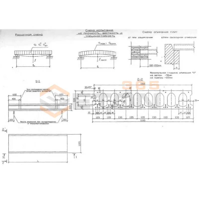
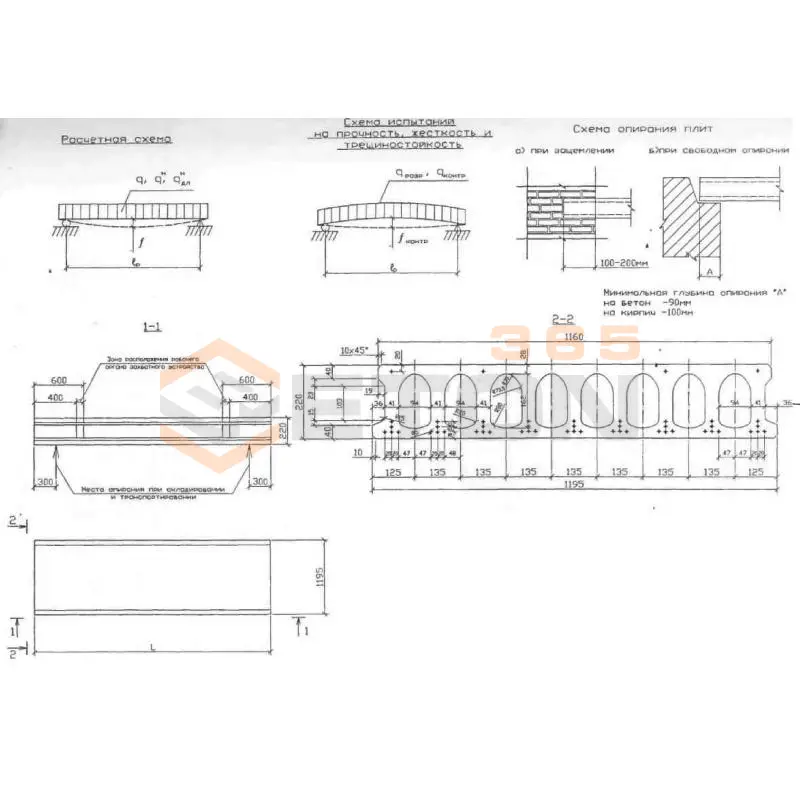
Документ Серия ИЖ 840 описывает область применения, номенклатуру и ключевые требования, опираясь на действующие нормы и практику проектирования. Проектной организацией АКВАДИЗАЙН-А была разработана Серия ИЖ 840, главной задачей которой является отражение полезной информации, необходимой для производства многопустотных предварительно напряженных плит из железобетона. изделия и конструкции приведены в диапазоне длин от 3,6 до 9 метров, шириной 1200 мм при высоте, равной 220 мм. Они широко применяются в качестве междуэтажных перекрытий различных сооружений межвидового назначения.

Файлы для скачивания:
picture_as_pdf

3316.pdf

11,866.5 KB

скачать
Товары Серия ИЖ 840 (4)
ПБ 90-12-3 (ИЖ 840)
Плиты перекрытия многопустотные ПБ шириной 1,2 метра Серия ИЖ 840
  • Длина 8980 мм.
  • Ширина 1195 мм.
  • Высота 220 мм.
  • Вес 3325 кг.
  • Объем бетона 1,33 м3
  • Геометрический объем 2,3608 м3
Цена: 23222 руб.
Подробнее
ПБ 90-12-6 (ИЖ 840)
Плиты перекрытия многопустотные ПБ шириной 1,2 метра Серия ИЖ 840
  • Длина 8980 мм.
  • Ширина 1195 мм.
  • Высота 220 мм.
  • Вес 3325 кг.
  • Объем бетона 1,33 м3
  • Геометрический объем 2,3608 м3
Цена: 23222 руб.
Подробнее
ПБ 90-12-4 (ИЖ 840)
Плиты перекрытия многопустотные ПБ шириной 1,2 метра Серия ИЖ 840
  • Длина 8980 мм.
  • Ширина 1195 мм.
  • Высота 220 мм.
  • Вес 3325 кг.
  • Объем бетона 1,33 м3
  • Геометрический объем 2,3608 м3
Цена: 23222 руб.
Подробнее
ПБ 90-12-8 (ИЖ 840)
Плиты перекрытия многопустотные ПБ шириной 1,2 метра Серия ИЖ 840
  • Длина 8980 мм.
  • Ширина 1195 мм.
  • Высота 220 мм.
  • Вес 3325 кг.
  • Объем бетона 1,33 м3
  • Геометрический объем 2,3608 м3
Цена: 23222 руб.
Подробнее

Уведомление о файлах cookie

Мы используем файлы cookie для улучшения вашего опыта просмотра и анализа трафика. Нажимая "Принять все", вы соглашаетесь с нашей политикой конфиденциальности и политикой обработки файлов cookie.

MAX Дзен Телеграм Вконтакте vk