mobile_sound +7 (930) 655-55-90

Лестничные марши и площадки. Рабочие чертежи (Серия ИИ 41)

Поделиться:
Поделиться:

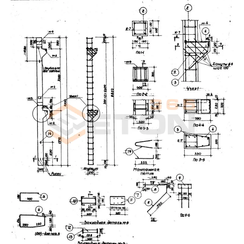
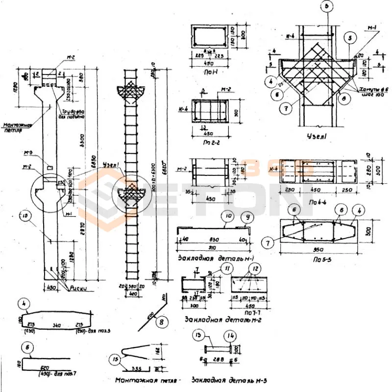
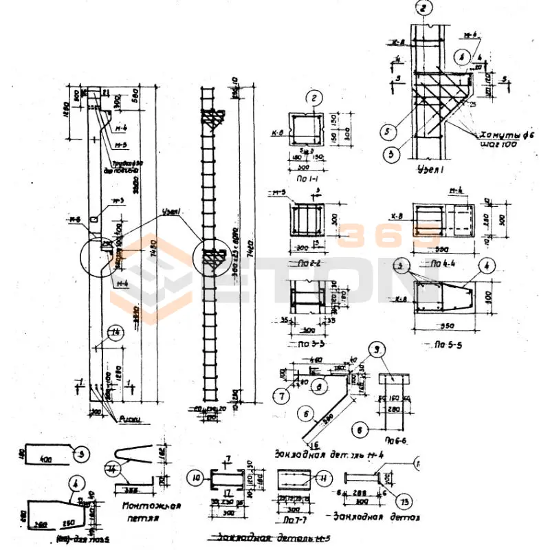
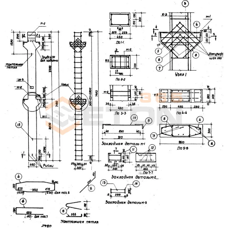
Документ Серия ИИ 41 описывает область применения, номенклатуру и ключевые требования, опираясь на действующие нормы и практику проектирования. В номенклатурный перечень Серии ИИ 41 вошли унифицированные фундаменты, колонны, ригели, а также элементы лестничной клетки, среди которых марши, площадки и проступи. Все конструкции были разработаны специально для применения в строительстве при возведении бытовых помещений сооружений, имеющих высоту 2-3 этажа. Разработчиком нормативного документа является проектный институт ГИПРОТИС при поддержке Госстроя СССР.

Файлы для скачивания:
picture_as_pdf

5382.pdf

8,665.4 KB

скачать
Товары Серия ИИ 41 (23)
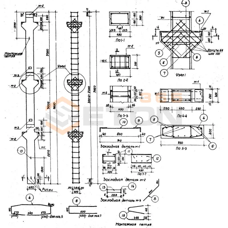
КБ 2 (ИИ 41)
Колонны Серия ИИ 41
  • Длина 10450 мм.
  • Ширина 950 мм.
  • Высота 300 мм.
  • Вес 4250 кг.
  • Объем бетона 1,7 м3
  • Геометрический объем 2,9783 м3
Цена: 34629 руб.
Подробнее
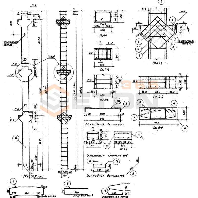
КБ 1 (ИИ 41)
Колонны Серия ИИ 41
  • Длина 9850 мм.
  • Ширина 950 мм.
  • Высота 300 мм.
  • Вес 3920 кг.
  • Объем бетона 1,57 м3
  • Геометрический объем 2,8072 м3
Цена: 31981 руб.
Подробнее
КБ 3 (ИИ 41)
Колонны Серия ИИ 41
  • Длина 7450 мм.
  • Ширина 950 мм.
  • Высота 300 мм.
  • Вес 2750 кг.
  • Объем бетона 1,1 м3
  • Геометрический объем 2,1233 м3
Цена: 22407 руб.
Подробнее
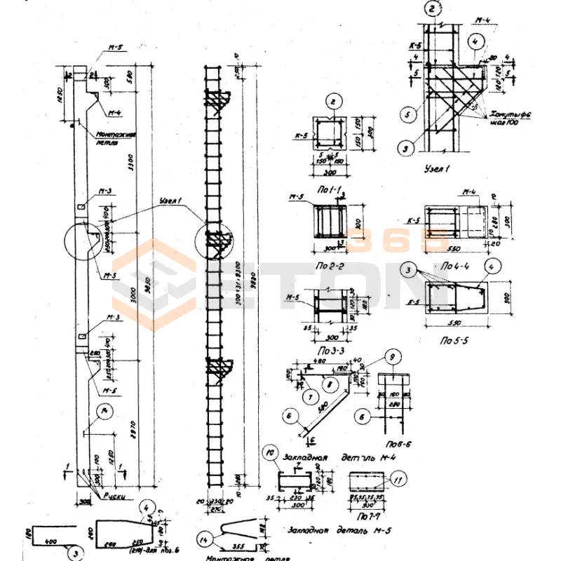
КБ 5 (ИИ 41)
Колонны Серия ИИ 41
  • Длина 9850 мм.
  • Ширина 550 мм.
  • Высота 300 мм.
  • Вес 2400 кг.
  • Объем бетона 0,96 м3
  • Геометрический объем 1,6253 м3
Цена: 19555 руб.
Подробнее
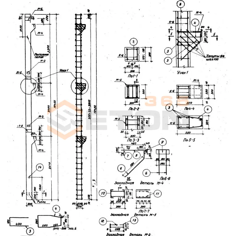
КБ 6 (ИИ 41)
Колонны Серия ИИ 41
  • Длина 10450 мм.
  • Ширина 550 мм.
  • Высота 300 мм.
  • Вес 2520 кг.
  • Объем бетона 1,01 м3
  • Геометрический объем 1,7243 м3
Цена: 20574 руб.
Подробнее
КБ 4 (ИИ 41)
Колонны Серия ИИ 41
  • Длина 6850 мм.
  • Ширина 950 мм.
  • Высота 300 мм.
  • Вес 2520 кг.
  • Объем бетона 1,01 м3
  • Геометрический объем 1,9523 м3
Цена: 20574 руб.
Подробнее
КБ 8 (ИИ 41)
Колонны Серия ИИ 41
  • Длина 7450 мм.
  • Ширина 550 мм.
  • Высота 300 мм.
  • Вес 1800 кг.
  • Объем бетона 0,72 м3
  • Геометрический объем 1,2292 м3
Цена: 14666 руб.
Подробнее
КБ 7 (ИИ 41)
Колонны Серия ИИ 41
  • Длина 6850 мм.
  • Ширина 550 мм.
  • Высота 300 мм.
  • Вес 1650 кг.
  • Объем бетона 0,66 м3
  • Геометрический объем 1,1302 м3
Цена: 13444 руб.
Подробнее
ЛМ (ИИ 41)
Лестничные марши Серия ИИ 41
  • Длина 3576 мм.
  • Ширина 1200 мм.
  • Высота 254 мм.
  • Вес 1140 кг.
  • Объем бетона 0,456 м3
  • Геометрический объем 1,09 м3
Цена: 10173 руб.
Подробнее
ЛП (ИИ 41)
Лестничные площадки Серия ИИ 41
  • Длина 2930 мм.
  • Ширина 1190 мм.
  • Высота 345 мм.
  • Вес 860 кг.
  • Объем бетона 0,344 м3
  • Геометрический объем 1,2029 м3
Цена: 7675 руб.
Подробнее
ПМ 1 (ИИ 41)
Проступи Серия ИИ 41
  • Длина 1200 мм.
  • Ширина 335 мм.
  • Высота 50 мм.
  • Вес 35 кг.
  • Объем бетона 0,014 м3
  • Геометрический объем 0,0201 м3
Цена: 611 руб.
Подробнее
ПМ 1 а (ИИ 41)
Проступи Серия ИИ 41
  • Длина 1200 мм.
  • Ширина 335 мм.
  • Высота 50 мм.
  • Вес 35 кг.
  • Объем бетона 0,014 м3
  • Геометрический объем 0,0201 м3
Цена: 611 руб.
Подробнее
ПМ 3 (ИИ 41)
Проступи Серия ИИ 41
  • Длина 1200 мм.
  • Ширина 255 мм.
  • Высота 50 мм.
  • Вес 28 кг.
  • Объем бетона 0,011 м3
  • Геометрический объем 0,0153 м3
Цена: 480 руб.
Подробнее
ПМ 2 (ИИ 41)
Проступи Серия ИИ 41
  • Длина 1240 мм.
  • Ширина 220 мм.
  • Высота 35 мм.
  • Вес 22 кг.
  • Объем бетона 0,009 м3
  • Геометрический объем 0,0095 м3
Цена: 393 руб.
Подробнее
ПТР 59-10 а (ИИ 41)
Панели ребристые Серия ИИ 41
  • Длина 5860 мм.
  • Ширина 990 мм.
  • Высота 260 мм.
  • Вес 1250 кг.
  • Объем бетона 0,5 м3
  • Геометрический объем 1,5084 м3
Цена: 16975 руб.
Подробнее
РБ 1 (ИИ 41)
Ригели Серия ИИ 41
  • Длина 6050 мм.
  • Ширина 520 мм.
  • Высота 600 мм.
  • Вес 3000 кг.
  • Объем бетона 1,198 м3
  • Геометрический объем 1,8876 м3
Цена: 52293 руб.
Подробнее
РБ 2 а (ИИ 41)
Ригели Серия ИИ 41
  • Длина 5350 мм.
  • Ширина 520 мм.
  • Высота 550 мм.
  • Вес 2525 кг.
  • Объем бетона 1,02 м3
  • Геометрический объем 1,5301 м3
Цена: 44523 руб.
Подробнее
РБ 2 (ИИ 41)
Ригели Серия ИИ 41
  • Длина 5350 мм.
  • Ширина 520 мм.
  • Высота 600 мм.
  • Вес 2690 кг.
  • Объем бетона 1,076 м3
  • Геометрический объем 1,6692 м3
Цена: 46967 руб.
Подробнее
РБ 1 а (ИИ 41)
Ригели Серия ИИ 41
  • Длина 6050 мм.
  • Ширина 520 мм.
  • Высота 550 мм.
  • Вес 2890 кг.
  • Объем бетона 1,16 м3
  • Геометрический объем 1,7303 м3
Цена: 50634 руб.
Подробнее
РБ 3 (ИИ 41)
Ригели Серия ИИ 41
  • Длина 2600 мм.
  • Ширина 520 мм.
  • Высота 550 мм.
  • Вес 1250 кг.
  • Объем бетона 0,5 м3
  • Геометрический объем 0,7436 м3
Цена: 21825 руб.
Подробнее
Ф 1 (ИИ 41)
Фундаменты Серия ИИ 41
  • Длина 1000 мм.
  • Ширина 1000 мм.
  • Высота 870 мм.
  • Вес 1800 кг.
  • Объем бетона 0,72 м3
  • Геометрический объем 0,87 м3
Цена: 11873 руб.
Подробнее
Ф 2 (ИИ 41)
Фундаменты Серия ИИ 41
  • Длина 1000 мм.
  • Ширина 1000 мм.
  • Высота 870 мм.
  • Вес 1900 кг.
  • Объем бетона 0,76 м3
  • Геометрический объем 0,87 м3
Цена: 12532 руб.
Подробнее
Ф 1 а (ИИ 41)
Фундаменты Серия ИИ 41
  • Длина 1000 мм.
  • Ширина 1000 мм.
  • Высота 750 мм.
  • Вес 1575 кг.
  • Объем бетона 0,63 м3
  • Геометрический объем 0,75 м3
Цена: 10389 руб.
Подробнее

Уведомление о файлах cookie

Мы используем файлы cookie для улучшения вашего опыта просмотра и анализа трафика. Нажимая "Принять все", вы соглашаетесь с нашей политикой конфиденциальности и политикой обработки файлов cookie.

MAX Дзен Телеграм Вконтакте vk