mobile_sound +7 (930) 655-55-90

Железобетонные опоры линий электропередачи. Рабочие чертежи (Серия ИИ 04-4)

Поделиться:
Поделиться:

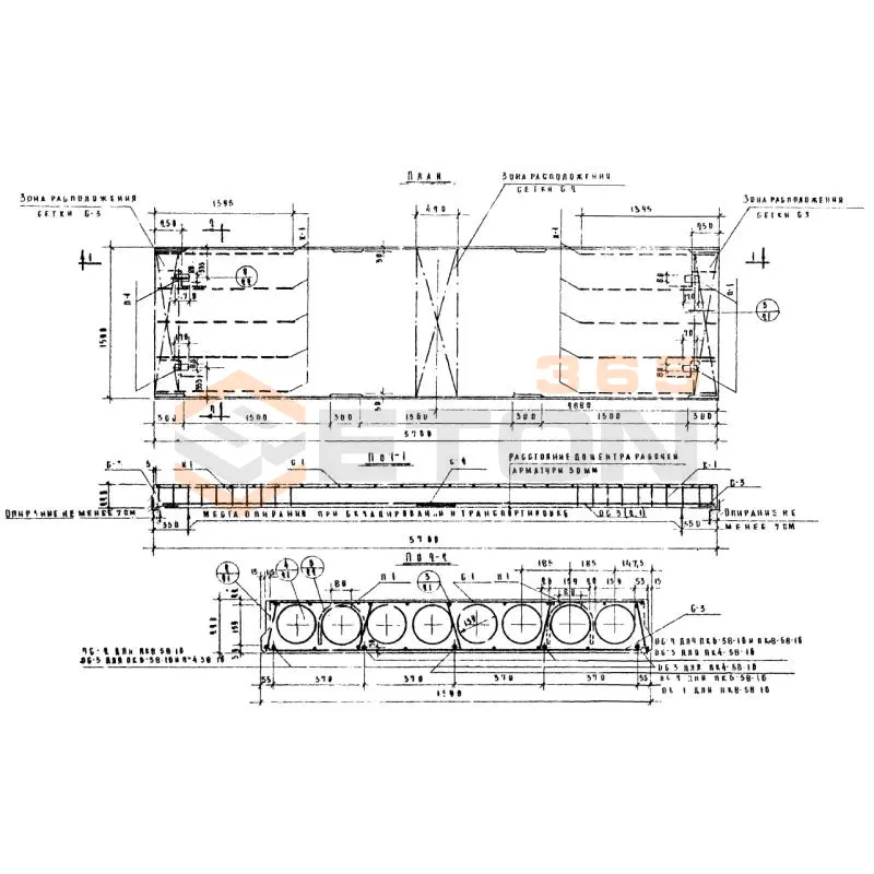
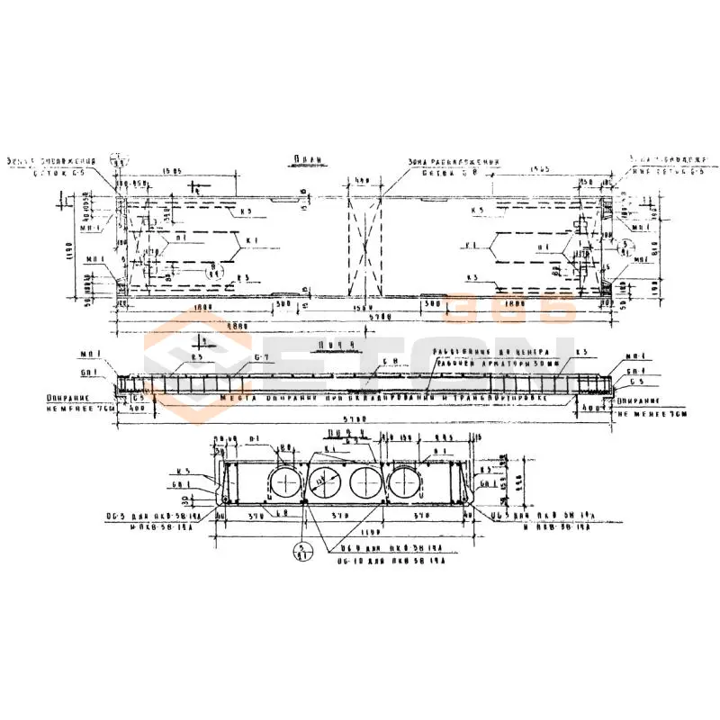
Документ Серия ИИ 04-4 описывает область применения, номенклатуру и ключевые требования, опираясь на действующие нормы и практику проектирования. Серия ИИ 04-4 повествует об особенностях производства многопустотных, ребристых и сплошных панелях, используемых в качестве междуэтажных перекрытий в зданиях и сооружениях различного назначения. Для увеличения числа типовых проектов с применением данных изделия и конструкции, они были разработаны в широком диапазоне вариантов геометрических пропорций, а также с различными классами применяемого в процессе изготовления армирования. Дополнительно регламент отражает рабочие чертежи карнизных плит и фризовых камней, играющих важную роль при формировании эстетической привлекательности здания, а также необходимых для защиты от атмосферных осадков внутреннего пространства стен.

Файлы для скачивания:
picture_as_pdf

441.pdf

9,883.4 KB

скачать
picture_as_pdf

445.pdf

7,049.2 KB

скачать
picture_as_pdf

446.pdf

6,991.1 KB

скачать
picture_as_pdf

447.pdf

7,480.1 KB

скачать
picture_as_pdf

442.pdf

5,644.4 KB

скачать
picture_as_pdf

448.pdf

3,545.6 KB

скачать
picture_as_pdf

449.pdf

42,728.2 KB

скачать
picture_as_pdf

450.pdf

8,620.7 KB

скачать
picture_as_pdf

451.pdf

1,263.0 KB

скачать
picture_as_pdf

452.pdf

10,204.3 KB

скачать
picture_as_pdf

453.pdf

9,190.9 KB

скачать
picture_as_pdf

454.pdf

17,437.2 KB

скачать
picture_as_pdf

455.pdf

10,086.9 KB

скачать
picture_as_pdf

456.pdf

9,243.5 KB

скачать
picture_as_pdf

457.pdf

8,076.3 KB

скачать
picture_as_pdf

458.pdf

7,920.2 KB

скачать
picture_as_pdf

459.pdf

4,800.7 KB

скачать
picture_as_pdf

460.pdf

11,025.6 KB

скачать
picture_as_pdf

461.pdf

11,924.8 KB

скачать
picture_as_pdf

462.pdf

7,825.6 KB

скачать
picture_as_pdf

443.pdf

6,445.1 KB

скачать
picture_as_pdf

444.pdf

4,288.5 KB

скачать
Товары Серия ИИ 04-4 (60)
ПК 16-53-15 п ВрII
Плиты перекрытия многопустотные Серия ИИ 04-4
  • Длина 5260 мм.
  • Ширина 1490 мм.
  • Высота 220 мм.
  • Вес 2440 кг.
  • Объем бетона 0,974 м3
  • Геометрический объем 1,7242 м3
Цена: 17006 руб.
Подробнее
ПК 16-53-15 с АIV
Плиты перекрытия многопустотные Серия ИИ 04-4
  • Длина 5260 мм.
  • Ширина 1490 мм.
  • Высота 220 мм.
  • Вес 2420 кг.
  • Объем бетона 0,966 м3
  • Геометрический объем 1,7242 м3
Цена: 16866 руб.
Подробнее
ПК 16-53-15 с ВрII
Плиты перекрытия многопустотные Серия ИИ 04-4
  • Длина 5260 мм.
  • Ширина 1490 мм.
  • Высота 220 мм.
  • Вес 2420 кг.
  • Объем бетона 0,966 м3
  • Геометрический объем 1,7242 м3
Цена: 16866 руб.
Подробнее
ПК 16-58-12
Плиты перекрытия многопустотные Серия ИИ 04-4
  • Длина 5760 мм.
  • Ширина 1190 мм.
  • Высота 220 мм.
  • Вес 2040 кг.
  • Объем бетона 0,815 м3
  • Геометрический объем 1,508 м3
Цена: 14230 руб.
Подробнее
ПК 16-53-15 с АтV
Плиты перекрытия многопустотные Серия ИИ 04-4
  • Длина 5260 мм.
  • Ширина 1490 мм.
  • Высота 220 мм.
  • Вес 2420 кг.
  • Объем бетона 0,966 м3
  • Геометрический объем 1,7242 м3
Цена: 16866 руб.
Подробнее
ПК 16-58-12 АIV
Плиты перекрытия многопустотные Серия ИИ 04-4
  • Длина 5760 мм.
  • Ширина 1190 мм.
  • Высота 220 мм.
  • Вес 2040 кг.
  • Объем бетона 0,815 м3
  • Геометрический объем 1,508 м3
Цена: 14230 руб.
Подробнее
ПК 16-58-15
Плиты перекрытия многопустотные Серия ИИ 04-4
  • Длина 5760 мм.
  • Ширина 1490 мм.
  • Высота 220 мм.
  • Вес 2710 кг.
  • Объем бетона 1,084 м3
  • Геометрический объем 1,8881 м3
Цена: 18927 руб.
Подробнее
ПК 16-58-12 АтV
Плиты перекрытия многопустотные Серия ИИ 04-4
  • Длина 5760 мм.
  • Ширина 1190 мм.
  • Высота 220 мм.
  • Вес 2040 кг.
  • Объем бетона 0,815 м3
  • Геометрический объем 1,508 м3
Цена: 14230 руб.
Подробнее
ПК 16-58-15 АIV
Плиты перекрытия многопустотные Серия ИИ 04-4
  • Длина 5760 мм.
  • Ширина 1490 мм.
  • Высота 220 мм.
  • Вес 2710 кг.
  • Объем бетона 1,084 м3
  • Геометрический объем 1,8881 м3
Цена: 18927 руб.
Подробнее
ПК 16-58-15 АтV
Плиты перекрытия многопустотные Серия ИИ 04-4
  • Длина 5760 мм.
  • Ширина 1490 мм.
  • Высота 220 мм.
  • Вес 2710 кг.
  • Объем бетона 1,084 м3
  • Геометрический объем 1,8881 м3
Цена: 18927 руб.
Подробнее
ПК 16-58-15 п АIV
Плиты перекрытия многопустотные Серия ИИ 04-4
  • Длина 5760 мм.
  • Ширина 1490 мм.
  • Высота 220 мм.
  • Вес 2670 кг.
  • Объем бетона 1,066 м3
  • Геометрический объем 1,8881 м3
Цена: 18612 руб.
Подробнее
ПК 16-58-15 с АIV
Плиты перекрытия многопустотные Серия ИИ 04-4
  • Длина 5760 мм.
  • Ширина 1490 мм.
  • Высота 220 мм.
  • Вес 2650 кг.
  • Объем бетона 1,058 м3
  • Геометрический объем 1,8881 м3
Цена: 18473 руб.
Подробнее
ПК 16-58-15 п ВрII
Плиты перекрытия многопустотные Серия ИИ 04-4
  • Длина 5760 мм.
  • Ширина 1490 мм.
  • Высота 220 мм.
  • Вес 2670 кг.
  • Объем бетона 1,066 м3
  • Геометрический объем 1,8881 м3
Цена: 18612 руб.
Подробнее
ПК 16-58-15 с АтV
Плиты перекрытия многопустотные Серия ИИ 04-4
  • Длина 5760 мм.
  • Ширина 1490 мм.
  • Высота 220 мм.
  • Вес 2650 кг.
  • Объем бетона 1,058 м3
  • Геометрический объем 1,8881 м3
Цена: 18473 руб.
Подробнее
ПК 16-58-15 п АтV
Плиты перекрытия многопустотные Серия ИИ 04-4
  • Длина 5760 мм.
  • Ширина 1490 мм.
  • Высота 220 мм.
  • Вес 2670 кг.
  • Объем бетона 1,066 м3
  • Геометрический объем 1,8881 м3
Цена: 18612 руб.
Подробнее
ПК 16-58-15 с ВрII
Плиты перекрытия многопустотные Серия ИИ 04-4
  • Длина 5760 мм.
  • Ширина 1490 мм.
  • Высота 220 мм.
  • Вес 2650 кг.
  • Объем бетона 1,058 м3
  • Геометрический объем 1,8881 м3
Цена: 18473 руб.
Подробнее
ПК 17-28-12 а
Плиты перекрытия многопустотные Серия ИИ 04-4
  • Длина 2760 мм.
  • Ширина 1190 мм.
  • Высота 220 мм.
  • Вес 1180 кг.
  • Объем бетона 0,47 м3
  • Геометрический объем 0,7226 м3
Цена: 8206 руб.
Подробнее
ПК 17-28-12 а
Плиты перекрытия многопустотные Серия ИИ 04-4
  • Длина 2760 мм.
  • Ширина 1190 мм.
  • Высота 220 мм.
  • Вес 1070 кг.
  • Объем бетона 0,43 м3
  • Геометрический объем 0,7226 м3
Цена: 7508 руб.
Подробнее
ПК 17-28-16
Плиты перекрытия многопустотные Серия ИИ 04-4
  • Длина 2760 мм.
  • Ширина 1590 мм.
  • Высота 220 мм.
  • Вес 1290 кг.
  • Объем бетона 0,518 м3
  • Геометрический объем 0,9654 м3
Цена: 9044 руб.
Подробнее
ПК 4-58-16
Плиты перекрытия многопустотные Серия ИИ 04-4
  • Длина 5760 мм.
  • Ширина 1590 мм.
  • Высота 220 мм.
  • Вес 2230 кг.
  • Объем бетона 0,89 м3
  • Геометрический объем 2,0148 м3
Цена: 15539 руб.
Подробнее
ПК 17-28-8
Плиты перекрытия многопустотные Серия ИИ 04-4
  • Длина 2760 мм.
  • Ширина 790 мм.
  • Высота 220 мм.
  • Вес 1100 кг.
  • Объем бетона 0,44 м3
  • Геометрический объем 0,4797 м3
Цена: 7682 руб.
Подробнее
ПК 4-58-16
Плиты перекрытия многопустотные Серия ИИ 04-4
  • Длина 5760 мм.
  • Ширина 1590 мм.
  • Высота 220 мм.
  • Вес 2700 кг.
  • Объем бетона 1,08 м3
  • Геометрический объем 2,0148 м3
Цена: 18857 руб.
Подробнее
ПК 17-28-16
Плиты перекрытия многопустотные Серия ИИ 04-4
  • Длина 2760 мм.
  • Ширина 1590 мм.
  • Высота 220 мм.
  • Вес 1110 кг.
  • Объем бетона 0,455 м3
  • Геометрический объем 0,9654 м3
Цена: 7944 руб.
Подробнее
ПК 4,5-58-12
Плиты перекрытия многопустотные Серия ИИ 04-4
  • Длина 5760 мм.
  • Ширина 1190 мм.
  • Высота 220 мм.
  • Вес 2040 кг.
  • Объем бетона 0,815 м3
  • Геометрический объем 1,508 м3
Цена: 14230 руб.
Подробнее
ПК 4,5-58-12
Плиты перекрытия многопустотные Серия ИИ 04-4
  • Длина 5760 мм.
  • Ширина 1190 мм.
  • Высота 220 мм.
  • Вес 1420 кг.
  • Объем бетона 0,815 м3
  • Геометрический объем 1,508 м3
Цена: 14230 руб.
Подробнее
ПК 4,5-58-12 АтV
Плиты перекрытия многопустотные Серия ИИ 04-4
  • Длина 5760 мм.
  • Ширина 1190 мм.
  • Высота 220 мм.
  • Вес 2040 кг.
  • Объем бетона 0,815 м3
  • Геометрический объем 1,508 м3
Цена: 14230 руб.
Подробнее
ПК 4,5-58-12 ВрII
Плиты перекрытия многопустотные Серия ИИ 04-4
  • Длина 5760 мм.
  • Ширина 1190 мм.
  • Высота 220 мм.
  • Вес 2040 кг.
  • Объем бетона 0,815 м3
  • Геометрический объем 1,508 м3
Цена: 14230 руб.
Подробнее
ПК 4,5-58-15
Плиты перекрытия многопустотные Серия ИИ 04-4
  • Длина 5760 мм.
  • Ширина 1490 мм.
  • Высота 220 мм.
  • Вес 1890 кг.
  • Объем бетона 1,084 м3
  • Геометрический объем 1,8881 м3
Цена: 18927 руб.
Подробнее
ПК 4,5-58-15 АтV
Плиты перекрытия многопустотные Серия ИИ 04-4
  • Длина 5760 мм.
  • Ширина 1490 мм.
  • Высота 220 мм.
  • Вес 2700 кг.
  • Объем бетона 1,084 м3
  • Геометрический объем 1,8881 м3
Цена: 18927 руб.
Подробнее
ПК 4,5-58-15
Плиты перекрытия многопустотные Серия ИИ 04-4
  • Длина 5760 мм.
  • Ширина 1490 мм.
  • Высота 220 мм.
  • Вес 2710 кг.
  • Объем бетона 1,084 м3
  • Геометрический объем 1,8881 м3
Цена: 18927 руб.
Подробнее
ПК 4,5-58-15 п
Плиты перекрытия многопустотные Серия ИИ 04-4
  • Длина 5760 мм.
  • Ширина 1490 мм.
  • Высота 220 мм.
  • Вес 1860 кг.
  • Объем бетона 1,066 м3
  • Геометрический объем 1,8881 м3
Цена: 18612 руб.
Подробнее
ПК 4,5-58-15 п АтV
Плиты перекрытия многопустотные Серия ИИ 04-4
  • Длина 5760 мм.
  • Ширина 1490 мм.
  • Высота 220 мм.
  • Вес 2665 кг.
  • Объем бетона 1,066 м3
  • Геометрический объем 1,8881 м3
Цена: 18612 руб.
Подробнее
ПК 4,5-58-15 п ВрII
Плиты перекрытия многопустотные Серия ИИ 04-4
  • Длина 5760 мм.
  • Ширина 1490 мм.
  • Высота 220 мм.
  • Вес 2670 кг.
  • Объем бетона 1,066 м3
  • Геометрический объем 1,8881 м3
Цена: 18612 руб.
Подробнее
ПК 4,5-58-15 ВрII
Плиты перекрытия многопустотные Серия ИИ 04-4
  • Длина 5760 мм.
  • Ширина 1490 мм.
  • Высота 220 мм.
  • Вес 2710 кг.
  • Объем бетона 1,084 м3
  • Геометрический объем 1,8881 м3
Цена: 18927 руб.
Подробнее
ПК 4,5-58-15 п
Плиты перекрытия многопустотные Серия ИИ 04-4
  • Длина 5760 мм.
  • Ширина 1490 мм.
  • Высота 220 мм.
  • Вес 2670 кг.
  • Объем бетона 1,056 м3
  • Геометрический объем 1,8881 м3
Цена: 18438 руб.
Подробнее
ПК 4,5-58-15 с
Плиты перекрытия многопустотные Серия ИИ 04-4
  • Длина 5760 мм.
  • Ширина 1490 мм.
  • Высота 220 мм.
  • Вес 1850 кг.
  • Объем бетона 1,058 м3
  • Геометрический объем 1,8881 м3
Цена: 18473 руб.
Подробнее
ПК 4,5-58-15 с
Плиты перекрытия многопустотные Серия ИИ 04-4
  • Длина 5760 мм.
  • Ширина 1490 мм.
  • Высота 220 мм.
  • Вес 2650 кг.
  • Объем бетона 1,058 м3
  • Геометрический объем 1,8881 м3
Цена: 18473 руб.
Подробнее
ПК 4,5-58-15 с АтV
Плиты перекрытия многопустотные Серия ИИ 04-4
  • Длина 5760 мм.
  • Ширина 1490 мм.
  • Высота 220 мм.
  • Вес 2645 кг.
  • Объем бетона 1,058 м3
  • Геометрический объем 1,8881 м3
Цена: 18473 руб.
Подробнее
ПК 4,5-64-12 АIV
Плиты перекрытия многопустотные Серия ИИ 04-4
  • Длина 6360 мм.
  • Ширина 1190 мм.
  • Высота 220 мм.
  • Вес 2300 кг.
  • Объем бетона 0,93 м3
  • Геометрический объем 1,665 м3
Цена: 16238 руб.
Подробнее
ПК 4,5-58-15 с ВрII
Плиты перекрытия многопустотные Серия ИИ 04-4
  • Длина 5760 мм.
  • Ширина 1490 мм.
  • Высота 220 мм.
  • Вес 2650 кг.
  • Объем бетона 1,058 м3
  • Геометрический объем 1,8881 м3
Цена: 18473 руб.
Подробнее
ПК 4,5-64-15 п АIV
Плиты перекрытия многопустотные Серия ИИ 04-4
  • Длина 6360 мм.
  • Ширина 1490 мм.
  • Высота 220 мм.
  • Вес 2900 кг.
  • Объем бетона 1,17 м3
  • Геометрический объем 2,0848 м3
Цена: 20428 руб.
Подробнее
ПК 4,5-64-15 АIV
Плиты перекрытия многопустотные Серия ИИ 04-4
  • Длина 6360 мм.
  • Ширина 1490 мм.
  • Высота 220 мм.
  • Вес 3000 кг.
  • Объем бетона 1,2 м3
  • Геометрический объем 2,0848 м3
Цена: 20952 руб.
Подробнее
ПК 4,5-88-12
Плиты перекрытия многопустотные Серия ИИ 04-4
  • Длина 8760 мм.
  • Ширина 1190 мм.
  • Высота 220 мм.
  • Вес 3100 кг.
  • Объем бетона 1,234 м3
  • Геометрический объем 2,2934 м3
Цена: 21546 руб.
Подробнее
ПК 4,5-64-15 с АIV
Плиты перекрытия многопустотные Серия ИИ 04-4
  • Длина 6360 мм.
  • Ширина 1490 мм.
  • Высота 220 мм.
  • Вес 2900 кг.
  • Объем бетона 1,17 м3
  • Геометрический объем 2,0848 м3
Цена: 20428 руб.
Подробнее
ПК 4,5-88-12 ВрII
Плиты перекрытия многопустотные Серия ИИ 04-4
  • Длина 8760 мм.
  • Ширина 1190 мм.
  • Высота 220 мм.
  • Вес 3100 кг.
  • Объем бетона 1,234 м3
  • Геометрический объем 2,2934 м3
Цена: 21546 руб.
Подробнее
ПК 4,5-88-12 АIV
Плиты перекрытия многопустотные Серия ИИ 04-4
  • Длина 8760 мм.
  • Ширина 1190 мм.
  • Высота 220 мм.
  • Вес 2400 кг.
  • Объем бетона 1,21 м3
  • Геометрический объем 2,2934 м3
Цена: 21127 руб.
Подробнее
ПК 4,5-88-15 ВрII
Плиты перекрытия многопустотные Серия ИИ 04-4
  • Длина 8760 мм.
  • Ширина 1490 мм.
  • Высота 220 мм.
  • Вес 4100 кг.
  • Объем бетона 1,642 м3
  • Геометрический объем 2,8715 м3
Цена: 28669 руб.
Подробнее
ПК 4,5-88-15
Плиты перекрытия многопустотные Серия ИИ 04-4
  • Длина 5760 мм.
  • Ширина 1490 мм.
  • Высота 220 мм.
  • Вес 4100 кг.
  • Объем бетона 1,642 м3
  • Геометрический объем 1,8881 м3
Цена: 28669 руб.
Подробнее
ПК 4,5-88-15 п
Плиты перекрытия многопустотные Серия ИИ 04-4
  • Длина 8760 мм.
  • Ширина 1490 мм.
  • Высота 220 мм.
  • Вес 4080 кг.
  • Объем бетона 1,631 м3
  • Геометрический объем 2,8715 м3
Цена: 28477 руб.
Подробнее
ПК 4,5-88-15 АIV
Плиты перекрытия многопустотные Серия ИИ 04-4
  • Длина 8760 мм.
  • Ширина 1490 мм.
  • Высота 220 мм.
  • Вес 3200 кг.
  • Объем бетона 1,61 м3
  • Геометрический объем 2,8715 м3
Цена: 28111 руб.
Подробнее
ПК 4,5-88-15 п АIV
Плиты перекрытия многопустотные Серия ИИ 04-4
  • Длина 8760 мм.
  • Ширина 1490 мм.
  • Высота 220 мм.
  • Вес 3160 кг.
  • Объем бетона 1,59 м3
  • Геометрический объем 2,8715 м3
Цена: 27761 руб.
Подробнее
ПК 4,5-88-15 п ВрII
Плиты перекрытия многопустотные Серия ИИ 04-4
  • Длина 8760 мм.
  • Ширина 1490 мм.
  • Высота 220 мм.
  • Вес 4080 кг.
  • Объем бетона 1,631 м3
  • Геометрический объем 2,8715 м3
Цена: 28477 руб.
Подробнее
ПК 4,5-88-15 с
Плиты перекрытия многопустотные Серия ИИ 04-4
  • Длина 8760 мм.
  • Ширина 1490 мм.
  • Высота 220 мм.
  • Вес 4080 кг.
  • Объем бетона 1,633 м3
  • Геометрический объем 2,8715 м3
Цена: 28512 руб.
Подробнее
ПК 6-58-12
Плиты перекрытия многопустотные Серия ИИ 04-4
  • Длина 5760 мм.
  • Ширина 1190 мм.
  • Высота 220 мм.
  • Вес 1730 кг.
  • Объем бетона 0,693 м3
  • Геометрический объем 1,508 м3
Цена: 12100 руб.
Подробнее
ПК 4,5-88-15 с АIV
Плиты перекрытия многопустотные Серия ИИ 04-4
  • Длина 8760 мм.
  • Ширина 1490 мм.
  • Высота 220 мм.
  • Вес 3160 кг.
  • Объем бетона 1,59 м3
  • Геометрический объем 2,8715 м3
Цена: 27761 руб.
Подробнее
ПК 4,5-88-15 с ВрII
Плиты перекрытия многопустотные Серия ИИ 04-4
  • Длина 8760 мм.
  • Ширина 1490 мм.
  • Высота 220 мм.
  • Вес 4080 кг.
  • Объем бетона 1,633 м3
  • Геометрический объем 2,8715 м3
Цена: 28512 руб.
Подробнее
ПК 6-58-12
Плиты перекрытия многопустотные Серия ИИ 04-4
  • Длина 5760 мм.
  • Ширина 1190 мм.
  • Высота 220 мм.
  • Вес 2000 кг.
  • Объем бетона 0,8 м3
  • Геометрический объем 1,508 м3
Цена: 13968 руб.
Подробнее
ПК 6-58-12
Плиты перекрытия многопустотные Серия ИИ 04-4
  • Длина 5760 мм.
  • Ширина 1190 мм.
  • Высота 220 мм.
  • Вес 1420 кг.
  • Объем бетона 0,815 м3
  • Геометрический объем 1,508 м3
Цена: 14230 руб.
Подробнее
ПК 6-58-12 а
Плиты перекрытия многопустотные Серия ИИ 04-4
  • Длина 5760 мм.
  • Ширина 1190 мм.
  • Высота 220 мм.
  • Вес 2500 кг.
  • Объем бетона 1 м3
  • Геометрический объем 1,508 м3
Цена: 17460 руб.
Подробнее
ПК 6-58-12
Плиты перекрытия многопустотные Серия ИИ 04-4
  • Длина 5760 мм.
  • Ширина 1190 мм.
  • Высота 220 мм.
  • Вес 2040 кг.
  • Объем бетона 0,815 м3
  • Геометрический объем 1,508 м3
Цена: 14230 руб.
Подробнее

Уведомление о файлах cookie

Мы используем файлы cookie для улучшения вашего опыта просмотра и анализа трафика. Нажимая "Принять все", вы соглашаетесь с нашей политикой конфиденциальности и политикой обработки файлов cookie.

MAX Дзен Телеграм Вконтакте vk