mobile_sound +7 (930) 655-55-90

Железобетонные опоры линий электропередачи. Рабочие чертежи (Серия Б1.134.1-7)

Поделиться:
Поделиться:

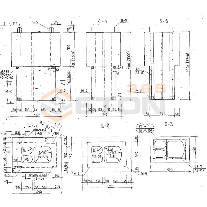
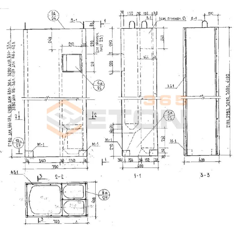
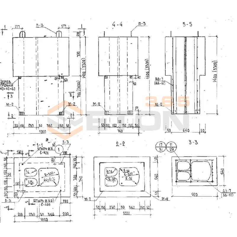
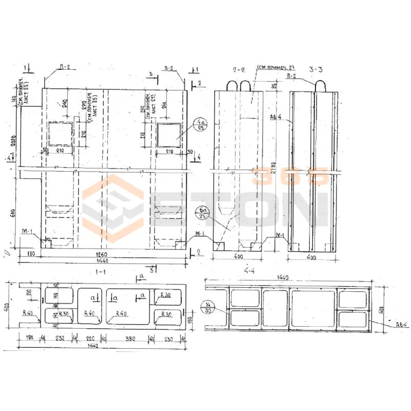
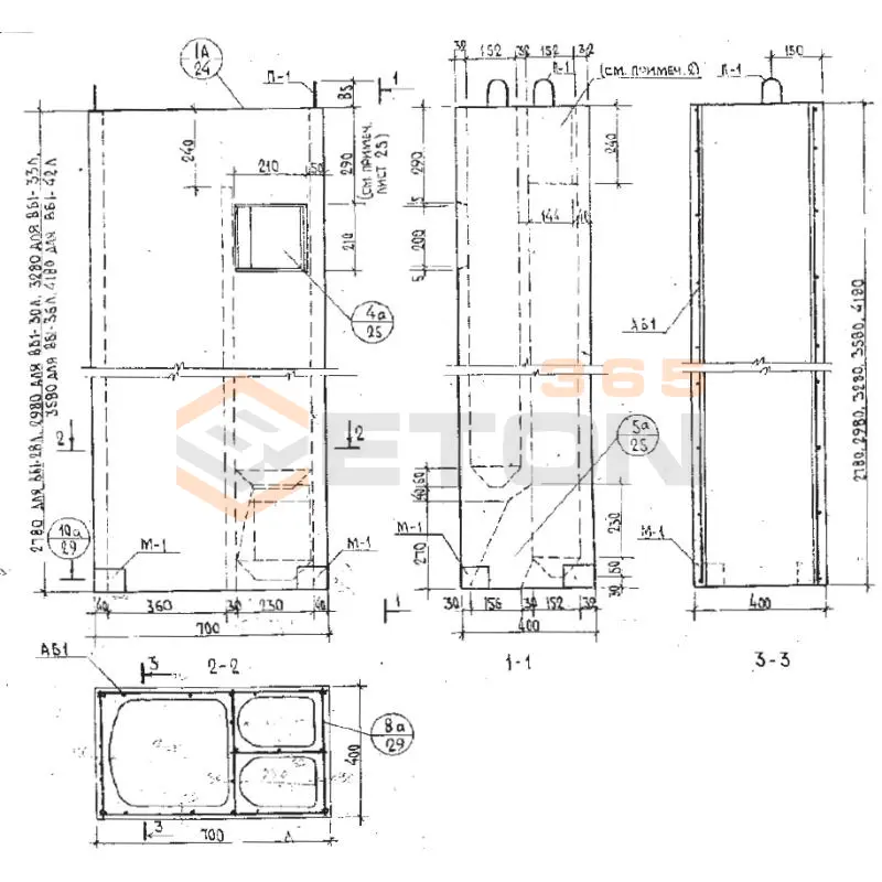
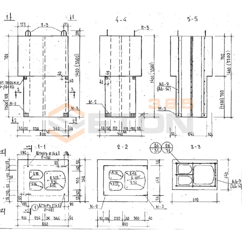
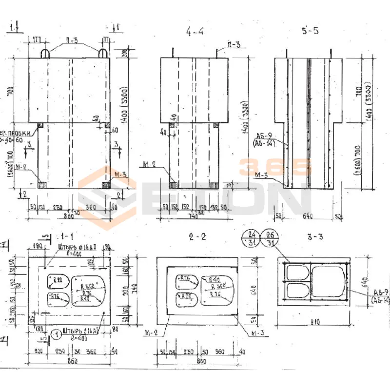
Документ Серия Б1.134.1-7 описывает область применения, номенклатуру и ключевые требования, опираясь на действующие нормы и практику проектирования. Разработанная проектным институтом БЕЛПРОЕКТ Серия Б1.134.1-7 была введён в действие в действие с ноября 1995 года и определяет и регламентирует подробное описание особенностей производства унифицированных железобетонных вентиляционных блоков. Представленные изделия и конструкции широко применяются при строительстве зданий до 16 этажей в высоту, отличающихся различными конструктивными схемами. Помимо блоков для обустройства вентиляции в нормативном документе имеются рабочие чертежи элементов коробов, плит и шахт.

Файлы для скачивания:
picture_as_pdf

348.pdf

22,971.9 KB

скачать
picture_as_pdf

349.pdf

1,576.1 KB

скачать
Товары Серия Б1.134.1-7 (49)
ВБ 1-30 п
Вентблоки Серия Б 1.134-7
  • Длина 700 мм.
  • Ширина 400 мм.
  • Высота 2980 мм.
  • Вес 778 кг.
  • Объем бетона 0,31 м3
  • Геометрический объем 0,8344 м3
Цена: 10494 руб.
Подробнее
ВБ 1-28 п
Вентблоки Серия Б 1.134-7
  • Длина 700 мм.
  • Ширина 400 мм.
  • Высота 2780 мм.
  • Вес 695 кг.
  • Объем бетона 0,28 м3
  • Геометрический объем 0,7784 м3
Цена: 9479 руб.
Подробнее
ВБ 1-28 л
Вентблоки Серия Б 1.134-7
  • Длина 700 мм.
  • Ширина 400 мм.
  • Высота 2780 мм.
  • Вес 695 кг.
  • Объем бетона 0,28 м3
  • Геометрический объем 0,7784 м3
Цена: 9479 руб.
Подробнее
ВБ 1-33 п
Вентблоки Серия Б 1.134-7
  • Длина 700 мм.
  • Ширина 400 мм.
  • Высота 3280 мм.
  • Вес 875 кг.
  • Объем бетона 0,35 м3
  • Геометрический объем 0,9184 м3
Цена: 11849 руб.
Подробнее
ВБ 1-33 л
Вентблоки Серия Б 1.134-7
  • Длина 700 мм.
  • Ширина 400 мм.
  • Высота 3280 мм.
  • Вес 875 кг.
  • Объем бетона 0,35 м3
  • Геометрический объем 0,9184 м3
Цена: 11849 руб.
Подробнее
ВБ 1-30 л
Вентблоки Серия Б 1.134-7
  • Длина 700 мм.
  • Ширина 400 мм.
  • Высота 2980 мм.
  • Вес 778 кг.
  • Объем бетона 0,31 м3
  • Геометрический объем 0,8344 м3
Цена: 10494 руб.
Подробнее
ВБ 1-36 п
Вентблоки Серия Б 1.134-7
  • Длина 700 мм.
  • Ширина 400 мм.
  • Высота 3580 мм.
  • Вес 975 кг.
  • Объем бетона 0,39 м3
  • Геометрический объем 1,0024 м3
Цена: 13203 руб.
Подробнее
ВБ 1-36 л
Вентблоки Серия Б 1.134-7
  • Длина 700 мм.
  • Ширина 400 мм.
  • Высота 3580 мм.
  • Вес 975 кг.
  • Объем бетона 0,39 м3
  • Геометрический объем 1,0024 м3
Цена: 13203 руб.
Подробнее
ВБ 2-28 п
Вентблоки Серия Б 1.134-7
  • Длина 550 мм.
  • Ширина 400 мм.
  • Высота 2780 мм.
  • Вес 630 кг.
  • Объем бетона 0,26 м3
  • Геометрический объем 0,6116 м3
Цена: 8802 руб.
Подробнее
ВБ 2-28 л
Вентблоки Серия Б 1.134-7
  • Длина 550 мм.
  • Ширина 400 мм.
  • Высота 2780 мм.
  • Вес 630 кг.
  • Объем бетона 0,26 м3
  • Геометрический объем 0,6116 м3
Цена: 8802 руб.
Подробнее
ВБ 1-42 л
Вентблоки Серия Б 1.134-7
  • Длина 700 мм.
  • Ширина 400 мм.
  • Высота 4180 мм.
  • Вес 1075 кг.
  • Объем бетона 0,43 м3
  • Геометрический объем 1,1704 м3
Цена: 14557 руб.
Подробнее
ВБ 1-42 п
Вентблоки Серия Б 1.134-7
  • Длина 700 мм.
  • Ширина 400 мм.
  • Высота 4180 мм.
  • Вес 1075 кг.
  • Объем бетона 0,43 м3
  • Геометрический объем 1,1704 м3
Цена: 14557 руб.
Подробнее
ВБ 2-30 л
Вентблоки Серия Б 1.134-7
  • Длина 550 мм.
  • Ширина 400 мм.
  • Высота 2980 мм.
  • Вес 675 кг.
  • Объем бетона 0,27 м3
  • Геометрический объем 0,6556 м3
Цена: 9140 руб.
Подробнее
ВБ 2-30 п
Вентблоки Серия Б 1.134-7
  • Длина 550 мм.
  • Ширина 400 мм.
  • Высота 2980 мм.
  • Вес 675 кг.
  • Объем бетона 0,27 м3
  • Геометрический объем 0,6556 м3
Цена: 9140 руб.
Подробнее
ВБ 2-33 л
Вентблоки Серия Б 1.134-7
  • Длина 550 мм.
  • Ширина 400 мм.
  • Высота 3280 мм.
  • Вес 750 кг.
  • Объем бетона 0,3 м3
  • Геометрический объем 0,7216 м3
Цена: 10156 руб.
Подробнее
ВБ 2-33 п
Вентблоки Серия Б 1.134-7
  • Длина 550 мм.
  • Ширина 400 мм.
  • Высота 3280 мм.
  • Вес 750 кг.
  • Объем бетона 0,3 м3
  • Геометрический объем 0,7216 м3
Цена: 10156 руб.
Подробнее
ВБ 2-36 л
Вентблоки Серия Б 1.134-7
  • Длина 550 мм.
  • Ширина 400 мм.
  • Высота 3580 мм.
  • Вес 825 кг.
  • Объем бетона 0,33 м3
  • Геометрический объем 0,7876 м3
Цена: 11171 руб.
Подробнее
ВБ 2-36 п
Вентблоки Серия Б 1.134-7
  • Длина 550 мм.
  • Ширина 400 мм.
  • Высота 3580 мм.
  • Вес 825 кг.
  • Объем бетона 0,33 м3
  • Геометрический объем 0,7876 м3
Цена: 11171 руб.
Подробнее
ВБ 2-42 п
Вентблоки Серия Б 1.134-7
  • Длина 550 мм.
  • Ширина 400 мм.
  • Высота 4180 мм.
  • Вес 975 кг.
  • Объем бетона 0,39 м3
  • Геометрический объем 0,9196 м3
Цена: 13203 руб.
Подробнее
ВБ 2-42 л
Вентблоки Серия Б 1.134-7
  • Длина 550 мм.
  • Ширина 400 мм.
  • Высота 4180 мм.
  • Вес 975 кг.
  • Объем бетона 0,39 м3
  • Геометрический объем 0,9196 м3
Цена: 13203 руб.
Подробнее
ВБ 3-28 л
Вентблоки Серия Б 1.134-7
  • Длина 1560 мм.
  • Ширина 400 мм.
  • Высота 2780 мм.
  • Вес 1580 кг.
  • Объем бетона 0,63 м3
  • Геометрический объем 1,7347 м3
Цена: 21327 руб.
Подробнее
ВБ 3-28 п
Вентблоки Серия Б 1.134-7
  • Длина 1560 мм.
  • Ширина 400 мм.
  • Высота 2780 мм.
  • Вес 1580 кг.
  • Объем бетона 0,63 м3
  • Геометрический объем 1,7347 м3
Цена: 21327 руб.
Подробнее
ВБ 4-28 л
Вентблоки Серия Б 1.134-7
  • Длина 1440 мм.
  • Ширина 400 мм.
  • Высота 2780 мм.
  • Вес 1470 кг.
  • Объем бетона 0,59 м3
  • Геометрический объем 1,6013 м3
Цена: 19973 руб.
Подробнее
ВБ 4-28 п
Вентблоки Серия Б 1.134-7
  • Длина 1440 мм.
  • Ширина 400 мм.
  • Высота 2780 мм.
  • Вес 1470 кг.
  • Объем бетона 0,59 м3
  • Геометрический объем 1,6013 м3
Цена: 19973 руб.
Подробнее
ВБ 5-28
Вентблоки Серия Б 1.134-7
  • Длина 1110 мм.
  • Ширина 400 мм.
  • Высота 2780 мм.
  • Вес 1140 кг.
  • Объем бетона 0,45 м3
  • Геометрический объем 1,2343 м3
Цена: 15234 руб.
Подробнее
ВК 1-28
Венткороба Серия Б 1.134-7
  • Длина 430 мм.
  • Ширина 400 мм.
  • Высота 2780 мм.
  • Вес 405 кг.
  • Объем бетона 0,16 м3
  • Геометрический объем 0,4782 м3
Цена: 5432 руб.
Подробнее
ВК 1-36
Венткороба Серия Б 1.134-7
  • Длина 430 мм.
  • Ширина 400 мм.
  • Высота 3580 мм.
  • Вес 600 кг.
  • Объем бетона 0,24 м3
  • Геометрический объем 0,6158 м3
Цена: 8148 руб.
Подробнее
ВК 1-30
Венткороба Серия Б 1.134-7
  • Длина 430 мм.
  • Ширина 400 мм.
  • Высота 2980 мм.
  • Вес 450 кг.
  • Объем бетона 0,18 м3
  • Геометрический объем 0,5126 м3
Цена: 6111 руб.
Подробнее
ВК 1-33
Венткороба Серия Б 1.134-7
  • Длина 430 мм.
  • Ширина 400 мм.
  • Высота 3280 мм.
  • Вес 525 кг.
  • Объем бетона 0,21 м3
  • Геометрический объем 0,5642 м3
Цена: 7130 руб.
Подробнее
ВК 1-42
Венткороба Серия Б 1.134-7
  • Длина 430 мм.
  • Ширина 400 мм.
  • Высота 4180 мм.
  • Вес 750 кг.
  • Объем бетона 0,3 м3
  • Геометрический объем 0,719 м3
Цена: 10185 руб.
Подробнее
ВШ 1
Вентшахты Серия Б 1.134-7
  • Длина 1020 мм.
  • Ширина 740 мм.
  • Высота 1400 мм.
  • Вес 830 кг.
  • Объем бетона 0,69 м3
  • Геометрический объем 1,0567 м3
Цена: 23426 руб.
Подробнее
ВШ 1 а
Вентшахты Серия Б 1.134-7
  • Длина 860 мм.
  • Ширина 740 мм.
  • Высота 1400 мм.
  • Вес 672 кг.
  • Объем бетона 0,56 м3
  • Геометрический объем 0,891 м3
Цена: 19012 руб.
Подробнее
ВШ 2
Вентшахты Серия Б 1.134-7
  • Длина 870 мм.
  • Ширина 740 мм.
  • Высота 1400 мм.
  • Вес 732 кг.
  • Объем бетона 0,61 м3
  • Геометрический объем 0,9013 м3
Цена: 20710 руб.
Подробнее
ВШ 3 а
Вентшахты Серия Б 1.134-7
  • Длина 860 мм.
  • Ширина 740 мм.
  • Высота 1400 мм.
  • Вес 672 кг.
  • Объем бетона 0,56 м3
  • Геометрический объем 0,891 м3
Цена: 19012 руб.
Подробнее
ВШ 3 б
Вентшахты Серия Б 1.134-7
  • Длина 710 мм.
  • Ширина 740 мм.
  • Высота 1400 мм.
  • Вес 576 кг.
  • Объем бетона 0,48 м3
  • Геометрический объем 0,7356 м3
Цена: 16296 руб.
Подробнее
ВШ 4
Вентшахты Серия Б 1.134-7
  • Длина 590 мм.
  • Ширина 740 мм.
  • Высота 1400 мм.
  • Вес 468 кг.
  • Объем бетона 0,39 м3
  • Геометрический объем 0,6112 м3
Цена: 13241 руб.
Подробнее
ВШ 4 а
Вентшахты Серия Б 1.134-7
  • Длина 430 мм.
  • Ширина 740 мм.
  • Высота 1400 мм.
  • Вес 312 кг.
  • Объем бетона 0,26 м3
  • Геометрический объем 0,4455 м3
Цена: 8827 руб.
Подробнее
ВШ 5
Вентшахты Серия Б 1.134-7
  • Длина 1020 мм.
  • Ширина 740 мм.
  • Высота 3300 мм.
  • Вес 1900 кг.
  • Объем бетона 1,58 м3
  • Геометрический объем 2,4908 м3
Цена: 53641 руб.
Подробнее
ВШ 5 а
Вентшахты Серия Б 1.134-7
  • Длина 860 мм.
  • Ширина 740 мм.
  • Высота 3300 мм.
  • Вес 1538 кг.
  • Объем бетона 1,28 м3
  • Геометрический объем 2,1001 м3
Цена: 43456 руб.
Подробнее
ВШ 6
Вентшахты Серия Б 1.134-7
  • Длина 870 мм.
  • Ширина 740 мм.
  • Высота 3300 мм.
  • Вес 1692 кг.
  • Объем бетона 1,41 м3
  • Геометрический объем 2,1245 м3
Цена: 47870 руб.
Подробнее
ВШ 7 б
Вентшахты Серия Б 1.134-7
  • Длина 710 мм.
  • Ширина 740 мм.
  • Высота 3300 мм.
  • Вес 1368 кг.
  • Объем бетона 1,14 м3
  • Геометрический объем 1,7338 м3
Цена: 38703 руб.
Подробнее
ВШ 7 а
Вентшахты Серия Б 1.134-7
  • Длина 860 мм.
  • Ширина 740 мм.
  • Высота 3300 мм.
  • Вес 1538 кг.
  • Объем бетона 1,28 м3
  • Геометрический объем 2,1001 м3
Цена: 43456 руб.
Подробнее
ВШ 8
Вентшахты Серия Б 1.134-7
  • Длина 590 мм.
  • Ширина 740 мм.
  • Высота 3300 мм.
  • Вес 996 кг.
  • Объем бетона 0,83 м3
  • Геометрический объем 1,4408 м3
Цена: 28179 руб.
Подробнее
ВШ 8 а
Вентшахты Серия Б 1.134-7
  • Длина 430 мм.
  • Ширина 740 мм.
  • Высота 3300 мм.
  • Вес 670 кг.
  • Объем бетона 0,56 м3
  • Геометрический объем 1,0501 м3
Цена: 19012 руб.
Подробнее
ВП 1
Плиты Серия Б 1.134-7
  • Длина 1200 мм.
  • Ширина 900 мм.
  • Высота 60 мм.
  • Вес 163 кг.
  • Объем бетона 0,065 м3
  • Геометрический объем 0,0648 м3
Цена: 2837 руб.
Подробнее
ВП 4
Плиты Серия Б 1.134-7
  • Длина 1640 мм.
  • Ширина 900 мм.
  • Высота 60 мм.
  • Вес 220 кг.
  • Объем бетона 0,089 м3
  • Геометрический объем 0,0886 м3
Цена: 3885 руб.
Подробнее
ВП 5
Плиты Серия Б 1.134-7
  • Длина 2350 мм.
  • Ширина 900 мм.
  • Высота 60 мм.
  • Вес 330 кг.
  • Объем бетона 0,13 м3
  • Геометрический объем 0,1269 м3
Цена: 5675 руб.
Подробнее
ВП 3
Плиты Серия Б 1.134-7
  • Длина 1760 мм.
  • Ширина 900 мм.
  • Высота 60 мм.
  • Вес 238 кг.
  • Объем бетона 0,095 м3
  • Геометрический объем 0,095 м3
Цена: 4147 руб.
Подробнее
ВП 2
Плиты Серия Б 1.134-7
  • Длина 1050 мм.
  • Ширина 900 мм.
  • Высота 60 мм.
  • Вес 143 кг.
  • Объем бетона 0,057 м3
  • Геометрический объем 0,0567 м3
Цена: 2488 руб.
Подробнее

Уведомление о файлах cookie

Мы используем файлы cookie для улучшения вашего опыта просмотра и анализа трафика. Нажимая "Принять все", вы соглашаетесь с нашей политикой конфиденциальности и политикой обработки файлов cookie.

MAX Дзен Телеграм Вконтакте vk