mobile_sound +7 (930) 655-55-90

Типовые конструкции и железобетонные изделия. Рабочие чертежи (Серия Б1.011.1-2.08)

Поделиться:
Поделиться:

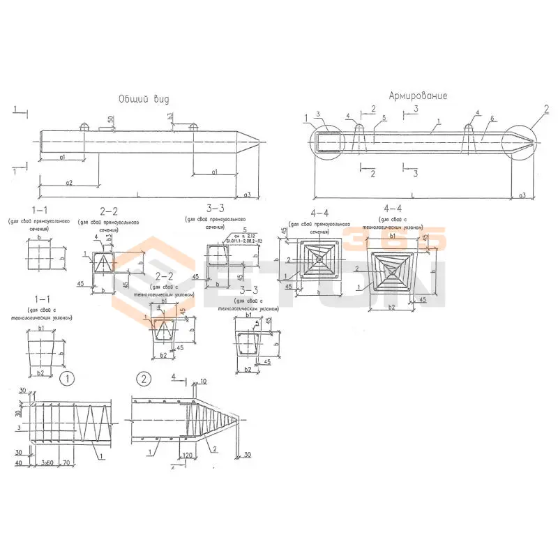
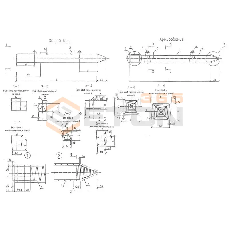
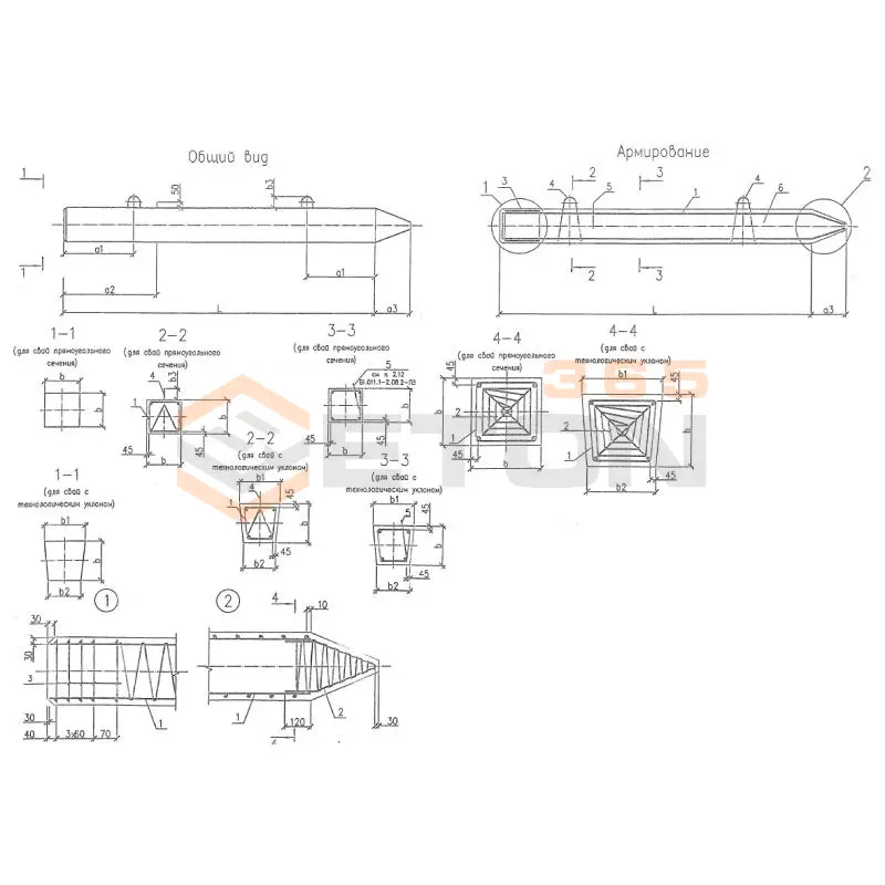
Документ Серия Б1.011.1-2.08 описывает область применения, номенклатуру и ключевые требования, опираясь на действующие нормы и практику проектирования. Проектным институтом СТРОЙТЕХНОРМ была разработана Серия Б1.011.1-2.08, введенная в действие с марта 2009 года после утверждения уполномоченными государственными органами. В нормативном документе содержится подробное описание особенностей производства забивных железобетонных свай. изделия и конструкции применяются в качестве фундаментов в различных по назначению зданиях и сооружениях, конструкции используются в определенных грунтовых условиях, что позволяет добиться высокой эффективности возводимых построек.

Файлы для скачивания:
picture_as_pdf

6165.pdf

3,158.5 KB

скачать
picture_as_pdf

6164.pdf

32,101.5 KB

скачать
picture_as_pdf

6163.pdf

14,817.8 KB

скачать
Товары Серия Б1.011.1-2.08 (60)
СП 70-35-4,1 у (Б1.011.1-2.08)
Сваи забивные с поперечным армированием Серия Б1.011.1-2.08
  • Длина 7000 мм.
  • Ширина 350 мм.
  • Высота 350 мм.
  • Вес 2200 кг.
  • Объем бетона 0,88 м3
  • Геометрический объем 0,8575 м3
Цена: 11950 руб.
Подробнее
СП 70-35-4 у (Б1.011.1-2.08)
Сваи забивные с поперечным армированием Серия Б1.011.1-2.08
  • Длина 7000 мм.
  • Ширина 350 мм.
  • Высота 350 мм.
  • Вес 2200 кг.
  • Объем бетона 0,88 м3
  • Геометрический объем 0,8575 м3
Цена: 11950 руб.
Подробнее
СП 70-35-5 (Б1.011.1-2.08)
Сваи забивные с поперечным армированием Серия Б1.011.1-2.08
  • Длина 7000 мм.
  • Ширина 350 мм.
  • Высота 350 мм.
  • Вес 2200 кг.
  • Объем бетона 0,88 м3
  • Геометрический объем 0,8575 м3
Цена: 11950 руб.
Подробнее
СП 70-35-5 а (Б1.011.1-2.08)
Сваи забивные с поперечным армированием Серия Б1.011.1-2.08
  • Длина 7000 мм.
  • Ширина 350 мм.
  • Высота 350 мм.
  • Вес 2200 кг.
  • Объем бетона 0,88 м3
  • Геометрический объем 0,8575 м3
Цена: 11950 руб.
Подробнее
СП 70-35-4,1 (Б1.011.1-2.08)
Сваи забивные с поперечным армированием Серия Б1.011.1-2.08
  • Длина 7000 мм.
  • Ширина 350 мм.
  • Высота 350 мм.
  • Вес 2200 кг.
  • Объем бетона 0,88 м3
  • Геометрический объем 0,8575 м3
Цена: 11950 руб.
Подробнее
СП 70-35-5 а1 (Б1.011.1-2.08)
Сваи забивные с поперечным армированием Серия Б1.011.1-2.08
  • Длина 7000 мм.
  • Ширина 350 мм.
  • Высота 350 мм.
  • Вес 2200 кг.
  • Объем бетона 0,88 м3
  • Геометрический объем 0,8575 м3
Цена: 11950 руб.
Подробнее
СП 70-35-5 а1 у (Б1.011.1-2.08)
Сваи забивные с поперечным армированием Серия Б1.011.1-2.08
  • Длина 7000 мм.
  • Ширина 350 мм.
  • Высота 350 мм.
  • Вес 2200 кг.
  • Объем бетона 0,88 м3
  • Геометрический объем 0,8575 м3
Цена: 11950 руб.
Подробнее
СП 70-35-5 у (Б1.011.1-2.08)
Сваи забивные с поперечным армированием Серия Б1.011.1-2.08
  • Длина 7000 мм.
  • Ширина 350 мм.
  • Высота 350 мм.
  • Вес 2200 кг.
  • Объем бетона 0,88 м3
  • Геометрический объем 0,8575 м3
Цена: 11950 руб.
Подробнее
СП 70-35-5 ау (Б1.011.1-2.08)
Сваи забивные с поперечным армированием Серия Б1.011.1-2.08
  • Длина 7000 мм.
  • Ширина 350 мм.
  • Высота 350 мм.
  • Вес 2200 кг.
  • Объем бетона 0,88 м3
  • Геометрический объем 0,8575 м3
Цена: 11950 руб.
Подробнее
СП 70-35-5,1 у (Б1.011.1-2.08)
Сваи забивные с поперечным армированием Серия Б1.011.1-2.08
  • Длина 7000 мм.
  • Ширина 350 мм.
  • Высота 350 мм.
  • Вес 2200 кг.
  • Объем бетона 0,88 м3
  • Геометрический объем 0,8575 м3
Цена: 11950 руб.
Подробнее
СП 70-35-6 (Б1.011.1-2.08)
Сваи забивные с поперечным армированием Серия Б1.011.1-2.08
  • Длина 7000 мм.
  • Ширина 350 мм.
  • Высота 350 мм.
  • Вес 2200 кг.
  • Объем бетона 0,88 м3
  • Геометрический объем 0,8575 м3
Цена: 11950 руб.
Подробнее
СП 70-35-5,1 (Б1.011.1-2.08)
Сваи забивные с поперечным армированием Серия Б1.011.1-2.08
  • Длина 7000 мм.
  • Ширина 350 мм.
  • Высота 350 мм.
  • Вес 2200 кг.
  • Объем бетона 0,88 м3
  • Геометрический объем 0,8575 м3
Цена: 11950 руб.
Подробнее
СП 70-35-6 а (Б1.011.1-2.08)
Сваи забивные с поперечным армированием Серия Б1.011.1-2.08
  • Длина 7000 мм.
  • Ширина 350 мм.
  • Высота 350 мм.
  • Вес 2200 кг.
  • Объем бетона 0,88 м3
  • Геометрический объем 0,8575 м3
Цена: 11950 руб.
Подробнее
СП 70-35-6 а1 (Б1.011.1-2.08)
Сваи забивные с поперечным армированием Серия Б1.011.1-2.08
  • Длина 7000 мм.
  • Ширина 350 мм.
  • Высота 350 мм.
  • Вес 2200 кг.
  • Объем бетона 0,88 м3
  • Геометрический объем 0,8575 м3
Цена: 11950 руб.
Подробнее
СП 70-35-6 ау (Б1.011.1-2.08)
Сваи забивные с поперечным армированием Серия Б1.011.1-2.08
  • Длина 7000 мм.
  • Ширина 350 мм.
  • Высота 350 мм.
  • Вес 2200 кг.
  • Объем бетона 0,88 м3
  • Геометрический объем 0,8575 м3
Цена: 11950 руб.
Подробнее
СП 70-35-6 у (Б1.011.1-2.08)
Сваи забивные с поперечным армированием Серия Б1.011.1-2.08
  • Длина 7000 мм.
  • Ширина 350 мм.
  • Высота 350 мм.
  • Вес 2200 кг.
  • Объем бетона 0,88 м3
  • Геометрический объем 0,8575 м3
Цена: 11950 руб.
Подробнее
СП 70-35-6 а1 у (Б1.011.1-2.08)
Сваи забивные с поперечным армированием Серия Б1.011.1-2.08
  • Длина 7000 мм.
  • Ширина 350 мм.
  • Высота 350 мм.
  • Вес 2200 кг.
  • Объем бетона 0,88 м3
  • Геометрический объем 0,8575 м3
Цена: 11950 руб.
Подробнее
СП 70-35-6,1 (Б1.011.1-2.08)
Сваи забивные с поперечным армированием Серия Б1.011.1-2.08
  • Длина 7000 мм.
  • Ширина 350 мм.
  • Высота 350 мм.
  • Вес 2200 кг.
  • Объем бетона 0,88 м3
  • Геометрический объем 0,8575 м3
Цена: 11950 руб.
Подробнее
СП 70-35-6,1 у (Б1.011.1-2.08)
Сваи забивные с поперечным армированием Серия Б1.011.1-2.08
  • Длина 7000 мм.
  • Ширина 350 мм.
  • Высота 350 мм.
  • Вес 2200 кг.
  • Объем бетона 0,88 м3
  • Геометрический объем 0,8575 м3
Цена: 11950 руб.
Подробнее
СП 70-35-7 (Б1.011.1-2.08)
Сваи забивные с поперечным армированием Серия Б1.011.1-2.08
  • Длина 7000 мм.
  • Ширина 350 мм.
  • Высота 350 мм.
  • Вес 2200 кг.
  • Объем бетона 0,88 м3
  • Геометрический объем 0,8575 м3
Цена: 11950 руб.
Подробнее
СП 70-35-7 а (Б1.011.1-2.08)
Сваи забивные с поперечным армированием Серия Б1.011.1-2.08
  • Длина 7000 мм.
  • Ширина 350 мм.
  • Высота 350 мм.
  • Вес 2200 кг.
  • Объем бетона 0,88 м3
  • Геометрический объем 0,8575 м3
Цена: 11950 руб.
Подробнее
СП 70-35-7 а1 (Б1.011.1-2.08)
Сваи забивные с поперечным армированием Серия Б1.011.1-2.08
  • Длина 7000 мм.
  • Ширина 350 мм.
  • Высота 350 мм.
  • Вес 2200 кг.
  • Объем бетона 0,88 м3
  • Геометрический объем 0,8575 м3
Цена: 11950 руб.
Подробнее
СП 70-35-7 у (Б1.011.1-2.08)
Сваи забивные с поперечным армированием Серия Б1.011.1-2.08
  • Длина 7000 мм.
  • Ширина 350 мм.
  • Высота 350 мм.
  • Вес 2200 кг.
  • Объем бетона 0,88 м3
  • Геометрический объем 0,8575 м3
Цена: 11950 руб.
Подробнее
СП 70-35-7 а1 у (Б1.011.1-2.08)
Сваи забивные с поперечным армированием Серия Б1.011.1-2.08
  • Длина 7000 мм.
  • Ширина 350 мм.
  • Высота 350 мм.
  • Вес 2200 кг.
  • Объем бетона 0,88 м3
  • Геометрический объем 0,8575 м3
Цена: 11950 руб.
Подробнее
СП 70-35-7,1 (Б1.011.1-2.08)
Сваи забивные с поперечным армированием Серия Б1.011.1-2.08
  • Длина 7000 мм.
  • Ширина 350 мм.
  • Высота 350 мм.
  • Вес 2200 кг.
  • Объем бетона 0,88 м3
  • Геометрический объем 0,8575 м3
Цена: 11950 руб.
Подробнее
СП 70-35-7 ау (Б1.011.1-2.08)
Сваи забивные с поперечным армированием Серия Б1.011.1-2.08
  • Длина 7000 мм.
  • Ширина 350 мм.
  • Высота 350 мм.
  • Вес 2200 кг.
  • Объем бетона 0,88 м3
  • Геометрический объем 0,8575 м3
Цена: 11950 руб.
Подробнее
СП 70-40-5 (Б1.011.1-2.08)
Сваи забивные с поперечным армированием Серия Б1.011.1-2.08
  • Длина 7000 мм.
  • Ширина 400 мм.
  • Высота 400 мм.
  • Вес 2850 кг.
  • Объем бетона 1,14 м3
  • Геометрический объем 1,12 м3
Цена: 15481 руб.
Подробнее
СП 70-35-7,1 у (Б1.011.1-2.08)
Сваи забивные с поперечным армированием Серия Б1.011.1-2.08
  • Длина 7000 мм.
  • Ширина 350 мм.
  • Высота 350 мм.
  • Вес 2200 кг.
  • Объем бетона 0,88 м3
  • Геометрический объем 0,8575 м3
Цена: 11950 руб.
Подробнее
СП 70-40-5 а (Б1.011.1-2.08)
Сваи забивные с поперечным армированием Серия Б1.011.1-2.08
  • Длина 7000 мм.
  • Ширина 400 мм.
  • Высота 400 мм.
  • Вес 2850 кг.
  • Объем бетона 1,14 м3
  • Геометрический объем 1,12 м3
Цена: 15481 руб.
Подробнее
СП 70-40-5 ау (Б1.011.1-2.08)
Сваи забивные с поперечным армированием Серия Б1.011.1-2.08
  • Длина 7000 мм.
  • Ширина 400 мм.
  • Высота 400 мм.
  • Вес 2850 кг.
  • Объем бетона 1,14 м3
  • Геометрический объем 1,12 м3
Цена: 15481 руб.
Подробнее
СП 70-40-5 а1 у (Б1.011.1-2.08)
Сваи забивные с поперечным армированием Серия Б1.011.1-2.08
  • Длина 7000 мм.
  • Ширина 400 мм.
  • Высота 400 мм.
  • Вес 2850 кг.
  • Объем бетона 1,14 м3
  • Геометрический объем 1,12 м3
Цена: 15481 руб.
Подробнее
СП 70-40-5 у (Б1.011.1-2.08)
Сваи забивные с поперечным армированием Серия Б1.011.1-2.08
  • Длина 7000 мм.
  • Ширина 400 мм.
  • Высота 400 мм.
  • Вес 2850 кг.
  • Объем бетона 1,14 м3
  • Геометрический объем 1,12 м3
Цена: 15481 руб.
Подробнее
СП 70-40-5 а1 (Б1.011.1-2.08)
Сваи забивные с поперечным армированием Серия Б1.011.1-2.08
  • Длина 7000 мм.
  • Ширина 400 мм.
  • Высота 400 мм.
  • Вес 2850 кг.
  • Объем бетона 1,14 м3
  • Геометрический объем 1,12 м3
Цена: 15481 руб.
Подробнее
СП 70-40-5,1 у (Б1.011.1-2.08)
Сваи забивные с поперечным армированием Серия Б1.011.1-2.08
  • Длина 7000 мм.
  • Ширина 400 мм.
  • Высота 400 мм.
  • Вес 2850 кг.
  • Объем бетона 1,14 м3
  • Геометрический объем 1,12 м3
Цена: 15481 руб.
Подробнее
СП 70-40-5,1 (Б1.011.1-2.08)
Сваи забивные с поперечным армированием Серия Б1.011.1-2.08
  • Длина 7000 мм.
  • Ширина 400 мм.
  • Высота 400 мм.
  • Вес 2850 кг.
  • Объем бетона 1,14 м3
  • Геометрический объем 1,12 м3
Цена: 15481 руб.
Подробнее
СП 70-40-6 а (Б1.011.1-2.08)
Сваи забивные с поперечным армированием Серия Б1.011.1-2.08
  • Длина 7000 мм.
  • Ширина 400 мм.
  • Высота 400 мм.
  • Вес 2850 кг.
  • Объем бетона 1,14 м3
  • Геометрический объем 1,12 м3
Цена: 15481 руб.
Подробнее
СП 70-40-6 а1 (Б1.011.1-2.08)
Сваи забивные с поперечным армированием Серия Б1.011.1-2.08
  • Длина 7000 мм.
  • Ширина 400 мм.
  • Высота 400 мм.
  • Вес 2850 кг.
  • Объем бетона 1,14 м3
  • Геометрический объем 1,12 м3
Цена: 15481 руб.
Подробнее
СП 70-40-6 ау (Б1.011.1-2.08)
Сваи забивные с поперечным армированием Серия Б1.011.1-2.08
  • Длина 7000 мм.
  • Ширина 400 мм.
  • Высота 400 мм.
  • Вес 2850 кг.
  • Объем бетона 1,14 м3
  • Геометрический объем 1,12 м3
Цена: 15481 руб.
Подробнее
СП 70-40-6 а1 у (Б1.011.1-2.08)
Сваи забивные с поперечным армированием Серия Б1.011.1-2.08
  • Длина 7000 мм.
  • Ширина 400 мм.
  • Высота 400 мм.
  • Вес 2850 кг.
  • Объем бетона 1,14 м3
  • Геометрический объем 1,12 м3
Цена: 15481 руб.
Подробнее
СП 70-40-6 (Б1.011.1-2.08)
Сваи забивные с поперечным армированием Серия Б1.011.1-2.08
  • Длина 7000 мм.
  • Ширина 400 мм.
  • Высота 400 мм.
  • Вес 2850 кг.
  • Объем бетона 1,14 м3
  • Геометрический объем 1,12 м3
Цена: 15481 руб.
Подробнее
СП 70-40-6,1 (Б1.011.1-2.08)
Сваи забивные с поперечным армированием Серия Б1.011.1-2.08
  • Длина 7000 мм.
  • Ширина 400 мм.
  • Высота 400 мм.
  • Вес 2850 кг.
  • Объем бетона 1,14 м3
  • Геометрический объем 1,12 м3
Цена: 15481 руб.
Подробнее
СП 70-40-6 у (Б1.011.1-2.08)
Сваи забивные с поперечным армированием Серия Б1.011.1-2.08
  • Длина 7000 мм.
  • Ширина 400 мм.
  • Высота 400 мм.
  • Вес 2850 кг.
  • Объем бетона 1,14 м3
  • Геометрический объем 1,12 м3
Цена: 15481 руб.
Подробнее
СП 70-40-6,1 у (Б1.011.1-2.08)
Сваи забивные с поперечным армированием Серия Б1.011.1-2.08
  • Длина 7000 мм.
  • Ширина 400 мм.
  • Высота 400 мм.
  • Вес 2850 кг.
  • Объем бетона 1,14 м3
  • Геометрический объем 1,12 м3
Цена: 15481 руб.
Подробнее
СП 70-40-7 а (Б1.011.1-2.08)
Сваи забивные с поперечным армированием Серия Б1.011.1-2.08
  • Длина 7000 мм.
  • Ширина 400 мм.
  • Высота 400 мм.
  • Вес 2850 кг.
  • Объем бетона 1,14 м3
  • Геометрический объем 1,12 м3
Цена: 15481 руб.
Подробнее
СП 70-40-7 а1 у (Б1.011.1-2.08)
Сваи забивные с поперечным армированием Серия Б1.011.1-2.08
  • Длина 7000 мм.
  • Ширина 400 мм.
  • Высота 400 мм.
  • Вес 2850 кг.
  • Объем бетона 1,14 м3
  • Геометрический объем 1,12 м3
Цена: 15481 руб.
Подробнее
СП 70-40-7 (Б1.011.1-2.08)
Сваи забивные с поперечным армированием Серия Б1.011.1-2.08
  • Длина 7000 мм.
  • Ширина 400 мм.
  • Высота 400 мм.
  • Вес 2850 кг.
  • Объем бетона 1,14 м3
  • Геометрический объем 1,12 м3
Цена: 15481 руб.
Подробнее
СП 70-40-7 а1 (Б1.011.1-2.08)
Сваи забивные с поперечным армированием Серия Б1.011.1-2.08
  • Длина 7000 мм.
  • Ширина 400 мм.
  • Высота 400 мм.
  • Вес 2850 кг.
  • Объем бетона 1,14 м3
  • Геометрический объем 1,12 м3
Цена: 15481 руб.
Подробнее
СП 70-40-7 ау (Б1.011.1-2.08)
Сваи забивные с поперечным армированием Серия Б1.011.1-2.08
  • Длина 7000 мм.
  • Ширина 400 мм.
  • Высота 400 мм.
  • Вес 2850 кг.
  • Объем бетона 1,14 м3
  • Геометрический объем 1,12 м3
Цена: 15481 руб.
Подробнее
СП 70-40-7 у (Б1.011.1-2.08)
Сваи забивные с поперечным армированием Серия Б1.011.1-2.08
  • Длина 7000 мм.
  • Ширина 400 мм.
  • Высота 400 мм.
  • Вес 2850 кг.
  • Объем бетона 1,14 м3
  • Геометрический объем 1,12 м3
Цена: 15481 руб.
Подробнее
СП 70-40-7,1 у (Б1.011.1-2.08)
Сваи забивные с поперечным армированием Серия Б1.011.1-2.08
  • Длина 7000 мм.
  • Ширина 400 мм.
  • Высота 400 мм.
  • Вес 2850 кг.
  • Объем бетона 1,14 м3
  • Геометрический объем 1,12 м3
Цена: 15481 руб.
Подробнее
СП 70-40-7,1 (Б1.011.1-2.08)
Сваи забивные с поперечным армированием Серия Б1.011.1-2.08
  • Длина 7000 мм.
  • Ширина 400 мм.
  • Высота 400 мм.
  • Вес 2850 кг.
  • Объем бетона 1,14 м3
  • Геометрический объем 1,12 м3
Цена: 15481 руб.
Подробнее
СП 70-40-8 а (Б1.011.1-2.08)
Сваи забивные с поперечным армированием Серия Б1.011.1-2.08
  • Длина 7000 мм.
  • Ширина 400 мм.
  • Высота 400 мм.
  • Вес 2850 кг.
  • Объем бетона 1,14 м3
  • Геометрический объем 1,12 м3
Цена: 15481 руб.
Подробнее
СП 70-40-8 (Б1.011.1-2.08)
Сваи забивные с поперечным армированием Серия Б1.011.1-2.08
  • Длина 7000 мм.
  • Ширина 400 мм.
  • Высота 400 мм.
  • Вес 2850 кг.
  • Объем бетона 1,14 м3
  • Геометрический объем 1,12 м3
Цена: 15481 руб.
Подробнее
СП 70-40-8 а1 (Б1.011.1-2.08)
Сваи забивные с поперечным армированием Серия Б1.011.1-2.08
  • Длина 7000 мм.
  • Ширина 400 мм.
  • Высота 400 мм.
  • Вес 2850 кг.
  • Объем бетона 1,14 м3
  • Геометрический объем 1,12 м3
Цена: 15481 руб.
Подробнее
СП 70-40-8 а1 у (Б1.011.1-2.08)
Сваи забивные с поперечным армированием Серия Б1.011.1-2.08
  • Длина 7000 мм.
  • Ширина 400 мм.
  • Высота 400 мм.
  • Вес 2850 кг.
  • Объем бетона 1,14 м3
  • Геометрический объем 1,12 м3
Цена: 15481 руб.
Подробнее
СП 70-40-8 ау (Б1.011.1-2.08)
Сваи забивные с поперечным армированием Серия Б1.011.1-2.08
  • Длина 7000 мм.
  • Ширина 400 мм.
  • Высота 400 мм.
  • Вес 2850 кг.
  • Объем бетона 1,14 м3
  • Геометрический объем 1,12 м3
Цена: 15481 руб.
Подробнее
СП 70-40-8,1 у (Б1.011.1-2.08)
Сваи забивные с поперечным армированием Серия Б1.011.1-2.08
  • Длина 7000 мм.
  • Ширина 400 мм.
  • Высота 400 мм.
  • Вес 2850 кг.
  • Объем бетона 1,14 м3
  • Геометрический объем 1,12 м3
Цена: 15481 руб.
Подробнее
СП 70-40-8 у (Б1.011.1-2.08)
Сваи забивные с поперечным армированием Серия Б1.011.1-2.08
  • Длина 7000 мм.
  • Ширина 400 мм.
  • Высота 400 мм.
  • Вес 2850 кг.
  • Объем бетона 1,14 м3
  • Геометрический объем 1,12 м3
Цена: 15481 руб.
Подробнее
СП 70-40-9 (Б1.011.1-2.08)
Сваи забивные с поперечным армированием Серия Б1.011.1-2.08
  • Длина 7000 мм.
  • Ширина 400 мм.
  • Высота 400 мм.
  • Вес 2850 кг.
  • Объем бетона 1,14 м3
  • Геометрический объем 1,12 м3
Цена: 15481 руб.
Подробнее
СП 70-40-8,1 (Б1.011.1-2.08)
Сваи забивные с поперечным армированием Серия Б1.011.1-2.08
  • Длина 7000 мм.
  • Ширина 400 мм.
  • Высота 400 мм.
  • Вес 2850 кг.
  • Объем бетона 1,14 м3
  • Геометрический объем 1,12 м3
Цена: 15481 руб.
Подробнее

Уведомление о файлах cookie

Мы используем файлы cookie для улучшения вашего опыта просмотра и анализа трафика. Нажимая "Принять все", вы соглашаетесь с нашей политикой конфиденциальности и политикой обработки файлов cookie.

Дзен Телеграм Вконтакте vk