mobile_sound +7 (930) 655-55-90

Типовые конструкции и железобетонные изделия. Рабочие чертежи (Серия 75)

Поделиться:
Поделиться:

Документ Серия 75 описывает область применения, номенклатуру и ключевые требования, опираясь на действующие нормы и практику проектирования. Среди многообразия нормативной документации не осталась без внимания Серия 75, относящаяся к числу комплексных регламентов, описывающих конструкции для строительства жилых и общественных зданий. Главным разработчиком регламента выступает Конструкторское бюро по железобетону при поддержке Госстроя РСФСР, а введение в действие состоялось с апреля 1969 года. Целью проектирования представленных элементов являлась необходимость в применении унифицированных конструкций санитарно-технического назначения при возведении домов от 5-9 этажей.

Файлы для скачивания:
picture_as_pdf

3169.pdf

6,572.7 KB

скачать
picture_as_pdf

3168.pdf

6,881.9 KB

скачать
Товары Серия 75 (14)
К 20-18 л
Крышки санитарно-технических кабин Серия 75
  • Длина 2080 мм.
  • Ширина 1820 мм.
  • Высота 40 мм.
  • Вес 50 кг.
  • Объем бетона 0,14 м3
  • Геометрический объем 0,1514 м3
Цена: 3123 руб.
Подробнее
К 28-16 л
Крышки санитарно-технических кабин Серия 75
  • Длина 2730 мм.
  • Ширина 1600 мм.
  • Высота 40 мм.
  • Вес 120 кг.
  • Объем бетона 0,16 м3
  • Геометрический объем 0,1747 м3
Цена: 3570 руб.
Подробнее
К 20-18 п
Крышки санитарно-технических кабин Серия 75
  • Длина 2080 мм.
  • Ширина 1820 мм.
  • Высота 40 мм.
  • Вес 50 кг.
  • Объем бетона 0,14 м3
  • Геометрический объем 0,1514 м3
Цена: 3123 руб.
Подробнее
К 28-16 п
Крышки санитарно-технических кабин Серия 75
  • Длина 2730 мм.
  • Ширина 1600 мм.
  • Высота 40 мм.
  • Вес 120 кг.
  • Объем бетона 0,16 м3
  • Геометрический объем 0,1747 м3
Цена: 3570 руб.
Подробнее
П 12-28
Перегородки Серия 75
  • Длина 1150 мм.
  • Ширина 2475 мм.
  • Высота 40 мм.
  • Вес 275 кг.
  • Объем бетона 0,11 м3
  • Геометрический объем 0,1139 м3
Цена: 2454 руб.
Подробнее
П 12-30
Перегородки Серия 75
  • Длина 1150 мм.
  • Ширина 2675 мм.
  • Высота 40 мм.
  • Вес 300 кг.
  • Объем бетона 0,12 м3
  • Геометрический объем 0,1231 м3
Цена: 2677 руб.
Подробнее
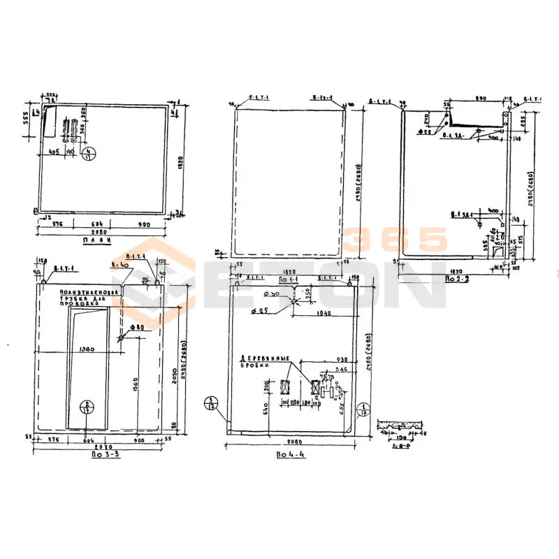
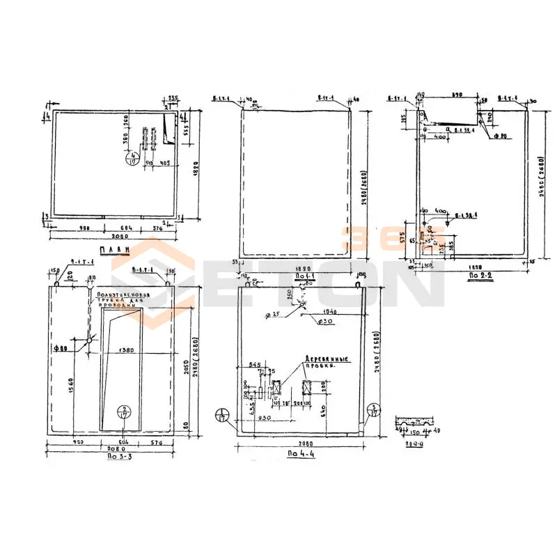
СК 20-28 л
Санитарно-технические кабины Серия 75
  • Длина 2080 мм.
  • Ширина 1820 мм.
  • Высота 2480 мм.
  • Вес 2450 кг.
  • Объем бетона 0,53 м3
  • Геометрический объем 9,3883 м3
Цена: 11824 руб.
Подробнее
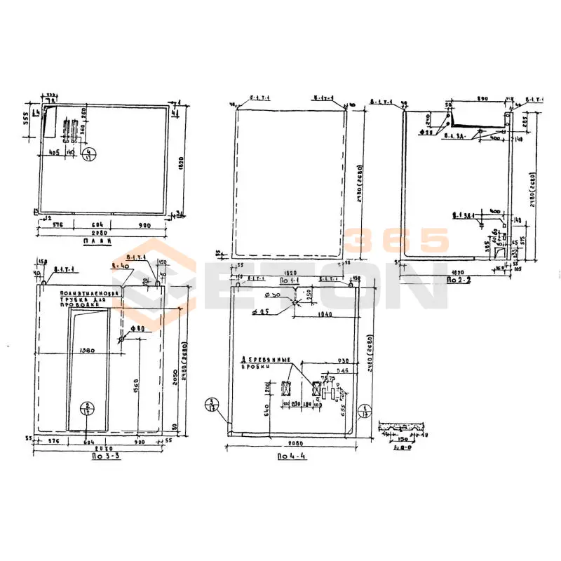
СК 20-30 л
Санитарно-технические кабины Серия 75
  • Длина 2080 мм.
  • Ширина 1820 мм.
  • Высота 2680 мм.
  • Вес 2600 кг.
  • Объем бетона 1,04 м3
  • Геометрический объем 10,1454 м3
Цена: 23202 руб.
Подробнее
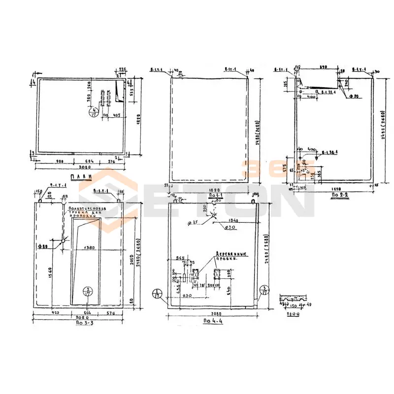
СК 20-28 п
Санитарно-технические кабины Серия 75
  • Длина 2080 мм.
  • Ширина 1820 мм.
  • Высота 2480 мм.
  • Вес 2450 кг.
  • Объем бетона 0,53 м3
  • Геометрический объем 9,3883 м3
Цена: 11824 руб.
Подробнее
СК 20-30 п
Санитарно-технические кабины Серия 75
  • Длина 2080 мм.
  • Ширина 1820 мм.
  • Высота 2680 мм.
  • Вес 2600 кг.
  • Объем бетона 1,04 м3
  • Геометрический объем 10,1454 м3
Цена: 23202 руб.
Подробнее
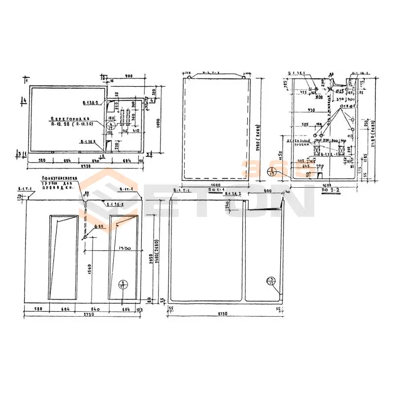
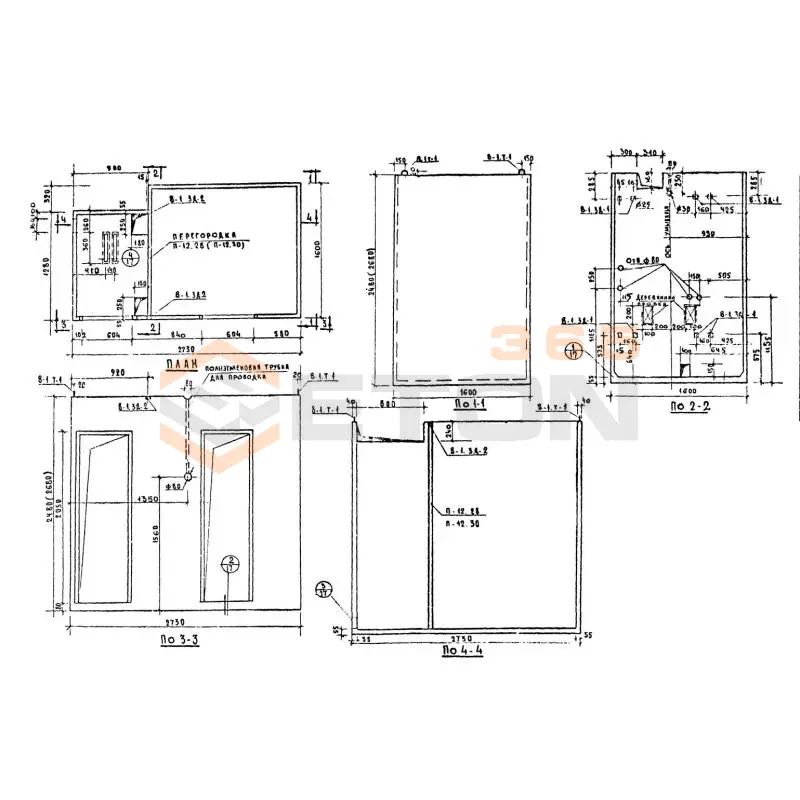
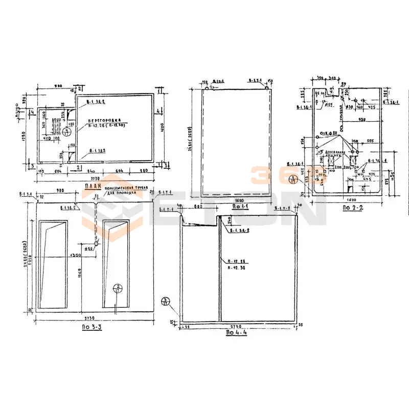
СК 28-28 л
Санитарно-технические кабины Серия 75
  • Длина 2730 мм.
  • Ширина 1600 мм.
  • Высота 2480 мм.
  • Вес 2600 кг.
  • Объем бетона 1,04 м3
  • Геометрический объем 10,8326 м3
Цена: 23202 руб.
Подробнее
СК 28-28 п
Санитарно-технические кабины Серия 75
  • Длина 2730 мм.
  • Ширина 1600 мм.
  • Высота 2480 мм.
  • Вес 2600 кг.
  • Объем бетона 1,04 м3
  • Геометрический объем 10,8326 м3
Цена: 23202 руб.
Подробнее
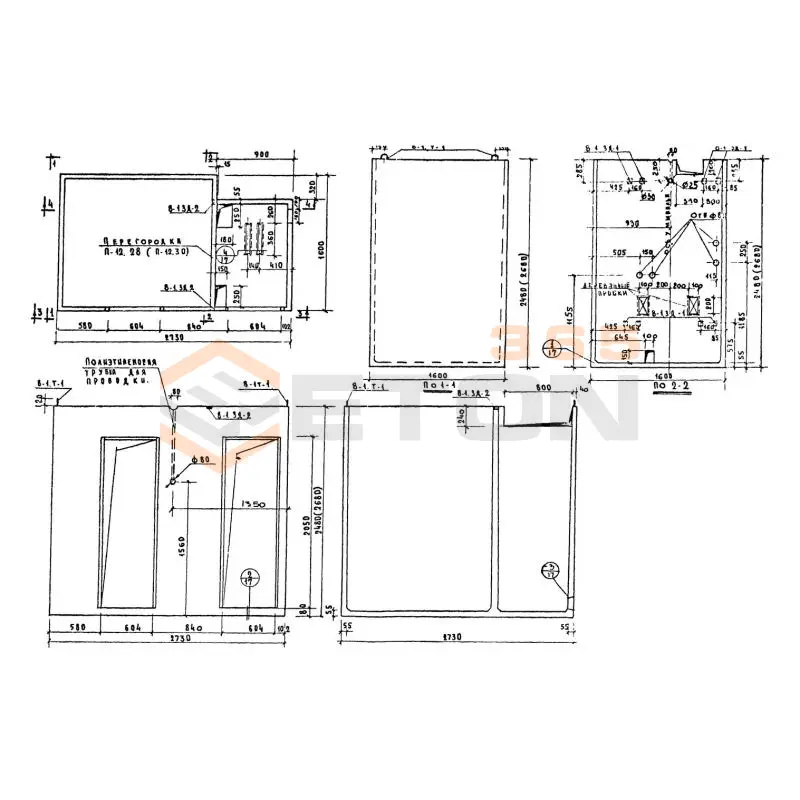
СК 28-30 л
Санитарно-технические кабины Серия 75
  • Длина 2730 мм.
  • Ширина 1600 мм.
  • Высота 2680 мм.
  • Вес 2980 кг.
  • Объем бетона 1,19 м3
  • Геометрический объем 11,7062 м3
Цена: 26549 руб.
Подробнее
СК 28-30 п
Санитарно-технические кабины Серия 75
  • Длина 2730 мм.
  • Ширина 1600 мм.
  • Высота 2680 мм.
  • Вес 2980 кг.
  • Объем бетона 1,19 м3
  • Геометрический объем 11,7062 м3
Цена: 26549 руб.
Подробнее

Уведомление о файлах cookie

Мы используем файлы cookie для улучшения вашего опыта просмотра и анализа трафика. Нажимая "Принять все", вы соглашаетесь с нашей политикой конфиденциальности и политикой обработки файлов cookie.

MAX Дзен Телеграм Вконтакте vk