mobile_sound +7 (930) 655-55-90

Железобетонные опоры линий электропередачи. Рабочие чертежи (Серия 3.902.1-12)

Поделиться:
Поделиться:

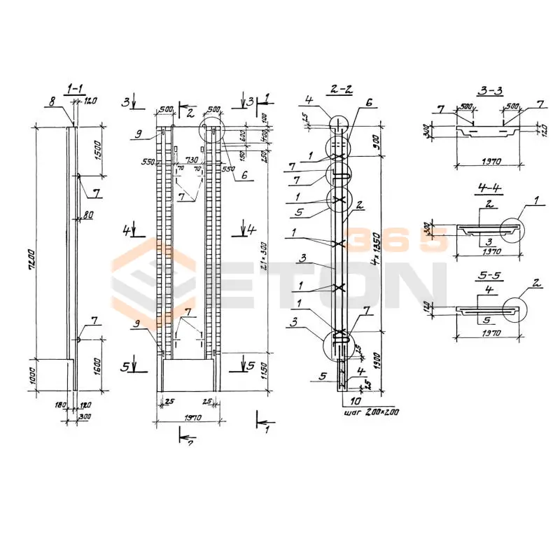
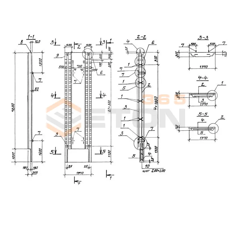
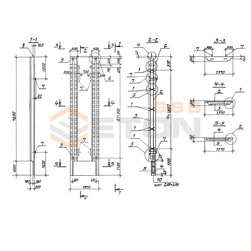
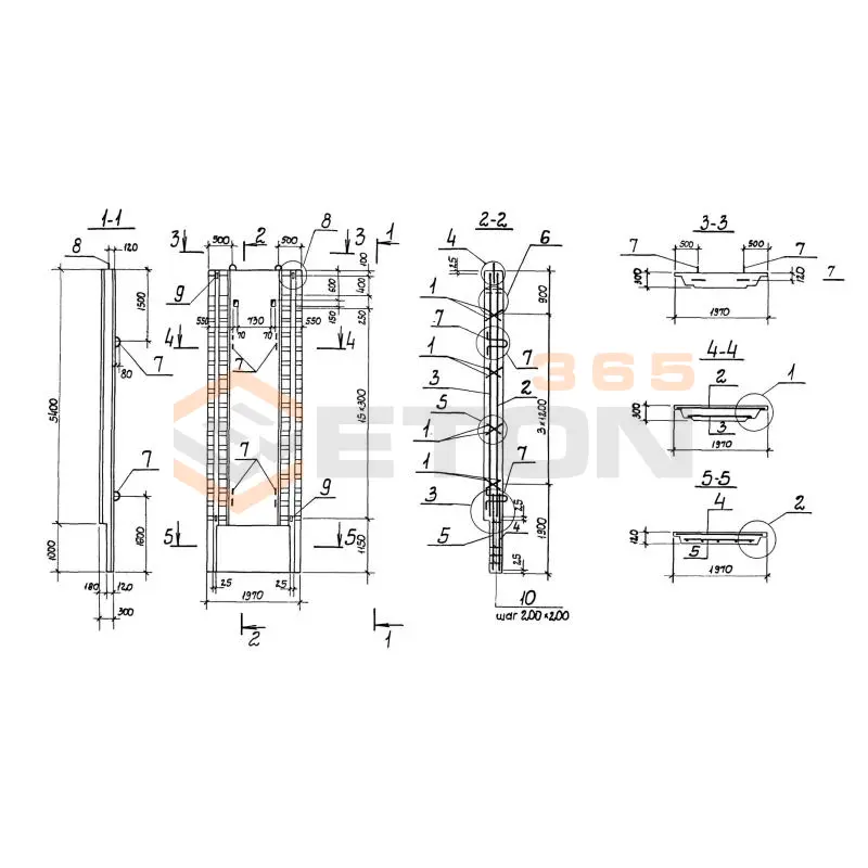
Документ Серия 3.902.1-12 описывает область применения, номенклатуру и ключевые требования, опираясь на действующие нормы и практику проектирования. Семь выпусков Серии 3.902.1-12 максимально детально описывают специфические особенности организации процесса производства сборных унифицированных изделия и конструкции, предназначенных под возведение круглых подземных сооружений, используемых под канализационные насосные станции. В номенклатурном перечне железобетонных элементов приведены стеновые и перегородочные панели различных геометрических пропорций, с которыми можно ознакомиться на рабочих чертежах. Все элементы распределены на группы по несущей способности для увеличения областей применения, а также на типы стыковых соединений.

Файлы для скачивания:
picture_as_pdf

3228.pdf

12,275.8 KB

скачать
picture_as_pdf

3229.pdf

14,299.7 KB

скачать
picture_as_pdf

3230.pdf

7,818.5 KB

скачать
picture_as_pdf

3231.pdf

6,677.0 KB

скачать
picture_as_pdf

3232.pdf

8,473.9 KB

скачать
picture_as_pdf

3233.pdf

4,898.3 KB

скачать
picture_as_pdf

3234.pdf

2,651.7 KB

скачать
Товары Серия 3.902.1-12 (37)
2ПС 84-1 к
Панели стеновые Серия 3.902.1-12
  • Длина 9400 мм.
  • Ширина 1970 мм.
  • Высота 450 мм.
  • Вес 12020 кг.
  • Объем бетона 4,81 м3
  • Геометрический объем 8,3331 м3
Цена: 163300 руб.
Подробнее
2ПС 84-3 к
Панели стеновые Серия 3.902.1-12
  • Длина 9400 мм.
  • Ширина 1970 мм.
  • Высота 450 мм.
  • Вес 12020 кг.
  • Объем бетона 4,81 м3
  • Геометрический объем 8,3331 м3
Цена: 163300 руб.
Подробнее
2ПС 84-2 к
Панели стеновые Серия 3.902.1-12
  • Длина 9400 мм.
  • Ширина 1970 мм.
  • Высота 450 мм.
  • Вес 12020 кг.
  • Объем бетона 4,81 м3
  • Геометрический объем 8,3331 м3
Цена: 163300 руб.
Подробнее
2ПС 84-2 ш
Панели стеновые Серия 3.902.1-12
  • Длина 9400 мм.
  • Ширина 1970 мм.
  • Высота 450 мм.
  • Вес 12880 кг.
  • Объем бетона 5,15 м3
  • Геометрический объем 8,3331 м3
Цена: 174843 руб.
Подробнее
2ПС 84-1 ш
Панели стеновые Серия 3.902.1-12
  • Длина 9400 мм.
  • Ширина 1970 мм.
  • Высота 450 мм.
  • Вес 12880 кг.
  • Объем бетона 5,15 м3
  • Геометрический объем 8,3331 м3
Цена: 174843 руб.
Подробнее
2ПС 84-3 ш
Панели стеновые Серия 3.902.1-12
  • Длина 9400 мм.
  • Ширина 1970 мм.
  • Высота 450 мм.
  • Вес 12880 кг.
  • Объем бетона 5,15 м3
  • Геометрический объем 8,3331 м3
Цена: 174843 руб.
Подробнее
2ПС 84-4 ш
Панели стеновые Серия 3.902.1-12
  • Длина 9400 мм.
  • Ширина 1970 мм.
  • Высота 450 мм.
  • Вес 12880 кг.
  • Объем бетона 5,15 м3
  • Геометрический объем 8,3331 м3
Цена: 174843 руб.
Подробнее
2ПС 84-4 к
Панели стеновые Серия 3.902.1-12
  • Длина 9400 мм.
  • Ширина 1970 мм.
  • Высота 450 мм.
  • Вес 12020 кг.
  • Объем бетона 4,81 м3
  • Геометрический объем 8,3331 м3
Цена: 163300 руб.
Подробнее
2ПС 84-5 ш
Панели стеновые Серия 3.902.1-12
  • Длина 9400 мм.
  • Ширина 1970 мм.
  • Высота 450 мм.
  • Вес 12880 кг.
  • Объем бетона 5,15 м3
  • Геометрический объем 8,3331 м3
Цена: 174843 руб.
Подробнее
2ПС 84-5 к
Панели стеновые Серия 3.902.1-12
  • Длина 9400 мм.
  • Ширина 1970 мм.
  • Высота 450 мм.
  • Вес 12020 кг.
  • Объем бетона 4,81 м3
  • Геометрический объем 8,3331 м3
Цена: 163300 руб.
Подробнее
3ПС 54-1 к
Панели стеновые Серия 3.902.1-12
  • Длина 6400 мм.
  • Ширина 1970 мм.
  • Высота 300 мм.
  • Вес 7400 кг.
  • Объем бетона 2,96 м3
  • Геометрический объем 3,7824 м3
Цена: 100492 руб.
Подробнее
3ПС 54-2 к
Панели стеновые Серия 3.902.1-12
  • Длина 6400 мм.
  • Ширина 1970 мм.
  • Высота 300 мм.
  • Вес 7400 кг.
  • Объем бетона 2,96 м3
  • Геометрический объем 3,7824 м3
Цена: 100492 руб.
Подробнее
3ПС 54-3 к
Панели стеновые Серия 3.902.1-12
  • Длина 6400 мм.
  • Ширина 1970 мм.
  • Высота 300 мм.
  • Вес 7400 кг.
  • Объем бетона 2,96 м3
  • Геометрический объем 3,7824 м3
Цена: 100492 руб.
Подробнее
3ПС 54-5 к
Панели стеновые Серия 3.902.1-12
  • Длина 6400 мм.
  • Ширина 1970 мм.
  • Высота 300 мм.
  • Вес 7400 кг.
  • Объем бетона 2,96 м3
  • Геометрический объем 3,7824 м3
Цена: 100492 руб.
Подробнее
3ПС 54-4 к
Панели стеновые Серия 3.902.1-12
  • Длина 6400 мм.
  • Ширина 1970 мм.
  • Высота 300 мм.
  • Вес 7400 кг.
  • Объем бетона 2,96 м3
  • Геометрический объем 3,7824 м3
Цена: 100492 руб.
Подробнее
3ПС 66-1 к
Панели стеновые Серия 3.902.1-12
  • Длина 7600 мм.
  • Ширина 1970 мм.
  • Высота 300 мм.
  • Вес 8700 кг.
  • Объем бетона 3,48 м3
  • Геометрический объем 4,4916 м3
Цена: 118146 руб.
Подробнее
3ПС 66-2 к
Панели стеновые Серия 3.902.1-12
  • Длина 7600 мм.
  • Ширина 1970 мм.
  • Высота 300 мм.
  • Вес 8700 кг.
  • Объем бетона 3,48 м3
  • Геометрический объем 4,4916 м3
Цена: 118146 руб.
Подробнее
3ПС 66-3 к
Панели стеновые Серия 3.902.1-12
  • Длина 7600 мм.
  • Ширина 1970 мм.
  • Высота 300 мм.
  • Вес 8700 кг.
  • Объем бетона 3,48 м3
  • Геометрический объем 4,4916 м3
Цена: 118146 руб.
Подробнее
3ПС 66-4 к
Панели стеновые Серия 3.902.1-12
  • Длина 7600 мм.
  • Ширина 1970 мм.
  • Высота 300 мм.
  • Вес 8700 кг.
  • Объем бетона 3,48 м3
  • Геометрический объем 4,4916 м3
Цена: 118146 руб.
Подробнее
3ПС 66-5 к
Панели стеновые Серия 3.902.1-12
  • Длина 7600 мм.
  • Ширина 1970 мм.
  • Высота 300 мм.
  • Вес 8700 кг.
  • Объем бетона 3,48 м3
  • Геометрический объем 4,4916 м3
Цена: 118146 руб.
Подробнее
3ПС 66-6 к
Панели стеновые Серия 3.902.1-12
  • Длина 7600 мм.
  • Ширина 1970 мм.
  • Высота 300 мм.
  • Вес 8700 кг.
  • Объем бетона 3,48 м3
  • Геометрический объем 4,4916 м3
Цена: 118146 руб.
Подробнее
3ПС 72-3 к
Панели стеновые Серия 3.902.1-12
  • Длина 8200 мм.
  • Ширина 1970 мм.
  • Высота 300 мм.
  • Вес 9700 кг.
  • Объем бетона 3,87 м3
  • Геометрический объем 4,8462 м3
Цена: 131387 руб.
Подробнее
3ПС 72-1 к
Панели стеновые Серия 3.902.1-12
  • Длина 8200 мм.
  • Ширина 1970 мм.
  • Высота 300 мм.
  • Вес 9700 кг.
  • Объем бетона 3,87 м3
  • Геометрический объем 4,8462 м3
Цена: 131387 руб.
Подробнее
3ПС 72-2 к
Панели стеновые Серия 3.902.1-12
  • Длина 8200 мм.
  • Ширина 1970 мм.
  • Высота 300 мм.
  • Вес 9700 кг.
  • Объем бетона 3,87 м3
  • Геометрический объем 4,8462 м3
Цена: 131387 руб.
Подробнее
3ПС 72-4 к
Панели стеновые Серия 3.902.1-12
  • Длина 8200 мм.
  • Ширина 1970 мм.
  • Высота 300 мм.
  • Вес 9700 кг.
  • Объем бетона 3,87 м3
  • Геометрический объем 4,8462 м3
Цена: 131387 руб.
Подробнее
3ПС 72-5 к
Панели стеновые Серия 3.902.1-12
  • Длина 8200 мм.
  • Ширина 1970 мм.
  • Высота 300 мм.
  • Вес 9700 кг.
  • Объем бетона 3,87 м3
  • Геометрический объем 4,8462 м3
Цена: 131387 руб.
Подробнее
3ПС 78-1 к
Панели стеновые Серия 3.902.1-12
  • Длина 8800 мм.
  • Ширина 1970 мм.
  • Высота 300 мм.
  • Вес 1020 кг.
  • Объем бетона 4,07 м3
  • Геометрический объем 5,2008 м3
Цена: 138177 руб.
Подробнее
3ПС 78-3 к
Панели стеновые Серия 3.902.1-12
  • Длина 8800 мм.
  • Ширина 1970 мм.
  • Высота 300 мм.
  • Вес 1020 кг.
  • Объем бетона 4,07 м3
  • Геометрический объем 5,2008 м3
Цена: 138177 руб.
Подробнее
3ПС 78-6 к
Панели стеновые Серия 3.902.1-12
  • Длина 8800 мм.
  • Ширина 1970 мм.
  • Высота 300 мм.
  • Вес 1020 кг.
  • Объем бетона 4,07 м3
  • Геометрический объем 5,2008 м3
Цена: 138177 руб.
Подробнее
3ПС 78-2 к
Панели стеновые Серия 3.902.1-12
  • Длина 8800 мм.
  • Ширина 1970 мм.
  • Высота 300 мм.
  • Вес 1020 кг.
  • Объем бетона 4,07 м3
  • Геометрический объем 5,2008 м3
Цена: 138177 руб.
Подробнее
3ПС 78-5 к
Панели стеновые Серия 3.902.1-12
  • Длина 8800 мм.
  • Ширина 1970 мм.
  • Высота 300 мм.
  • Вес 1020 кг.
  • Объем бетона 4,07 м3
  • Геометрический объем 5,2008 м3
Цена: 138177 руб.
Подробнее
3ПС 78-4 к
Панели стеновые Серия 3.902.1-12
  • Длина 8800 мм.
  • Ширина 1970 мм.
  • Высота 300 мм.
  • Вес 1020 кг.
  • Объем бетона 4,07 м3
  • Геометрический объем 5,2008 м3
Цена: 138177 руб.
Подробнее
3ПС 84-1 к
Панели стеновые Серия 3.902.1-12
  • Длина 9400 мм.
  • Ширина 1970 мм.
  • Высота 300 мм.
  • Вес 1130 кг.
  • Объем бетона 0,453 м3
  • Геометрический объем 5,5554 м3
Цена: 15379 руб.
Подробнее
3ПС 84-2 к
Панели стеновые Серия 3.902.1-12
  • Длина 9400 мм.
  • Ширина 1970 мм.
  • Высота 300 мм.
  • Вес 1130 кг.
  • Объем бетона 0,453 м3
  • Геометрический объем 5,5554 м3
Цена: 15379 руб.
Подробнее
3ПС 84-3 к
Панели стеновые Серия 3.902.1-12
  • Длина 9400 мм.
  • Ширина 1970 мм.
  • Высота 300 мм.
  • Вес 1130 кг.
  • Объем бетона 0,453 м3
  • Геометрический объем 5,5554 м3
Цена: 15379 руб.
Подробнее
3ПС 84-4 к
Панели стеновые Серия 3.902.1-12
  • Длина 9400 мм.
  • Ширина 1970 мм.
  • Высота 300 мм.
  • Вес 1130 кг.
  • Объем бетона 0,453 м3
  • Геометрический объем 5,5554 м3
Цена: 15379 руб.
Подробнее
3ПС 84-5 к
Панели стеновые Серия 3.902.1-12
  • Длина 9400 мм.
  • Ширина 1970 мм.
  • Высота 300 мм.
  • Вес 1130 кг.
  • Объем бетона 0,453 м3
  • Геометрический объем 5,5554 м3
Цена: 15379 руб.
Подробнее

Уведомление о файлах cookie

Мы используем файлы cookie для улучшения вашего опыта просмотра и анализа трафика. Нажимая "Принять все", вы соглашаетесь с нашей политикой конфиденциальности и политикой обработки файлов cookie.

Дзен Телеграм Вконтакте vk