mobile_sound +7 (930) 655-55-90

Железобетонные опоры линий электропередачи. Рабочие чертежи (Серия 3.505-11)

Поделиться:
Поделиться:

Документ Серия 3.505-11 описывает область применения, номенклатуру и ключевые требования, опираясь на действующие нормы и практику проектирования. Судоходная обстановка как отдельный вид транспортной инфраструктуры также нуждается в обустройстве информационными навигационными знаками, размещение которых осуществляется вдоль береговой линии. В основном используются деревянные знаки, однако для увеличения их продолжительного срока службы они применяются совместно с железобетонными элементами, такими как приставки (пасынки), фундаменты и анкерные плиты. Элементы по Серии 3.505-11 рассчитаны на эксплуатацию в III районе по скоростному напору ветра.

Файлы для скачивания:
picture_as_pdf

5861.pdf

10,948.9 KB

скачать
picture_as_pdf

5862.pdf

3,430.4 KB

скачать
picture_as_pdf

5863.pdf

4,264.4 KB

скачать
picture_as_pdf

5864.pdf

9,082.0 KB

скачать
picture_as_pdf

5865.pdf

8,233.6 KB

скачать
Товары Серия 3.505-11 (11)
137597ФА 1 (3.505-11)
Плиты анкерные Серия 3.505-11
  • Длина 1000 мм.
  • Ширина 1000 мм.
  • Высота 120 мм.
  • Вес 300 кг.
  • Объем бетона 0,12 м3
  • Геометрический объем 0,12 м3
Цена: 4074 руб.
Подробнее
137598ФА 2 (3.505-11)
Плиты анкерные Серия 3.505-11
  • Длина 1500 мм.
  • Ширина 1500 мм.
  • Высота 150 мм.
  • Вес 850 кг.
  • Объем бетона 0,34 м3
  • Геометрический объем 0,3375 м3
Цена: 11543 руб.
Подробнее
137598ФА 3 (3.505-11)
Плиты анкерные Серия 3.505-11
  • Длина 2000 мм.
  • Ширина 2000 мм.
  • Высота 150 мм.
  • Вес 1500 кг.
  • Объем бетона 0,6 м3
  • Геометрический объем 0,6 м3
Цена: 20370 руб.
Подробнее
137597Ф 2 (3.505-11)
Фундаменты Серия 3.505-11
  • Длина 1200 мм.
  • Ширина 1200 мм.
  • Высота 1000 мм.
  • Вес 1900 кг.
  • Объем бетона 0,78 м3
  • Геометрический объем 1,44 м3
Цена: 12862 руб.
Подробнее
137597Ф 1 (3.505-11)
Фундаменты Серия 3.505-11
  • Длина 1000 мм.
  • Ширина 1000 мм.
  • Высота 1000 мм.
  • Вес 1600 кг.
  • Объем бетона 0,64 м3
  • Геометрический объем 1 м3
Цена: 10554 руб.
Подробнее
137597Ф 3 (3.505-11)
Фундаменты Серия 3.505-11
  • Длина 1100 мм.
  • Ширина 1100 мм.
  • Высота 1700 мм.
  • Вес 2600 кг.
  • Объем бетона 1,05 м3
  • Геометрический объем 2,057 м3
Цена: 17315 руб.
Подробнее
137598Ф 6 (3.505-11)
Фундаменты Серия 3.505-11
  • Длина 1500 мм.
  • Ширина 1500 мм.
  • Высота 1700 мм.
  • Вес 3400 кг.
  • Объем бетона 1,36 м3
  • Геометрический объем 3,825 м3
Цена: 22426 руб.
Подробнее
137598Ф 5 (3.505-11)
Фундаменты Серия 3.505-11
  • Длина 1300 мм.
  • Ширина 1300 мм.
  • Высота 1700 мм.
  • Вес 3000 кг.
  • Объем бетона 1,2 м3
  • Геометрический объем 2,873 м3
Цена: 19788 руб.
Подробнее
137598Ф 4 (3.505-11)
Фундаменты Серия 3.505-11
  • Длина 1100 мм.
  • Ширина 1100 мм.
  • Высота 1700 мм.
  • Вес 2600 кг.
  • Объем бетона 1,05 м3
  • Геометрический объем 2,057 м3
Цена: 17315 руб.
Подробнее
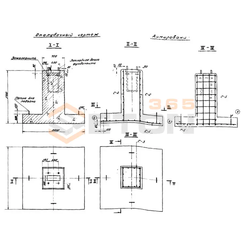
137598Ф 7 (3.505-11)
Фундаменты Серия 3.505-11
  • Длина 1800 мм.
  • Ширина 1800 мм.
  • Высота 1700 мм.
  • Вес 4100 кг.
  • Объем бетона 1,66 м3
  • Геометрический объем 5,508 м3
Цена: 27373 руб.
Подробнее
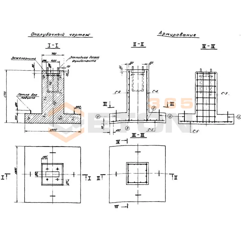
137598Ф 8 (3.505-11)
Фундаменты Серия 3.505-11
  • Длина 2000 мм.
  • Ширина 2000 мм.
  • Высота 1700 мм.
  • Вес 4700 кг.
  • Объем бетона 1,89 м3
  • Геометрический объем 6,8 м3
Цена: 31166 руб.
Подробнее

Уведомление о файлах cookie

Мы используем файлы cookie для улучшения вашего опыта просмотра и анализа трафика. Нажимая "Принять все", вы соглашаетесь с нашей политикой конфиденциальности и политикой обработки файлов cookie.

MAX Дзен Телеграм Вконтакте vk