mobile_sound +7 (930) 655-55-90

Типовые конструкции и железобетонные изделия. Рабочие чертежи (Серия 1.812.1-8.93)

Поделиться:
Поделиться:

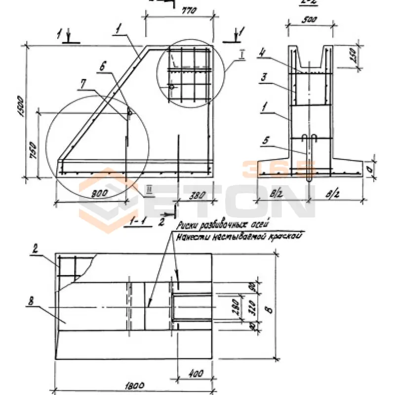
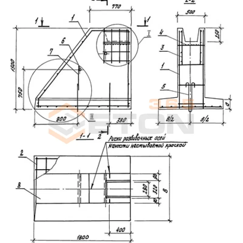
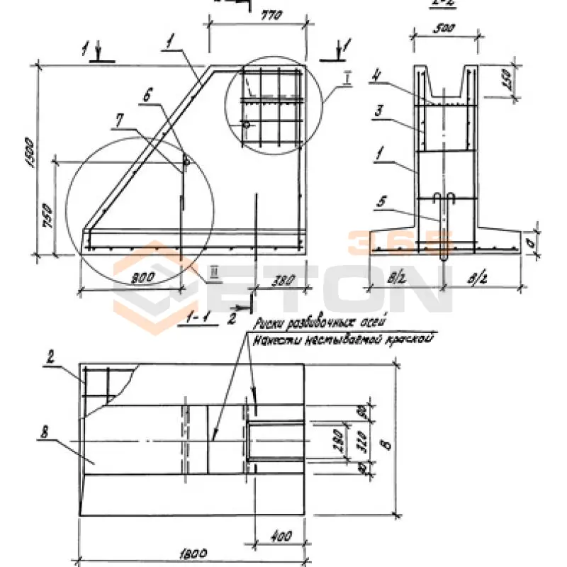
Документ Серия 1.812.1-8.93 описывает область применения, номенклатуру и ключевые требования, опираясь на действующие нормы и практику проектирования. Серия 1.812.1-8.93 определяет и регламентирует рабочие чертежи и информацию для проектирования, которые следует использовать при производстве фундаментов, предназначенных под трехшарнирные рамы. Конструкции подходят для однопролетных зданий, величина пролетов которых может составлять 9; 10,5; 12; 18; 21 и 24 метра, относящихся к категории сельскохозяйственных построек. допускается возможность применение изделия и конструкции в средах с различной степенью агрессивности при обеспечении должной защиты конструкций в заводских условиях.

Файлы для скачивания:
picture_as_pdf

1332.pdf

3,273.6 KB

скачать
picture_as_pdf

1333.pdf

4,527.4 KB

скачать
Товары Серия 1.812.1-8.93 (15)
Ф 15-12-12 (1.812.1-8.93)
Фундаменты Серия 1.812.1-8.93
  • Длина 1500 мм.
  • Ширина 1200 мм.
  • Высота 1200 мм.
  • Вес 2200 кг.
  • Объем бетона 0,88 м3
  • Геометрический объем 2,16 м3
Цена: 14511 руб.
Подробнее
Ф 15-15-12 (1.812.1-8.93)
Фундаменты Серия 1.812.1-8.93
  • Длина 1500 мм.
  • Ширина 1500 мм.
  • Высота 1200 мм.
  • Вес 2400 кг.
  • Объем бетона 0,95 м3
  • Геометрический объем 2,7 м3
Цена: 15666 руб.
Подробнее
Ф 15-12-9 (1.812.1-8.93)
Фундаменты Серия 1.812.1-8.93
  • Длина 1500 мм.
  • Ширина 1200 мм.
  • Высота 900 мм.
  • Вес 1800 кг.
  • Объем бетона 0,71 м3
  • Геометрический объем 1,62 м3
Цена: 11708 руб.
Подробнее
Ф 15-15-9 (1.812.1-8.93)
Фундаменты Серия 1.812.1-8.93
  • Длина 1500 мм.
  • Ширина 1500 мм.
  • Высота 900 мм.
  • Вес 2000 кг.
  • Объем бетона 0,78 м3
  • Геометрический объем 2,025 м3
Цена: 12862 руб.
Подробнее
Ф 18-12-12 (1.812.1-8.93)
Фундаменты Серия 1.812.1-8.93
  • Длина 1800 мм.
  • Ширина 1200 мм.
  • Высота 1200 мм.
  • Вес 2600 кг.
  • Объем бетона 1 м3
  • Геометрический объем 2,592 м3
Цена: 16490 руб.
Подробнее
Ф 18-15-12 (1.812.1-8.93)
Фундаменты Серия 1.812.1-8.93
  • Длина 1800 мм.
  • Ширина 1500 мм.
  • Высота 1200 мм.
  • Вес 2800 кг.
  • Объем бетона 1,1 м3
  • Геометрический объем 3,24 м3
Цена: 18139 руб.
Подробнее
Ф 18-12-9 (1.812.1-8.93)
Фундаменты Серия 1.812.1-8.93
  • Длина 1800 мм.
  • Ширина 1200 мм.
  • Высота 900 мм.
  • Вес 2100 кг.
  • Объем бетона 0,83 м3
  • Геометрический объем 1,944 м3
Цена: 13687 руб.
Подробнее
Ф 18-12-15 (1.812.1-8.93)
Фундаменты Серия 1.812.1-8.93
  • Длина 1800 мм.
  • Ширина 1200 мм.
  • Высота 1500 мм.
  • Вес 3000 кг.
  • Объем бетона 1,2 м3
  • Геометрический объем 3,24 м3
Цена: 19788 руб.
Подробнее
Ф 18-9-15 (1.812.1-8.93)
Фундаменты Серия 1.812.1-8.93
  • Длина 1800 мм.
  • Ширина 900 мм.
  • Высота 1500 мм.
  • Вес 2800 кг.
  • Объем бетона 1,12 м3
  • Геометрический объем 2,43 м3
Цена: 18469 руб.
Подробнее
Ф 18-15-15 (1.812.1-8.93)
Фундаменты Серия 1.812.1-8.93
  • Длина 1800 мм.
  • Ширина 1500 мм.
  • Высота 1500 мм.
  • Вес 3200 кг.
  • Объем бетона 1,29 м3
  • Геометрический объем 4,05 м3
Цена: 21272 руб.
Подробнее
Ф 24-15-12 (1.812.1-8.93)
Фундаменты Серия 1.812.1-8.93
  • Длина 2400 мм.
  • Ширина 1500 мм.
  • Высота 1200 мм.
  • Вес 3600 кг.
  • Объем бетона 1,4 м3
  • Геометрический объем 4,32 м3
Цена: 23086 руб.
Подробнее
Ф 24-15-15 (1.812.1-8.93)
Фундаменты Серия 1.812.1-8.93
  • Длина 2400 мм.
  • Ширина 1500 мм.
  • Высота 1500 мм.
  • Вес 4100 кг.
  • Объем бетона 1,7 м3
  • Геометрический объем 5,4 м3
Цена: 28033 руб.
Подробнее
Ф 24-12-12 (1.812.1-8.93)
Фундаменты Серия 1.812.1-8.93
  • Длина 2400 мм.
  • Ширина 1200 мм.
  • Высота 1200 мм.
  • Вес 3300 кг.
  • Объем бетона 1,3 м3
  • Геометрический объем 3,456 м3
Цена: 21437 руб.
Подробнее
Ф 18-15-9 (1.812.1-8.93)
Фундаменты Серия 1.812.1-8.93
  • Длина 1800 мм.
  • Ширина 1500 мм.
  • Высота 900 мм.
  • Вес 2300 кг.
  • Объем бетона 0,91 м3
  • Геометрический объем 2,43 м3
Цена: 15006 руб.
Подробнее
Ф 24-12-15 (1.812.1-8.93)
Фундаменты Серия 1.812.1-8.93
  • Длина 2400 мм.
  • Ширина 1200 мм.
  • Высота 1500 мм.
  • Вес 3900 кг.
  • Объем бетона 1,5 м3
  • Геометрический объем 4,32 м3
Цена: 24735 руб.
Подробнее

Уведомление о файлах cookie

Мы используем файлы cookie для улучшения вашего опыта просмотра и анализа трафика. Нажимая "Принять все", вы соглашаетесь с нашей политикой конфиденциальности и политикой обработки файлов cookie.

MAX Дзен Телеграм Вконтакте vk