mobile_sound +7 (930) 655-55-90

Типовые конструкции и железобетонные изделия. Рабочие чертежи (Серия 1.462.1-1/81)

Поделиться:
Поделиться:

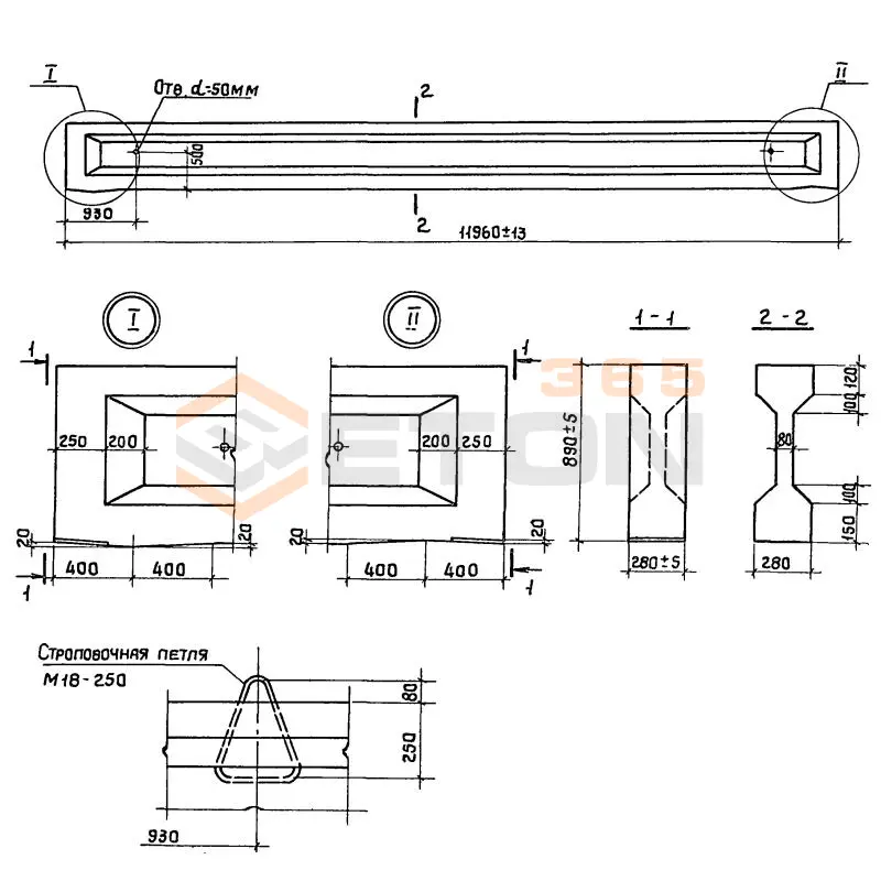
Документ Серия 1.462.1-1/81 описывает область применения, номенклатуру и ключевые требования, опираясь на действующие нормы и практику проектирования. Для обустройства покрытий в зданиях с плоской и скатной кровлей должны использоваться специальные унифицированные строительные материалы. Серия 1.462.1-1/81 определяет и регламентирует детальное описание технических условий для производства железобетонных балок, имеющих в своем составе предварительно напряженное армирование, и пролет которых составляет 12 метров. Нормативный документ разрабатывался такими проектными институтами, как ПРОМСТРОЙПРОЕКТ и НИИЖБ.

Файлы для скачивания:
picture_as_pdf

2288.pdf

15,014.0 KB

скачать
picture_as_pdf

2289.pdf

2,118.8 KB

скачать
Товары Серия 1.462.1-1/81 (60)
3БСО 12-6 АVI (1.462.1-1/81)
Балки железобетонные Серия 1.462.1-1/81
  • Длина 11960 мм.
  • Ширина 280 мм.
  • Высота 890 мм.
  • Вес 4500 кг.
  • Объем бетона 1,8 м3
  • Геометрический объем 2,9804 м3
Цена: 87300 руб.
Подробнее
3БСО 12-6 АтV (1.462.1-1/81)
Балки железобетонные Серия 1.462.1-1/81
  • Длина 11960 мм.
  • Ширина 280 мм.
  • Высота 890 мм.
  • Вес 4500 кг.
  • Объем бетона 1,8 м3
  • Геометрический объем 2,9804 м3
Цена: 87300 руб.
Подробнее
3БСО 12-6 АтVI (1.462.1-1/81)
Балки железобетонные Серия 1.462.1-1/81
  • Длина 11960 мм.
  • Ширина 280 мм.
  • Высота 890 мм.
  • Вес 4500 кг.
  • Объем бетона 1,8 м3
  • Геометрический объем 2,9804 м3
Цена: 87300 руб.
Подробнее
3БСО 12-6 АтVск н (1.462.1-1/81)
Балки железобетонные Серия 1.462.1-1/81
  • Длина 11960 мм.
  • Ширина 280 мм.
  • Высота 890 мм.
  • Вес 4500 кг.
  • Объем бетона 1,8 м3
  • Геометрический объем 2,9804 м3
Цена: 87300 руб.
Подробнее
3БСО 12-6 АтVск п (1.462.1-1/81)
Балки железобетонные Серия 1.462.1-1/81
  • Длина 11960 мм.
  • Ширина 280 мм.
  • Высота 890 мм.
  • Вес 4500 кг.
  • Объем бетона 1,8 м3
  • Геометрический объем 2,9804 м3
Цена: 87300 руб.
Подробнее
3БСО 12-6 ВрII (1.462.1-1/81)
Балки железобетонные Серия 1.462.1-1/81
  • Длина 11960 мм.
  • Ширина 280 мм.
  • Высота 890 мм.
  • Вес 4500 кг.
  • Объем бетона 1,8 м3
  • Геометрический объем 2,9804 м3
Цена: 87300 руб.
Подробнее
3БСО 12-6 к7 (1.462.1-1/81)
Балки железобетонные Серия 1.462.1-1/81
  • Длина 11960 мм.
  • Ширина 280 мм.
  • Высота 890 мм.
  • Вес 4500 кг.
  • Объем бетона 1,8 м3
  • Геометрический объем 2,9804 м3
Цена: 87300 руб.
Подробнее
4БСО 12-3 АIV (1.462.1-1/81)
Балки железобетонные Серия 1.462.1-1/81
  • Длина 11960 мм.
  • Ширина 280 мм.
  • Высота 890 мм.
  • Вес 5000 кг.
  • Объем бетона 2 м3
  • Геометрический объем 2,9804 м3
Цена: 97000 руб.
Подробнее
4БСО 12-3 АIV н (1.462.1-1/81)
Балки железобетонные Серия 1.462.1-1/81
  • Длина 11960 мм.
  • Ширина 280 мм.
  • Высота 890 мм.
  • Вес 5000 кг.
  • Объем бетона 2 м3
  • Геометрический объем 2,9804 м3
Цена: 97000 руб.
Подробнее
4БСО 12-3 АIV п (1.462.1-1/81)
Балки железобетонные Серия 1.462.1-1/81
  • Длина 11960 мм.
  • Ширина 280 мм.
  • Высота 890 мм.
  • Вес 5000 кг.
  • Объем бетона 2 м3
  • Геометрический объем 2,9804 м3
Цена: 97000 руб.
Подробнее
4БСО 12-3 АV (1.462.1-1/81)
Балки железобетонные Серия 1.462.1-1/81
  • Длина 11960 мм.
  • Ширина 280 мм.
  • Высота 890 мм.
  • Вес 5000 кг.
  • Объем бетона 2 м3
  • Геометрический объем 2,9804 м3
Цена: 97000 руб.
Подробнее
4БСО 12-3 АVI (1.462.1-1/81)
Балки железобетонные Серия 1.462.1-1/81
  • Длина 11960 мм.
  • Ширина 280 мм.
  • Высота 890 мм.
  • Вес 5000 кг.
  • Объем бетона 2 м3
  • Геометрический объем 2,9804 м3
Цена: 97000 руб.
Подробнее
4БСО 12-3 АтV (1.462.1-1/81)
Балки железобетонные Серия 1.462.1-1/81
  • Длина 11960 мм.
  • Ширина 280 мм.
  • Высота 890 мм.
  • Вес 5000 кг.
  • Объем бетона 2 м3
  • Геометрический объем 2,9804 м3
Цена: 97000 руб.
Подробнее
4БСО 12-3 АтVI (1.462.1-1/81)
Балки железобетонные Серия 1.462.1-1/81
  • Длина 11960 мм.
  • Ширина 280 мм.
  • Высота 890 мм.
  • Вес 5000 кг.
  • Объем бетона 2 м3
  • Геометрический объем 2,9804 м3
Цена: 97000 руб.
Подробнее
4БСО 12-3 АтVск н (1.462.1-1/81)
Балки железобетонные Серия 1.462.1-1/81
  • Длина 11960 мм.
  • Ширина 280 мм.
  • Высота 890 мм.
  • Вес 5000 кг.
  • Объем бетона 2 м3
  • Геометрический объем 2,9804 м3
Цена: 97000 руб.
Подробнее
4БСО 12-3 АтVск п (1.462.1-1/81)
Балки железобетонные Серия 1.462.1-1/81
  • Длина 11960 мм.
  • Ширина 280 мм.
  • Высота 890 мм.
  • Вес 5000 кг.
  • Объем бетона 2 м3
  • Геометрический объем 2,9804 м3
Цена: 97000 руб.
Подробнее
4БСО 12-3 в (1.462.1-1/81)
Балки железобетонные Серия 1.462.1-1/81
  • Длина 11960 мм.
  • Ширина 280 мм.
  • Высота 890 мм.
  • Вес 5000 кг.
  • Объем бетона 2 м3
  • Геометрический объем 2,9804 м3
Цена: 97000 руб.
Подробнее
4БСО 12-3 к7 (1.462.1-1/81)
Балки железобетонные Серия 1.462.1-1/81
  • Длина 11960 мм.
  • Ширина 280 мм.
  • Высота 890 мм.
  • Вес 5000 кг.
  • Объем бетона 2 м3
  • Геометрический объем 2,9804 м3
Цена: 97000 руб.
Подробнее
4БСО 12-4 АIV (1.462.1-1/81)
Балки железобетонные Серия 1.462.1-1/81
  • Длина 11960 мм.
  • Ширина 280 мм.
  • Высота 890 мм.
  • Вес 5000 кг.
  • Объем бетона 2 м3
  • Геометрический объем 2,9804 м3
Цена: 97000 руб.
Подробнее
4БСО 12-4 АIV н (1.462.1-1/81)
Балки железобетонные Серия 1.462.1-1/81
  • Длина 11960 мм.
  • Ширина 280 мм.
  • Высота 890 мм.
  • Вес 5000 кг.
  • Объем бетона 2 м3
  • Геометрический объем 2,9804 м3
Цена: 97000 руб.
Подробнее
4БСО 12-4 АIV п (1.462.1-1/81)
Балки железобетонные Серия 1.462.1-1/81
  • Длина 11960 мм.
  • Ширина 280 мм.
  • Высота 890 мм.
  • Вес 5000 кг.
  • Объем бетона 2 м3
  • Геометрический объем 2,9804 м3
Цена: 97000 руб.
Подробнее
4БСО 12-4 АV (1.462.1-1/81)
Балки железобетонные Серия 1.462.1-1/81
  • Длина 11960 мм.
  • Ширина 280 мм.
  • Высота 890 мм.
  • Вес 5000 кг.
  • Объем бетона 2 м3
  • Геометрический объем 2,9804 м3
Цена: 97000 руб.
Подробнее
4БСО 12-4 АVI (1.462.1-1/81)
Балки железобетонные Серия 1.462.1-1/81
  • Длина 11960 мм.
  • Ширина 280 мм.
  • Высота 890 мм.
  • Вес 5000 кг.
  • Объем бетона 2 м3
  • Геометрический объем 2,9804 м3
Цена: 97000 руб.
Подробнее
4БСО 12-4 АтVI (1.462.1-1/81)
Балки железобетонные Серия 1.462.1-1/81
  • Длина 11960 мм.
  • Ширина 280 мм.
  • Высота 890 мм.
  • Вес 5000 кг.
  • Объем бетона 2 м3
  • Геометрический объем 2,9804 м3
Цена: 97000 руб.
Подробнее
4БСО 12-4 АтV (1.462.1-1/81)
Балки железобетонные Серия 1.462.1-1/81
  • Длина 11960 мм.
  • Ширина 280 мм.
  • Высота 890 мм.
  • Вес 5000 кг.
  • Объем бетона 2 м3
  • Геометрический объем 2,9804 м3
Цена: 97000 руб.
Подробнее
4БСО 12-4 АтVск н (1.462.1-1/81)
Балки железобетонные Серия 1.462.1-1/81
  • Длина 11960 мм.
  • Ширина 280 мм.
  • Высота 890 мм.
  • Вес 5000 кг.
  • Объем бетона 2 м3
  • Геометрический объем 2,9804 м3
Цена: 97000 руб.
Подробнее
4БСО 12-4 АтVск п (1.462.1-1/81)
Балки железобетонные Серия 1.462.1-1/81
  • Длина 11960 мм.
  • Ширина 280 мм.
  • Высота 890 мм.
  • Вес 5000 кг.
  • Объем бетона 2 м3
  • Геометрический объем 2,9804 м3
Цена: 97000 руб.
Подробнее
4БСО 12-4 в (1.462.1-1/81)
Балки железобетонные Серия 1.462.1-1/81
  • Длина 11960 мм.
  • Ширина 280 мм.
  • Высота 890 мм.
  • Вес 5000 кг.
  • Объем бетона 2 м3
  • Геометрический объем 2,9804 м3
Цена: 97000 руб.
Подробнее
4БСО 12-4 к7 (1.462.1-1/81)
Балки железобетонные Серия 1.462.1-1/81
  • Длина 11960 мм.
  • Ширина 280 мм.
  • Высота 890 мм.
  • Вес 5000 кг.
  • Объем бетона 2 м3
  • Геометрический объем 2,9804 м3
Цена: 97000 руб.
Подробнее
4БСО 12-5 АIV (1.462.1-1/81)
Балки железобетонные Серия 1.462.1-1/81
  • Длина 11960 мм.
  • Ширина 280 мм.
  • Высота 890 мм.
  • Вес 5000 кг.
  • Объем бетона 2 м3
  • Геометрический объем 2,9804 м3
Цена: 97000 руб.
Подробнее
4БСО 12-5 АIV н (1.462.1-1/81)
Балки железобетонные Серия 1.462.1-1/81
  • Длина 11960 мм.
  • Ширина 280 мм.
  • Высота 890 мм.
  • Вес 5000 кг.
  • Объем бетона 2 м3
  • Геометрический объем 2,9804 м3
Цена: 97000 руб.
Подробнее
4БСО 12-5 АIV п (1.462.1-1/81)
Балки железобетонные Серия 1.462.1-1/81
  • Длина 11960 мм.
  • Ширина 280 мм.
  • Высота 890 мм.
  • Вес 5000 кг.
  • Объем бетона 2 м3
  • Геометрический объем 2,9804 м3
Цена: 97000 руб.
Подробнее
4БСО 12-5 АV (1.462.1-1/81)
Балки железобетонные Серия 1.462.1-1/81
  • Длина 11960 мм.
  • Ширина 280 мм.
  • Высота 890 мм.
  • Вес 5000 кг.
  • Объем бетона 2 м3
  • Геометрический объем 2,9804 м3
Цена: 97000 руб.
Подробнее
4БСО 12-5 АVI (1.462.1-1/81)
Балки железобетонные Серия 1.462.1-1/81
  • Длина 11960 мм.
  • Ширина 280 мм.
  • Высота 890 мм.
  • Вес 5000 кг.
  • Объем бетона 2 м3
  • Геометрический объем 2,9804 м3
Цена: 97000 руб.
Подробнее
4БСО 12-5 АтV (1.462.1-1/81)
Балки железобетонные Серия 1.462.1-1/81
  • Длина 11960 мм.
  • Ширина 280 мм.
  • Высота 890 мм.
  • Вес 5000 кг.
  • Объем бетона 2 м3
  • Геометрический объем 2,9804 м3
Цена: 97000 руб.
Подробнее
4БСО 12-5 АтVI (1.462.1-1/81)
Балки железобетонные Серия 1.462.1-1/81
  • Длина 11960 мм.
  • Ширина 280 мм.
  • Высота 890 мм.
  • Вес 5000 кг.
  • Объем бетона 2 м3
  • Геометрический объем 2,9804 м3
Цена: 97000 руб.
Подробнее
4БСО 12-5 АтVск н (1.462.1-1/81)
Балки железобетонные Серия 1.462.1-1/81
  • Длина 11960 мм.
  • Ширина 280 мм.
  • Высота 890 мм.
  • Вес 5000 кг.
  • Объем бетона 2 м3
  • Геометрический объем 2,9804 м3
Цена: 97000 руб.
Подробнее
4БСО 12-5 АтVск п (1.462.1-1/81)
Балки железобетонные Серия 1.462.1-1/81
  • Длина 11960 мм.
  • Ширина 280 мм.
  • Высота 890 мм.
  • Вес 5000 кг.
  • Объем бетона 2 м3
  • Геометрический объем 2,9804 м3
Цена: 97000 руб.
Подробнее
4БСО 12-5 в (1.462.1-1/81)
Балки железобетонные Серия 1.462.1-1/81
  • Длина 11960 мм.
  • Ширина 280 мм.
  • Высота 890 мм.
  • Вес 5000 кг.
  • Объем бетона 2 м3
  • Геометрический объем 2,9804 м3
Цена: 97000 руб.
Подробнее
4БСО 12-5 к7 (1.462.1-1/81)
Балки железобетонные Серия 1.462.1-1/81
  • Длина 11960 мм.
  • Ширина 280 мм.
  • Высота 890 мм.
  • Вес 5000 кг.
  • Объем бетона 2 м3
  • Геометрический объем 2,9804 м3
Цена: 97000 руб.
Подробнее
4БСО 12-6 АIV (1.462.1-1/81)
Балки железобетонные Серия 1.462.1-1/81
  • Длина 11960 мм.
  • Ширина 280 мм.
  • Высота 890 мм.
  • Вес 5000 кг.
  • Объем бетона 2 м3
  • Геометрический объем 2,9804 м3
Цена: 97000 руб.
Подробнее
4БСО 12-6 АIV н (1.462.1-1/81)
Балки железобетонные Серия 1.462.1-1/81
  • Длина 11960 мм.
  • Ширина 280 мм.
  • Высота 890 мм.
  • Вес 5000 кг.
  • Объем бетона 2 м3
  • Геометрический объем 2,9804 м3
Цена: 97000 руб.
Подробнее
4БСО 12-6 АIV п (1.462.1-1/81)
Балки железобетонные Серия 1.462.1-1/81
  • Длина 11960 мм.
  • Ширина 280 мм.
  • Высота 890 мм.
  • Вес 5000 кг.
  • Объем бетона 2 м3
  • Геометрический объем 2,9804 м3
Цена: 97000 руб.
Подробнее
4БСО 12-6 АV (1.462.1-1/81)
Балки железобетонные Серия 1.462.1-1/81
  • Длина 11960 мм.
  • Ширина 280 мм.
  • Высота 890 мм.
  • Вес 5000 кг.
  • Объем бетона 2 м3
  • Геометрический объем 2,9804 м3
Цена: 97000 руб.
Подробнее
4БСО 12-6 АVI (1.462.1-1/81)
Балки железобетонные Серия 1.462.1-1/81
  • Длина 11960 мм.
  • Ширина 280 мм.
  • Высота 890 мм.
  • Вес 5000 кг.
  • Объем бетона 2 м3
  • Геометрический объем 2,9804 м3
Цена: 97000 руб.
Подробнее
4БСО 12-6 АтV (1.462.1-1/81)
Балки железобетонные Серия 1.462.1-1/81
  • Длина 11960 мм.
  • Ширина 280 мм.
  • Высота 890 мм.
  • Вес 5000 кг.
  • Объем бетона 2 м3
  • Геометрический объем 2,9804 м3
Цена: 97000 руб.
Подробнее
4БСО 12-6 АтVI (1.462.1-1/81)
Балки железобетонные Серия 1.462.1-1/81
  • Длина 11960 мм.
  • Ширина 280 мм.
  • Высота 890 мм.
  • Вес 5000 кг.
  • Объем бетона 2 м3
  • Геометрический объем 2,9804 м3
Цена: 97000 руб.
Подробнее
4БСО 12-6 АтVск н (1.462.1-1/81)
Балки железобетонные Серия 1.462.1-1/81
  • Длина 11960 мм.
  • Ширина 280 мм.
  • Высота 890 мм.
  • Вес 5000 кг.
  • Объем бетона 2 м3
  • Геометрический объем 2,9804 м3
Цена: 97000 руб.
Подробнее
4БСО 12-6 АтVск п (1.462.1-1/81)
Балки железобетонные Серия 1.462.1-1/81
  • Длина 11960 мм.
  • Ширина 280 мм.
  • Высота 890 мм.
  • Вес 5000 кг.
  • Объем бетона 2 м3
  • Геометрический объем 2,9804 м3
Цена: 97000 руб.
Подробнее
4БСО 12-6 в (1.462.1-1/81)
Балки железобетонные Серия 1.462.1-1/81
  • Длина 11960 мм.
  • Ширина 280 мм.
  • Высота 890 мм.
  • Вес 5000 кг.
  • Объем бетона 2 м3
  • Геометрический объем 2,9804 м3
Цена: 97000 руб.
Подробнее
4БСО 12-6 к7 (1.462.1-1/81)
Балки железобетонные Серия 1.462.1-1/81
  • Длина 11960 мм.
  • Ширина 280 мм.
  • Высота 890 мм.
  • Вес 5000 кг.
  • Объем бетона 2 м3
  • Геометрический объем 2,9804 м3
Цена: 97000 руб.
Подробнее
4БСО 12-7 АIV (1.462.1-1/81)
Балки железобетонные Серия 1.462.1-1/81
  • Длина 11960 мм.
  • Ширина 280 мм.
  • Высота 890 мм.
  • Вес 5000 кг.
  • Объем бетона 2 м3
  • Геометрический объем 2,9804 м3
Цена: 97000 руб.
Подробнее
4БСО 12-7 АIV н (1.462.1-1/81)
Балки железобетонные Серия 1.462.1-1/81
  • Длина 11960 мм.
  • Ширина 280 мм.
  • Высота 890 мм.
  • Вес 5000 кг.
  • Объем бетона 2 м3
  • Геометрический объем 2,9804 м3
Цена: 97000 руб.
Подробнее
4БСО 12-7 АIV п (1.462.1-1/81)
Балки железобетонные Серия 1.462.1-1/81
  • Длина 11960 мм.
  • Ширина 280 мм.
  • Высота 890 мм.
  • Вес 5000 кг.
  • Объем бетона 2 м3
  • Геометрический объем 2,9804 м3
Цена: 97000 руб.
Подробнее
4БСО 12-7 АV (1.462.1-1/81)
Балки железобетонные Серия 1.462.1-1/81
  • Длина 11960 мм.
  • Ширина 280 мм.
  • Высота 890 мм.
  • Вес 5000 кг.
  • Объем бетона 2 м3
  • Геометрический объем 2,9804 м3
Цена: 97000 руб.
Подробнее
4БСО 12-7 АтVI (1.462.1-1/81)
Балки железобетонные Серия 1.462.1-1/81
  • Длина 11960 мм.
  • Ширина 280 мм.
  • Высота 890 мм.
  • Вес 5000 кг.
  • Объем бетона 2 м3
  • Геометрический объем 2,9804 м3
Цена: 97000 руб.
Подробнее
4БСО 12-7 АтV (1.462.1-1/81)
Балки железобетонные Серия 1.462.1-1/81
  • Длина 11960 мм.
  • Ширина 280 мм.
  • Высота 890 мм.
  • Вес 5000 кг.
  • Объем бетона 2 м3
  • Геометрический объем 2,9804 м3
Цена: 97000 руб.
Подробнее
4БСО 12-7 АтVск н (1.462.1-1/81)
Балки железобетонные Серия 1.462.1-1/81
  • Длина 11960 мм.
  • Ширина 280 мм.
  • Высота 890 мм.
  • Вес 5000 кг.
  • Объем бетона 2 м3
  • Геометрический объем 2,9804 м3
Цена: 97000 руб.
Подробнее
4БСО 12-7 АVI (1.462.1-1/81)
Балки железобетонные Серия 1.462.1-1/81
  • Длина 11960 мм.
  • Ширина 280 мм.
  • Высота 890 мм.
  • Вес 5000 кг.
  • Объем бетона 2 м3
  • Геометрический объем 2,9804 м3
Цена: 97000 руб.
Подробнее
4БСО 12-7 в (1.462.1-1/81)
Балки железобетонные Серия 1.462.1-1/81
  • Длина 11960 мм.
  • Ширина 280 мм.
  • Высота 890 мм.
  • Вес 5000 кг.
  • Объем бетона 2 м3
  • Геометрический объем 2,9804 м3
Цена: 97000 руб.
Подробнее

Уведомление о файлах cookie

Мы используем файлы cookie для улучшения вашего опыта просмотра и анализа трафика. Нажимая "Принять все", вы соглашаетесь с нашей политикой конфиденциальности и политикой обработки файлов cookie.

MAX Дзен Телеграм Вконтакте vk