mobile_sound +7 (930) 655-55-90

Типовые конструкции и железобетонные изделия. Рабочие чертежи (Серия 1.462.1-10/89)

Поделиться:
Поделиться:

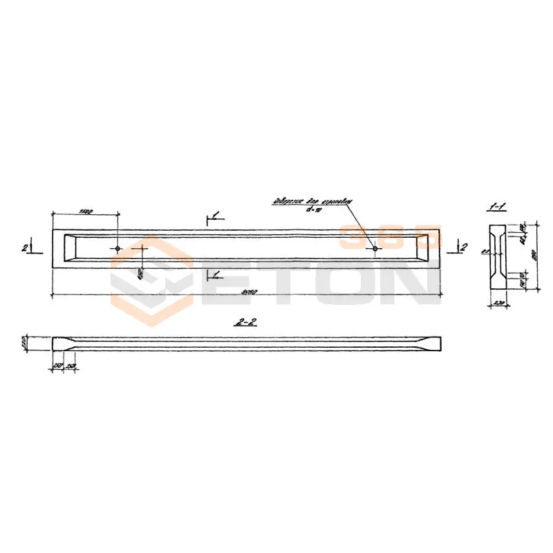
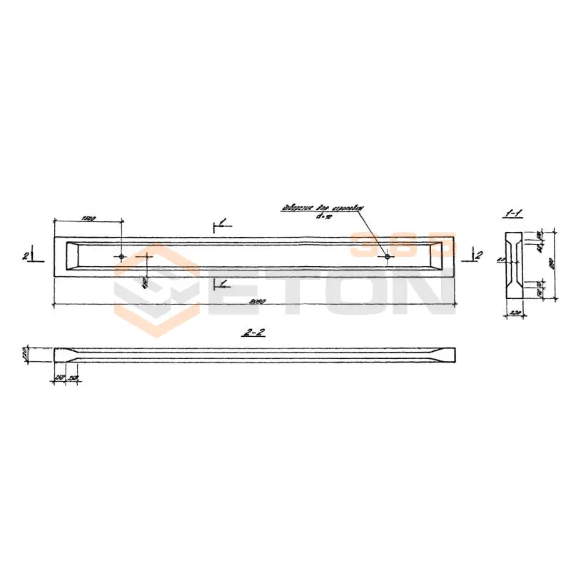
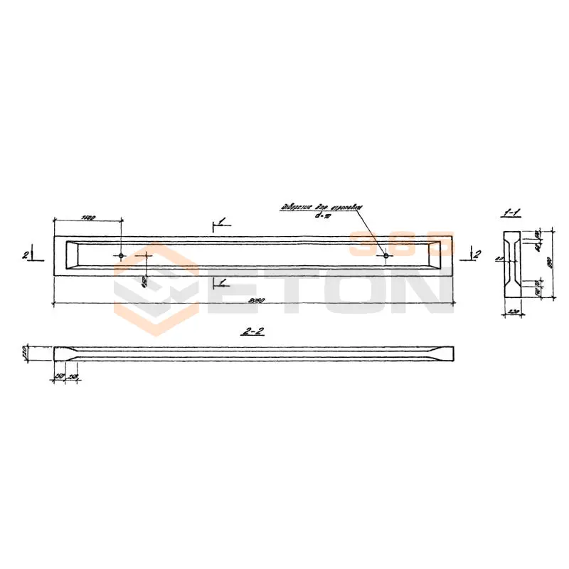
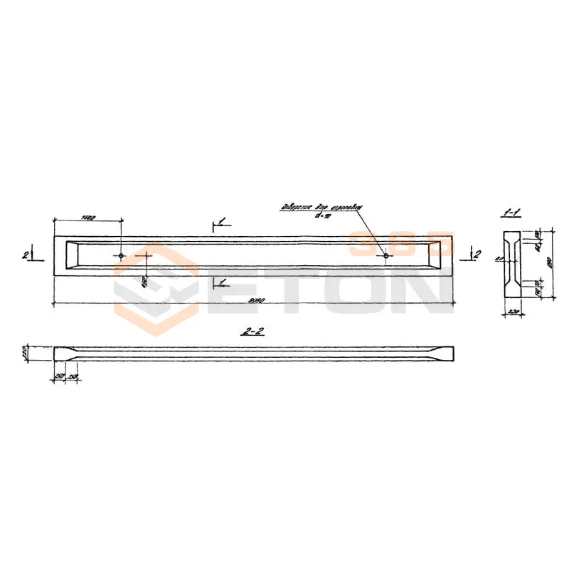
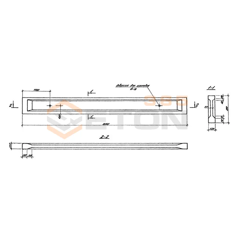
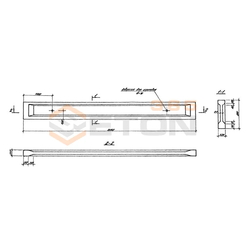
Документ Серия 1.462.1-10/89 описывает область применения, номенклатуру и ключевые требования, опираясь на действующие нормы и практику проектирования. В составе Серии 1.462.1-10/89 насчитывается три выпуска, содержащих подробное описание производства стропильных железобетонных балок, предназначенных для покрытий зданий и сооружений различного назначения, которые имеют пролеты 6 и 9 метров. В номенклатурном перечне приведены конструкции двух видов поперечного сечения: таврового и двутаврового. При выборе элементов под нужды типового проекта важно учитывать величины несущей способности изделия и конструкции, расчеты которой приведены на страницах регламента, а также климатические особенности региона строительства.

Файлы для скачивания:
picture_as_pdf

5481.pdf

6,708.3 KB

скачать
picture_as_pdf

5482.pdf

1,285.4 KB

скачать
picture_as_pdf

5483.pdf

212.0 KB

скачать
Товары Серия 1.462.1-10/89 (60)
БСП 6-1-1 (1.462.1-10/89)
Балки стропильные Серия 1.462.1-10/89
  • Длина 5960 мм.
  • Ширина 200 мм.
  • Высота 590 мм.
  • Вес 1150 кг.
  • Объем бетона 0,45 м3
  • Геометрический объем 0,7033 м3
Цена: 24008 руб.
Подробнее
БСП 6-1-1 АIII (1.462.1-10/89)
Балки стропильные Серия 1.462.1-10/89
  • Длина 5960 мм.
  • Ширина 200 мм.
  • Высота 590 мм.
  • Вес 1150 кг.
  • Объем бетона 0,45 м3
  • Геометрический объем 0,7033 м3
Цена: 24008 руб.
Подробнее
БСП 6-1-1 АIV (1.462.1-10/89)
Балки стропильные Серия 1.462.1-10/89
  • Длина 5960 мм.
  • Ширина 200 мм.
  • Высота 590 мм.
  • Вес 1150 кг.
  • Объем бетона 0,45 м3
  • Геометрический объем 0,7033 м3
Цена: 24008 руб.
Подробнее
БСП 6-1-1 АV (1.462.1-10/89)
Балки стропильные Серия 1.462.1-10/89
  • Длина 5960 мм.
  • Ширина 200 мм.
  • Высота 590 мм.
  • Вес 1150 кг.
  • Объем бетона 0,45 м3
  • Геометрический объем 0,7033 м3
Цена: 24008 руб.
Подробнее
БСП 6-1-1 АVМ (1.462.1-10/89)
Балки стропильные Серия 1.462.1-10/89
  • Длина 5960 мм.
  • Ширина 200 мм.
  • Высота 590 мм.
  • Вес 1150 кг.
  • Объем бетона 0,45 м3
  • Геометрический объем 0,7033 м3
Цена: 24008 руб.
Подробнее
БСП 6-1-10 АIII (1.462.1-10/89)
Балки стропильные Серия 1.462.1-10/89
  • Длина 5960 мм.
  • Ширина 200 мм.
  • Высота 590 мм.
  • Вес 1150 кг.
  • Объем бетона 0,45 м3
  • Геометрический объем 0,7033 м3
Цена: 24008 руб.
Подробнее
БСП 6-1-1 АтVск (1.462.1-10/89)
Балки стропильные Серия 1.462.1-10/89
  • Длина 5960 мм.
  • Ширина 200 мм.
  • Высота 590 мм.
  • Вес 1150 кг.
  • Объем бетона 0,45 м3
  • Геометрический объем 0,7033 м3
Цена: 24008 руб.
Подробнее
БСП 6-1-10 АIIIв (1.462.1-10/89)
Балки стропильные Серия 1.462.1-10/89
  • Длина 5960 мм.
  • Ширина 200 мм.
  • Высота 590 мм.
  • Вес 1150 кг.
  • Объем бетона 0,45 м3
  • Геометрический объем 0,7033 м3
Цена: 24008 руб.
Подробнее
БСП 6-1-10 АV (1.462.1-10/89)
Балки стропильные Серия 1.462.1-10/89
  • Длина 5960 мм.
  • Ширина 200 мм.
  • Высота 590 мм.
  • Вес 1150 кг.
  • Объем бетона 0,45 м3
  • Геометрический объем 0,7033 м3
Цена: 24008 руб.
Подробнее
БСП 6-1-10 АIV (1.462.1-10/89)
Балки стропильные Серия 1.462.1-10/89
  • Длина 5960 мм.
  • Ширина 200 мм.
  • Высота 590 мм.
  • Вес 1150 кг.
  • Объем бетона 0,45 м3
  • Геометрический объем 0,7033 м3
Цена: 24008 руб.
Подробнее
БСП 6-1-10 АVМ (1.462.1-10/89)
Балки стропильные Серия 1.462.1-10/89
  • Длина 5960 мм.
  • Ширина 200 мм.
  • Высота 590 мм.
  • Вес 1150 кг.
  • Объем бетона 0,45 м3
  • Геометрический объем 0,7033 м3
Цена: 24008 руб.
Подробнее
БСП 6-1-2 (1.462.1-10/89)
Балки стропильные Серия 1.462.1-10/89
  • Длина 5960 мм.
  • Ширина 200 мм.
  • Высота 590 мм.
  • Вес 1150 кг.
  • Объем бетона 0,45 м3
  • Геометрический объем 0,7033 м3
Цена: 24008 руб.
Подробнее
БСП 6-1-10 АтVск (1.462.1-10/89)
Балки стропильные Серия 1.462.1-10/89
  • Длина 5960 мм.
  • Ширина 200 мм.
  • Высота 590 мм.
  • Вес 1150 кг.
  • Объем бетона 0,45 м3
  • Геометрический объем 0,7033 м3
Цена: 24008 руб.
Подробнее
БСП 6-1-2 АIIIв (1.462.1-10/89)
Балки стропильные Серия 1.462.1-10/89
  • Длина 5960 мм.
  • Ширина 200 мм.
  • Высота 590 мм.
  • Вес 1150 кг.
  • Объем бетона 0,45 м3
  • Геометрический объем 0,7033 м3
Цена: 24008 руб.
Подробнее
БСП 6-1-2 АIII (1.462.1-10/89)
Балки стропильные Серия 1.462.1-10/89
  • Длина 5960 мм.
  • Ширина 200 мм.
  • Высота 590 мм.
  • Вес 1150 кг.
  • Объем бетона 0,45 м3
  • Геометрический объем 0,7033 м3
Цена: 24008 руб.
Подробнее
БСП 6-1-2 АIV (1.462.1-10/89)
Балки стропильные Серия 1.462.1-10/89
  • Длина 5960 мм.
  • Ширина 200 мм.
  • Высота 590 мм.
  • Вес 1150 кг.
  • Объем бетона 0,45 м3
  • Геометрический объем 0,7033 м3
Цена: 24008 руб.
Подробнее
БСП 6-1-2 АV (1.462.1-10/89)
Балки стропильные Серия 1.462.1-10/89
  • Длина 5960 мм.
  • Ширина 200 мм.
  • Высота 590 мм.
  • Вес 1150 кг.
  • Объем бетона 0,45 м3
  • Геометрический объем 0,7033 м3
Цена: 24008 руб.
Подробнее
БСП 6-1-3 (1.462.1-10/89)
Балки стропильные Серия 1.462.1-10/89
  • Длина 5960 мм.
  • Ширина 200 мм.
  • Высота 590 мм.
  • Вес 1150 кг.
  • Объем бетона 0,45 м3
  • Геометрический объем 0,7033 м3
Цена: 24008 руб.
Подробнее
БСП 6-1-2 АVМ (1.462.1-10/89)
Балки стропильные Серия 1.462.1-10/89
  • Длина 5960 мм.
  • Ширина 200 мм.
  • Высота 590 мм.
  • Вес 1150 кг.
  • Объем бетона 0,45 м3
  • Геометрический объем 0,7033 м3
Цена: 24008 руб.
Подробнее
БСП 6-1-3 АIII (1.462.1-10/89)
Балки стропильные Серия 1.462.1-10/89
  • Длина 5960 мм.
  • Ширина 200 мм.
  • Высота 590 мм.
  • Вес 1150 кг.
  • Объем бетона 0,45 м3
  • Геометрический объем 0,7033 м3
Цена: 24008 руб.
Подробнее
БСП 6-1-3 АIV (1.462.1-10/89)
Балки стропильные Серия 1.462.1-10/89
  • Длина 5960 мм.
  • Ширина 200 мм.
  • Высота 590 мм.
  • Вес 1150 кг.
  • Объем бетона 0,45 м3
  • Геометрический объем 0,7033 м3
Цена: 24008 руб.
Подробнее
БСП 6-1-3 АVМ (1.462.1-10/89)
Балки стропильные Серия 1.462.1-10/89
  • Длина 5960 мм.
  • Ширина 200 мм.
  • Высота 590 мм.
  • Вес 1150 кг.
  • Объем бетона 0,45 м3
  • Геометрический объем 0,7033 м3
Цена: 24008 руб.
Подробнее
БСП 6-1-3 АтVск (1.462.1-10/89)
Балки стропильные Серия 1.462.1-10/89
  • Длина 5960 мм.
  • Ширина 200 мм.
  • Высота 590 мм.
  • Вес 1150 кг.
  • Объем бетона 0,45 м3
  • Геометрический объем 0,7033 м3
Цена: 24008 руб.
Подробнее
БСП 6-1-4 АIII (1.462.1-10/89)
Балки стропильные Серия 1.462.1-10/89
  • Длина 5960 мм.
  • Ширина 200 мм.
  • Высота 590 мм.
  • Вес 1150 кг.
  • Объем бетона 0,45 м3
  • Геометрический объем 0,7033 м3
Цена: 24008 руб.
Подробнее
БСП 6-1-4 АIIIв (1.462.1-10/89)
Балки стропильные Серия 1.462.1-10/89
  • Длина 5960 мм.
  • Ширина 200 мм.
  • Высота 590 мм.
  • Вес 1150 кг.
  • Объем бетона 0,45 м3
  • Геометрический объем 0,7033 м3
Цена: 24008 руб.
Подробнее
БСП 6-1-4 АIV (1.462.1-10/89)
Балки стропильные Серия 1.462.1-10/89
  • Длина 5960 мм.
  • Ширина 200 мм.
  • Высота 590 мм.
  • Вес 1150 кг.
  • Объем бетона 0,45 м3
  • Геометрический объем 0,7033 м3
Цена: 24008 руб.
Подробнее
БСП 6-1-4 АVМ (1.462.1-10/89)
Балки стропильные Серия 1.462.1-10/89
  • Длина 5960 мм.
  • Ширина 200 мм.
  • Высота 590 мм.
  • Вес 1150 кг.
  • Объем бетона 0,45 м3
  • Геометрический объем 0,7033 м3
Цена: 24008 руб.
Подробнее
БСП 6-1-5 (1.462.1-10/89)
Балки стропильные Серия 1.462.1-10/89
  • Длина 5960 мм.
  • Ширина 200 мм.
  • Высота 590 мм.
  • Вес 1150 кг.
  • Объем бетона 0,45 м3
  • Геометрический объем 0,7033 м3
Цена: 24008 руб.
Подробнее
БСП 6-1-5 АIII (1.462.1-10/89)
Балки стропильные Серия 1.462.1-10/89
  • Длина 5960 мм.
  • Ширина 200 мм.
  • Высота 590 мм.
  • Вес 1150 кг.
  • Объем бетона 0,45 м3
  • Геометрический объем 0,7033 м3
Цена: 24008 руб.
Подробнее
БСП 6-1-5 АV (1.462.1-10/89)
Балки стропильные Серия 1.462.1-10/89
  • Длина 5960 мм.
  • Ширина 200 мм.
  • Высота 590 мм.
  • Вес 1150 кг.
  • Объем бетона 0,45 м3
  • Геометрический объем 0,7033 м3
Цена: 24008 руб.
Подробнее
БСП 6-1-5 АVМ (1.462.1-10/89)
Балки стропильные Серия 1.462.1-10/89
  • Длина 5960 мм.
  • Ширина 200 мм.
  • Высота 590 мм.
  • Вес 1150 кг.
  • Объем бетона 0,45 м3
  • Геометрический объем 0,7033 м3
Цена: 24008 руб.
Подробнее
БСП 6-1-6 (1.462.1-10/89)
Балки стропильные Серия 1.462.1-10/89
  • Длина 5960 мм.
  • Ширина 200 мм.
  • Высота 590 мм.
  • Вес 1150 кг.
  • Объем бетона 0,45 м3
  • Геометрический объем 0,7033 м3
Цена: 24008 руб.
Подробнее
БСП 6-1-6 АIII (1.462.1-10/89)
Балки стропильные Серия 1.462.1-10/89
  • Длина 5960 мм.
  • Ширина 200 мм.
  • Высота 590 мм.
  • Вес 1150 кг.
  • Объем бетона 0,45 м3
  • Геометрический объем 0,7033 м3
Цена: 24008 руб.
Подробнее
БСП 6-1-6 АIIIв (1.462.1-10/89)
Балки стропильные Серия 1.462.1-10/89
  • Длина 5960 мм.
  • Ширина 200 мм.
  • Высота 590 мм.
  • Вес 1150 кг.
  • Объем бетона 0,45 м3
  • Геометрический объем 0,7033 м3
Цена: 24008 руб.
Подробнее
БСП 6-1-6 АтVск (1.462.1-10/89)
Балки стропильные Серия 1.462.1-10/89
  • Длина 5960 мм.
  • Ширина 200 мм.
  • Высота 590 мм.
  • Вес 1150 кг.
  • Объем бетона 0,45 м3
  • Геометрический объем 0,7033 м3
Цена: 24008 руб.
Подробнее
БСП 6-1-6 АV (1.462.1-10/89)
Балки стропильные Серия 1.462.1-10/89
  • Длина 5960 мм.
  • Ширина 200 мм.
  • Высота 590 мм.
  • Вес 1150 кг.
  • Объем бетона 0,45 м3
  • Геометрический объем 0,7033 м3
Цена: 24008 руб.
Подробнее
БСП 6-1-6 АVМ (1.462.1-10/89)
Балки стропильные Серия 1.462.1-10/89
  • Длина 5960 мм.
  • Ширина 200 мм.
  • Высота 590 мм.
  • Вес 1150 кг.
  • Объем бетона 0,45 м3
  • Геометрический объем 0,7033 м3
Цена: 24008 руб.
Подробнее
БСП 6-1-7 (1.462.1-10/89)
Балки стропильные Серия 1.462.1-10/89
  • Длина 5960 мм.
  • Ширина 200 мм.
  • Высота 590 мм.
  • Вес 1150 кг.
  • Объем бетона 0,45 м3
  • Геометрический объем 0,7033 м3
Цена: 24008 руб.
Подробнее
БСП 6-1-7 АIII (1.462.1-10/89)
Балки стропильные Серия 1.462.1-10/89
  • Длина 5960 мм.
  • Ширина 200 мм.
  • Высота 590 мм.
  • Вес 1150 кг.
  • Объем бетона 0,45 м3
  • Геометрический объем 0,7033 м3
Цена: 24008 руб.
Подробнее
БСП 6-1-7 АIV (1.462.1-10/89)
Балки стропильные Серия 1.462.1-10/89
  • Длина 5960 мм.
  • Ширина 200 мм.
  • Высота 590 мм.
  • Вес 1150 кг.
  • Объем бетона 0,45 м3
  • Геометрический объем 0,7033 м3
Цена: 24008 руб.
Подробнее
БСП 6-1-8 (1.462.1-10/89)
Балки стропильные Серия 1.462.1-10/89
  • Длина 5960 мм.
  • Ширина 200 мм.
  • Высота 590 мм.
  • Вес 1150 кг.
  • Объем бетона 0,45 м3
  • Геометрический объем 0,7033 м3
Цена: 24008 руб.
Подробнее
БСП 6-1-7 АVМ (1.462.1-10/89)
Балки стропильные Серия 1.462.1-10/89
  • Длина 5960 мм.
  • Ширина 200 мм.
  • Высота 590 мм.
  • Вес 1150 кг.
  • Объем бетона 0,45 м3
  • Геометрический объем 0,7033 м3
Цена: 24008 руб.
Подробнее
БСП 6-1-7 АтVск (1.462.1-10/89)
Балки стропильные Серия 1.462.1-10/89
  • Длина 5960 мм.
  • Ширина 200 мм.
  • Высота 590 мм.
  • Вес 1150 кг.
  • Объем бетона 0,45 м3
  • Геометрический объем 0,7033 м3
Цена: 24008 руб.
Подробнее
БСП 6-1-8 АIIIв (1.462.1-10/89)
Балки стропильные Серия 1.462.1-10/89
  • Длина 5960 мм.
  • Ширина 200 мм.
  • Высота 590 мм.
  • Вес 1150 кг.
  • Объем бетона 0,45 м3
  • Геометрический объем 0,7033 м3
Цена: 24008 руб.
Подробнее
БСП 6-1-8 АIII (1.462.1-10/89)
Балки стропильные Серия 1.462.1-10/89
  • Длина 5960 мм.
  • Ширина 200 мм.
  • Высота 590 мм.
  • Вес 1150 кг.
  • Объем бетона 0,45 м3
  • Геометрический объем 0,7033 м3
Цена: 24008 руб.
Подробнее
БСП 6-1-8 АIV (1.462.1-10/89)
Балки стропильные Серия 1.462.1-10/89
  • Длина 5960 мм.
  • Ширина 200 мм.
  • Высота 590 мм.
  • Вес 1150 кг.
  • Объем бетона 0,45 м3
  • Геометрический объем 0,7033 м3
Цена: 24008 руб.
Подробнее
БСП 6-1-8 АVМ (1.462.1-10/89)
Балки стропильные Серия 1.462.1-10/89
  • Длина 5960 мм.
  • Ширина 200 мм.
  • Высота 590 мм.
  • Вес 1150 кг.
  • Объем бетона 0,45 м3
  • Геометрический объем 0,7033 м3
Цена: 24008 руб.
Подробнее
БСП 6-1-9 АIII (1.462.1-10/89)
Балки стропильные Серия 1.462.1-10/89
  • Длина 5960 мм.
  • Ширина 200 мм.
  • Высота 590 мм.
  • Вес 1150 кг.
  • Объем бетона 0,45 м3
  • Геометрический объем 0,7033 м3
Цена: 24008 руб.
Подробнее
БСП 6-1-8 АV (1.462.1-10/89)
Балки стропильные Серия 1.462.1-10/89
  • Длина 5960 мм.
  • Ширина 200 мм.
  • Высота 590 мм.
  • Вес 1150 кг.
  • Объем бетона 0,45 м3
  • Геометрический объем 0,7033 м3
Цена: 24008 руб.
Подробнее
БСП 6-1-9 АIIIв (1.462.1-10/89)
Балки стропильные Серия 1.462.1-10/89
  • Длина 5960 мм.
  • Ширина 200 мм.
  • Высота 590 мм.
  • Вес 1150 кг.
  • Объем бетона 0,45 м3
  • Геометрический объем 0,7033 м3
Цена: 24008 руб.
Подробнее
БСП 6-1-9 АIV (1.462.1-10/89)
Балки стропильные Серия 1.462.1-10/89
  • Длина 5960 мм.
  • Ширина 200 мм.
  • Высота 590 мм.
  • Вес 1150 кг.
  • Объем бетона 0,45 м3
  • Геометрический объем 0,7033 м3
Цена: 24008 руб.
Подробнее
БСП 6-1-9 АV (1.462.1-10/89)
Балки стропильные Серия 1.462.1-10/89
  • Длина 5960 мм.
  • Ширина 200 мм.
  • Высота 590 мм.
  • Вес 1150 кг.
  • Объем бетона 0,45 м3
  • Геометрический объем 0,7033 м3
Цена: 24008 руб.
Подробнее
БСП 9-2-1 АIII (1.462.1-10/89)
Балки стропильные Серия 1.462.1-10/89
  • Длина 8960 мм.
  • Ширина 220 мм.
  • Высота 890 мм.
  • Вес 2750 кг.
  • Объем бетона 1,1 м3
  • Геометрический объем 1,7544 м3
Цена: 58685 руб.
Подробнее
БСП 6-1-9 АVМ (1.462.1-10/89)
Балки стропильные Серия 1.462.1-10/89
  • Длина 5960 мм.
  • Ширина 200 мм.
  • Высота 590 мм.
  • Вес 1150 кг.
  • Объем бетона 0,45 м3
  • Геометрический объем 0,7033 м3
Цена: 24008 руб.
Подробнее
БСП 6-1-9 АтVск (1.462.1-10/89)
Балки стропильные Серия 1.462.1-10/89
  • Длина 5960 мм.
  • Ширина 200 мм.
  • Высота 590 мм.
  • Вес 1150 кг.
  • Объем бетона 0,45 м3
  • Геометрический объем 0,7033 м3
Цена: 24008 руб.
Подробнее
БСП 9-2-1 АIIIв (1.462.1-10/89)
Балки стропильные Серия 1.462.1-10/89
  • Длина 8960 мм.
  • Ширина 220 мм.
  • Высота 890 мм.
  • Вес 2750 кг.
  • Объем бетона 1,1 м3
  • Геометрический объем 1,7544 м3
Цена: 58685 руб.
Подробнее
БСП 9-2-1 (1.462.1-10/89)
Балки стропильные Серия 1.462.1-10/89
  • Длина 8960 мм.
  • Ширина 220 мм.
  • Высота 890 мм.
  • Вес 2750 кг.
  • Объем бетона 1,1 м3
  • Геометрический объем 1,7544 м3
Цена: 58685 руб.
Подробнее
БСП 9-2-1 АIV (1.462.1-10/89)
Балки стропильные Серия 1.462.1-10/89
  • Длина 8960 мм.
  • Ширина 220 мм.
  • Высота 890 мм.
  • Вес 2750 кг.
  • Объем бетона 1,1 м3
  • Геометрический объем 1,7544 м3
Цена: 58685 руб.
Подробнее
БСП 9-2-1 АV (1.462.1-10/89)
Балки стропильные Серия 1.462.1-10/89
  • Длина 8960 мм.
  • Ширина 220 мм.
  • Высота 890 мм.
  • Вес 2750 кг.
  • Объем бетона 1,1 м3
  • Геометрический объем 1,7544 м3
Цена: 58685 руб.
Подробнее
БСП 9-2-1 АтVск (1.462.1-10/89)
Балки стропильные Серия 1.462.1-10/89
  • Длина 8960 мм.
  • Ширина 220 мм.
  • Высота 890 мм.
  • Вес 2750 кг.
  • Объем бетона 1,1 м3
  • Геометрический объем 1,7544 м3
Цена: 58685 руб.
Подробнее

Уведомление о файлах cookie

Мы используем файлы cookie для улучшения вашего опыта просмотра и анализа трафика. Нажимая "Принять все", вы соглашаетесь с нашей политикой конфиденциальности и политикой обработки файлов cookie.

MAX Дзен Телеграм Вконтакте vk