mobile_sound +7 (930) 655-55-90

Типовые конструкции и железобетонные изделия. Рабочие чертежи (Серия 1.432-9)

Поделиться:
Поделиться:

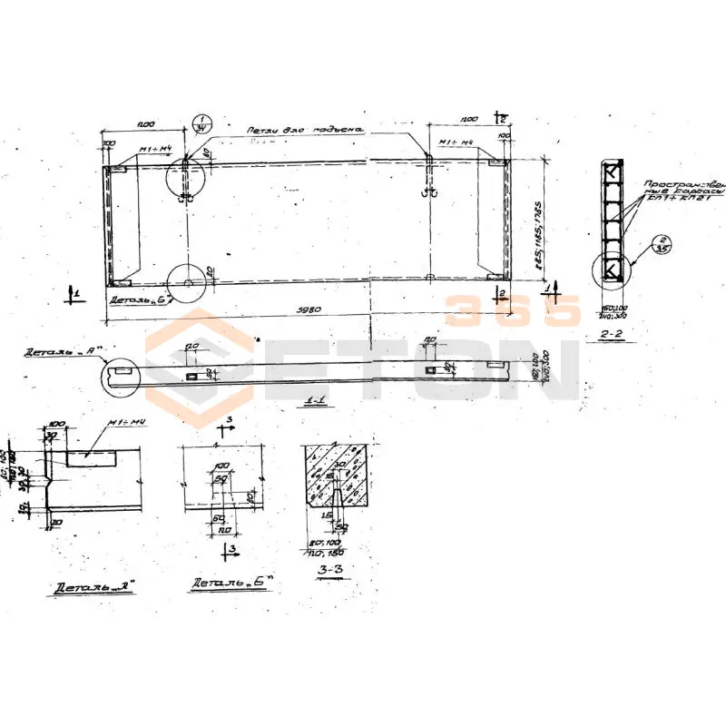
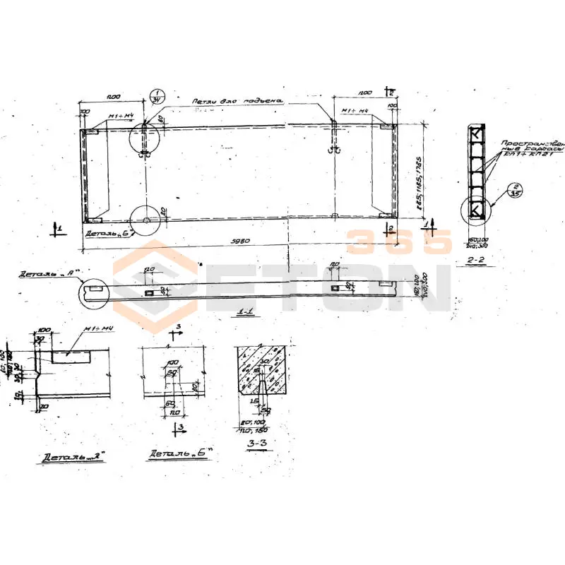
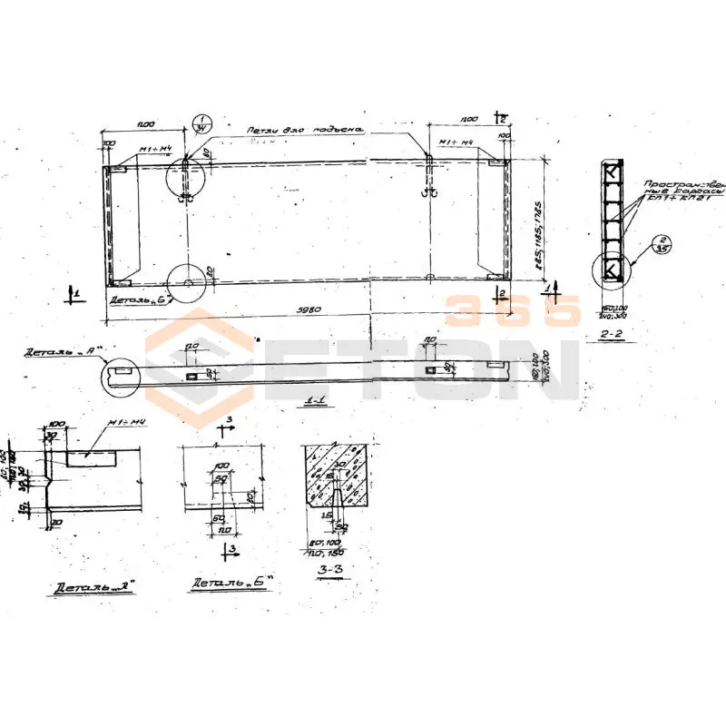
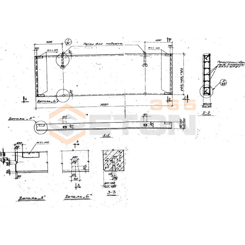
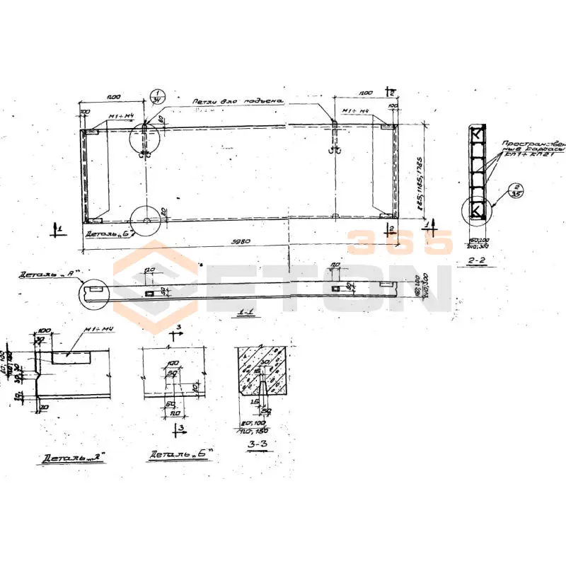
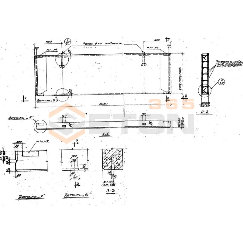
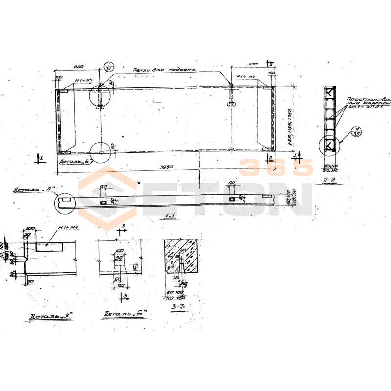
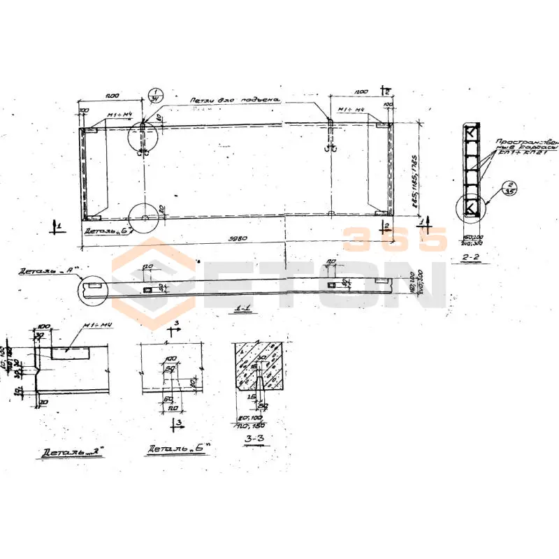
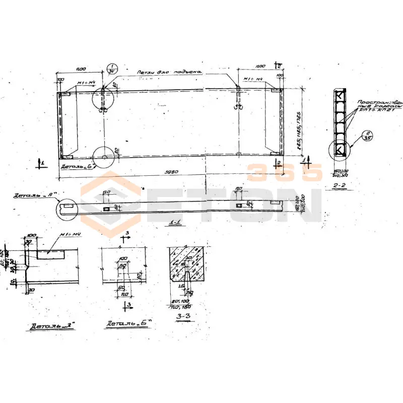
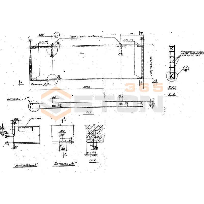
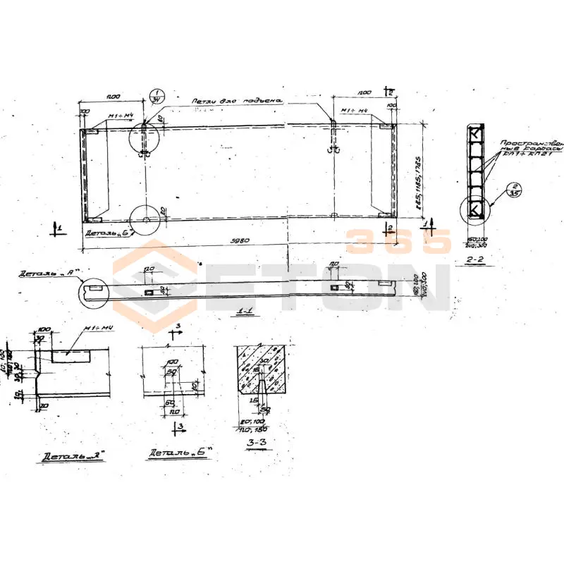
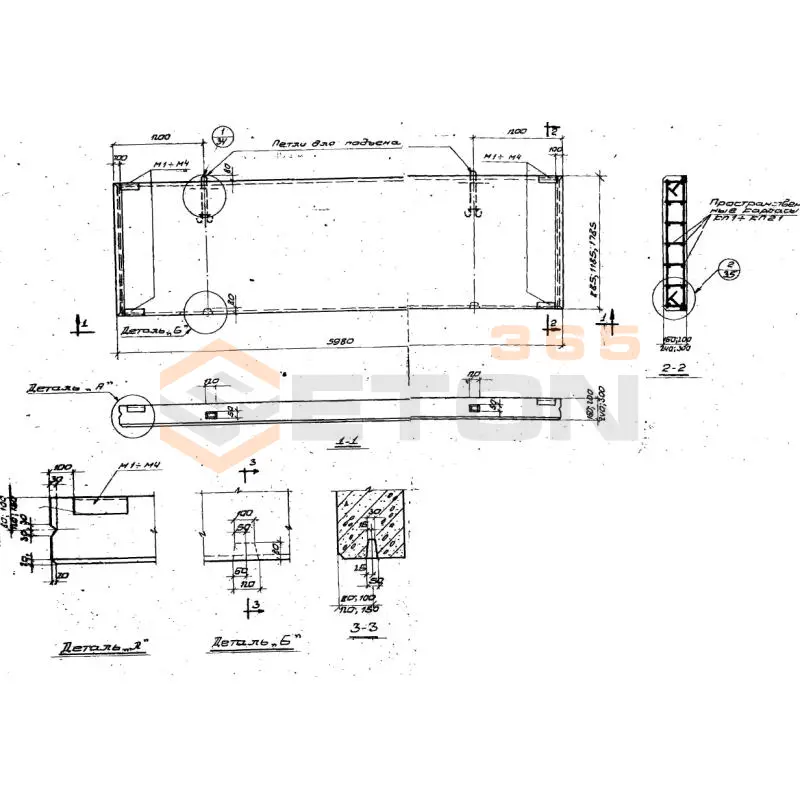
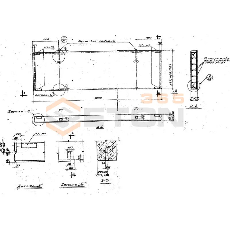
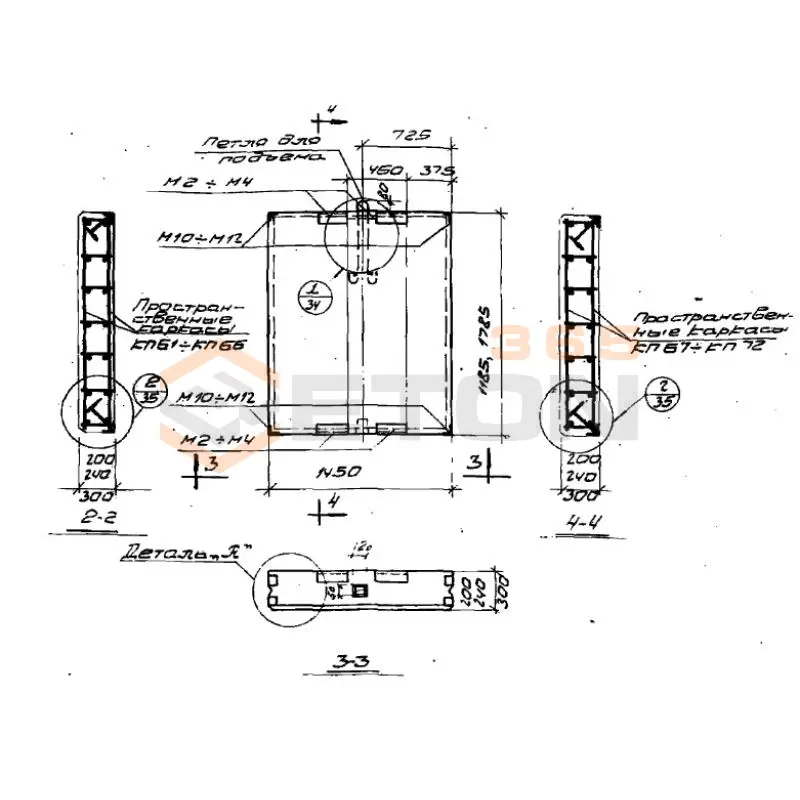
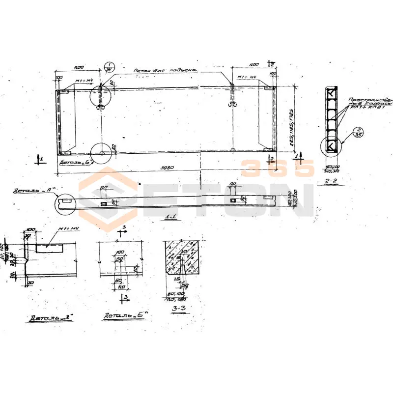
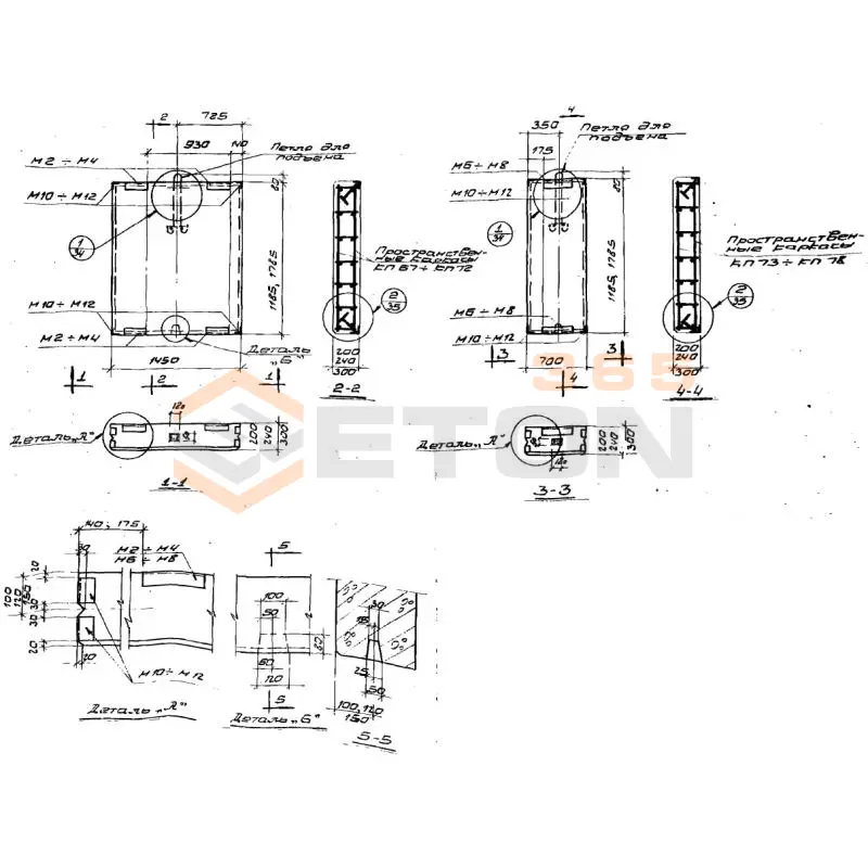
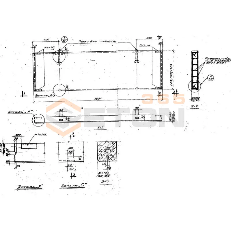
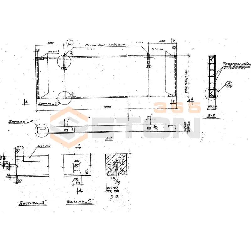
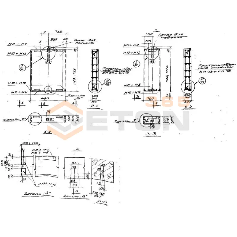
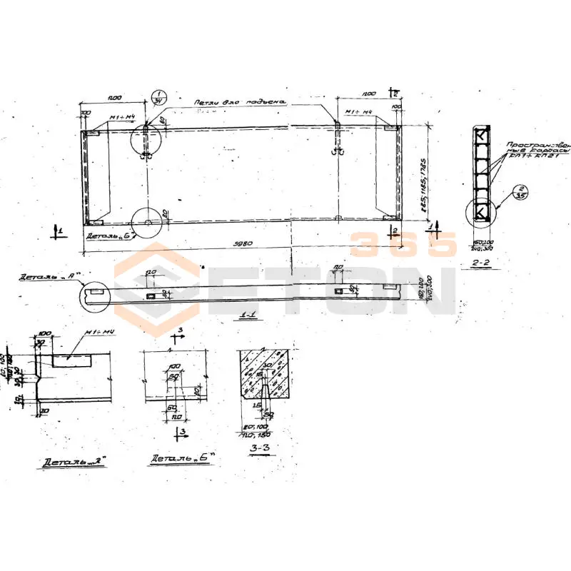
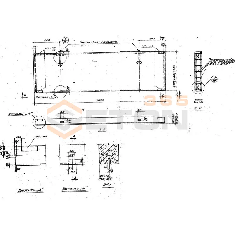
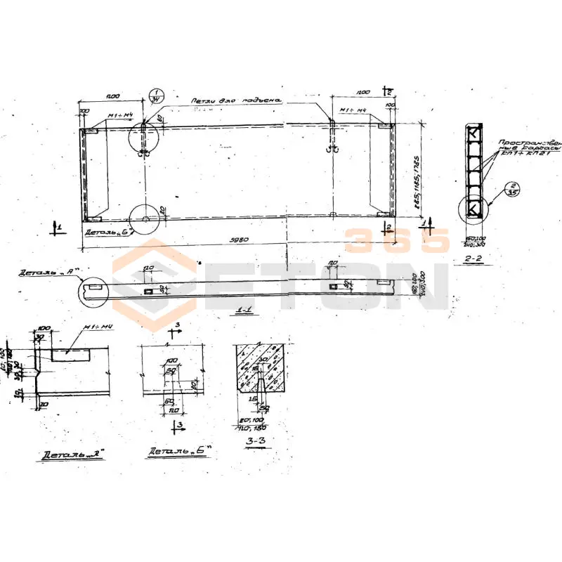
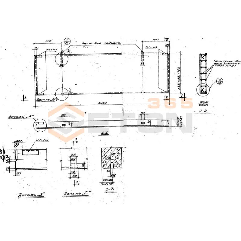
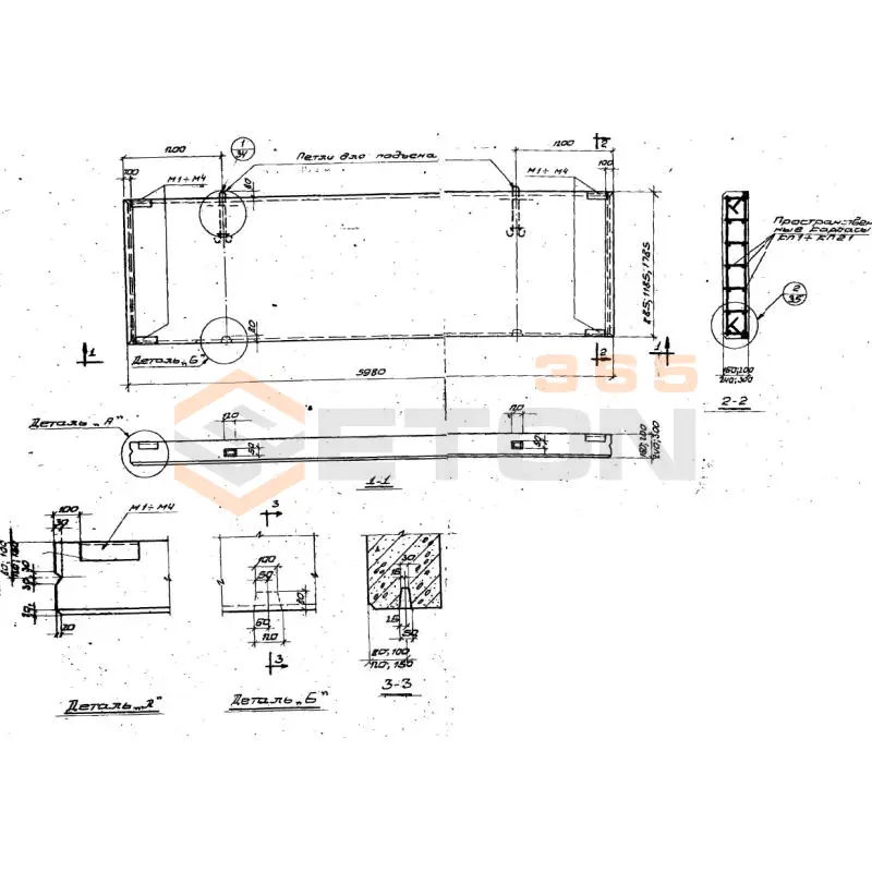
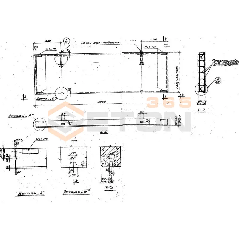
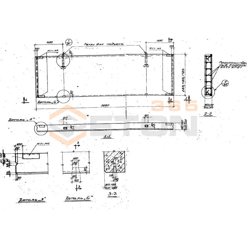
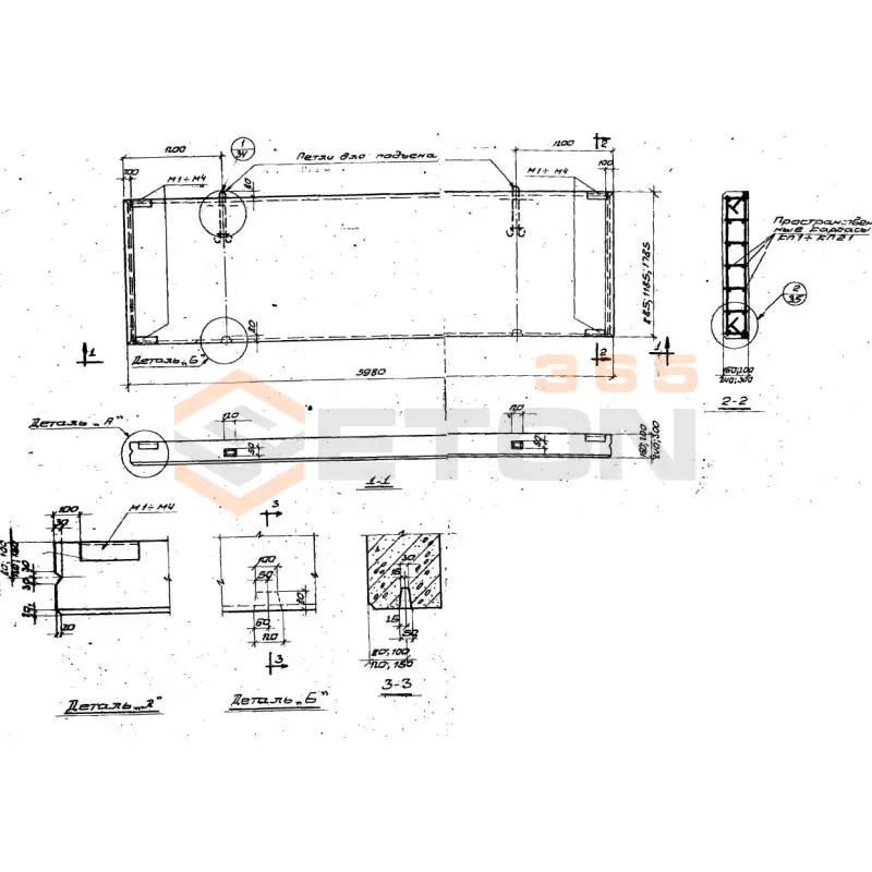
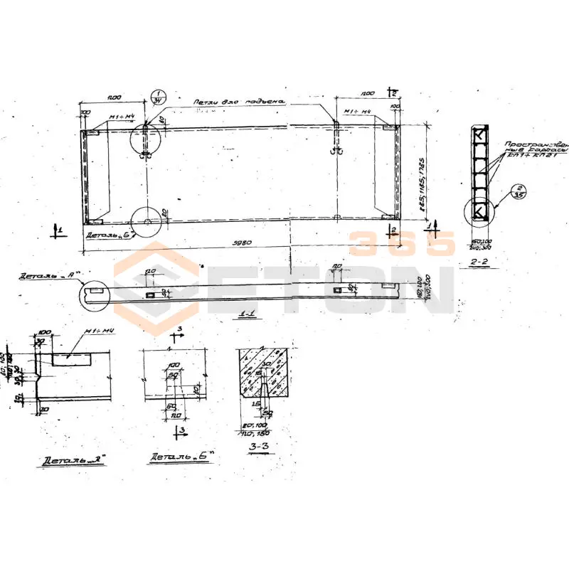
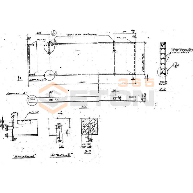
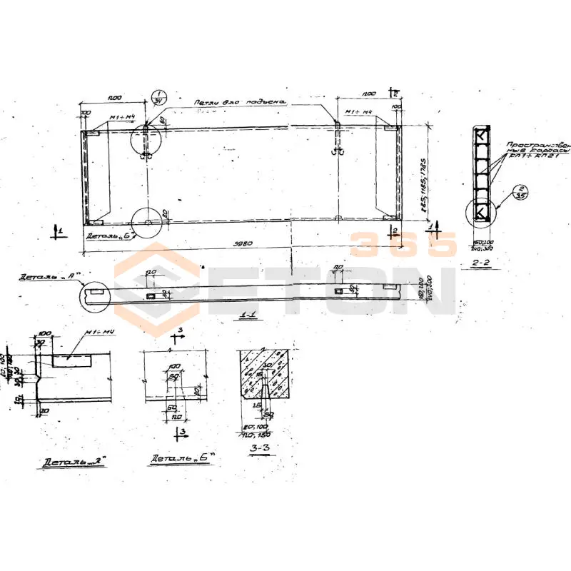
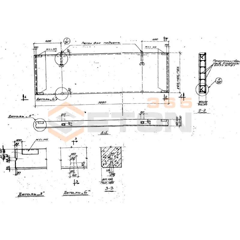
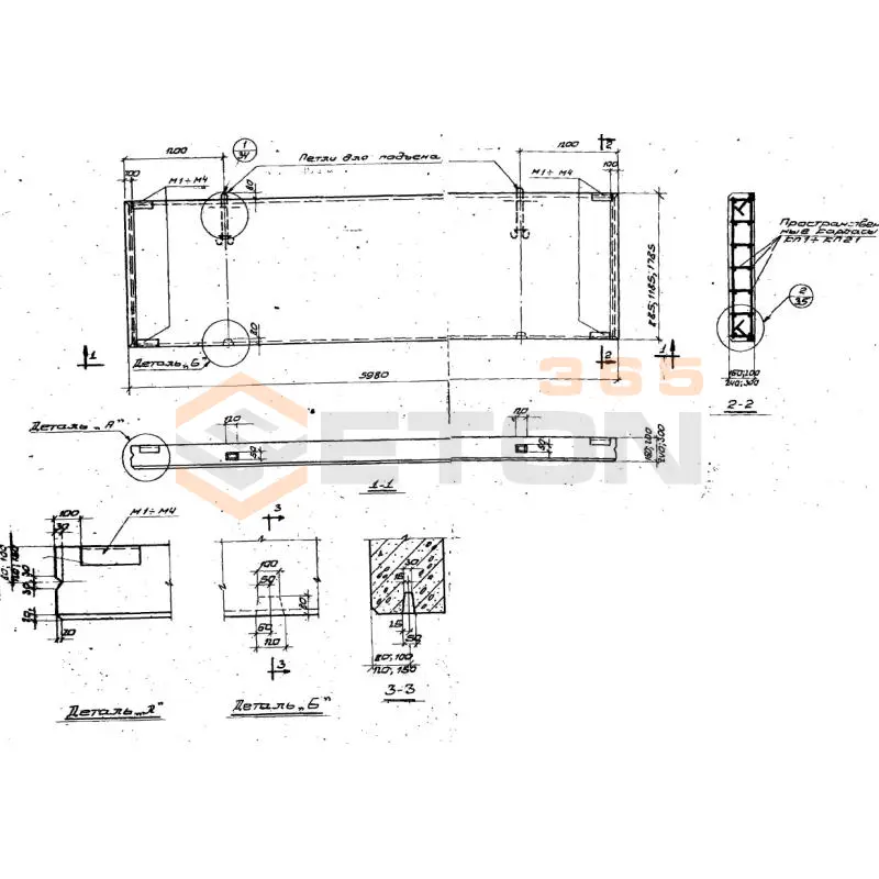
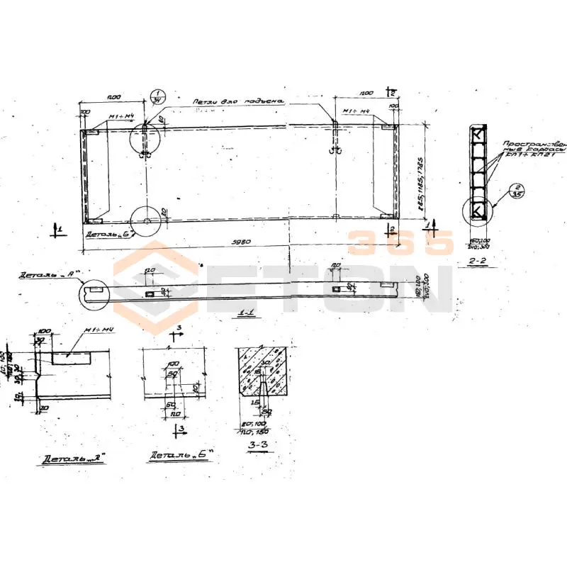
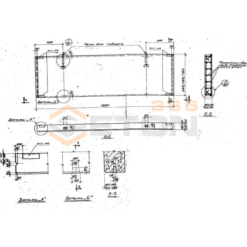
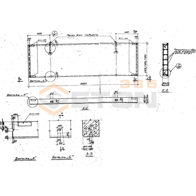
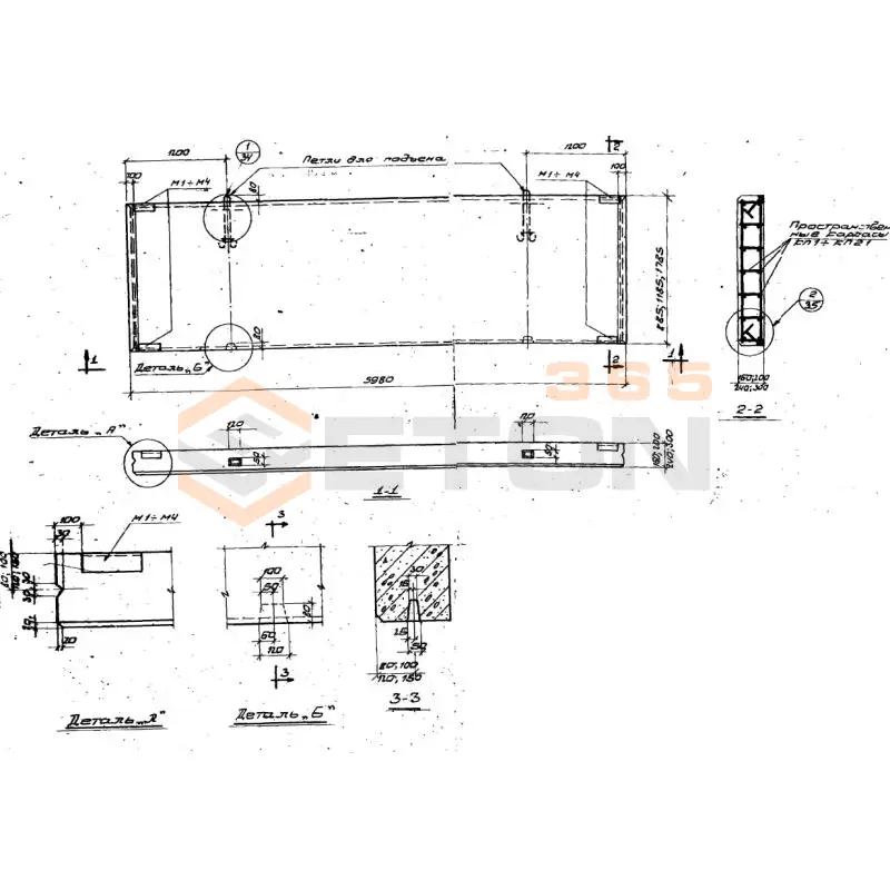
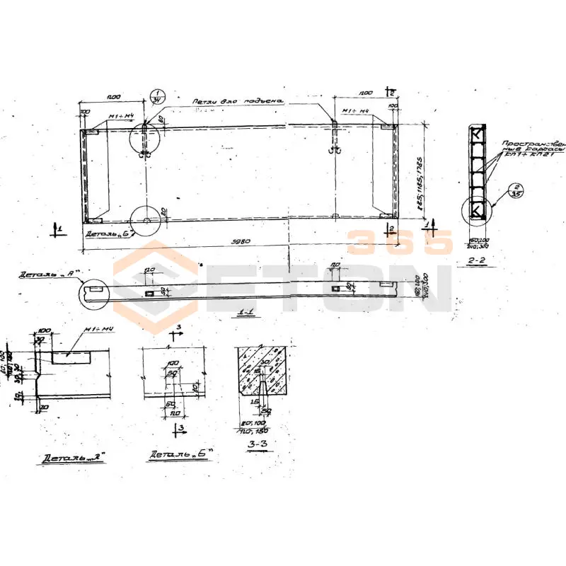
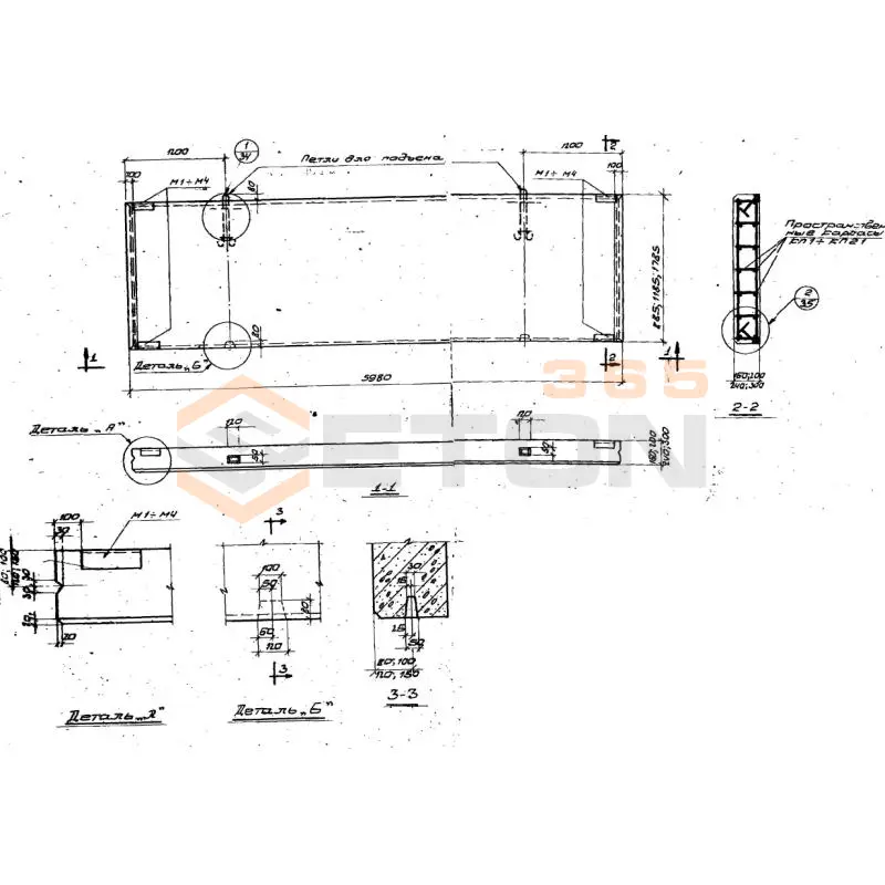
Документ Серия 1.432-9 описывает область применения, номенклатуру и ключевые требования, опираясь на действующие нормы и практику проектирования. Институтом ЦНИИпромзданий при поддержке НИИЖБ, а также совместно с НИИСФ в 1974 году был разработан и введён в действие после утверждения Госстроем СССР нормативный документ Серия 1.432-9. Регламент освещает подробную инструкцию по производству однослойных шлакопемзобетонных стеновых панелей, используемых при строительстве производственных сооружений, имеющих шаг колонн равный 6 метрам. Применение лёгкого бетона в значительной степени уменьшает общую массу конструкции, что влияет на скорость монтажа и упрощение погрузочно-разгрузочных работ.

Файлы для скачивания:
picture_as_pdf

6049.pdf

2,179.7 KB

скачать
Товары Серия 1.432-9 (60)
ПСЛ 24-0,9-6-621 (1.432-9)
Панели стеновые Серия 1.432-9
  • Длина 5980 мм.
  • Ширина 240 мм.
  • Высота 885 мм.
  • Вес 2250 кг.
  • Объем бетона 1,27 м3
  • Геометрический объем 1,2702 м3
Цена: 43117 руб.
Подробнее
ПСЛ 24-0,9-6-521 (1.432-9)
Панели стеновые Серия 1.432-9
  • Длина 5980 мм.
  • Ширина 240 мм.
  • Высота 885 мм.
  • Вес 2250 кг.
  • Объем бетона 1,27 м3
  • Геометрический объем 1,2702 м3
Цена: 43117 руб.
Подробнее
ПСЛ 24-1,2-0,75-022 (1.432-9)
Панели стеновые Серия 1.432-9
  • Длина 700 мм.
  • Ширина 240 мм.
  • Высота 1185 мм.
  • Вес 380 кг.
  • Объем бетона 0,21 м3
  • Геометрический объем 0,1991 м3
Цена: 7130 руб.
Подробнее
ПСЛ 24-1,2-1,5-021 (1.432-9)
Панели стеновые Серия 1.432-9
  • Длина 1450 мм.
  • Ширина 240 мм.
  • Высота 1185 мм.
  • Вес 750 кг.
  • Объем бетона 0,42 м3
  • Геометрический объем 0,4124 м3
Цена: 14259 руб.
Подробнее
ПСЛ 24-0,9-6-721 (1.432-9)
Панели стеновые Серия 1.432-9
  • Длина 5980 мм.
  • Ширина 240 мм.
  • Высота 885 мм.
  • Вес 2250 кг.
  • Объем бетона 1,27 м3
  • Геометрический объем 1,2702 м3
Цена: 43117 руб.
Подробнее
ПСЛ 24-1,2-3-021 (1.432-9)
Панели стеновые Серия 1.432-9
  • Длина 2950 мм.
  • Ширина 240 мм.
  • Высота 1185 мм.
  • Вес 1510 кг.
  • Объем бетона 0,84 м3
  • Геометрический объем 0,839 м3
Цена: 28518 руб.
Подробнее
ПСЛ 24-1,2-1,5-022 (1.432-9)
Панели стеновые Серия 1.432-9
  • Длина 1450 мм.
  • Ширина 240 мм.
  • Высота 1185 мм.
  • Вес 750 кг.
  • Объем бетона 0,42 м3
  • Геометрический объем 0,4124 м3
Цена: 14259 руб.
Подробнее
ПСЛ 24-1,2-3-121 (1.432-9)
Панели стеновые Серия 1.432-9
  • Длина 2950 мм.
  • Ширина 240 мм.
  • Высота 1185 мм.
  • Вес 1510 кг.
  • Объем бетона 0,84 м3
  • Геометрический объем 0,839 м3
Цена: 28518 руб.
Подробнее
ПСЛ 24-1,2-3-122 (1.432-9)
Панели стеновые Серия 1.432-9
  • Длина 2950 мм.
  • Ширина 240 мм.
  • Высота 1185 мм.
  • Вес 1510 кг.
  • Объем бетона 0,84 м3
  • Геометрический объем 0,839 м3
Цена: 28518 руб.
Подробнее
ПСЛ 24-1,2-3-221 (1.432-9)
Панели стеновые Серия 1.432-9
  • Длина 2950 мм.
  • Ширина 240 мм.
  • Высота 1185 мм.
  • Вес 1510 кг.
  • Объем бетона 0,84 м3
  • Геометрический объем 0,839 м3
Цена: 28518 руб.
Подробнее
ПСЛ 24-1,2-3-222 (1.432-9)
Панели стеновые Серия 1.432-9
  • Длина 2950 мм.
  • Ширина 240 мм.
  • Высота 1185 мм.
  • Вес 1510 кг.
  • Объем бетона 0,84 м3
  • Геометрический объем 0,839 м3
Цена: 28518 руб.
Подробнее
ПСЛ 24-1,2-6-121 (1.432-9)
Панели стеновые Серия 1.432-9
  • Длина 5980 мм.
  • Ширина 240 мм.
  • Высота 1185 мм.
  • Вес 3010 кг.
  • Объем бетона 1,7 м3
  • Геометрический объем 1,7007 м3
Цена: 57715 руб.
Подробнее
ПСЛ 24-1,2-6-211 (1.432-9)
Панели стеновые Серия 1.432-9
  • Длина 5980 мм.
  • Ширина 240 мм.
  • Высота 1185 мм.
  • Вес 3010 кг.
  • Объем бетона 1,7 м3
  • Геометрический объем 1,7007 м3
Цена: 57715 руб.
Подробнее
ПСЛ 24-1,2-6-212 (1.432-9)
Панели стеновые Серия 1.432-9
  • Длина 5980 мм.
  • Ширина 240 мм.
  • Высота 1185 мм.
  • Вес 3010 кг.
  • Объем бетона 1,7 м3
  • Геометрический объем 1,7007 м3
Цена: 57715 руб.
Подробнее
ПСЛ 24-1,2-6-122 (1.432-9)
Панели стеновые Серия 1.432-9
  • Длина 5980 мм.
  • Ширина 240 мм.
  • Высота 1185 мм.
  • Вес 3010 кг.
  • Объем бетона 1,7 м3
  • Геометрический объем 1,7007 м3
Цена: 57715 руб.
Подробнее
ПСЛ 24-1,2-6-221 (1.432-9)
Панели стеновые Серия 1.432-9
  • Длина 5980 мм.
  • Ширина 240 мм.
  • Высота 1185 мм.
  • Вес 3010 кг.
  • Объем бетона 1,7 м3
  • Геометрический объем 1,7007 м3
Цена: 57715 руб.
Подробнее
ПСЛ 24-1,2-6-311 (1.432-9)
Панели стеновые Серия 1.432-9
  • Длина 5980 мм.
  • Ширина 240 мм.
  • Высота 1185 мм.
  • Вес 3010 кг.
  • Объем бетона 1,7 м3
  • Геометрический объем 1,7007 м3
Цена: 57715 руб.
Подробнее
ПСЛ 24-1,2-6-222 (1.432-9)
Панели стеновые Серия 1.432-9
  • Длина 5980 мм.
  • Ширина 240 мм.
  • Высота 1185 мм.
  • Вес 3010 кг.
  • Объем бетона 1,7 м3
  • Геометрический объем 1,7007 м3
Цена: 57715 руб.
Подробнее
ПСЛ 24-1,2-6-312 (1.432-9)
Панели стеновые Серия 1.432-9
  • Длина 5980 мм.
  • Ширина 240 мм.
  • Высота 1185 мм.
  • Вес 3010 кг.
  • Объем бетона 1,7 м3
  • Геометрический объем 1,7007 м3
Цена: 57715 руб.
Подробнее
ПСЛ 24-1,2-6-321 (1.432-9)
Панели стеновые Серия 1.432-9
  • Длина 5980 мм.
  • Ширина 240 мм.
  • Высота 1185 мм.
  • Вес 3010 кг.
  • Объем бетона 1,7 м3
  • Геометрический объем 1,7007 м3
Цена: 57715 руб.
Подробнее
ПСЛ 24-1,2-6-322 (1.432-9)
Панели стеновые Серия 1.432-9
  • Длина 5980 мм.
  • Ширина 240 мм.
  • Высота 1185 мм.
  • Вес 3010 кг.
  • Объем бетона 1,7 м3
  • Геометрический объем 1,7007 м3
Цена: 57715 руб.
Подробнее
ПСЛ 24-1,2-6-421 (1.432-9)
Панели стеновые Серия 1.432-9
  • Длина 5980 мм.
  • Ширина 240 мм.
  • Высота 1185 мм.
  • Вес 3010 кг.
  • Объем бетона 1,7 м3
  • Геометрический объем 1,7007 м3
Цена: 57715 руб.
Подробнее
ПСЛ 24-1,2-6-521 (1.432-9)
Панели стеновые Серия 1.432-9
  • Длина 5980 мм.
  • Ширина 240 мм.
  • Высота 1185 мм.
  • Вес 3010 кг.
  • Объем бетона 1,7 м3
  • Геометрический объем 1,7007 м3
Цена: 57715 руб.
Подробнее
ПСЛ 24-1,2-6-621 (1.432-9)
Панели стеновые Серия 1.432-9
  • Длина 5980 мм.
  • Ширина 240 мм.
  • Высота 1185 мм.
  • Вес 3010 кг.
  • Объем бетона 1,7 м3
  • Геометрический объем 1,7007 м3
Цена: 57715 руб.
Подробнее
ПСЛ 24-1,2-6-721 (1.432-9)
Панели стеновые Серия 1.432-9
  • Длина 5980 мм.
  • Ширина 240 мм.
  • Высота 1185 мм.
  • Вес 3010 кг.
  • Объем бетона 1,7 м3
  • Геометрический объем 1,7007 м3
Цена: 57715 руб.
Подробнее
ПСЛ 24-1,2-6-821 (1.432-9)
Панели стеновые Серия 1.432-9
  • Длина 5980 мм.
  • Ширина 240 мм.
  • Высота 1185 мм.
  • Вес 3010 кг.
  • Объем бетона 1,7 м3
  • Геометрический объем 1,7007 м3
Цена: 57715 руб.
Подробнее
ПСЛ 24-1,2-6-921 (1.432-9)
Панели стеновые Серия 1.432-9
  • Длина 5980 мм.
  • Ширина 240 мм.
  • Высота 1185 мм.
  • Вес 3010 кг.
  • Объем бетона 1,7 м3
  • Геометрический объем 1,7007 м3
Цена: 57715 руб.
Подробнее
ПСЛ 24-1,5-6-421 (1.432-9)
Панели стеновые Серия 1.432-9
  • Длина 5980 мм.
  • Ширина 240 мм.
  • Высота 1485 мм.
  • Вес 3760 кг.
  • Объем бетона 2,15 м3
  • Геометрический объем 2,1313 м3
Цена: 72993 руб.
Подробнее
ПСЛ 24-1,5-6-521 (1.432-9)
Панели стеновые Серия 1.432-9
  • Длина 5980 мм.
  • Ширина 240 мм.
  • Высота 1485 мм.
  • Вес 3760 кг.
  • Объем бетона 2,15 м3
  • Геометрический объем 2,1313 м3
Цена: 72993 руб.
Подробнее
ПСЛ 24-1,5-6-621 (1.432-9)
Панели стеновые Серия 1.432-9
  • Длина 5980 мм.
  • Ширина 240 мм.
  • Высота 1485 мм.
  • Вес 3760 кг.
  • Объем бетона 2,15 м3
  • Геометрический объем 2,1313 м3
Цена: 72993 руб.
Подробнее
ПСЛ 24-1,8-0,75-022 (1.432-9)
Панели стеновые Серия 1.432-9
  • Длина 700 мм.
  • Ширина 240 мм.
  • Высота 1785 мм.
  • Вес 550 кг.
  • Объем бетона 0,32 м3
  • Геометрический объем 0,2999 м3
Цена: 10864 руб.
Подробнее
ПСЛ 24-1,8-1,5-021 (1.432-9)
Панели стеновые Серия 1.432-9
  • Длина 1450 мм.
  • Ширина 240 мм.
  • Высота 1785 мм.
  • Вес 1130 кг.
  • Объем бетона 0,65 м3
  • Геометрический объем 0,6212 м3
Цена: 22068 руб.
Подробнее
ПСЛ 24-1,8-1,5-022 (1.432-9)
Панели стеновые Серия 1.432-9
  • Длина 1450 мм.
  • Ширина 240 мм.
  • Высота 1785 мм.
  • Вес 1130 кг.
  • Объем бетона 0,65 м3
  • Геометрический объем 0,6212 м3
Цена: 22068 руб.
Подробнее
ПСЛ 24-1,8-3-021 (1.432-9)
Панели стеновые Серия 1.432-9
  • Длина 2950 мм.
  • Ширина 240 мм.
  • Высота 1780 мм.
  • Вес 2260 кг.
  • Объем бетона 1,26 м3
  • Геометрический объем 1,2602 м3
Цена: 42777 руб.
Подробнее
ПСЛ 24-1,8-3-121 (1.432-9)
Панели стеновые Серия 1.432-9
  • Длина 2950 мм.
  • Ширина 240 мм.
  • Высота 1780 мм.
  • Вес 2260 кг.
  • Объем бетона 1,26 м3
  • Геометрический объем 1,2602 м3
Цена: 42777 руб.
Подробнее
ПСЛ 24-1,8-3-122 (1.432-9)
Панели стеновые Серия 1.432-9
  • Длина 2950 мм.
  • Ширина 240 мм.
  • Высота 1780 мм.
  • Вес 2260 кг.
  • Объем бетона 1,26 м3
  • Геометрический объем 1,2602 м3
Цена: 42777 руб.
Подробнее
ПСЛ 24-1,8-3-221 (1.432-9)
Панели стеновые Серия 1.432-9
  • Длина 2950 мм.
  • Ширина 240 мм.
  • Высота 1780 мм.
  • Вес 2260 кг.
  • Объем бетона 1,26 м3
  • Геометрический объем 1,2602 м3
Цена: 42777 руб.
Подробнее
ПСЛ 24-1,8-3-222 (1.432-9)
Панели стеновые Серия 1.432-9
  • Длина 2950 мм.
  • Ширина 240 мм.
  • Высота 1780 мм.
  • Вес 2260 кг.
  • Объем бетона 1,26 м3
  • Геометрический объем 1,2602 м3
Цена: 42777 руб.
Подробнее
ПСЛ 24-1,8-6-121 (1.432-9)
Панели стеновые Серия 1.432-9
  • Длина 5980 мм.
  • Ширина 240 мм.
  • Высота 1785 мм.
  • Вес 2400 кг.
  • Объем бетона 2,56 м3
  • Геометрический объем 2,5618 м3
Цена: 86912 руб.
Подробнее
ПСЛ 24-1,8-6-122 (1.432-9)
Панели стеновые Серия 1.432-9
  • Длина 5980 мм.
  • Ширина 240 мм.
  • Высота 1785 мм.
  • Вес 2400 кг.
  • Объем бетона 2,56 м3
  • Геометрический объем 2,5618 м3
Цена: 86912 руб.
Подробнее
ПСЛ 24-1,8-6-211 (1.432-9)
Панели стеновые Серия 1.432-9
  • Длина 5980 мм.
  • Ширина 240 мм.
  • Высота 1785 мм.
  • Вес 2400 кг.
  • Объем бетона 2,56 м3
  • Геометрический объем 2,5618 м3
Цена: 86912 руб.
Подробнее
ПСЛ 24-1,8-6-212 (1.432-9)
Панели стеновые Серия 1.432-9
  • Длина 5980 мм.
  • Ширина 240 мм.
  • Высота 1785 мм.
  • Вес 2400 кг.
  • Объем бетона 2,56 м3
  • Геометрический объем 2,5618 м3
Цена: 86912 руб.
Подробнее
ПСЛ 24-1,8-6-222 (1.432-9)
Панели стеновые Серия 1.432-9
  • Длина 5980 мм.
  • Ширина 240 мм.
  • Высота 1785 мм.
  • Вес 2400 кг.
  • Объем бетона 2,56 м3
  • Геометрический объем 2,5618 м3
Цена: 86912 руб.
Подробнее
ПСЛ 24-1,8-6-221 (1.432-9)
Панели стеновые Серия 1.432-9
  • Длина 5980 мм.
  • Ширина 240 мм.
  • Высота 1785 мм.
  • Вес 2400 кг.
  • Объем бетона 2,56 м3
  • Геометрический объем 2,5618 м3
Цена: 86912 руб.
Подробнее
ПСЛ 24-1,8-6-311 (1.432-9)
Панели стеновые Серия 1.432-9
  • Длина 5980 мм.
  • Ширина 240 мм.
  • Высота 1785 мм.
  • Вес 2400 кг.
  • Объем бетона 2,56 м3
  • Геометрический объем 2,5618 м3
Цена: 86912 руб.
Подробнее
ПСЛ 24-1,8-6-321 (1.432-9)
Панели стеновые Серия 1.432-9
  • Длина 5980 мм.
  • Ширина 240 мм.
  • Высота 1785 мм.
  • Вес 2400 кг.
  • Объем бетона 2,56 м3
  • Геометрический объем 2,5618 м3
Цена: 86912 руб.
Подробнее
ПСЛ 24-1,8-6-312 (1.432-9)
Панели стеновые Серия 1.432-9
  • Длина 5980 мм.
  • Ширина 240 мм.
  • Высота 1785 мм.
  • Вес 2400 кг.
  • Объем бетона 2,56 м3
  • Геометрический объем 2,5618 м3
Цена: 86912 руб.
Подробнее
ПСЛ 24-1,8-6-322 (1.432-9)
Панели стеновые Серия 1.432-9
  • Длина 5980 мм.
  • Ширина 240 мм.
  • Высота 1785 мм.
  • Вес 2400 кг.
  • Объем бетона 2,56 м3
  • Геометрический объем 2,5618 м3
Цена: 86912 руб.
Подробнее
ПСЛ 24-1,8-6-521 (1.432-9)
Панели стеновые Серия 1.432-9
  • Длина 5980 мм.
  • Ширина 240 мм.
  • Высота 1785 мм.
  • Вес 2400 кг.
  • Объем бетона 2,56 м3
  • Геометрический объем 2,5618 м3
Цена: 86912 руб.
Подробнее
ПСЛ 24-1,8-6-421 (1.432-9)
Панели стеновые Серия 1.432-9
  • Длина 5980 мм.
  • Ширина 240 мм.
  • Высота 1785 мм.
  • Вес 2400 кг.
  • Объем бетона 2,56 м3
  • Геометрический объем 2,5618 м3
Цена: 86912 руб.
Подробнее
ПСЛ 24-1,8-6-621 (1.432-9)
Панели стеновые Серия 1.432-9
  • Длина 5980 мм.
  • Ширина 240 мм.
  • Высота 1785 мм.
  • Вес 2400 кг.
  • Объем бетона 2,56 м3
  • Геометрический объем 2,5618 м3
Цена: 86912 руб.
Подробнее
ПСЛ 30-0,9-3-121 (1.432-9)
Панели стеновые Серия 1.432-9
  • Длина 2950 мм.
  • Ширина 300 мм.
  • Высота 885 мм.
  • Вес 1410 кг.
  • Объем бетона 0,8 м3
  • Геометрический объем 0,7832 м3
Цена: 27160 руб.
Подробнее
ПСЛ 30-0,9-3-122 (1.432-9)
Панели стеновые Серия 1.432-9
  • Длина 2950 мм.
  • Ширина 300 мм.
  • Высота 885 мм.
  • Вес 1410 кг.
  • Объем бетона 0,8 м3
  • Геометрический объем 0,7832 м3
Цена: 27160 руб.
Подробнее
ПСЛ 30-0,9-3-221 (1.432-9)
Панели стеновые Серия 1.432-9
  • Длина 2950 мм.
  • Ширина 300 мм.
  • Высота 885 мм.
  • Вес 1410 кг.
  • Объем бетона 0,8 м3
  • Геометрический объем 0,7832 м3
Цена: 27160 руб.
Подробнее
ПСЛ 30-0,9-6-122 (1.432-9)
Панели стеновые Серия 1.432-9
  • Длина 5980 мм.
  • Ширина 300 мм.
  • Высота 885 мм.
  • Вес 2820 кг.
  • Объем бетона 1,59 м3
  • Геометрический объем 1,5877 м3
Цена: 53981 руб.
Подробнее
ПСЛ 30-0,9-3-222 (1.432-9)
Панели стеновые Серия 1.432-9
  • Длина 2950 мм.
  • Ширина 300 мм.
  • Высота 885 мм.
  • Вес 1410 кг.
  • Объем бетона 0,8 м3
  • Геометрический объем 0,7832 м3
Цена: 27160 руб.
Подробнее
ПСЛ 30-0,9-6-212 (1.432-9)
Панели стеновые Серия 1.432-9
  • Длина 5980 мм.
  • Ширина 300 мм.
  • Высота 885 мм.
  • Вес 2820 кг.
  • Объем бетона 1,59 м3
  • Геометрический объем 1,5877 м3
Цена: 53981 руб.
Подробнее
ПСЛ 30-0,9-6-121 (1.432-9)
Панели стеновые Серия 1.432-9
  • Длина 5980 мм.
  • Ширина 300 мм.
  • Высота 885 мм.
  • Вес 2820 кг.
  • Объем бетона 1,59 м3
  • Геометрический объем 1,5877 м3
Цена: 53981 руб.
Подробнее
ПСЛ 30-0,9-6-211 (1.432-9)
Панели стеновые Серия 1.432-9
  • Длина 5980 мм.
  • Ширина 300 мм.
  • Высота 885 мм.
  • Вес 2820 кг.
  • Объем бетона 1,59 м3
  • Геометрический объем 1,5877 м3
Цена: 53981 руб.
Подробнее
ПСЛ 30-0,9-6-221 (1.432-9)
Панели стеновые Серия 1.432-9
  • Длина 5980 мм.
  • Ширина 300 мм.
  • Высота 885 мм.
  • Вес 2820 кг.
  • Объем бетона 1,59 м3
  • Геометрический объем 1,5877 м3
Цена: 53981 руб.
Подробнее

Уведомление о файлах cookie

Мы используем файлы cookie для улучшения вашего опыта просмотра и анализа трафика. Нажимая "Принять все", вы соглашаетесь с нашей политикой конфиденциальности и политикой обработки файлов cookie.

MAX Дзен Телеграм Вконтакте vk