mobile_sound +7 (930) 655-55-90

Типовые конструкции и железобетонные изделия. Рабочие чертежи (Серия 1.423-2с)

Поделиться:
Поделиться:

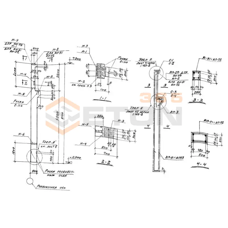
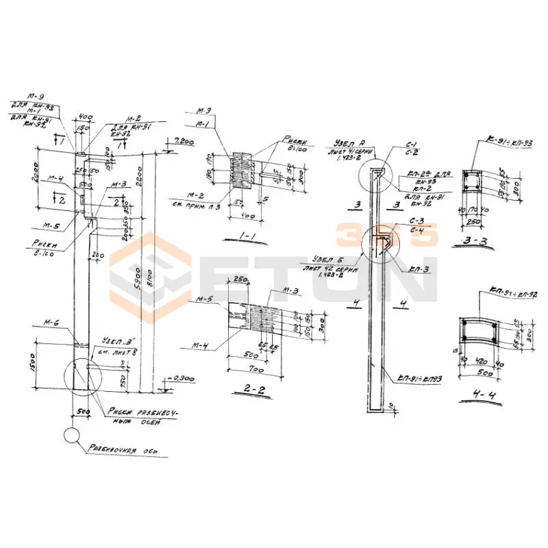
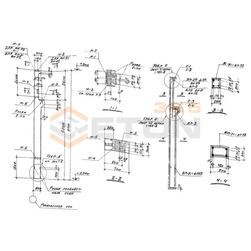
Документ Серия 1.423-2с описывает область применения, номенклатуру и ключевые требования, опираясь на действующие нормы и практику проектирования. Серия 1.423-2с была разработана несколькими организациями, среди которых КАЗАХСКИЙ ПРОМСТРОЙПРОЕКТ, ЦНИИСК и НИИЖБ. Введение в эксплуатацию состоялось в 1974 году. Регламент описывает технические условия и определяет и регламентирует материалы для проектирования, а также рабочие чертежи колонн, применяемых для строительства одноэтажных производственных сооружений.

Файлы для скачивания:
picture_as_pdf

6124.pdf

11,423.8 KB

скачать
Товары Серия 1.423-2с (43)
КН 100 (1.423-2с)
Колонны Серия 1.423-2с
  • Длина 9300 мм.
  • Ширина 500 мм.
  • Высота 300 мм.
  • Вес 3300 кг.
  • Объем бетона 1,31 м3
  • Геометрический объем 1,395 м3
Цена: 26685 руб.
Подробнее
КН 101 (1.423-2с)
Колонны Серия 1.423-2с
  • Длина 9300 мм.
  • Ширина 500 мм.
  • Высота 300 мм.
  • Вес 3300 кг.
  • Объем бетона 1,31 м3
  • Геометрический объем 1,395 м3
Цена: 26685 руб.
Подробнее
КН 102 (1.423-2с)
Колонны Серия 1.423-2с
  • Длина 9300 мм.
  • Ширина 500 мм.
  • Высота 300 мм.
  • Вес 3300 кг.
  • Объем бетона 1,31 м3
  • Геометрический объем 1,395 м3
Цена: 26685 руб.
Подробнее
КН 103 (1.423-2с)
Колонны Серия 1.423-2с
  • Длина 9300 мм.
  • Ширина 500 мм.
  • Высота 300 мм.
  • Вес 3200 кг.
  • Объем бетона 1,27 м3
  • Геометрический объем 1,395 м3
Цена: 25870 руб.
Подробнее
КН 104 (1.423-2с)
Колонны Серия 1.423-2с
  • Длина 9300 мм.
  • Ширина 500 мм.
  • Высота 300 мм.
  • Вес 3200 кг.
  • Объем бетона 1,27 м3
  • Геометрический объем 1,395 м3
Цена: 25870 руб.
Подробнее
КН 105 (1.423-2с)
Колонны Серия 1.423-2с
  • Длина 9300 мм.
  • Ширина 500 мм.
  • Высота 300 мм.
  • Вес 3200 кг.
  • Объем бетона 1,27 м3
  • Геометрический объем 1,395 м3
Цена: 25870 руб.
Подробнее
КН 107 (1.423-2с)
Колонны Серия 1.423-2с
  • Длина 9300 мм.
  • Ширина 500 мм.
  • Высота 300 мм.
  • Вес 3200 кг.
  • Объем бетона 1,27 м3
  • Геометрический объем 1,395 м3
Цена: 25870 руб.
Подробнее
КН 106 (1.423-2с)
Колонны Серия 1.423-2с
  • Длина 9300 мм.
  • Ширина 500 мм.
  • Высота 300 мм.
  • Вес 3200 кг.
  • Объем бетона 1,27 м3
  • Геометрический объем 1,395 м3
Цена: 25870 руб.
Подробнее
КН 108 (1.423-2с)
Колонны Серия 1.423-2с
  • Длина 9900 мм.
  • Ширина 500 мм.
  • Высота 300 мм.
  • Вес 3400 кг.
  • Объем бетона 1,36 м3
  • Геометрический объем 1,485 м3
Цена: 27703 руб.
Подробнее
КН 109 (1.423-2с)
Колонны Серия 1.423-2с
  • Длина 9900 мм.
  • Ширина 500 мм.
  • Высота 300 мм.
  • Вес 3400 кг.
  • Объем бетона 1,36 м3
  • Геометрический объем 1,485 м3
Цена: 27703 руб.
Подробнее
КН 110 (1.423-2с)
Колонны Серия 1.423-2с
  • Длина 9900 мм.
  • Ширина 500 мм.
  • Высота 300 мм.
  • Вес 3400 кг.
  • Объем бетона 1,36 м3
  • Геометрический объем 1,485 м3
Цена: 27703 руб.
Подробнее
КН 111 (1.423-2с)
Колонны Серия 1.423-2с
  • Длина 9900 мм.
  • Ширина 500 мм.
  • Высота 300 мм.
  • Вес 3400 кг.
  • Объем бетона 1,36 м3
  • Геометрический объем 1,485 м3
Цена: 27703 руб.
Подробнее
КН 112 (1.423-2с)
Колонны Серия 1.423-2с
  • Длина 10500 мм.
  • Ширина 500 мм.
  • Высота 300 мм.
  • Вес 3600 кг.
  • Объем бетона 1,45 м3
  • Геометрический объем 1,575 м3
Цена: 29537 руб.
Подробнее
КН 71 (1.423-2с)
Колонны Серия 1.423-2с
  • Длина 6900 мм.
  • Ширина 500 мм.
  • Высота 300 мм.
  • Вес 2400 кг.
  • Объем бетона 0,96 м3
  • Геометрический объем 1,035 м3
Цена: 19555 руб.
Подробнее
КН 113 (1.423-2с)
Колонны Серия 1.423-2с
  • Длина 10500 мм.
  • Ширина 500 мм.
  • Высота 300 мм.
  • Вес 3600 кг.
  • Объем бетона 1,45 м3
  • Геометрический объем 1,575 м3
Цена: 29537 руб.
Подробнее
КН 72 (1.423-2с)
Колонны Серия 1.423-2с
  • Длина 6900 мм.
  • Ширина 500 мм.
  • Высота 300 мм.
  • Вес 2400 кг.
  • Объем бетона 0,96 м3
  • Геометрический объем 1,035 м3
Цена: 19555 руб.
Подробнее
КН 74 (1.423-2с)
Колонны Серия 1.423-2с
  • Длина 6900 мм.
  • Ширина 500 мм.
  • Высота 300 мм.
  • Вес 2400 кг.
  • Объем бетона 0,96 м3
  • Геометрический объем 1,035 м3
Цена: 19555 руб.
Подробнее
КН 73 (1.423-2с)
Колонны Серия 1.423-2с
  • Длина 6900 мм.
  • Ширина 500 мм.
  • Высота 300 мм.
  • Вес 2400 кг.
  • Объем бетона 0,96 м3
  • Геометрический объем 1,035 м3
Цена: 19555 руб.
Подробнее
КН 75 (1.423-2с)
Колонны Серия 1.423-2с
  • Длина 7500 мм.
  • Ширина 500 мм.
  • Высота 300 мм.
  • Вес 2600 кг.
  • Объем бетона 1,04 м3
  • Геометрический объем 1,125 м3
Цена: 21185 руб.
Подробнее
КН 76 (1.423-2с)
Колонны Серия 1.423-2с
  • Длина 7500 мм.
  • Ширина 500 мм.
  • Высота 300 мм.
  • Вес 2600 кг.
  • Объем бетона 1,04 м3
  • Геометрический объем 1,125 м3
Цена: 21185 руб.
Подробнее
КН 77 (1.423-2с)
Колонны Серия 1.423-2с
  • Длина 7500 мм.
  • Ширина 500 мм.
  • Высота 300 мм.
  • Вес 2600 кг.
  • Объем бетона 1,04 м3
  • Геометрический объем 1,125 м3
Цена: 21185 руб.
Подробнее
КН 78 (1.423-2с)
Колонны Серия 1.423-2с
  • Длина 7500 мм.
  • Ширина 500 мм.
  • Высота 300 мм.
  • Вес 2600 кг.
  • Объем бетона 1,04 м3
  • Геометрический объем 1,125 м3
Цена: 21185 руб.
Подробнее
КН 79 (1.423-2с)
Колонны Серия 1.423-2с
  • Длина 7500 мм.
  • Ширина 500 мм.
  • Высота 300 мм.
  • Вес 2600 кг.
  • Объем бетона 1,04 м3
  • Геометрический объем 1,125 м3
Цена: 21185 руб.
Подробнее
КН 80 (1.423-2с)
Колонны Серия 1.423-2с
  • Длина 8100 мм.
  • Ширина 500 мм.
  • Высота 300 мм.
  • Вес 2800 кг.
  • Объем бетона 1,14 м3
  • Геометрический объем 1,215 м3
Цена: 23222 руб.
Подробнее
КН 81 (1.423-2с)
Колонны Серия 1.423-2с
  • Длина 8100 мм.
  • Ширина 500 мм.
  • Высота 300 мм.
  • Вес 2800 кг.
  • Объем бетона 1,14 м3
  • Геометрический объем 1,215 м3
Цена: 23222 руб.
Подробнее
КН 82 (1.423-2с)
Колонны Серия 1.423-2с
  • Длина 8100 мм.
  • Ширина 500 мм.
  • Высота 300 мм.
  • Вес 2800 кг.
  • Объем бетона 1,14 м3
  • Геометрический объем 1,215 м3
Цена: 23222 руб.
Подробнее
КН 84 (1.423-2с)
Колонны Серия 1.423-2с
  • Длина 8100 мм.
  • Ширина 500 мм.
  • Высота 300 мм.
  • Вес 2800 кг.
  • Объем бетона 1,14 м3
  • Геометрический объем 1,215 м3
Цена: 23222 руб.
Подробнее
КН 83 (1.423-2с)
Колонны Серия 1.423-2с
  • Длина 8100 мм.
  • Ширина 500 мм.
  • Высота 300 мм.
  • Вес 2800 кг.
  • Объем бетона 1,14 м3
  • Геометрический объем 1,215 м3
Цена: 23222 руб.
Подробнее
КН 85 (1.423-2с)
Колонны Серия 1.423-2с
  • Длина 8100 мм.
  • Ширина 500 мм.
  • Высота 300 мм.
  • Вес 2800 кг.
  • Объем бетона 1,14 м3
  • Геометрический объем 1,215 м3
Цена: 23222 руб.
Подробнее
КН 86 (1.423-2с)
Колонны Серия 1.423-2с
  • Длина 8100 мм.
  • Ширина 500 мм.
  • Высота 300 мм.
  • Вес 2800 кг.
  • Объем бетона 1,14 м3
  • Геометрический объем 1,215 м3
Цена: 23222 руб.
Подробнее
КН 87 (1.423-2с)
Колонны Серия 1.423-2с
  • Длина 8100 мм.
  • Ширина 500 мм.
  • Высота 300 мм.
  • Вес 2700 кг.
  • Объем бетона 1,09 м3
  • Геометрический объем 1,215 м3
Цена: 22203 руб.
Подробнее
КН 89 (1.423-2с)
Колонны Серия 1.423-2с
  • Длина 8100 мм.
  • Ширина 500 мм.
  • Высота 300 мм.
  • Вес 2700 кг.
  • Объем бетона 1,09 м3
  • Геометрический объем 1,215 м3
Цена: 22203 руб.
Подробнее
КН 90 (1.423-2с)
Колонны Серия 1.423-2с
  • Длина 8100 мм.
  • Ширина 500 мм.
  • Высота 300 мм.
  • Вес 2700 кг.
  • Объем бетона 1,09 м3
  • Геометрический объем 1,215 м3
Цена: 22203 руб.
Подробнее
КН 88 (1.423-2с)
Колонны Серия 1.423-2с
  • Длина 8100 мм.
  • Ширина 500 мм.
  • Высота 300 мм.
  • Вес 2700 кг.
  • Объем бетона 1,09 м3
  • Геометрический объем 1,215 м3
Цена: 22203 руб.
Подробнее
КН 92 (1.423-2с)
Колонны Серия 1.423-2с
  • Длина 8100 мм.
  • Ширина 500 мм.
  • Высота 300 мм.
  • Вес 2700 кг.
  • Объем бетона 1,09 м3
  • Геометрический объем 1,215 м3
Цена: 22203 руб.
Подробнее
КН 91 (1.423-2с)
Колонны Серия 1.423-2с
  • Длина 8100 мм.
  • Ширина 500 мм.
  • Высота 300 мм.
  • Вес 2700 кг.
  • Объем бетона 1,09 м3
  • Геометрический объем 1,215 м3
Цена: 22203 руб.
Подробнее
КН 96 (1.423-2с)
Колонны Серия 1.423-2с
  • Длина 8700 мм.
  • Ширина 500 мм.
  • Высота 300 мм.
  • Вес 3100 кг.
  • Объем бетона 1,22 м3
  • Геометрический объем 1,305 м3
Цена: 24851 руб.
Подробнее
КН 95 (1.423-2с)
Колонны Серия 1.423-2с
  • Длина 8700 мм.
  • Ширина 500 мм.
  • Высота 300 мм.
  • Вес 3100 кг.
  • Объем бетона 1,22 м3
  • Геометрический объем 1,305 м3
Цена: 24851 руб.
Подробнее
КН 94 (1.423-2с)
Колонны Серия 1.423-2с
  • Длина 8700 мм.
  • Ширина 500 мм.
  • Высота 300 мм.
  • Вес 3100 кг.
  • Объем бетона 1,22 м3
  • Геометрический объем 1,305 м3
Цена: 24851 руб.
Подробнее
КН 93 (1.423-2с)
Колонны Серия 1.423-2с
  • Длина 8100 мм.
  • Ширина 500 мм.
  • Высота 300 мм.
  • Вес 2700 кг.
  • Объем бетона 1,09 м3
  • Геометрический объем 1,215 м3
Цена: 22203 руб.
Подробнее
КН 97 (1.423-2с)
Колонны Серия 1.423-2с
  • Длина 8700 мм.
  • Ширина 500 мм.
  • Высота 300 мм.
  • Вес 3000 кг.
  • Объем бетона 1,18 м3
  • Геометрический объем 1,305 м3
Цена: 24037 руб.
Подробнее
КН 98 (1.423-2с)
Колонны Серия 1.423-2с
  • Длина 8700 мм.
  • Ширина 500 мм.
  • Высота 300 мм.
  • Вес 3000 кг.
  • Объем бетона 1,18 м3
  • Геометрический объем 1,305 м3
Цена: 24037 руб.
Подробнее
КН 99 (1.423-2с)
Колонны Серия 1.423-2с
  • Длина 8700 мм.
  • Ширина 500 мм.
  • Высота 300 мм.
  • Вес 3000 кг.
  • Объем бетона 1,18 м3
  • Геометрический объем 1,305 м3
Цена: 24037 руб.
Подробнее

Уведомление о файлах cookie

Мы используем файлы cookie для улучшения вашего опыта просмотра и анализа трафика. Нажимая "Принять все", вы соглашаетесь с нашей политикой конфиденциальности и политикой обработки файлов cookie.

MAX Дзен Телеграм Вконтакте vk