mobile_sound +7 (930) 655-55-90

Железобетонные опоры линий электропередачи. Рабочие чертежи (Серия 1.241.1 КЛ-3)

Поделиться:
Поделиться:

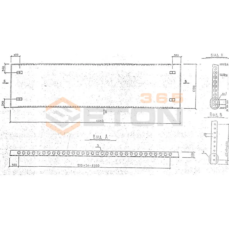
Документ Серия 1.241.1 КЛ-3 описывает область применения, номенклатуру и ключевые требования, опираясь на действующие нормы и практику проектирования. При строительстве общественных сооружений связевого каркаса не малую роль играет обеспечение надежного и долговечного межэтажного перекрытия. Для этой цели институтом ЛЕННИИПРОЕКТ бала разработана Серия 1.241.1 КЛ-3, введенная в действие с 1987 года. Нормативный документ детально описывает процесс производства многопустотных панелей перекрытий, отражает детальные чертежи опалубки и арматурных составляющих.

Файлы для скачивания:
picture_as_pdf

4803.pdf

15,827.1 KB

скачать
picture_as_pdf

4802.pdf

3,764.4 KB

скачать
Товары Серия 1.241.1 КЛ-3 (18)
ПК 58-10-13 АтVт
Панели перекрытий многопустотные Серия 1.241.1 КЛ-3
  • Длина 5760 мм.
  • Ширина 990 мм.
  • Высота 220 мм.
  • Вес 1775 кг.
  • Объем бетона 0,71 м3
  • Геометрический объем 1,2545 м3
Цена: 12397 руб.
Подробнее
ПК 58-10-6 АтVт
Панели перекрытий многопустотные Серия 1.241.1 КЛ-3
  • Длина 5760 мм.
  • Ширина 990 мм.
  • Высота 220 мм.
  • Вес 1775 кг.
  • Объем бетона 0,71 м3
  • Геометрический объем 1,2545 м3
Цена: 12397 руб.
Подробнее
ПК 58-10-8 АтVт
Панели перекрытий многопустотные Серия 1.241.1 КЛ-3
  • Длина 5760 мм.
  • Ширина 990 мм.
  • Высота 220 мм.
  • Вес 1775 кг.
  • Объем бетона 0,71 м3
  • Геометрический объем 1,2545 м3
Цена: 12397 руб.
Подробнее
ПК 58-12-13 АтVт
Панели перекрытий многопустотные Серия 1.241.1 КЛ-3
  • Длина 5760 мм.
  • Ширина 1190 мм.
  • Высота 220 мм.
  • Вес 2150 кг.
  • Объем бетона 0,85 м3
  • Геометрический объем 1,508 м3
Цена: 14841 руб.
Подробнее
ПК 58-18-13 АтVт
Панели перекрытий многопустотные Серия 1.241.1 КЛ-3
  • Длина 5760 мм.
  • Ширина 1790 мм.
  • Высота 220 мм.
  • Вес 3225 кг.
  • Объем бетона 1,29 м3
  • Геометрический объем 2,2683 м3
Цена: 22523 руб.
Подробнее
ПК 58-12-6 АтVт
Панели перекрытий многопустотные Серия 1.241.1 КЛ-3
  • Длина 5760 мм.
  • Ширина 1190 мм.
  • Высота 220 мм.
  • Вес 2150 кг.
  • Объем бетона 0,85 м3
  • Геометрический объем 1,508 м3
Цена: 14841 руб.
Подробнее
ПК 58-12-8 АтVт
Панели перекрытий многопустотные Серия 1.241.1 КЛ-3
  • Длина 5760 мм.
  • Ширина 1190 мм.
  • Высота 220 мм.
  • Вес 2150 кг.
  • Объем бетона 0,85 м3
  • Геометрический объем 1,508 м3
Цена: 14841 руб.
Подробнее
ПК 58-18-6 АтVт
Панели перекрытий многопустотные Серия 1.241.1 КЛ-3
  • Длина 5760 мм.
  • Ширина 1790 мм.
  • Высота 220 мм.
  • Вес 3225 кг.
  • Объем бетона 1,29 м3
  • Геометрический объем 2,2683 м3
Цена: 22523 руб.
Подробнее
ПК 58-18-8 АтVт
Панели перекрытий многопустотные Серия 1.241.1 КЛ-3
  • Длина 5760 мм.
  • Ширина 1790 мм.
  • Высота 220 мм.
  • Вес 3225 кг.
  • Объем бетона 1,29 м3
  • Геометрический объем 2,2683 м3
Цена: 22523 руб.
Подробнее
ПК 58-24-13 АтVт
Панели перекрытий многопустотные Серия 1.241.1 КЛ-3
  • Длина 5760 мм.
  • Ширина 2380 мм.
  • Высота 220 мм.
  • Вес 4275 кг.
  • Объем бетона 1,71 м3
  • Геометрический объем 3,0159 м3
Цена: 29857 руб.
Подробнее
ПК 58-24-6 АтVт
Панели перекрытий многопустотные Серия 1.241.1 КЛ-3
  • Длина 5760 мм.
  • Ширина 2380 мм.
  • Высота 220 мм.
  • Вес 4275 кг.
  • Объем бетона 1,71 м3
  • Геометрический объем 3,0159 м3
Цена: 29857 руб.
Подробнее
ПК 58-24-8 АтVт
Панели перекрытий многопустотные Серия 1.241.1 КЛ-3
  • Длина 5760 мм.
  • Ширина 2380 мм.
  • Высота 220 мм.
  • Вес 4275 кг.
  • Объем бетона 1,71 м3
  • Геометрический объем 3,0159 м3
Цена: 29857 руб.
Подробнее
ПК 70-12-13 АтVт
Панели перекрытий многопустотные Серия 1.241.1 КЛ-3
  • Длина 6960 мм.
  • Ширина 1190 мм.
  • Высота 220 мм.
  • Вес 2550 кг.
  • Объем бетона 1,02 м3
  • Геометрический объем 1,8221 м3
Цена: 17809 руб.
Подробнее
ПК 70-12-8 АтVт
Панели перекрытий многопустотные Серия 1.241.1 КЛ-3
  • Длина 6960 мм.
  • Ширина 1190 мм.
  • Высота 220 мм.
  • Вес 2550 кг.
  • Объем бетона 1,02 м3
  • Геометрический объем 1,8221 м3
Цена: 17809 руб.
Подробнее
ПК 70-12-6 АтVт
Панели перекрытий многопустотные Серия 1.241.1 КЛ-3
  • Длина 6960 мм.
  • Ширина 1190 мм.
  • Высота 220 мм.
  • Вес 2550 кг.
  • Объем бетона 1,02 м3
  • Геометрический объем 1,8221 м3
Цена: 17809 руб.
Подробнее
ПК 70-18-13 АтVт
Панели перекрытий многопустотные Серия 1.241.1 КЛ-3
  • Длина 6960 мм.
  • Ширина 1790 мм.
  • Высота 220 мм.
  • Вес 3850 кг.
  • Объем бетона 1,54 м3
  • Геометрический объем 2,7408 м3
Цена: 26888 руб.
Подробнее
ПК 70-18-8 АтVт
Панели перекрытий многопустотные Серия 1.241.1 КЛ-3
  • Длина 6960 мм.
  • Ширина 1790 мм.
  • Высота 220 мм.
  • Вес 3850 кг.
  • Объем бетона 1,54 м3
  • Геометрический объем 2,7408 м3
Цена: 26888 руб.
Подробнее
ПК 70-18-6 АтVт
Панели перекрытий многопустотные Серия 1.241.1 КЛ-3
  • Длина 6960 мм.
  • Ширина 1790 мм.
  • Высота 220 мм.
  • Вес 3850 кг.
  • Объем бетона 1,54 м3
  • Геометрический объем 2,7408 м3
Цена: 26888 руб.
Подробнее

Уведомление о файлах cookie

Мы используем файлы cookie для улучшения вашего опыта просмотра и анализа трафика. Нажимая "Принять все", вы соглашаетесь с нашей политикой конфиденциальности и политикой обработки файлов cookie.

MAX Дзен Телеграм Вконтакте vk