mobile_sound +7 (930) 655-55-90

Железобетонные опоры линий электропередачи. Рабочие чертежи (Серия 1.234.8-1)

Поделиться:
Поделиться:

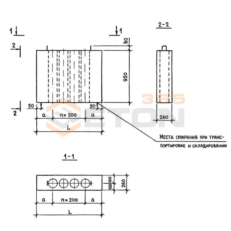
Документ Серия 1.234.8-1 описывает область применения, номенклатуру и ключевые требования, опираясь на действующие нормы и практику проектирования. Развитие строительной сферы подвигло институт ЦНИИП реконструкции городов разработать и ввести в действие с 1989 года нормативный документ Серию 1.234.8-1. Он определяет и регламентирует необходимую информацию для производства вентиляционных блоков, предназначенных для строительства общественных зданий. Производство изделия и конструкции осуществляется из гипсобетона, что позволяет снизить массу и упростить процедуру монтажа.

Файлы для скачивания:
picture_as_pdf

4970.pdf

765.0 KB

скачать
picture_as_pdf

4971.pdf

2,032.3 KB

скачать
picture_as_pdf

4972.pdf

809.1 KB

скачать
picture_as_pdf

4973.pdf

417.9 KB

скачать
Товары Серия 1.234.8-1 (34)
В 11-28
Блоки вентиляционные Серия 1.234.8-1
  • Длина 1080 мм.
  • Ширина 260 мм.
  • Высота 2780 мм.
  • Вес 719 кг.
  • Объем бетона 0,546 м3
  • Геометрический объем 0,7806 м3
Цена: 21185 руб.
Подробнее
В 11-30
Блоки вентиляционные Серия 1.234.8-1
  • Длина 1080 мм.
  • Ширина 260 мм.
  • Высота 2980 мм.
  • Вес 775 кг.
  • Объем бетона 0,587 м3
  • Геометрический объем 0,8368 м3
Цена: 22776 руб.
Подробнее
ВВ 11-30
Блоки вентиляционные Серия 1.234.8-1
  • Длина 1080 мм.
  • Ширина 300 мм.
  • Высота 2980 мм.
  • Вес 773 кг.
  • Объем бетона 0,585 м3
  • Геометрический объем 0,9655 м3
Цена: 22698 руб.
Подробнее
ВВ 11-28
Блоки вентиляционные Серия 1.234.8-1
  • Длина 1080 мм.
  • Ширина 300 мм.
  • Высота 2780 мм.
  • Вес 720 кг.
  • Объем бетона 0,546 м3
  • Геометрический объем 0,9007 м3
Цена: 21185 руб.
Подробнее
В 11-33
Блоки вентиляционные Серия 1.234.8-1
  • Длина 1080 мм.
  • Ширина 260 мм.
  • Высота 3280 мм.
  • Вес 854 кг.
  • Объем бетона 0,647 м3
  • Геометрический объем 0,921 м3
Цена: 25104 руб.
Подробнее
ВВ 11-33
Блоки вентиляционные Серия 1.234.8-1
  • Длина 1080 мм.
  • Ширина 300 мм.
  • Высота 3280 мм.
  • Вес 852 кг.
  • Объем бетона 0,645 м3
  • Геометрический объем 1,0627 м3
Цена: 25026 руб.
Подробнее
ВВК 11-10
Блоки вентиляционные Серия 1.234.8-1
  • Длина 1080 мм.
  • Ширина 300 мм.
  • Высота 950 мм.
  • Вес 249 кг.
  • Объем бетона 0,188 м3
  • Геометрический объем 0,3078 м3
Цена: 7294 руб.
Подробнее
ВВС 11-20
Блоки вентиляционные Серия 1.234.8-1
  • Длина 1080 мм.
  • Ширина 300 мм.
  • Высота 1980 мм.
  • Вес 533 кг.
  • Объем бетона 0,4 м3
  • Геометрический объем 0,6415 м3
Цена: 15520 руб.
Подробнее
ВВС 11-28
Блоки вентиляционные Серия 1.234.8-1
  • Длина 1080 мм.
  • Ширина 300 мм.
  • Высота 2780 мм.
  • Вес 741 кг.
  • Объем бетона 0,558 м3
  • Геометрический объем 0,9007 м3
Цена: 21650 руб.
Подробнее
ВВС 11-30
Блоки вентиляционные Серия 1.234.8-1
  • Длина 1080 мм.
  • Ширина 300 мм.
  • Высота 2980 мм.
  • Вес 795 кг.
  • Объем бетона 0,598 м3
  • Геометрический объем 0,9655 м3
Цена: 23202 руб.
Подробнее
ВВС 11-33
Блоки вентиляционные Серия 1.234.8-1
  • Длина 1080 мм.
  • Ширина 300 мм.
  • Высота 3280 мм.
  • Вес 873 кг.
  • Объем бетона 0,657 м3
  • Геометрический объем 1,0627 м3
Цена: 25492 руб.
Подробнее
ВК 11-10
Блоки вентиляционные Серия 1.234.8-1
  • Длина 1080 мм.
  • Ширина 260 мм.
  • Высота 950 мм.
  • Вес 253 кг.
  • Объем бетона 0,191 м3
  • Геометрический объем 0,2668 м3
Цена: 7411 руб.
Подробнее
ВК 15-10
Блоки вентиляционные Серия 1.234.8-1
  • Длина 1480 мм.
  • Ширина 260 мм.
  • Высота 950 мм.
  • Вес 333 кг.
  • Объем бетона 0,252 м3
  • Геометрический объем 0,3656 м3
Цена: 9778 руб.
Подробнее
ВП 11-28
Блоки вентиляционные Серия 1.234.8-1
  • Длина 1080 мм.
  • Ширина 300 мм.
  • Высота 2780 мм.
  • Вес 735 кг.
  • Объем бетона 0,558 м3
  • Геометрический объем 0,9007 м3
Цена: 21650 руб.
Подробнее
ВП 11-30
Блоки вентиляционные Серия 1.234.8-1
  • Длина 1080 мм.
  • Ширина 300 мм.
  • Высота 2980 мм.
  • Вес 788 кг.
  • Объем бетона 0,597 м3
  • Геометрический объем 0,9655 м3
Цена: 23164 руб.
Подробнее
ВП 11-33
Блоки вентиляционные Серия 1.234.8-1
  • Длина 1080 мм.
  • Ширина 300 мм.
  • Высота 3280 мм.
  • Вес 867 кг.
  • Объем бетона 0,657 м3
  • Геометрический объем 1,0627 м3
Цена: 25492 руб.
Подробнее
ВПК 11-28
Блоки вентиляционные Серия 1.234.8-1
  • Длина 1080 мм.
  • Ширина 300 мм.
  • Высота 2780 мм.
  • Вес 748 кг.
  • Объем бетона 0,568 м3
  • Геометрический объем 0,9007 м3
Цена: 22038 руб.
Подробнее
ВПК 11-30
Блоки вентиляционные Серия 1.234.8-1
  • Длина 1080 мм.
  • Ширина 300 мм.
  • Высота 2980 мм.
  • Вес 801 кг.
  • Объем бетона 0,607 м3
  • Геометрический объем 0,9655 м3
Цена: 23552 руб.
Подробнее
ВПС 11-20
Блоки вентиляционные Серия 1.234.8-1
  • Длина 1080 мм.
  • Ширина 300 мм.
  • Высота 1980 мм.
  • Вес 554 кг.
  • Объем бетона 0,416 м3
  • Геометрический объем 0,6415 м3
Цена: 16141 руб.
Подробнее
ВПК 11-33
Блоки вентиляционные Серия 1.234.8-1
  • Длина 1080 мм.
  • Ширина 300 мм.
  • Высота 3280 мм.
  • Вес 880 кг.
  • Объем бетона 0,667 м3
  • Геометрический объем 1,0627 м3
Цена: 25880 руб.
Подробнее
ВПС 11-28
Блоки вентиляционные Серия 1.234.8-1
  • Длина 1080 мм.
  • Ширина 300 мм.
  • Высота 2780 мм.
  • Вес 763 кг.
  • Объем бетона 0,575 м3
  • Геометрический объем 0,9007 м3
Цена: 22310 руб.
Подробнее
ВПС 11-30
Блоки вентиляционные Серия 1.234.8-1
  • Длина 1080 мм.
  • Ширина 300 мм.
  • Высота 2980 мм.
  • Вес 816 кг.
  • Объем бетона 0,614 м3
  • Геометрический объем 0,9655 м3
Цена: 23823 руб.
Подробнее
ВПС 11-33
Блоки вентиляционные Серия 1.234.8-1
  • Длина 1080 мм.
  • Ширина 300 мм.
  • Высота 3280 мм.
  • Вес 895 кг.
  • Объем бетона 0,674 м3
  • Геометрический объем 1,0627 м3
Цена: 26151 руб.
Подробнее
ВПСК 11-28
Блоки вентиляционные Серия 1.234.8-1
  • Длина 1080 мм.
  • Ширина 300 мм.
  • Высота 2780 мм.
  • Вес 771 кг.
  • Объем бетона 0,583 м3
  • Геометрический объем 0,9007 м3
Цена: 22620 руб.
Подробнее
ВПСК 11-30
Блоки вентиляционные Серия 1.234.8-1
  • Длина 1080 мм.
  • Ширина 300 мм.
  • Высота 2980 мм.
  • Вес 824 кг.
  • Объем бетона 0,622 м3
  • Геометрический объем 0,9655 м3
Цена: 24134 руб.
Подробнее
ВС 11-20
Блоки вентиляционные Серия 1.234.8-1
  • Длина 1080 мм.
  • Ширина 260 мм.
  • Высота 1980 мм.
  • Вес 530 кг.
  • Объем бетона 0,398 м3
  • Геометрический объем 0,556 м3
Цена: 15442 руб.
Подробнее
ВПСК 11-33
Блоки вентиляционные Серия 1.234.8-1
  • Длина 1080 мм.
  • Ширина 300 мм.
  • Высота 3280 мм.
  • Вес 905 кг.
  • Объем бетона 0,682 м3
  • Геометрический объем 1,0627 м3
Цена: 26462 руб.
Подробнее
ВС 11-28
Блоки вентиляционные Серия 1.234.8-1
  • Длина 1080 мм.
  • Ширина 260 мм.
  • Высота 2780 мм.
  • Вес 742 кг.
  • Объем бетона 0,559 м3
  • Геометрический объем 0,7806 м3
Цена: 21689 руб.
Подробнее
ВС 11-30
Блоки вентиляционные Серия 1.234.8-1
  • Длина 1080 мм.
  • Ширина 260 мм.
  • Высота 2980 мм.
  • Вес 797 кг.
  • Объем бетона 0,6 м3
  • Геометрический объем 0,8368 м3
Цена: 23280 руб.
Подробнее
ВС 11-33
Блоки вентиляционные Серия 1.234.8-1
  • Длина 1080 мм.
  • Ширина 260 мм.
  • Высота 2980 мм.
  • Вес 876 кг.
  • Объем бетона 0,66 м3
  • Геометрический объем 0,8368 м3
Цена: 25608 руб.
Подробнее
ВС 15-20
Блоки вентиляционные Серия 1.234.8-1
  • Длина 1480 мм.
  • Ширина 260 мм.
  • Высота 1980 мм.
  • Вес 699 кг.
  • Объем бетона 0,526 м3
  • Геометрический объем 0,7619 м3
Цена: 20409 руб.
Подробнее
ВС 15-30
Блоки вентиляционные Серия 1.234.8-1
  • Длина 1480 мм.
  • Ширина 260 мм.
  • Высота 2980 мм.
  • Вес 1046 кг.
  • Объем бетона 0,791 м3
  • Геометрический объем 1,1467 м3
Цена: 30691 руб.
Подробнее
ВС 15-28
Блоки вентиляционные Серия 1.234.8-1
  • Длина 1480 мм.
  • Ширина 260 мм.
  • Высота 2780 мм.
  • Вес 977 кг.
  • Объем бетона 0,738 м3
  • Геометрический объем 1,0697 м3
Цена: 28634 руб.
Подробнее
ВС 15-33
Блоки вентиляционные Серия 1.234.8-1
  • Длина 1480 мм.
  • Ширина 260 мм.
  • Высота 2980 мм.
  • Вес 1153 кг.
  • Объем бетона 0,871 м3
  • Геометрический объем 1,1467 м3
Цена: 33795 руб.
Подробнее

Уведомление о файлах cookie

Мы используем файлы cookie для улучшения вашего опыта просмотра и анализа трафика. Нажимая "Принять все", вы соглашаетесь с нашей политикой конфиденциальности и политикой обработки файлов cookie.

MAX Дзен Телеграм Вконтакте vk