mobile_sound +7 (930) 655-55-90

Типовые конструкции и железобетонные изделия. Рабочие чертежи (Серия 1.137.1 КЛ-3)

Поделиться:
Поделиться:

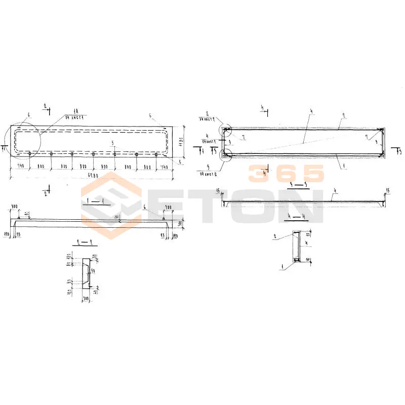
Документ Серия 1.137.1 КЛ-3 описывает область применения, номенклатуру и ключевые требования, опираясь на действующие нормы и практику проектирования. С целью увеличения числа типовых конструкций, в которых возникла потребность при накоплении опыта в строительной сфере, была разработана институтом ЛЕННИИПРОЕКТ и введён в действие в действие с 1988 года Серия 1.137.1 КЛ-3. Она определяет и регламентирует все тонкости и нюансы производства различных железобетонных элементов фасадов, применяемых при строительстве кирпичных жилых домов. В номенклатурный перечень вошли такие изделия и конструкции, как плиты лоджий, ограждения лоджий, карнизные плиты и козырьки входа.

Файлы для скачивания:
picture_as_pdf

785.pdf

5,879.5 KB

скачать
picture_as_pdf

786.pdf

3,129.9 KB

скачать
picture_as_pdf

787.pdf

6,692.4 KB

скачать
picture_as_pdf

788.pdf

4,614.0 KB

скачать
Товары Серия 1.137.1 КЛ-3 (26)
ПКВ 24-18 т
Козырьки входов для общественных зданий Серия 1.137.1 КЛ-3
  • Длина 2380 мм.
  • Ширина 1840 мм.
  • Высота 150 мм.
  • Вес 13650 кг.
  • Объем бетона 0,54 м3
  • Геометрический объем 0,6569 м3
Цена: 15714 руб.
Подробнее
ПКВ 24-18
Козырьки входов для общественных зданий Серия 1.137.1 КЛ-3
  • Длина 2380 мм.
  • Ширина 1840 мм.
  • Высота 140 мм.
  • Вес 1250 кг.
  • Объем бетона 0,5 м3
  • Геометрический объем 0,6131 м3
Цена: 14550 руб.
Подробнее
ПКВ 30-18
Козырьки входов для общественных зданий Серия 1.137.1 КЛ-3
  • Длина 2990 мм.
  • Ширина 1840 мм.
  • Высота 140 мм.
  • Вес 1600 кг.
  • Объем бетона 0,64 м3
  • Геометрический объем 0,7702 м3
Цена: 18624 руб.
Подробнее
ПКВ 30-18 т
Козырьки входов для общественных зданий Серия 1.137.1 КЛ-3
  • Длина 2990 мм.
  • Ширина 1840 мм.
  • Высота 150 мм.
  • Вес 1700 кг.
  • Объем бетона 0,68 м3
  • Геометрический объем 0,8252 м3
Цена: 19788 руб.
Подробнее
ПКВ 27-18
Козырьки входов для общественных зданий Серия 1.137.1 КЛ-3
  • Длина 2680 мм.
  • Ширина 1840 мм.
  • Высота 140 мм.
  • Вес 1430 кг.
  • Объем бетона 0,57 м3
  • Геометрический объем 0,6904 м3
Цена: 16587 руб.
Подробнее
ПКВ 27-18 т
Козырьки входов для общественных зданий Серия 1.137.1 КЛ-3
  • Длина 2680 мм.
  • Ширина 1840 мм.
  • Высота 150 мм.
  • Вес 1525 кг.
  • Объем бетона 0,61 м3
  • Геометрический объем 0,7397 м3
Цена: 17751 руб.
Подробнее
РБ 9-24-8 т
Разделительные перегородки балконные Серия 1.137.1 КЛ-3
  • Длина 880 мм.
  • Ширина 2400 мм.
  • Высота 80 мм.
  • Вес 530 кг.
  • Объем бетона 0,21 м3
  • Геометрический объем 0,169 м3
Цена: 3463 руб.
Подробнее
РЛ 11-24-8 т
Разделительные перегородки балконные Серия 1.137.1 КЛ-3
  • Длина 1080 мм.
  • Ширина 2400 мм.
  • Высота 80 мм.
  • Вес 530 кг.
  • Объем бетона 0,21 м3
  • Геометрический объем 0,2074 м3
Цена: 3463 руб.
Подробнее
КП 10-15-8 т
Карнизные плиты Серия 1.137.1 КЛ-3
  • Длина 1050 мм.
  • Ширина 1490 мм.
  • Высота 80 мм.
  • Вес 310 кг.
  • Объем бетона 0,125 м3
  • Геометрический объем 0,1252 м3
Цена: 4244 руб.
Подробнее
КП 10-30-8 т
Карнизные плиты Серия 1.137.1 КЛ-3
  • Длина 1050 мм.
  • Ширина 2990 мм.
  • Высота 80 мм.
  • Вес 680 кг.
  • Объем бетона 0,25 м3
  • Геометрический объем 0,2512 м3
Цена: 8488 руб.
Подробнее
КП 15-15-8 т
Карнизные плиты Серия 1.137.1 КЛ-3
  • Длина 1490 мм.
  • Ширина 1490 мм.
  • Высота 80 мм.
  • Вес 400 кг.
  • Объем бетона 0,16 м3
  • Геометрический объем 0,1776 м3
Цена: 5432 руб.
Подробнее
КП 8-15-8 т
Карнизные плиты Серия 1.137.1 КЛ-3
  • Длина 780 мм.
  • Ширина 1490 мм.
  • Высота 80 мм.
  • Вес 230 кг.
  • Объем бетона 0,09 м3
  • Геометрический объем 0,093 м3
Цена: 3056 руб.
Подробнее
ОЛ 42-10-8 т
Панели ограждения лоджий Серия 1.137.1 КЛ-3
  • Длина 4180 мм.
  • Ширина 960 мм.
  • Высота 80 мм.
  • Вес 800 кг.
  • Объем бетона 0,32 м3
  • Геометрический объем 0,321 м3
Цена: 10864 руб.
Подробнее
ОЛ 48-10-8 т
Панели ограждения лоджий Серия 1.137.1 КЛ-3
  • Длина 4780 мм.
  • Ширина 960 мм.
  • Высота 80 мм.
  • Вес 930 кг.
  • Объем бетона 0,37 м3
  • Геометрический объем 0,3671 м3
Цена: 12562 руб.
Подробнее
ОЛ 42-10-8 т-1
Панели ограждения лоджий Серия 1.137.1 КЛ-3
  • Длина 4180 мм.
  • Ширина 960 мм.
  • Высота 80 мм.
  • Вес 800 кг.
  • Объем бетона 0,32 м3
  • Геометрический объем 0,321 м3
Цена: 10864 руб.
Подробнее
ОЛ 48-10-8 т-1
Панели ограждения лоджий Серия 1.137.1 КЛ-3
  • Длина 4780 мм.
  • Ширина 960 мм.
  • Высота 80 мм.
  • Вес 930 кг.
  • Объем бетона 0,37 м3
  • Геометрический объем 0,3671 м3
Цена: 12562 руб.
Подробнее
ОЛ 51-10-8 т-1
Панели ограждения лоджий Серия 1.137.1 КЛ-3
  • Длина 5080 мм.
  • Ширина 960 мм.
  • Высота 80 мм.
  • Вес 1000 кг.
  • Объем бетона 0,4 м3
  • Геометрический объем 0,3901 м3
Цена: 13580 руб.
Подробнее
ОЛ 51-10-8 т
Панели ограждения лоджий Серия 1.137.1 КЛ-3
  • Длина 5080 мм.
  • Ширина 960 мм.
  • Высота 80 мм.
  • Вес 1000 кг.
  • Объем бетона 0,4 м3
  • Геометрический объем 0,3901 м3
Цена: 13580 руб.
Подробнее
ОЛ 60-10-8 т
Панели ограждения лоджий Серия 1.137.1 КЛ-3
  • Длина 5980 мм.
  • Ширина 960 мм.
  • Высота 80 мм.
  • Вес 1180 кг.
  • Объем бетона 0,47 м3
  • Геометрический объем 0,4593 м3
Цена: 15957 руб.
Подробнее
ОЛ 63-10-8 т-1
Панели ограждения лоджий Серия 1.137.1 КЛ-3
  • Длина 6280 мм.
  • Ширина 960 мм.
  • Высота 80 мм.
  • Вес 1230 кг.
  • Объем бетона 0,49 м3
  • Геометрический объем 0,4823 м3
Цена: 16636 руб.
Подробнее
ОЛ 63-10-8 т
Панели ограждения лоджий Серия 1.137.1 КЛ-3
  • Длина 6280 мм.
  • Ширина 960 мм.
  • Высота 80 мм.
  • Вес 1230 кг.
  • Объем бетона 0,49 м3
  • Геометрический объем 0,4823 м3
Цена: 16636 руб.
Подробнее
ОЛ 60-10-8 т-1
Панели ограждения лоджий Серия 1.137.1 КЛ-3
  • Длина 5980 мм.
  • Ширина 960 мм.
  • Высота 80 мм.
  • Вес 1180 кг.
  • Объем бетона 0,47 м3
  • Геометрический объем 0,4593 м3
Цена: 15957 руб.
Подробнее
ОЛ 42-13-1 д
Плиты лоджий Серия 1.137.1 КЛ-3
  • Длина 4190 мм.
  • Ширина 1300 мм.
  • Высота 135 мм.
  • Вес 1525 кг.
  • Объем бетона 0,61 м3
  • Геометрический объем 0,7353 м3
Цена: 20710 руб.
Подробнее
ПЛР 63-12-3 тп
Плиты лоджий Серия 1.137.1 КЛ-3
  • Длина 6280 мм.
  • Ширина 1190 мм.
  • Высота 300 мм.
  • Вес 2280 кг.
  • Объем бетона 0,91 м3
  • Геометрический объем 2,242 м3
Цена: 30895 руб.
Подробнее
ПЛР 63-12-3 т
Плиты лоджий Серия 1.137.1 КЛ-3
  • Длина 6280 мм.
  • Ширина 1190 мм.
  • Высота 300 мм.
  • Вес 2330 кг.
  • Объем бетона 0,91 м3
  • Геометрический объем 2,242 м3
Цена: 30895 руб.
Подробнее
ПЛР 63-12-3 тл
Плиты лоджий Серия 1.137.1 КЛ-3
  • Длина 6280 мм.
  • Ширина 1190 мм.
  • Высота 300 мм.
  • Вес 2280 кг.
  • Объем бетона 0,91 м3
  • Геометрический объем 2,242 м3
Цена: 30895 руб.
Подробнее

Уведомление о файлах cookie

Мы используем файлы cookie для улучшения вашего опыта просмотра и анализа трафика. Нажимая "Принять все", вы соглашаетесь с нашей политикой конфиденциальности и политикой обработки файлов cookie.

MAX Дзен Телеграм Вконтакте vk