mobile_sound +7 (930) 655-55-90

Типовые конструкции и железобетонные изделия. Рабочие чертежи (Серия 1.117-12с)

Поделиться:
Поделиться:

Документ Серия 1.117-12с описывает область применения, номенклатуру и ключевые требования, опираясь на действующие нормы и практику проектирования. Регламент Серия 1.117-12с определяет и регламентирует общие материалы, унифицированные детали, рекомендации по производству, паспортизации, транспортировке и хранению трехслойных железобетонных панелей наружных цокольных стен однорядной разрезки с жесткими связями. изделия и конструкции были разработаны для применения при строительстве крупнопанельных жилых зданий 4-9 этажей, возводимых на ленточных фундаментах и имеющих шаг поперечных стен 2,4-3,6 метра. допускается возможность использование конструкций во всех климатических районах и на территориях с сейсмичностью до 9 баллов.

Файлы для скачивания:
picture_as_pdf

3969.pdf

14,938.4 KB

скачать
picture_as_pdf

3970.pdf

9,618.7 KB

скачать
picture_as_pdf

3971.pdf

5,959.3 KB

скачать
picture_as_pdf

3972.pdf

4,687.1 KB

скачать
picture_as_pdf

3973.pdf

7,814.4 KB

скачать
picture_as_pdf

3974.pdf

6,429.3 KB

скачать
Товары Серия 1.117-12с (40)
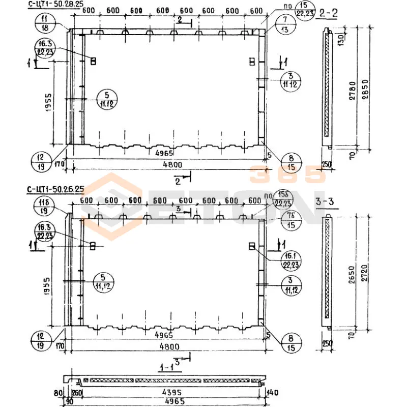
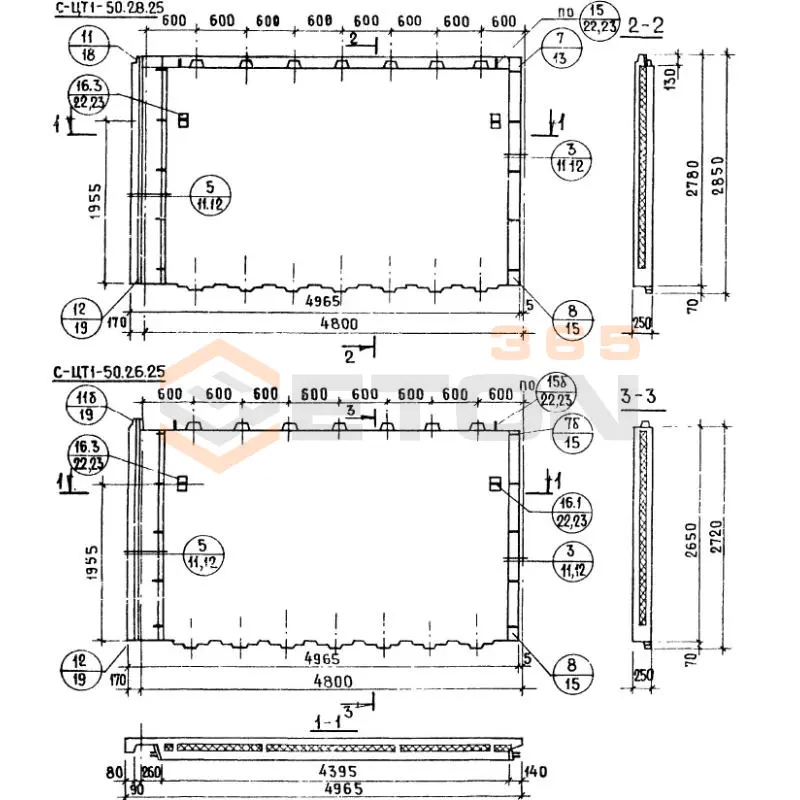
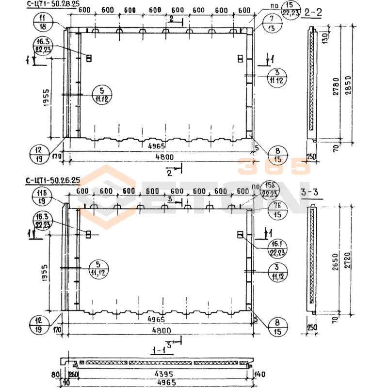
СЦТ 1-50-26-25
Панели стеновые цокольные Серия 1.117-12 с
  • Длина 4965 мм.
  • Ширина 250 мм.
  • Высота 2720 мм.
  • Вес 7180 кг.
  • Объем бетона 2,534 м3
  • Геометрический объем 3,3762 м3
Цена: 98319 руб.
Подробнее
СЦТ 1-50-26-25
Панели стеновые цокольные Серия 1.117-12 с
  • Длина 4965 мм.
  • Ширина 250 мм.
  • Высота 2720 мм.
  • Вес 6085 кг.
  • Объем бетона 2,066 м3
  • Геометрический объем 3,3762 м3
Цена: 80161 руб.
Подробнее
СЦТ 1-50-28-25
Панели стеновые цокольные Серия 1.117-12 с
  • Длина 4965 мм.
  • Ширина 250 мм.
  • Высота 2850 мм.
  • Вес 6145 кг.
  • Объем бетона 2,07 м3
  • Геометрический объем 3,5376 м3
Цена: 80316 руб.
Подробнее
СЦТ 1-50-28-25
Панели стеновые цокольные Серия 1.117-12 с
  • Длина 4965 мм.
  • Ширина 250 мм.
  • Высота 2850 мм.
  • Вес 7240 кг.
  • Объем бетона 2,538 м3
  • Геометрический объем 3,5376 м3
Цена: 98474 руб.
Подробнее
СЦТ 1л-38-26-25
Панели стеновые цокольные Серия 1.117-12 с
  • Длина 3765 мм.
  • Ширина 250 мм.
  • Высота 2720 мм.
  • Вес 5310 кг.
  • Объем бетона 1,869 м3
  • Геометрический объем 2,5602 м3
Цена: 72517 руб.
Подробнее
СЦТ 1л-38-26-25
Панели стеновые цокольные Серия 1.117-12 с
  • Длина 3765 мм.
  • Ширина 250 мм.
  • Высота 2720 мм.
  • Вес 4515 кг.
  • Объем бетона 1,531 м3
  • Геометрический объем 2,5602 м3
Цена: 59403 руб.
Подробнее
СЦТ 1л-38-28-25
Панели стеновые цокольные Серия 1.117-12 с
  • Длина 3765 мм.
  • Ширина 250 мм.
  • Высота 2850 мм.
  • Вес 5355 кг.
  • Объем бетона 1,872 м3
  • Геометрический объем 2,6826 м3
Цена: 72634 руб.
Подробнее
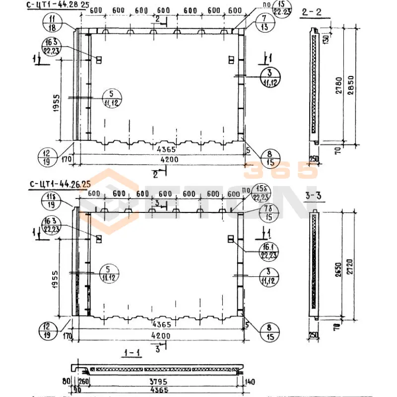
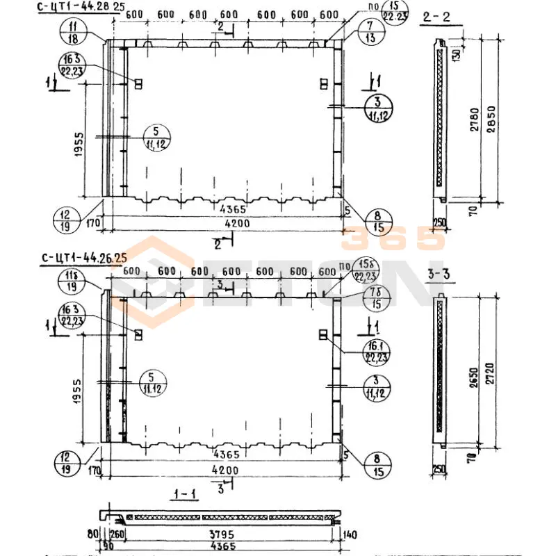
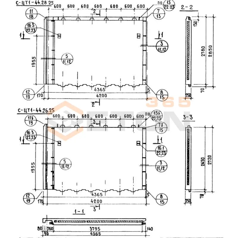
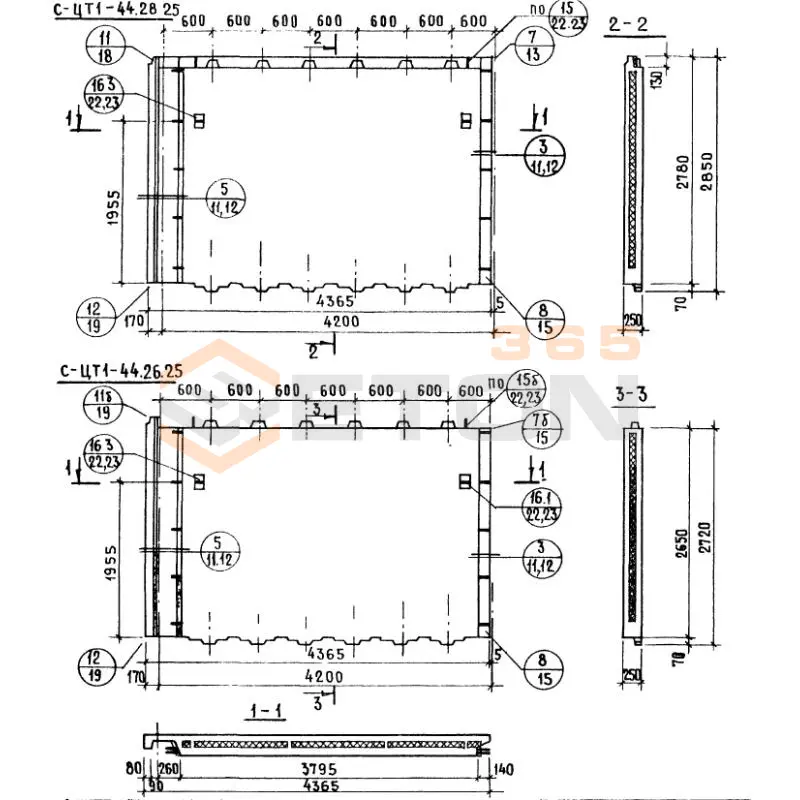
СЦТ 1л-44-26-25
Панели стеновые цокольные Серия 1.117-12 с
  • Длина 4365 мм.
  • Ширина 250 мм.
  • Высота 2720 мм.
  • Вес 6240 кг.
  • Объем бетона 2,2 м3
  • Геометрический объем 2,9682 м3
Цена: 85360 руб.
Подробнее
СЦТ 1л-38-28-25
Панели стеновые цокольные Серия 1.117-12 с
  • Длина 3765 мм.
  • Ширина 250 мм.
  • Высота 2850 мм.
  • Вес 4560 кг.
  • Объем бетона 1,534 м3
  • Геометрический объем 2,6826 м3
Цена: 59519 руб.
Подробнее
СЦТ 1л-44-26-25
Панели стеновые цокольные Серия 1.117-12 с
  • Длина 4365 мм.
  • Ширина 250 мм.
  • Высота 2720 мм.
  • Вес 5295 кг.
  • Объем бетона 1,798 м3
  • Геометрический объем 2,9682 м3
Цена: 69762 руб.
Подробнее
СЦТ 1л-44-28-25
Панели стеновые цокольные Серия 1.117-12 с
  • Длина 4365 мм.
  • Ширина 250 мм.
  • Высота 2850 мм.
  • Вес 5350 кг.
  • Объем бетона 1,802 м3
  • Геометрический объем 3,1101 м3
Цена: 69918 руб.
Подробнее
СЦТ 1л-44-28-25
Панели стеновые цокольные Серия 1.117-12 с
  • Длина 4365 мм.
  • Ширина 250 мм.
  • Высота 2850 мм.
  • Вес 6295 кг.
  • Объем бетона 2,203 м3
  • Геометрический объем 3,1101 м3
Цена: 85476 руб.
Подробнее
СЦТ 1л-50-26-25
Панели стеновые цокольные Серия 1.117-12 с
  • Длина 4965 мм.
  • Ширина 250 мм.
  • Высота 2720 мм.
  • Вес 6085 кг.
  • Объем бетона 2,066 м3
  • Геометрический объем 3,3762 м3
Цена: 80161 руб.
Подробнее
СЦТ 1л-50-28-25
Панели стеновые цокольные Серия 1.117-12 с
  • Длина 4965 мм.
  • Ширина 250 мм.
  • Высота 2850 мм.
  • Вес 6145 кг.
  • Объем бетона 2,07 м3
  • Геометрический объем 3,5376 м3
Цена: 80316 руб.
Подробнее
СЦТ 4-12-26-25
Панели стеновые цокольные Серия 1.117-12 с
  • Длина 1180 мм.
  • Ширина 250 мм.
  • Высота 2720 мм.
  • Вес 1340 кг.
  • Объем бетона 0,433 м3
  • Геометрический объем 0,8024 м3
Цена: 16800 руб.
Подробнее
СЦТ 1л-50-26-25
Панели стеновые цокольные Серия 1.117-12 с
  • Длина 4965 мм.
  • Ширина 250 мм.
  • Высота 2720 мм.
  • Вес 7180 кг.
  • Объем бетона 2,534 м3
  • Геометрический объем 3,3762 м3
Цена: 98319 руб.
Подробнее
СЦТ 4-12-26-25
Панели стеновые цокольные Серия 1.117-12 с
  • Длина 1180 мм.
  • Ширина 250 мм.
  • Высота 2720 мм.
  • Вес 1460 кг.
  • Объем бетона 0,497 м3
  • Геометрический объем 0,8024 м3
Цена: 19284 руб.
Подробнее
СЦТ 1л-50-28-25
Панели стеновые цокольные Серия 1.117-12 с
  • Длина 4965 мм.
  • Ширина 250 мм.
  • Высота 2850 мм.
  • Вес 7240 кг.
  • Объем бетона 2,538 м3
  • Геометрический объем 3,5376 м3
Цена: 98474 руб.
Подробнее
СЦТ 4-18-26-25
Панели стеновые цокольные Серия 1.117-12 с
  • Длина 1780 мм.
  • Ширина 250 мм.
  • Высота 2720 мм.
  • Вес 2390 кг.
  • Объем бетона 0,827 м3
  • Геометрический объем 1,2104 м3
Цена: 32088 руб.
Подробнее
СЦТ 4-12-28-25
Панели стеновые цокольные Серия 1.117-12 с
  • Длина 1180 мм.
  • Ширина 250 мм.
  • Высота 2850 мм.
  • Вес 1360 кг.
  • Объем бетона 0,434 м3
  • Геометрический объем 0,8407 м3
Цена: 16839 руб.
Подробнее
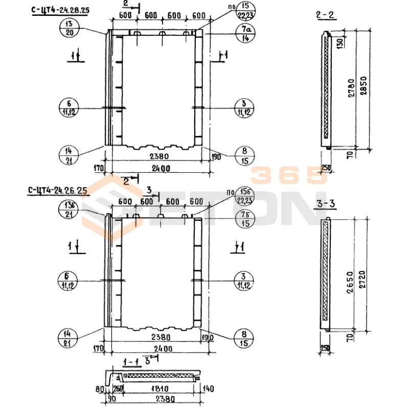
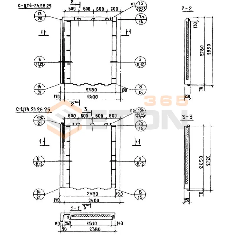
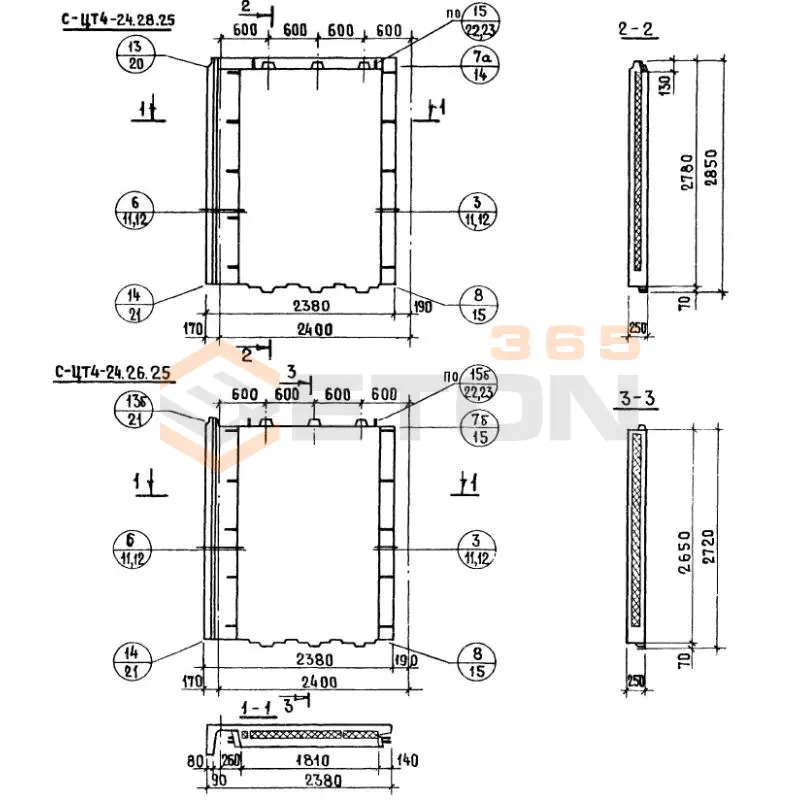
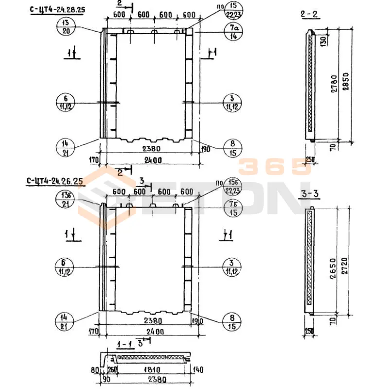
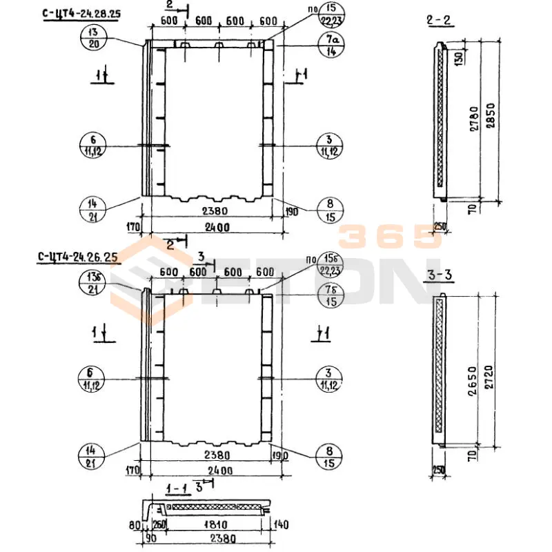
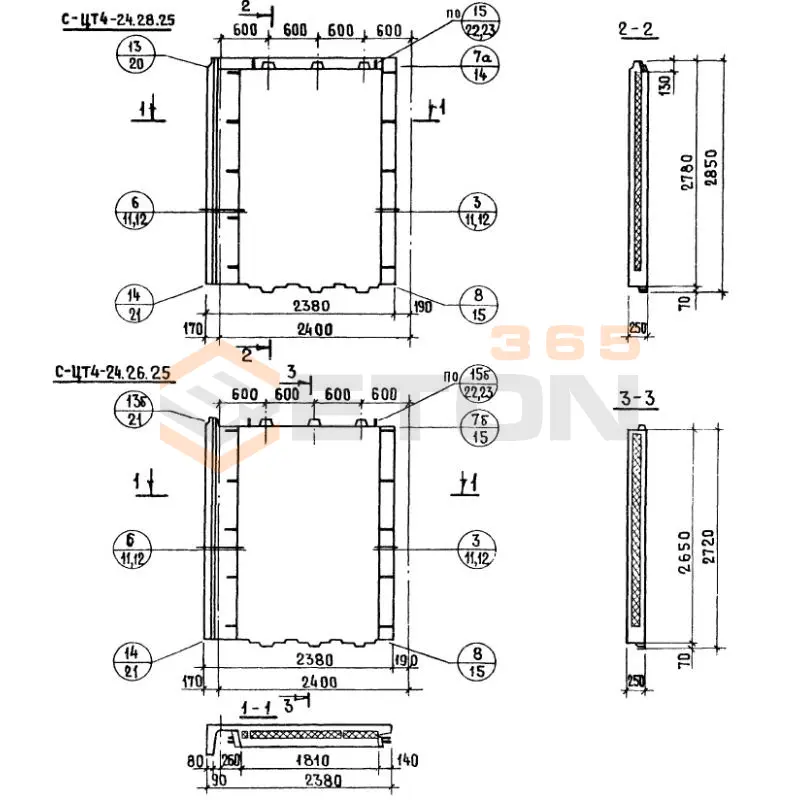
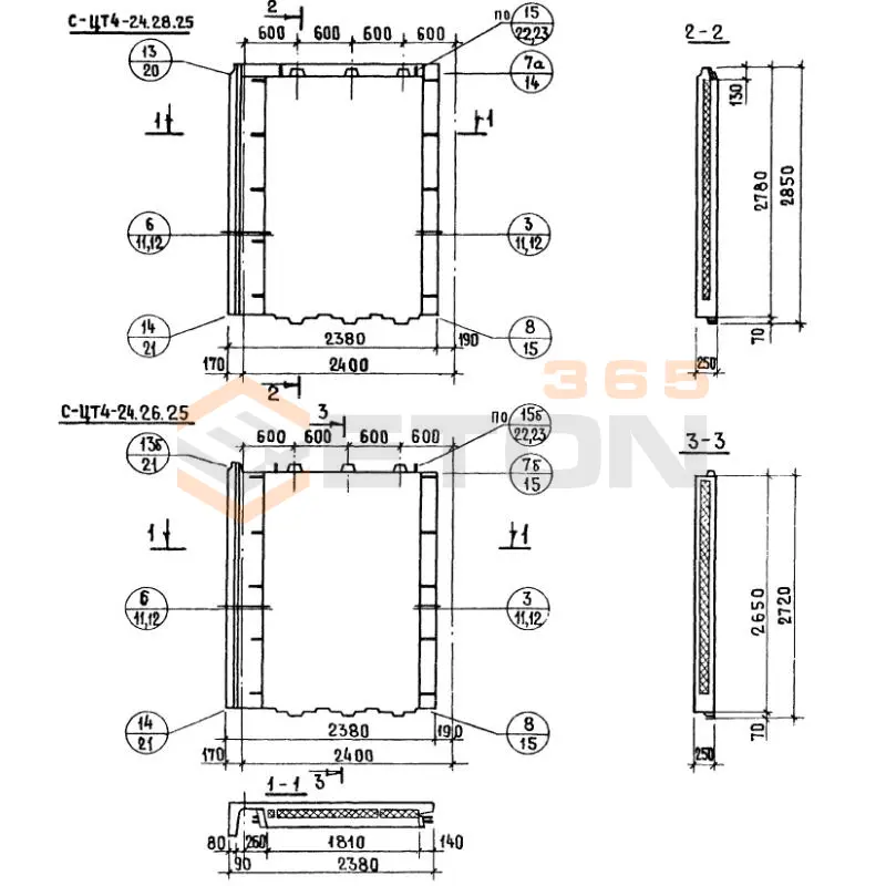
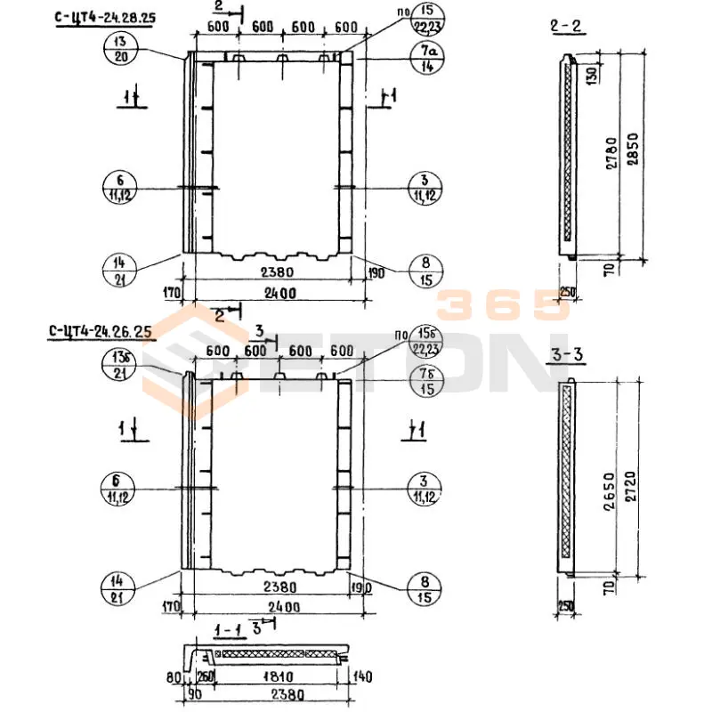
СЦТ 4-24-26-25
Панели стеновые цокольные Серия 1.117-12 с
  • Длина 2380 мм.
  • Ширина 250 мм.
  • Высота 2720 мм.
  • Вес 2940 кг.
  • Объем бетона 0,967 м3
  • Геометрический объем 1,6184 м3
Цена: 37520 руб.
Подробнее
СЦТ 4-12-28-25
Панели стеновые цокольные Серия 1.117-12 с
  • Длина 1180 мм.
  • Ширина 250 мм.
  • Высота 2850 мм.
  • Вес 1480 кг.
  • Объем бетона 0,498 м3
  • Геометрический объем 0,8407 м3
Цена: 19322 руб.
Подробнее
СЦТ 4-18-28-25
Панели стеновые цокольные Серия 1.117-12 с
  • Длина 1780 мм.
  • Ширина 250 мм.
  • Высота 2850 мм.
  • Вес 2165 кг.
  • Объем бетона 0,701 м3
  • Геометрический объем 1,2683 м3
Цена: 27199 руб.
Подробнее
СЦТ 4-18-26-25
Панели стеновые цокольные Серия 1.117-12 с
  • Длина 1780 мм.
  • Ширина 250 мм.
  • Высота 2720 мм.
  • Вес 2140 кг.
  • Объем бетона 0,699 м3
  • Геометрический объем 1,2104 м3
Цена: 27121 руб.
Подробнее
СЦТ 4-18-28-25
Панели стеновые цокольные Серия 1.117-12 с
  • Длина 1780 мм.
  • Ширина 250 мм.
  • Высота 2850 мм.
  • Вес 2415 кг.
  • Объем бетона 0,829 м3
  • Геометрический объем 1,2683 м3
Цена: 32165 руб.
Подробнее
СЦТ 4-24-26-25
Панели стеновые цокольные Серия 1.117-12 с
  • Длина 2380 мм.
  • Ширина 250 мм.
  • Высота 2720 мм.
  • Вес 3295 кг.
  • Объем бетона 1,148 м3
  • Геометрический объем 1,6184 м3
Цена: 44542 руб.
Подробнее
СЦТ 4-24-28-25
Панели стеновые цокольные Серия 1.117-12 с
  • Длина 2380 мм.
  • Ширина 250 мм.
  • Высота 2850 мм.
  • Вес 3325 кг.
  • Объем бетона 1,15 м3
  • Геометрический объем 1,6958 м3
Цена: 44620 руб.
Подробнее
СЦТ 4-24-28-25
Панели стеновые цокольные Серия 1.117-12 с
  • Длина 2380 мм.
  • Ширина 250 мм.
  • Высота 2850 мм.
  • Вес 2975 кг.
  • Объем бетона 0,969 м3
  • Геометрический объем 1,6958 м3
Цена: 37597 руб.
Подробнее
СЦТ 4л-12-26-25
Панели стеновые цокольные Серия 1.117-12 с
  • Длина 1180 мм.
  • Ширина 250 мм.
  • Высота 2720 мм.
  • Вес 1340 кг.
  • Объем бетона 0,433 м3
  • Геометрический объем 0,8024 м3
Цена: 16800 руб.
Подробнее
СЦТ 4л-12-28-25
Панели стеновые цокольные Серия 1.117-12 с
  • Длина 1180 мм.
  • Ширина 250 мм.
  • Высота 2850 мм.
  • Вес 1360 кг.
  • Объем бетона 0,434 м3
  • Геометрический объем 0,8407 м3
Цена: 16839 руб.
Подробнее
СЦТ 4л-12-28-25
Панели стеновые цокольные Серия 1.117-12 с
  • Длина 1180 мм.
  • Ширина 250 мм.
  • Высота 2850 мм.
  • Вес 1480 кг.
  • Объем бетона 0,498 м3
  • Геометрический объем 0,8407 м3
Цена: 19322 руб.
Подробнее
СЦТ 4л-12-26-25
Панели стеновые цокольные Серия 1.117-12 с
  • Длина 1180 мм.
  • Ширина 250 мм.
  • Высота 2720 мм.
  • Вес 1460 кг.
  • Объем бетона 0,497 м3
  • Геометрический объем 0,8024 м3
Цена: 19284 руб.
Подробнее
СЦТ 4л-18-26-25
Панели стеновые цокольные Серия 1.117-12 с
  • Длина 1780 мм.
  • Ширина 250 мм.
  • Высота 2720 мм.
  • Вес 2140 кг.
  • Объем бетона 0,699 м3
  • Геометрический объем 1,2104 м3
Цена: 27121 руб.
Подробнее
СЦТ 4л-18-26-25
Панели стеновые цокольные Серия 1.117-12 с
  • Длина 1780 мм.
  • Ширина 250 мм.
  • Высота 2720 мм.
  • Вес 2390 кг.
  • Объем бетона 0,827 м3
  • Геометрический объем 1,2104 м3
Цена: 32088 руб.
Подробнее
СЦТ 4л-18-28-25
Панели стеновые цокольные Серия 1.117-12 с
  • Длина 1780 мм.
  • Ширина 250 мм.
  • Высота 2850 мм.
  • Вес 2165 кг.
  • Объем бетона 0,701 м3
  • Геометрический объем 1,2683 м3
Цена: 27199 руб.
Подробнее
СЦТ 4л-18-28-25
Панели стеновые цокольные Серия 1.117-12 с
  • Длина 1780 мм.
  • Ширина 250 мм.
  • Высота 2850 мм.
  • Вес 2415 кг.
  • Объем бетона 0,829 м3
  • Геометрический объем 1,2683 м3
Цена: 32165 руб.
Подробнее
СЦТ 4л-24-26-25
Панели стеновые цокольные Серия 1.117-12 с
  • Длина 2380 мм.
  • Ширина 250 мм.
  • Высота 2720 мм.
  • Вес 3295 кг.
  • Объем бетона 1,148 м3
  • Геометрический объем 1,6184 м3
Цена: 44542 руб.
Подробнее
СЦТ 4л-24-28-25
Панели стеновые цокольные Серия 1.117-12 с
  • Длина 2380 мм.
  • Ширина 250 мм.
  • Высота 2850 мм.
  • Вес 2975 кг.
  • Объем бетона 0,969 м3
  • Геометрический объем 1,6958 м3
Цена: 37597 руб.
Подробнее
СЦТ 4л-24-26-25
Панели стеновые цокольные Серия 1.117-12 с
  • Длина 2380 мм.
  • Ширина 250 мм.
  • Высота 2720 мм.
  • Вес 2940 кг.
  • Объем бетона 0,967 м3
  • Геометрический объем 1,6184 м3
Цена: 37520 руб.
Подробнее
СЦТ 4л-24-28-25
Панели стеновые цокольные Серия 1.117-12 с
  • Длина 2380 мм.
  • Ширина 250 мм.
  • Высота 2850 мм.
  • Вес 3325 кг.
  • Объем бетона 1,15 м3
  • Геометрический объем 1,6958 м3
Цена: 44620 руб.
Подробнее

Уведомление о файлах cookie

Мы используем файлы cookie для улучшения вашего опыта просмотра и анализа трафика. Нажимая "Принять все", вы соглашаетесь с нашей политикой конфиденциальности и политикой обработки файлов cookie.

Дзен Телеграм Вконтакте vk