mobile_sound +7 (930) 655-55-90

Техническая документация и чертежи (Рабочие чертежи 164/07-ПР-КЖ)

Поделиться:
Поделиться:

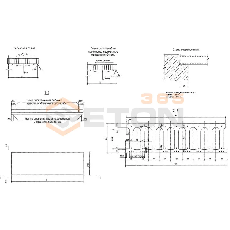
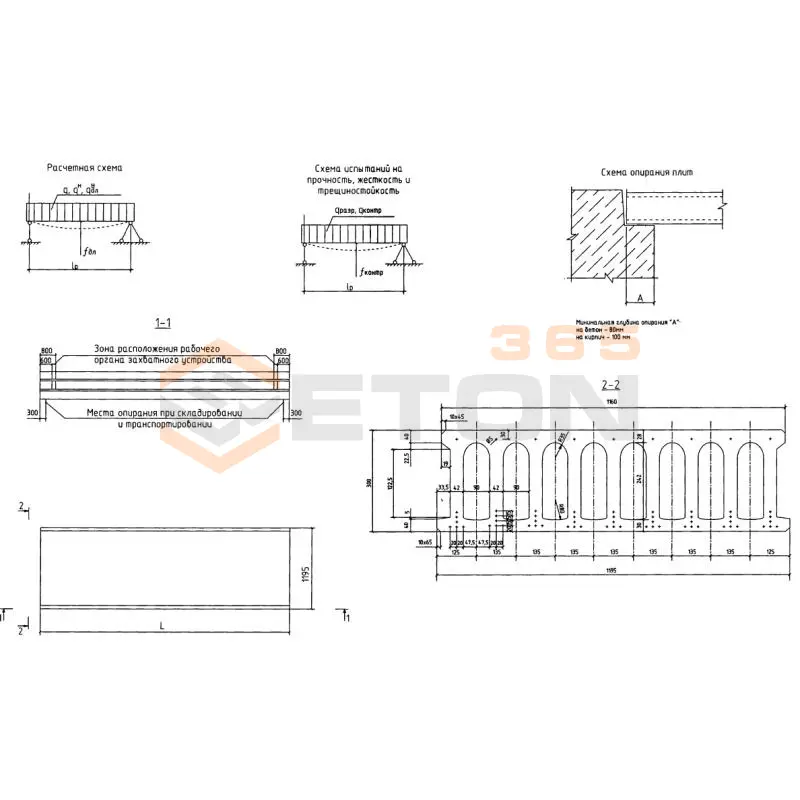
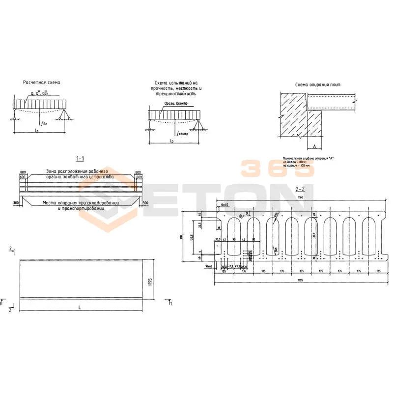
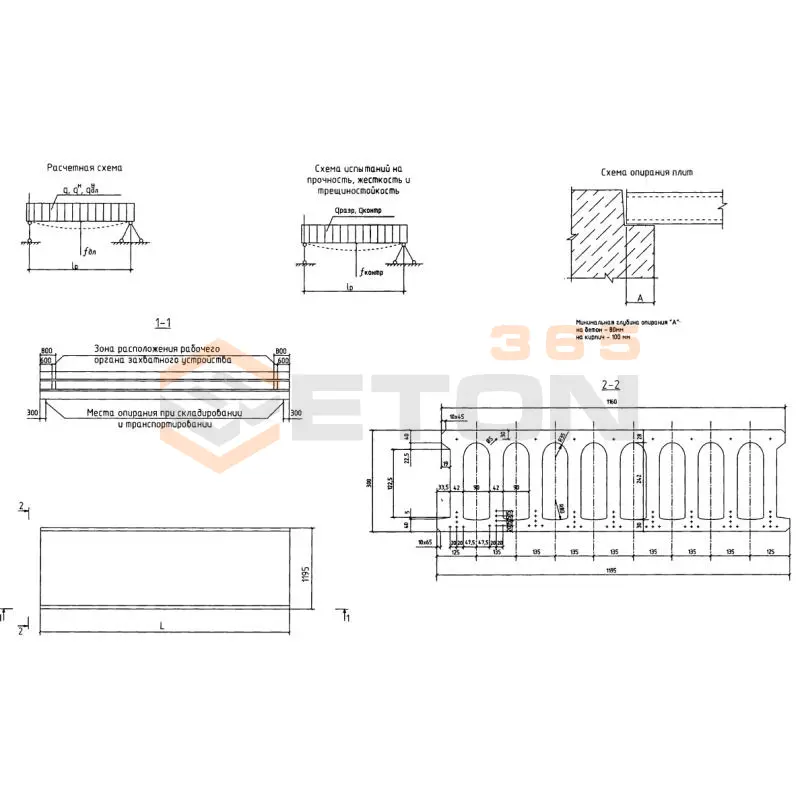
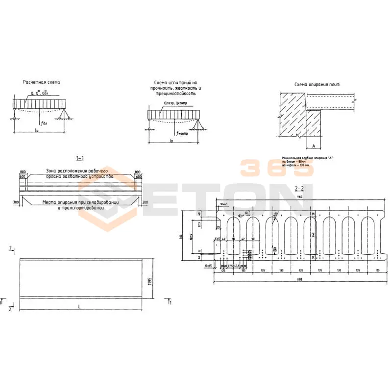
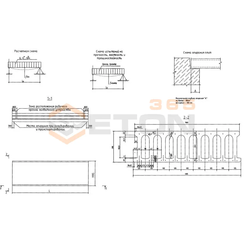
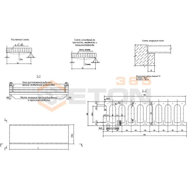
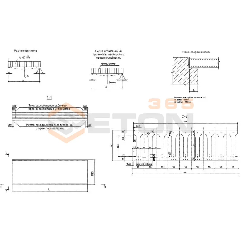
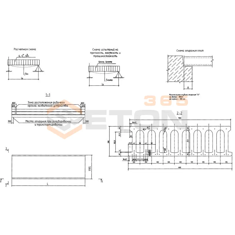
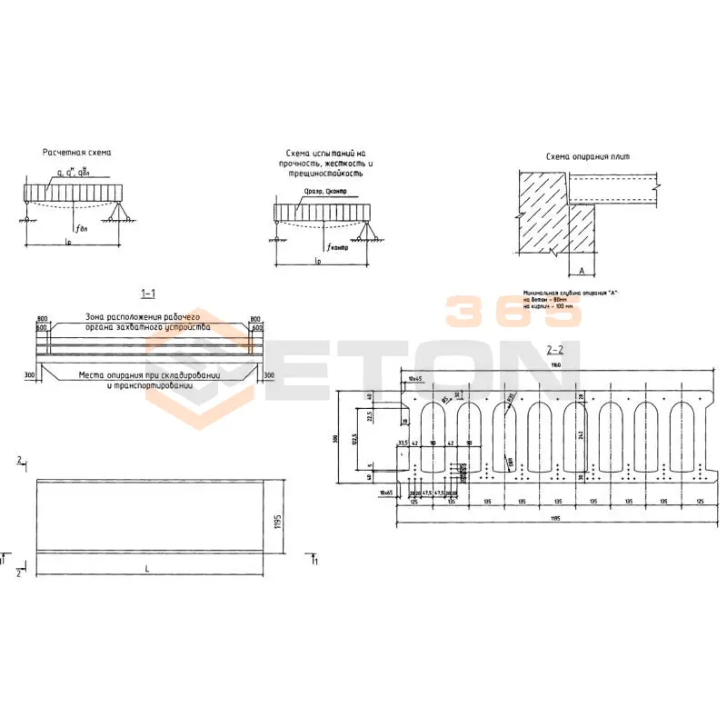
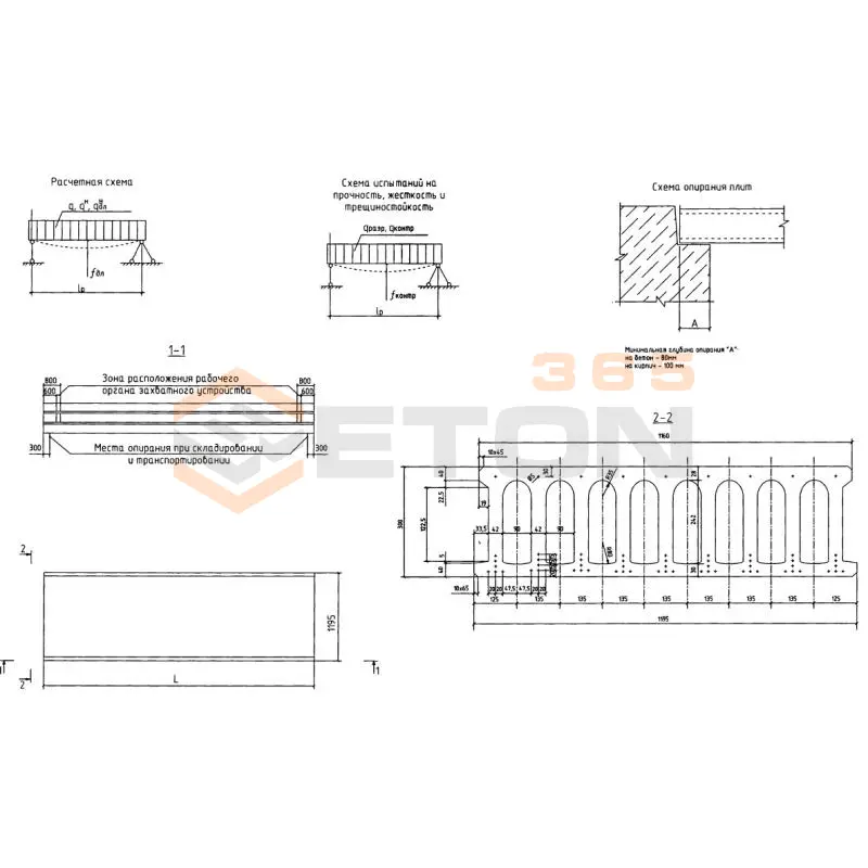
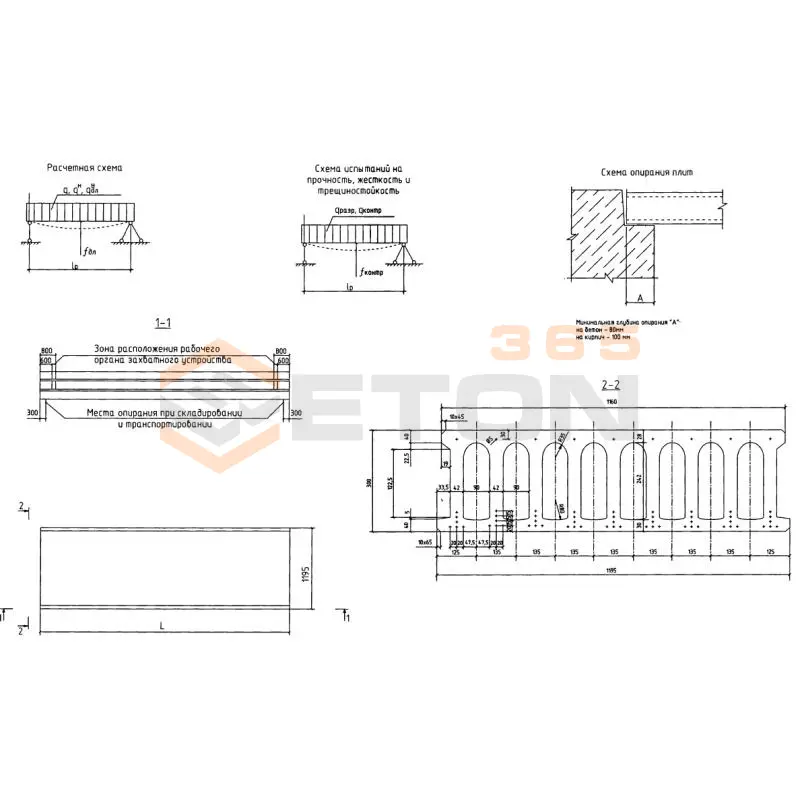
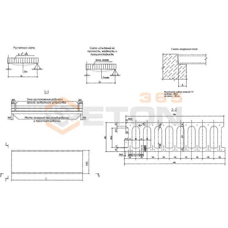
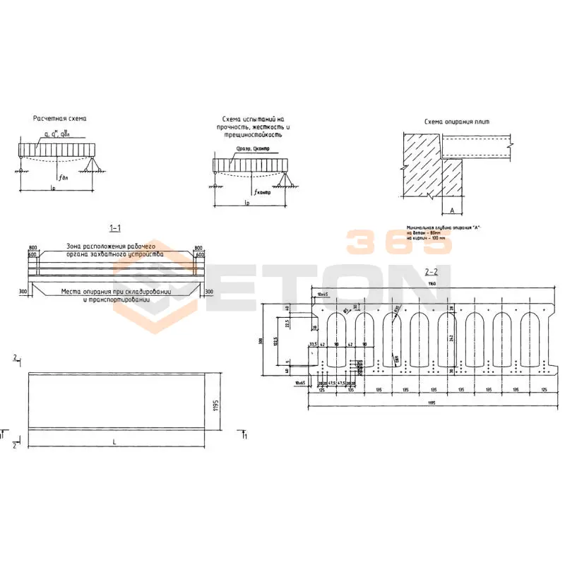
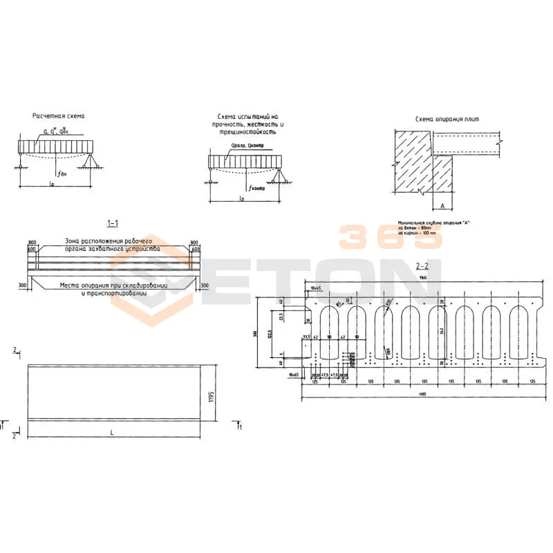
Документ Рабочие чертежи 164/07-ПР-КЖ описывает область применения, номенклатуру и ключевые требования, опираясь на действующие нормы и практику проектирования. Разработанные институтом АНО Новосибсертификация в 2007 году рабочие чертежи 164/07-ПР-КЖ отражают подробные инструкции по производству многопустотных железобетонных плит перекрытия. изделия и конструкции применяются при строительстве различных общественных, жилых, культурно-бытовых и административных зданий в качестве межэтажных перекрытий. Главной отличительной особенностью производимых по данным рабочим чертежам конструкций является изготовление безопалубочным способом.

Файлы для скачивания:
picture_as_pdf

5002.pdf

940.5 KB

скачать
Товары Рабочие чертежи 164/07-ПР-КЖ (60)
3ПБ 102-12-10 (РЧ 164/07-ПР-КЖ)
Плиты многопустотные Рабочие чертежи 164/07-ПР-КЖ
  • Длина 10180 мм.
  • Ширина 1195 мм.
  • Высота 300 мм.
  • Вес 4530 кг.
  • Объем бетона 1,88 м3
  • Геометрический объем 3,6495 м3
Цена: 36472 руб.
Подробнее
3ПБ 102-12-3 (РЧ 164/07-ПР-КЖ)
Плиты многопустотные Рабочие чертежи 164/07-ПР-КЖ
  • Длина 10180 мм.
  • Ширина 1195 мм.
  • Высота 300 мм.
  • Вес 4530 кг.
  • Объем бетона 1,88 м3
  • Геометрический объем 3,6495 м3
Цена: 36472 руб.
Подробнее
3ПБ 102-12-4,5 (РЧ 164/07-ПР-КЖ)
Плиты многопустотные Рабочие чертежи 164/07-ПР-КЖ
  • Длина 10180 мм.
  • Ширина 1195 мм.
  • Высота 300 мм.
  • Вес 4530 кг.
  • Объем бетона 1,88 м3
  • Геометрический объем 3,6495 м3
Цена: 36472 руб.
Подробнее
3ПБ 102-12-8 (РЧ 164/07-ПР-КЖ)
Плиты многопустотные Рабочие чертежи 164/07-ПР-КЖ
  • Длина 10180 мм.
  • Ширина 1195 мм.
  • Высота 300 мм.
  • Вес 4530 кг.
  • Объем бетона 1,88 м3
  • Геометрический объем 3,6495 м3
Цена: 36472 руб.
Подробнее
3ПБ 102-12-6 (РЧ 164/07-ПР-КЖ)
Плиты многопустотные Рабочие чертежи 164/07-ПР-КЖ
  • Длина 10180 мм.
  • Ширина 1195 мм.
  • Высота 300 мм.
  • Вес 4530 кг.
  • Объем бетона 1,88 м3
  • Геометрический объем 3,6495 м3
Цена: 36472 руб.
Подробнее
3ПБ 108-12-3 (РЧ 164/07-ПР-КЖ)
Плиты многопустотные Рабочие чертежи 164/07-ПР-КЖ
  • Длина 10780 мм.
  • Ширина 1195 мм.
  • Высота 300 мм.
  • Вес 4800 кг.
  • Объем бетона 2 м3
  • Геометрический объем 3,8646 м3
Цена: 38800 руб.
Подробнее
3ПБ 108-12-6 (РЧ 164/07-ПР-КЖ)
Плиты многопустотные Рабочие чертежи 164/07-ПР-КЖ
  • Длина 10780 мм.
  • Ширина 1195 мм.
  • Высота 300 мм.
  • Вес 4800 кг.
  • Объем бетона 2 м3
  • Геометрический объем 3,8646 м3
Цена: 38800 руб.
Подробнее
3ПБ 108-12-4,5 (РЧ 164/07-ПР-КЖ)
Плиты многопустотные Рабочие чертежи 164/07-ПР-КЖ
  • Длина 10780 мм.
  • Ширина 1195 мм.
  • Высота 300 мм.
  • Вес 4800 кг.
  • Объем бетона 2 м3
  • Геометрический объем 3,8646 м3
Цена: 38800 руб.
Подробнее
3ПБ 114-12-3 (РЧ 164/07-ПР-КЖ)
Плиты многопустотные Рабочие чертежи 164/07-ПР-КЖ
  • Длина 11380 мм.
  • Ширина 1195 мм.
  • Высота 300 мм.
  • Вес 5080 кг.
  • Объем бетона 2,11 м3
  • Геометрический объем 4,0797 м3
Цена: 40934 руб.
Подробнее
3ПБ 108-12-8 (РЧ 164/07-ПР-КЖ)
Плиты многопустотные Рабочие чертежи 164/07-ПР-КЖ
  • Длина 10780 мм.
  • Ширина 1195 мм.
  • Высота 300 мм.
  • Вес 4800 кг.
  • Объем бетона 2 м3
  • Геометрический объем 3,8646 м3
Цена: 38800 руб.
Подробнее
3ПБ 114-12-4,5 (РЧ 164/07-ПР-КЖ)
Плиты многопустотные Рабочие чертежи 164/07-ПР-КЖ
  • Длина 11380 мм.
  • Ширина 1195 мм.
  • Высота 300 мм.
  • Вес 5080 кг.
  • Объем бетона 2,11 м3
  • Геометрический объем 4,0797 м3
Цена: 40934 руб.
Подробнее
3ПБ 114-12-8 (РЧ 164/07-ПР-КЖ)
Плиты многопустотные Рабочие чертежи 164/07-ПР-КЖ
  • Длина 11380 мм.
  • Ширина 1195 мм.
  • Высота 300 мм.
  • Вес 5080 кг.
  • Объем бетона 2,11 м3
  • Геометрический объем 4,0797 м3
Цена: 40934 руб.
Подробнее
3ПБ 114-12-6 (РЧ 164/07-ПР-КЖ)
Плиты многопустотные Рабочие чертежи 164/07-ПР-КЖ
  • Длина 11380 мм.
  • Ширина 1195 мм.
  • Высота 300 мм.
  • Вес 5080 кг.
  • Объем бетона 2,11 м3
  • Геометрический объем 4,0797 м3
Цена: 40934 руб.
Подробнее
3ПБ 120-12-3 (РЧ 164/07-ПР-КЖ)
Плиты многопустотные Рабочие чертежи 164/07-ПР-КЖ
  • Длина 11980 мм.
  • Ширина 1195 мм.
  • Высота 300 мм.
  • Вес 5330 кг.
  • Объем бетона 2,22 м3
  • Геометрический объем 4,2948 м3
Цена: 43068 руб.
Подробнее
3ПБ 120-12-4,5 (РЧ 164/07-ПР-КЖ)
Плиты многопустотные Рабочие чертежи 164/07-ПР-КЖ
  • Длина 11980 мм.
  • Ширина 1195 мм.
  • Высота 300 мм.
  • Вес 5330 кг.
  • Объем бетона 2,22 м3
  • Геометрический объем 4,2948 м3
Цена: 43068 руб.
Подробнее
3ПБ 120-12-8 (РЧ 164/07-ПР-КЖ)
Плиты многопустотные Рабочие чертежи 164/07-ПР-КЖ
  • Длина 11980 мм.
  • Ширина 1195 мм.
  • Высота 300 мм.
  • Вес 5330 кг.
  • Объем бетона 2,22 м3
  • Геометрический объем 4,2948 м3
Цена: 43068 руб.
Подробнее
3ПБ 36-12-27 (РЧ 164/07-ПР-КЖ)
Плиты многопустотные Рабочие чертежи 164/07-ПР-КЖ
  • Длина 3580 мм.
  • Ширина 1195 мм.
  • Высота 300 мм.
  • Вес 1520 кг.
  • Объем бетона 0,664 м3
  • Геометрический объем 1,2834 м3
Цена: 12882 руб.
Подробнее
3ПБ 36-12-10 (РЧ 164/07-ПР-КЖ)
Плиты многопустотные Рабочие чертежи 164/07-ПР-КЖ
  • Длина 3580 мм.
  • Ширина 1195 мм.
  • Высота 300 мм.
  • Вес 1520 кг.
  • Объем бетона 0,664 м3
  • Геометрический объем 1,2834 м3
Цена: 12882 руб.
Подробнее
3ПБ 36-12-21 (РЧ 164/07-ПР-КЖ)
Плиты многопустотные Рабочие чертежи 164/07-ПР-КЖ
  • Длина 3580 мм.
  • Ширина 1195 мм.
  • Высота 300 мм.
  • Вес 1520 кг.
  • Объем бетона 0,664 м3
  • Геометрический объем 1,2834 м3
Цена: 12882 руб.
Подробнее
3ПБ 36-12-16 (РЧ 164/07-ПР-КЖ)
Плиты многопустотные Рабочие чертежи 164/07-ПР-КЖ
  • Длина 3580 мм.
  • Ширина 1195 мм.
  • Высота 300 мм.
  • Вес 1520 кг.
  • Объем бетона 0,664 м3
  • Геометрический объем 1,2834 м3
Цена: 12882 руб.
Подробнее
3ПБ 36-12-12,5 (РЧ 164/07-ПР-КЖ)
Плиты многопустотные Рабочие чертежи 164/07-ПР-КЖ
  • Длина 3580 мм.
  • Ширина 1195 мм.
  • Высота 300 мм.
  • Вес 1520 кг.
  • Объем бетона 0,664 м3
  • Геометрический объем 1,2834 м3
Цена: 12882 руб.
Подробнее
3ПБ 120-12-6 (РЧ 164/07-ПР-КЖ)
Плиты многопустотные Рабочие чертежи 164/07-ПР-КЖ
  • Длина 11980 мм.
  • Ширина 1195 мм.
  • Высота 300 мм.
  • Вес 5330 кг.
  • Объем бетона 2,22 м3
  • Геометрический объем 4,2948 м3
Цена: 43068 руб.
Подробнее
3ПБ 36-12-30 (РЧ 164/07-ПР-КЖ)
Плиты многопустотные Рабочие чертежи 164/07-ПР-КЖ
  • Длина 3580 мм.
  • Ширина 1195 мм.
  • Высота 300 мм.
  • Вес 1520 кг.
  • Объем бетона 0,664 м3
  • Геометрический объем 1,2834 м3
Цена: 12882 руб.
Подробнее
3ПБ 42-12-16 (РЧ 164/07-ПР-КЖ)
Плиты многопустотные Рабочие чертежи 164/07-ПР-КЖ
  • Длина 4180 мм.
  • Ширина 1195 мм.
  • Высота 300 мм.
  • Вес 1850 кг.
  • Объем бетона 0,775 м3
  • Геометрический объем 1,4985 м3
Цена: 15035 руб.
Подробнее
3ПБ 36-12-8 (РЧ 164/07-ПР-КЖ)
Плиты многопустотные Рабочие чертежи 164/07-ПР-КЖ
  • Длина 3580 мм.
  • Ширина 1195 мм.
  • Высота 300 мм.
  • Вес 1520 кг.
  • Объем бетона 0,664 м3
  • Геометрический объем 1,2834 м3
Цена: 12882 руб.
Подробнее
3ПБ 42-12-12,5 (РЧ 164/07-ПР-КЖ)
Плиты многопустотные Рабочие чертежи 164/07-ПР-КЖ
  • Длина 4180 мм.
  • Ширина 1195 мм.
  • Высота 300 мм.
  • Вес 1850 кг.
  • Объем бетона 0,775 м3
  • Геометрический объем 1,4985 м3
Цена: 15035 руб.
Подробнее
3ПБ 42-12-10 (РЧ 164/07-ПР-КЖ)
Плиты многопустотные Рабочие чертежи 164/07-ПР-КЖ
  • Длина 4180 мм.
  • Ширина 1195 мм.
  • Высота 300 мм.
  • Вес 1850 кг.
  • Объем бетона 0,775 м3
  • Геометрический объем 1,4985 м3
Цена: 15035 руб.
Подробнее
3ПБ 42-12-21 (РЧ 164/07-ПР-КЖ)
Плиты многопустотные Рабочие чертежи 164/07-ПР-КЖ
  • Длина 4180 мм.
  • Ширина 1195 мм.
  • Высота 300 мм.
  • Вес 1850 кг.
  • Объем бетона 0,775 м3
  • Геометрический объем 1,4985 м3
Цена: 15035 руб.
Подробнее
3ПБ 42-12-27 (РЧ 164/07-ПР-КЖ)
Плиты многопустотные Рабочие чертежи 164/07-ПР-КЖ
  • Длина 4180 мм.
  • Ширина 1195 мм.
  • Высота 300 мм.
  • Вес 1850 кг.
  • Объем бетона 0,775 м3
  • Геометрический объем 1,4985 м3
Цена: 15035 руб.
Подробнее
3ПБ 42-12-30 (РЧ 164/07-ПР-КЖ)
Плиты многопустотные Рабочие чертежи 164/07-ПР-КЖ
  • Длина 4180 мм.
  • Ширина 1195 мм.
  • Высота 300 мм.
  • Вес 1850 кг.
  • Объем бетона 0,775 м3
  • Геометрический объем 1,4985 м3
Цена: 15035 руб.
Подробнее
3ПБ 42-12-8 (РЧ 164/07-ПР-КЖ)
Плиты многопустотные Рабочие чертежи 164/07-ПР-КЖ
  • Длина 4180 мм.
  • Ширина 1195 мм.
  • Высота 300 мм.
  • Вес 1850 кг.
  • Объем бетона 0,775 м3
  • Геометрический объем 1,4985 м3
Цена: 15035 руб.
Подробнее
3ПБ 48-12-16 (РЧ 164/07-ПР-КЖ)
Плиты многопустотные Рабочие чертежи 164/07-ПР-КЖ
  • Длина 4780 мм.
  • Ширина 1195 мм.
  • Высота 300 мм.
  • Вес 2130 кг.
  • Объем бетона 0,885 м3
  • Геометрический объем 1,7136 м3
Цена: 17169 руб.
Подробнее
3ПБ 48-12-21 (РЧ 164/07-ПР-КЖ)
Плиты многопустотные Рабочие чертежи 164/07-ПР-КЖ
  • Длина 4780 мм.
  • Ширина 1195 мм.
  • Высота 300 мм.
  • Вес 2130 кг.
  • Объем бетона 0,885 м3
  • Геометрический объем 1,7136 м3
Цена: 17169 руб.
Подробнее
3ПБ 48-12-10 (РЧ 164/07-ПР-КЖ)
Плиты многопустотные Рабочие чертежи 164/07-ПР-КЖ
  • Длина 4780 мм.
  • Ширина 1195 мм.
  • Высота 300 мм.
  • Вес 2130 кг.
  • Объем бетона 0,885 м3
  • Геометрический объем 1,7136 м3
Цена: 17169 руб.
Подробнее
3ПБ 48-12-12,5 (РЧ 164/07-ПР-КЖ)
Плиты многопустотные Рабочие чертежи 164/07-ПР-КЖ
  • Длина 4780 мм.
  • Ширина 1195 мм.
  • Высота 300 мм.
  • Вес 2130 кг.
  • Объем бетона 0,885 м3
  • Геометрический объем 1,7136 м3
Цена: 17169 руб.
Подробнее
3ПБ 48-12-27 (РЧ 164/07-ПР-КЖ)
Плиты многопустотные Рабочие чертежи 164/07-ПР-КЖ
  • Длина 4780 мм.
  • Ширина 1195 мм.
  • Высота 300 мм.
  • Вес 2130 кг.
  • Объем бетона 0,885 м3
  • Геометрический объем 1,7136 м3
Цена: 17169 руб.
Подробнее
3ПБ 48-12-30 (РЧ 164/07-ПР-КЖ)
Плиты многопустотные Рабочие чертежи 164/07-ПР-КЖ
  • Длина 4780 мм.
  • Ширина 1195 мм.
  • Высота 300 мм.
  • Вес 2130 кг.
  • Объем бетона 0,885 м3
  • Геометрический объем 1,7136 м3
Цена: 17169 руб.
Подробнее
3ПБ 48-12-8 (РЧ 164/07-ПР-КЖ)
Плиты многопустотные Рабочие чертежи 164/07-ПР-КЖ
  • Длина 4780 мм.
  • Ширина 1195 мм.
  • Высота 300 мм.
  • Вес 2130 кг.
  • Объем бетона 0,885 м3
  • Геометрический объем 1,7136 м3
Цена: 17169 руб.
Подробнее
3ПБ 54-12-10 (РЧ 164/07-ПР-КЖ)
Плиты многопустотные Рабочие чертежи 164/07-ПР-КЖ
  • Длина 5380 мм.
  • Ширина 1195 мм.
  • Высота 300 мм.
  • Вес 2400 кг.
  • Объем бетона 0,998 м3
  • Геометрический объем 1,9287 м3
Цена: 19361 руб.
Подробнее
3ПБ 54-12-12,5 (РЧ 164/07-ПР-КЖ)
Плиты многопустотные Рабочие чертежи 164/07-ПР-КЖ
  • Длина 5380 мм.
  • Ширина 1195 мм.
  • Высота 300 мм.
  • Вес 2400 кг.
  • Объем бетона 0,998 м3
  • Геометрический объем 1,9287 м3
Цена: 19361 руб.
Подробнее
3ПБ 54-12-21 (РЧ 164/07-ПР-КЖ)
Плиты многопустотные Рабочие чертежи 164/07-ПР-КЖ
  • Длина 5380 мм.
  • Ширина 1195 мм.
  • Высота 300 мм.
  • Вес 2400 кг.
  • Объем бетона 0,998 м3
  • Геометрический объем 1,9287 м3
Цена: 19361 руб.
Подробнее
3ПБ 54-12-27 (РЧ 164/07-ПР-КЖ)
Плиты многопустотные Рабочие чертежи 164/07-ПР-КЖ
  • Длина 5380 мм.
  • Ширина 1195 мм.
  • Высота 300 мм.
  • Вес 2400 кг.
  • Объем бетона 0,998 м3
  • Геометрический объем 1,9287 м3
Цена: 19361 руб.
Подробнее
3ПБ 54-12-16 (РЧ 164/07-ПР-КЖ)
Плиты многопустотные Рабочие чертежи 164/07-ПР-КЖ
  • Длина 5380 мм.
  • Ширина 1195 мм.
  • Высота 300 мм.
  • Вес 2400 кг.
  • Объем бетона 0,998 м3
  • Геометрический объем 1,9287 м3
Цена: 19361 руб.
Подробнее
3ПБ 54-12-30 (РЧ 164/07-ПР-КЖ)
Плиты многопустотные Рабочие чертежи 164/07-ПР-КЖ
  • Длина 5380 мм.
  • Ширина 1195 мм.
  • Высота 300 мм.
  • Вес 2400 кг.
  • Объем бетона 0,998 м3
  • Геометрический объем 1,9287 м3
Цена: 19361 руб.
Подробнее
3ПБ 54-12-8 (РЧ 164/07-ПР-КЖ)
Плиты многопустотные Рабочие чертежи 164/07-ПР-КЖ
  • Длина 5380 мм.
  • Ширина 1195 мм.
  • Высота 300 мм.
  • Вес 2400 кг.
  • Объем бетона 0,998 м3
  • Геометрический объем 1,9287 м3
Цена: 19361 руб.
Подробнее
3ПБ 60-12-16 (РЧ 164/07-ПР-КЖ)
Плиты многопустотные Рабочие чертежи 164/07-ПР-КЖ
  • Длина 5980 мм.
  • Ширина 1195 мм.
  • Высота 300 мм.
  • Вес 2650 кг.
  • Объем бетона 1,1 м3
  • Геометрический объем 2,1438 м3
Цена: 21340 руб.
Подробнее
3ПБ 60-12-10 (РЧ 164/07-ПР-КЖ)
Плиты многопустотные Рабочие чертежи 164/07-ПР-КЖ
  • Длина 5980 мм.
  • Ширина 1195 мм.
  • Высота 300 мм.
  • Вес 2650 кг.
  • Объем бетона 1,1 м3
  • Геометрический объем 2,1438 м3
Цена: 21340 руб.
Подробнее
3ПБ 60-12-12,5 (РЧ 164/07-ПР-КЖ)
Плиты многопустотные Рабочие чертежи 164/07-ПР-КЖ
  • Длина 5980 мм.
  • Ширина 1195 мм.
  • Высота 300 мм.
  • Вес 2650 кг.
  • Объем бетона 1,1 м3
  • Геометрический объем 2,1438 м3
Цена: 21340 руб.
Подробнее
3ПБ 60-12-21 (РЧ 164/07-ПР-КЖ)
Плиты многопустотные Рабочие чертежи 164/07-ПР-КЖ
  • Длина 5980 мм.
  • Ширина 1195 мм.
  • Высота 300 мм.
  • Вес 2650 кг.
  • Объем бетона 1,1 м3
  • Геометрический объем 2,1438 м3
Цена: 21340 руб.
Подробнее
3ПБ 60-12-27 (РЧ 164/07-ПР-КЖ)
Плиты многопустотные Рабочие чертежи 164/07-ПР-КЖ
  • Длина 5980 мм.
  • Ширина 1195 мм.
  • Высота 300 мм.
  • Вес 2650 кг.
  • Объем бетона 1,1 м3
  • Геометрический объем 2,1438 м3
Цена: 21340 руб.
Подробнее
3ПБ 66-12-10 (РЧ 164/07-ПР-КЖ)
Плиты многопустотные Рабочие чертежи 164/07-ПР-КЖ
  • Длина 6580 мм.
  • Ширина 1195 мм.
  • Высота 300 мм.
  • Вес 2930 кг.
  • Объем бетона 1,22 м3
  • Геометрический объем 2,3589 м3
Цена: 23668 руб.
Подробнее
3ПБ 60-12-8 (РЧ 164/07-ПР-КЖ)
Плиты многопустотные Рабочие чертежи 164/07-ПР-КЖ
  • Длина 5980 мм.
  • Ширина 1195 мм.
  • Высота 300 мм.
  • Вес 2650 кг.
  • Объем бетона 1,1 м3
  • Геометрический объем 2,1438 м3
Цена: 21340 руб.
Подробнее
3ПБ 66-12-12,5 (РЧ 164/07-ПР-КЖ)
Плиты многопустотные Рабочие чертежи 164/07-ПР-КЖ
  • Длина 6580 мм.
  • Ширина 1195 мм.
  • Высота 300 мм.
  • Вес 2930 кг.
  • Объем бетона 1,22 м3
  • Геометрический объем 2,3589 м3
Цена: 23668 руб.
Подробнее
3ПБ 66-12-3 (РЧ 164/07-ПР-КЖ)
Плиты многопустотные Рабочие чертежи 164/07-ПР-КЖ
  • Длина 6580 мм.
  • Ширина 1195 мм.
  • Высота 300 мм.
  • Вес 2930 кг.
  • Объем бетона 1,22 м3
  • Геометрический объем 2,3589 м3
Цена: 23668 руб.
Подробнее
3ПБ 66-12-4,5 (РЧ 164/07-ПР-КЖ)
Плиты многопустотные Рабочие чертежи 164/07-ПР-КЖ
  • Длина 6580 мм.
  • Ширина 1195 мм.
  • Высота 300 мм.
  • Вес 2930 кг.
  • Объем бетона 1,22 м3
  • Геометрический объем 2,3589 м3
Цена: 23668 руб.
Подробнее
3ПБ 66-12-21 (РЧ 164/07-ПР-КЖ)
Плиты многопустотные Рабочие чертежи 164/07-ПР-КЖ
  • Длина 6580 мм.
  • Ширина 1195 мм.
  • Высота 300 мм.
  • Вес 2930 кг.
  • Объем бетона 1,22 м3
  • Геометрический объем 2,3589 м3
Цена: 23668 руб.
Подробнее
3ПБ 66-12-16 (РЧ 164/07-ПР-КЖ)
Плиты многопустотные Рабочие чертежи 164/07-ПР-КЖ
  • Длина 6580 мм.
  • Ширина 1195 мм.
  • Высота 300 мм.
  • Вес 2930 кг.
  • Объем бетона 1,22 м3
  • Геометрический объем 2,3589 м3
Цена: 23668 руб.
Подробнее
3ПБ 66-12-6 (РЧ 164/07-ПР-КЖ)
Плиты многопустотные Рабочие чертежи 164/07-ПР-КЖ
  • Длина 6580 мм.
  • Ширина 1195 мм.
  • Высота 300 мм.
  • Вес 2930 кг.
  • Объем бетона 1,22 м3
  • Геометрический объем 2,3589 м3
Цена: 23668 руб.
Подробнее
3ПБ 66-12-8 (РЧ 164/07-ПР-КЖ)
Плиты многопустотные Рабочие чертежи 164/07-ПР-КЖ
  • Длина 6580 мм.
  • Ширина 1195 мм.
  • Высота 300 мм.
  • Вес 2930 кг.
  • Объем бетона 1,22 м3
  • Геометрический объем 2,3589 м3
Цена: 23668 руб.
Подробнее
3ПБ 72-12-12,5 (РЧ 164/07-ПР-КЖ)
Плиты многопустотные Рабочие чертежи 164/07-ПР-КЖ
  • Длина 7180 мм.
  • Ширина 1195 мм.
  • Высота 300 мм.
  • Вес 3200 кг.
  • Объем бетона 1,33 м3
  • Геометрический объем 2,574 м3
Цена: 25802 руб.
Подробнее

Уведомление о файлах cookie

Мы используем файлы cookie для улучшения вашего опыта просмотра и анализа трафика. Нажимая "Принять все", вы соглашаетесь с нашей политикой конфиденциальности и политикой обработки файлов cookie.

MAX Дзен Телеграм Вконтакте vk