mobile_sound +7 (930) 655-55-90

Техническая документация и чертежи (ИНВ 42015м)

Поделиться:
Поделиться:

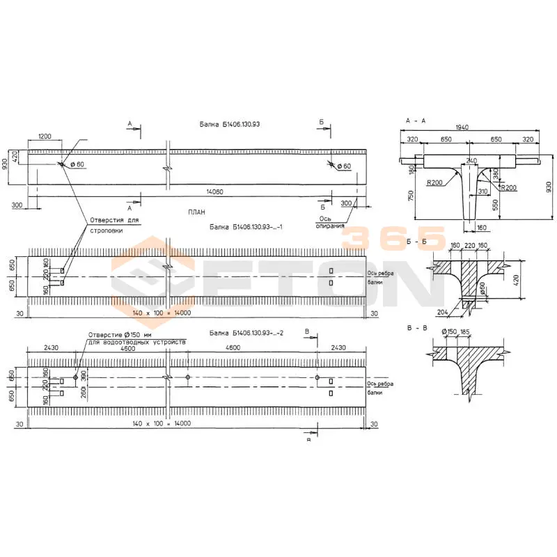
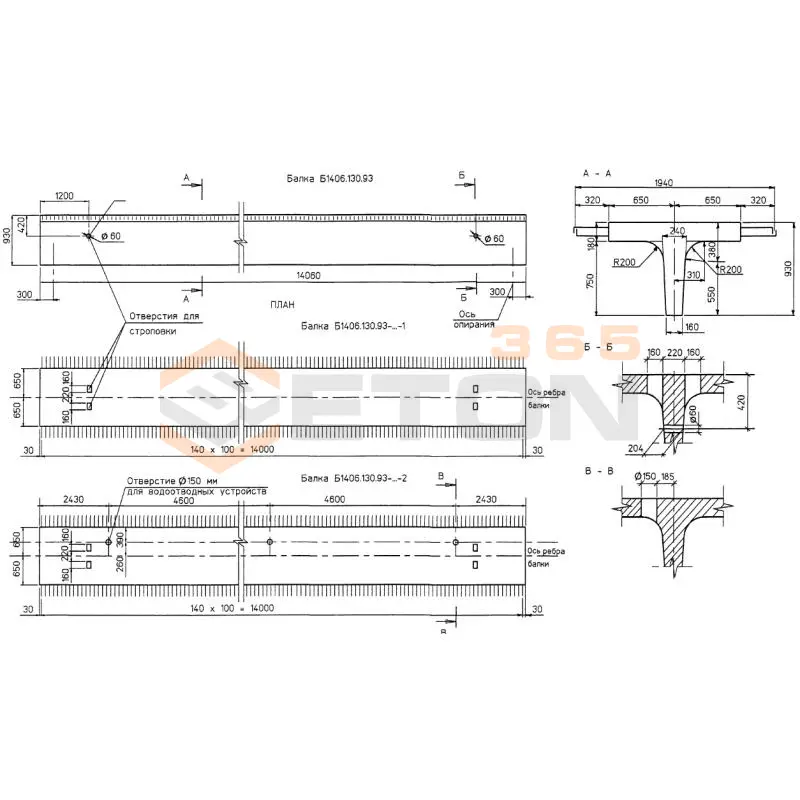
Документ ИНВ 42015м описывает область применения, номенклатуру и ключевые требования, опираясь на действующие нормы и практику проектирования. Нормативный документ ИНВ 42015м был разработан институтом Союзпроект специально для реконструкции моста через реку Клязьм в городе Ногинске. В регламент вошли балки пролетных строений длиной 14060 см и высотой 93 см. Технические условия и подробное описание производственного процесса дают возможность применять представленные конструкции и для других мостовых сооружений в последующем.

Файлы для скачивания:
picture_as_pdf

5813.pdf

908.1 KB

скачать
Товары ИНВ 42015м (2)
Б 1406-130-93 Т25АIIIв-1 (ИНВ 42015м)
Балки пролетного строения ИНВ 42015м
  • Длина 14060 мм.
  • Ширина 1300 мм.
  • Высота 930 мм.
  • Вес 14100 кг.
  • Объем бетона 5,61 м3
  • Геометрический объем 16,9985 м3
Цена: 299294 руб.
Подробнее
Б 1406-130-93 Т25АIIIв-2 (ИНВ 42015м)
Балки пролетного строения ИНВ 42015м
  • Длина 14060 мм.
  • Ширина 1300 мм.
  • Высота 930 мм.
  • Вес 14100 кг.
  • Объем бетона 5,61 м3
  • Геометрический объем 16,9985 м3
Цена: 299294 руб.
Подробнее

Уведомление о файлах cookie

Мы используем файлы cookie для улучшения вашего опыта просмотра и анализа трафика. Нажимая "Принять все", вы соглашаетесь с нашей политикой конфиденциальности и политикой обработки файлов cookie.

MAX Дзен Телеграм Вконтакте vk