mobile_sound +7 (930) 655-55-90

Техническая документация и чертежи (Альбом ТДК 4-1)

Поделиться:
Поделиться:

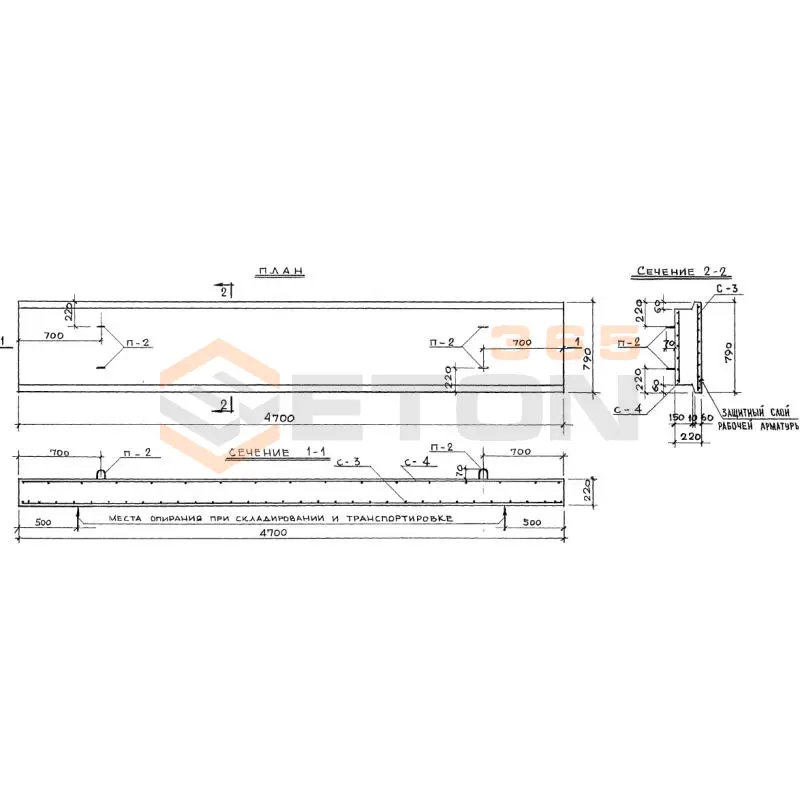
Документ Альбом ТДК 4-1 описывает область применения, номенклатуру и ключевые требования, опираясь на действующие нормы и практику проектирования. Альбом ТДК 4-1 был запроектирован Московским научно-исследовательским и проектным институтом типового и экспериментального проектирования и введён в действие в эксплуатацию с 1968 года. Регламент определяет и регламентирует подробные чертежи железобетонных плит перекрытий, предназначенных под повышенную нагрузку. Конструкции рассчитаны под нормативную нагрузку в размере 3,5 т/м2.

Файлы для скачивания:
picture_as_pdf

4348.pdf

7,741.4 KB

скачать
Товары Альбом ТДК 4-1 (10)
ТП 15-15 и
Плиты перекрытий Альбом ТДК 4-1
  • Длина 1500 мм.
  • Ширина 1500 мм.
  • Высота 160 мм.
  • Вес 810 кг.
  • Объем бетона 0,325 м3
  • Геометрический объем 0,36 м3
Цена: 7881 руб.
Подробнее
ТП 15-8 и
Плиты перекрытий Альбом ТДК 4-1
  • Длина 1500 мм.
  • Ширина 790 мм.
  • Высота 160 мм.
  • Вес 430 кг.
  • Объем бетона 0,173 м3
  • Геометрический объем 0,1896 м3
Цена: 4195 руб.
Подробнее
ТП 27-12 и
Плиты перекрытий Альбом ТДК 4-1
  • Длина 2700 мм.
  • Ширина 1190 мм.
  • Высота 220 мм.
  • Вес 1650 кг.
  • Объем бетона 0,658 м3
  • Геометрический объем 0,7069 м3
Цена: 15957 руб.
Подробнее
ТП 27-16 и
Плиты перекрытий Альбом ТДК 4-1
  • Длина 2700 мм.
  • Ширина 1590 мм.
  • Высота 220 мм.
  • Вес 2240 кг.
  • Объем бетона 0,895 м3
  • Геометрический объем 0,9445 м3
Цена: 21704 руб.
Подробнее
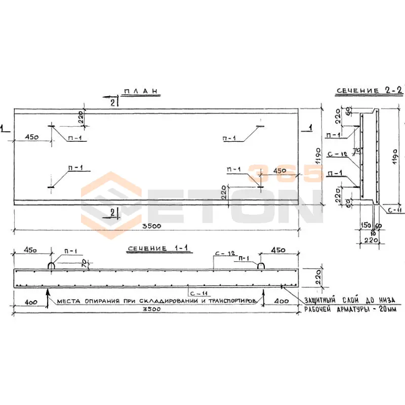
ТП 35-12 и
Плиты перекрытий Альбом ТДК 4-1
  • Длина 3500 мм.
  • Ширина 1190 мм.
  • Высота 220 мм.
  • Вес 2130 кг.
  • Объем бетона 0,852 м3
  • Геометрический объем 0,9163 м3
Цена: 20661 руб.
Подробнее
ТП 43-12 и
Плиты перекрытий Альбом ТДК 4-1
  • Длина 4300 мм.
  • Ширина 1190 мм.
  • Высота 220 мм.
  • Вес 2620 кг.
  • Объем бетона 1,047 м3
  • Геометрический объем 1,1257 м3
Цена: 25390 руб.
Подробнее
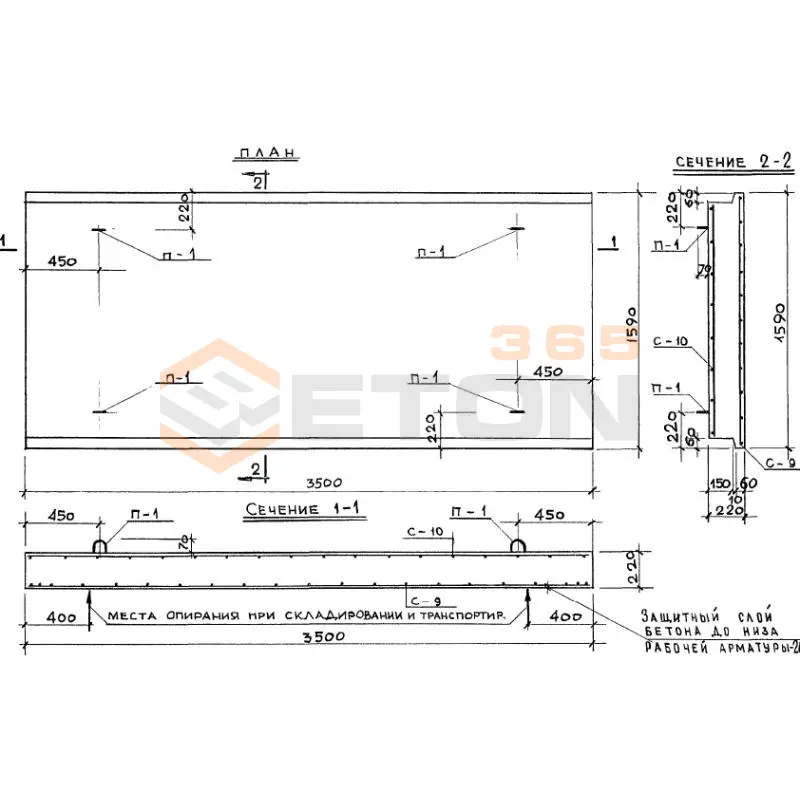
ТП 35-16 и
Плиты перекрытий Альбом ТДК 4-1
  • Длина 3500 мм.
  • Ширина 1590 мм.
  • Высота 220 мм.
  • Вес 2910 кг.
  • Объем бетона 1,162 м3
  • Геометрический объем 1,2243 м3
Цена: 28179 руб.
Подробнее
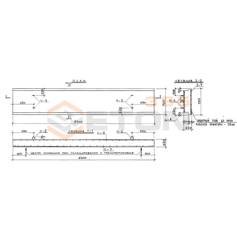
ТП 43-8 и
Плиты перекрытий Альбом ТДК 4-1
  • Длина 4300 мм.
  • Ширина 790 мм.
  • Высота 220 мм.
  • Вес 1670 кг.
  • Объем бетона 0,667 м3
  • Геометрический объем 0,7473 м3
Цена: 16175 руб.
Подробнее
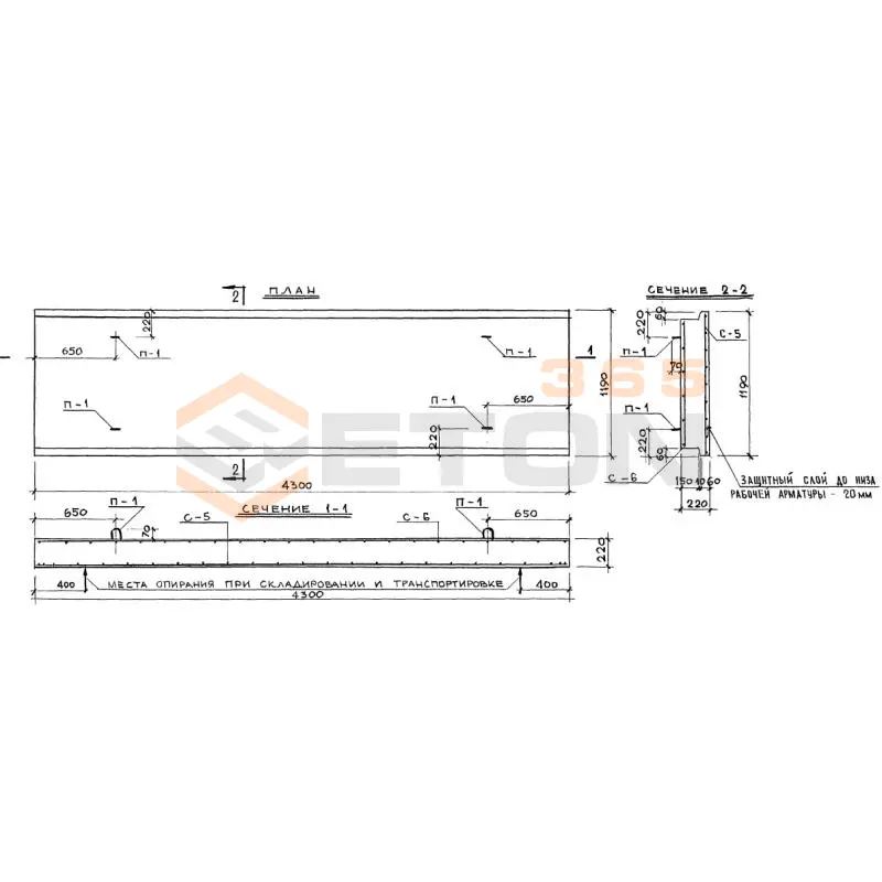
ТП 47-12 и
Плиты перекрытий Альбом ТДК 4-1
  • Длина 4700 мм.
  • Ширина 1190 мм.
  • Высота 220 мм.
  • Вес 2860 кг.
  • Объем бетона 1,145 м3
  • Геометрический объем 1,2305 м3
Цена: 27766 руб.
Подробнее
ТП 47-8 и
Плиты перекрытий Альбом ТДК 4-1
  • Длина 4700 мм.
  • Ширина 790 мм.
  • Высота 220 мм.
  • Вес 1835 кг.
  • Объем бетона 0,733 м3
  • Геометрический объем 0,8169 м3
Цена: 17775 руб.
Подробнее

Уведомление о файлах cookie

Мы используем файлы cookie для улучшения вашего опыта просмотра и анализа трафика. Нажимая "Принять все", вы соглашаетесь с нашей политикой конфиденциальности и политикой обработки файлов cookie.

MAX Дзен Телеграм Вконтакте vk