mobile_sound +7 (930) 655-55-90

Техническая документация и чертежи (Альбом РС 1251-93)

Поделиться:
Поделиться:

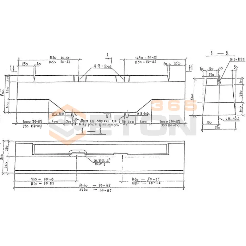
Документ Альбом РС 1251-93 описывает область применения, номенклатуру и ключевые требования, опираясь на действующие нормы и практику проектирования. Нормативный документ Альбом РС 1251-93 был введён в действие в действие в 1993 году МНИИТЭМ и определяет и регламентирует технические условия производства фундаментных балок. Конструкции были разработаны для использования в различных по назначению сооружениях для опирания панелей наружных стен подвалов и технических подполов каркасных зданий. Особенностью балок является наличие уникального вязаного армирования, охватывающего поперечное сечение изделия и конструкции, в том числе и выступающую часть.

Файлы для скачивания:
picture_as_pdf

336.pdf

3,723.0 KB

скачать
Товары Альбом РС 1251-93 (9)
БФ 17
Балки фундаментные Альбом РС 1251-93
  • Длина 1660 мм.
  • Ширина 470 мм.
  • Высота 380 мм.
  • Вес 600 кг.
  • Объем бетона 0,22 м3
  • Геометрический объем 0,2965 м3
Цена: 5975 руб.
Подробнее
БФ 29
Балки фундаментные Альбом РС 1251-93
  • Длина 2860 мм.
  • Ширина 470 мм.
  • Высота 380 мм.
  • Вес 1000 кг.
  • Объем бетона 0,38 м3
  • Геометрический объем 0,5108 м3
Цена: 10321 руб.
Подробнее
БФ 35
Балки фундаментные Альбом РС 1251-93
  • Длина 3460 мм.
  • Ширина 470 мм.
  • Высота 380 мм.
  • Вес 1200 кг.
  • Объем бетона 0,47 м3
  • Геометрический объем 0,618 м3
Цена: 12765 руб.
Подробнее
БФ 23
Балки фундаментные Альбом РС 1251-93
  • Длина 2260 мм.
  • Ширина 470 мм.
  • Высота 380 мм.
  • Вес 800 кг.
  • Объем бетона 0,3 м3
  • Геометрический объем 0,4036 м3
Цена: 8148 руб.
Подробнее
БФ 47
Балки фундаментные Альбом РС 1251-93
  • Длина 4660 мм.
  • Ширина 470 мм.
  • Высота 380 мм.
  • Вес 1600 кг.
  • Объем бетона 0,64 м3
  • Геометрический объем 0,8323 м3
Цена: 17382 руб.
Подробнее
БФ 83
Балки фундаментные Альбом РС 1251-93
  • Длина 8260 мм.
  • Ширина 510 мм.
  • Высота 580 мм.
  • Вес 4400 кг.
  • Объем бетона 1,77 м3
  • Геометрический объем 2,4433 м3
Цена: 48073 руб.
Подробнее
БФ 53
Балки фундаментные Альбом РС 1251-93
  • Длина 5260 мм.
  • Ширина 470 мм.
  • Высота 380 мм.
  • Вес 1800 кг.
  • Объем бетона 0,73 м3
  • Геометрический объем 0,9394 м3
Цена: 19827 руб.
Подробнее
БФ 65
Балки фундаментные Альбом РС 1251-93
  • Длина 6460 мм.
  • Ширина 510 мм.
  • Высота 580 мм.
  • Вес 3200 кг.
  • Объем бетона 1,28 м3
  • Геометрический объем 1,9109 м3
Цена: 34765 руб.
Подробнее
БФ 59
Балки фундаментные Альбом РС 1251-93
  • Длина 5960 мм.
  • Ширина 470 мм.
  • Высота 380 мм.
  • Вес 2100 кг.
  • Объем бетона 0,83 м3
  • Геометрический объем 1,0645 м3
Цена: 22543 руб.
Подробнее

Уведомление о файлах cookie

Мы используем файлы cookie для улучшения вашего опыта просмотра и анализа трафика. Нажимая "Принять все", вы соглашаетесь с нашей политикой конфиденциальности и политикой обработки файлов cookie.

MAX Дзен Телеграм Вконтакте vk