mobile_sound +7 (930) 655-55-90

Техническая документация и чертежи (Альбом РМ 2283)

Поделиться:
Поделиться:

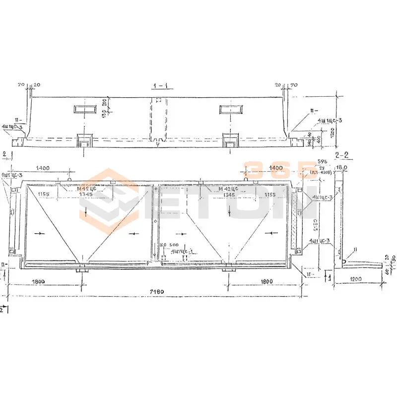
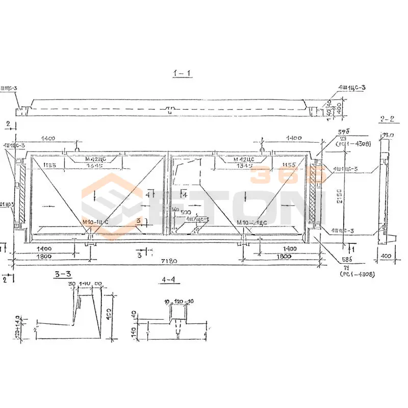
Документ Альбом РМ 2283 описывает область применения, номенклатуру и ключевые требования, опираясь на действующие нормы и практику проектирования. Альбом РМ 2283, выпущенный в 1992 году, определяет и регламентирует опалубочные чертежи стеновых панелей. Данные конструкции широко применяются в гражданском строительстве при возведении 2-9 этажных жилых домов. Элементы наружных стен запроектированы толщиной 280 мм, торцевые несущие 350 мм, все имеют высоту 2865 мм.

Файлы для скачивания:
picture_as_pdf

5692.pdf

7,980.4 KB

скачать
Товары Альбом РМ 2283 (27)
П 3642-1 (Альбом РМ 2283)
Панели перекрытий Альбом РМ 2283
  • Длина 4180 мм.
  • Ширина 3580 мм.
  • Высота 140 мм.
  • Вес 4910 кг.
  • Объем бетона 2,09 м3
  • Геометрический объем 2,095 м3
Цена: 70956 руб.
Подробнее
П 3654-10 (Альбом РМ 2283)
Панели перекрытий Альбом РМ 2283
  • Длина 5380 мм.
  • Ширина 3580 мм.
  • Высота 140 мм.
  • Вес 6130 кг.
  • Объем бетона 2,61 м3
  • Геометрический объем 2,6965 м3
Цена: 88610 руб.
Подробнее
П 3654-12 (Альбом РМ 2283)
Панели перекрытий Альбом РМ 2283
  • Длина 5380 мм.
  • Ширина 3580 мм.
  • Высота 140 мм.
  • Вес 6130 кг.
  • Объем бетона 2,61 м3
  • Геометрический объем 2,6965 м3
Цена: 88610 руб.
Подробнее
П 3654-11 (Альбом РМ 2283)
Панели перекрытий Альбом РМ 2283
  • Длина 5380 мм.
  • Ширина 3580 мм.
  • Высота 140 мм.
  • Вес 6130 кг.
  • Объем бетона 2,61 м3
  • Геометрический объем 2,6965 м3
Цена: 88610 руб.
Подробнее
П 3654-13 (Альбом РМ 2283)
Панели перекрытий Альбом РМ 2283
  • Длина 5380 мм.
  • Ширина 3580 мм.
  • Высота 140 мм.
  • Вес 6320 кг.
  • Объем бетона 2,69 м3
  • Геометрический объем 2,6965 м3
Цена: 91326 руб.
Подробнее
П 3654-14 (Альбом РМ 2283)
Панели перекрытий Альбом РМ 2283
  • Длина 5380 мм.
  • Ширина 3580 мм.
  • Высота 140 мм.
  • Вес 6320 кг.
  • Объем бетона 2,69 м3
  • Геометрический объем 2,6965 м3
Цена: 91326 руб.
Подробнее
П 3654-15 (Альбом РМ 2283)
Панели перекрытий Альбом РМ 2283
  • Длина 5380 мм.
  • Ширина 3580 мм.
  • Высота 140 мм.
  • Вес 6320 кг.
  • Объем бетона 2,69 м3
  • Геометрический объем 2,6965 м3
Цена: 91326 руб.
Подробнее
П 3654-16 (Альбом РМ 2283)
Панели перекрытий Альбом РМ 2283
  • Длина 5380 мм.
  • Ширина 3580 мм.
  • Высота 140 мм.
  • Вес 6320 кг.
  • Объем бетона 2,69 м3
  • Геометрический объем 2,6965 м3
Цена: 91326 руб.
Подробнее
П 3654-17 (Альбом РМ 2283)
Панели перекрытий Альбом РМ 2283
  • Длина 5380 мм.
  • Ширина 3580 мм.
  • Высота 140 мм.
  • Вес 6130 кг.
  • Объем бетона 2,61 м3
  • Геометрический объем 2,6965 м3
Цена: 88610 руб.
Подробнее
П 3654-18 (Альбом РМ 2283)
Панели перекрытий Альбом РМ 2283
  • Длина 5380 мм.
  • Ширина 3580 мм.
  • Высота 140 мм.
  • Вес 6130 кг.
  • Объем бетона 2,61 м3
  • Геометрический объем 2,6965 м3
Цена: 88610 руб.
Подробнее
П 3654-19 (Альбом РМ 2283)
Панели перекрытий Альбом РМ 2283
  • Длина 5380 мм.
  • Ширина 3580 мм.
  • Высота 140 мм.
  • Вес 6130 кг.
  • Объем бетона 2,61 м3
  • Геометрический объем 2,6965 м3
Цена: 88610 руб.
Подробнее
П 3654-2 (Альбом РМ 2283)
Панели перекрытий Альбом РМ 2283
  • Длина 5380 мм.
  • Ширина 3580 мм.
  • Высота 140 мм.
  • Вес 6320 кг.
  • Объем бетона 2,69 м3
  • Геометрический объем 2,6965 м3
Цена: 91326 руб.
Подробнее
П 3654-4 (Альбом РМ 2283)
Панели перекрытий Альбом РМ 2283
  • Длина 5380 мм.
  • Ширина 3580 мм.
  • Высота 140 мм.
  • Вес 6320 кг.
  • Объем бетона 2,69 м3
  • Геометрический объем 2,6965 м3
Цена: 91326 руб.
Подробнее
П 3654-3 (Альбом РМ 2283)
Панели перекрытий Альбом РМ 2283
  • Длина 5380 мм.
  • Ширина 3580 мм.
  • Высота 140 мм.
  • Вес 6320 кг.
  • Объем бетона 2,69 м3
  • Геометрический объем 2,6965 м3
Цена: 91326 руб.
Подробнее
П 3654-20 (Альбом РМ 2283)
Панели перекрытий Альбом РМ 2283
  • Длина 5380 мм.
  • Ширина 3580 мм.
  • Высота 140 мм.
  • Вес 6130 кг.
  • Объем бетона 2,61 м3
  • Геометрический объем 2,6965 м3
Цена: 88610 руб.
Подробнее
П 3654-5 (Альбом РМ 2283)
Панели перекрытий Альбом РМ 2283
  • Длина 5380 мм.
  • Ширина 3580 мм.
  • Высота 140 мм.
  • Вес 6130 кг.
  • Объем бетона 2,61 м3
  • Геометрический объем 2,6965 м3
Цена: 88610 руб.
Подробнее
П 3654-6 (Альбом РМ 2283)
Панели перекрытий Альбом РМ 2283
  • Длина 5380 мм.
  • Ширина 3580 мм.
  • Высота 140 мм.
  • Вес 6130 кг.
  • Объем бетона 2,61 м3
  • Геометрический объем 2,6965 м3
Цена: 88610 руб.
Подробнее
П 3654-7 (Альбом РМ 2283)
Панели перекрытий Альбом РМ 2283
  • Длина 5380 мм.
  • Ширина 3580 мм.
  • Высота 140 мм.
  • Вес 6130 кг.
  • Объем бетона 2,61 м3
  • Геометрический объем 2,6965 м3
Цена: 88610 руб.
Подробнее
П 3654-9 (Альбом РМ 2283)
Панели перекрытий Альбом РМ 2283
  • Длина 5380 мм.
  • Ширина 3580 мм.
  • Высота 140 мм.
  • Вес 6130 кг.
  • Объем бетона 2,61 м3
  • Геометрический объем 2,6965 м3
Цена: 88610 руб.
Подробнее
П 3654-8 (Альбом РМ 2283)
Панели перекрытий Альбом РМ 2283
  • Длина 5380 мм.
  • Ширина 3580 мм.
  • Высота 140 мм.
  • Вес 6130 кг.
  • Объем бетона 2,61 м3
  • Геометрический объем 2,6965 м3
Цена: 88610 руб.
Подробнее
ПБ 3322-5 (Альбом РМ 2283)
Плиты балконов Альбом РМ 2283
  • Длина 3190 мм.
  • Ширина 2190 мм.
  • Высота 180 мм.
  • Вес 2357 кг.
  • Объем бетона 0,9431 м3
  • Геометрический объем 1,2575 м3
Цена: 41166 руб.
Подробнее
ПБ 3322-6 (Альбом РМ 2283)
Плиты балконов Альбом РМ 2283
  • Длина 3190 мм.
  • Ширина 2190 мм.
  • Высота 180 мм.
  • Вес 2357 кг.
  • Объем бетона 0,9431 м3
  • Геометрический объем 1,2575 м3
Цена: 41166 руб.
Подробнее
ОЭЛ 7222-1/2 (Альбом РМ 2283)
Плиты лоджий Альбом РМ 2283
  • Длина 7180 мм.
  • Ширина 1200 мм.
  • Высота 2150 мм.
  • Вес 7000 кг.
  • Объем бетона 2,8 м3
  • Геометрический объем 18,5244 м3
Цена: 95060 руб.
Подробнее
ПЛ 5622 (Альбом РМ 2283)
Плиты лоджий Альбом РМ 2283
  • Длина 5590 мм.
  • Ширина 400 мм.
  • Высота 2190 мм.
  • Вес 12000 кг.
  • Объем бетона 4,8 м3
  • Геометрический объем 4,8968 м3
Цена: 162960 руб.
Подробнее
ПЛ 7222-1/2 (Альбом РМ 2283)
Плиты лоджий Альбом РМ 2283
  • Длина 7180 мм.
  • Ширина 400 мм.
  • Высота 2150 мм.
  • Вес 11750 кг.
  • Объем бетона 4,7 м3
  • Геометрический объем 6,1748 м3
Цена: 159565 руб.
Подробнее
ЛП 1216-1 (Альбом РМ 2283)
Плиты перекрытия блоков мусороудаления АльбомРМ 2283
  • Длина 1580 мм.
  • Ширина 1180 мм.
  • Высота 140 мм.
  • Вес 582 кг.
  • Объем бетона 0,233 м3
  • Геометрический объем 0,261 м3
Цена: 3842 руб.
Подробнее
ШЛ 1 (Альбом РМ 2283)
Объемные элементы шахты лифта Альбом РМ 2283
  • Длина 1930 мм.
  • Ширина 2920 мм.
  • Высота 2790 мм.
  • Вес 4750 кг.
  • Объем бетона 1,9 м3
  • Геометрический объем 15,7233 м3
Цена: 73720 руб.
Подробнее

Уведомление о файлах cookie

Мы используем файлы cookie для улучшения вашего опыта просмотра и анализа трафика. Нажимая "Принять все", вы соглашаетесь с нашей политикой конфиденциальности и политикой обработки файлов cookie.

MAX Дзен Телеграм Вконтакте vk