mobile_sound +7 (930) 655-55-90

Техническая документация и чертежи (Альбом ИЖ 4.2-1)

Поделиться:
Поделиться:

Документ Альбом ИЖ 4.2-1 описывает область применения, номенклатуру и ключевые требования, опираясь на действующие нормы и практику проектирования. Центральным научно-исследовательским и проектным институтом жилых и общественных зданий в 2003 году был введён в действие в действие нормативный документ Альбом ИЖ 4.2-1. Регламент включен в каталог систем крупнопанельного домостроения и отражает необходимую для производства рабочую документацию таких конструкций, как лестничные марши, площадки и плиты лифтовых холлов. Конструкции рассчитаны на применение в жилых домах и общественных сооружениях с высотой этажа 3 метра.

Файлы для скачивания:
picture_as_pdf

359.pdf

11,450.3 KB

скачать
Товары Альбом ИЖ 4.2-1 (16)
ЛМ 1 г
Лестничные марши Альбом ИЖ 4.2-1
  • Длина 3364 мм.
  • Ширина 1050 мм.
  • Высота 250 мм.
  • Вес 1590 кг.
  • Объем бетона 0,636 м3
  • Геометрический объем 0,8831 м3
Цена: 18508 руб.
Подробнее
ЛМ 2 г
Лестничные марши Альбом ИЖ 4.2-1
  • Длина 1993 мм.
  • Ширина 1050 мм.
  • Высота 241 мм.
  • Вес 910 кг.
  • Объем бетона 0,364 м3
  • Геометрический объем 0,5043 м3
Цена: 10592 руб.
Подробнее
ЛМ 3
Лестничные марши Альбом ИЖ 4.2-1
  • Длина 2013 мм.
  • Ширина 2560 мм.
  • Высота 255 мм.
  • Вес 2275 кг.
  • Объем бетона 0,91 м3
  • Геометрический объем 1,3141 м3
Цена: 26481 руб.
Подробнее
ЛП 1-1
Лестничные площадки Альбом ИЖ 4.2-1
  • Длина 2380 мм.
  • Ширина 1315 мм.
  • Высота 160 мм.
  • Вес 1073 кг.
  • Объем бетона 0,429 м3
  • Геометрический объем 0,5008 м3
Цена: 9155 руб.
Подробнее
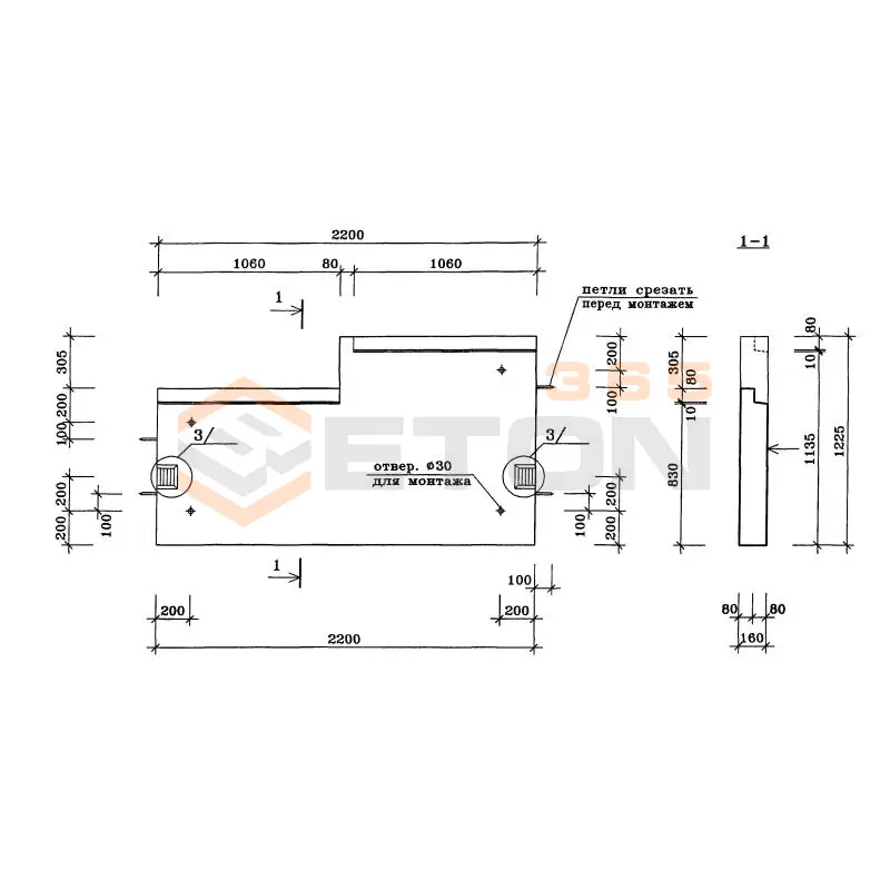
ЛП 2-1
Лестничные площадки Альбом ИЖ 4.2-1
  • Длина 2200 мм.
  • Ширина 1225 мм.
  • Высота 160 мм.
  • Вес 950 кг.
  • Объем бетона 0,336 м3
  • Геометрический объем 0,4312 м3
Цена: 7170 руб.
Подробнее
ПЛХ 4
Плиты лифтового холла Альбом ИЖ 4.2-1
  • Длина 5890 мм.
  • Ширина 2030 мм.
  • Высота 160 мм.
  • Вес 2195 кг.
  • Объем бетона 0,912 м3
  • Геометрический объем 1,9131 м3
Цена: 30962 руб.
Подробнее
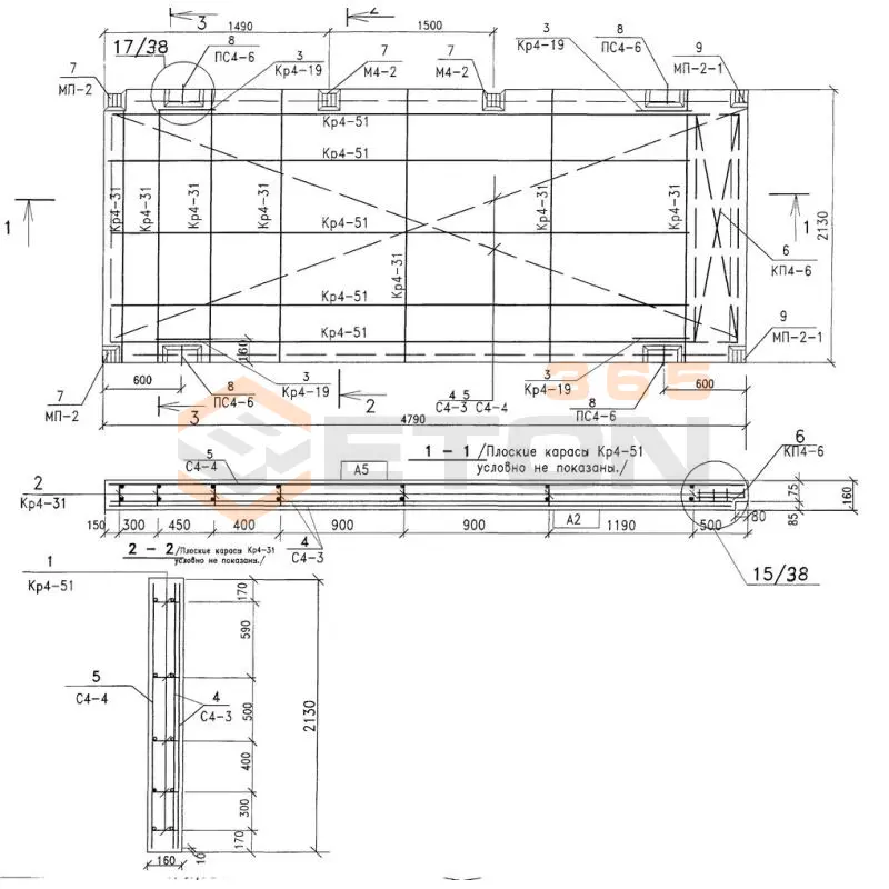
ПЛХ 1
Плиты лифтового холла Альбом ИЖ 4.2-1
  • Длина 4790 мм.
  • Ширина 2130 мм.
  • Высота 160 мм.
  • Вес 4025 кг.
  • Объем бетона 1,62 м3
  • Геометрический объем 1,6324 м3
Цена: 54999 руб.
Подробнее
ПЛХ 3
Плиты лифтового холла Альбом ИЖ 4.2-1
  • Длина 5890 мм.
  • Ширина 2030 мм.
  • Высота 160 мм.
  • Вес 4475 кг.
  • Объем бетона 1,91 м3
  • Геометрический объем 1,9131 м3
Цена: 64845 руб.
Подробнее
ПЛХ 2
Плиты лифтового холла Альбом ИЖ 4.2-1
  • Длина 4180 мм.
  • Ширина 1260 мм.
  • Высота 160 мм.
  • Вес 1950 кг.
  • Объем бетона 0,718 м3
  • Геометрический объем 0,8427 м3
Цена: 24376 руб.
Подробнее
ПЛХ 5
Плиты лифтового холла Альбом ИЖ 4.2-1
  • Длина 4360 мм.
  • Ширина 3080 мм.
  • Высота 160 мм.
  • Вес 5060 кг.
  • Объем бетона 2,124 м3
  • Геометрический объем 2,1486 м3
Цена: 72110 руб.
Подробнее
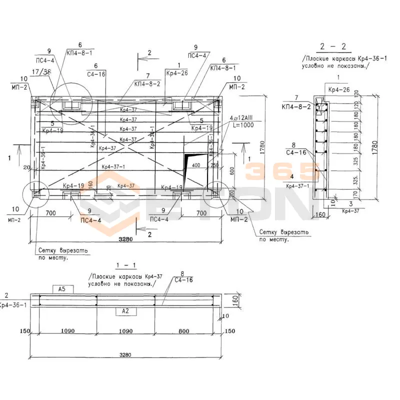
ПЛХ 4-1
Плиты лифтового холла Альбом ИЖ 4.2-1
  • Длина 3280 мм.
  • Ширина 1780 мм.
  • Высота 160 мм.
  • Вес 2190 кг.
  • Объем бетона 0,874 м3
  • Геометрический объем 0,9341 м3
Цена: 29672 руб.
Подробнее
ПЛХ 8
Плиты лифтового холла Альбом ИЖ 4.2-1
  • Длина 3750 мм.
  • Ширина 2180 мм.
  • Высота 160 мм.
  • Вес 2715 кг.
  • Объем бетона 1,3 м3
  • Геометрический объем 1,308 м3
Цена: 44135 руб.
Подробнее
ПЛХ 5-1
Плиты лифтового холла Альбом ИЖ 4.2-1
  • Длина 4360 мм.
  • Ширина 3080 мм.
  • Высота 160 мм.
  • Вес 4935 кг.
  • Объем бетона 2,079 м3
  • Геометрический объем 2,1486 м3
Цена: 70582 руб.
Подробнее
ПЛХ 9
Плиты лифтового холла Альбом ИЖ 4.2-1
  • Длина 2220 мм.
  • Ширина 1180 мм.
  • Высота 160 мм.
  • Вес 895 кг.
  • Объем бетона 0,392 м3
  • Геометрический объем 0,4191 м3
Цена: 13308 руб.
Подробнее
ПЛХ 6
Плиты лифтового холла Альбом ИЖ 4.2-1
  • Длина 3750 мм.
  • Ширина 2130 мм.
  • Высота 160 мм.
  • Вес 2400 кг.
  • Объем бетона 1,02 м3
  • Геометрический объем 1,278 м3
Цена: 34629 руб.
Подробнее
ПЛХ 7
Плиты лифтового холла Альбом ИЖ 4.2-1
  • Длина 2860 мм.
  • Ширина 3080 мм.
  • Высота 160 мм.
  • Вес 3340 кг.
  • Объем бетона 1,39 м3
  • Геометрический объем 1,4094 м3
Цена: 47191 руб.
Подробнее

Уведомление о файлах cookie

Мы используем файлы cookie для улучшения вашего опыта просмотра и анализа трафика. Нажимая "Принять все", вы соглашаетесь с нашей политикой конфиденциальности и политикой обработки файлов cookie.

MAX Дзен Телеграм Вконтакте vk