mobile_sound +7 (930) 655-55-90

Техническая документация и чертежи (Альбом 3РС 19-08)

Поделиться:
Поделиться:

Документ Альбом 3РС 19-08 описывает область применения, номенклатуру и ключевые требования, опираясь на действующие нормы и практику проектирования. Альбом 3РС 19-08 был разработан в 1999 году и определяет и регламентирует номенклатурный перечень изделия и конструкции входов, используемых при возведении жилых домов, запроектированных по серии П3М. Основным отличием сооружений по данному альбому является узкий шаг несущих стен. Все изделия и конструкции в нормативном документе можно разделить на два типа: однослойные и трехслойные.

Файлы для скачивания:
picture_as_pdf

5650.pdf

3,240.0 KB

скачать
Товары Альбом 3РС 19-08 (12)
3ОКВ 1 (Альбом 3РС 19-08)
Ограждения козырьков входа Альбом 3РС 19-08
  • Длина 6800 мм.
  • Ширина 200 мм.
  • Высота 1300 мм.
  • Вес 2430 кг.
  • Объем бетона 0,97 м3
  • Геометрический объем 1,768 м3
Цена: 42341 руб.
Подробнее
3ОКВ 2 (Альбом 3РС 19-08)
Ограждения козырьков входа Альбом 3РС 19-08
  • Длина 5260 мм.
  • Ширина 200 мм.
  • Высота 600 мм.
  • Вес 950 кг.
  • Объем бетона 0,38 м3
  • Геометрический объем 0,6312 м3
Цена: 16587 руб.
Подробнее
3НВ 1-1 (Альбом 3РС 19-08)
Панели входа Альбом 3РС 19-08
  • Длина 2500 мм.
  • Ширина 280 мм.
  • Высота 3530 мм.
  • Вес 4020 кг.
  • Объем бетона 2,46 м3
  • Геометрический объем 2,471 м3
Цена: 83517 руб.
Подробнее
3НВ 1-2 (Альбом 3РС 19-08)
Панели входа Альбом 3РС 19-08
  • Длина 2500 мм.
  • Ширина 280 мм.
  • Высота 3530 мм.
  • Вес 4760 кг.
  • Объем бетона 2,46 м3
  • Геометрический объем 2,471 м3
Цена: 83517 руб.
Подробнее
3НВ 2-1 (Альбом 3РС 19-08)
Панели входа Альбом 3РС 19-08
  • Длина 1760 мм.
  • Ширина 280 мм.
  • Высота 3530 мм.
  • Вес 2890 кг.
  • Объем бетона 1,66 м3
  • Геометрический объем 1,7396 м3
Цена: 56357 руб.
Подробнее
3НВ 2-2 (Альбом 3РС 19-08)
Панели входа Альбом 3РС 19-08
  • Длина 1760 мм.
  • Ширина 280 мм.
  • Высота 3530 мм.
  • Вес 2570 кг.
  • Объем бетона 1,66 м3
  • Геометрический объем 1,7396 м3
Цена: 56357 руб.
Подробнее
3НВ 1-3 (Альбом 3РС 19-08)
Панели входа Альбом 3РС 19-08
  • Длина 2500 мм.
  • Ширина 280 мм.
  • Высота 3530 мм.
  • Вес 4020 кг.
  • Объем бетона 2,45 м3
  • Геометрический объем 2,471 м3
Цена: 83178 руб.
Подробнее
3НВ 4 (Альбом 3РС 19-08)
Панели входа Альбом 3РС 19-08
  • Длина 1760 мм.
  • Ширина 280 мм.
  • Высота 3530 мм.
  • Вес 2890 кг.
  • Объем бетона 1,66 м3
  • Геометрический объем 1,7396 м3
Цена: 56357 руб.
Подробнее
3НВ 5 (Альбом 3РС 19-08)
Панели входа Альбом 3РС 19-08
  • Длина 1660 мм.
  • Ширина 280 мм.
  • Высота 2870 мм.
  • Вес 1250 кг.
  • Объем бетона 0,64 м3
  • Геометрический объем 1,334 м3
Цена: 21728 руб.
Подробнее
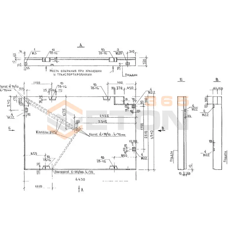
3ПВ 6-1 (Альбом 3РС 19-08)
Плиты входа Альбом 3РС 19-08
  • Длина 4430 мм.
  • Ширина 320 мм.
  • Высота 2910 мм.
  • Вес 5220 кг.
  • Объем бетона 4,05 м3
  • Геометрический объем 4,1252 м3
Цена: 137498 руб.
Подробнее
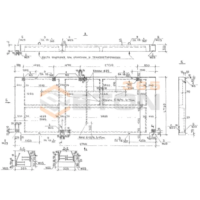
3ПВ 7 (Альбом 3РС 19-08)
Плиты входа Альбом 3РС 19-08
  • Длина 6700 мм.
  • Ширина 320 мм.
  • Высота 2730 мм.
  • Вес 7550 кг.
  • Объем бетона 3,02 м3
  • Геометрический объем 5,8531 м3
Цена: 102529 руб.
Подробнее
3ПВ 6-2 (Альбом 3РС 19-08)
Плиты входа Альбом 3РС 19-08
  • Длина 2250 мм.
  • Ширина 320 мм.
  • Высота 2910 мм.
  • Вес 2800 кг.
  • Объем бетона 2,02 м3
  • Геометрический объем 2,0952 м3
Цена: 68579 руб.
Подробнее

Уведомление о файлах cookie

Мы используем файлы cookie для улучшения вашего опыта просмотра и анализа трафика. Нажимая "Принять все", вы соглашаетесь с нашей политикой конфиденциальности и политикой обработки файлов cookie.

MAX Дзен Телеграм Вконтакте vk