mobile_sound +7 (930) 655-55-90

Утяжелители сборные железобетонные охватывающего типа Проект 10156и

Поделиться:
Фильтр по характеристикам
Длина (мм.)
keyboard_arrow_down
мм.
мм.
Ширина (мм.)
keyboard_arrow_down
мм.
мм.
Высота (мм.)
keyboard_arrow_down
мм.
мм.
Вес (кг.)
keyboard_arrow_down
кг.
кг.
Поделиться:

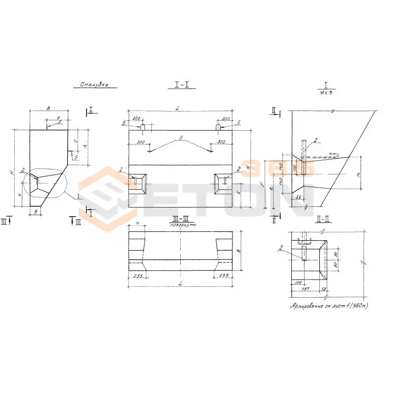
Завод "Бетон365" производит утяжелители сборные железобетонные охватывающего типа Проект 10156и – специализированные конструкции для обеспечения устойчивости и противодействия опрокидыванию различных строительных объектов. Эти изделия изготавливаются из высокопрочного бетона с армированием, что гарантирует их долговечность и способность выдерживать значительные эксплуатационные нагрузки. Охватывающая конструкция обеспечивает простой и быстрый монтаж, надежно фиксируя основание и равномерно распределяя давление, что особенно важно при строительстве в сложных грунтовых условиях.

Мы реализуем утяжелители сборные железобетонные охватывающего типа Проект 10156и в Москве и МО по конкурентной цене от производителя. Предлагаем выгодные условия покупки с гарантией соответствия ГОСТам, оперативной доставкой на объект и профессиональными консультациями по выбору оптимальных решений для вашего проекта. Обращайтесь к нам для расчета стоимости и оформления заказа!

1УБОм 1020-15
Утяжелители сборные железобетонные охватывающего типа Проект 10156и
  • Длина 1500 мм.
  • Ширина 550 мм.
  • Высота 1100 мм.
  • Вес 1604 кг.
  • Объем бетона 0,7 м3
  • Геометрический объем 0,9075 м3
Цена: 8148 руб.
Подробнее
1УБОм 1220-13,5
Утяжелители сборные железобетонные охватывающего типа Проект 10156и
  • Длина 1350 мм.
  • Ширина 600 мм.
  • Высота 1400 мм.
  • Вес 2017 кг.
  • Объем бетона 0,88 м3
  • Геометрический объем 1,134 м3
Цена: 10243 руб.
Подробнее
1УБОм 1420-12
Утяжелители сборные железобетонные охватывающего типа Проект 10156и
  • Длина 1200 мм.
  • Ширина 600 мм.
  • Высота 1600 мм.
  • Вес 2064 кг.
  • Объем бетона 0,9 м3
  • Геометрический объем 1,152 м3
Цена: 10476 руб.
Подробнее
1УБОм 530-10
Утяжелители сборные железобетонные охватывающего типа Проект 10156и
  • Длина 1000 мм.
  • Ширина 300 мм.
  • Высота 700 мм.
  • Вес 372 кг.
  • Объем бетона 0,16 м3
  • Геометрический объем 0,21 м3
Цена: 1862 руб.
Подробнее
УБОм 1020-15
Утяжелители сборные железобетонные охватывающего типа Проект 10156и
  • Длина 1500 мм.
  • Ширина 550 мм.
  • Высота 1100 мм.
  • Вес 3236 кг.
  • Объем бетона 1,29 м3
  • Геометрический объем 0,9075 м3
Цена: 15016 руб.
Подробнее
УБОм 1220-13,5
Утяжелители сборные железобетонные охватывающего типа Проект 10156и
  • Длина 1350 мм.
  • Ширина 600 мм.
  • Высота 1400 мм.
  • Вес 4112 кг.
  • Объем бетона 1,64 м3
  • Геометрический объем 1,134 м3
Цена: 19090 руб.
Подробнее
УБОм 1420-12
Утяжелители сборные железобетонные охватывающего типа Проект 10156и
  • Длина 1200 мм.
  • Ширина 600 мм.
  • Высота 1600 мм.
  • Вес 4205 кг.
  • Объем бетона 1,68 м3
  • Геометрический объем 1,152 м3
Цена: 19555 руб.
Подробнее
УБОм 530-10
Утяжелители сборные железобетонные охватывающего типа Проект 10156и
  • Длина 1000 мм.
  • Ширина 300 мм.
  • Высота 700 мм.
  • Вес 698 кг.
  • Объем бетона 0,27 м3
  • Геометрический объем 0,21 м3
Цена: 3143 руб.
Подробнее

Как правильно выбрать - Утяжелители сборные железобетонные охватывающего типа Проект 10156и

Утяжелители сборные железобетонные охватывающего типа Проект 10156и предназначены для стабилизации и балластировки подземных и наземных трубопроводов, предотвращая их всплытие в обводненных грунтах или смещение под воздействием температурных расширений и внешних нагрузок. Они применяются в составе комплексных систем на магистральных нефте- и газопроводах, а также на промышленных объектах. Долговечность и надежность всей трубопроводной системы в значительной степени определяются грамотным подбором параметров утяжелителей охватывающего типа.

Критерии выбора

  • Материалы: Марка бетона не ниже В25 (М350), обеспечивающая прочность на сжатие. Морозостойкость F200 для эксплуатации в умеренном и холодном климате. Водонепроницаемость W6, критически важная для работы в условиях высокого уровня грунтовых вод.
  • Конфигурация и геометрия: Полуцилиндрическая форма, охватывающая трубу. Ключевой параметр – внутренний диаметр, который должен точно соответствовать наружному диаметру изолированного трубопровода. Наличие монтажных петель или строповочных отверстий для безопасной установки.
  • Эксплуатационные нагрузки: Расчетная масса утяжелителя должна обеспечивать противовсплывающий эффект, определяемый проектом на основе диаметра трубы, глубины заложения и гидрогеологических условий площадки.
  • Нормативная база: Соответствие рабочим чертежам серии 10156и и требованиям ГОСТ 26633 на тяжелые и мелкозернистые бетоны.
  • Качество поверхности: Отсутствие трещин, раковин и сколов, которые могут привести к коррозии арматуры и разрушению бетона в агрессивной грунтовой среде.

Рекомендации по подбору и монтажу

При составлении спецификации на утяжелители сборные железобетонные охватывающего типа Проект 10156и обязательно укажите не только типоразмер, но и проектную марку бетона по морозостойкости и водонепроницаемости. Запросите у производителя паспорта качества на партию, где указаны фактические прочностные характеристики и дата изготовления. Убедитесь, что закладные элементы для строповки соответствуют расчетным нагрузкам при монтаже.

На этапе проектирования критически важно выполнить проверочный расчет на всплытие с учетом конкретных грунтовых условий и глубины заложения трубы. При монтаже полусегменты утяжелителей должны плотно прилегать друг к другу и к поверхности изоляции трубы. Основанием служит уплотненная песчаная подготовка, исключающая локальные просадки. Стыки между блоками необходимо замонолитить для создания единой конструкции, равномерно передающей нагрузку.

Ответы экспертов на ваши вопросы

Основное назначение утяжелителей сборных железобетонных охватывающего типа по проекту 10156и - обеспечение устойчивости и балластировки подводных трубопроводов. Они предотвращают всплытие трубопроводов под действием архимедовой силы, обеспечивают их стабильное положение на морском дне и защищают от механических повреждений.

Утяжелители проекта 10156и имеют охватывающую конструкцию, состоящую из двух симметричных железобетонных половин. Особенности включают: форму, повторяющую контур трубы, систему строповочных петель для монтажа, замковое соединение половин, антикоррозионное покрытие и расчетную массу, обеспечивающую необходимую отрицательную плавучесть трубопровода.

К материалам предъявляются строгие требования: бетон должен иметь марку не ниже М300 по прочности на сжатие, морозостойкость F150-F200, водонепроницаемость W6-W8. Арматура применяется класса А-III, с антикоррозионной защитой. Все материалы должны иметь сертификаты качества и соответствовать требованиям ГОСТ для морских сооружений.

Монтаж осуществляется в следующей последовательности: подготовка поверхности трубы, установка нижней половины утяжелителя на опоры, опускание трубопровода в паз, установка верхней половины, соединение половин с помощью стяжных устройств, герметизация стыка. Монтаж производится специальными такелажными средствами с соблюдением техники безопасности.

Преимущества железобетонных утяжелителей включают: высокую долговечность (50+ лет), устойчивость к агрессивной морской среде, пожаробезопасность, экологическую чистоту, возможность изготовления элементов заводского качества, относительно низкую стоимость по сравнению с металлическими аналогами и простоту монтажа при достаточной массе для эффективной балластировки.

Ранее смотрели
Косоуры ТП 501-166 К 8 (ТП 501-166)
К 8 (ТП 501-166)
Косоуры ТП 501-166
Фундаментные блоки пустотные ФБП серия 1.116.1-8 и ГОСТ 13579-78 ФБП 24-5-6 п
ФБП 24-5-6 п
Фундаментные блоки пустотные ФБП серия 1.116.1-8 и ГОСТ 13579-78
Звенья железобетонные круглых водопропускных труб под железные и автомобильные дороги (Шифр 57-368) Блок 81 (блок фундамента R-1,0)
Блок 81 (блок фундамента R-1,0)
Звенья железобетонные круглых водопропускных труб под железные и автомобильные дороги (Шифр 57-368)
Лотки водоотводные ГОСТ 21509-76 Л 1-7 без упаковки
Л 1-7 без упаковки
Мотки водоотводные ГОСТ 21509-76
Лотки-полутрубы Д 0,80 м
Лотки-полутрубы Д 0,80 м
Мотки Альбом 819
Косоуры ТП 501-166 К 3 (ТП 501-166)
К 3 (ТП 501-166)
Косоуры ТП 501-166
СВ 110-5 (Арх 19.0022.1)
СВ 110-5 (Арх 19.0022.1)
Стойки Арх 19.0022.1
Балки внутренние пролетного строения с пониженной строительной высотой (плитные) Серия 3.501.1-146 БПД 135 м1 АIII
БПД 135 м1 АIII
Балки внутренние пролетного строения с пониженной строительной высотой (плитные) Серия 3.501.1-146

Уведомление о файлах cookie

Мы используем файлы cookie для улучшения вашего опыта просмотра и анализа трафика. Нажимая "Принять все", вы соглашаетесь с нашей политикой конфиденциальности и политикой обработки файлов cookie.

Дзен Телеграм Вконтакте vk