mobile_sound +7 (930) 655-55-90

Панели шахт лифтов Серия 1.289.1-2

Поделиться:
Фильтр по характеристикам
Длина (мм.)
keyboard_arrow_down
мм.
мм.
Ширина (мм.)
keyboard_arrow_down
мм.
мм.
Высота (мм.)
keyboard_arrow_down
мм.
мм.
Вес (кг.)
keyboard_arrow_down
кг.
кг.
Поделиться:

Завод "Бетон365" производит панели шахт лифтов серии 1.289.1-2 — ключевые элементы для быстрого монтажа лифтовых конструкций в жилых и коммерческих зданиях. Эти железобетонные изделия обеспечивают необходимую жесткость шахты, равномерно распределяют нагрузку и соответствуют строгим требованиям ГОСТ, что гарантирует безопасность и долговечность эксплуатации. Использование готовых панелей значительно сокращает сроки строительства, минимизируя риски ошибок при возведении конструкций.

В Москве и МО вы можете купить панели шахт лифтов серии 1.289.1-2 напрямую от производителя по конкурентной цене, с гарантией качества и оперативной доставкой на объект. Мы реализуем продукцию, идеально подходящую для современных строительных проектов, и готовы помочь с расчетом необходимого количества элементов. Обращайтесь к нам, чтобы заказать надежные ЖБИ для вашего объекта!

ПШЛ 100-33-1
Панели шахт лифтов Серия 1.289.1-2
  • Длина 2510 мм.
  • Ширина 140 мм.
  • Высота 3280 мм.
  • Вес 1800 кг.
  • Объем бетона 0,72 м3
  • Геометрический объем 1,1526 м3
Цена: 27936 руб.
Подробнее
ПШЛ 100-33-1 б
Панели шахт лифтов Серия 1.289.1-2
  • Длина 2510 мм.
  • Ширина 140 мм.
  • Высота 3280 мм.
  • Вес 1800 кг.
  • Объем бетона 0,72 м3
  • Геометрический объем 1,1526 м3
Цена: 27936 руб.
Подробнее
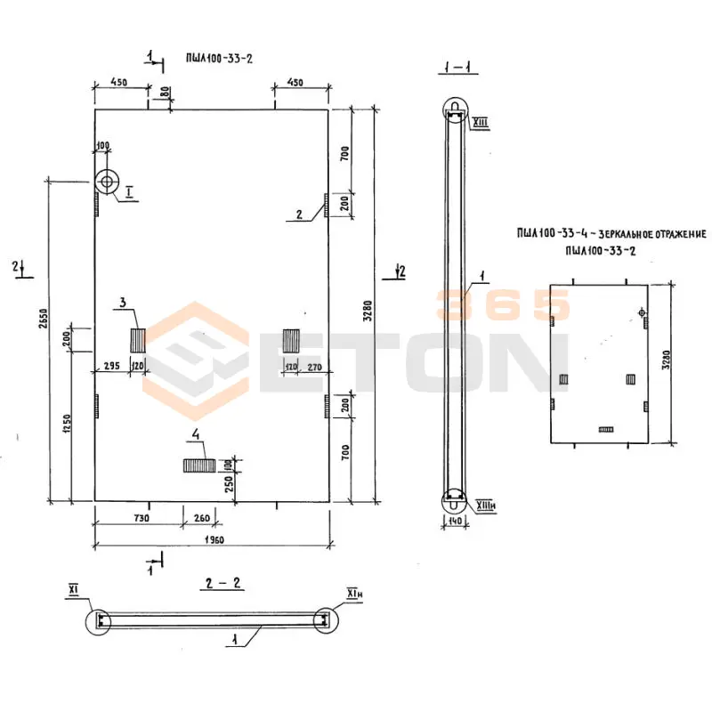
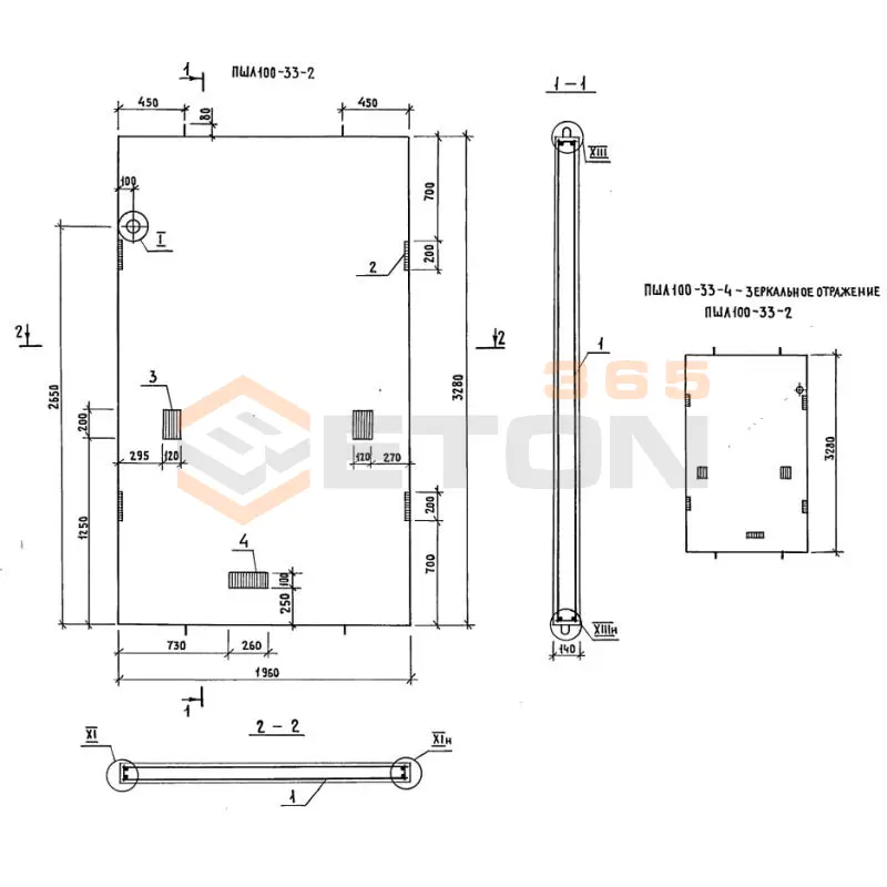
ПШЛ 100-33-2
Панели шахт лифтов Серия 1.289.1-2
  • Длина 2510 мм.
  • Ширина 140 мм.
  • Высота 3280 мм.
  • Вес 2250 кг.
  • Объем бетона 0,9 м3
  • Геометрический объем 1,1526 м3
Цена: 34920 руб.
Подробнее
ПШЛ 100-33-2 б
Панели шахт лифтов Серия 1.289.1-2
  • Длина 2510 мм.
  • Ширина 140 мм.
  • Высота 3280 мм.
  • Вес 2250 кг.
  • Объем бетона 0,9 м3
  • Геометрический объем 1,1526 м3
Цена: 34920 руб.
Подробнее
ПШЛ 100-33-3 б
Панели шахт лифтов Серия 1.289.1-2
  • Длина 2510 мм.
  • Ширина 140 мм.
  • Высота 3280 мм.
  • Вес 2870 кг.
  • Объем бетона 1,15 м3
  • Геометрический объем 1,1526 м3
Цена: 44620 руб.
Подробнее
ПШЛ 100-33-4
Панели шахт лифтов Серия 1.289.1-2
  • Длина 2510 мм.
  • Ширина 140 мм.
  • Высота 3280 мм.
  • Вес 2250 кг.
  • Объем бетона 0,9 м3
  • Геометрический объем 1,1526 м3
Цена: 34920 руб.
Подробнее
ПШЛ 100-33-4 б
Панели шахт лифтов Серия 1.289.1-2
  • Длина 2510 мм.
  • Ширина 140 мм.
  • Высота 3280 мм.
  • Вес 2250 кг.
  • Объем бетона 0,9 м3
  • Геометрический объем 1,1526 м3
Цена: 34920 руб.
Подробнее
ПШЛ 100-33п-2
Панели шахт лифтов Серия 1.289.1-2
  • Длина 2510 мм.
  • Ширина 140 мм.
  • Высота 3280 мм.
  • Вес 2870 кг.
  • Объем бетона 1,15 м3
  • Геометрический объем 1,1526 м3
Цена: 44620 руб.
Подробнее
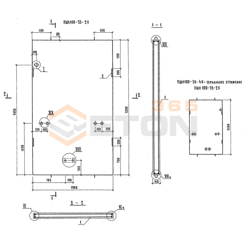
ПШЛ 100-33-3
Панели шахт лифтов Серия 1.289.1-2
  • Длина 2510 мм.
  • Ширина 140 мм.
  • Высота 3280 мм.
  • Вес 2870 кг.
  • Объем бетона 1,15 м3
  • Геометрический объем 1,1526 м3
Цена: 44620 руб.
Подробнее
ПШЛ 100-33п-2 б
Панели шахт лифтов Серия 1.289.1-2
  • Длина 2510 мм.
  • Ширина 140 мм.
  • Высота 3280 мм.
  • Вес 2870 кг.
  • Объем бетона 1,15 м3
  • Геометрический объем 1,1526 м3
Цена: 44620 руб.
Подробнее
ПШЛ 100-33п-3
Панели шахт лифтов Серия 1.289.1-2
  • Длина 2510 мм.
  • Ширина 140 мм.
  • Высота 3280 мм.
  • Вес 2250 кг.
  • Объем бетона 0,9 м3
  • Геометрический объем 1,1526 м3
Цена: 34920 руб.
Подробнее
ПШЛ 100-33п-4
Панели шахт лифтов Серия 1.289.1-2
  • Длина 2510 мм.
  • Ширина 140 мм.
  • Высота 3280 мм.
  • Вес 2870 кг.
  • Объем бетона 1,15 м3
  • Геометрический объем 1,1526 м3
Цена: 44620 руб.
Подробнее
ПШЛ 100-33п-4 б
Панели шахт лифтов Серия 1.289.1-2
  • Длина 2510 мм.
  • Ширина 140 мм.
  • Высота 3280 мм.
  • Вес 2870 кг.
  • Объем бетона 1,15 м3
  • Геометрический объем 1,1526 м3
Цена: 44620 руб.
Подробнее
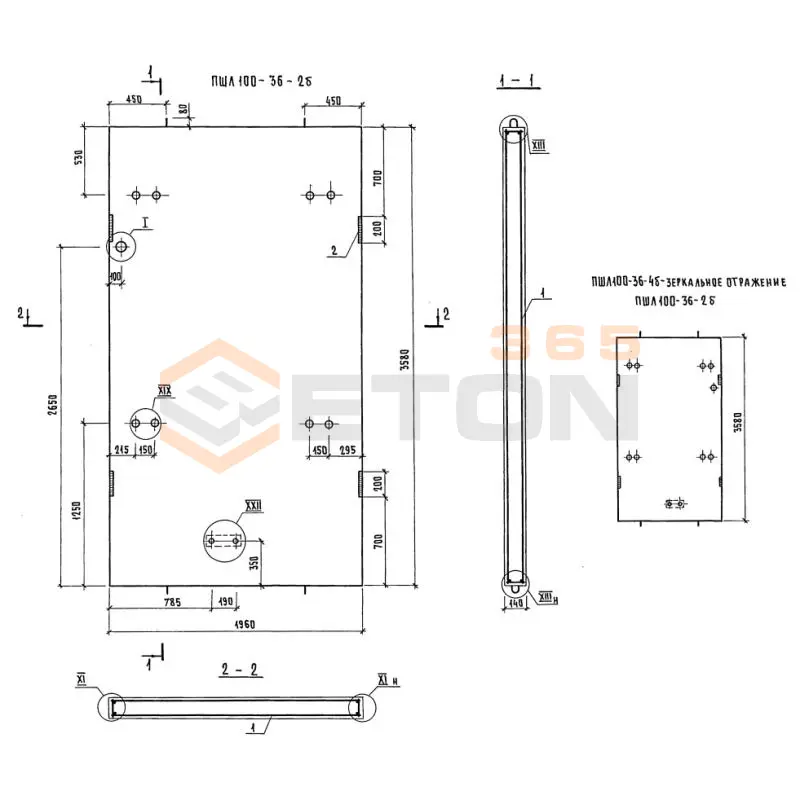
ПШЛ 100-36-1
Панели шахт лифтов Серия 1.289.1-2
  • Длина 2510 мм.
  • Ширина 140 мм.
  • Высота 3580 мм.
  • Вес 2060 кг.
  • Объем бетона 0,82 м3
  • Геометрический объем 1,258 м3
Цена: 31816 руб.
Подробнее
ПШЛ 100-36-2
Панели шахт лифтов Серия 1.289.1-2
  • Длина 2510 мм.
  • Ширина 140 мм.
  • Высота 3580 мм.
  • Вес 2460 кг.
  • Объем бетона 0,98 м3
  • Геометрический объем 1,258 м3
Цена: 38024 руб.
Подробнее
ПШЛ 100-36-1 б
Панели шахт лифтов Серия 1.289.1-2
  • Длина 2510 мм.
  • Ширина 140 мм.
  • Высота 3580 мм.
  • Вес 2060 кг.
  • Объем бетона 0,82 м3
  • Геометрический объем 1,258 м3
Цена: 31816 руб.
Подробнее
ПШЛ 100-36-2 б
Панели шахт лифтов Серия 1.289.1-2
  • Длина 2510 мм.
  • Ширина 140 мм.
  • Высота 3580 мм.
  • Вес 2460 кг.
  • Объем бетона 0,98 м3
  • Геометрический объем 1,258 м3
Цена: 38024 руб.
Подробнее
ПШЛ 100-36-3
Панели шахт лифтов Серия 1.289.1-2
  • Длина 2510 мм.
  • Ширина 140 мм.
  • Высота 3580 мм.
  • Вес 3150 кг.
  • Объем бетона 1,26 м3
  • Геометрический объем 1,258 м3
Цена: 48888 руб.
Подробнее
ПШЛ 100-36-3 б
Панели шахт лифтов Серия 1.289.1-2
  • Длина 2510 мм.
  • Ширина 140 мм.
  • Высота 3580 мм.
  • Вес 3150 кг.
  • Объем бетона 1,26 м3
  • Геометрический объем 1,258 м3
Цена: 48888 руб.
Подробнее
ПШЛ 100-36-4
Панели шахт лифтов Серия 1.289.1-2
  • Длина 2510 мм.
  • Ширина 140 мм.
  • Высота 3580 мм.
  • Вес 2460 кг.
  • Объем бетона 0,98 м3
  • Геометрический объем 1,258 м3
Цена: 38024 руб.
Подробнее
ПШЛ 100-36-4 б
Панели шахт лифтов Серия 1.289.1-2
  • Длина 2510 мм.
  • Ширина 140 мм.
  • Высота 3580 мм.
  • Вес 2460 кг.
  • Объем бетона 0,98 м3
  • Геометрический объем 1,258 м3
Цена: 38024 руб.
Подробнее
ПШЛ 100-36п-2 б
Панели шахт лифтов Серия 1.289.1-2
  • Длина 2510 мм.
  • Ширина 140 мм.
  • Высота 3580 мм.
  • Вес 3150 кг.
  • Объем бетона 1,26 м3
  • Геометрический объем 1,258 м3
Цена: 48888 руб.
Подробнее
ПШЛ 100-36п-2
Панели шахт лифтов Серия 1.289.1-2
  • Длина 2510 мм.
  • Ширина 140 мм.
  • Высота 3580 мм.
  • Вес 3150 кг.
  • Объем бетона 1,26 м3
  • Геометрический объем 1,258 м3
Цена: 48888 руб.
Подробнее
ПШЛ 100-36п-3
Панели шахт лифтов Серия 1.289.1-2
  • Длина 2510 мм.
  • Ширина 140 мм.
  • Высота 3580 мм.
  • Вес 2460 кг.
  • Объем бетона 0,98 м3
  • Геометрический объем 1,258 м3
Цена: 38024 руб.
Подробнее
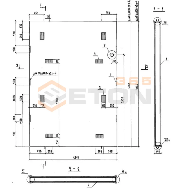
ПШЛ 100-36п-4
Панели шахт лифтов Серия 1.289.1-2
  • Длина 2510 мм.
  • Ширина 140 мм.
  • Высота 3580 мм.
  • Вес 3150 кг.
  • Объем бетона 1,26 м3
  • Геометрический объем 1,258 м3
Цена: 48888 руб.
Подробнее
ПШЛ 100-36п-4 б
Панели шахт лифтов Серия 1.289.1-2
  • Длина 2510 мм.
  • Ширина 140 мм.
  • Высота 3580 мм.
  • Вес 3150 кг.
  • Объем бетона 1,26 м3
  • Геометрический объем 1,258 м3
Цена: 48888 руб.
Подробнее
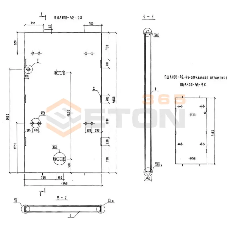
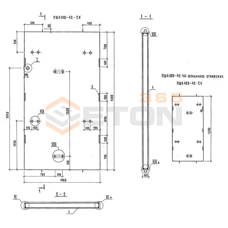
ПШЛ 100-42-1
Панели шахт лифтов Серия 1.289.1-2
  • Длина 2510 мм.
  • Ширина 140 мм.
  • Высота 4180 мм.
  • Вес 2600 кг.
  • Объем бетона 1,04 м3
  • Геометрический объем 1,4689 м3
Цена: 40352 руб.
Подробнее
ПШЛ 100-42-1 б
Панели шахт лифтов Серия 1.289.1-2
  • Длина 2510 мм.
  • Ширина 140 мм.
  • Высота 4180 мм.
  • Вес 2600 кг.
  • Объем бетона 1,04 м3
  • Геометрический объем 1,4689 м3
Цена: 40352 руб.
Подробнее
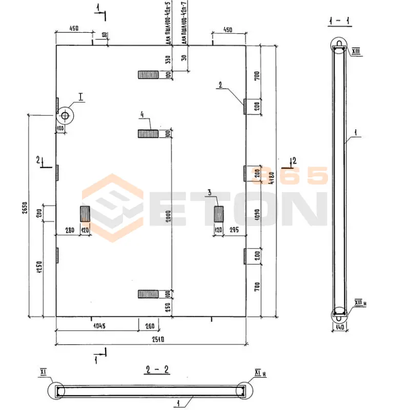
ПШЛ 100-42-10
Панели шахт лифтов Серия 1.289.1-2
  • Длина 2510 мм.
  • Ширина 140 мм.
  • Высота 4180 мм.
  • Вес 2870 кг.
  • Объем бетона 1,15 м3
  • Геометрический объем 1,4689 м3
Цена: 44620 руб.
Подробнее
ПШЛ 100-42-10 б
Панели шахт лифтов Серия 1.289.1-2
  • Длина 2510 мм.
  • Ширина 140 мм.
  • Высота 4180 мм.
  • Вес 2870 кг.
  • Объем бетона 1,15 м3
  • Геометрический объем 1,4689 м3
Цена: 44620 руб.
Подробнее
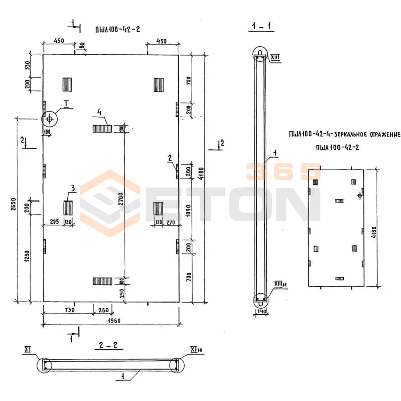
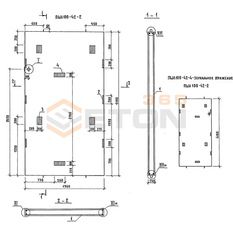
ПШЛ 100-42-2
Панели шахт лифтов Серия 1.289.1-2
  • Длина 2510 мм.
  • Ширина 140 мм.
  • Высота 4180 мм.
  • Вес 2870 кг.
  • Объем бетона 1,15 м3
  • Геометрический объем 1,4689 м3
Цена: 44620 руб.
Подробнее
ПШЛ 100-42-2 б
Панели шахт лифтов Серия 1.289.1-2
  • Длина 2510 мм.
  • Ширина 140 мм.
  • Высота 4180 мм.
  • Вес 2870 кг.
  • Объем бетона 1,15 м3
  • Геометрический объем 1,4689 м3
Цена: 44620 руб.
Подробнее
ПШЛ 100-42-3
Панели шахт лифтов Серия 1.289.1-2
  • Длина 2510 мм.
  • Ширина 140 мм.
  • Высота 4180 мм.
  • Вес 3670 кг.
  • Объем бетона 1,47 м3
  • Геометрический объем 1,4689 м3
Цена: 57036 руб.
Подробнее
ПШЛ 100-42-3 б
Панели шахт лифтов Серия 1.289.1-2
  • Длина 2510 мм.
  • Ширина 140 мм.
  • Высота 4180 мм.
  • Вес 3670 кг.
  • Объем бетона 1,47 м3
  • Геометрический объем 1,4689 м3
Цена: 57036 руб.
Подробнее
ПШЛ 100-42-4 б
Панели шахт лифтов Серия 1.289.1-2
  • Длина 2510 мм.
  • Ширина 140 мм.
  • Высота 4180 мм.
  • Вес 2870 кг.
  • Объем бетона 1,15 м3
  • Геометрический объем 1,4689 м3
Цена: 44620 руб.
Подробнее
ПШЛ 100-42-4
Панели шахт лифтов Серия 1.289.1-2
  • Длина 2510 мм.
  • Ширина 140 мм.
  • Высота 4180 мм.
  • Вес 2870 кг.
  • Объем бетона 1,15 м3
  • Геометрический объем 1,4689 м3
Цена: 44620 руб.
Подробнее
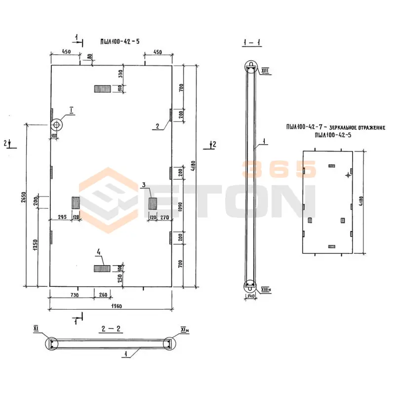
ПШЛ 100-42-5
Панели шахт лифтов Серия 1.289.1-2
  • Длина 2510 мм.
  • Ширина 140 мм.
  • Высота 4180 мм.
  • Вес 2870 кг.
  • Объем бетона 1,15 м3
  • Геометрический объем 1,4689 м3
Цена: 44620 руб.
Подробнее
ПШЛ 100-42-6
Панели шахт лифтов Серия 1.289.1-2
  • Длина 2510 мм.
  • Ширина 140 мм.
  • Высота 4180 мм.
  • Вес 3670 кг.
  • Объем бетона 1,47 м3
  • Геометрический объем 1,4689 м3
Цена: 57036 руб.
Подробнее
ПШЛ 100-42-6 б
Панели шахт лифтов Серия 1.289.1-2
  • Длина 2510 мм.
  • Ширина 140 мм.
  • Высота 4180 мм.
  • Вес 3670 кг.
  • Объем бетона 1,47 м3
  • Геометрический объем 1,4689 м3
Цена: 57036 руб.
Подробнее
ПШЛ 100-42-8
Панели шахт лифтов Серия 1.289.1-2
  • Длина 2510 мм.
  • Ширина 140 мм.
  • Высота 4180 мм.
  • Вес 2870 кг.
  • Объем бетона 1,15 м3
  • Геометрический объем 1,4689 м3
Цена: 44620 руб.
Подробнее
ПШЛ 100-42-7
Панели шахт лифтов Серия 1.289.1-2
  • Длина 2510 мм.
  • Ширина 140 мм.
  • Высота 4180 мм.
  • Вес 2870 кг.
  • Объем бетона 1,15 м3
  • Геометрический объем 1,4689 м3
Цена: 44620 руб.
Подробнее
ПШЛ 100-42-5 б
Панели шахт лифтов Серия 1.289.1-2
  • Длина 2510 мм.
  • Ширина 140 мм.
  • Высота 4180 мм.
  • Вес 2870 кг.
  • Объем бетона 1,15 м3
  • Геометрический объем 1,4689 м3
Цена: 44620 руб.
Подробнее
ПШЛ 100-42-8 б
Панели шахт лифтов Серия 1.289.1-2
  • Длина 2510 мм.
  • Ширина 140 мм.
  • Высота 4180 мм.
  • Вес 2870 кг.
  • Объем бетона 1,15 м3
  • Геометрический объем 1,4689 м3
Цена: 44620 руб.
Подробнее
ПШЛ 100-42-7 б
Панели шахт лифтов Серия 1.289.1-2
  • Длина 2510 мм.
  • Ширина 140 мм.
  • Высота 4180 мм.
  • Вес 2870 кг.
  • Объем бетона 1,15 м3
  • Геометрический объем 1,4689 м3
Цена: 44620 руб.
Подробнее
ПШЛ 100-42-9
Панели шахт лифтов Серия 1.289.1-2
  • Длина 2510 мм.
  • Ширина 140 мм.
  • Высота 4180 мм.
  • Вес 3670 кг.
  • Объем бетона 1,47 м3
  • Геометрический объем 1,4689 м3
Цена: 57036 руб.
Подробнее
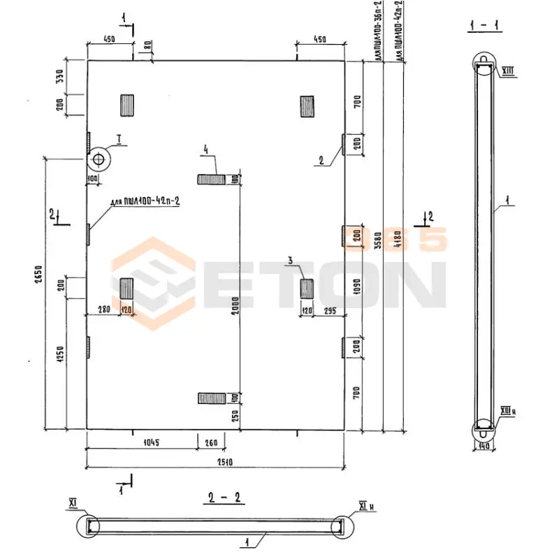
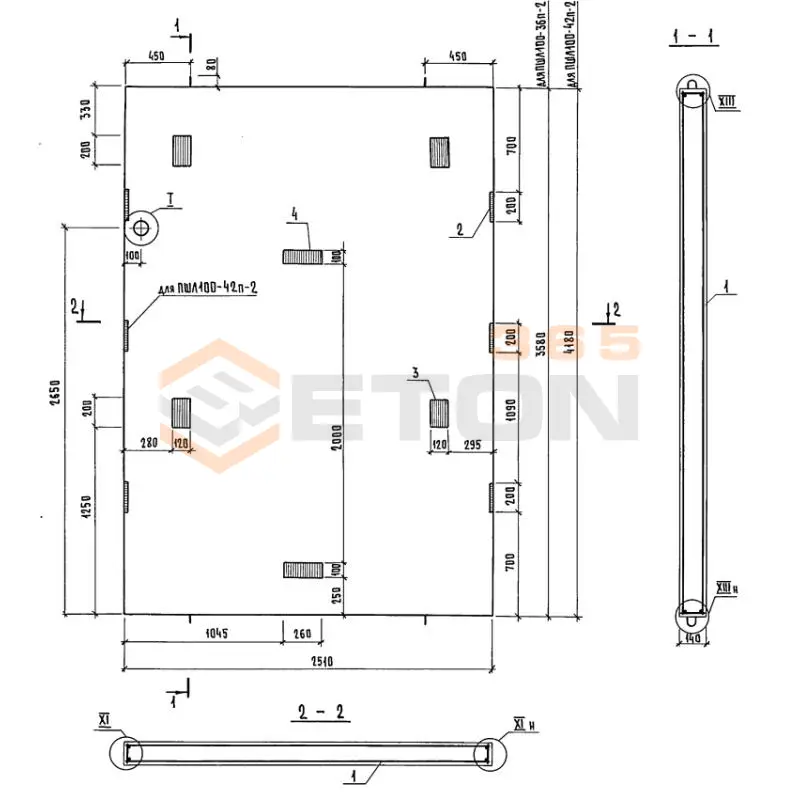
ПШЛ 100-42п-2
Панели шахт лифтов Серия 1.289.1-2
  • Длина 2510 мм.
  • Ширина 140 мм.
  • Высота 4180 мм.
  • Вес 3670 кг.
  • Объем бетона 1,47 м3
  • Геометрический объем 1,4689 м3
Цена: 57036 руб.
Подробнее
ПШЛ 100-42-9 б
Панели шахт лифтов Серия 1.289.1-2
  • Длина 2510 мм.
  • Ширина 140 мм.
  • Высота 4180 мм.
  • Вес 3670 кг.
  • Объем бетона 1,47 м3
  • Геометрический объем 1,4689 м3
Цена: 57036 руб.
Подробнее
ПШЛ 100-42п-4
Панели шахт лифтов Серия 1.289.1-2
  • Длина 2510 мм.
  • Ширина 140 мм.
  • Высота 4180 мм.
  • Вес 3670 кг.
  • Объем бетона 1,47 м3
  • Геометрический объем 1,4689 м3
Цена: 57036 руб.
Подробнее
ПШЛ 100-42п-3
Панели шахт лифтов Серия 1.289.1-2
  • Длина 2510 мм.
  • Ширина 140 мм.
  • Высота 4180 мм.
  • Вес 2870 кг.
  • Объем бетона 1,15 м3
  • Геометрический объем 1,4689 м3
Цена: 44620 руб.
Подробнее
ПШЛ 100-42п-2 б
Панели шахт лифтов Серия 1.289.1-2
  • Длина 2510 мм.
  • Ширина 140 мм.
  • Высота 4180 мм.
  • Вес 3670 кг.
  • Объем бетона 1,47 м3
  • Геометрический объем 1,4689 м3
Цена: 57036 руб.
Подробнее
ПШЛ 100-42п-4 б
Панели шахт лифтов Серия 1.289.1-2
  • Длина 2510 мм.
  • Ширина 140 мм.
  • Высота 4180 мм.
  • Вес 3670 кг.
  • Объем бетона 1,47 м3
  • Геометрический объем 1,4689 м3
Цена: 57036 руб.
Подробнее
ПШЛ 100-42п-5
Панели шахт лифтов Серия 1.289.1-2
  • Длина 2510 мм.
  • Ширина 140 мм.
  • Высота 4180 мм.
  • Вес 3670 кг.
  • Объем бетона 1,47 м3
  • Геометрический объем 1,4689 м3
Цена: 57036 руб.
Подробнее
ПШЛ 100-42п-5 б
Панели шахт лифтов Серия 1.289.1-2
  • Длина 2510 мм.
  • Ширина 140 мм.
  • Высота 4180 мм.
  • Вес 3670 кг.
  • Объем бетона 1,47 м3
  • Геометрический объем 1,4689 м3
Цена: 57036 руб.
Подробнее
ПШЛ 100-42п-6
Панели шахт лифтов Серия 1.289.1-2
  • Длина 2510 мм.
  • Ширина 140 мм.
  • Высота 4180 мм.
  • Вес 3670 кг.
  • Объем бетона 1,47 м3
  • Геометрический объем 1,4689 м3
Цена: 57036 руб.
Подробнее
ПШЛ 100-42п-7
Панели шахт лифтов Серия 1.289.1-2
  • Длина 2510 мм.
  • Ширина 140 мм.
  • Высота 4180 мм.
  • Вес 3670 кг.
  • Объем бетона 1,47 м3
  • Геометрический объем 1,4689 м3
Цена: 57036 руб.
Подробнее
ПШЛ 100-42п-7 б
Панели шахт лифтов Серия 1.289.1-2
  • Длина 2510 мм.
  • Ширина 140 мм.
  • Высота 4180 мм.
  • Вес 3670 кг.
  • Объем бетона 1,47 м3
  • Геометрический объем 1,4689 м3
Цена: 57036 руб.
Подробнее
ПШЛ 100-42п-6 б
Панели шахт лифтов Серия 1.289.1-2
  • Длина 2510 мм.
  • Ширина 140 мм.
  • Высота 4180 мм.
  • Вес 3670 кг.
  • Объем бетона 1,47 м3
  • Геометрический объем 1,4689 м3
Цена: 57036 руб.
Подробнее
ПШЛ 100-42п-8
Панели шахт лифтов Серия 1.289.1-2
  • Длина 2510 мм.
  • Ширина 140 мм.
  • Высота 4180 мм.
  • Вес 3670 кг.
  • Объем бетона 1,47 м3
  • Геометрический объем 1,4689 м3
Цена: 57036 руб.
Подробнее
ПШЛ 100-42п-8 б
Панели шахт лифтов Серия 1.289.1-2
  • Длина 2510 мм.
  • Ширина 140 мм.
  • Высота 4180 мм.
  • Вес 3670 кг.
  • Объем бетона 1,47 м3
  • Геометрический объем 1,4689 м3
Цена: 57036 руб.
Подробнее
ПШЛ 63-33-1 б
Панели шахт лифтов Серия 1.289.1-2
  • Длина 1960 мм.
  • Ширина 140 мм.
  • Высота 3280 мм.
  • Вес 1400 кг.
  • Объем бетона 0,56 м3
  • Геометрический объем 0,9 м3
Цена: 21728 руб.
Подробнее

Как правильно выбрать - Панели шахт лифтов Серия 1.289.1-2

Панели шахт лифтов Серия 1.289.1-2 представляют собой сборные железобетонные элементы, предназначенные для возведения несущих стен лифтовых шахт в жилых, общественных и промышленных зданиях. Их ключевая функция – формирование жесткого и огнестойкого каркаса шахты, обеспечивающего безопасную эксплуатацию лифтового оборудования. Долговечность и надежность всей конструкции в значительной степени определяются грамотным подбором панелей шахт лифтов, полностью соответствующих проектным решениям и условиям строительства.

Критерии выбора

  • Соответствие серии и нормам: Изделие должно строго соответствовать рабочим чертежам серии 1.289.1-2 и ГОСТ 26633 на тяжелые и мелкозернистые бетоны.
  • Ключевые характеристики бетона: Обращайте внимание на марку бетона по прочности (не ниже В25), морозостойкость (F150-F200) и водонепроницаемость (W4-W6), что критично для устойчивости к температурным перепадам и влаге.
  • Армирование и закладные детали: Проверяйте класс арматурной стали (А-III) и точное расположение закладных деталей (петель, пластин), которые обеспечивают надежное соединение панелей шахт лифтов между собой и с элементами каркаса здания.
  • Геометрия и типоразмер: Сверяйте габаритные размеры и толщину панели, а также конфигурацию монтажных стыков. Отклонения от проектной геометрии недопустимы.
  • Качество поверхности: Панели не должны иметь сквозных трещин, крупных раковин и наплывов бетона, которые могут осложнить отделку шахты.

Рекомендации по подбору и монтажу

При закупке панелей шахт лифтов Серия 1.289.1-2 требуйте у производителя паспорта качества и результаты испытаний контрольных образцов. Убедитесь, что поставка комплектная и включает все позиции по спецификации, включая доборные элементы. Перед монтажом необходимо тщательно проверить разбивочные оси и отметки опорных площадок.

Монтаж следует вести с применением проектных строповочных устройств, строго соблюдая вертикальность устанавливаемых панелей. Особое внимание уделите герметизации и анкеровке стыков, используя предусмотренные проектом растворы и сварные соединения закладных деталей. Это предотвратит перекосы и обеспечит проектную жесткость ствола шахты лифта.

Ответы экспертов на ваши вопросы

Основные преимущества включают:

  1. Высокую скорость монтажа - панели изготавливаются на заводе и быстро собираются на объекте
  2. Стабильное качество - заводское производство обеспечивает точность геометрии и прочностные характеристики
  3. Снижение трудозатрат на строительной площадке
  4. Возможность ведения работ в любое время года
  5. Сокращение сроков строительства в 2-3 раза по сравнению с монолитной технологией

Производство и применение регламентируется:

  • Серия 1.289.1-2 "Панели шахт лифтов"
  • ГОСТ 13015-2012 "Изделия бетонные и железобетонные для строительства"
  • СП 63.13330.2018 "Бетонные и железобетонные конструкции"
  • Техническими условиями завода-изготовителя
  • Проектной документацией на конкретный объект

Серия предусматривает:

  • Высоту панелей: 2680 мм, 2980 мм, 3280 мм
  • Толщину панелей: 140 мм, 160 мм
  • Различные конфигурации: глухие панели, с дверными проемами, с отверстиями для коммуникаций
  • Панели для прямых участков шахты и поворотные элементы
  • Изделия для шахт грузовых и пассажирских лифтов различной грузоподъемности

Основные требования к монтажу:

  1. Строгое соблюдение вертикальности и геометрии шахты
  2. Герметизация стыков специальными составами
  3. Проверка точности установки каждой панели
  4. Соблюдение последовательности монтажа согласно проекту
  5. Использование грузоподъемных механизмов соответствующей грузоподъемности
  6. Выполнение работ квалифицированным персоналом
  7. Контроль качества сварки монтажных петель и закладных деталей

Особенности транспортировки и хранения:

  • Перевозка в вертикальном положении на специальных подставках
  • Защита от механических повреждений при погрузо-разгрузочных работах
  • Хранение на ровной площадке с подкладками под нижнюю кромку
  • Защита от атмосферных воздействий при длительном хранении
  • Маркировка каждой панели для идентификации при монтаже
  • Строгое соблюдение правил техники безопасности при перемещении
Ранее смотрели
Звенья железобетонные круглых водопропускных труб под железные и автомобильные дороги (Шифр 57-368) Блок 86 (коническое звено R-0,75)
Блок 86 (коническое звено R-0,75)
Звенья железобетонные круглых водопропускных труб под железные и автомобильные дороги (Шифр 57-368)
Межколонные плиты (МП) Серия 1.420.1-25 МП 1-3-1
МП 1-3-1
Межколонные плиты (МП) Серия 1.420.1-25
Камни для кладки стен ТУ 5741-004-18576628-99 СКЦ 3 тд
СКЦ 3 тд
Камни для кладки стен ТУ 5741-004-18576628-99
2ПР 1 АтIVс (ГОСТ 26992-86)
2ПР 1 АтIVс (ГОСТ 26992-86)
Прогоны железобетонные ГОСТ 26992-86
Полурамы Серия 1.822.1-2/82 РПС 12-1 с
РПС 12-1 с
Полурамы Серия 1.822.1-2/82
РПС 18-37,5-2 АIII
РПС 18-37,5-2 АIII
Полурамы Серия 1.822.1-6
Настил коробчатый Серия В 86 Н 2-5-700 (В 86)
Н 2-5-700 (В 86)
Настил коробчатый Серия В 86
РПС 12-37,5-1 АIII
РПС 12-37,5-1 АIII
Полурамы Серия 1.822.1-6

Уведомление о файлах cookie

Мы используем файлы cookie для улучшения вашего опыта просмотра и анализа трафика. Нажимая "Принять все", вы соглашаетесь с нашей политикой конфиденциальности и политикой обработки файлов cookie.

Дзен Телеграм Вконтакте vk