mobile_sound +7 (930) 655-55-90

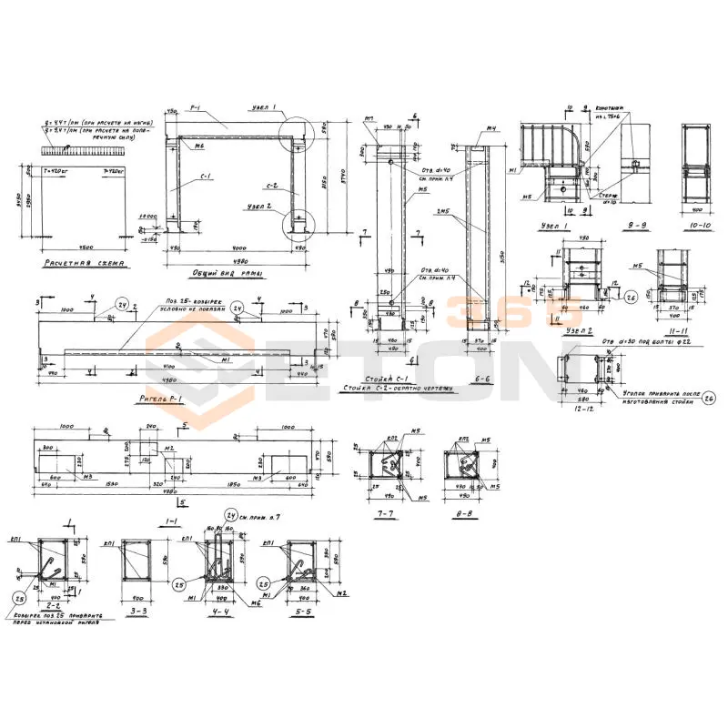
Ригели пролета ворот Серия ПР 05-36.3

Поделиться:
Фильтр по характеристикам
Длина (мм.)
keyboard_arrow_down
мм.
мм.
Ширина (мм.)
keyboard_arrow_down
мм.
мм.
Высота (мм.)
keyboard_arrow_down
мм.
мм.
Вес (кг.)
keyboard_arrow_down
кг.
кг.
Поделиться:

Завод "Бетон365" производит ригели пролета ворот серии ПР 05-36.3 — ключевые элементы, обеспечивающие жесткость и устойчивость воротных проемов в промышленных и гражданских зданиях. Эти железобетонные конструкции изготавливаются в строгом соответствии с ГОСТ, обладают повышенной несущей способностью и долговечностью, что гарантирует надежную эксплуатацию воротных систем на протяжении десятилетий. Применение готовых ригелей позволяет оптимизировать сроки строительства и обеспечить равномерное распределение нагрузок на несущие стены.

Мы реализуем ригели пролета ворот серии ПР 05-36.3 напрямую от производителя в Москве и МО по конкурентным ценам. Вам доступна оперативная доставка на объект и гарантия качества на всю продукцию. Чтобы уточнить стоимость и заказать необходимые железобетонные изделия для вашего проекта, обратитесь к нашим специалистам для консультации.

Р 1 (ПР 05-36.3)
Ригели пролета ворот Серия ПР 05-36.3
  • Длина 4980 мм.
  • Ширина 400 мм.
  • Высота 590 мм.
  • Вес 3000 кг.
  • Объем бетона 1,18 м3
  • Геометрический объем 1,1753 м3
Цена: 43495 руб.
Подробнее

Как правильно выбрать - Ригели пролета ворот Серия ПР 05-36.3

Ригели пролета ворот серии ПР 05-36.3 представляют собой горизонтальные несущие элементы, предназначенные для перекрытия верхней части проемов промышленных и складских ворот. Они воспринимают нагрузку от стенового ограждения и передают ее на колонны каркаса здания. Устойчивость всей воротной конструкции и ее долговечность определяются точным соответствием характеристик ригелей проектным расчетам и реальным условиям эксплуатации.

Критерии выбора

  • Марка бетона и класс прочности: Для ригелей серии ПР 05-36.3, как правило, применяется тяжелый бетон марки не ниже М300 (класс прочности на сжатие В22.5) с показателями морозостойкости F150-F200 и водонепроницаемости W6-W8, что обеспечивает долговечность в условиях агрессивной промышленной среды.
  • Армирование: Обязательно проверьте паспорт на соответствие рабочей арматуры классу А-III (А400) и конструктивной – А-I (А240). Качество и диаметр арматурных стержней напрямую влияют на несущую способность.
  • Геометрические параметры и конфигурация: Сверьте длину, высоту и ширину изделия с проектными размерами. Убедитесь в наличии и правильном расположении монтажных петель или закладных деталей для крепления к колоннам и воротным створкам.
  • Расчетная нагрузка: Ригель ПР 05-36.3 должен выдерживать не только собственный вес и вес стеновых панелей, но и ветровые нагрузки, характерные для региона строительства. Эти данные должны быть указаны в проектной документации.
  • Соответствие нормам: Изделие должно изготавливаться в строгом соответствии с серией 1.423.1-5/88 и иметь паспорт качества, подтверждающий его параметры.

Рекомендации по подбору и монтажу

При закупке ригелей пролета ворот серии ПР 05-36.3 требуйте от поставщика полный комплект документации, включая паспорт с указанием фактической прочности бетона и схемы армирования. Особое внимание уделите визуальному осмотру на предмет отсутствия трещин, сколов и оголения арматуры. Перед монтажом проверьте соответствие опорных площадок на колоннах проектным отметкам.

Монтаж ригеля ПР 05-36.3 выполняйте с применением грузоподъемной техники соответствующей грузоподъемности, используя все предусмотренные монтажные петли. После установки на проектные отметки обязательна надежная анкеровка к колоннам каркаса через закладные детали. Стык между ригелем и колонной должен быть замоноличен бетоном на мелком заполнителе проектной марки для обеспечения жесткого соединения.

Ответы экспертов на ваши вопросы

Ригель пролета ворот серии ПР 05-36.3 - это железобетонное изделие, представляющее собой горизонтальную балку, которая служит верхней перемычкой над проемом ворот. Он предназначен для восприятия нагрузок от вышележащих конструкций и передачи их на вертикальные опоры (колонны или стены). Данная серия используется в промышленных и гражданских зданиях для устройства воротных проемов.

Основные технические характеристики:

  • Длина: 3600 мм
  • Высота: 300 мм
  • Ширина: 200 мм
  • Марка бетона: не ниже М300 (В22,5)
  • Класс арматуры: АIII
  • Расчетная нагрузка: определяется проектом
  • Масса: примерно 450-500 кг
  • Морозостойкость: F100
  • Водонепроницаемость: W6

Основные преимущества:

  • Высокая прочность и несущая способность
  • Долговечность (срок службы более 50 лет)
  • Огнестойкость
  • Устойчивость к атмосферным воздействиям
  • Стандартизированные размеры для простоты монтажа
  • Экономичность при массовом производстве
  • Возможность использования в сейсмических районах (до 7 баллов)

Требования к монтажу:

  • Монтаж должен производиться квалифицированными специалистами
  • Обязательная проверка горизонтальности установки
  • Опора на колонны или стены не менее 200 мм с каждой стороны
  • Использование грузоподъемной техники соответствующей грузоподъемности
  • Проверка качества опорных поверхностей перед монтажом
  • Герметизация швов после установки
  • Соблюдение требований проекта по анкеровке

Особенности применения:

  • В промышленных зданиях: используется для ворот цехов, складов, ангаров
  • В гражданском строительстве: применяется для гаражных ворот, въездов в подземные паркинги
  • В сельскохозяйственных постройках: для ворот животноводческих комплексов, хранилищ
  • Требует устройства надежных вертикальных опор (колонн серии КЭ)
  • Совместим с различными типами воротных конструкций
  • Может использоваться в отапливаемых и неотапливаемых помещениях
Ранее смотрели
Люки чугунные для смотровых колодцев ГОСТ 3634-99 Люк тип Т (С250) (тяжелый)
Люк тип Т (С250) (тяжелый)
Люки чугунные для смотровых колодцев ГОСТ 3634-99
Фундаментные блоки сплошные ФБС серия 1.116.1-8 и ГОСТ 13579-78 ФБС 29-4-3 т-2 а (шифр 27Н-83)
ФБС 29-4-3 т-2 а (шифр 27Н-83)
Фундаментные блоки сплошные ФБС серия 1.116.1-8 и ГОСТ 13579-78
Капители ГОСТ 27108-86 КПК 1лев-1-1 (ГОСТ 27108-86)
КПК 1лев-1-1 (ГОСТ 27108-86)
Капители ГОСТ 27108-86
Лестничные марши ребристые с полуплощадками ГОСТ 9818-2015 ЛМП 57-11-17-5-13 (ГОСТ 9818-2015)
ЛМП 57-11-17-5-13 (ГОСТ 9818-2015)
Лестничные марши ребристые с полуплощадками ГОСТ 9818-2015
Люки для кабельных колодцев телефонной канализации ГОСТ 8591-76 Люк тип Т (С250) ГТС с замком
Люк тип Т (С250) ГТС с замком
Люки для кабельных колодцев телефонной канализации ГОСТ 8591-76
Лестничные марши ребристые с полуплощадками ГОСТ 9818-2015 ЛМП 57-11-18-5-13 (ГОСТ 9818-2015)
ЛМП 57-11-18-5-13 (ГОСТ 9818-2015)
Лестничные марши ребристые с полуплощадками ГОСТ 9818-2015
Люки для кабельных колодцев телефонной канализации ГОСТ 8591-76 Люк тип Л (А15) ГТС с запорным устройством
Люк тип Л (А15) ГТС с запорным устройством
Люки для кабельных колодцев телефонной канализации ГОСТ 8591-76

Уведомление о файлах cookie

Мы используем файлы cookie для улучшения вашего опыта просмотра и анализа трафика. Нажимая "Принять все", вы соглашаетесь с нашей политикой конфиденциальности и политикой обработки файлов cookie.

MAX Дзен Телеграм Вконтакте vk