mobile_sound +7 (930) 655-55-90

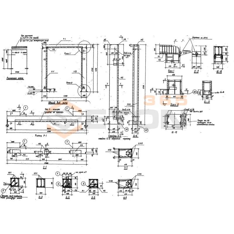
Ригели пролета ворот Серия ПР 05-36.1

Поделиться:
Фильтр по характеристикам
Длина (мм.)
keyboard_arrow_down
мм.
мм.
Ширина (мм.)
keyboard_arrow_down
мм.
мм.
Высота (мм.)
keyboard_arrow_down
мм.
мм.
Вес (кг.)
keyboard_arrow_down
кг.
кг.
Поделиться:

Ригели пролета ворот серии ПР 05-36.1 от завода-производителя «Бетон365» — это ключевой элемент для создания прочных и долговечных воротных конструкций. Данные железобетонные изделия обеспечивают необходимую жесткость и равномерное распределение нагрузок, гарантируя устойчивость всей системы. Изготовленные в строгом соответствии с ГОСТ, они идеально подходят для промышленных, коммерческих и жилых объектов, значительно ускоряя монтаж и повышая надежность эксплуатации.

Компания «Бетон365» реализует ригели пролета ворот серии ПР 05-36.1 по конкурентной цене от производителя в Москве и Московской области. Мы обеспечиваем оперативную доставку и гарантируем качество каждой партии продукции. Чтобы купить надежные ЖБИ для вашего проекта и получить профессиональную консультацию, просто свяжитесь с нашими специалистами!

Р 1 (ПР 05-36.1)
Ригели пролета ворот Серия ПР 05-36.1
  • Длина 5980 мм.
  • Ширина 400 мм.
  • Высота 390 мм.
  • Вес 2400 кг.
  • Объем бетона 0,93 м3
  • Геометрический объем 0,9329 м3
Цена: 34280 руб.
Подробнее

Как правильно выбрать - Ригели пролета ворот Серия ПР 05-36.1

Ригели пролета ворот серии ПР 05-36.1 представляют собой горизонтальные несущие элементы, предназначенные для перекрытия верхней части проемов промышленных и складских ворот. Они воспринимают нагрузку от стенового ограждения и передают ее на колонны каркаса здания. Долговечность и устойчивость всей конструкции во многом определяются точным соответствием характеристик ригелей проектным расчетам и реальным условиям эксплуатации.

Критерии выбора

  • Марка бетона и прочностные характеристики: Изделия изготавливаются из тяжелого бетона марки не ниже М300, что обеспечивает необходимую несущую способность. Обязательно проверяйте паспорт на соответствие классу по прочности на сжатие (В22,5-В25).
  • Морозостойкость и водонепроницаемость: Для большинства регионов требуется морозостойкость F150-F200 и водонепроницаемость W6, что гарантирует долговечность в условиях перепадов температур и атмосферных осадков.
  • Армирование: Каркас выполнен из напрягаемой или ненапрягаемой арматуры классов А-III (А400) и А-I (А240). Уточняйте схему армирования, так как она определяет способность ригеля воспринимать изгибающие моменты.
  • Геометрические параметры и конфигурация: Строго сверяйте длину, высоту и ширину изделия с проектом. Обращайте внимание на наличие и расположение монтажных петель, закладных деталей для крепления воротных полотен и облицовки.
  • Соответствие нормам: Изделие должно производиться в строгом соответствии с серией ПР 05-36.1 и сопровождаться паспортом качества, где указаны все регламентированные ГОСТ и ТУ параметры.

Рекомендации по подбору и монтажу

При составлении спецификации на ригели пролета ворот серии ПР 05-36.1 обязательно учитывайте не только статические нагрузки от собственного веса и стен, но и динамические воздействия от работы воротных механизмов, а также ветровую нагрузку для вашего региона. Требуйте от поставщика предоставления полного комплекта документов, включая схемы армирования и акты испытаний контрольных образцов.

Монтаж ригелей пролета ворот требует тщательной подготовки. Перед укладкой проверьте точность положения опорных консолей колонн. Строповку производите за все предусмотренные монтажные петли, чтобы избежать возникновения трещин. После установки обязательна проверка проектного положения и надежная анкеровка закладных деталей к несущим колоннам до начала монтажа воротных полотен.

Ответы экспертов на ваши вопросы

Ригель ПР 05-36.1 – это железобетонная балка, предназначенная для перекрытия пролета ворот в промышленных и гражданских зданиях. Его основная функция – воспринимать нагрузку от вышележащих конструкций (стен, перекрытий) и передавать ее на колонны или стены, обеспечивая свободный проем для ворот. Область применения – преимущественно каркасы одноэтажных промышленных зданий, складов, ангаров, где требуются широкие въездные проемы.

Основные технические характеристики ригеля ПР 05-36.1, согласно серии:

  • Габаритная длина: Как правило, 5.98 метра (номинальный пролет 6 метров).
  • Высота и ширина: Определяются серией, стандартные значения для данного типоразмера.
  • Марка бетона: Обычно не ниже B25 (M350) по прочности на сжатие.
  • Марка по морозостойкости: F100-F150 (для большинства климатических районов).
  • Марка по водонепроницаемости: W4-W6.
  • Расчетная нагрузка: Указывается в проектной документации серии, но типовые ригели подобного назначения рассчитываются на значительные нагрузки, включая собственный вес, вес стены и возможные крановые воздействия. Точное значение необходимо уточнять в рабочих чертежах серии ПР 05-36.1.

Использование типового ригеля ПР 05-36.1 имеет ряд преимуществ:

  1. Стандартизация и доступность: Изделие производится по утвержденной серии, что обеспечивает его доступность на рынке и предсказуемые характеристики.
  2. Сокращение сроков проектирования и строительства: Не требуется разработка индивидуального проекта балки.
  3. Высокая прочность и надежность: Изготовление из тяжелого железобетона обеспечивает несущую способность, долговечность и устойчивость к воздействию огня.
  4. Проверенная конструкция: Серийные изделия имеют многолетний опыт применения, их поведение под нагрузкой хорошо изучено.
  5. Экономическая эффективность: Массовое производство снижает себестоимость по сравнению с изделиями, изготавливаемыми по индивидуальному заказу.

При монтаже и эксплуатации критически важно соблюдать следующие правила:

  • Строгое соблюдение проектных отметок и размеров: Неправильная установка может привести к перераспределению нагрузок и аварийной ситуации.
  • Качество опорной поверхности: Места опирания ригеля на колонны должны быть выверены по горизонтали и очищены от мусора.
  • Целостность изделия: Перед монтажом необходимо провести визуальный осмотр на отсутствие трещин, сколов и оголения арматуры.
  • Запрет на несанкционированные изменения: Категорически нельзя сверлить отверстия, делать вырезы или нагружать ригель не предусмотренными проектом элементами без соответствующего расчета и усиления.
  • Контроль состояния: В процессе эксплуатации необходимо периодически осматривать ригель на предмет появления деформаций или трещин.

Анкеровка и соединение ригеля с колоннами осуществляется с помощью закладных деталей. На ригеле и на опорных колоннах устанавливаются стальные пластины (закладные детали) с приваренными анкерными стержнями. После установки ригеля в проектное положение, эти закладные детали соединяются между собой с помощью сварки. Тип, размер и расположение закладных деталей строго регламентированы рабочими чертежами серии ПР 05-36.1. Качество сварных швов должно соответствовать требованиям СНиП и ГОСТ.

Ранее смотрели
Ригели Серия 1.420-8/81 1РЖ 10-82-215 АIIIв-1
1РЖ 10-82-215 АIIIв-1
Ригели Серия 1.420-8/81
Колодцы кабельной канализации и связи ККС 5-80 с чугунным люком ГТС-Л
ККС 5-80 с чугунным люком ГТС-Л
Колодцы кабельной канализации и связи
Люки для кабельных колодцев телефонной канализации ГОСТ 8591-76 Люк тип Т (С250) ГТС молния
Люк тип Т (С250) ГТС молния
Люки для кабельных колодцев телефонной канализации ГОСТ 8591-76
РЛП 4-27-55 АIII (Б1.125.1-1)
РЛП 4-27-55 АIII (Б1.125.1-1)
Ригели Серия Б1.125.1-1
Колодцы кабельной канализации и связи ККС 2-80 с чугунным люком ГТС-Л
ККС 2-80 с чугунным люком ГТС-Л
Колодцы кабельной канализации и связи
РЛП 4-56-60 АIII (Б1.125.1-1)
РЛП 4-56-60 АIII (Б1.125.1-1)
Ригели Серия Б1.125.1-1
Лестничные марши ребристые с полуплощадками ЛМП серия 1.050.1-2 ЛМП 57-12-15 (ЛМК 57-12-15)
ЛМП 57-12-15 (ЛМК 57-12-15)
Лестничные марши ребристые с полуплощадками ЛМП серия 1.050.1-2
РЛП 4-27-45 АIII (Б1.125.1-1)
РЛП 4-27-45 АIII (Б1.125.1-1)
Ригели Серия Б1.125.1-1

Уведомление о файлах cookie

Мы используем файлы cookie для улучшения вашего опыта просмотра и анализа трафика. Нажимая "Принять все", вы соглашаетесь с нашей политикой конфиденциальности и политикой обработки файлов cookie.

Дзен Телеграм Вконтакте vk