mobile_sound +7 (930) 655-55-90

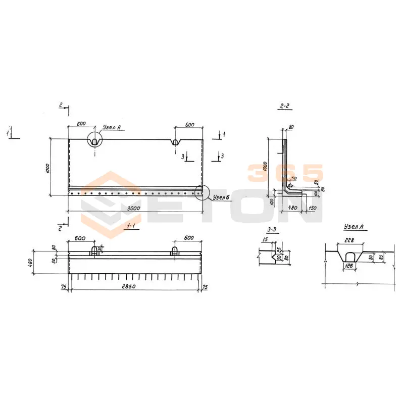
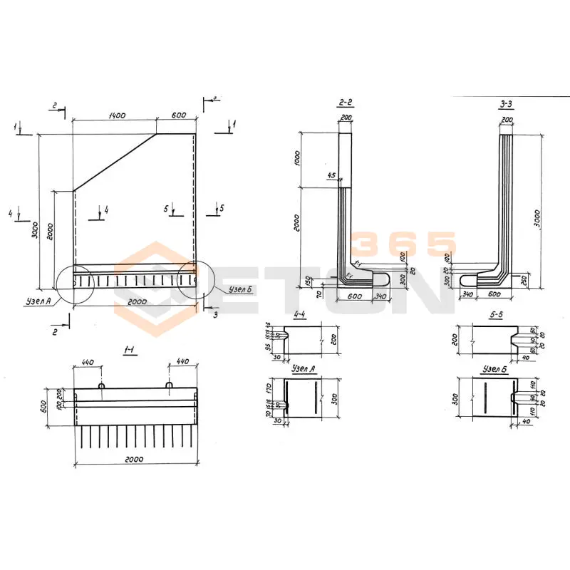
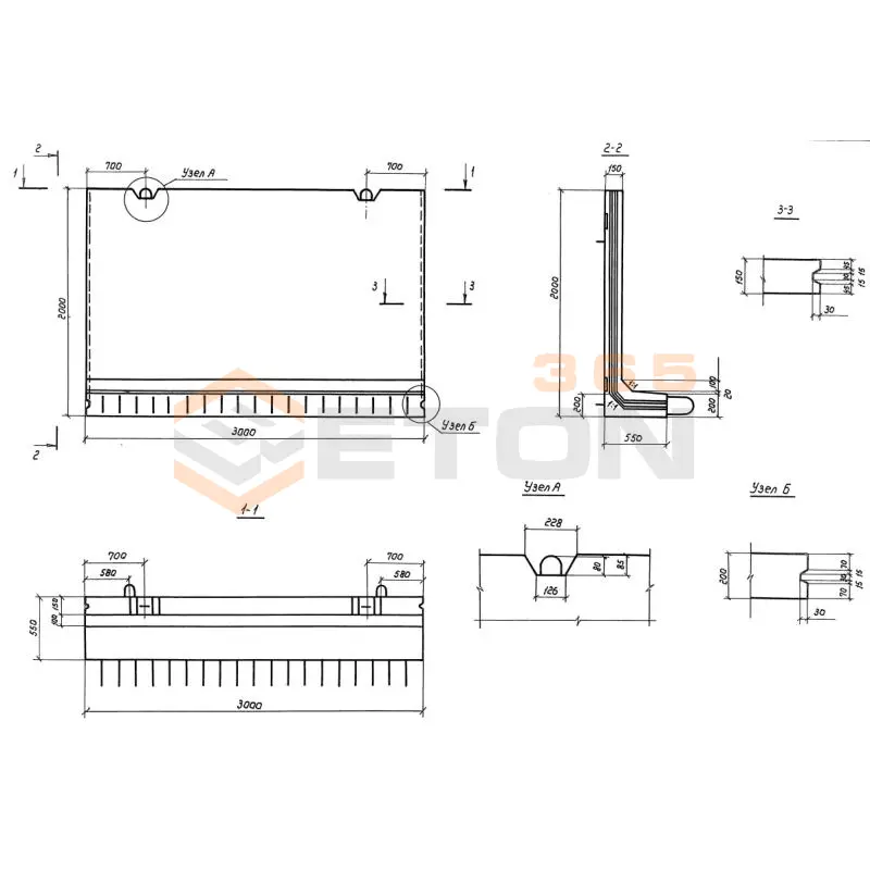
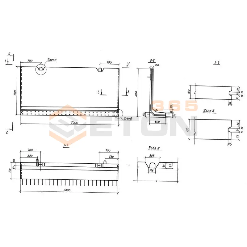
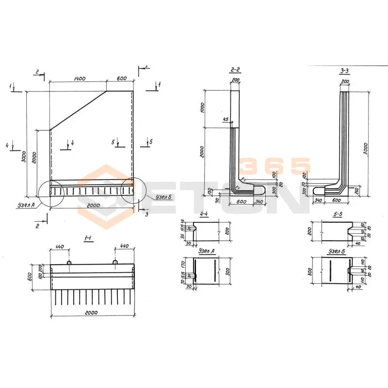
Г-образные конструкции с ныряющей вертикальной стенкой Серия 3.820.1-39

Поделиться:
Фильтр по характеристикам
Длина (мм.)
keyboard_arrow_down
мм.
мм.
Ширина (мм.)
keyboard_arrow_down
мм.
мм.
Высота (мм.)
keyboard_arrow_down
мм.
мм.
Вес (кг.)
keyboard_arrow_down
кг.
кг.
Поделиться:

Завод "Бетон365" производит Г-образные конструкции с ныряющей вертикальной стенкой серии 3.820.1-39 – специализированные железобетонные элементы для создания надежных соединений в несущих конструкциях зданий. Эти изделия обеспечивают повышенную жесткость узлов сопряжения, равномерно распределяя нагрузку между вертикальными и горизонтальными элементами, что особенно важно при строительстве объектов с повышенными требованиями к сейсмостойкости и долговечности. Конструкции изготавливаются из тяжелого бетона с соблюдением всех требований ГОСТ, что гарантирует их устойчивость к агрессивным воздействиям окружающей среды.

В Москве и Московской области мы предлагаем купить Г-образные конструкции серии 3.820.1-39 непосредственно от производителя по оптимальной цене, что позволяет существенно сократить расходы на строительство. Все изделия сопровождаются сертификатами качества и паспортами, обеспечивая полное соответствие проектной документации. Организуем доставку на объект в кратчайшие сроки и предоставим профессиональные консультации по монтажу данных конструкций. Обращайтесь к нашим специалистам для расчета стоимости и оформления заказа!

Г 10-30-2 (3.820.1-39)
Г-образные конструкции с ныряющей вертикальной стенкой Серия 3.820.1-39
  • Длина 3000 мм.
  • Ширина 480 мм.
  • Высота 1000 мм.
  • Вес 950 кг.
  • Объем бетона 0,38 м3
  • Геометрический объем 1,44 м3
Цена: 11058 руб.
Подробнее
Г 10-60-2 (3.820.1-39)
Г-образные конструкции с ныряющей вертикальной стенкой Серия 3.820.1-39
  • Длина 6000 мм.
  • Ширина 480 мм.
  • Высота 1000 мм.
  • Вес 1900 кг.
  • Объем бетона 0,76 м3
  • Геометрический объем 2,88 м3
Цена: 22116 руб.
Подробнее
Г 10-60-1 (3.820.1-39)
Г-образные конструкции с ныряющей вертикальной стенкой Серия 3.820.1-39
  • Длина 6000 мм.
  • Ширина 480 мм.
  • Высота 1000 мм.
  • Вес 1900 кг.
  • Объем бетона 0,76 м3
  • Геометрический объем 2,88 м3
Цена: 22116 руб.
Подробнее
Г 12-30-1 (3.820.1-39)
Г-образные конструкции с ныряющей вертикальной стенкой Серия 3.820.1-39
  • Длина 3000 мм.
  • Ширина 480 мм.
  • Высота 1250 мм.
  • Вес 1180 кг.
  • Объем бетона 0,47 м3
  • Геометрический объем 1,8 м3
Цена: 13677 руб.
Подробнее
Г 12-30-2 (3.820.1-39)
Г-образные конструкции с ныряющей вертикальной стенкой Серия 3.820.1-39
  • Длина 3000 мм.
  • Ширина 480 мм.
  • Высота 1250 мм.
  • Вес 1180 кг.
  • Объем бетона 0,47 м3
  • Геометрический объем 1,8 м3
Цена: 13677 руб.
Подробнее
Г 12-60-1 (3.820.1-39)
Г-образные конструкции с ныряющей вертикальной стенкой Серия 3.820.1-39
  • Длина 6000 мм.
  • Ширина 480 мм.
  • Высота 1250 мм.
  • Вес 2380 кг.
  • Объем бетона 0,95 м3
  • Геометрический объем 3,6 м3
Цена: 27645 руб.
Подробнее
Г 12-60-2 (3.820.1-39)
Г-образные конструкции с ныряющей вертикальной стенкой Серия 3.820.1-39
  • Длина 6000 мм.
  • Ширина 480 мм.
  • Высота 1250 мм.
  • Вес 2380 кг.
  • Объем бетона 0,95 м3
  • Геометрический объем 3,6 м3
Цена: 27645 руб.
Подробнее
Г 20-30-2 (3.820.1-39)
Г-образные конструкции с ныряющей вертикальной стенкой Серия 3.820.1-39
  • Длина 3000 мм.
  • Ширина 550 мм.
  • Высота 2000 мм.
  • Вес 2880 кг.
  • Объем бетона 1,2 м3
  • Геометрический объем 3,3 м3
Цена: 34920 руб.
Подробнее
Г 15-30-3 (3.820.1-39)
Г-образные конструкции с ныряющей вертикальной стенкой Серия 3.820.1-39
  • Длина 3000 мм.
  • Ширина 500 мм.
  • Высота 1500 мм.
  • Вес 1650 кг.
  • Объем бетона 0,66 м3
  • Геометрический объем 2,25 м3
Цена: 19206 руб.
Подробнее
Г 25-20-3 (3.820.1-39)
Г-образные конструкции с ныряющей вертикальной стенкой Серия 3.820.1-39
  • Длина 2000 мм.
  • Ширина 580 мм.
  • Высота 2500 мм.
  • Вес 2780 кг.
  • Объем бетона 1,1 м3
  • Геометрический объем 2,9 м3
Цена: 32010 руб.
Подробнее
НГ 15 (3.820.1-39)
Г-образные конструкции с ныряющей вертикальной стенкой Серия 3.820.1-39
  • Длина 2100 мм.
  • Ширина 500 мм.
  • Высота 1500 мм.
  • Вес 650 кг.
  • Объем бетона 0,26 м3
  • Геометрический объем 1,575 м3
Цена: 7566 руб.
Подробнее
НГ 15 а (3.820.1-39)
Г-образные конструкции с ныряющей вертикальной стенкой Серия 3.820.1-39
  • Длина 2100 мм.
  • Ширина 500 мм.
  • Высота 1500 мм.
  • Вес 650 кг.
  • Объем бетона 0,26 м3
  • Геометрический объем 1,575 м3
Цена: 7566 руб.
Подробнее
НГ 20 (3.820.1-39)
Г-образные конструкции с ныряющей вертикальной стенкой Серия 3.820.1-39
  • Длина 2850 мм.
  • Ширина 550 мм.
  • Высота 2000 мм.
  • Вес 1550 кг.
  • Объем бетона 0,62 м3
  • Геометрический объем 3,135 м3
Цена: 18042 руб.
Подробнее
НГ 20 а (3.820.1-39)
Г-образные конструкции с ныряющей вертикальной стенкой Серия 3.820.1-39
  • Длина 2850 мм.
  • Ширина 550 мм.
  • Высота 2000 мм.
  • Вес 1550 кг.
  • Объем бетона 0,62 м3
  • Геометрический объем 3,135 м3
Цена: 18042 руб.
Подробнее
Г 20-30-1 (3.820.1-39)
Г-образные конструкции с ныряющей вертикальной стенкой Серия 3.820.1-39
  • Длина 3000 мм.
  • Ширина 550 мм.
  • Высота 2000 мм.
  • Вес 2880 кг.
  • Объем бетона 1,2 м3
  • Геометрический объем 3,3 м3
Цена: 34920 руб.
Подробнее
НГ 25 (3.820.1-39)
Г-образные конструкции с ныряющей вертикальной стенкой Серия 3.820.1-39
  • Длина 2000 мм.
  • Ширина 580 мм.
  • Высота 2500 мм.
  • Вес 2480 кг.
  • Объем бетона 0,99 м3
  • Геометрический объем 2,9 м3
Цена: 28809 руб.
Подробнее
НГ 25 а (3.820.1-39)
Г-образные конструкции с ныряющей вертикальной стенкой Серия 3.820.1-39
  • Длина 2000 мм.
  • Ширина 580 мм.
  • Высота 2500 мм.
  • Вес 2480 кг.
  • Объем бетона 0,99 м3
  • Геометрический объем 2,9 м3
Цена: 28809 руб.
Подробнее
НГ 30 (3.820.1-39)
Г-образные конструкции с ныряющей вертикальной стенкой Серия 3.820.1-39
  • Длина 2000 мм.
  • Ширина 600 мм.
  • Высота 3000 мм.
  • Вес 3300 кг.
  • Объем бетона 1,3 м3
  • Геометрический объем 3,6 м3
Цена: 37830 руб.
Подробнее
НГ 30 а (3.820.1-39)
Г-образные конструкции с ныряющей вертикальной стенкой Серия 3.820.1-39
  • Длина 2000 мм.
  • Ширина 600 мм.
  • Высота 3000 мм.
  • Вес 3300 кг.
  • Объем бетона 1,3 м3
  • Геометрический объем 3,6 м3
Цена: 37830 руб.
Подробнее

Как правильно выбрать - Г-образные конструкции с ныряющей вертикальной стенкой Серия 3.820.1-39

Г-образные конструкции с ныряющей вертикальной стенкой Серия 3.820.1-39 предназначены для возведения подпорных стен и ограждающих конструкций в промышленном и гражданском строительстве. Они эффективно воспринимают боковое давление грунта и используются при устройстве насыпей, котлованов и террасировании склонов. Долговечность всей конструкции напрямую зависит от соответствия геометрических параметров и технических характеристик изделия проектным нагрузкам и конкретным грунтовым условиям площадки.

Критерии выбора

  • Марка бетона и эксплуатационные показатели: Изделия изготавливаются из тяжелого бетона марки не ниже М300. Ключевые параметры – морозостойкость F200 и водонепроницаемость W6, что критически важно для конструкций, постоянно контактирующих с грунтовой влагой.
  • Класс арматуры и защитный слой: Применяется напрягаемая и ненапрягаемая арматура классов Ат-V, А-III. Необходимо контролировать толщину защитного слоя бетона для обеспечения долговечности арматурного каркаса.
  • Типоразмер и конфигурация: Серия включает изделия различной высоты (от 3,0 до 6,0 м) и длины. Важно учитывать форму – прямую или радиусную, а также наличие и расположение монтажных петель и закладных деталей для последующего монтажа.
  • Расчетные нагрузки: Выбор осуществляется на основе данных о боковом давлении грунта, его типе, уровне грунтовых вод и возможных дополнительных нагрузках (например, от транспорта или оборудования).
  • Соответствие нормам: Обязательно проверять соответствие изделия требованиям серии 3.820.1-39 и актуальным ГОСТ на производство железобетонных конструкций.

Рекомендации по подбору и монтажу

При составлении спецификации на Г-образные конструкции с ныряющей вертикальной стенкой Серия 3.820.1-39 необходимо указывать не только типоразмер, но и марку бетона по морозостойкости и водонепроницаемости. Запросите у производителя паспорт качества на партию, где эти параметры должны быть подтверждены лабораторными испытаниями. Убедитесь в комплектности поставки, включая все предусмотренные проектом закладные детали.

На этапе монтажа критически важна подготовка основания – устройство щебеночной или бетонной подготовки для обеспечения стабильной опоры. При установке следите за точным позиционированием "ныряющей" части, которая должна быть заглублена в соответствии с проектом для создания надежного противодействия опрокидыванию. Стыки между соседними конструкциями необходимо герметизировать для предотвращения просачивания грунта и воды. Правильная анкеровка и обратная засыпка инертным материалом с послойным трамбованием – залог устойчивости всей подпорной стены.

Ответы экспертов на ваши вопросы

Г-образные конструкции с ныряющей вертикальной стенкой серии 3.820.1-39 применяются преимущественно в промышленном и гражданском строительстве для устройства подпорных стен, фундаментов под оборудование, ограждающих конструкций подвалов и технических подполий. Особенность "ныряющей" стенки позволяет эффективно распределять нагрузку и противостоять боковому давлению грунта.

Основные преимущества включают: повышенную устойчивость к опрокидыванию благодаря "ныряющей" части, лучшее распределение нагрузок на основание, возможность устройства в сложных грунтовых условиях, уменьшение материалоемкости при сохранении несущей способности, а также унификацию размеров и типоразмеров согласно серии.

Монтаж требует: тщательной подготовки основания с уплотнением грунта, точной выверки положения по осям и высотам, обязательного устройства песчано-гравийной подготовки толщиной не менее 100 мм, соблюдения проектных уклонов, качественной гидроизоляции стыков и швов, а также поэтапного обратного засыпания с послойным уплотнением грунта.

Конструкции рассчитаны на восприятие вертикальных нагрузок до 150 кН/м² и бокового давления грунта в зависимости от марки бетона и армирования. Ограничения включают: невозможность применения в сейсмических районах с балльностью выше 7, в вечномерзлых грунтах без специальных мероприятий, а также при уровне грунтовых вод выше подошвы фундамента без дополнительной гидроизоляции.

Изготовление осуществляется из тяжелого бетона классов В20-В30, с применением арматурной стали классов А400-А500. Требования к качеству: марка бетона по морозостойкости не ниже F100, по водонепроницаемости W6-W8, отсутствие трещин на поверхности, точность геометрических размеров в пределах ±5 мм, соответствие проектным характеристикам армирования.

Уведомление о файлах cookie

Мы используем файлы cookie для улучшения вашего опыта просмотра и анализа трафика. Нажимая "Принять все", вы соглашаетесь с нашей политикой конфиденциальности и политикой обработки файлов cookie.

MAX Дзен Телеграм Вконтакте vk