mobile_sound +7 (930) 655-55-90

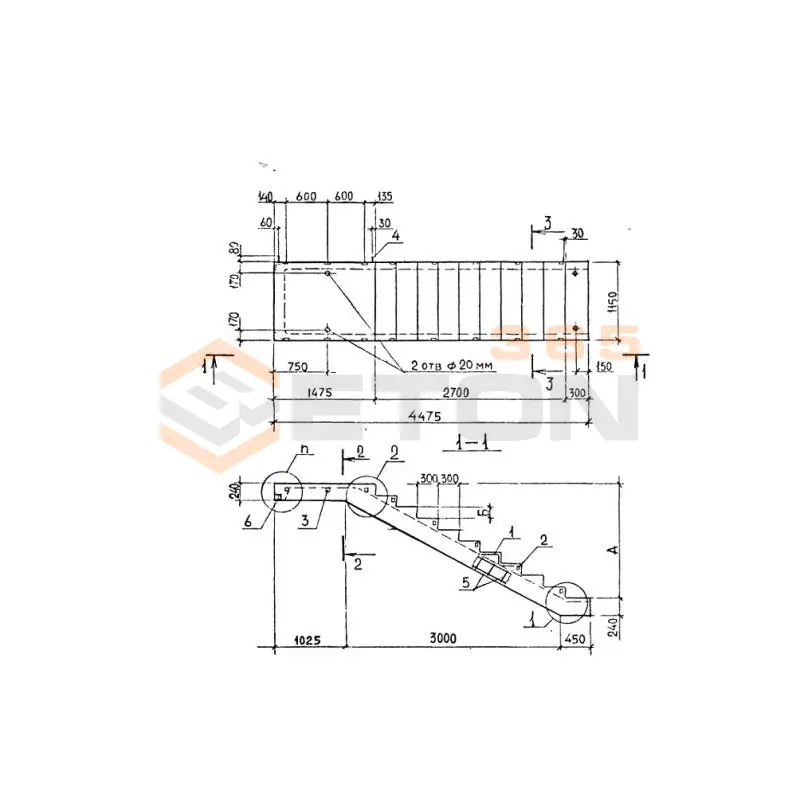
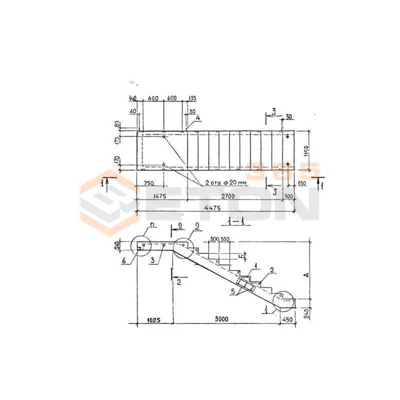
Лестничные марши ребристые с полуплощадками ЛМП серия 1.050.1-2

Поделиться:
Фильтр по характеристикам
Длина (мм.)
keyboard_arrow_down
мм.
мм.
Ширина (мм.)
keyboard_arrow_down
мм.
мм.
Высота (мм.)
keyboard_arrow_down
мм.
мм.
Вес (кг.)
keyboard_arrow_down
кг.
кг.
Объем бетона (м3)
keyboard_arrow_down
м3
м3
Поделиться:

Завод "Бетон365" производит лестничные марши ребристые с полуплощадками ЛМП серия 1.050.1-2 – готовые железобетонные конструкции, обеспечивающие безопасное и удобное сообщение между этажами в жилых и промышленных зданиях. Ребристая структура маршей значительно повышает их несущую способность и устойчивость к динамическим нагрузкам, а интегрированные полуплощадки оптимизируют пространство и упрощают монтаж. Изделия соответствуют строгим требованиям ГОСТ, что гарантирует их долговечность и надежность в эксплуатации на протяжении десятилетий.

Мы реализуем лестничные марши ЛМП серии 1.050.1-2 напрямую от производителя в Москве и Московской области по конкурентным ценам, предлагая комплексные поставки для объектов любого масштаба. В каталоге представлены изделия с различными параметрами, а профессиональные консультанты помогут подобрать оптимальное решение для вашего проекта. Доставка осуществляется собственным транспортом в кратчайшие сроки – обращайтесь для расчета стоимости и оформления заказа!

ЛМ 57-14-17
Лестничные марши ребристые с полуплощадками ЛМП серия 1.050.1-2
  • Длина 5650 мм.
  • Ширина 1150 мм.
  • Высота 1650 мм.
  • Вес 2380 кг.
  • Объем бетона 0,95 м3
  • Геометрический объем 10,7209 м3
Цена: 20734 руб.
Подробнее
ЛМ 60-14-17
Лестничные марши ребристые с полуплощадками ЛМП серия 1.050.1-2
  • Длина 5950 мм.
  • Ширина 1350 мм.
  • Высота 1650 мм.
  • Вес 2640 кг.
  • Объем бетона 1,1 м3
  • Геометрический объем 13,2536 м3
Цена: 24008 руб.
Подробнее
ЛМП 57-11-14
Лестничные марши ребристые с полуплощадками ЛМП серия 1.050.1-2
  • Длина 5650 мм.
  • Ширина 1150 мм.
  • Высота 1400 мм.
  • Вес 2250 кг.
  • Объем бетона 0,9 м3
  • Геометрический объем 9,0965 м3
Цена: 19643 руб.
Подробнее
ЛМП 57-11-14-5
Лестничные марши ребристые с полуплощадками ЛМП серия 1.050.1-2
  • Длина 5650 мм.
  • Ширина 1150 мм.
  • Высота 1400 мм.
  • Вес 2200 кг.
  • Объем бетона 0,9 м3
  • Геометрический объем 9,0965 м3
Цена: 19643 руб.
Подробнее
ЛМП 57-11-14-5
Лестничные марши ребристые с полуплощадками ЛМП серия 1.050.1-2
  • Длина 5650 мм.
  • Ширина 1150 мм.
  • Высота 1400 мм.
  • Вес 2250 кг.
  • Объем бетона 0,9 м3
  • Геометрический объем 9,0965 м3
Цена: 19643 руб.
Подробнее
ЛМП 57-11-14-5 с
Лестничные марши ребристые с полуплощадками ЛМП серия 1.050.1-2
  • Длина 5650 мм.
  • Ширина 1150 мм.
  • Высота 1400 мм.
  • Вес 2200 кг.
  • Объем бетона 0,9 м3
  • Геометрический объем 9,0965 м3
Цена: 19643 руб.
Подробнее
ЛМП 57-11-14-5-3
Лестничные марши ребристые с полуплощадками ЛМП серия 1.050.1-2
  • Длина 4475 мм.
  • Ширина 1150 мм.
  • Высота 1400 мм.
  • Вес 1830 кг.
  • Объем бетона 0,73 м3
  • Геометрический объем 7,2047 м3
Цена: 15932 руб.
Подробнее
ЛМП 57-11-14-5 с
Лестничные марши ребристые с полуплощадками ЛМП серия 1.050.1-2
  • Длина 5650 мм.
  • Ширина 1150 мм.
  • Высота 1400 мм.
  • Вес 2250 кг.
  • Объем бетона 0,9 м3
  • Геометрический объем 9,0965 м3
Цена: 19643 руб.
Подробнее
ЛМП 57-11-14-5-3
Лестничные марши ребристые с полуплощадками ЛМП серия 1.050.1-2
  • Длина 4475 мм.
  • Ширина 1150 мм.
  • Высота 1400 мм.
  • Вес 1900 кг.
  • Объем бетона 0,73 м3
  • Геометрический объем 7,2047 м3
Цена: 15932 руб.
Подробнее
ЛМП 57-11-14-5-3 с
Лестничные марши ребристые с полуплощадками ЛМП серия 1.050.1-2
  • Длина 4475 мм.
  • Ширина 1150 мм.
  • Высота 1400 мм.
  • Вес 1830 кг.
  • Объем бетона 0,73 м3
  • Геометрический объем 7,2047 м3
Цена: 15932 руб.
Подробнее
ЛМП 57-11-14-5-3 с
Лестничные марши ребристые с полуплощадками ЛМП серия 1.050.1-2
  • Длина 4475 мм.
  • Ширина 1150 мм.
  • Высота 1400 мм.
  • Вес 1900 кг.
  • Объем бетона 0,76 м3
  • Геометрический объем 7,2047 м3
Цена: 16587 руб.
Подробнее
ЛМП 57-11-15
Лестничные марши ребристые с полуплощадками ЛМП серия 1.050.1-2
  • Длина 5650 мм.
  • Ширина 1150 мм.
  • Высота 1500 мм.
  • Вес 2300 кг.
  • Объем бетона 0,92 м3
  • Геометрический объем 9,7462 м3
Цена: 20079 руб.
Подробнее
ЛМП 57-11-15-5
Лестничные марши ребристые с полуплощадками ЛМП серия 1.050.1-2
  • Длина 5650 мм.
  • Ширина 1150 мм.
  • Высота 1500 мм.
  • Вес 2300 кг.
  • Объем бетона 0,92 м3
  • Геометрический объем 9,7462 м3
Цена: 20079 руб.
Подробнее
ЛМП 57-11-15-5 с
Лестничные марши ребристые с полуплощадками ЛМП серия 1.050.1-2
  • Длина 5650 мм.
  • Ширина 1150 мм.
  • Высота 1500 мм.
  • Вес 2300 кг.
  • Объем бетона 0,92 м3
  • Геометрический объем 9,7462 м3
Цена: 20079 руб.
Подробнее
ЛМП 57-11-15-5
Лестничные марши ребристые с полуплощадками ЛМП серия 1.050.1-2
  • Длина 5650 мм.
  • Ширина 1150 мм.
  • Высота 1500 мм.
  • Вес 2300 кг.
  • Объем бетона 0,92 м3
  • Геометрический объем 9,7462 м3
Цена: 20079 руб.
Подробнее
ЛМП 57-11-15-5 с
Лестничные марши ребристые с полуплощадками ЛМП серия 1.050.1-2
  • Длина 5650 мм.
  • Ширина 1150 мм.
  • Высота 1500 мм.
  • Вес 2300 кг.
  • Объем бетона 0,92 м3
  • Геометрический объем 9,7462 м3
Цена: 20079 руб.
Подробнее
ЛМП 57-11-15-5-3
Лестничные марши ребристые с полуплощадками ЛМП серия 1.050.1-2
  • Длина 4475 мм.
  • Ширина 1150 мм.
  • Высота 1500 мм.
  • Вес 1930 кг.
  • Объем бетона 0,77 м3
  • Геометрический объем 7,7194 м3
Цена: 16805 руб.
Подробнее
ЛМП 57-11-15-5-3
Лестничные марши ребристые с полуплощадками ЛМП серия 1.050.1-2
  • Длина 4475 мм.
  • Ширина 1150 мм.
  • Высота 1500 мм.
  • Вес 1900 кг.
  • Объем бетона 0,77 м3
  • Геометрический объем 7,7194 м3
Цена: 16805 руб.
Подробнее
ЛМП 57-11-15-5-3 с
Лестничные марши ребристые с полуплощадками ЛМП серия 1.050.1-2
  • Длина 4475 мм.
  • Ширина 1150 мм.
  • Высота 1500 мм.
  • Вес 1930 кг.
  • Объем бетона 0,77 м3
  • Геометрический объем 7,7194 м3
Цена: 16805 руб.
Подробнее
ЛМП 57-11-15-5-3 с
Лестничные марши ребристые с полуплощадками ЛМП серия 1.050.1-2
  • Длина 4475 мм.
  • Ширина 1150 мм.
  • Высота 1500 мм.
  • Вес 1900 кг.
  • Объем бетона 0,77 м3
  • Геометрический объем 7,7194 м3
Цена: 16805 руб.
Подробнее
ЛМП 57-11-17
Лестничные марши ребристые с полуплощадками ЛМП серия 1.050.1-2
  • Длина 5650 мм.
  • Ширина 1150 мм.
  • Высота 1650 мм.
  • Вес 2380 кг.
  • Объем бетона 0,95 м3
  • Геометрический объем 10,7209 м3
Цена: 20734 руб.
Подробнее
ЛМП 57-11-17-5
Лестничные марши ребристые с полуплощадками ЛМП серия 1.050.1-2
  • Длина 5650 мм.
  • Ширина 1150 мм.
  • Высота 1650 мм.
  • Вес 2380 кг.
  • Объем бетона 0,95 м3
  • Геометрический объем 10,7209 м3
Цена: 20734 руб.
Подробнее
ЛМП 57-11-17-5 с
Лестничные марши ребристые с полуплощадками ЛМП серия 1.050.1-2
  • Длина 5650 мм.
  • Ширина 1150 мм.
  • Высота 1650 мм.
  • Вес 2400 кг.
  • Объем бетона 0,95 м3
  • Геометрический объем 10,7209 м3
Цена: 20734 руб.
Подробнее
ЛМП 57-11-17-5
Лестничные марши ребристые с полуплощадками ЛМП серия 1.050.1-2
  • Длина 5650 мм.
  • Ширина 1150 мм.
  • Высота 1650 мм.
  • Вес 2400 кг.
  • Объем бетона 0,95 м3
  • Геометрический объем 10,7209 м3
Цена: 20734 руб.
Подробнее
ЛМП 57-11-17-5-1
Лестничные марши ребристые с полуплощадками ЛМП серия 1.050.1-2
  • Длина 5650 мм.
  • Ширина 1150 мм.
  • Высота 1650 мм.
  • Вес 2380 кг.
  • Объем бетона 0,95 м3
  • Геометрический объем 10,7209 м3
Цена: 20734 руб.
Подробнее
ЛМП 57-11-17-5 с
Лестничные марши ребристые с полуплощадками ЛМП серия 1.050.1-2
  • Длина 5650 мм.
  • Ширина 1150 мм.
  • Высота 1650 мм.
  • Вес 2380 кг.
  • Объем бетона 0,95 м3
  • Геометрический объем 10,7209 м3
Цена: 20734 руб.
Подробнее
ЛМП 57-11-17-5-1
Лестничные марши ребристые с полуплощадками ЛМП серия 1.050.1-2
  • Длина 5650 мм.
  • Ширина 1150 мм.
  • Высота 1650 мм.
  • Вес 2400 кг.
  • Объем бетона 0,95 м3
  • Геометрический объем 10,7209 м3
Цена: 20734 руб.
Подробнее
ЛМП 57-11-17-5-1 с
Лестничные марши ребристые с полуплощадками ЛМП серия 1.050.1-2
  • Длина 5650 мм.
  • Ширина 1150 мм.
  • Высота 1650 мм.
  • Вес 2380 кг.
  • Объем бетона 0,95 м3
  • Геометрический объем 10,7209 м3
Цена: 20734 руб.
Подробнее
ЛМП 57-11-17-5-13
Лестничные марши ребристые с полуплощадками ЛМП серия 1.050.1-2
  • Длина 4750 мм.
  • Ширина 1150 мм.
  • Высота 1650 мм.
  • Вес 2150 кг.
  • Объем бетона 0,86 м3
  • Геометрический объем 9,0131 м3
Цена: 18770 руб.
Подробнее
ЛМП 57-11-17-5-1 с
Лестничные марши ребристые с полуплощадками ЛМП серия 1.050.1-2
  • Длина 5650 мм.
  • Ширина 1150 мм.
  • Высота 1650 мм.
  • Вес 2400 кг.
  • Объем бетона 0,95 м3
  • Геометрический объем 10,7209 м3
Цена: 20734 руб.
Подробнее
ЛМП 57-11-17-5-13
Лестничные марши ребристые с полуплощадками ЛМП серия 1.050.1-2
  • Длина 4750 мм.
  • Ширина 1150 мм.
  • Высота 1650 мм.
  • Вес 2100 кг.
  • Объем бетона 0,86 м3
  • Геометрический объем 9,0131 м3
Цена: 18770 руб.
Подробнее
ЛМП 57-11-17-5-13 с
Лестничные марши ребристые с полуплощадками ЛМП серия 1.050.1-2
  • Длина 4750 мм.
  • Ширина 1150 мм.
  • Высота 1650 мм.
  • Вес 2150 кг.
  • Объем бетона 0,86 м3
  • Геометрический объем 9,0131 м3
Цена: 18770 руб.
Подробнее
ЛМП 57-11-17-5-13 с
Лестничные марши ребристые с полуплощадками ЛМП серия 1.050.1-2
  • Длина 4750 мм.
  • Ширина 1150 мм.
  • Высота 1650 мм.
  • Вес 2100 кг.
  • Объем бетона 0,86 м3
  • Геометрический объем 9,0131 м3
Цена: 18770 руб.
Подробнее
ЛМП 57-11-17-5-2
Лестничные марши ребристые с полуплощадками ЛМП серия 1.050.1-2
  • Длина 5650 мм.
  • Ширина 1150 мм.
  • Высота 1650 мм.
  • Вес 2400 кг.
  • Объем бетона 0,95 м3
  • Геометрический объем 10,7209 м3
Цена: 20734 руб.
Подробнее
ЛМП 57-11-17-5-2
Лестничные марши ребристые с полуплощадками ЛМП серия 1.050.1-2
  • Длина 5650 мм.
  • Ширина 1150 мм.
  • Высота 1650 мм.
  • Вес 2380 кг.
  • Объем бетона 0,95 м3
  • Геометрический объем 10,7209 м3
Цена: 20734 руб.
Подробнее
ЛМП 57-11-17-5-2 с
Лестничные марши ребристые с полуплощадками ЛМП серия 1.050.1-2
  • Длина 5650 мм.
  • Ширина 1150 мм.
  • Высота 1650 мм.
  • Вес 2400 кг.
  • Объем бетона 0,95 м3
  • Геометрический объем 10,7209 м3
Цена: 20734 руб.
Подробнее
ЛМП 57-11-17-5-3
Лестничные марши ребристые с полуплощадками ЛМП серия 1.050.1-2
  • Длина 4625 мм.
  • Ширина 1150 мм.
  • Высота 1650 мм.
  • Вес 2000 кг.
  • Объем бетона 0,8 м3
  • Геометрический объем 8,7759 м3
Цена: 17460 руб.
Подробнее
ЛМП 57-11-17-5-2 с
Лестничные марши ребристые с полуплощадками ЛМП серия 1.050.1-2
  • Длина 5650 мм.
  • Ширина 1150 мм.
  • Высота 1650 мм.
  • Вес 2380 кг.
  • Объем бетона 0,95 м3
  • Геометрический объем 10,7209 м3
Цена: 20734 руб.
Подробнее
ЛМП 57-11-17-5-3
Лестничные марши ребристые с полуплощадками ЛМП серия 1.050.1-2
  • Длина 4625 мм.
  • Ширина 1150 мм.
  • Высота 1650 мм.
  • Вес 2100 кг.
  • Объем бетона 0,85 м3
  • Геометрический объем 8,7759 м3
Цена: 18551 руб.
Подробнее
ЛМП 57-11-17-5-3 с
Лестничные марши ребристые с полуплощадками ЛМП серия 1.050.1-2
  • Длина 4625 мм.
  • Ширина 1150 мм.
  • Высота 1650 мм.
  • Вес 2100 кг.
  • Объем бетона 0,85 м3
  • Геометрический объем 8,7759 м3
Цена: 18551 руб.
Подробнее
ЛМП 57-11-17-5-3 с
Лестничные марши ребристые с полуплощадками ЛМП серия 1.050.1-2
  • Длина 4625 мм.
  • Ширина 1150 мм.
  • Высота 1650 мм.
  • Вес 2000 кг.
  • Объем бетона 0,8 м3
  • Геометрический объем 8,7759 м3
Цена: 17460 руб.
Подробнее
ЛМП 57-11-18-5
Лестничные марши ребристые с полуплощадками ЛМП серия 1.050.1-2
  • Длина 5650 мм.
  • Ширина 1150 мм.
  • Высота 1800 мм.
  • Вес 2400 кг.
  • Объем бетона 0,95 м3
  • Геометрический объем 11,6955 м3
Цена: 20734 руб.
Подробнее
ЛМП 57-11-18-5
Лестничные марши ребристые с полуплощадками ЛМП серия 1.050.1-2
  • Длина 5650 мм.
  • Ширина 1150 мм.
  • Высота 1800 мм.
  • Вес 2380 кг.
  • Объем бетона 0,95 м3
  • Геометрический объем 11,6955 м3
Цена: 20734 руб.
Подробнее
ЛМП 57-11-18-5 с
Лестничные марши ребристые с полуплощадками ЛМП серия 1.050.1-2
  • Длина 5650 мм.
  • Ширина 1150 мм.
  • Высота 1800 мм.
  • Вес 2400 кг.
  • Объем бетона 0,95 м3
  • Геометрический объем 11,6955 м3
Цена: 20734 руб.
Подробнее
ЛМП 57-11-18-5 с
Лестничные марши ребристые с полуплощадками ЛМП серия 1.050.1-2
  • Длина 5650 мм.
  • Ширина 1150 мм.
  • Высота 1800 мм.
  • Вес 2380 кг.
  • Объем бетона 0,95 м3
  • Геометрический объем 11,6955 м3
Цена: 20734 руб.
Подробнее
ЛМП 57-11-18-5-1 с
Лестничные марши ребристые с полуплощадками ЛМП серия 1.050.1-2
  • Длина 5650 мм.
  • Ширина 1150 мм.
  • Высота 1800 мм.
  • Вес 2380 кг.
  • Объем бетона 0,95 м3
  • Геометрический объем 11,6955 м3
Цена: 20734 руб.
Подробнее
ЛМП 57-11-18-5-1
Лестничные марши ребристые с полуплощадками ЛМП серия 1.050.1-2
  • Длина 5650 мм.
  • Ширина 1150 мм.
  • Высота 1800 мм.
  • Вес 2380 кг.
  • Объем бетона 0,95 м3
  • Геометрический объем 11,6955 м3
Цена: 20734 руб.
Подробнее
ЛМП 57-11-18-5-1
Лестничные марши ребристые с полуплощадками ЛМП серия 1.050.1-2
  • Длина 5650 мм.
  • Ширина 1150 мм.
  • Высота 1800 мм.
  • Вес 2400 кг.
  • Объем бетона 0,95 м3
  • Геометрический объем 11,6955 м3
Цена: 20734 руб.
Подробнее
ЛМП 57-11-18-5-1 с
Лестничные марши ребристые с полуплощадками ЛМП серия 1.050.1-2
  • Длина 5650 мм.
  • Ширина 1150 мм.
  • Высота 1800 мм.
  • Вес 2400 кг.
  • Объем бетона 0,95 м3
  • Геометрический объем 11,6955 м3
Цена: 20734 руб.
Подробнее
ЛМП 57-11-18-5-13
Лестничные марши ребристые с полуплощадками ЛМП серия 1.050.1-2
  • Длина 5050 мм.
  • Ширина 1150 мм.
  • Высота 1800 мм.
  • Вес 2100 кг.
  • Объем бетона 0,84 м3
  • Геометрический объем 10,4535 м3
Цена: 18333 руб.
Подробнее
ЛМП 57-11-18-5-13
Лестничные марши ребристые с полуплощадками ЛМП серия 1.050.1-2
  • Длина 5050 мм.
  • Ширина 1150 мм.
  • Высота 1800 мм.
  • Вес 2100 кг.
  • Объем бетона 0,84 м3
  • Геометрический объем 10,4535 м3
Цена: 18333 руб.
Подробнее
ЛМП 57-11-18-5-2
Лестничные марши ребристые с полуплощадками ЛМП серия 1.050.1-2
  • Длина 5650 мм.
  • Ширина 1150 мм.
  • Высота 1800 мм.
  • Вес 2380 кг.
  • Объем бетона 0,95 м3
  • Геометрический объем 11,6955 м3
Цена: 20734 руб.
Подробнее
ЛМП 57-11-18-5-13 с
Лестничные марши ребристые с полуплощадками ЛМП серия 1.050.1-2
  • Длина 5050 мм.
  • Ширина 1150 мм.
  • Высота 1800 мм.
  • Вес 2100 кг.
  • Объем бетона 0,84 м3
  • Геометрический объем 10,4535 м3
Цена: 18333 руб.
Подробнее
ЛМП 57-11-18-5-13 с
Лестничные марши ребристые с полуплощадками ЛМП серия 1.050.1-2
  • Длина 5050 мм.
  • Ширина 1150 мм.
  • Высота 1800 мм.
  • Вес 2100 кг.
  • Объем бетона 0,84 м3
  • Геометрический объем 10,4535 м3
Цена: 18333 руб.
Подробнее
ЛМП 57-11-18-5-2 с
Лестничные марши ребристые с полуплощадками ЛМП серия 1.050.1-2
  • Длина 5650 мм.
  • Ширина 1150 мм.
  • Высота 1800 мм.
  • Вес 2380 кг.
  • Объем бетона 0,95 м3
  • Геометрический объем 11,6955 м3
Цена: 20734 руб.
Подробнее
ЛМП 57-11-18-5-2 с
Лестничные марши ребристые с полуплощадками ЛМП серия 1.050.1-2
  • Длина 5650 мм.
  • Ширина 1150 мм.
  • Высота 1800 мм.
  • Вес 2400 кг.
  • Объем бетона 0,95 м3
  • Геометрический объем 11,6955 м3
Цена: 20734 руб.
Подробнее
ЛМП 57-11-18-5-2
Лестничные марши ребристые с полуплощадками ЛМП серия 1.050.1-2
  • Длина 5650 мм.
  • Ширина 1150 мм.
  • Высота 1800 мм.
  • Вес 2400 кг.
  • Объем бетона 0,95 м3
  • Геометрический объем 11,6955 м3
Цена: 20734 руб.
Подробнее
ЛМП 57-11-18-5-3
Лестничные марши ребристые с полуплощадками ЛМП серия 1.050.1-2
  • Длина 4775 мм.
  • Ширина 1150 мм.
  • Высота 1800 мм.
  • Вес 2100 кг.
  • Объем бетона 0,83 м3
  • Геометрический объем 9,8842 м3
Цена: 18115 руб.
Подробнее
ЛМП 57-11-18-5-3 с
Лестничные марши ребристые с полуплощадками ЛМП серия 1.050.1-2
  • Длина 4775 мм.
  • Ширина 1150 мм.
  • Высота 1800 мм.
  • Вес 2030 кг.
  • Объем бетона 0,83 м3
  • Геометрический объем 9,8842 м3
Цена: 18115 руб.
Подробнее
ЛМП 57-11-18-5-3
Лестничные марши ребристые с полуплощадками ЛМП серия 1.050.1-2
  • Длина 4775 мм.
  • Ширина 1150 мм.
  • Высота 1800 мм.
  • Вес 2030 кг.
  • Объем бетона 0,83 м3
  • Геометрический объем 9,8842 м3
Цена: 18115 руб.
Подробнее

Как правильно выбрать - Лестничные марши ребристые с полуплощадками ЛМП серия 1.050.1-2

Лестничные марши ребристые с полуплощадками ЛМП серия 1.050.1-2 представляют собой готовые железобетонные элементы, предназначенные для монтажа внутренних лестниц в жилых, общественных и промышленных зданиях. Их ключевая особенность — интегрированные полуплощадки, что ускоряет монтаж и повышает пространственную жесткость лестничного узла. Долговечность и безопасность всей лестничной конструкции в значительной степени определяются грамотным подбором маршей ЛМП в соответствии с проектными расчетами и условиями эксплуатации объекта.

Критерии выбора

  • Марка бетона и эксплуатационные характеристики: Изделия серии 1.050.1-2 изготавливаются из тяжелого бетона марки не ниже М300. Обязательно проверяйте паспорт на соответствие нормируемой морозостойкости (F200 для неотапливаемых зданий) и водонепроницаемости (W4).
  • Класс арматуры: Каркас лестничного марша ЛМП должен быть выполнен из арматурной стали класса А-III (А400). Это обеспечивает восприятие расчетных нагрузок на изгиб и вибрацию.
  • Геометрические параметры и конфигурация: Внимательно сверьтесь с проектом: ширина марша (например, 1.2м или 1.05м), количество и высота ступеней, а также габариты полуплощадок. Убедитесь в наличии и корректном расположении монтажных петель и закладных деталей для крепления ограждений.
  • Расчетная нагрузка: Основной критерий — нормативная временная нагрузка, обычно 3.5 кПа (360 кгс/м²) для жилых зданий. Подтвердите, что выбранный типоразмер лестничного марша ЛМП рассчитан на проектную величину.
  • Соответствие нормативной документации: Изделие должно строго соответствовать требованиям серии 1.050.1-2 и ГОСТ 9818-2015 на железобетонные марши и площадки.

Рекомендации по подбору и монтажу

При составлении спецификации на лестничные марши ребристые с полуплощадками ЛМП серия 1.050.1-2 обязательно укажите не только типоразмер, но и требуемый класс бетона по прочности на сжатие (например, В25) и марку по морозостойкости. Затребуйте у производителя паспорт качества, где эти параметры подтверждены лабораторными испытаниями. При проектировании учтите, что опирание полуплощадок лестничных маршей ЛМП должно производиться на несущие стены или ригели, а зазор между маршами в лестничной клетке необходимо рассчитывать с учетом монтажных допусков.

Перед монтажом подготовьте опорные поверхности, выверив их горизонтальность. Строповку производите за все предусмотренные петли, чтобы избежать возникновения трещин. После установки на проектное место и выверки положения обязательно замонолитьте опорные узлы и стыки между маршами бетоном на мелком заполнителе, как того требует проект производства работ. Это обеспечит проектную жесткость и предотвратит смещение элементов в процессе эксплуатации.

Ответы экспертов на ваши вопросы

Лестничные марши ЛМП серии 1.050.1-2 обладают рядом преимуществ: заводское изготовление обеспечивает высокое качество бетона и точность геометрии, сокращаются сроки монтажа на объекте, отсутствуют "мокрые" процессы на строительной площадке. Конструкция отличается повышенной прочностью и долговечностью благодаря армированию и контролю качества на производстве.

Производство и применение регламентируется серией 1.050.1-2, ГОСТ 9818-2015 "Марши и площадки лестниц железобетонные", а также СП 70.13330.2012 "Несущие и ограждающие конструкции". Конструкция должна соответствовать требованиям пожарной безопасности по СНиП 21-01-97*.

Лестничные марши ЛМП серии 1.050.1-2 рассчитаны на стандартную временную нагрузку 3,5 кПа (350 кг/м²) в соответствии с требованиями для лестниц жилых и общественных зданий. Конструкция обеспечивает необходимый запас прочности с учетом коэффициента надежности по нагрузке.

При монтаже необходимо обеспечить опирание марша на несущие конструкции здания согласно рабочим чертежам. Обязательна проверка горизонтальности площадок и вертикальности монтажа. Стыки между элементами заполняются цементно-песчаным раствором. Важно контролировать правильность установки закладных деталей для последующего монтажа ограждений.

Транспортировка осуществляется в вертикальном положении с надежным креплением. При складировании необходимо использовать деревянные прокладки толщиной не менее 30 мм, укладываемые строго друг над другом. Запрещается сбрасывание изделий с транспортных средств. Хранение должно осуществляться на ровной подготовленной площадке с защитой от атмосферных воздействий.

Ранее смотрели
Плиты перекрытия многопустотные Серия Б1.020.1-7 ПК 26-15-8 Ат400СТов (Б1.020.1-7)
ПК 26-15-8 Ат400СТов (Б1.020.1-7)
Плиты перекрытия многопустотные Серия Б1.020.1-7
Плиты перекрытия многопустотные Серия Б1.020.1-7 ПК 41-15-4,5 Ат400СТов (Б1.020.1-7)
ПК 41-15-4,5 Ат400СТов (Б1.020.1-7)
Плиты перекрытия многопустотные Серия Б1.020.1-7
Плиты перекрытия многопустотные Серия Б1.020.1-7 ПК 26-12-8 Ат400СТов (Б1.020.1-7)
ПК 26-12-8 Ат400СТов (Б1.020.1-7)
Плиты перекрытия многопустотные Серия Б1.020.1-7
Плиты перекрытия многопустотные Серия Б1.020.1-7 ПК 40-15-4,5 Ат400СТов (Б1.020.1-7)
ПК 40-15-4,5 Ат400СТов (Б1.020.1-7)
Плиты перекрытия многопустотные Серия Б1.020.1-7
Плиты перекрытия многопустотные Серия Б1.020.1-7 ПК 41-12-4,5 Ат400СТов (Б1.020.1-7)
ПК 41-12-4,5 Ат400СТов (Б1.020.1-7)
Плиты перекрытия многопустотные Серия Б1.020.1-7
Плиты перекрытия многопустотные Серия Б1.020.1-7 ПК 40-12-4,5 Ат400СТов (Б1.020.1-7)
ПК 40-12-4,5 Ат400СТов (Б1.020.1-7)
Плиты перекрытия многопустотные Серия Б1.020.1-7
Плиты перекрытия многопустотные Серия Б1.020.1-7 ПК 40-15-8 Ат800Тов (Б1.020.1-7)
ПК 40-15-8 Ат800Тов (Б1.020.1-7)
Плиты перекрытия многопустотные Серия Б1.020.1-7
Плиты перекрытия многопустотные Серия Б1.020.1-7 ПК 41-12-8 Ат800Тов (Б1.020.1-7)
ПК 41-12-8 Ат800Тов (Б1.020.1-7)
Плиты перекрытия многопустотные Серия Б1.020.1-7

Уведомление о файлах cookie

Мы используем файлы cookie для улучшения вашего опыта просмотра и анализа трафика. Нажимая "Принять все", вы соглашаетесь с нашей политикой конфиденциальности и политикой обработки файлов cookie.

Дзен Телеграм Вконтакте vk