mobile_sound +7 (930) 655-55-90

Плиты пролетные Серия 1.420.1-24с

Поделиться:
Фильтр по характеристикам
Длина (мм.)
keyboard_arrow_down
мм.
мм.
Ширина (мм.)
keyboard_arrow_down
мм.
мм.
Высота (мм.)
keyboard_arrow_down
мм.
мм.
Вес (кг.)
keyboard_arrow_down
кг.
кг.
Поделиться:

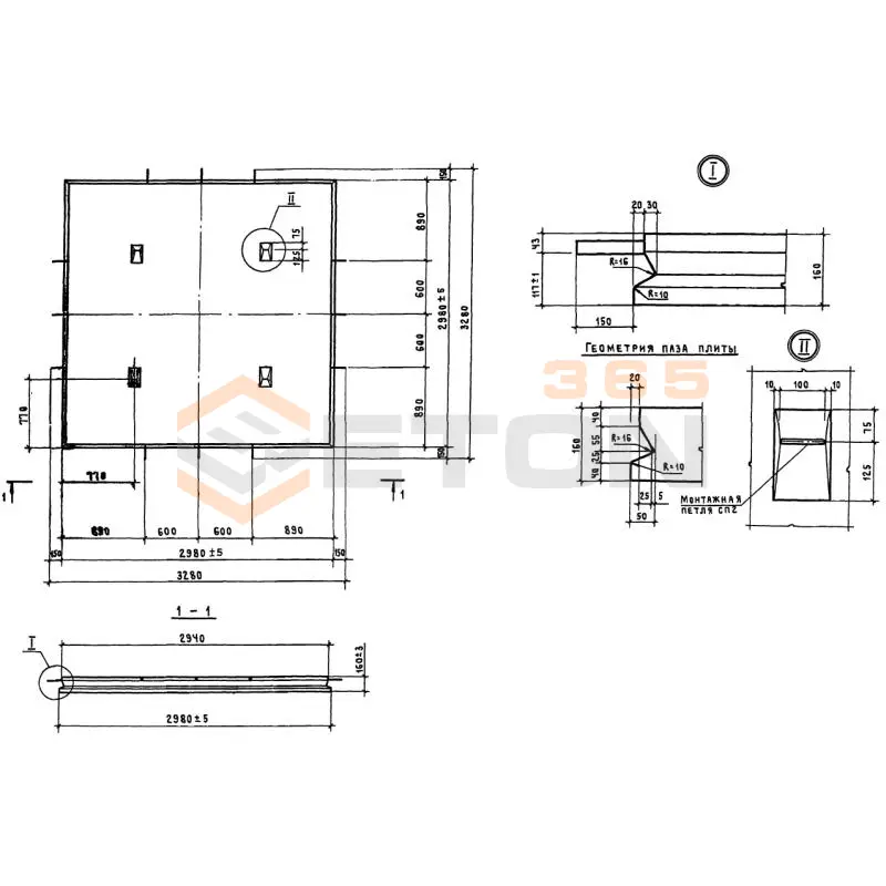
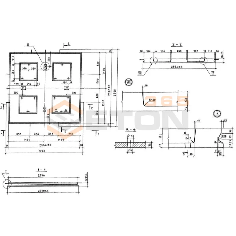
Завод "Бетон365" производит плиты пролетные серии 1.420.1-24с – ключевые элементы для создания надежных перекрытий в промышленных и гражданских объектах. Эти железобетонные конструкции обеспечивают равномерное распределение нагрузок, повышая устойчивость зданий и сокращая сроки монтажа. Изготовленные в строгом соответствии с ГОСТ, плиты отличаются повышенной несущей способностью и долговечностью, что делает их оптимальным решением для строительства торговых центров, административных зданий и производственных помещений.

Мы реализуем плиты пролетные серии 1.420.1-24с напрямую от производителя в Москве и МО по конкурентным ценам. Предлагаем полный комплекс услуг – от помощи в выборе подходящих модификаций до организации доставки на объект. Гарантируем соответствие продукции заявленным характеристикам и оперативное выполнение заказов любой сложности. Свяжитесь с нами для расчета стоимости и получения подробной консультации по применению этих железобетонных изделий в ваших проектах.

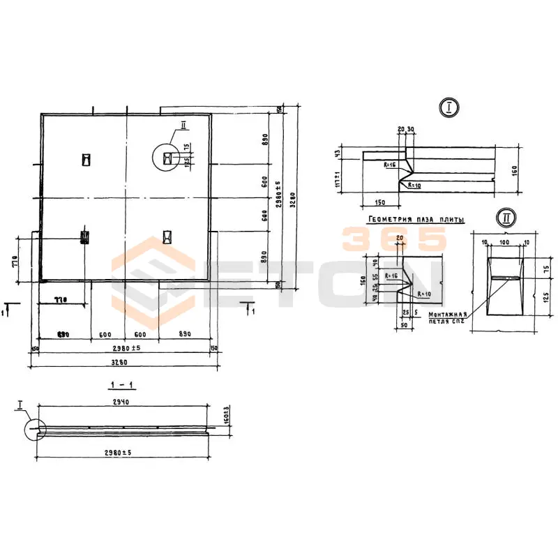
ПП 1-2 (1.420.1-24с)
Плиты пролетные Серия 1.420.1-24с
  • Длина 3280 мм.
  • Ширина 3280 мм.
  • Высота 160 мм.
  • Вес 3500 кг.
  • Объем бетона 1,4 м3
  • Геометрический объем 1,7213 м3
Цена: 23086 руб.
Подробнее
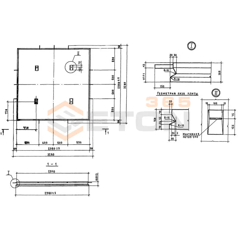
ПП 1-1 (1.420.1-24с)
Плиты пролетные Серия 1.420.1-24с
  • Длина 3280 мм.
  • Ширина 3280 мм.
  • Высота 160 мм.
  • Вес 3500 кг.
  • Объем бетона 1,4 м3
  • Геометрический объем 1,7213 м3
Цена: 23086 руб.
Подробнее
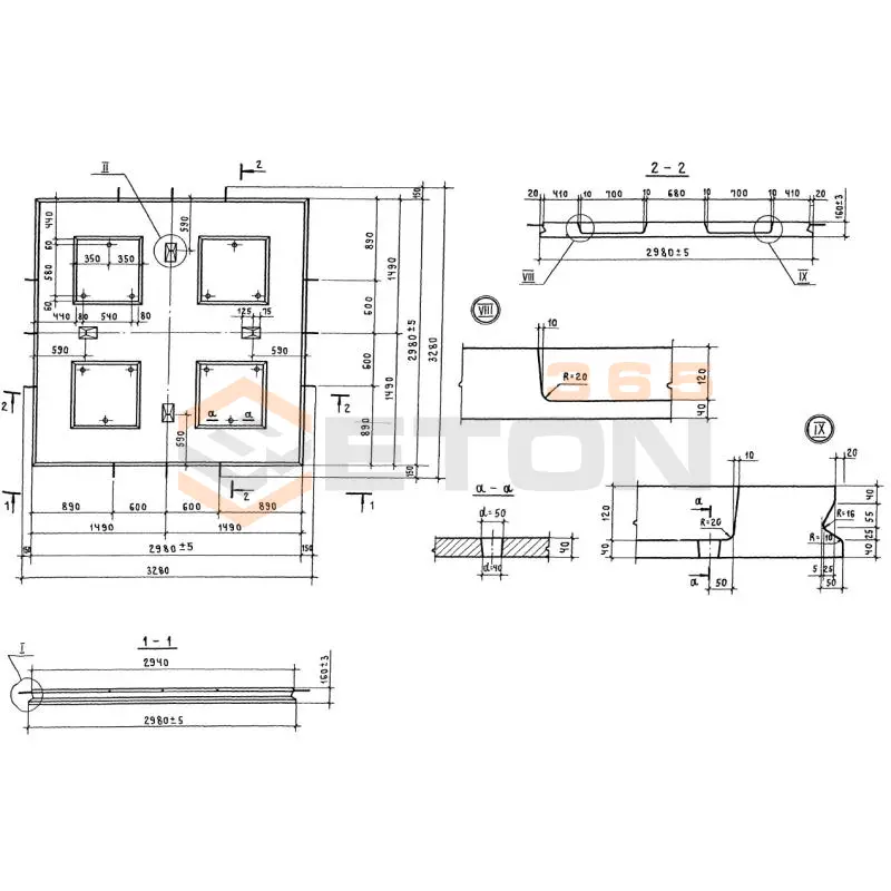
ПП 1-2-1 (1.420.1-24с)
Плиты пролетные Серия 1.420.1-24с
  • Длина 3280 мм.
  • Ширина 3280 мм.
  • Высота 160 мм.
  • Вес 2980 кг.
  • Объем бетона 1,19 м3
  • Геометрический объем 1,7213 м3
Цена: 19623 руб.
Подробнее
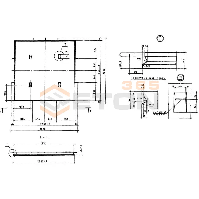
ПП 1-3 (1.420.1-24с)
Плиты пролетные Серия 1.420.1-24с
  • Длина 3280 мм.
  • Ширина 3280 мм.
  • Высота 160 мм.
  • Вес 3500 кг.
  • Объем бетона 1,4 м3
  • Геометрический объем 1,7213 м3
Цена: 23086 руб.
Подробнее
ПП 1-4 (1.420.1-24с)
Плиты пролетные Серия 1.420.1-24с
  • Длина 3280 мм.
  • Ширина 3280 мм.
  • Высота 160 мм.
  • Вес 3500 кг.
  • Объем бетона 1,4 м3
  • Геометрический объем 1,7213 м3
Цена: 23086 руб.
Подробнее
ПП 1-4-1 (1.420.1-24с)
Плиты пролетные Серия 1.420.1-24с
  • Длина 3280 мм.
  • Ширина 3280 мм.
  • Высота 160 мм.
  • Вес 2980 кг.
  • Объем бетона 1,19 м3
  • Геометрический объем 1,7213 м3
Цена: 19623 руб.
Подробнее
ПП 1-5 (1.420.1-24с)
Плиты пролетные Серия 1.420.1-24с
  • Длина 3280 мм.
  • Ширина 3280 мм.
  • Высота 160 мм.
  • Вес 3500 кг.
  • Объем бетона 1,4 м3
  • Геометрический объем 1,7213 м3
Цена: 23086 руб.
Подробнее
ПП 1-6 (1.420.1-24с)
Плиты пролетные Серия 1.420.1-24с
  • Длина 3280 мм.
  • Ширина 3280 мм.
  • Высота 160 мм.
  • Вес 3500 кг.
  • Объем бетона 1,4 м3
  • Геометрический объем 1,7213 м3
Цена: 23086 руб.
Подробнее

Как правильно выбрать - Плиты пролетные Серия 1.420.1-24с

Плиты пролетные Серия 1.420.1-24с предназначены для устройства пролетных строений автодорожных и городских мостов, путепроводов и эстакад. Эти железобетонные изделия выполняют ключевую функцию несущих элементов, воспринимающих постоянные и временные нагрузки от транспорта. Долговечность и безопасность мостовой конструкции в значительной степени определяются корректным подбором плит пролетных Серии 1.420.1-24с в соответствии с проектными решениями и реальными условиями эксплуатации.

Критерии выбора

  • Марка и класс бетона: Изделия изготавливаются из тяжелого бетона марки не ниже М400, класса по прочности на сжатие В30. Обязательно уточняйте проектные требования к морозостойкости (как правило, F200) и водонепроницаемости (W6-W8).
  • Армирование: Каркасы плит выполняются из напрягаемой и ненапрягаемой арматуры классов Ат-IV, А-III. Проверяйте паспорт на соответствие классам и диаметрам стержней.
  • Типоразмер и конфигурация: Серия включает плиты различной длины, ширины и высоты. Критически важно сверить габаритные и монтажные размеры (места расположения петель, отверстий) с рабочими чертежами.
  • Наличие закладных и монтажных элементов: Убедитесь в наличии и корректном расположении монтажных петель или специальных захватных устройств, а также закладных деталей для соединения с балками и другими элементами пролетного строения.
  • Расчетная нагрузка: Основной критерий – соответствие несущей способности плит пролетных Серии 1.420.1-24с нагрузкам, принятым в проекте (A14, НК-80 и др.).
  • Нормативная документация: Изделие должно строго соответствовать требованиям серии 1.420.1-24с и ГОСТ 26633.

Рекомендации по подбору и монтажу

При закупке плит пролетных Серии 1.420.1-24с требуйте полный комплект технической документации, включая паспорт качества с результатами испытаний контрольных образцов бетона и арматуры. Особое внимание уделите визуальному контролю: на поверхностях не должно быть трещин, раковин, обнажения арматуры. Проверьте геометрию изделий, так как даже незначительные отклонения усложнят монтаж и повлияют на ровность дорожного покрытия.

Монтаж плит пролетных данного типа требует тщательной подготовки опорных частей на главных балках. Основание должно быть выверено по проектным отметкам и горизонту. Строповку производите только за предусмотренные проектом монтажные петли, используя траверсы для исключения возникновения нерасчетных изгибающих моментов. После укладки незамедлительно приступайте к устройству монолитных швов и гидроизоляции для обеспечения совместной работы всех элементов конструкции и защиты арматуры от коррозии.

Ответы экспертов на ваши вопросы

Основные технические характеристики включают:

  • Номинальная длина: от 2980 мм до 6280 мм (в зависимости от типа плиты)
  • Ширина: 1490 мм и 1190 мм
  • Высота (толщина): 220 мм
  • Расчетная нагрузка: 6,0 кПа (600 кгс/м²)
  • Класс бетона: В25 (М350)
  • Марка бетона по морозостойкости: F200
  • Марка бетона по водонепроницаемости: W6
  • Рабочая арматура: горячекатаная сталь классов А-III и Ат-IIIC
  • Масса плит: от 1,7 до 3,5 тонн в зависимости от длины

Плиты пролетные серии 1.420.1-24с предназначены для применения в:

  • Промышленных зданиях
  • Общественных зданиях
  • Административных зданиях
  • В качестве междуэтажных перекрытий
  • Для устройства покрытий и чердачных перекрытий Особенностью является возможность применения в зданиях с агрессивной газовой средой при соответствующей защите бетона.

При монтаже и эксплуатации необходимо учитывать:

  • Монтаж осуществляется с помощью кранового оборудования
  • Обязательная опора на несущие конструкции не менее 120 мм
  • Заделка швов между плитами цементно-песчаным раствором
  • Запрещается точечная нагрузка, превышающая расчетную
  • При эксплуатации в агрессивных средах требуется дополнительная гидроизоляция
  • Температурный режим эксплуатации: от -40°C до +50°C

Производство и применение регламентируется:

  • Серия 1.420.1-24с "Плиты пролетные железобетонные предварительно напряженные"
  • ГОСТ 9561-91 "Плиты перекрытий железобетонные многопустотные"
  • СП 63.13330.2018 "Бетонные и железобетонные конструкции"
  • Технические условия производителя
  • Проектная документация на конкретный объект строительства

Основные преимущества серии 1.420.1-24с:

  • Высокая несущая способность при относительно небольшой массе
  • Предварительное напряжение арматуры повышает трещиностойкость
  • Унификация размеров позволяет оптимизировать проектные решения
  • Длительный срок службы (не менее 50 лет)
  • Хорошие показатели звуко- и теплоизоляции
  • Возможность применения в сейсмических районах до 7 баллов
  • Отработанная технология производства и монтажа
Ранее смотрели
Сваи анкерные Серия 3.504.1-23 АС 70-40 с
АС 70-40 с
Сваи анкерные Серия 3.504.1-23
Рабочие камеры Альбом РК 2201-82 ДК 10
ДК 10
Рабочие камеры Альбом РК 2201-82
2ПР 1 АтVск п (ГОСТ 26992-86)
2ПР 1 АтVск п (ГОСТ 26992-86)
Прогоны железобетонные ГОСТ 26992-86
Камни для кладки стен ТУ 5741-004-18576628-99 СКЦ 4 лк
СКЦ 4 лк
Камни для кладки стен ТУ 5741-004-18576628-99
Козырьки входов Серия 1.238-1 КВ 24-19-13-1
КВ 24-19-13-1
Козырьки входов Серия 1.238-1
Кормушки Серия 3.818.9-2 КТ 118-70-57 т
КТ 118-70-57 т
Кормушки Серия 3.818.9-2
Фундаментные блоки пустотные Серия ИИ 03-02 СПД 4
СПД 4
Фундаментные блоки пустотные Серия ИИ 03-02
Звенья железобетонные круглых водопропускных труб под железные и автомобильные дороги (Шифр 57-368) Блок 90 (коническое звено R-1,25)
Блок 90 (коническое звено R-1,25)
Звенья железобетонные круглых водопропускных труб под железные и автомобильные дороги (Шифр 57-368)

Уведомление о файлах cookie

Мы используем файлы cookie для улучшения вашего опыта просмотра и анализа трафика. Нажимая "Принять все", вы соглашаетесь с нашей политикой конфиденциальности и политикой обработки файлов cookie.

Дзен Телеграм Вконтакте vk