mobile_sound +7 (930) 655-55-90

Плиты надсилосные Серия 3.702.1-4

Поделиться:
Фильтр по характеристикам
Длина (мм.)
keyboard_arrow_down
мм.
мм.
Ширина (мм.)
keyboard_arrow_down
мм.
мм.
Высота (мм.)
keyboard_arrow_down
мм.
мм.
Вес (кг.)
keyboard_arrow_down
кг.
кг.
Объем бетона (м3)
keyboard_arrow_down
м3
м3
Поделиться:

Завод "Бетон365" производит плиты надсилосные серии 3.702.1-4 — специализированные железобетонные конструкции для оборудования силосных хранилищ и промышленных емкостей. Эти изделия отличаются повышенной прочностью и точным соответствием требованиям ГОСТ, что обеспечивает надежную эксплуатацию в условиях значительных статических и динамических нагрузок. Применение готовых плит позволяет оптимизировать монтаж технологических сооружений, создавая жесткое перекрытие и равномерно распределяя давление от насыпных материалов.

Мы реализуем плиты надсилосные серии 3.702.1-4 с доставкой по Москве и Московской области. Прямые поставки от производителя гарантируют конкурентную цену и контроль качества на всех этапах производства. Для заказа и консультации по техническим характеристикам обратитесь к нашим специалистам — поможем подобрать оптимальное решение для вашего объекта.

2П 3-1-1
Плиты надсилосные Серия 3.702.1-4
  • Длина 5980 мм.
  • Ширина 2980 мм.
  • Высота 250 мм.
  • Вес 5000 кг.
  • Объем бетона 2 м3
  • Геометрический объем 4,4551 м3
Цена: 67900 руб.
Подробнее
2П 3-2-1
Плиты надсилосные Серия 3.702.1-4
  • Длина 6490 мм.
  • Ширина 2980 мм.
  • Высота 250 мм.
  • Вес 5800 кг.
  • Объем бетона 2,32 м3
  • Геометрический объем 4,835 м3
Цена: 78764 руб.
Подробнее
2П 3-3-1
Плиты надсилосные Серия 3.702.1-4
  • Длина 6490 мм.
  • Ширина 3200 мм.
  • Высота 250 мм.
  • Вес 6800 кг.
  • Объем бетона 2,72 м3
  • Геометрический объем 5,192 м3
Цена: 92344 руб.
Подробнее
2П 3-4-1
Плиты надсилосные Серия 3.702.1-4
  • Длина 6490 мм.
  • Ширина 3200 мм.
  • Высота 250 мм.
  • Вес 6800 кг.
  • Объем бетона 2,72 м3
  • Геометрический объем 5,192 м3
Цена: 92344 руб.
Подробнее
2П 3-5-1
Плиты надсилосные Серия 3.702.1-4
  • Длина 7590 мм.
  • Ширина 2980 мм.
  • Высота 250 мм.
  • Вес 7000 кг.
  • Объем бетона 2,8 м3
  • Геометрический объем 5,6546 м3
Цена: 95060 руб.
Подробнее
2П 3-6-1
Плиты надсилосные Серия 3.702.1-4
  • Длина 7590 мм.
  • Ширина 3200 мм.
  • Высота 250 мм.
  • Вес 7800 кг.
  • Объем бетона 3,12 м3
  • Геометрический объем 6,072 м3
Цена: 105924 руб.
Подробнее
2П 3-7-1
Плиты надсилосные Серия 3.702.1-4
  • Длина 7590 мм.
  • Ширина 3200 мм.
  • Высота 250 мм.
  • Вес 7800 кг.
  • Объем бетона 3,12 м3
  • Геометрический объем 6,072 м3
Цена: 105924 руб.
Подробнее
2П 3-8-1
Плиты надсилосные Серия 3.702.1-4
  • Длина 5850 мм.
  • Ширина 2980 мм.
  • Высота 150 мм.
  • Вес 1800 кг.
  • Объем бетона 0,73 м3
  • Геометрический объем 2,6149 м3
Цена: 24784 руб.
Подробнее
2П 3-9-1
Плиты надсилосные Серия 3.702.1-4
  • Длина 5980 мм.
  • Ширина 2980 мм.
  • Высота 190 мм.
  • Вес 2800 кг.
  • Объем бетона 1,1 м3
  • Геометрический объем 3,3859 м3
Цена: 37345 руб.
Подробнее
П 3-2-1
Плиты надсилосные Серия 3.702.1-4
  • Длина 3490 мм.
  • Ширина 2980 мм.
  • Высота 250 мм.
  • Вес 3300 кг.
  • Объем бетона 1,3 м3
  • Геометрический объем 2,6 м3
Цена: 44135 руб.
Подробнее
П 3-1-1
Плиты надсилосные Серия 3.702.1-4
  • Длина 2980 мм.
  • Ширина 2980 мм.
  • Высота 250 мм.
  • Вес 2800 кг.
  • Объем бетона 1,1 м3
  • Геометрический объем 2,2201 м3
Цена: 37345 руб.
Подробнее
П 3-4-1
Плиты надсилосные Серия 3.702.1-4
  • Длина 3490 мм.
  • Ширина 2980 мм.
  • Высота 250 мм.
  • Вес 3300 кг.
  • Объем бетона 1,3 м3
  • Геометрический объем 2,6 м3
Цена: 44135 руб.
Подробнее
П 3-5-1
Плиты надсилосные Серия 3.702.1-4
  • Длина 2980 мм.
  • Ширина 2980 мм.
  • Высота 190 мм.
  • Вес 1600 кг.
  • Объем бетона 0,65 м3
  • Геометрический объем 1,6873 м3
Цена: 22068 руб.
Подробнее
П 3-3-1
Плиты надсилосные Серия 3.702.1-4
  • Длина 3490 мм.
  • Ширина 3200 мм.
  • Высота 250 мм.
  • Вес 4000 кг.
  • Объем бетона 1,6 м3
  • Геометрический объем 2,792 м3
Цена: 54320 руб.
Подробнее
П 3-6-1
Плиты надсилосные Серия 3.702.1-4
  • Длина 3490 мм.
  • Ширина 2980 мм.
  • Высота 190 мм.
  • Вес 2200 кг.
  • Объем бетона 0,89 м3
  • Геометрический объем 1,976 м3
Цена: 30216 руб.
Подробнее
П 3-7-1
Плиты надсилосные Серия 3.702.1-4
  • Длина 3490 мм.
  • Ширина 2980 мм.
  • Высота 190 мм.
  • Вес 2100 кг.
  • Объем бетона 0,85 м3
  • Геометрический объем 1,976 м3
Цена: 28858 руб.
Подробнее
П 6-2-1
Плиты надсилосные Серия 3.702.1-4
  • Длина 5990 мм.
  • Ширина 2980 мм.
  • Высота 350 мм.
  • Вес 5200 кг.
  • Объем бетона 2,08 м3
  • Геометрический объем 6,2476 м3
Цена: 70616 руб.
Подробнее
П 6-4-1-3
Плиты надсилосные Серия 3.702.1-4
  • Длина 5200 мм.
  • Ширина 1740 мм.
  • Высота 350 мм.
  • Вес 2600 кг.
  • Объем бетона 1,04 м3
  • Геометрический объем 3,1668 м3
Цена: 35308 руб.
Подробнее
П 3-8-1
Плиты надсилосные Серия 3.702.1-4
  • Длина 2850 мм.
  • Ширина 2980 мм.
  • Высота 150 мм.
  • Вес 1100 кг.
  • Объем бетона 0,43 м3
  • Геометрический объем 1,2739 м3
Цена: 14599 руб.
Подробнее
П 6-1-1
Плиты надсилосные Серия 3.702.1-4
  • Длина 5990 мм.
  • Ширина 2980 мм.
  • Высота 350 мм.
  • Вес 5300 кг.
  • Объем бетона 2,12 м3
  • Геометрический объем 6,2476 м3
Цена: 71974 руб.
Подробнее
П 6-4-1-1
Плиты надсилосные Серия 3.702.1-4
  • Длина 5200 мм.
  • Ширина 1740 мм.
  • Высота 350 мм.
  • Вес 2570 кг.
  • Объем бетона 1,028 м3
  • Геометрический объем 3,1668 м3
Цена: 34901 руб.
Подробнее
П 6-4-1-2
Плиты надсилосные Серия 3.702.1-4
  • Длина 5200 мм.
  • Ширина 1740 мм.
  • Высота 350 мм.
  • Вес 2600 кг.
  • Объем бетона 1,04 м3
  • Геометрический объем 3,1668 м3
Цена: 35308 руб.
Подробнее
П 6,3-1
Плиты надсилосные Серия 3.702.1-4
  • Длина 6240 мм.
  • Ширина 2980 мм.
  • Высота 350 мм.
  • Вес 5400 кг.
  • Объем бетона 2,152 м3
  • Геометрический объем 6,5083 м3
Цена: 73060 руб.
Подробнее

Как правильно выбрать - Плиты надсилосные Серия 3.702.1-4

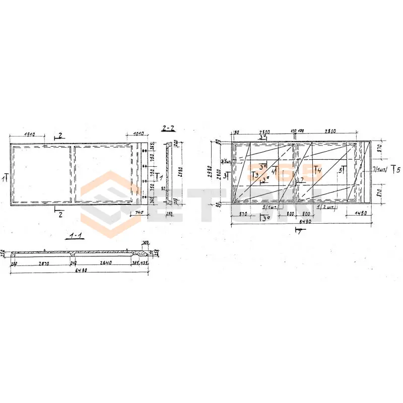
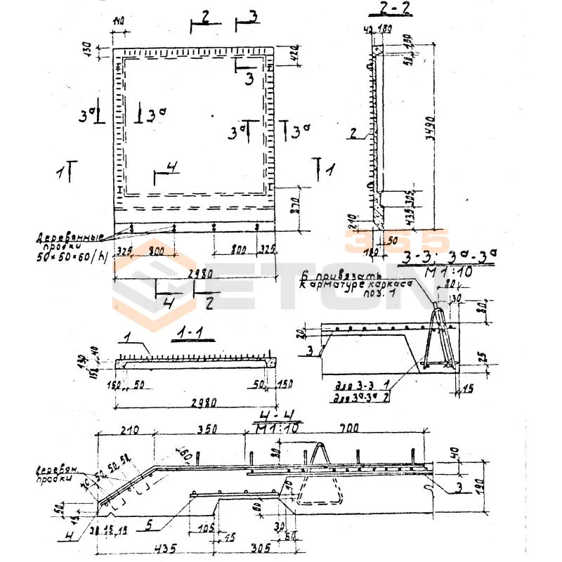
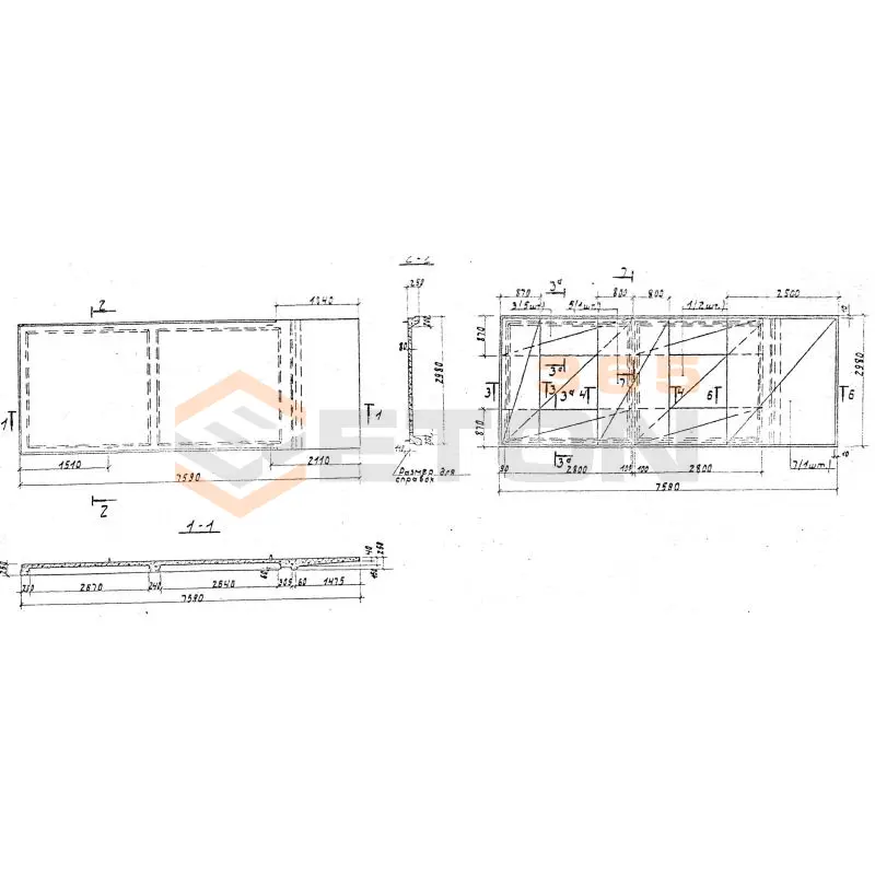
Плиты надсилосные Серия 3.702.1-4 предназначены для перекрытия силосов и бункеров на элеваторах, комбикормовых и цементных заводах. Они формируют технологический пол, воспринимая значительные эксплуатационные нагрузки от транспорта и оборудования. Долговечность и безопасность всей силосной банки в целом определяются точным соответствием выбранных плит надсилосных Серии 3.702.1-4 проектным расчетам и агрессивной среде эксплуатации.

Критерии выбора

  • Марка бетона и защитный слой: Изделия изготавливаются из тяжелого бетона марки не ниже М300. Особое внимание – водонепроницаемости (W6-W8) и морозостойкости (F150-F200), так как плиты работают в условиях возможного конденсата и перепадов температур.
  • Армирование: Применяется предварительно напряженная арматура классов Ат-IV, Ат-V. Необходимо проверять паспорт на соответствие проектному классу и диаметру арматурных стержней.
  • Геометрия и конфигурация: Серия включает плиты различной длины и ширины, часто с криволинейной формой для стыковки по радиусу силоса. Ключевой параметр – наличие и расположение монтажных петель, отверстий для технологического оборудования и закладных деталей.
  • Расчетные нагрузки: Уточняйте равномерно распределенную и сосредоточенную нагрузку, на которую рассчитана конкретная плита надсилосная. Это критично для учета веса погрузчиков, транспорта и складируемых материалов.
  • Соответствие нормам: Обязательно соответствие ГОСТ 25912-2015 (или актуальному аналогу) и требованиям рабочей документации проекта (серия 3.702.1-4).

Рекомендации по подбору и монтажу

При закупке плит надсилосных Серии 3.702.1-4 требуйте полный комплект паспортов качества с протоколами испытаний бетона и арматуры. В спецификации четко указывайте не только типоразмер, но и марку бетона по морозостойкости и водонепроницаемости, а также схему армирования. Убедитесь, что все плиты для одного силоса поставляются одной партией для обеспечения идентичных свойств.

Монтаж ведется на подготовленное опорное кольцо силоса. Перед укладкой проверьте чистоту и ровность опорной поверхности. Строповку производите только за предусмотренные проектом монтажные петли. После укладки обязательна проверка плотности прилегания плит друг к другу и к опорному контуру. Стыки между плитами надсилосными и примыкания к стенкам должны быть герметично заделаны материалами, указанными в проекте, для предотвращения просыпания материала и проникновения влаги.

Ответы экспертов на ваши вопросы

Плиты надсилосные серии 3.702.1-4 предназначены для устройства перекрытий над силосами зернохранилищ и других объектов агропромышленного комплекса. Они используются в качестве несущих конструкций, воспринимающих нагрузки от технологического оборудования, транспортных средств и складируемых материалов. Данные плиты применяются для силосов диаметром 6 и 9 метров, выполненных из монолитного железобетона или сборных элементов.

Плиты надсилосные серии 3.702.1-4 рассчитаны на восприятие различных видов нагрузок: постоянных (собственный вес), временных (оборудование, транспорт) и особых (сейсмические воздействия). Стандартная расчетная нагрузка составляет 10 кПа (1000 кг/м²), но может быть увеличена при специальном проектировании. Конкретные значения несущей способности зависят от марки бетона и класса арматуры, используемых при изготовлении.

Конструктивно плиты представляют собой сборные железобетонные элементы трапециевидной или прямоугольной формы с предварительно напряженной или ненапрягаемой арматурой. Они оснащены монтажными петлями, технологическими отверстиями для пропуска коммуникаций и закладными деталями для соединения с другими элементами конструкции. Толщина плит обычно составляет 160-220 мм, что обеспечивает необходимую прочность и жесткость.

Для изготовления плит применяется тяжелый бетон классов В25-В35 по прочности на сжатие. Арматура используется классов А-III (А400) и А-IV (А600) для рабочего армирования, и класса А-I (А240) для монтажных петель. Все материалы должны соответствовать требованиям ГОСТ и иметь сертификаты качества. Бетон должен обладать морозостойкостью F150-F200 и водонепроницаемостью W6-W8.

Монтаж плит осуществляется с помощью кранов грузоподъемностью не менее 5 тонн. Перед монтажом проверяется горизонтальность опорных поверхностей. Стыки между плитами замоноличиваются бетоном класса не ниже В15. В процессе эксплуатации необходимо регулярно контролировать состояние плит, отсутствие трещин и деформаций, а также своевременно выполнять антикоррозионную защиту металлических элементов.

Ранее смотрели
Камни для кладки стен ТУ 5741-004-18576628-99 СКЦ 6 д
СКЦ 6 д
Камни для кладки стен ТУ 5741-004-18576628-99
Лежни Серия 3.503-41 Л 1 АII (3.503-41)
Л 1 АII (3.503-41)
Лежни Серия 3.503-41

Уведомление о файлах cookie

Мы используем файлы cookie для улучшения вашего опыта просмотра и анализа трафика. Нажимая "Принять все", вы соглашаетесь с нашей политикой конфиденциальности и политикой обработки файлов cookie.

Дзен Телеграм Вконтакте vk