mobile_sound +7 (930) 655-55-90

Плиты лоджий Серия 86 и 85

Поделиться:
Фильтр по характеристикам
Длина (мм.)
keyboard_arrow_down
мм.
мм.
Ширина (мм.)
keyboard_arrow_down
мм.
мм.
Высота (мм.)
keyboard_arrow_down
мм.
мм.
Вес (кг.)
keyboard_arrow_down
кг.
кг.
Поделиться:

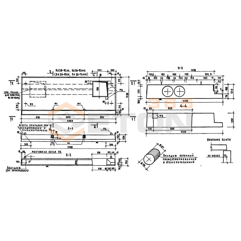
Завод "Бетон365" производит плиты лоджий серий 86 и 85 — ключевые элементы для формирования прочных и долговечных балконных конструкций в жилых и общественных зданиях. Эти железобетонные изделия изготавливаются в строгом соответствии с ГОСТ, обеспечивая оптимальное распределение нагрузок и повышая общую жесткость строительных объектов. Применение готовых плит значительно сокращает сроки монтажа и гарантирует стабильность эксплуатационных характеристик на протяжении десятилетий.

В Москве и Московской области вы можете купить плиты лоджий серии 86 и 85 напрямую от производителя — это выгодная цена без посредников и полный контроль качества на каждом этапе. Мы организуем оперативную доставку на объект и предоставим подробные консультации по выбору и применению продукции. Заказывайте надежные ЖБИ с гарантией — звоните для расчета стоимости и оформления заказа!

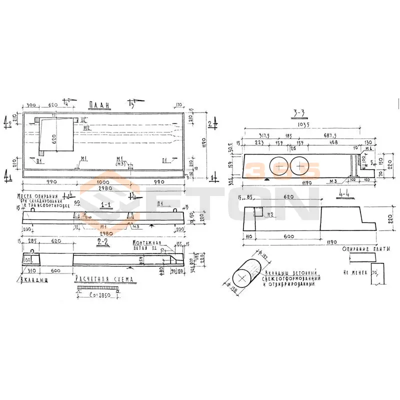
ПБ 30-12 а-1
Плиты лоджий Серия 86 и 85
  • Длина 2980 мм.
  • Ширина 1190 мм.
  • Высота 220 мм.
  • Вес 1235 кг.
  • Объем бетона 0,493 м3
  • Геометрический объем 0,7802 м3
Цена: 16737 руб.
Подробнее
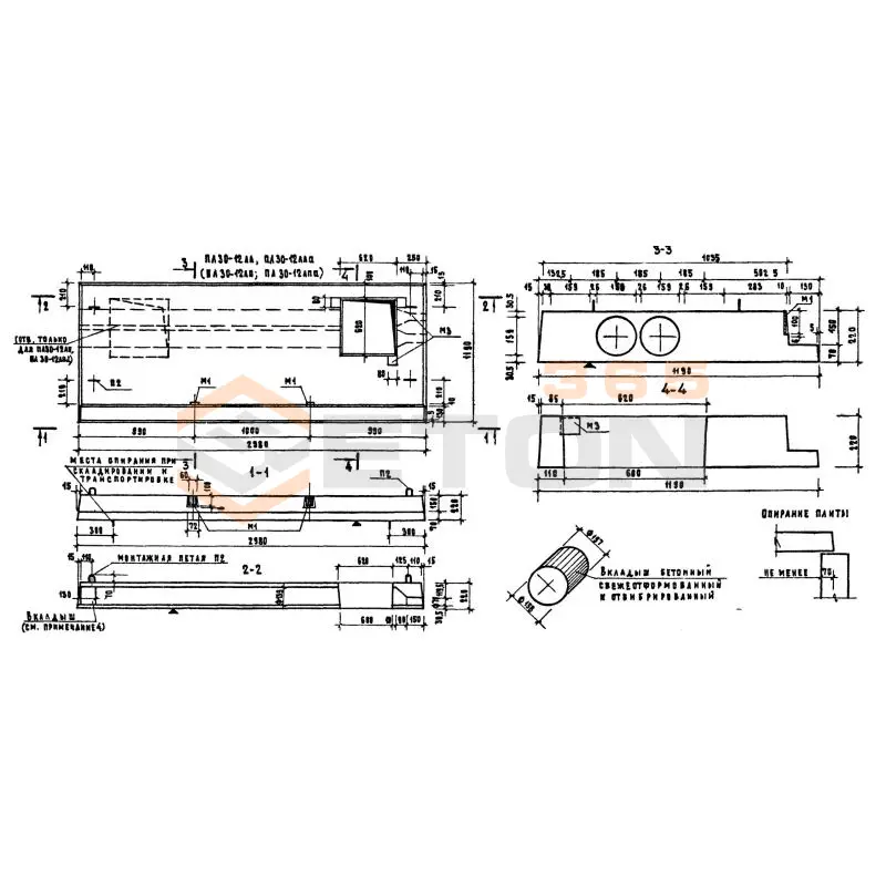
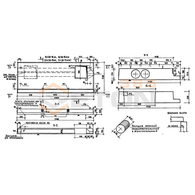
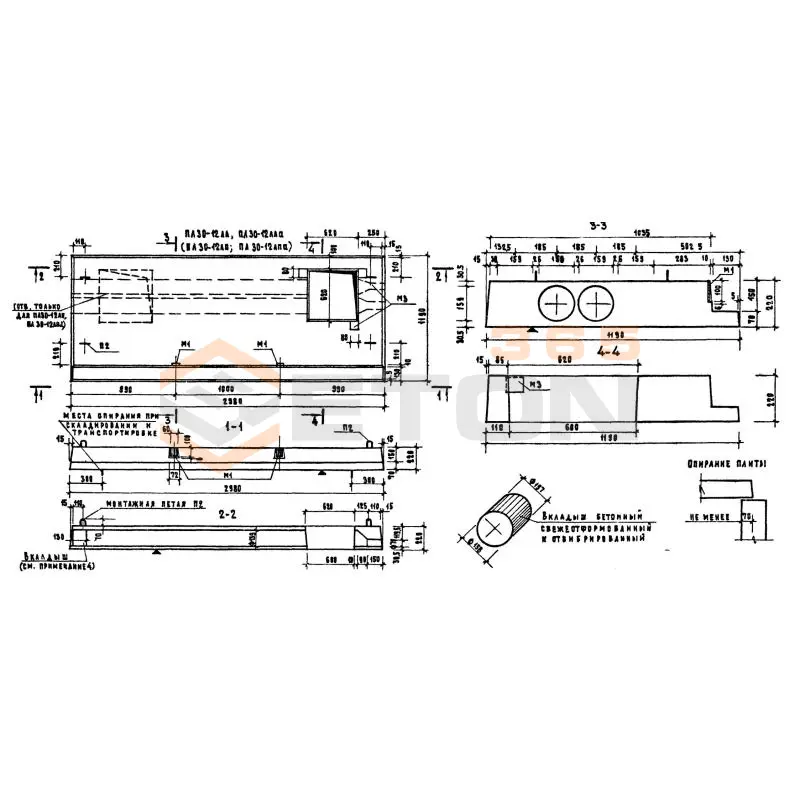
ПБ 30-12 ла
Плиты лоджий Серия 86 и 85
  • Длина 2980 мм.
  • Ширина 1190 мм.
  • Высота 220 мм.
  • Вес 1425 кг.
  • Объем бетона 0,57 м3
  • Геометрический объем 0,7802 м3
Цена: 19352 руб.
Подробнее
ПБ 30-12 па
Плиты лоджий Серия 86 и 85
  • Длина 2980 мм.
  • Ширина 1190 мм.
  • Высота 220 мм.
  • Вес 1425 кг.
  • Объем бетона 0,57 м3
  • Геометрический объем 0,7802 м3
Цена: 19352 руб.
Подробнее
ПЛ 27-12 ла
Плиты лоджий Серия 86 и 85
  • Длина 2640 мм.
  • Ширина 1190 мм.
  • Высота 220 мм.
  • Вес 1250 кг.
  • Объем бетона 0,5 м3
  • Геометрический объем 0,6912 м3
Цена: 16975 руб.
Подробнее
ПЛ 27-12 а
Плиты лоджий Серия 86 и 85
  • Длина 2640 мм.
  • Ширина 1190 мм.
  • Высота 220 мм.
  • Вес 1070 кг.
  • Объем бетона 0,43 м3
  • Геометрический объем 0,6912 м3
Цена: 14599 руб.
Подробнее
ПЛ 27-12 па
Плиты лоджий Серия 86 и 85
  • Длина 2640 мм.
  • Ширина 1190 мм.
  • Высота 220 мм.
  • Вес 1250 кг.
  • Объем бетона 0,5 м3
  • Геометрический объем 0,6912 м3
Цена: 16975 руб.
Подробнее
ПЛ 30-12 лл
Плиты лоджий Серия 86 и 85
  • Длина 2980 мм.
  • Ширина 1190 мм.
  • Высота 220 мм.
  • Вес 1488 кг.
  • Объем бетона 0,595 м3
  • Геометрический объем 0,7802 м3
Цена: 20200 руб.
Подробнее
ПЛ 30-12 а-1
Плиты лоджий Серия 86 и 85
  • Длина 2980 мм.
  • Ширина 1190 мм.
  • Высота 220 мм.
  • Вес 1488 кг.
  • Объем бетона 0,595 м3
  • Геометрический объем 0,7802 м3
Цена: 20200 руб.
Подробнее
ПЛ 30-12 ла
Плиты лоджий Серия 86 и 85
  • Длина 2980 мм.
  • Ширина 1190 мм.
  • Высота 220 мм.
  • Вес 1488 кг.
  • Объем бетона 0,595 м3
  • Геометрический объем 0,7802 м3
Цена: 20200 руб.
Подробнее
ПЛ 30-12 лла
Плиты лоджий Серия 86 и 85
  • Длина 2980 мм.
  • Ширина 1190 мм.
  • Высота 220 мм.
  • Вес 1488 кг.
  • Объем бетона 0,595 м3
  • Геометрический объем 0,7802 м3
Цена: 20200 руб.
Подробнее
ПЛ 30-12 лп
Плиты лоджий Серия 86 и 85
  • Длина 2980 мм.
  • Ширина 1190 мм.
  • Высота 220 мм.
  • Вес 1488 кг.
  • Объем бетона 0,595 м3
  • Геометрический объем 0,7802 м3
Цена: 20200 руб.
Подробнее
ПЛ 30-12 лпа
Плиты лоджий Серия 86 и 85
  • Длина 2980 мм.
  • Ширина 1190 мм.
  • Высота 220 мм.
  • Вес 1488 кг.
  • Объем бетона 0,595 м3
  • Геометрический объем 0,7802 м3
Цена: 20200 руб.
Подробнее
ПЛ 30-12 па
Плиты лоджий Серия 86 и 85
  • Длина 2980 мм.
  • Ширина 1190 мм.
  • Высота 220 мм.
  • Вес 1488 кг.
  • Объем бетона 0,595 м3
  • Геометрический объем 0,7802 м3
Цена: 20200 руб.
Подробнее

Как правильно выбрать - Плиты лоджий Серия 86 и 85

Плиты лоджий Серия 86 и 85 предназначены для устройства балконных конструкций в панельных жилых домах. Эти железобетонные изделия выполняют ключевую функцию несущего основания, воспринимая нагрузки от ограждений, остекления и эксплуатации. Надежность и долговечность всей балконной конструкции в значительной степени определяются грамотным подбором плит лоджий по Серии 85 и 86 в соответствии с проектным решением и реальными условиями.

Критерии выбора

  • Типоразмер и маркировка. Строго сверяйте проектную маркировку (например, ПЛ 86-12, ПЛ 85-15), которая указывает на серию и геометрические параметры. От этого зависит правильное сопряжение с несущей стеной и смежными элементами.
  • Прочностные характеристики. Убедитесь, что изделие изготовлено из бетона класса не ниже В25 (марка М350) с морозостойкостью F200 и водонепроницаемостью W4, что критично для эксплуатации в условиях знакопеременных температур и влаги.
  • Армирование. Проверьте паспорт на соответствие проекту класса арматуры (обычно А400-А500С) и схемы армирования, включая наличие закладных деталей и монтажных петель для безопасной строповки.
  • Геометрия и конфигурация. Внимание к наличию специальных пазов или выступов для установки ограждений и правильного стока воды. Контролируйте отсутствие критичных отклонений по длине, ширине и толщине.
  • Соответствие нормам. Изделие должно производиться строго в соответствии с рабочими чертежами серий 86 и 85 и ГОСТ 25697-83 на плиты балконов и лоджий.

Рекомендации по подбору и монтажу

При закупке плит лоджий Серии 86 и 85 требуйте полный комплект технической документации, включая паспорт качества с указанием фактической прочности бетона и результатов контроля арматурного каркаса. Особое внимание уделите визуальному осмотру на предмет трещин, сколов и оголения арматуры, особенно в зонах опирания.

При монтаже обеспечьте проектную глубину опирания плиты на стену (не менее 120-150 мм) и качественную анкеровку закладных деталей к несущим конструкциям здания. Обязательно организуйте эффективный уклон плиты лоджии наружу (не менее 2-3%) и герметизацию швов для предотвращения застоя воды и протечек, что является частой причиной разрушения балконных плит.

Ответы экспертов на ваши вопросы

Основные отличия:

  • Размеры: плиты серии 86 имеют стандартную длину 3280 мм, а серии 85 - 3180 мм
  • Конструктивные особенности: в серии 86 предусмотрены дополнительные технологические отверстия для коммуникаций
  • Несущая способность: плиты серии 86 рассчитаны на нагрузку 400 кг/м², серии 85 - на 350 кг/м²
  • Армирование: в серии 86 используется более плотное армирование сеткой

Требования к монтажу:

  • Монтаж должен производиться при температуре не ниже -15°C
  • Обязательное выравнивание по горизонтали с допуском не более 5 мм
  • Использование цементно-песчаного раствора марки не ниже М100 для опорных поверхностей
  • Анкеровка к несущим конструкциям здания с шагом не более 2 метров
  • Защита от коррозии всех металлических элементов

Часто встречающиеся дефекты:

  • Трещины в углах и по периметру (возникают из-за неправильного хранения или монтажа)
  • Отслоение защитного слоя бетона (при нарушении технологии производства)
  • Коррозия арматуры (при недостаточной толщине защитного слоя)
  • Несоответствие геометрических размеров (допуск ±10 мм по длине и ширине)
  • Некачественная заделка монтажных петель

Правила отделки:

  • Обязательное выполнение гидроизоляции пола с заходом на стены 150-200 мм
  • Устройство уклона для водоотвода не менее 1-2%
  • Использование материалов с низким водопоглощением (керамогранит, влагостойкая плитка)
  • Теплоизоляция ограждающих конструкций для предотвращения теплопотерь
  • Обязательная установка отливов с уклоном от здания

Основные нормативные документы:

  • ГОСТ 9561-91 "Плиты перекрытий железобетонные многопустотные"
  • СНиП 2.03.01-84 "Бетонные и железобетонные конструкции"
  • Серия 1.041.1-85 и 1.041.1-86 "Плиты лоджий и балконов"
  • СП 70.13330.2012 "Несущие и ограждающие конструкции"
  • Технические условия производителя на конкретные изделия
Ранее смотрели
Фермы Серия 1.463-3 ФБМ  24I-2 АIIIв (1.463-3)
ФБМ 24I-2 АIIIв (1.463-3)
Фермы Серия 1.463-3
ПР 63-15-6 АтVт-1
ПР 63-15-6 АтVт-1
Панели ребристые Серия 1.242.1-3
1П 13-3 (1.440-3м/92)
1П 13-3 (1.440-3м/92)
Плиты ребристые Серия 1.440-3м/92
Ступени плоские для сквозных маршей Серия Б1.055.1-1.01 ЛСС 24 (Б1.055.1-1.01)
ЛСС 24 (Б1.055.1-1.01)
Ступени плоские для сквозных маршей Серия Б1.055.1-1.01
Тротуарные плиты фигурные ГОСТ 17608-91 2Ф 5-7
2Ф 5-7
Тротуарные плиты фигурные ГОСТ 17608-91
Колонны Серия КЭ 01-52 КД 10-1
КД 10-1
Колонны Серия КЭ 01-52
Колонны крановые с проходами Серия 1.424.1-6 10К 132-2
10К 132-2
Колонны крановые с проходами Серия 1.424.1-6
ШЛ 22-42-1-1
ШЛ 22-42-1-1
Панели лифтовых шахт Серия ИИ 04-15

Уведомление о файлах cookie

Мы используем файлы cookie для улучшения вашего опыта просмотра и анализа трафика. Нажимая "Принять все", вы соглашаетесь с нашей политикой конфиденциальности и политикой обработки файлов cookie.

Дзен Телеграм Вконтакте vk