mobile_sound +7 (930) 655-55-90

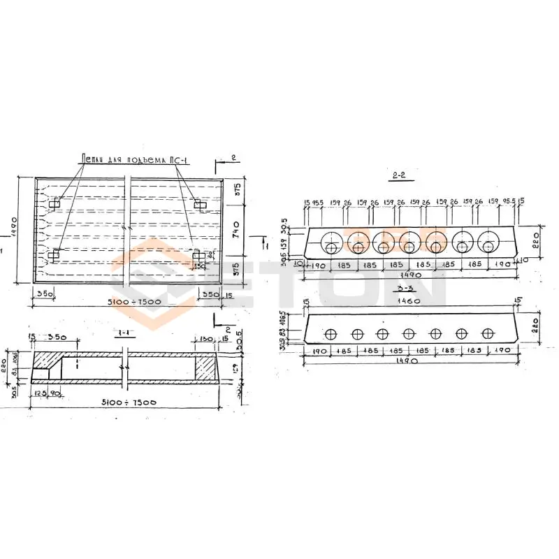
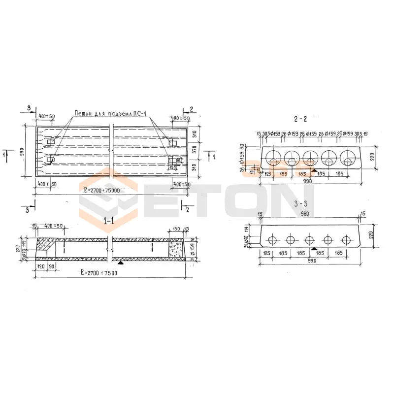
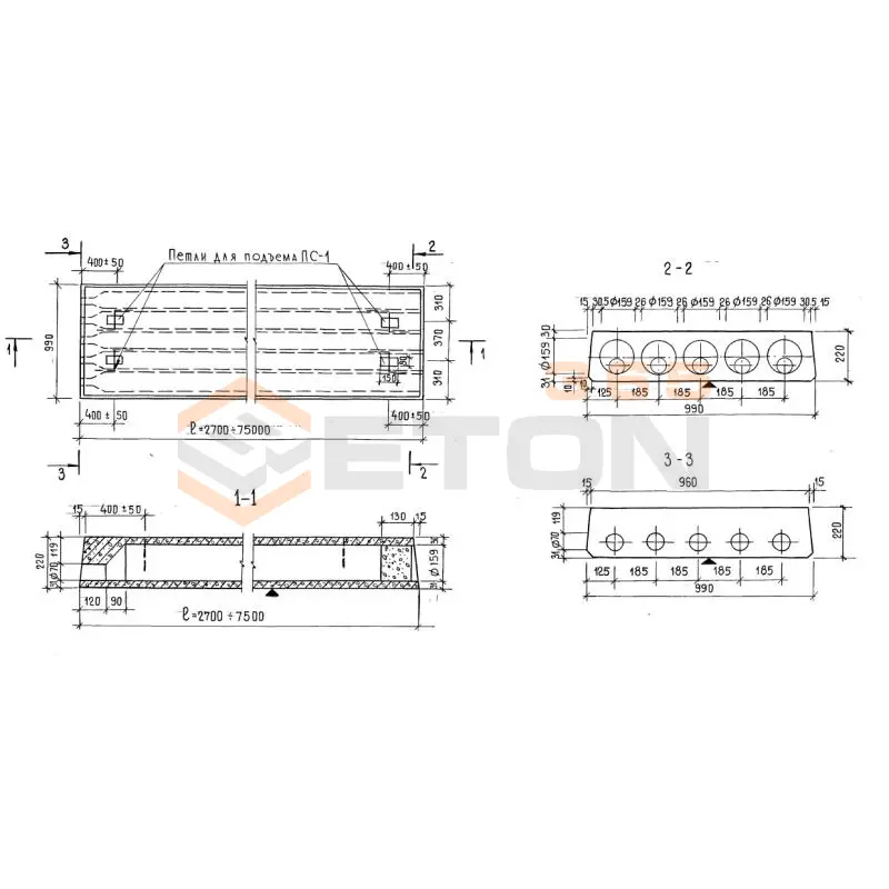
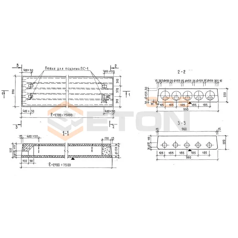
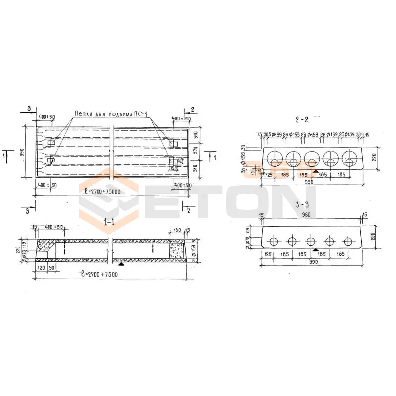
Панели многопустотные Серия 1.141.1 КР-3

Поделиться:
Фильтр по характеристикам
Длина (мм.)
keyboard_arrow_down
мм.
мм.
Ширина (мм.)
keyboard_arrow_down
мм.
мм.
Высота (мм.)
keyboard_arrow_down
мм.
мм.
Вес (кг.)
keyboard_arrow_down
кг.
кг.
Поделиться:

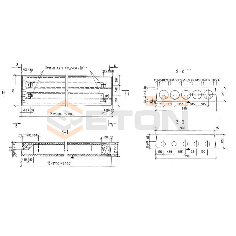
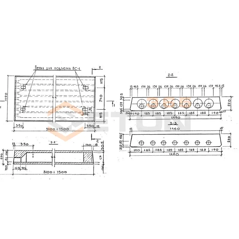
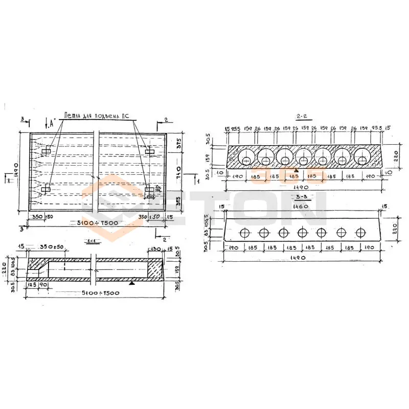
Завод "Бетон365" производит многопустотные панели серии 1.141.1 КР-3 – современное решение для эффективного монтажа межэтажных перекрытий в жилых и коммерческих зданиях. Эти железобетонные изделия характеризуются оптимальным соотношением несущей способности и веса благодаря продольным пустотам, что позволяет равномерно распределять нагрузку и повышать звукоизоляционные свойства конструкций. Использование стандартизированных панелей гарантирует соответствие строгим требованиям ГОСТ и значительно ускоряет темпы строительства.

Мы реализуем многопустотные панели серии 1.141.1 КР-3 напрямую от производителя в Москве и Московской области по конкурентной цене. Вам доступна оперативная доставка на объект и профессиональные консультации по выбору продукции. Чтобы купить качественные ЖБИ с гарантией надежности и получить расчет стоимости, обратитесь к нашим специалистам для оформления заказа.

БПК 28-10-6 АIVт-I
Панели многопустотные Серия 1.141.1 КР-3
  • Длина 2800 мм.
  • Ширина 990 мм.
  • Высота 220 мм.
  • Вес 870 кг.
  • Объем бетона 0,348 м3
  • Геометрический объем 0,6098 м3
Цена: 6076 руб.
Подробнее
БПК 27-10-6 АIVт-I
Панели многопустотные Серия 1.141.1 КР-3
  • Длина 2700 мм.
  • Ширина 990 мм.
  • Высота 220 мм.
  • Вес 840 кг.
  • Объем бетона 0,336 м3
  • Геометрический объем 0,5881 м3
Цена: 5867 руб.
Подробнее
БПК 29-10-6 АIVт-I
Панели многопустотные Серия 1.141.1 КР-3
  • Длина 2900 мм.
  • Ширина 990 мм.
  • Высота 220 мм.
  • Вес 895 кг.
  • Объем бетона 0,358 м3
  • Геометрический объем 0,6316 м3
Цена: 6251 руб.
Подробнее
БПК 31-10-6 АIVт-I
Панели многопустотные Серия 1.141.1 КР-3
  • Длина 3100 мм.
  • Ширина 990 мм.
  • Высота 220 мм.
  • Вес 958 кг.
  • Объем бетона 0,383 м3
  • Геометрический объем 0,6752 м3
Цена: 6687 руб.
Подробнее
БПК 33-10-6 АIVт-I
Панели многопустотные Серия 1.141.1 КР-3
  • Длина 3300 мм.
  • Ширина 990 мм.
  • Высота 220 мм.
  • Вес 1015 кг.
  • Объем бетона 0,406 м3
  • Геометрический объем 0,7187 м3
Цена: 7089 руб.
Подробнее
БПК 30-10-6 АIVт-I
Панели многопустотные Серия 1.141.1 КР-3
  • Длина 3000 мм.
  • Ширина 990 мм.
  • Высота 220 мм.
  • Вес 930 кг.
  • Объем бетона 0,372 м3
  • Геометрический объем 0,6534 м3
Цена: 6495 руб.
Подробнее
БПК 32-10-6 АIVт-I
Панели многопустотные Серия 1.141.1 КР-3
  • Длина 3200 мм.
  • Ширина 990 мм.
  • Высота 220 мм.
  • Вес 985 кг.
  • Объем бетона 0,394 м3
  • Геометрический объем 0,697 м3
Цена: 6879 руб.
Подробнее
БПК 34-10-6 АIVт-I
Панели многопустотные Серия 1.141.1 КР-3
  • Длина 3400 мм.
  • Ширина 990 мм.
  • Высота 220 мм.
  • Вес 1043 кг.
  • Объем бетона 0,417 м3
  • Геометрический объем 0,7405 м3
Цена: 7281 руб.
Подробнее
БПК 35-10-6 АIVт-I
Панели многопустотные Серия 1.141.1 КР-3
  • Длина 3500 мм.
  • Ширина 990 мм.
  • Высота 220 мм.
  • Вес 1073 кг.
  • Объем бетона 0,429 м3
  • Геометрический объем 0,7623 м3
Цена: 7490 руб.
Подробнее
БПК 36-10-6 АIVт-I
Панели многопустотные Серия 1.141.1 КР-3
  • Длина 3600 мм.
  • Ширина 990 мм.
  • Высота 220 мм.
  • Вес 1100 кг.
  • Объем бетона 0,44 м3
  • Геометрический объем 0,7841 м3
Цена: 7682 руб.
Подробнее
БПК 37-10-6 АIVт-I
Панели многопустотные Серия 1.141.1 КР-3
  • Длина 3700 мм.
  • Ширина 990 мм.
  • Высота 220 мм.
  • Вес 1130 кг.
  • Объем бетона 0,452 м3
  • Геометрический объем 0,8059 м3
Цена: 7892 руб.
Подробнее
БПК 39-10-6 АIVт-I
Панели многопустотные Серия 1.141.1 КР-3
  • Длина 3900 мм.
  • Ширина 990 мм.
  • Высота 220 мм.
  • Вес 1190 кг.
  • Объем бетона 0,476 м3
  • Геометрический объем 0,8494 м3
Цена: 8311 руб.
Подробнее
БПК 38-10-6 АIVт-I
Панели многопустотные Серия 1.141.1 КР-3
  • Длина 3800 мм.
  • Ширина 990 мм.
  • Высота 220 мм.
  • Вес 1160 кг.
  • Объем бетона 0,464 м3
  • Геометрический объем 0,8276 м3
Цена: 8101 руб.
Подробнее
БПК 40-10-6 АIVт-I
Панели многопустотные Серия 1.141.1 КР-3
  • Длина 4000 мм.
  • Ширина 990 мм.
  • Высота 220 мм.
  • Вес 1218 кг.
  • Объем бетона 0,487 м3
  • Геометрический объем 0,8712 м3
Цена: 8503 руб.
Подробнее
БПК 41-10-6 АIVт-I
Панели многопустотные Серия 1.141.1 КР-3
  • Длина 4100 мм.
  • Ширина 990 мм.
  • Высота 220 мм.
  • Вес 1245 кг.
  • Объем бетона 0,498 м3
  • Геометрический объем 0,893 м3
Цена: 8695 руб.
Подробнее
БПК 42-10-6 АIVт-I
Панели многопустотные Серия 1.141.1 КР-3
  • Длина 4200 мм.
  • Ширина 990 мм.
  • Высота 220 мм.
  • Вес 1275 кг.
  • Объем бетона 0,51 м3
  • Геометрический объем 0,9148 м3
Цена: 8905 руб.
Подробнее
БПК 43-10-6 АIVт-I
Панели многопустотные Серия 1.141.1 КР-3
  • Длина 4300 мм.
  • Ширина 990 мм.
  • Высота 220 мм.
  • Вес 1303 кг.
  • Объем бетона 0,521 м3
  • Геометрический объем 0,9365 м3
Цена: 9097 руб.
Подробнее
БПК 44-10-6 АIVт-I
Панели многопустотные Серия 1.141.1 КР-3
  • Длина 4400 мм.
  • Ширина 990 мм.
  • Высота 220 мм.
  • Вес 1333 кг.
  • Объем бетона 0,533 м3
  • Геометрический объем 0,9583 м3
Цена: 9306 руб.
Подробнее
БПК 46-10-6 АIVт-I
Панели многопустотные Серия 1.141.1 КР-3
  • Длина 4600 мм.
  • Ширина 990 мм.
  • Высота 220 мм.
  • Вес 1390 кг.
  • Объем бетона 0,556 м3
  • Геометрический объем 1,0019 м3
Цена: 9708 руб.
Подробнее
БПК 45-10-6 АIVт-I
Панели многопустотные Серия 1.141.1 КР-3
  • Длина 4500 мм.
  • Ширина 990 мм.
  • Высота 220 мм.
  • Вес 1360 кг.
  • Объем бетона 0,544 м3
  • Геометрический объем 0,9801 м3
Цена: 9498 руб.
Подробнее
БПК 47-10-6 АIVт-I
Панели многопустотные Серия 1.141.1 КР-3
  • Длина 4700 мм.
  • Ширина 990 мм.
  • Высота 220 мм.
  • Вес 1418 кг.
  • Объем бетона 0,567 м3
  • Геометрический объем 1,0237 м3
Цена: 9900 руб.
Подробнее
БПК 49-10-6 АIVт-I
Панели многопустотные Серия 1.141.1 КР-3
  • Длина 4900 мм.
  • Ширина 990 мм.
  • Высота 220 мм.
  • Вес 1478 кг.
  • Объем бетона 0,591 м3
  • Геометрический объем 1,0672 м3
Цена: 10319 руб.
Подробнее
БПК 50-10-6 АIVт-I
Панели многопустотные Серия 1.141.1 КР-3
  • Длина 5000 мм.
  • Ширина 990 мм.
  • Высота 220 мм.
  • Вес 1508 кг.
  • Объем бетона 0,603 м3
  • Геометрический объем 1,089 м3
Цена: 10528 руб.
Подробнее
БПК 48-10-6 АIVт-I
Панели многопустотные Серия 1.141.1 КР-3
  • Длина 4800 мм.
  • Ширина 990 мм.
  • Высота 220 мм.
  • Вес 1418 кг.
  • Объем бетона 0,567 м3
  • Геометрический объем 1,0454 м3
Цена: 9900 руб.
Подробнее
БПК 51-10-6 АIVт-I
Панели многопустотные Серия 1.141.1 КР-3
  • Длина 5100 мм.
  • Ширина 990 мм.
  • Высота 220 мм.
  • Вес 1535 кг.
  • Объем бетона 0,614 м3
  • Геометрический объем 1,1108 м3
Цена: 10720 руб.
Подробнее
БПК 52-10-6 АIVт-I
Панели многопустотные Серия 1.141.1 КР-3
  • Длина 5200 мм.
  • Ширина 990 мм.
  • Высота 220 мм.
  • Вес 1563 кг.
  • Объем бетона 0,625 м3
  • Геометрический объем 1,1326 м3
Цена: 10913 руб.
Подробнее
БПК 51-15-8 АтVт-I
Панели многопустотные Серия 1.141.1 КР-3
  • Длина 5100 мм.
  • Ширина 1490 мм.
  • Высота 220 мм.
  • Вес 2428 кг.
  • Объем бетона 0,917 м3
  • Геометрический объем 1,6718 м3
Цена: 16011 руб.
Подробнее
БПК 51-15-6 АтVт-I
Панели многопустотные Серия 1.141.1 КР-3
  • Длина 5100 мм.
  • Ширина 1490 мм.
  • Высота 220 мм.
  • Вес 2428 кг.
  • Объем бетона 0,971 м3
  • Геометрический объем 1,6718 м3
Цена: 16954 руб.
Подробнее
БПК 52-15-6 АтVт-I
Панели многопустотные Серия 1.141.1 КР-3
  • Длина 5200 мм.
  • Ширина 1490 мм.
  • Высота 220 мм.
  • Вес 2475 кг.
  • Объем бетона 0,99 м3
  • Геометрический объем 1,7046 м3
Цена: 17285 руб.
Подробнее
БПК 52-15-8 АтVт-I
Панели многопустотные Серия 1.141.1 КР-3
  • Длина 5200 мм.
  • Ширина 1490 мм.
  • Высота 220 мм.
  • Вес 2475 кг.
  • Объем бетона 0,99 м3
  • Геометрический объем 1,7046 м3
Цена: 17285 руб.
Подробнее
БПК 53-10-6 АIVт-I
Панели многопустотные Серия 1.141.1 КР-3
  • Длина 5300 мм.
  • Ширина 990 мм.
  • Высота 220 мм.
  • Вес 1593 кг.
  • Объем бетона 0,637 м3
  • Геометрический объем 1,1543 м3
Цена: 11122 руб.
Подробнее
БПК 54-10-6 АIVт-I
Панели многопустотные Серия 1.141.1 КР-3
  • Длина 5400 мм.
  • Ширина 990 мм.
  • Высота 220 мм.
  • Вес 1620 кг.
  • Объем бетона 0,648 м3
  • Геометрический объем 1,1761 м3
Цена: 11314 руб.
Подробнее
БПК 54-15-6 АтVт-I
Панели многопустотные Серия 1.141.1 КР-3
  • Длина 5400 мм.
  • Ширина 1490 мм.
  • Высота 220 мм.
  • Вес 2568 кг.
  • Объем бетона 1,027 м3
  • Геометрический объем 1,7701 м3
Цена: 17931 руб.
Подробнее
БПК 53-15-6 АтVт-I
Панели многопустотные Серия 1.141.1 КР-3
  • Длина 5300 мм.
  • Ширина 1490 мм.
  • Высота 220 мм.
  • Вес 2522 кг.
  • Объем бетона 1,009 м3
  • Геометрический объем 1,7373 м3
Цена: 17617 руб.
Подробнее
БПК 54-15-8 АтVт-I
Панели многопустотные Серия 1.141.1 КР-3
  • Длина 5400 мм.
  • Ширина 1490 мм.
  • Высота 220 мм.
  • Вес 2568 кг.
  • Объем бетона 1,027 м3
  • Геометрический объем 1,7701 м3
Цена: 17931 руб.
Подробнее
БПК 53-15-8 АтVт-I
Панели многопустотные Серия 1.141.1 КР-3
  • Длина 5300 мм.
  • Ширина 1490 мм.
  • Высота 220 мм.
  • Вес 2522 кг.
  • Объем бетона 1,009 м3
  • Геометрический объем 1,7373 м3
Цена: 17617 руб.
Подробнее
БПК 55-10-6 АIVт-I
Панели многопустотные Серия 1.141.1 КР-3
  • Длина 5500 мм.
  • Ширина 990 мм.
  • Высота 220 мм.
  • Вес 1650 кг.
  • Объем бетона 0,66 м3
  • Геометрический объем 1,1979 м3
Цена: 11524 руб.
Подробнее
БПК 55-15-6 АтVт-I
Панели многопустотные Серия 1.141.1 КР-3
  • Длина 5500 мм.
  • Ширина 1490 мм.
  • Высота 220 мм.
  • Вес 2615 кг.
  • Объем бетона 1,046 м3
  • Геометрический объем 1,8029 м3
Цена: 18263 руб.
Подробнее
БПК 55-15-8 АтVт-I
Панели многопустотные Серия 1.141.1 КР-3
  • Длина 5500 мм.
  • Ширина 1490 мм.
  • Высота 220 мм.
  • Вес 2615 кг.
  • Объем бетона 1,046 м3
  • Геометрический объем 1,8029 м3
Цена: 18263 руб.
Подробнее
БПК 56-10-6 АIVт-I
Панели многопустотные Серия 1.141.1 КР-3
  • Длина 5600 мм.
  • Ширина 990 мм.
  • Высота 220 мм.
  • Вес 1678 кг.
  • Объем бетона 0,671 м3
  • Геометрический объем 1,2197 м3
Цена: 11716 руб.
Подробнее
БПК 56-15-6 АтVт-I
Панели многопустотные Серия 1.141.1 КР-3
  • Длина 5600 мм.
  • Ширина 1490 мм.
  • Высота 220 мм.
  • Вес 2660 кг.
  • Объем бетона 1,064 м3
  • Геометрический объем 1,8357 м3
Цена: 18577 руб.
Подробнее
БПК 57-15-8 АтVт-I
Панели многопустотные Серия 1.141.1 КР-3
  • Длина 5700 мм.
  • Ширина 1490 мм.
  • Высота 220 мм.
  • Вес 2705 кг.
  • Объем бетона 1,082 м3
  • Геометрический объем 1,8685 м3
Цена: 18892 руб.
Подробнее
БПК 57-10-6 АIVт-I
Панели многопустотные Серия 1.141.1 КР-3
  • Длина 5700 мм.
  • Ширина 990 мм.
  • Высота 220 мм.
  • Вес 1708 кг.
  • Объем бетона 0,683 м3
  • Геометрический объем 1,2415 м3
Цена: 11925 руб.
Подробнее
БПК 57-15-6 АтVт-I
Панели многопустотные Серия 1.141.1 КР-3
  • Длина 5700 мм.
  • Ширина 1490 мм.
  • Высота 220 мм.
  • Вес 2705 кг.
  • Объем бетона 1,082 м3
  • Геометрический объем 1,8685 м3
Цена: 18892 руб.
Подробнее
БПК 56-15-8 АтVт-I
Панели многопустотные Серия 1.141.1 КР-3
  • Длина 5600 мм.
  • Ширина 1490 мм.
  • Высота 220 мм.
  • Вес 2660 кг.
  • Объем бетона 1,064 м3
  • Геометрический объем 1,8357 м3
Цена: 18577 руб.
Подробнее
БПК 58-10-6 АIVт-I
Панели многопустотные Серия 1.141.1 КР-3
  • Длина 5800 мм.
  • Ширина 990 мм.
  • Высота 220 мм.
  • Вес 1748 кг.
  • Объем бетона 0,699 м3
  • Геометрический объем 1,2632 м3
Цена: 12205 руб.
Подробнее
БПК 58-15-6 АтVт-I
Панели многопустотные Серия 1.141.1 КР-3
  • Длина 5800 мм.
  • Ширина 1490 мм.
  • Высота 220 мм.
  • Вес 2752 кг.
  • Объем бетона 1,101 м3
  • Геометрический объем 1,9012 м3
Цена: 19223 руб.
Подробнее
БПК 58-15-8 АтVт-I
Панели многопустотные Серия 1.141.1 КР-3
  • Длина 5800 мм.
  • Ширина 1490 мм.
  • Высота 220 мм.
  • Вес 2752 кг.
  • Объем бетона 1,101 м3
  • Геометрический объем 1,9012 м3
Цена: 19223 руб.
Подробнее
БПК 59-10-6 АIVт-I
Панели многопустотные Серия 1.141.1 КР-3
  • Длина 5900 мм.
  • Ширина 990 мм.
  • Высота 220 мм.
  • Вес 1768 кг.
  • Объем бетона 0,707 м3
  • Геометрический объем 1,285 м3
Цена: 12344 руб.
Подробнее
БПК 59-15-8 АтVт-I
Панели многопустотные Серия 1.141.1 КР-3
  • Длина 5900 мм.
  • Ширина 1490 мм.
  • Высота 220 мм.
  • Вес 2798 кг.
  • Объем бетона 1,119 м3
  • Геометрический объем 1,934 м3
Цена: 19538 руб.
Подробнее
БПК 60-10-6 АIVт-I
Панели многопустотные Серия 1.141.1 КР-3
  • Длина 6000 мм.
  • Ширина 990 мм.
  • Высота 220 мм.
  • Вес 1795 кг.
  • Объем бетона 0,718 м3
  • Геометрический объем 1,3068 м3
Цена: 12536 руб.
Подробнее
БПК 59-15-6 АтVт-I
Панели многопустотные Серия 1.141.1 КР-3
  • Длина 5900 мм.
  • Ширина 1490 мм.
  • Высота 220 мм.
  • Вес 2798 кг.
  • Объем бетона 1,119 м3
  • Геометрический объем 1,934 м3
Цена: 19538 руб.
Подробнее
БПК 60-15-8 АтVт-I
Панели многопустотные Серия 1.141.1 КР-3
  • Длина 6000 мм.
  • Ширина 1490 мм.
  • Высота 220 мм.
  • Вес 2850 кг.
  • Объем бетона 1,14 м3
  • Геометрический объем 1,9668 м3
Цена: 19904 руб.
Подробнее
БПК 61-10-6 АIVт-I
Панели многопустотные Серия 1.141.1 КР-3
  • Длина 6100 мм.
  • Ширина 990 мм.
  • Высота 220 мм.
  • Вес 1825 кг.
  • Объем бетона 0,73 м3
  • Геометрический объем 1,3286 м3
Цена: 12746 руб.
Подробнее
БПК 61-15-6 АтVт-I
Панели многопустотные Серия 1.141.1 КР-3
  • Длина 6100 мм.
  • Ширина 1490 мм.
  • Высота 220 мм.
  • Вес 2890 кг.
  • Объем бетона 1,156 м3
  • Геометрический объем 1,9996 м3
Цена: 20184 руб.
Подробнее
БПК 61-15-8 АтVт-I
Панели многопустотные Серия 1.141.1 КР-3
  • Длина 6100 мм.
  • Ширина 1490 мм.
  • Высота 220 мм.
  • Вес 2890 кг.
  • Объем бетона 1,156 м3
  • Геометрический объем 1,9996 м3
Цена: 20184 руб.
Подробнее
БПК 62-10-6 АIVт-I
Панели многопустотные Серия 1.141.1 КР-3
  • Длина 6200 мм.
  • Ширина 990 мм.
  • Высота 220 мм.
  • Вес 1853 кг.
  • Объем бетона 0,741 м3
  • Геометрический объем 1,3504 м3
Цена: 12938 руб.
Подробнее
БПК 60-15-6 АтVт-I
Панели многопустотные Серия 1.141.1 КР-3
  • Длина 6000 мм.
  • Ширина 1490 мм.
  • Высота 220 мм.
  • Вес 2850 кг.
  • Объем бетона 1,14 м3
  • Геометрический объем 1,9668 м3
Цена: 19904 руб.
Подробнее
БПК 62-15-6 АтVт-I
Панели многопустотные Серия 1.141.1 КР-3
  • Длина 6200 мм.
  • Ширина 1490 мм.
  • Высота 220 мм.
  • Вес 2935 кг.
  • Объем бетона 1,174 м3
  • Геометрический объем 2,0324 м3
Цена: 20498 руб.
Подробнее
БПК 62-15-8 АтVт-I
Панели многопустотные Серия 1.141.1 КР-3
  • Длина 6200 мм.
  • Ширина 1490 мм.
  • Высота 220 мм.
  • Вес 2935 кг.
  • Объем бетона 1,174 м3
  • Геометрический объем 2,0324 м3
Цена: 20498 руб.
Подробнее

Как правильно выбрать - Панели многопустотные Серия 1.141.1 КР-3

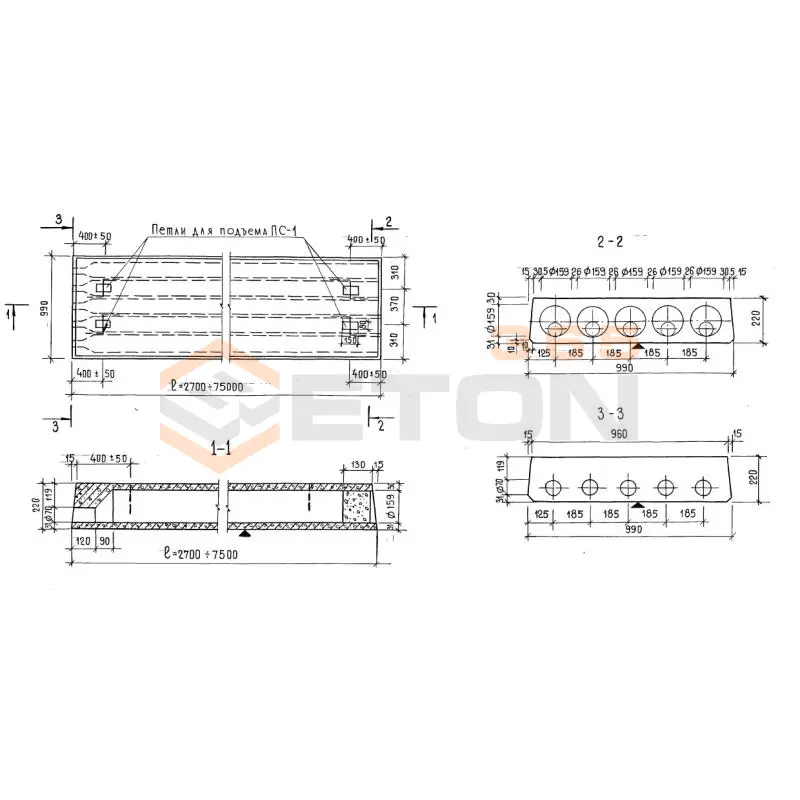
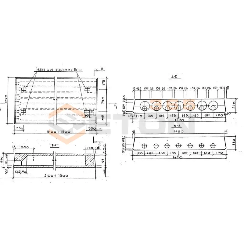
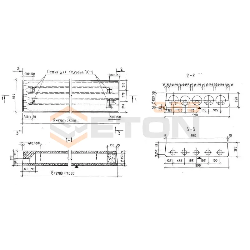
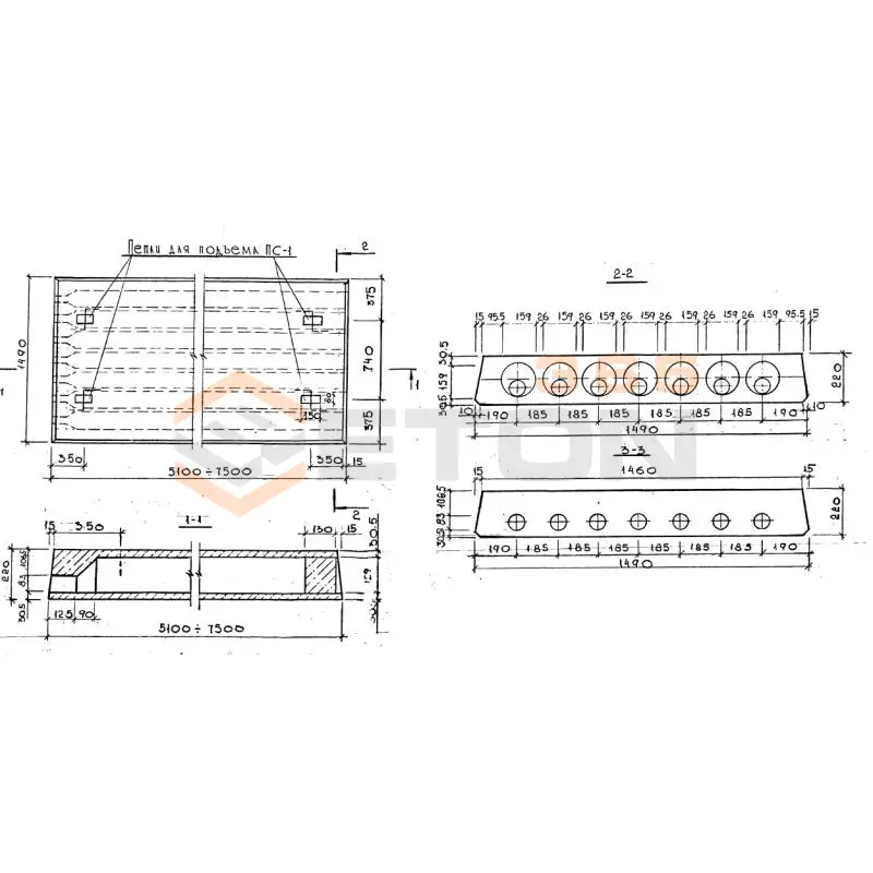
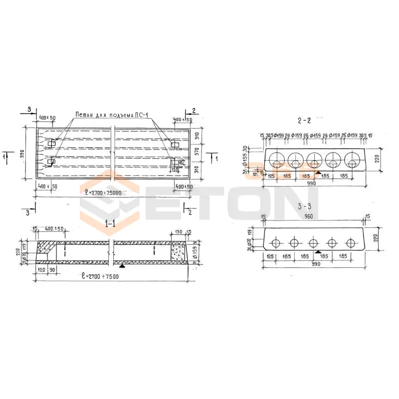
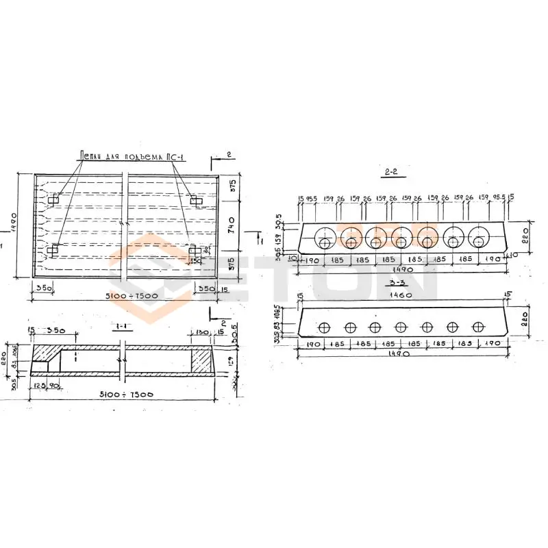
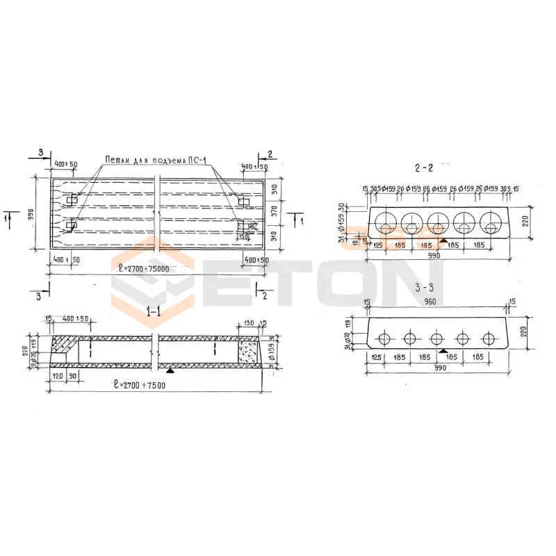
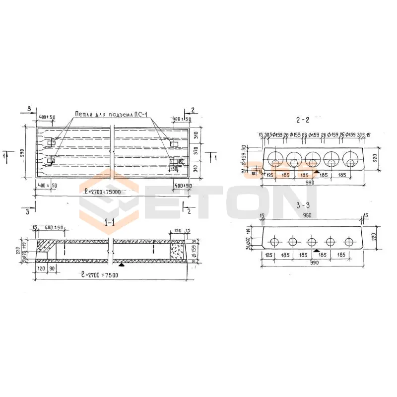
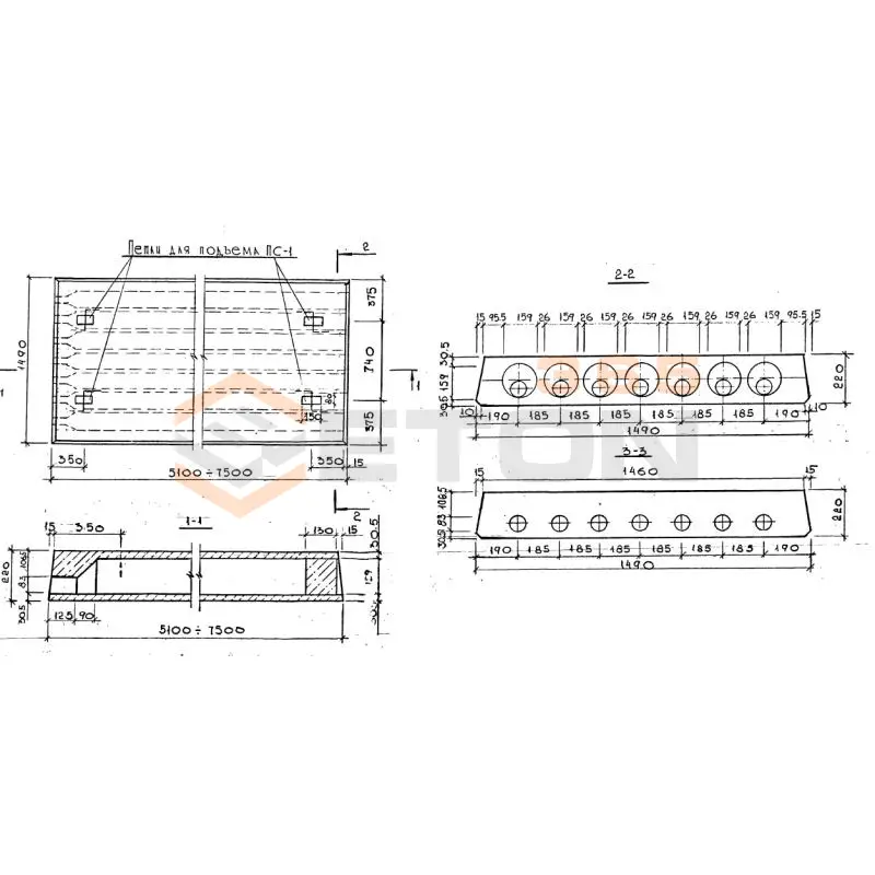
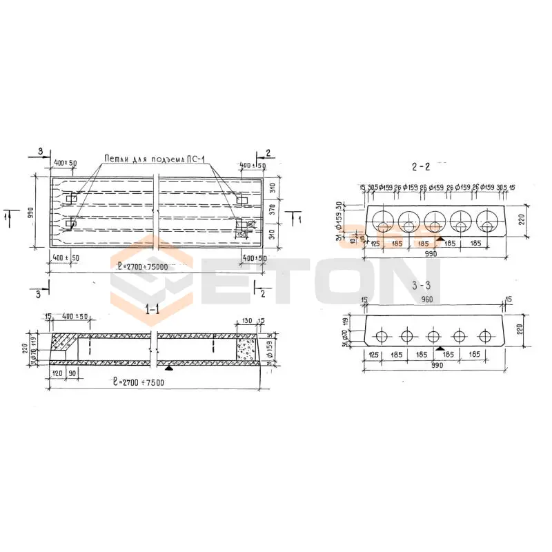
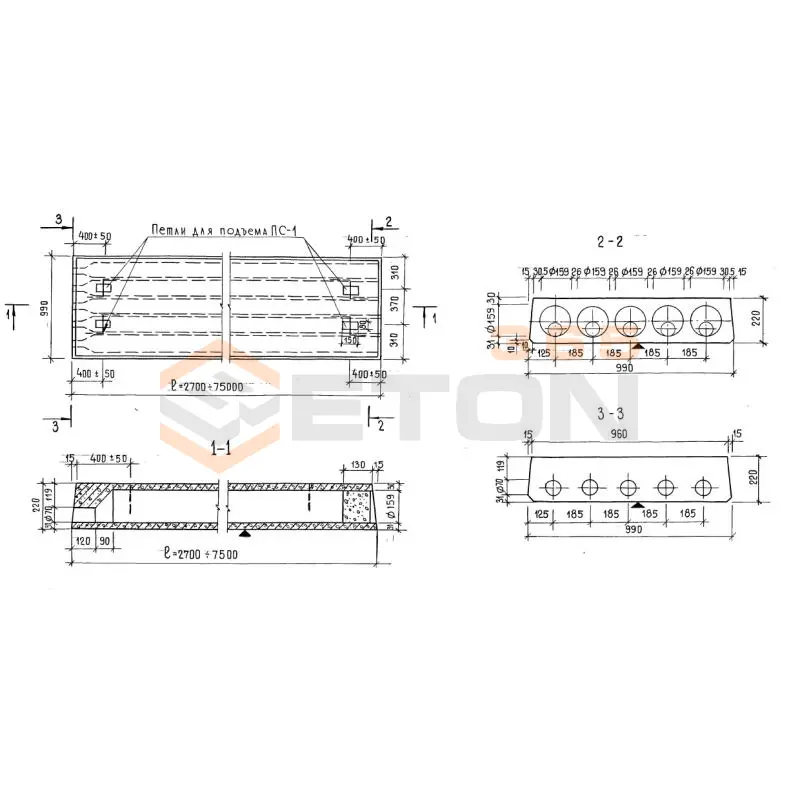
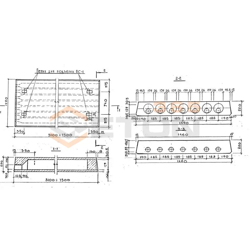
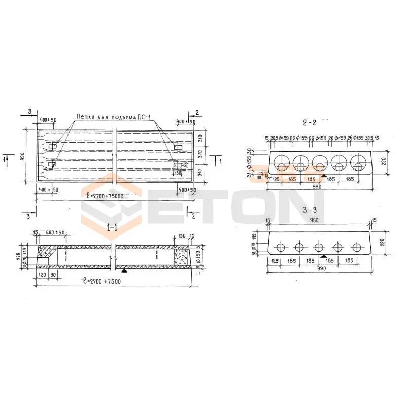
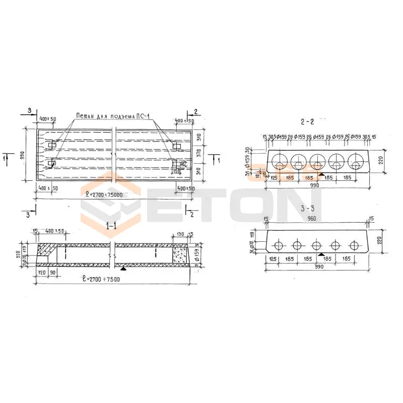
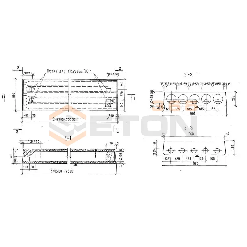
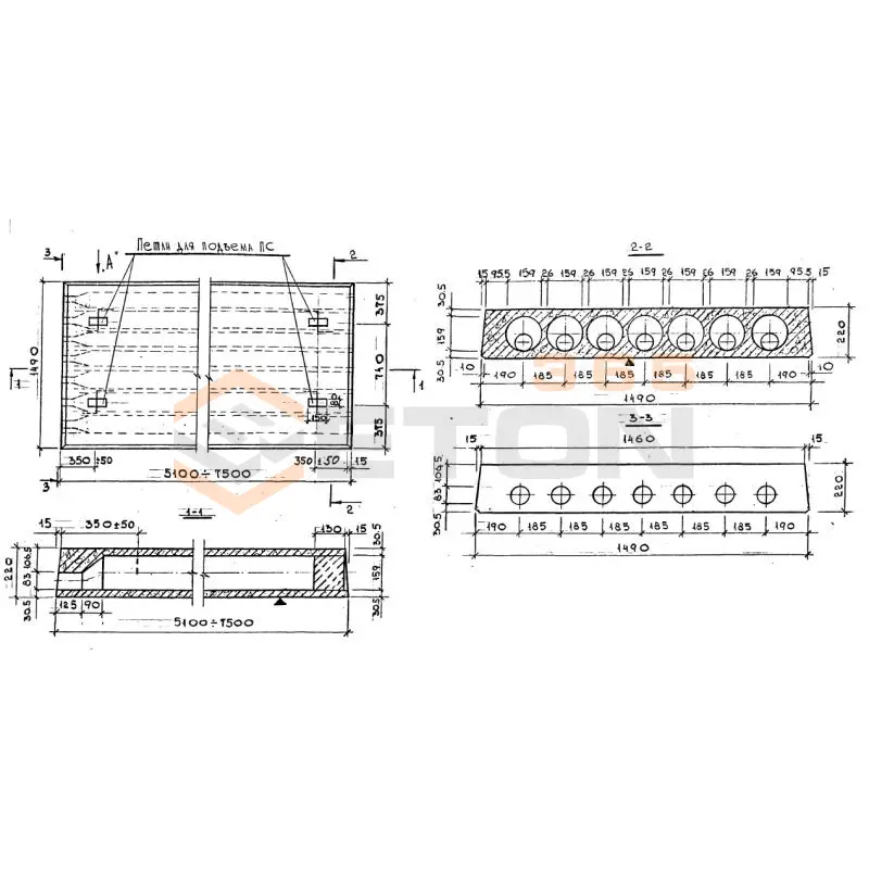
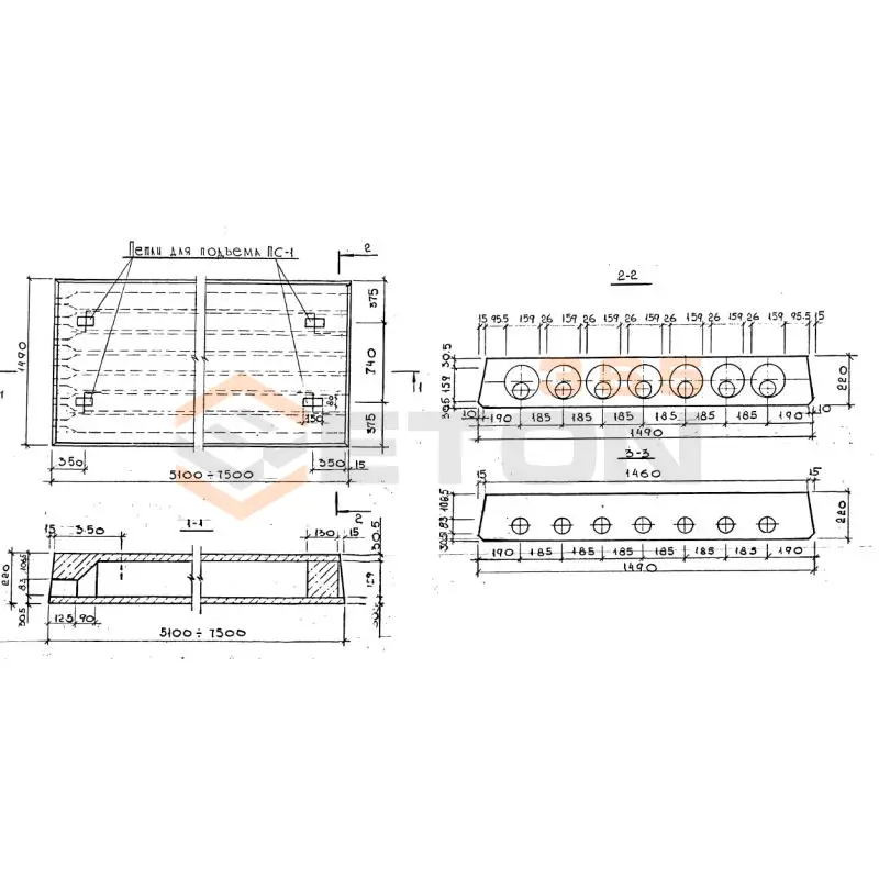
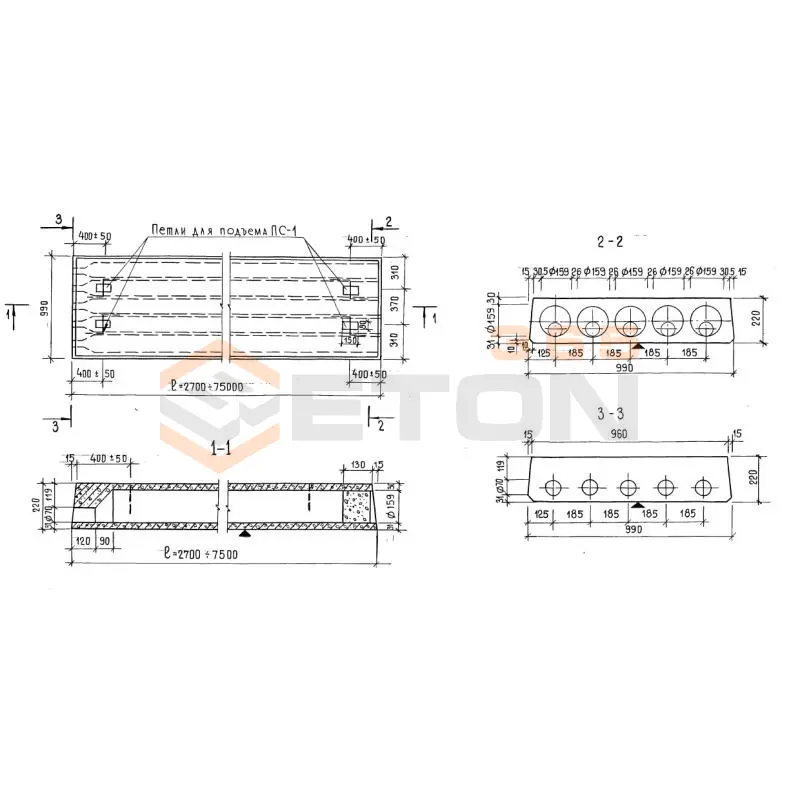
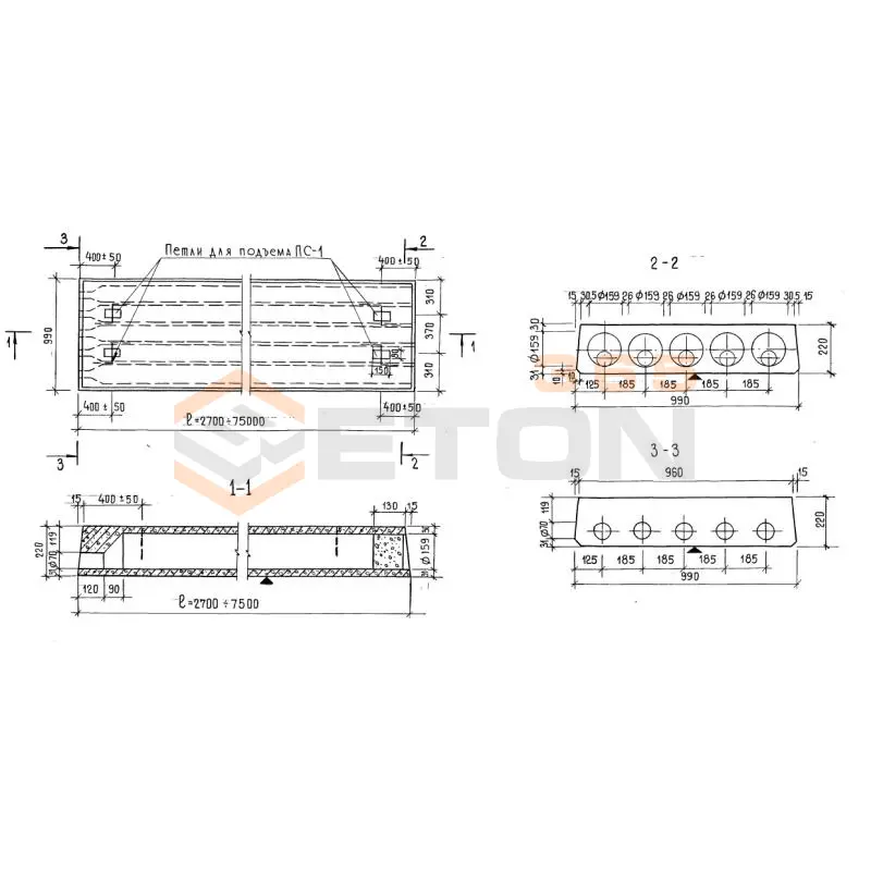
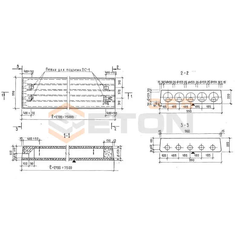
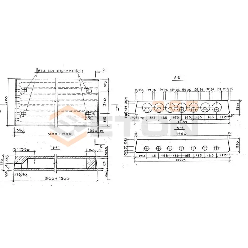
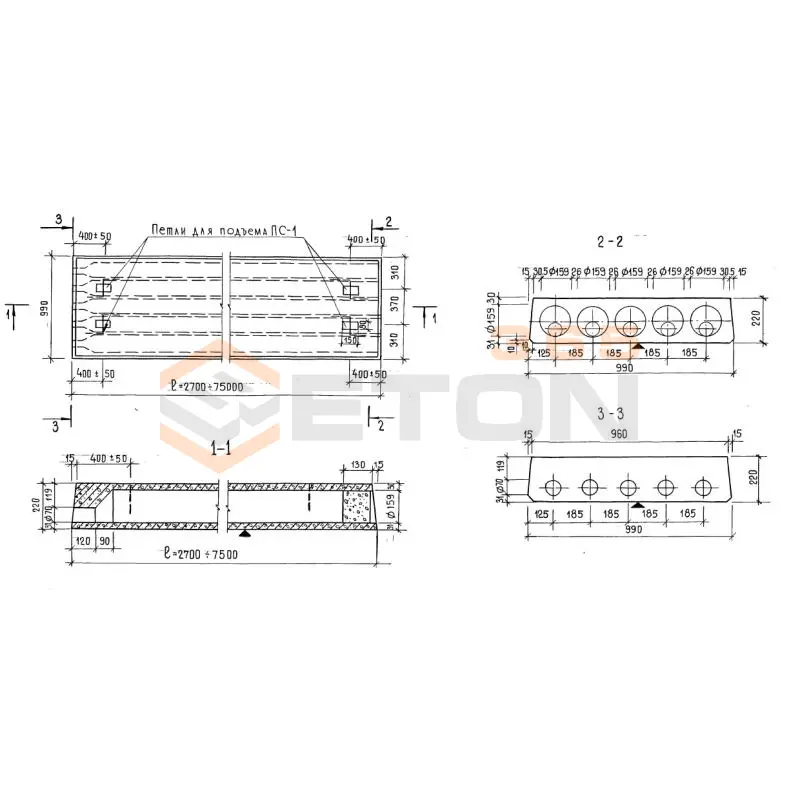
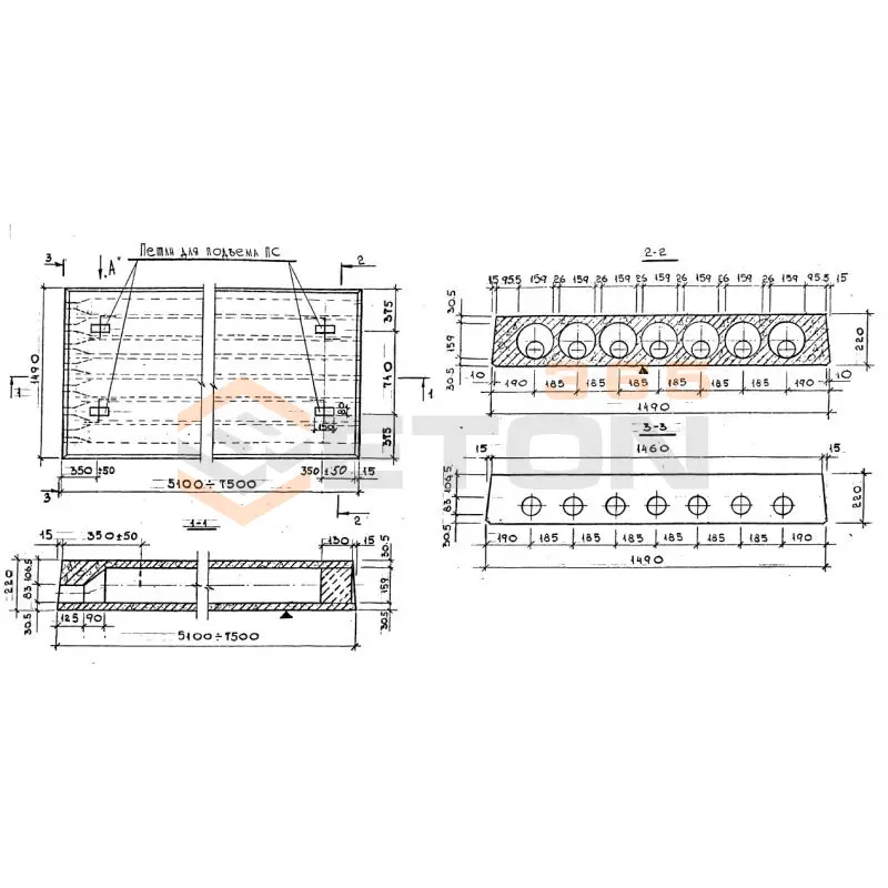
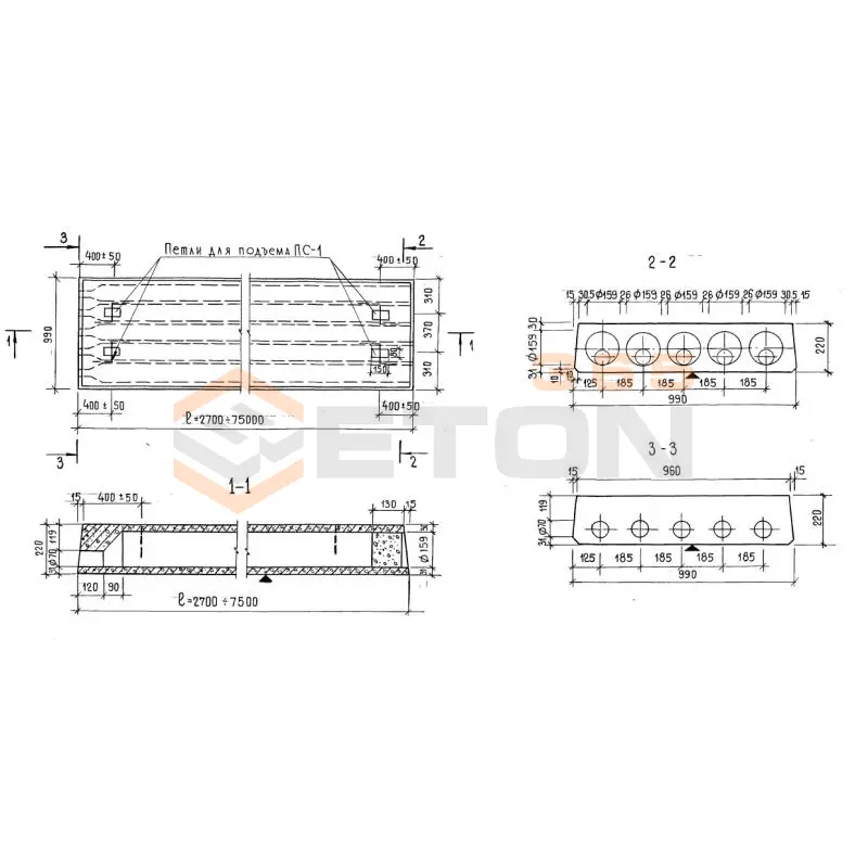
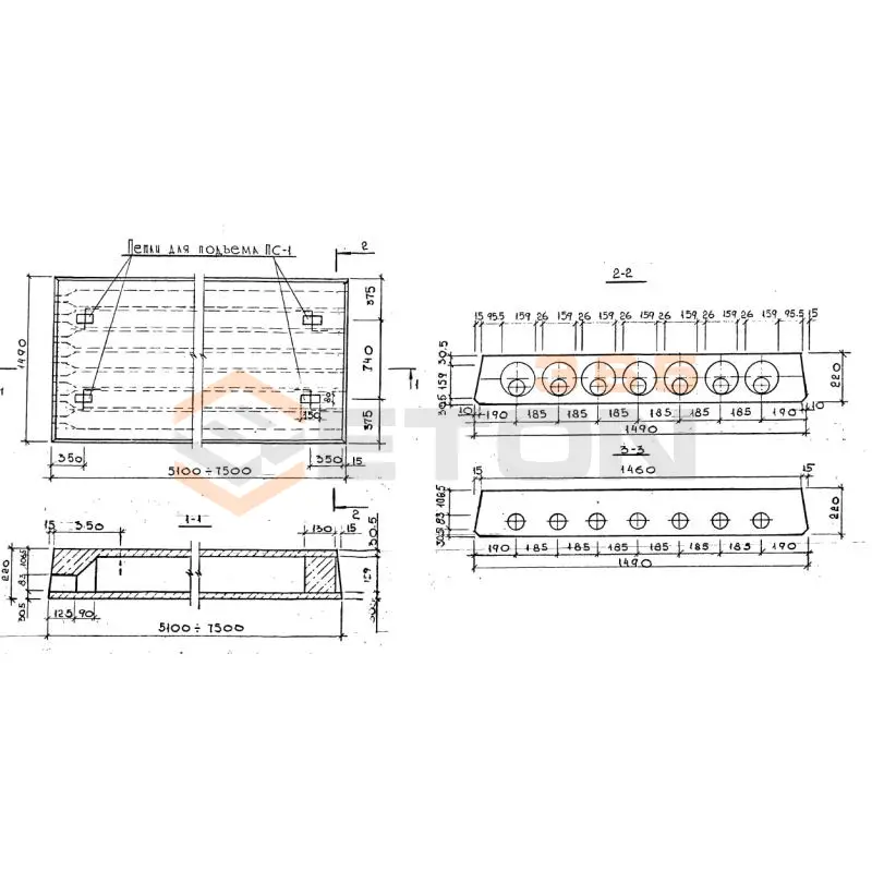
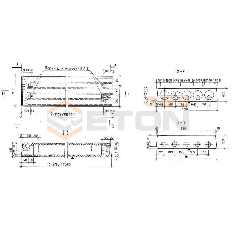
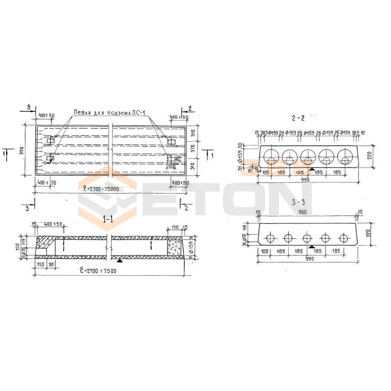
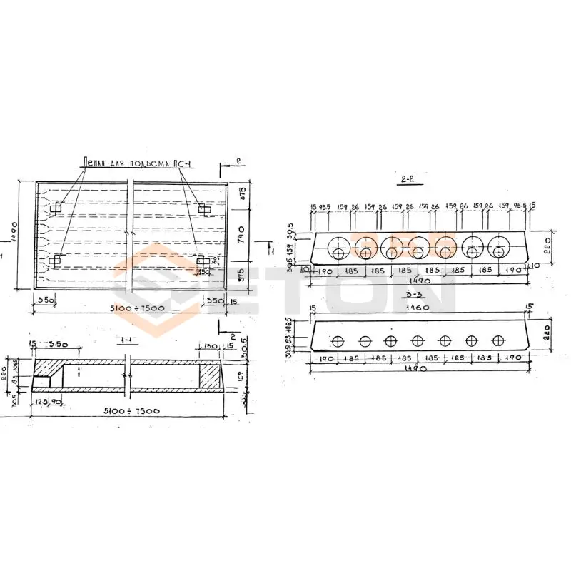
Панели многопустотные Серия 1.141.1 КР-3 предназначены для устройства междуэтажных перекрытий в жилых, общественных и промышленных зданиях. Они выполняют ключевую несущую функцию, воспринимая постоянные и временные нагрузки от людей, оборудования и мебели. Долговечность и безопасность всей строительной конструкции в значительной степени определяются грамотным подбором параметров этих панелей в соответствии с проектными расчетами.

Критерии выбора

  • Марка бетона и прочностные характеристики: Изделия должны изготавливаться из тяжелого бетона марки не ниже М300 (класс прочности на сжатие В22,5). Обязательно проверяйте паспорт на соответствие нормативной отпускной и проектной прочности.
  • Морозостойкость и водонепроницаемость: Для большинства регионов стандартом является морозостойкость F200. Водонепроницаемость (W4) критически важна для панелей в санузлах и других влажных помещениях.
  • Армирование: Обращайте внимание на класс предварительно напряженной арматуры (например, Ат-V). Качество и точное расположение арматурных каркасов – залог отсутствия трещин при эксплуатации.
  • Геометрические параметры: Строгое соответствие типоразмерам по серии (длина, ширина, толщина 220 мм) и диаметру пустот. Проверяйте прямолинейность ребер и отсутствие отклонений по длине, которые усложнят монтаж.
  • Наличие и тип закладных деталей: Убедитесь в наличии и корректном расположении монтажных петель или специальных отверстий для строповки, а также закладных элементов для связи со смежными конструкциями (стенами, ригелями).
  • Соответствие нормам: Панель должна производиться в строгом соответствии с рабочими чертежами серии 1.141.1-3 и ГОСТ 9561-91.

Рекомендации по подбору и монтажу

При составлении спецификации на панели многопустотные Серии 1.141.1 КР-3 обязательно учитывайте не только статические, но и динамические нагрузки (например, от вибрирующего оборудования), а также возможные точечные воздействия. Это может потребовать дополнительного локального армирования в проектном положении. Требуйте от поставщика полный комплект паспортов качества на каждую партию, где указаны фактические прочностные показатели бетона.

При монтаже критически важно обеспечить равномерную опору панелей на несущие стены или ригели. Минимальная глубина опирания должна строго соблюдаться по проекту (обычно не менее 90-120 мм). Перед укладкой растворной постели проверьте отметки опорных конструкций. Замоноличивание стыков и анкеровка должны производиться сразу после выверки положения панели, чтобы обеспечить совместную работу перекрытия как единого горизонтального диска.

Ответы экспертов на ваши вопросы

Многопустотные панели серии 1.141.1 КР-3 предназначены для устройства междуэтажных перекрытий в жилых, общественных и промышленных зданиях. Они применяются в качестве несущих элементов горизонтальных конструкций, обеспечивая распределение нагрузок от вышележащих этажей, оборудования и эксплуатационных воздействий. Панели данной серии оптимальны для зданий с кирпичными стенами, крупноблочных и каркасных конструкций.

Основные преимущества включают: высокую несущую способность при относительно небольшом собственном весе благодаря пустотам; хорошие тепло- и звукоизоляционные характеристики; технологичность и скорость монтажа; унификацию размеров и типоразмеров; возможность прокладки инженерных коммуникаций в пустотах; экономию материалов по сравнению с монолитными конструкциями.

Несущая способность панелей серии 1.141.1 КР-3 определяется расчетом и подтверждается испытаниями. Типовые значения полезной распределенной нагрузки составляют от 400 до 800 кгс/м² в зависимости от марки панели. Точные значения указываются в маркировке (например, ПК 63.15-8АтV означает нагрузку 800 кгс/м²). Расчетная нагрузка включает постоянные (собственный вес, полы, перегородки) и временные (мебель, оборудование, люди) нагрузки.

Стандартная длина панелей составляет от 2,4 до 7,2 метра с градацией через 0,3 м, ширина - 1,0; 1,2; 1,5 и 1,8 метра, высота - 220 мм. Маркировка включает: тип изделия (ПК - панель многопустотная), длину и ширину в дециметрах, несущую способность (цифра после тире), класс арматуры и бетона. Например, ПК 60.12-8АтV - панель длиной 6 м, шириной 1,2 м, с нагрузкой 800 кгс/м².

Панели укладываются на несущие стены или балки с минимальной глубиной опирания 90-120 мм (для кирпичных стен). Поверхность опор должна быть выровнена по горизонтали. Перед монтажом торцы панелей заделываются для предотвращения промерзания. Обязательно устройство анкеровки между панелями и со стенами. Монтаж производится краном с использованием строповочных устройств, исключающих повреждение панелей.

Ранее смотрели
Плиты перекрытия многопустотные Серия Б1.020.1-7 ПК 67-15-4,5 Ат800Тов (Б1.020.1-7)
ПК 67-15-4,5 Ат800Тов (Б1.020.1-7)
Плиты перекрытия многопустотные Серия Б1.020.1-7
Плиты перекрытия многопустотные Серия Б1.020.1-7 ПК 67-15-8 Ат800Тов (Б1.020.1-7)
ПК 67-15-8 Ат800Тов (Б1.020.1-7)
Плиты перекрытия многопустотные Серия Б1.020.1-7
Плиты перекрытия многопустотные Серия Б1.020.1-7 ПК 56-12-8 Ат800Тов (Б1.020.1-7)
ПК 56-12-8 Ат800Тов (Б1.020.1-7)
Плиты перекрытия многопустотные Серия Б1.020.1-7
Люки чугунные дренажные Альбом 84 Люк чугунный дренажный (Альбом 84)
Люк чугунный дренажный (Альбом 84)
Люки чугунные дренажные Альбом 84

Уведомление о файлах cookie

Мы используем файлы cookie для улучшения вашего опыта просмотра и анализа трафика. Нажимая "Принять все", вы соглашаетесь с нашей политикой конфиденциальности и политикой обработки файлов cookie.

Дзен Телеграм Вконтакте vk