mobile_sound +7 (930) 655-55-90

Перемычки Серия 86 и 85

Поделиться:
Фильтр по характеристикам
Длина (мм.)
keyboard_arrow_down
мм.
мм.
Ширина (мм.)
keyboard_arrow_down
мм.
мм.
Высота (мм.)
keyboard_arrow_down
мм.
мм.
Вес (кг.)
keyboard_arrow_down
кг.
кг.
Поделиться:

Завод "Бетон365" производит железобетонные перемычки серий 86 и 85 — ключевые элементы для создания проемов в несущих стенах зданий различного назначения. Эти изделия соответствуют строгим требованиям ГОСТ, обеспечивая равномерное распределение нагрузок от вышележащих конструкций и сохраняя геометрическую стабильность строения. Применение готовых перемычек значительно ускоряет монтажные работы, повышая общую надежность объекта и сокращая сроки строительства.

В нашем каталоге вы можете купить перемычки серии 86 и 85 в Москве и МО по доступной цене от производителя. Мы гарантируем качество продукции и оперативную доставку на объект, что позволяет оптимизировать ваши затраты и временные ресурсы. Для уточнения характеристик и оформления заказа — свяжитесь с нашими специалистами!

Б 10
Перемычки Серия 86 и 85
  • Длина 1000 мм.
  • Ширина 120 мм.
  • Высота 140 мм.
  • Вес 42 кг.
  • Объем бетона 0,0158 м3
  • Геометрический объем 0,0168 м3
Цена: 337 руб.
Подробнее
Б 10
Перемычки Серия 86 и 85
  • Длина 1000 мм.
  • Ширина 120 мм.
  • Высота 140 мм.
  • Вес 42 кг.
  • Объем бетона 0,0158 м3
  • Геометрический объем 0,0168 м3
Цена: 337 руб.
Подробнее
БП 10
Перемычки Серия 86 и 85
  • Длина 2700 мм.
  • Ширина 510 мм.
  • Высота 390 мм.
  • Вес 840 кг.
  • Объем бетона 0,537 м3
  • Геометрический объем 0,537 м3
Цена: 11460 руб.
Подробнее
БП 3
Перемычки Серия 86 и 85
  • Длина 1900 мм.
  • Ширина 380 мм.
  • Высота 190 мм.
  • Вес 336 кг.
  • Объем бетона 0,137 м3
  • Геометрический объем 0,1372 м3
Цена: 2924 руб.
Подробнее
БУ 19-1
Перемычки Серия 86 и 85
  • Длина 1950 мм.
  • Ширина 190 мм.
  • Высота 150 мм.
  • Вес 130 кг.
  • Объем бетона 0,051 м3
  • Геометрический объем 0,0556 м3
Цена: 1088 руб.
Подробнее
БП 5
Перемычки Серия 86 и 85
  • Длина 1300 мм.
  • Ширина 510 мм.
  • Высота 190 мм.
  • Вес 302 кг.
  • Объем бетона 0,126 м3
  • Геометрический объем 0,126 м3
Цена: 2689 руб.
Подробнее
БП 6
Перемычки Серия 86 и 85
  • Длина 1300 мм.
  • Ширина 380 мм.
  • Высота 190 мм.
  • Вес 240 кг.
  • Объем бетона 0,094 м3
  • Геометрический объем 0,0939 м3
Цена: 2006 руб.
Подробнее
БП 9
Перемычки Серия 86 и 85
  • Длина 1900 мм.
  • Ширина 510 мм.
  • Высота 290 мм.
  • Вес 442 кг.
  • Объем бетона 0,281 м3
  • Геометрический объем 0,281 м3
Цена: 5997 руб.
Подробнее
БУ 19-1
Перемычки Серия 86 и 85
  • Длина 1950 мм.
  • Ширина 120 мм.
  • Высота 220 мм.
  • Вес 130 кг.
  • Объем бетона 0,051 м3
  • Геометрический объем 0,0515 м3
Цена: 1088 руб.
Подробнее
БУ 27-1
Перемычки Серия 86 и 85
  • Длина 2700 мм.
  • Ширина 120 мм.
  • Высота 220 мм.
  • Вес 180 кг.
  • Объем бетона 0,071 м3
  • Геометрический объем 0,0713 м3
Цена: 1515 руб.
Подробнее
БУ 30-1
Перемычки Серия 86 и 85
  • Длина 2980 мм.
  • Ширина 250 мм.
  • Высота 220 мм.
  • Вес 465 кг.
  • Объем бетона 0,186 м3
  • Геометрический объем 0,1639 м3
Цена: 3969 руб.
Подробнее
БУ 31-1
Перемычки Серия 86 и 85
  • Длина 3100 мм.
  • Ширина 120 мм.
  • Высота 220 мм.
  • Вес 205 кг.
  • Объем бетона 0,082 м3
  • Геометрический объем 0,0818 м3
Цена: 1750 руб.
Подробнее
БУ 31-2
Перемычки Серия 86 и 85
  • Длина 3100 мм.
  • Ширина 250 мм.
  • Высота 220 мм.
  • Вес 425 кг.
  • Объем бетона 0,17 м3
  • Геометрический объем 0,1705 м3
Цена: 3628 руб.
Подробнее
БУ 31-1
Перемычки Серия 86 и 85
  • Длина 3100 мм.
  • Ширина 120 мм.
  • Высота 220 мм.
  • Вес 205 кг.
  • Объем бетона 0,082 м3
  • Геометрический объем 0,0818 м3
Цена: 1750 руб.
Подробнее
БУ 31-3
Перемычки Серия 86 и 85
  • Длина 3100 мм.
  • Ширина 250 мм.
  • Высота 220 мм.
  • Вес 425 кг.
  • Объем бетона 0,17 м3
  • Геометрический объем 0,1705 м3
Цена: 3628 руб.
Подробнее
ИП 19
Перемычки Серия 86 и 85
  • Длина 1950 мм.
  • Ширина 120 мм.
  • Высота 140 мм.
  • Вес 85 кг.
  • Объем бетона 0,033 м3
  • Геометрический объем 0,0328 м3
Цена: 704 руб.
Подробнее
ИП 38
Перемычки Серия 86 и 85
  • Длина 3800 мм.
  • Ширина 140 мм.
  • Высота 220 мм.
  • Вес 293 кг.
  • Объем бетона 0,117 м3
  • Геометрический объем 0,117 м3
Цена: 2497 руб.
Подробнее
ИП 40-12
Перемычки Серия 86 и 85
  • Длина 4000 мм.
  • Ширина 120 мм.
  • Высота 450 мм.
  • Вес 551 кг.
  • Объем бетона 0,216 м3
  • Геометрический объем 0,216 м3
Цена: 4609 руб.
Подробнее
ИП 40-25
Перемычки Серия 86 и 85
  • Длина 4000 мм.
  • Ширина 250 мм.
  • Высота 450 мм.
  • Вес 825 кг.
  • Объем бетона 0,33 м3
  • Геометрический объем 0,45 м3
Цена: 7042 руб.
Подробнее
ИП 43-16
Перемычки Серия 86 и 85
  • Длина 4350 мм.
  • Ширина 160 мм.
  • Высота 290 мм.
  • Вес 505 кг.
  • Объем бетона 0,202 м3
  • Геометрический объем 0,2018 м3
Цена: 4311 руб.
Подробнее
ИП 43-12
Перемычки Серия 86 и 85
  • Длина 4350 мм.
  • Ширина 120 мм.
  • Высота 290 мм.
  • Вес 378 кг.
  • Объем бетона 0,151 м3
  • Геометрический объем 0,1514 м3
Цена: 3222 руб.
Подробнее
ИП 43-12 а
Перемычки Серия 86 и 85
  • Длина 4350 мм.
  • Ширина 120 мм.
  • Высота 290 мм.
  • Вес 378 кг.
  • Объем бетона 0,151 м3
  • Геометрический объем 0,1514 м3
Цена: 3222 руб.
Подробнее
ИП 44-12
Перемычки Серия 86 и 85
  • Длина 4400 мм.
  • Ширина 120 мм.
  • Высота 450 мм.
  • Вес 600 кг.
  • Объем бетона 0,24 м3
  • Геометрический объем 0,2376 м3
Цена: 5122 руб.
Подробнее
ИП 44-25
Перемычки Серия 86 и 85
  • Длина 4400 мм.
  • Ширина 250 мм.
  • Высота 450 мм.
  • Вес 910 кг.
  • Объем бетона 0,364 м3
  • Геометрический объем 0,495 м3
Цена: 7768 руб.
Подробнее
ИП 44-42
Перемычки Серия 86 и 85
  • Длина 4400 мм.
  • Ширина 420 мм.
  • Высота 450 мм.
  • Вес 1750 кг.
  • Объем бетона 0,7 м3
  • Геометрический объем 0,8316 м3
Цена: 14938 руб.
Подробнее
ИП 44-51
Перемычки Серия 86 и 85
  • Длина 4400 мм.
  • Ширина 510 мм.
  • Высота 450 мм.
  • Вес 2200 кг.
  • Объем бетона 0,88 м3
  • Геометрический объем 1,0098 м3
Цена: 18779 руб.
Подробнее
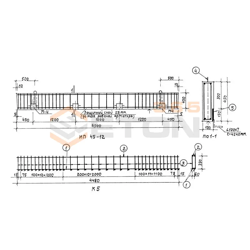
ИП 45-12
Перемычки Серия 86 и 85
  • Длина 4500 мм.
  • Ширина 120 мм.
  • Высота 450 мм.
  • Вес 620 кг.
  • Объем бетона 0,248 м3
  • Геометрический объем 0,243 м3
Цена: 5292 руб.
Подробнее
ИП 45-25
Перемычки Серия 86 и 85
  • Длина 4500 мм.
  • Ширина 250 мм.
  • Высота 450 мм.
  • Вес 930 кг.
  • Объем бетона 0,372 м3
  • Геометрический объем 0,5062 м3
Цена: 7938 руб.
Подробнее
ИП 48-12
Перемычки Серия 86 и 85
  • Длина 4800 мм.
  • Ширина 120 мм.
  • Высота 450 мм.
  • Вес 647,5 кг.
  • Объем бетона 0,259 м3
  • Геометрический объем 0,2592 м3
Цена: 5527 руб.
Подробнее
ИП 48-12-1
Перемычки Серия 86 и 85
  • Длина 4800 мм.
  • Ширина 120 мм.
  • Высота 290 мм.
  • Вес 420 кг.
  • Объем бетона 0,167 м3
  • Геометрический объем 0,167 м3
Цена: 3564 руб.
Подробнее
ИП 48-25
Перемычки Серия 86 и 85
  • Длина 4800 мм.
  • Ширина 250 мм.
  • Высота 450 мм.
  • Вес 992,5 кг.
  • Объем бетона 0,397 м3
  • Геометрический объем 0,54 м3
Цена: 8472 руб.
Подробнее
ИП 48-25-1
Перемычки Серия 86 и 85
  • Длина 4800 мм.
  • Ширина 250 мм.
  • Высота 290 мм.
  • Вес 770 кг.
  • Объем бетона 0,306 м3
  • Геометрический объем 0,348 м3
Цена: 6530 руб.
Подробнее

Как правильно выбрать - Перемычки Серия 86 и 85

Перемычки Серия 86 и 85 предназначены для перекрытия проемов в стенах из кирпича и мелких блоков в жилых, общественных и промышленных зданиях. Они воспринимают нагрузку от вышележащей кладки и передают ее на простенки, обеспечивая жесткость и устойчивость конструкции. Долговечность и надежность узла проема напрямую определяются точным подбором перемычек Серия 86 и 85 в соответствии с проектными расчетами и условиями эксплуатации.

Критерии выбора

  • Типоразмер и несущая способность: Определите требуемую ширину и высоту сечения (например, 2ПБ 13-1-п), а также расчетную нагрузку (от 100 кгс/м и выше), исходя из ширины проема и толщины стены.
  • Марка бетона и армирование: Для перемычек Серия 86 и 85 применяется тяжелый бетон класса не ниже В15 (М200). Обращайте внимание на класс напрягаемой или ненапрягаемой арматуры (Ат-III, А-III).
  • Морозостойкость и водонепроницаемость: Стандартные показатели – F50-F75 и W2-W4, но для наружных стен или помещений с влажным режимом требуются перемычки с повышенными характеристиками.
  • Наличие монтажных петель: Проверьте наличие и соответствие петель для безопасной строповки. Их отсутствие усложняет монтаж и требует применения специальных захватов.
  • Соответствие нормативным документам: Убедитесь, что изделия изготовлены по Серии 1.038.1-1 (85) или 1.036.1-1 (86) и имеют паспорт качества с указанием всех параметров.

Рекомендации по подбору и монтажу

При составлении спецификации на перемычки Серия 86 и 85 обязательно учитывайте не только статическую нагрузку от кладки, но и динамические воздействия (например, от вибрации при работе оборудования в здании). Для проемов в несущих стенах толщиной более 510 мм часто требуется установка нескольких перемычек в ряд – в этом случае необходим строгий контроль их комплектности и одинаковой марки.

При монтаже критически важно обеспечить минимальную глубину опирания (не менее 200 мм для несущих и 120 мм для самонесущих перемычек) на подготовленное, выверенное по горизонтали основание. Не допускается использование кирпичного боя или деревянных клиньев для выравнивания. Перед продолжением кладки убедитесь, что перемычки заняли проектное положение без перекосов.

Ответы экспертов на ваши вопросы

Основное различие заключается в их назначении и несущей способности.

  • Серия 86 (ПРи) – это рядовые перемычки. Они предназначены для перекрытия проемов в стенах, которые НЕ несут нагрузку от перекрытий (ненесущие стены или стены с опиранием перекрытий выше верха проема). Их главная функция – нести нагрузку только от собственной кладки стены над проемом.
  • Серия 85 (ПР) – это несущие перемычки. Они предназначены для перекрытия проемов в стенах, на которые ОПИРАЮТСЯ конструкции перекрытий (балки, плиты). Они рассчитаны на восприятие значительных нагрузок, помимо веса стены.

Подбор осуществляется по расчетной нагрузке и ширине проема.

  1. Определите тип перемычки (86 или 85): Если на стену над проемом опираются балки или плиты перекрытия – нужна серия 85. Если нет – можно использовать серию 86.
  2. Измерьте ширину проема: Это расстояние между опорами (плюс необходимые запасы на опирание с каждой стороны, обычно по 200-250 мм).
  3. Рассчитайте суммарную нагрузку: Для серии 85 это нагрузка от перекрытия + вес стены. Для серии 86 – только вес стены. Расчет должен производиться проектировщиком.
  4. По таблицам серии (альбомам типовых решений): Найдите перемычку, у которой допустимая нагрузка равна или превышает вашу расчетную, а длина соответствует ширине проема. Например, "2ПБ16-2" (серия 85) или "3ПБ13-1" (серия 86).

Маркировка строится по единому принципу и содержит всю основную информацию.

  • Пример маркировки: 2ПБ18-3п
    • 2 – порядковый номер поперечного сечения (высота и ширина). Например, "2" – 120х120 мм, "3" – 120х220 мм, "5" – 120х290 мм.
    • ПБ – тип: брусковая перемычка (самый распространенный тип для ненесущих стен).
    • 18 – длина в дециметрах (18 дм = 1800 мм).
    • 3 – индекс, указывающий на несущую способность (допустимую нагрузку в кН/м). Чем больше цифра, тем выше нагрузка.
    • п – наличие монтажных петель.
    • Для серии 85 также существуют плитные перемычки (ПП), которые шире и используются, когда толщина стены больше.

Минимальная глубина опирания (заделки в стену) является критически важным параметром для обеспечения устойчивости и несущей способности.

  • Для перемычек серий 86 и 85 стандартное минимальное опирание составляет 200 мм (20 см) с каждой стороны.
  • На практике часто закладывают 250 мм для надежности.
  • Этот параметр должен быть строго соблюден. Недостаточное опирание может привести к разрушению конструкции.

Использование этих серий обеспечивает ряд ключевых преимуществ:

  1. Стандартизация и доступность: Изделия производятся массово по единым чертежам, что делает их легкодоступными на любом заводе ЖБИ.
  2. Надежность и проверенная прочность: Все конструкции прошли расчеты и испытания, их несущая способность точно известна.
  3. Ускорение строительства: Отпадает необходимость в монолитных работах по устройству перемычек, что экономит время.
  4. Экономическая эффективность: Серийное производство снижает стоимость по сравнению с индивидуальными решениями.
  5. Простота монтажа: Готовые элементы с монтажными петлями легко устанавливаются краном.
Ранее смотрели
Блоки шахт лифтов Серия 1.089.1-1 БШЛ 100-30 п-1 б
БШЛ 100-30 п-1 б
Блоки шахт лифтов Серия 1.089.1-1
Лестничные площадки Альбом НК 33-07 ЛП 24-13 (Альбом НК 33-07)
ЛП 24-13 (Альбом НК 33-07)
Лестничные площадки Альбом НК 33-07
Плиты аэродромных покрытий ГОСТ 25912-91 ПАГ 14 А800.1-1
ПАГ 14 А800.1-1
Плиты аэродромных покрытий ГОСТ 25912-91
Лестничные площадки и полуплощадки ребристые ЛПП Серия 1.050.9-4.93 ЛПП 14-15 вс (1.050.9-4.93)
ЛПП 14-15 вс (1.050.9-4.93)
Лестничные площадки и полуплощадки ребристые ЛПП Серия 1.050.9-4.93
1Вн 36-15-2 л
1Вн 36-15-2 л
Изделия для стеновых панелей верхние и нижние Серия 1.131-17
1Вн 37-15-2 л
1Вн 37-15-2 л
Изделия для стеновых панелей верхние и нижние Серия 1.131-17
Блоки шахт лифтов Серия 1.089.1-1 БШЛ 100-33 п-1 б
БШЛ 100-33 п-1 б
Блоки шахт лифтов Серия 1.089.1-1
Лестничные площадки и полуплощадки ребристые ЛПП Серия 1.050.9-4.93 ЛПП 14-12 вс (1.050.9-4.93)
ЛПП 14-12 вс (1.050.9-4.93)
Лестничные площадки и полуплощадки ребристые ЛПП Серия 1.050.9-4.93

Уведомление о файлах cookie

Мы используем файлы cookie для улучшения вашего опыта просмотра и анализа трафика. Нажимая "Принять все", вы соглашаетесь с нашей политикой конфиденциальности и политикой обработки файлов cookie.

Дзен Телеграм Вконтакте vk