mobile_sound +7 (930) 655-55-90

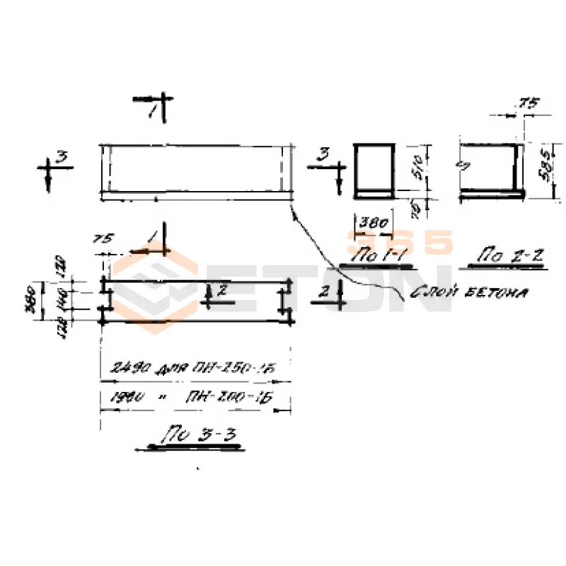
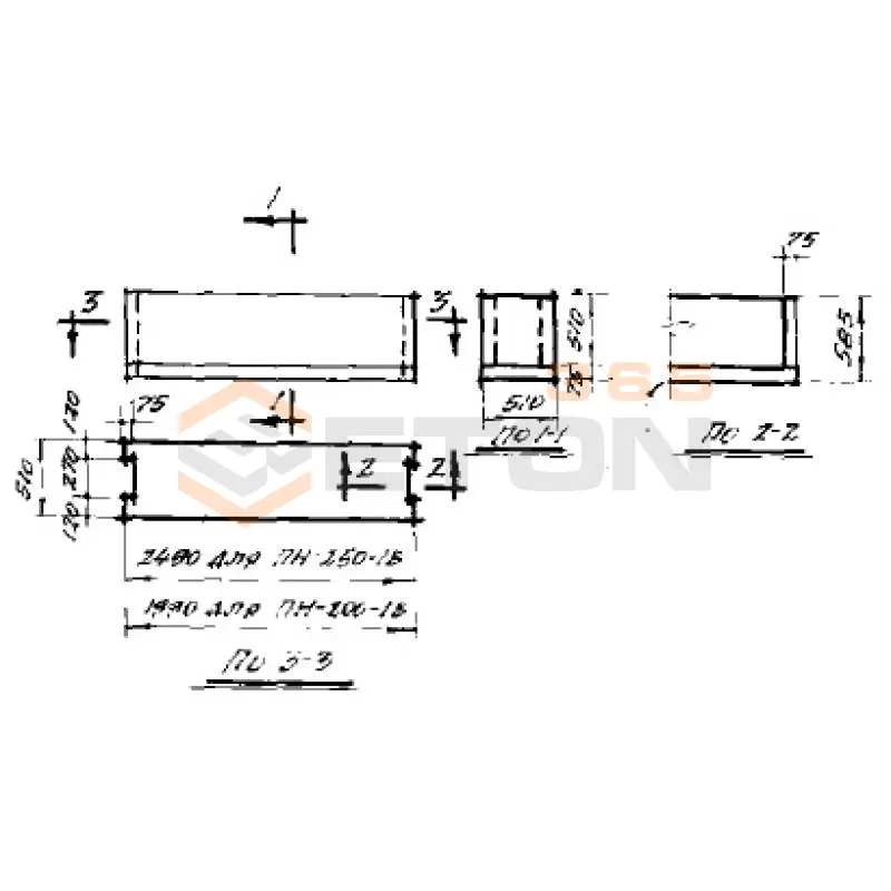
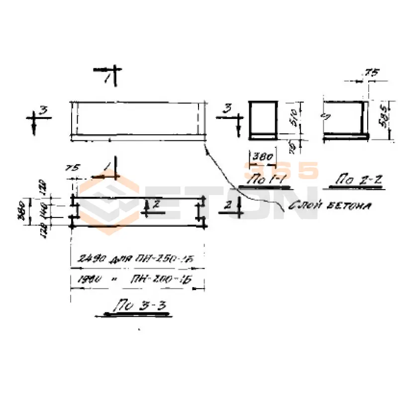
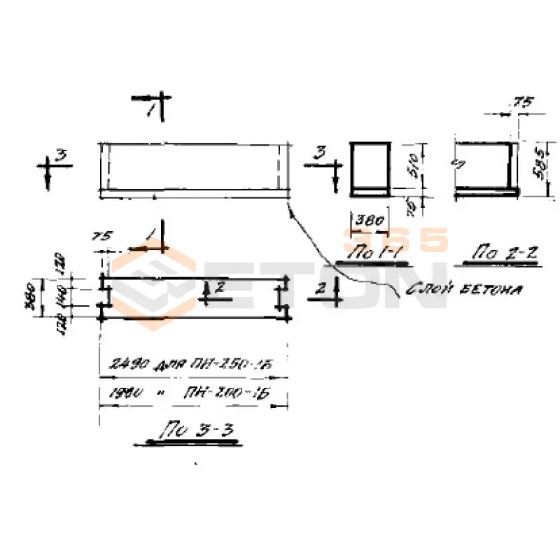
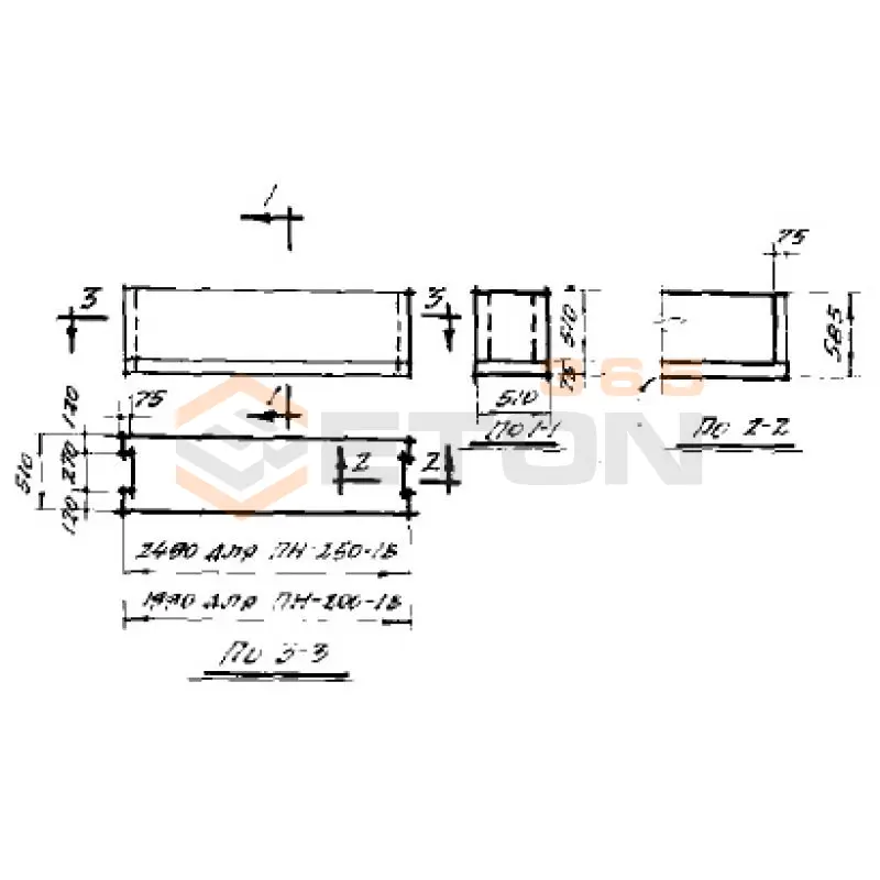
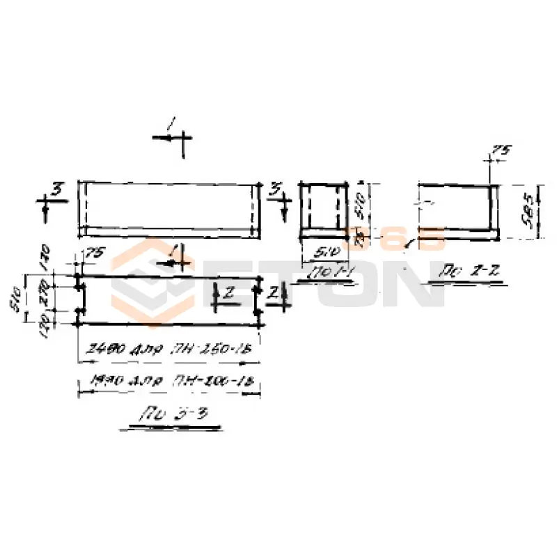
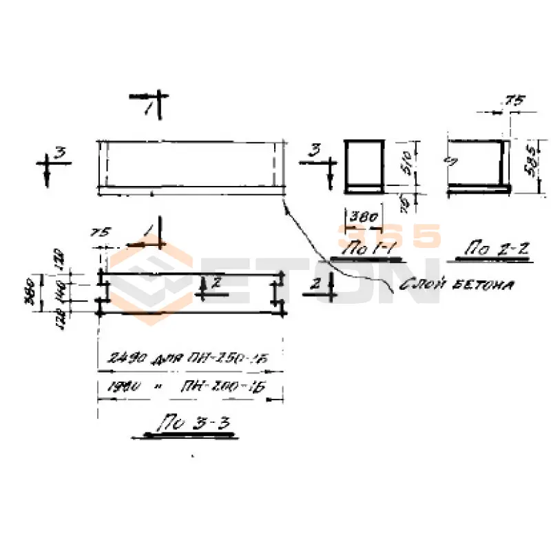
Перемычки наружных стен Серия СТ 02-01

Поделиться:
Фильтр по характеристикам
Длина (мм.)
keyboard_arrow_down
мм.
мм.
Ширина (мм.)
keyboard_arrow_down
мм.
мм.
Высота (мм.)
keyboard_arrow_down
мм.
мм.
Вес (кг.)
keyboard_arrow_down
кг.
кг.
Поделиться:

Завод "Бетон365" производит перемычки для наружных стен серии СТ 02-01 — ключевые элементы, обеспечивающие прочность и устойчивость оконных и дверных проемов в капитальном строительстве. Эти железобетонные изделия изготавливаются в строгом соответствии с ГОСТ, что гарантирует их несущую способность, долговечность и устойчивость к атмосферным воздействиям. Применение готовых перемычек позволяет равномерно распределить нагрузку от вышележащих конструкций и значительно ускорить темпы кладочных работ.

Мы реализуем перемычки наружных стен СТ 02-01 напрямую от производителя в Москве и МО по конкурентной цене, что делает сотрудничество выгодным для крупных застройщиков и частных клиентов. Предлагаем полный комплекс услуг — от помощи в подборе продукции до организации доставки на объект. Чтобы купить качественные ЖБИ с гарантией и рассчитать стоимость заказа, обратитесь к нашим специалистам.

ПН 200-1 А (СТ 02-01)
Перемычки наружных стен Серия СТ 02-01
  • Длина 1990 мм.
  • Ширина 250 мм.
  • Высота 585 мм.
  • Вес 474 кг.
  • Объем бетона 0,26 м3
  • Геометрический объем 0,291 м3
Цена: 5044 руб.
Подробнее
ПН 200-1 А (СТ 02-01)
Перемычки наружных стен Серия СТ 02-01
  • Длина 1990 мм.
  • Ширина 250 мм.
  • Высота 585 мм.
  • Вес 550 кг.
  • Объем бетона 0,26 м3
  • Геометрический объем 0,291 м3
Цена: 5044 руб.
Подробнее
ПН 200-1 Б (СТ 02-01)
Перемычки наружных стен Серия СТ 02-01
  • Длина 1990 мм.
  • Ширина 380 мм.
  • Высота 585 мм.
  • Вес 835 кг.
  • Объем бетона 0,44 м3
  • Геометрический объем 0,4424 м3
Цена: 8536 руб.
Подробнее
ПН 200-1 Б (СТ 02-01)
Перемычки наружных стен Серия СТ 02-01
  • Длина 1990 мм.
  • Ширина 380 мм.
  • Высота 585 мм.
  • Вес 720 кг.
  • Объем бетона 0,44 м3
  • Геометрический объем 0,4424 м3
Цена: 8536 руб.
Подробнее
ПН 200-1 В (СТ 02-01)
Перемычки наружных стен Серия СТ 02-01
  • Длина 1990 мм.
  • Ширина 510 мм.
  • Высота 585 мм.
  • Вес 1010 кг.
  • Объем бетона 0,6 м3
  • Геометрический объем 0,5937 м3
Цена: 11640 руб.
Подробнее
ПН 200-1 В (СТ 02-01)
Перемычки наружных стен Серия СТ 02-01
  • Длина 1990 мм.
  • Ширина 510 мм.
  • Высота 585 мм.
  • Вес 1172 кг.
  • Объем бетона 0,6 м3
  • Геометрический объем 0,5937 м3
Цена: 11640 руб.
Подробнее
ПН 250-1 А (СТ 02-01)
Перемычки наружных стен Серия СТ 02-01
  • Длина 2490 мм.
  • Ширина 250 мм.
  • Высота 585 мм.
  • Вес 690 кг.
  • Объем бетона 0,37 м3
  • Геометрический объем 0,3642 м3
Цена: 7178 руб.
Подробнее
ПН 250-1 А (СТ 02-01)
Перемычки наружных стен Серия СТ 02-01
  • Длина 2490 мм.
  • Ширина 250 мм.
  • Высота 585 мм.
  • Вес 595 кг.
  • Объем бетона 0,37 м3
  • Геометрический объем 0,3642 м3
Цена: 7178 руб.
Подробнее
ПН 250-1 Б (СТ 02-01)
Перемычки наружных стен Серия СТ 02-01
  • Длина 2490 мм.
  • Ширина 380 мм.
  • Высота 585 мм.
  • Вес 1035 кг.
  • Объем бетона 0,55 м3
  • Геометрический объем 0,5535 м3
Цена: 10670 руб.
Подробнее
ПН 250-1 В (СТ 02-01)
Перемычки наружных стен Серия СТ 02-01
  • Длина 2490 мм.
  • Ширина 510 мм.
  • Высота 585 мм.
  • Вес 1442 кг.
  • Объем бетона 0,76 м3
  • Геометрический объем 0,7429 м3
Цена: 14744 руб.
Подробнее
ПН 250-1 Б (СТ 02-01)
Перемычки наружных стен Серия СТ 02-01
  • Длина 2490 мм.
  • Ширина 380 мм.
  • Высота 585 мм.
  • Вес 892 кг.
  • Объем бетона 0,55 м3
  • Геометрический объем 0,5535 м3
Цена: 10670 руб.
Подробнее
ПН 250-1 В (СТ 02-01)
Перемычки наружных стен Серия СТ 02-01
  • Длина 2490 мм.
  • Ширина 510 мм.
  • Высота 585 мм.
  • Вес 1242 кг.
  • Объем бетона 0,76 м3
  • Геометрический объем 0,7429 м3
Цена: 14744 руб.
Подробнее
ПН 350-1 А (СТ 02-01)
Перемычки наружных стен Серия СТ 02-01
  • Длина 3490 мм.
  • Ширина 250 мм.
  • Высота 585 мм.
  • Вес 1027 кг.
  • Объем бетона 0,47 м3
  • Геометрический объем 0,5104 м3
Цена: 9118 руб.
Подробнее
ПН 350-1 А (СТ 02-01)
Перемычки наружных стен Серия СТ 02-01
  • Длина 3490 мм.
  • Ширина 250 мм.
  • Высота 585 мм.
  • Вес 962 кг.
  • Объем бетона 0,47 м3
  • Геометрический объем 0,5104 м3
Цена: 9118 руб.
Подробнее
ПН 350-1 А (СТ 02-01)
Перемычки наружных стен Серия СТ 02-01
  • Длина 3490 мм.
  • Ширина 300 мм.
  • Высота 585 мм.
  • Вес 850 кг.
  • Объем бетона 0,472 м3
  • Геометрический объем 0,6125 м3
Цена: 9157 руб.
Подробнее
ПН 350-1 А (СТ 02-01)
Перемычки наружных стен Серия СТ 02-01
  • Длина 3490 мм.
  • Ширина 300 мм.
  • Высота 585 мм.
  • Вес 1001 кг.
  • Объем бетона 0,472 м3
  • Геометрический объем 0,6125 м3
Цена: 9157 руб.
Подробнее
ПН 350-1 А (СТ 02-01)
Перемычки наружных стен Серия СТ 02-01
  • Длина 3490 мм.
  • Ширина 300 мм.
  • Высота 585 мм.
  • Вес 1077 кг.
  • Объем бетона 0,472 м3
  • Геометрический объем 0,6125 м3
Цена: 9157 руб.
Подробнее
ПН 350-1 Б (СТ 02-01)
Перемычки наружных стен Серия СТ 02-01
  • Длина 3490 мм.
  • Ширина 400 мм.
  • Высота 585 мм.
  • Вес 1066 кг.
  • Объем бетона 0,674 м3
  • Геометрический объем 0,8167 м3
Цена: 13076 руб.
Подробнее
ПН 350-1 Б (СТ 02-01)
Перемычки наружных стен Серия СТ 02-01
  • Длина 3490 мм.
  • Ширина 380 мм.
  • Высота 585 мм.
  • Вес 1394 кг.
  • Объем бетона 0,77 м3
  • Геометрический объем 0,7758 м3
Цена: 14938 руб.
Подробнее
ПН 350-1 Б (СТ 02-01)
Перемычки наружных стен Серия СТ 02-01
  • Длина 3490 мм.
  • Ширина 400 мм.
  • Высота 585 мм.
  • Вес 1411 кг.
  • Объем бетона 0,674 м3
  • Геометрический объем 0,8167 м3
Цена: 13076 руб.
Подробнее
ПН 350-1 В (СТ 02-01)
Перемычки наружных стен Серия СТ 02-01
  • Длина 3490 мм.
  • Ширина 510 мм.
  • Высота 585 мм.
  • Вес 1759 кг.
  • Объем бетона 0,8 м3
  • Геометрический объем 1,0412 м3
Цена: 15520 руб.
Подробнее
ПН 350-1 Б (СТ 02-01)
Перемычки наружных стен Серия СТ 02-01
  • Длина 3490 мм.
  • Ширина 380 мм.
  • Высота 585 мм.
  • Вес 1514 кг.
  • Объем бетона 0,77 м3
  • Геометрический объем 0,7758 м3
Цена: 14938 руб.
Подробнее
ПН 350-1 Б (СТ 02-01)
Перемычки наружных стен Серия СТ 02-01
  • Длина 3490 мм.
  • Ширина 400 мм.
  • Высота 585 мм.
  • Вес 1295 кг.
  • Объем бетона 0,674 м3
  • Геометрический объем 0,8167 м3
Цена: 13076 руб.
Подробнее
ПН 350-1 В (СТ 02-01)
Перемычки наружных стен Серия СТ 02-01
  • Длина 3490 мм.
  • Ширина 510 мм.
  • Высота 585 мм.
  • Вес 1642 кг.
  • Объем бетона 0,8 м3
  • Геометрический объем 1,0412 м3
Цена: 15520 руб.
Подробнее
ПН 350-1 В (СТ 02-01)
Перемычки наружных стен Серия СТ 02-01
  • Длина 3490 мм.
  • Ширина 500 мм.
  • Высота 585 мм.
  • Вес 1997 кг.
  • Объем бетона 0,855 м3
  • Геометрический объем 1,0208 м3
Цена: 16587 руб.
Подробнее
ПН 350-1 В (СТ 02-01)
Перемычки наружных стен Серия СТ 02-01
  • Длина 3490 мм.
  • Ширина 500 мм.
  • Высота 585 мм.
  • Вес 1899 кг.
  • Объем бетона 0,855 м3
  • Геометрический объем 1,0208 м3
Цена: 16587 руб.
Подробнее
ПН 350-1 В (СТ 02-01)
Перемычки наружных стен Серия СТ 02-01
  • Длина 3490 мм.
  • Ширина 500 мм.
  • Высота 585 мм.
  • Вес 1703 кг.
  • Объем бетона 0,855 м3
  • Геометрический объем 1,0208 м3
Цена: 16587 руб.
Подробнее
ПН 450-1 А (СТ 02-01)
Перемычки наружных стен Серия СТ 02-01
  • Длина 4490 мм.
  • Ширина 300 мм.
  • Высота 585 мм.
  • Вес 1400 кг.
  • Объем бетона 0,62 м3
  • Геометрический объем 0,788 м3
Цена: 12028 руб.
Подробнее
ПН 450-1 А (СТ 02-01)
Перемычки наружных стен Серия СТ 02-01
  • Длина 4490 мм.
  • Ширина 300 мм.
  • Высота 585 мм.
  • Вес 1300 кг.
  • Объем бетона 0,62 м3
  • Геометрический объем 0,788 м3
Цена: 12028 руб.
Подробнее
ПН 450-1 А (СТ 02-01)
Перемычки наружных стен Серия СТ 02-01
  • Длина 4490 мм.
  • Ширина 300 мм.
  • Высота 585 мм.
  • Вес 1100 кг.
  • Объем бетона 0,62 м3
  • Геометрический объем 0,788 м3
Цена: 12028 руб.
Подробнее
ПН 450-1 Б (СТ 02-01)
Перемычки наружных стен Серия СТ 02-01
  • Длина 4490 мм.
  • Ширина 380 мм.
  • Высота 585 мм.
  • Вес 2071 кг.
  • Объем бетона 0,95 м3
  • Геометрический объем 0,9981 м3
Цена: 18430 руб.
Подробнее
ПН 450-1 А (СТ 02-01)
Перемычки наружных стен Серия СТ 02-01
  • Длина 4490 мм.
  • Ширина 250 мм.
  • Высота 585 мм.
  • Вес 1345 кг.
  • Объем бетона 0,65 м3
  • Геометрический объем 0,6567 м3
Цена: 12610 руб.
Подробнее
ПН 450-1 А (СТ 02-01)
Перемычки наружных стен Серия СТ 02-01
  • Длина 4490 мм.
  • Ширина 250 мм.
  • Высота 585 мм.
  • Вес 1411 кг.
  • Объем бетона 0,65 м3
  • Геометрический объем 0,6567 м3
Цена: 12610 руб.
Подробнее
ПН 450-1 Б (СТ 02-01)
Перемычки наружных стен Серия СТ 02-01
  • Длина 4490 мм.
  • Ширина 400 мм.
  • Высота 585 мм.
  • Вес 1379 кг.
  • Объем бетона 0,877 м3
  • Геометрический объем 1,0507 м3
Цена: 17014 руб.
Подробнее
ПН 450-1 Б (СТ 02-01)
Перемычки наружных стен Серия СТ 02-01
  • Длина 4490 мм.
  • Ширина 380 мм.
  • Высота 585 мм.
  • Вес 1930 кг.
  • Объем бетона 0,95 м3
  • Геометрический объем 0,9981 м3
Цена: 18430 руб.
Подробнее
ПН 450-1 Б (СТ 02-01)
Перемычки наружных стен Серия СТ 02-01
  • Длина 4490 мм.
  • Ширина 400 мм.
  • Высота 585 мм.
  • Вес 1829 кг.
  • Объем бетона 0,877 м3
  • Геометрический объем 1,0507 м3
Цена: 17014 руб.
Подробнее
ПН 450-1 Б (СТ 02-01)
Перемычки наружных стен Серия СТ 02-01
  • Длина 4490 мм.
  • Ширина 400 мм.
  • Высота 585 мм.
  • Вес 1680 кг.
  • Объем бетона 0,877 м3
  • Геометрический объем 1,0507 м3
Цена: 17014 руб.
Подробнее
ПН 450-1 В (СТ 02-01)
Перемычки наружных стен Серия СТ 02-01
  • Длина 4490 мм.
  • Ширина 500 мм.
  • Высота 585 мм.
  • Вес 2466 кг.
  • Объем бетона 1,107 м3
  • Геометрический объем 1,3133 м3
Цена: 21476 руб.
Подробнее
ПН 450-1 В (СТ 02-01)
Перемычки наружных стен Серия СТ 02-01
  • Длина 4490 мм.
  • Ширина 500 мм.
  • Высота 585 мм.
  • Вес 2493 кг.
  • Объем бетона 1,107 м3
  • Геометрический объем 1,3133 м3
Цена: 21476 руб.
Подробнее
ПН 450-1 В (СТ 02-01)
Перемычки наружных стен Серия СТ 02-01
  • Длина 4490 мм.
  • Ширина 500 мм.
  • Высота 585 мм.
  • Вес 2213 кг.
  • Объем бетона 1,107 м3
  • Геометрический объем 1,3133 м3
Цена: 21476 руб.
Подробнее
ПН 450-1 В (СТ 02-01)
Перемычки наружных стен Серия СТ 02-01
  • Длина 4490 мм.
  • Ширина 510 мм.
  • Высота 585 мм.
  • Вес 2719 кг.
  • Объем бетона 1,25 м3
  • Геометрический объем 1,3396 м3
Цена: 24250 руб.
Подробнее
ПН 450-1 В (СТ 02-01)
Перемычки наружных стен Серия СТ 02-01
  • Длина 4490 мм.
  • Ширина 510 мм.
  • Высота 585 мм.
  • Вес 2545 кг.
  • Объем бетона 1,25 м3
  • Геометрический объем 1,3396 м3
Цена: 24250 руб.
Подробнее
ПН 600-1 А (СТ 02-01)
Перемычки наружных стен Серия СТ 02-01
  • Длина 5990 мм.
  • Ширина 250 мм.
  • Высота 585 мм.
  • Вес 1812 кг.
  • Объем бетона 0,85 м3
  • Геометрический объем 0,876 м3
Цена: 16490 руб.
Подробнее
ПН 600-1 А (СТ 02-01)
Перемычки наружных стен Серия СТ 02-01
  • Длина 5990 мм.
  • Ширина 250 мм.
  • Высота 585 мм.
  • Вес 1904 кг.
  • Объем бетона 0,85 м3
  • Геометрический объем 0,876 м3
Цена: 16490 руб.
Подробнее
ПН 600-1 А (СТ 02-01)
Перемычки наружных стен Серия СТ 02-01
  • Длина 5990 мм.
  • Ширина 300 мм.
  • Высота 585 мм.
  • Вес 1884 кг.
  • Объем бетона 0,832 м3
  • Геометрический объем 1,0512 м3
Цена: 16141 руб.
Подробнее
ПН 600-1 А (СТ 02-01)
Перемычки наружных стен Серия СТ 02-01
  • Длина 5990 мм.
  • Ширина 300 мм.
  • Высота 585 мм.
  • Вес 1752 кг.
  • Объем бетона 0,832 м3
  • Геометрический объем 1,0512 м3
Цена: 16141 руб.
Подробнее
ПН 600-1 А (СТ 02-01)
Перемычки наружных стен Серия СТ 02-01
  • Длина 5990 мм.
  • Ширина 300 мм.
  • Высота 585 мм.
  • Вес 1406 кг.
  • Объем бетона 0,832 м3
  • Геометрический объем 1,0512 м3
Цена: 16141 руб.
Подробнее
ПН 600-1 Б (СТ 02-01)
Перемычки наружных стен Серия СТ 02-01
  • Длина 5990 мм.
  • Ширина 400 мм.
  • Высота 585 мм.
  • Вес 2349 кг.
  • Объем бетона 1,228 м3
  • Геометрический объем 1,4017 м3
Цена: 23823 руб.
Подробнее
ПН 600-1 Б (СТ 02-01)
Перемычки наружных стен Серия СТ 02-01
  • Длина 5990 мм.
  • Ширина 400 мм.
  • Высота 585 мм.
  • Вес 2559 кг.
  • Объем бетона 1,228 м3
  • Геометрический объем 1,4017 м3
Цена: 23823 руб.
Подробнее
ПН 600-1 Б (СТ 02-01)
Перемычки наружных стен Серия СТ 02-01
  • Длина 5990 мм.
  • Ширина 400 мм.
  • Высота 585 мм.
  • Вес 1928 кг.
  • Объем бетона 1,228 м3
  • Геометрический объем 1,4017 м3
Цена: 23823 руб.
Подробнее
ПН 600-1 Б (СТ 02-01)
Перемычки наружных стен Серия СТ 02-01
  • Длина 5990 мм.
  • Ширина 380 мм.
  • Высота 585 мм.
  • Вес 2585 кг.
  • Объем бетона 1,3 м3
  • Геометрический объем 1,3316 м3
Цена: 25220 руб.
Подробнее
ПН 600-1 Б (СТ 02-01)
Перемычки наружных стен Серия СТ 02-01
  • Длина 5990 мм.
  • Ширина 380 мм.
  • Высота 585 мм.
  • Вес 2837 кг.
  • Объем бетона 1,3 м3
  • Геометрический объем 1,3316 м3
Цена: 25220 руб.
Подробнее
ПН 600-1 В (СТ 02-01)
Перемычки наружных стен Серия СТ 02-01
  • Длина 5990 мм.
  • Ширина 500 мм.
  • Высота 585 мм.
  • Вес 2974 кг.
  • Объем бетона 1,487 м3
  • Геометрический объем 1,7521 м3
Цена: 28848 руб.
Подробнее
ПН 600-1 В (СТ 02-01)
Перемычки наружных стен Серия СТ 02-01
  • Длина 5990 мм.
  • Ширина 510 мм.
  • Высота 585 мм.
  • Вес 3425 кг.
  • Объем бетона 1,73 м3
  • Геометрический объем 1,7871 м3
Цена: 33562 руб.
Подробнее
ПН 600-1 В (СТ 02-01)
Перемычки наружных стен Серия СТ 02-01
  • Длина 5990 мм.
  • Ширина 510 мм.
  • Высота 585 мм.
  • Вес 3665 кг.
  • Объем бетона 1,73 м3
  • Геометрический объем 1,7871 м3
Цена: 33562 руб.
Подробнее
ПН 600-1 В (СТ 02-01)
Перемычки наружных стен Серия СТ 02-01
  • Длина 5990 мм.
  • Ширина 500 мм.
  • Высота 585 мм.
  • Вес 3483 кг.
  • Объем бетона 1,487 м3
  • Геометрический объем 1,7521 м3
Цена: 28848 руб.
Подробнее
ПН 600-1 В (СТ 02-01)
Перемычки наружных стен Серия СТ 02-01
  • Длина 5990 мм.
  • Ширина 500 мм.
  • Высота 585 мм.
  • Вес 3313 кг.
  • Объем бетона 1,487 м3
  • Геометрический объем 1,7521 м3
Цена: 28848 руб.
Подробнее

Как правильно выбрать - Перемычки наружных стен Серия СТ 02-01

Перемычки наружных стен Серия СТ 02-01 предназначены для перекрытия проемов в наружных несущих стенах зданий. Они воспринимают нагрузку от вышележащих конструкций и обеспечивают устойчивость стеновой кладки. Применяются в кирпичных и блочных стенах жилых, гражданских и промышленных зданий. Ключевая задача – правильный подбор перемычек Серии СТ 02-01, так как их несущая способность и долговечность напрямую определяют надежность всего стенового ограждения и соответствие проектным решениям.

Критерии выбора

  • Типоразмер и несущая способность: Выбор по каталогу серии в зависимости от ширины проема и расчетной нагрузки (собственный вес кладки, перекрытий). Каждая маркировка в серии соответствует определенной длине и допустимой нагрузке.
  • Марка бетона и морозостойкость: Для наружных стен критически важна высокая морозостойкость. Изделия серии СТ 02-01 изготавливаются из тяжелого бетона марки не ниже М250-М300 с морозостойкостью F200, что обеспечивает долгий срок службы в условиях переменного замораживания и оттаивания.
  • Класс арматуры и защитный слой: Применяется напрягаемая или ненапрягаемая арматура классов Ат-IV, А-III. Защитный слой бетона должен гарантировать сохранность арматуры от коррозии, что особенно важно для элементов наружных стен.
  • Наличие монтажных петель: Обязательное наличие закладных деталей или монтажных петель для безопасной и удобной строповки. Их расположение и прочность должны соответствовать массе изделия.
  • Соответствие нормативной документации: Изделие должно строго соответствовать чертежам серии СТ 02-01 и требованиям ГОСТ 948-84 на железобетонные перемычки.

Рекомендации по подбору и монтажу

При составлении спецификации на перемычки наружных стен Серия СТ 02-01 необходимо учитывать не только статические нагрузки, но и климатические воздействия на район строительства. Обязательно запрашивайте паспорт качества на партию, где указаны фактические прочностные характеристики бетона и марка по морозостойкости. При монтаже опирание перемычек на стены должно составлять не менее 250 мм с каждой стороны. Основание под опорными концами необходимо выровнять цементно-песчаным раствором, чтобы избежать локальных смятий кладки и обеспечить равномерную передачу нагрузки. Перед монтажом проверьте целостность изделия и отсутствие трещин.

Ответы экспертов на ваши вопросы

Ответ: Серия СТ 02-01 включает несколько основных типов перемычек, таких как брусковые (ПБ), плитные (ПП) и балочные (ПГ).

  • Брусковые (ПБ) применяются для перекрытия проемов в стенах из кирпича или мелких блоков, где нагрузка от вышележащей кладки невелика.
  • Плитные (ПП) имеют большую ширину и используются, когда необходимо перекрыть проем в стене с одновременной опорой на большую площадь, часто в толстых стенах или для создания ровного основания для дальнейшей кладки.
  • Балочные (ПГ) (с полкой) применяются в ситуациях, когда перемычка должна частично выступать в качестве несущего элемента перекрытия или когда требуется опереть на нее конструкции балкона, например. Их полка позволяет удобно укладывать плиты перекрытия.

Выбор конкретного типа зависит от ширины проема, толщины стены, величины нагрузки от вышележащих конструкций и архитектурных особенностей здания.

Ответ: Несущая способность и допустимые пролеты для перемычек Серии СТ 02-01 нормируются проектной документацией и зависят от конкретной марки изделия. Как правило, в серии предусмотрены перемычки для перекрытия проемов шириной от 1200 мм до 4200 мм. Расчетная нагрузка (включая собственный вес перемычки, вес кладки над проемом и временные нагрузки) может варьироваться, но стандартные ряды рассчитаны на нагрузки от 20-30 кН/м (килоньютон на метр) и выше. Для точного определения несущей способности конкретной перемычки (например, 2ПБ-25 или 3ПП-30) необходимо обращаться к таблицам нагрузок в рабочих чертежах серии СТ 02-01 или в сопроводительной технической документации завода-изготовителя.

Ответ: Перемычки Серии СТ 02-01 изготавливаются из тяжелого бетона. Как правило, используется бетон класса по прочности на сжатие не ниже В25 (марка бетона М350). Для предварительно напряженных перемычек (которые часто применяются для больших пролетов) может использоваться бетон более высоких классов, например, В30 или В35. В качестве арматуры применяется стальная арматурная сталь классов:

  • Ат-IV или Ат-V (А-IV, А-V) — для напрягаемой арматуры.
  • А-III (А400) — для ненапрягаемой рабочей и монтажной арматуры.
  • Вр-I (В500) — для поперечной арматуры (хомуты).

Это обеспечивает необходимую прочность, трещиностойкость и долговечность изделия.

Ответ: Правильный монтаж критически важен для надежности конструкции.

  1. Подготовка опор: Поверхность кладки или бетонной подушки в местах опирания должна быть выровнена раствором.
  2. Глубина опирания: Минимальная глубина опирания перемычек на стену нормируется и обычно составляет 200 мм для проемов до 2-3 метров и 250 мм для более широких проемов. Точное значение всегда указано в проекте и таблицах серии.
  3. Установка: Перемычку укладывают на цементно-песчаный раствор марки не ниже М100. Несущая полка (если она есть у балочных перемычек) должна быть обращена вниз, в сторону опоры.
  4. Контроль: Необходимо контролировать горизонтальность уложенной перемычки с помощью уровня. Смещение перемычек относительно оси проема не допускается.
  5. Анкеровка: В некоторых случаях, особенно в сейсмических районах, перемычки анкеруются к кладке.

Ответ: Использование сборных железобетонных перемычек Серии СТ 02-01 имеет несколько ключевых преимуществ:

  1. Высокая скорость монтажа: Изделия поставляются на объект в готовом виде, что значительно ускоряет процесс возведения стен по сравнению с устройством монолитных перемычек (не нужно ждать набора прочности бетоном).
  2. Стабильное и предсказуемое качество: Перемычки изготавливаются в заводских условиях с строгим контролем технологии, состава бетона и армирования, что гарантирует их проектную прочность и долговечность.
  3. Экономическая эффективность: Снижаются трудозатраты на объекте, отсутствуют затраты на устройство и разборку опалубки.
  4. Типизация и унификация: Серия разработана для массового применения, что упрощает проектирование, заказ и поставку материалов.
  5. Надежность: Расчетные характеристики (несущая способность, прогиб, трещиностойкость) подтверждены испытаниями и многолетней практикой применения.
Ранее смотрели
Лестничные площадки Альбом РМ 2283 ЛП 2334-1 (Альбом РМ 2283)
ЛП 2334-1 (Альбом РМ 2283)
Лестничные площадки Альбом РМ 2283

Уведомление о файлах cookie

Мы используем файлы cookie для улучшения вашего опыта просмотра и анализа трафика. Нажимая "Принять все", вы соглашаетесь с нашей политикой конфиденциальности и политикой обработки файлов cookie.

Дзен Телеграм Вконтакте vk