mobile_sound +7 (930) 655-55-90

Перемычки балочные Серия Б1.038.1-1

Поделиться:
Фильтр по характеристикам
Длина (мм.)
keyboard_arrow_down
мм.
мм.
Ширина (мм.)
keyboard_arrow_down
мм.
мм.
Высота (мм.)
keyboard_arrow_down
мм.
мм.
Вес (кг.)
keyboard_arrow_down
кг.
кг.
Поделиться:

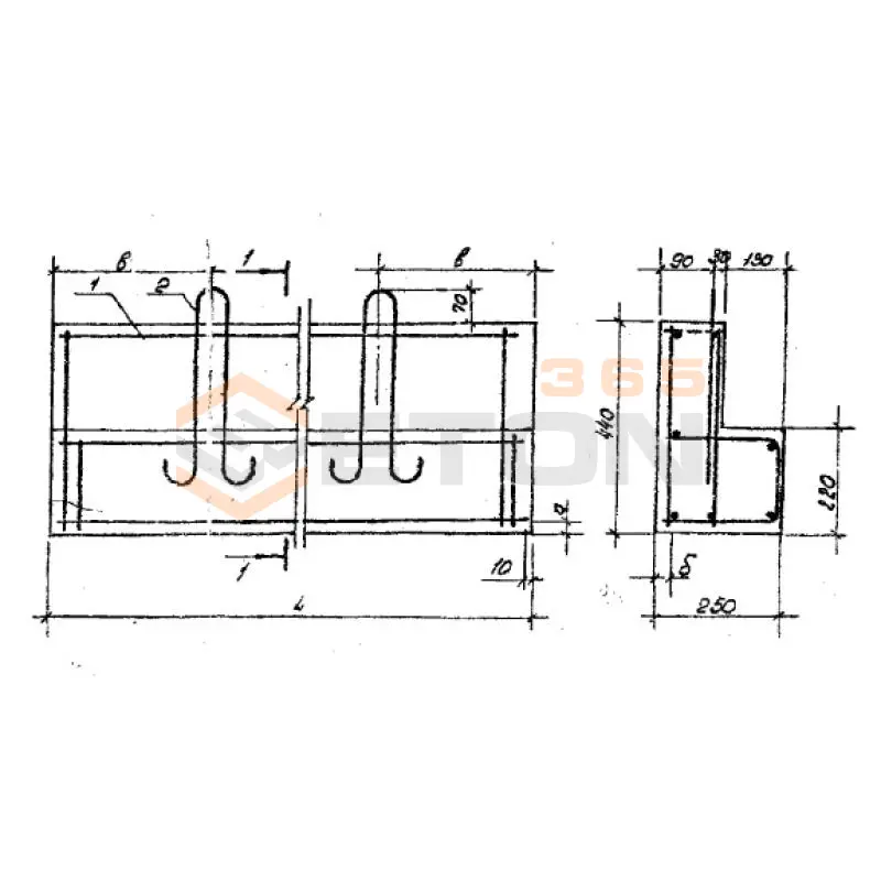
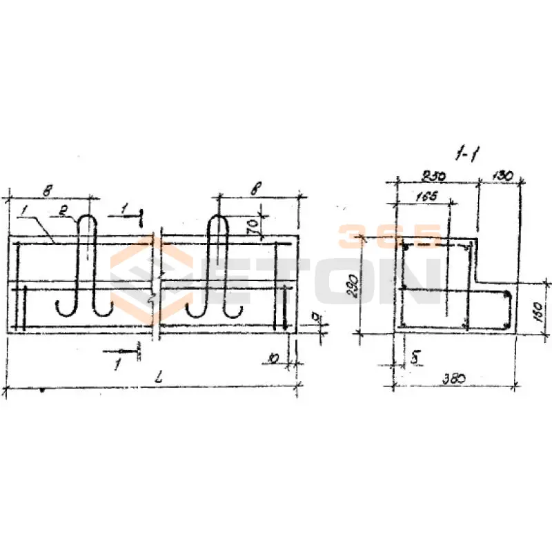
Перемычки балочные серии Б1.038.1-1 от завода "Бетон365" — это ключевой элемент для создания прочных оконных и дверных проемов в несущих стенах зданий различного назначения. Данные железобетонные изделия производятся в строгом соответствии с ГОСТ, обеспечивая высокую несущую способность, долговечность и равномерное распределение нагрузок от вышележащих конструкций. Их применение позволяет значительно ускорить темпы строительства, гарантируя при этом необходимую жесткость и надежность всей кладки.

Компания реализует перемычки балочные Б1.038.1-1 по выгодной цене от производителя в Москве и Московской области. Мы предлагаем купить качественные ЖБИ с гарантией, организовать оперативную доставку на объект и получить профессиональную консультацию по выбору продукции. Обращайтесь к нам, чтобы обеспечить ваш проект надежными и проверенными материалами!

3ПР 32-36-25-44 (Б1.038.1-1)
Перемычки балочные Серия Б1.038.1-1
  • Длина 3890 мм.
  • Ширина 250 мм.
  • Высота 440 мм.
  • Вес 792 кг.
  • Объем бетона 0,317 м3
  • Геометрический объем 0,4279 м3
Цена: 6765 руб.
Подробнее
3ПР 32-44-25-44 (Б1.038.1-1)
Перемычки балочные Серия Б1.038.1-1
  • Длина 4410 мм.
  • Ширина 250 мм.
  • Высота 440 мм.
  • Вес 897 кг.
  • Объем бетона 0,359 м3
  • Геометрический объем 0,4851 м3
Цена: 7661 руб.
Подробнее
3ПР 32-44-25-44 (Б1.038.1-1)
Перемычки балочные Серия Б1.038.1-1
  • Длина 4150 мм.
  • Ширина 250 мм.
  • Высота 440 мм.
  • Вес 845 кг.
  • Объем бетона 0,338 м3
  • Геометрический объем 0,4565 м3
Цена: 7213 руб.
Подробнее
3ПР 32-48-25-44 (Б1.038.1-1)
Перемычки балочные Серия Б1.038.1-1
  • Длина 4800 мм.
  • Ширина 250 мм.
  • Высота 440 мм.
  • Вес 917 кг.
  • Объем бетона 0,391 м3
  • Геометрический объем 0,528 м3
Цена: 8344 руб.
Подробнее
3ПР 32-59-38-44 (Б1.038.1-1)
Перемычки балочные Серия Б1.038.1-1
  • Длина 5960 мм.
  • Ширина 380 мм.
  • Высота 440 мм.
  • Вес 2065 кг.
  • Объем бетона 0,826 м3
  • Геометрический объем 0,9965 м3
Цена: 17627 руб.
Подробнее
3ПР 41-12-28-29 (Б1.038.1-1)
Перемычки балочные Серия Б1.038.1-1
  • Длина 1290 мм.
  • Ширина 380 мм.
  • Высота 290 мм.
  • Вес 295 кг.
  • Объем бетона 0,12 м3
  • Геометрический объем 0,1422 м3
Цена: 2561 руб.
Подробнее
3ПР 41-23-38-29 (Б1.038.1-1)
Перемычки балочные Серия Б1.038.1-1
  • Длина 2330 мм.
  • Ширина 380 мм.
  • Высота 290 мм.
  • Вес 535 кг.
  • Объем бетона 0,21 м3
  • Геометрический объем 0,2568 м3
Цена: 4481 руб.
Подробнее
3ПР 41-15-38-29 (Б1.038.1-1)
Перемычки балочные Серия Б1.038.1-1
  • Длина 1550 мм.
  • Ширина 380 мм.
  • Высота 290 мм.
  • Вес 357 кг.
  • Объем бетона 0,143 м3
  • Геометрический объем 0,1708 м3
Цена: 3052 руб.
Подробнее
3ПР 41-32-38-29 (Б1.038.1-1)
Перемычки балочные Серия Б1.038.1-1
  • Длина 3240 мм.
  • Ширина 380 мм.
  • Высота 290 мм.
  • Вес 820 кг.
  • Объем бетона 0,33 м3
  • Геометрический объем 0,357 м3
Цена: 7042 руб.
Подробнее
3ПР 41-25-38-29 (Б1.038.1-1)
Перемычки балочные Серия Б1.038.1-1
  • Длина 2590 мм.
  • Ширина 380 мм.
  • Высота 290 мм.
  • Вес 596 кг.
  • Объем бетона 0,238 м3
  • Геометрический объем 0,2854 м3
Цена: 5079 руб.
Подробнее
3ПР 41-29-38-29 (Б1.038.1-1)
Перемычки балочные Серия Б1.038.1-1
  • Длина 2990 мм.
  • Ширина 380 мм.
  • Высота 290 мм.
  • Вес 753 кг.
  • Объем бетона 0,301 м3
  • Геометрический объем 0,3295 м3
Цена: 6423 руб.
Подробнее
3ПР 41-59-51-44 (Б1.038.1-1)
Перемычки балочные Серия Б1.038.1-1
  • Длина 5960 мм.
  • Ширина 510 мм.
  • Высота 440 мм.
  • Вес 2917 кг.
  • Объем бетона 1,167 м3
  • Геометрический объем 1,3374 м3
Цена: 24904 руб.
Подробнее
3ПР 8-44-25-29 (Б1.038.1-1)
Перемычки балочные Серия Б1.038.1-1
  • Длина 4410 мм.
  • Ширина 250 мм.
  • Высота 290 мм.
  • Вес 484 кг.
  • Объем бетона 0,194 м3
  • Геометрический объем 0,3197 м3
Цена: 4140 руб.
Подробнее
3ПР 8-48-25-29 (Б1.038.1-1)
Перемычки балочные Серия Б1.038.1-1
  • Длина 4800 мм.
  • Ширина 250 мм.
  • Высота 290 мм.
  • Вес 527 кг.
  • Объем бетона 0,211 м3
  • Геометрический объем 0,348 м3
Цена: 4503 руб.
Подробнее
3ПР 41-44-38-44 (Б1.038.1-1)
Перемычки балочные Серия Б1.038.1-1
  • Длина 4410 мм.
  • Ширина 380 мм.
  • Высота 440 мм.
  • Вес 1528 кг.
  • Объем бетона 0,611 м3
  • Геометрический объем 0,7374 м3
Цена: 13039 руб.
Подробнее

Как правильно выбрать - Перемычки балочные Серия Б1.038.1-1

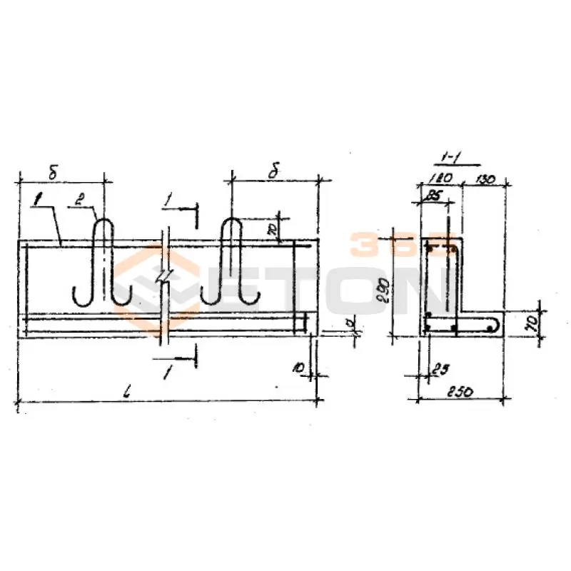
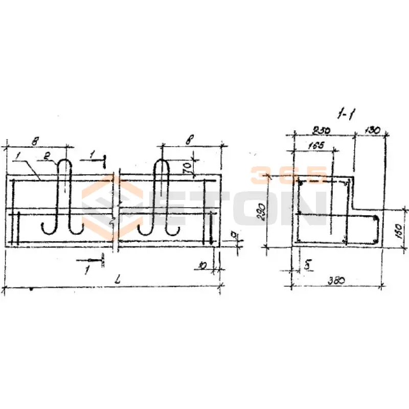
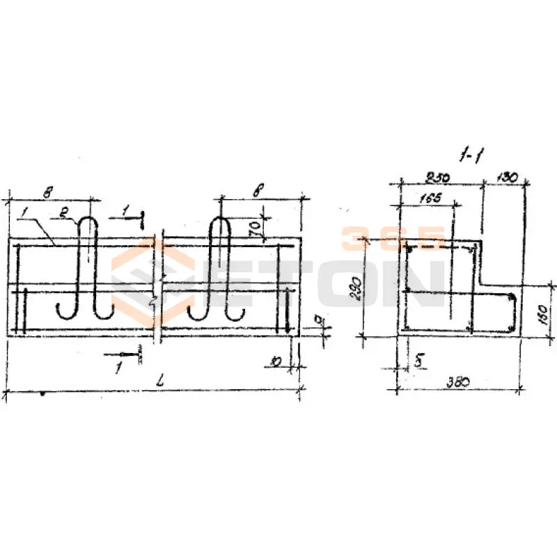
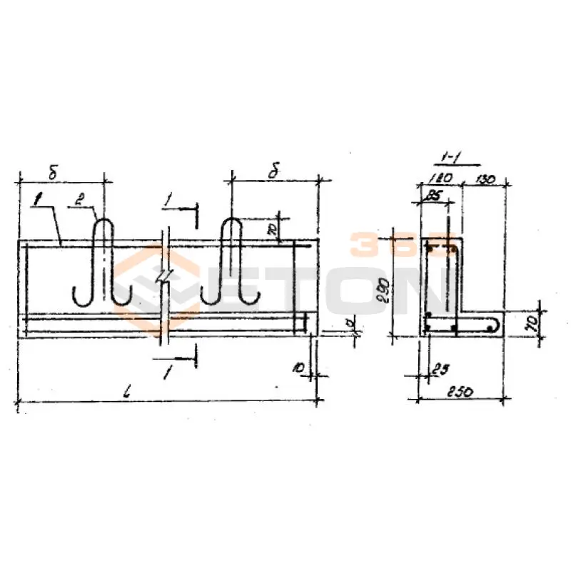
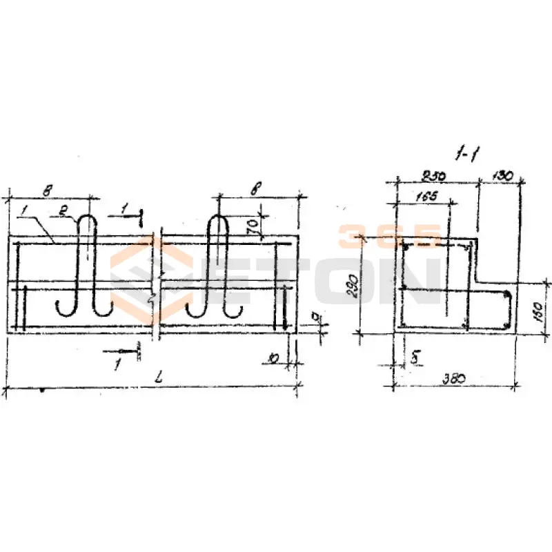
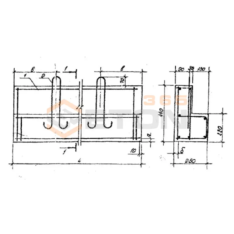
Перемычки балочные Серия Б1.038.1-1 предназначены для перекрытия проемов в стенах из кирпича и мелких блоков в зданиях различного назначения. Они воспринимают нагрузку от вышележащей кладки и передают ее на простенки, обеспечивая жесткость и устойчивость конструкции. Долговечность и безопасность всей стены напрямую зависят от грамотного подбора перемычек балочных по серии Б1.038.1-1 в соответствии с проектными расчетами.

Критерии выбора

  • Типоразмер и несущая способность: Определите требуемую длину и ширину изделия, а также расчетную нагрузку, которую должна выдерживать перемычка. Серия Б1.038.1-1 включает изделия с разными габаритами и несущей способностью.
  • Марка бетона и армирование: Убедитесь, что перемычки изготовлены из тяжелого бетона марки не ниже М250, с классом арматуры А-III (А400). Это гарантирует необходимую прочность на изгиб и сжатие.
  • Морозостойкость и водонепроницаемость: Для большинства регионов достаточно показателей F50 и W2, но для объектов с агрессивной средой или наружных стен требуются более высокие значения.
  • Наличие монтажных петель: Проверьте наличие и соответствие закладных деталей (петель) для безопасного и удобного строповки и монтажа перемычек балочных.
  • Соответствие нормам: Изделие должно строго соответствовать чертежам серии Б1.038.1-1 и требованиям ГОСТ 948-84 на железобетонные перемычки.

Рекомендации по подбору и монтажу

При составлении спецификации на перемычки балочные Серия Б1.038.1-1 обязательно учитывайте не только статическую нагрузку от стены, но и возможные динамические воздействия (например, от вибрации). Требуйте у поставщика паспорт качества на каждую партию, где указаны фактические прочностные характеристики бетона. Обращайте внимание на комплектность – для широких проемов может потребоваться установка нескольких перемычек балочных Б1.038.1-1 рядом.

Перед монтажом подготовьте опорную площадку: ее ширина должна быть не менее 200 мм, а поверхность – выровнена по горизонтали. Минимальная глубина опирания – 250 мм с каждой стороны. Убедитесь, что под перемычкой нет пустот, а после установки выполните монолитные участки по бокам для надежного защемления. Не допускайте монтажа изделий с видимыми трещинами или сколами бетона в растянутой зоне.

Ответы экспертов на ваши вопросы

Перемычка балочная серии Б1.038.1-1 — это железобетонное изделие, предназначенное для перекрытия проемов (оконных, дверных) в стенах зданий. Она работает как балка, воспринимая нагрузку от вышележащих конструкций (стен, перекрытий) и передавая ее на простенки. Основное применение — в кирпичных и каменных стенах гражданских и промышленных зданий. Серия Б1.038.1-1 является стандартизированной и регламентирует типоразмеры, армирование и несущую способность этих изделий.

Основные характеристики регламентированы серией:

  • Маркировка: Пример: 2ПБ-13-1п. Расшифровка: "2" — порядковый номер сечения по серии, "ПБ" — перемычка брусковая, "13" — длина в дециметрах (1300 мм), "1п" — несущая способность (для конкретной нагрузки, указанной в таблицах серии).
  • Размеры: Ширина варьируется (часто 120, 250 мм), высота — 65 мм (для брусковых ПБ) или 140 мм (для плитных ПП), длина — от 1000 мм до 6000 мм с определенным шагом.
  • Несущая способность: Зависит от марки (индекса "п") и длины. Определяется по нагрузочным таблицам в альбоме серии. Например, перемычка 2ПБ-10-1п может выдерживать расчетную нагрузку в несколько тонн на погонный метр. Точные значения необходимо смотреть в рабочих чертежах серии Б1.038.1-1.

Выбор:

  1. Определить ширину и толщину стены, в которой находится проем.
  2. Рассчитать суммарную нагрузку на перемычку (вес кладки над проемом, нагрузка от перекрытия, если оно опирается на стену).
  3. По таблицам несущей способности серии Б1.038.1-1 подобрать марку и длину перемычки, чтобы ее расчетная нагрузка была больше или равна фактической. Длина перемычки должна быть минимум на 500 мм (по 250 мм с каждой стороны) больше ширины проема для обеспечения надежной опоры.

Установка (монтаж):

  1. Подготовить опорные площадки (простенки). Они должны быть ровными и прочными.
  2. Уложить перемычку на свежий кладочный раствор слоем не менее 15-20 мм.
  3. Глубина опирания на стену должна быть не менее 250 мм с каждой стороны.
  4. Проверить горизонтальность укладки по уровню.
  5. Не допускается опирание перемычек на слабые или пустотелые материалы без дополнительного усиления (например, армированного пояса).

В серии Б1.038.1-1 существуют два основных типа профиля:

  • ПБ (Перемычка Брусковая): Имеют квадратное или близкое к нему сечение (например, ширина 120-250 мм, высота 65 мм). Применяются principalmente для ненагруженных проемов (когда сверху нет плит перекрытия) или в случаях, когда высота конструкций ограничена.
  • ПП (Перемычка Плитная): Имеют значительно большую ширину при относительно небольшой высоте (например, высота 140 мм, ширина может доходить до 1190 мм). Они предназначены для восприятия значительных нагрузок, часто используются, когда на стену опираются плиты перекрытия, так как их ширина позволяет перекрыть всю толщину стены.

Выбор между ПБ и ПП зависит от величины нагрузки и конструктивной схемы стены.

Использование стандартизированной серии Б1.038.1-1 дает несколько ключевых преимуществ:

  1. Стандартизация и унификация: Упрощает проектирование и подбор элементов, так как все параметры (размеры, армирование, несущая способность) заранее известны и регламентированы.
  2. Качество и надежность: Изделия изготавливаются в заводских условиях с строгим контролем качества бетона и арматуры, что гарантирует их прочность и долговечность.
  3. Экономическая эффективность: Серийное производство снижает себестоимость изделий. Упрощение монтажа и расчетов также сокращает трудозатраты и сроки строительства.
  4. Наличие и доступность: Типовые перемычки широко представлены на складах ЖБИ, их легко приобрести без длительного ожидания изготовления на заказ.
  5. Нормативное соответствие: Серия разработана в соответствии с действующими строительными нормами и правилами (СНиП, СП), что обеспечивает безопасность конструкции.

Уведомление о файлах cookie

Мы используем файлы cookie для улучшения вашего опыта просмотра и анализа трафика. Нажимая "Принять все", вы соглашаетесь с нашей политикой конфиденциальности и политикой обработки файлов cookie.

MAX Дзен Телеграм Вконтакте vk