mobile_sound +7 (930) 655-55-90

Стенки разделительные Серия 1.100.1-7

Поделиться:
Фильтр по характеристикам
Длина (мм.)
keyboard_arrow_down
мм.
мм.
Ширина (мм.)
keyboard_arrow_down
мм.
мм.
Высота (мм.)
keyboard_arrow_down
мм.
мм.
Вес (кг.)
keyboard_arrow_down
кг.
кг.
Поделиться:

Завод "Бетон365" производит стенки разделительные серии 1.100.1-7 — специализированные железобетонные конструкции для эффективного зонирования пространства в промышленных и гражданских объектах. Эти изделия соответствуют строгим требованиям ГОСТ и характеризуются повышенной прочностью, что обеспечивает надежное разделение помещений различного назначения. Применение готовых стенок значительно оптимизирует строительный процесс, создавая жесткие несущие элементы, которые равномерно распределяют нагрузку и повышают общую устойчивость здания.

В Москве и Московской области мы реализуем стенки разделительные серии 1.100.1-7 по конкурентоспособной цене напрямую от производителя. Гарантируем качество продукции, оперативную доставку на объект и профессиональные консультации по монтажу. Чтобы купить надежные железобетонные изделия с оптимальным соотношением стоимости и долговечности, обращайтесь к специалистам "Бетон365" для оформления заказа.

ПГЧ 29-16-10
Стенки разделительные Серия 1.100.1-7
  • Длина 2930 мм.
  • Ширина 1590 мм.
  • Высота 100 мм.
  • Вес 1320 кг.
  • Объем бетона 0,466 м3
  • Геометрический объем 0,4659 м3
Цена: 22601 руб.
Подробнее
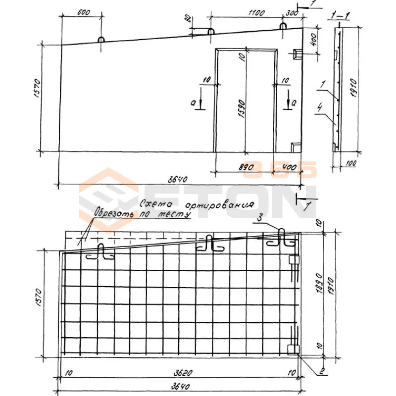
ПГЧ 36-19-10
Стенки разделительные Серия 1.100.1-7
  • Длина 3640 мм.
  • Ширина 1910 мм.
  • Высота 100 мм.
  • Вес 1500 кг.
  • Объем бетона 0,53 м3
  • Геометрический объем 0,6952 м3
Цена: 25705 руб.
Подробнее
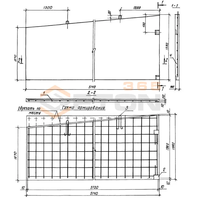
ПГЧ 51-20-10
Стенки разделительные Серия 1.100.1-7
  • Длина 5140 мм.
  • Ширина 1980 мм.
  • Высота 100 мм.
  • Вес 2600 кг.
  • Объем бетона 0,92 м3
  • Геометрический объем 1,0177 м3
Цена: 44620 руб.
Подробнее
ПГЧ 43-19-10
Стенки разделительные Серия 1.100.1-7
  • Длина 4300 мм.
  • Ширина 1940 мм.
  • Высота 100 мм.
  • Вес 1650 кг.
  • Объем бетона 0,66 м3
  • Геометрический объем 0,8342 м3
Цена: 32010 руб.
Подробнее
ПГЧ 44-19-10
Стенки разделительные Серия 1.100.1-7
  • Длина 4390 мм.
  • Ширина 1940 мм.
  • Высота 100 мм.
  • Вес 1850 кг.
  • Объем бетона 0,77 м3
  • Геометрический объем 0,8517 м3
Цена: 37345 руб.
Подробнее

Как правильно выбрать - Стенки разделительные Серия 1.100.1-7

Стенки разделительные Серия 1.100.1-7 применяются для устройства подземных и наземных резервуаров, отстойников, технологических емкостей на промышленных объектах. Их ключевая функция – создание герметичных перегородок, разделяющих технологические зоны. Долговечность и надежность всей конструкции определяются точным соответствием характеристик стенок разделительных Серии 1.100.1-7 проектным нагрузкам и агрессивности среды эксплуатации.

Критерии выбора

  • Марка бетона и защитные свойства: Изделия изготавливаются из тяжелого бетона марки не ниже М300. Обращайте внимание на показатели водонепроницаемости (W6-W8) и морозостойкости (F150-F200), критичные для работы в условиях переменного уровня грунтовых вод.
  • Класс арматуры и армирование: Применяется напрягаемая и ненапрягаемая арматура классов Ат-IV, А-III. Проверяйте чертежи на соответствие проектным нагрузкам на сжатие и изгиб от давления грунта и продукта.
  • Геометрия и конфигурация: Стенки разделительные данной серии имеют строго регламентированные типоразмеры по высоте, длине и толщине. Уточняйте наличие и расположение монтажных петель, закладных деталей для стыковки со смежными элементами (днищами, перекрытиями).
  • Условия эксплуатации: Определите категорию агрессивности среды (химически агрессивные воды, нефтепродукты) для выбора возможных дополнительных мер защиты поверхности бетона.
  • Соответствие нормам: Все изделия должны соответствовать рабочим чертежам серии 1.100.1-7 и ГОСТ 13015-2012, иметь паспорт качества с указанием фактических прочностных характеристик бетона.

Рекомендации по подбору и монтажу

При составлении спецификации на стенки разделительные Серии 1.100.1-7 обязательно указывайте не только типоразмер, но и марку по водонепроницаемости и морозостойкости. Запросите у производителя паспорта на партию, обращая внимание на дату изготовления и отпускную прочность бетона. Для монтажа критически важна подготовка основания – оно должно быть выведено в проектную отметку и уплотнено. Стыки между стенками, а также примыкания к днищам требуют тщательной герметизации проектными материалами (например, уплотнительными прокладками и герметиками), что является залогом общей герметичности резервуара.

Ответы экспертов на ваши вопросы

Стенки разделительные по серии 1.100.1-7 предназначены для разделения смежных железнодорожных путей на станциях, депо и других объектах железнодорожного транспорта. Они применяются для обеспечения безопасности движения, предотвращения несанкционированного перехода через пути, а также для организации технологических зон. Основная область применения - объекты железнодорожной инфраструктуры, где требуется физическое разделение путей.

Стенки разделительные изготавливаются из тяжелого бетона классов по прочности на сжатие В25-В30. Армирование выполняется стальной арматурой классов А-I, А-III. Изделия имеют высокую морозостойкость (не ниже F150), водонепроницаемость (W6) и коррозионную стойкость. Типовые размеры: высота от 1800 до 2400 мм, длина 2000-3000 мм, толщина 120-160 мм. Масса одного элемента составляет от 1,5 до 3,5 тонн.

В серии 1.100.1-7 предусмотрено несколько типов стенок: СР - стенки разделительные рядовые; СРУ - стенки разделительные угловые; СРП - стенки разделительные поворотные; СРПР - стенки разделительные примыкания рядовые. Отличия заключаются в конфигурации и назначении: рядовые используются на прямых участках, угловые и поворотные - на криволинейных, а стенки примыкания - в местах соединения с другими конструкциями.

Монтаж осуществляется на подготовленные фундаменты из монолитного бетона класса В15. Фундаменты должны быть запроектированы с учетом грунтовых условий и нагрузок. Стенки устанавливаются с помощью грузоподъемных механизмов грузоподъемностью не менее 5 тонн. Стыки между элементами заполняются цементно-песчаным раствором. Обязательно соблюдение требований по выверке положения стенок и контролю вертикальности.

Производство и применение стенок разделительных серии 1.100.1-7 регламентируется следующими основными документами: серия 1.100.1-7 "Стенки разделительные железобетонные"; ГОСТ 13015-2012 "Изделия бетонные и железобетонные для строительства"; СП 63.13330.2018 "Бетонные и железобетонные конструкции"; отраслевыми стандартами железнодорожного транспорта, а также проектной документацией на конкретный объект.

Ранее смотрели
Плиты ребристые ГОСТ 27215-87 2П 1-6 АтVскт п (ГОСТ 27215-87)
2П 1-6 АтVскт п (ГОСТ 27215-87)
Плиты ребристые ГОСТ 27215-87

Уведомление о файлах cookie

Мы используем файлы cookie для улучшения вашего опыта просмотра и анализа трафика. Нажимая "Принять все", вы соглашаетесь с нашей политикой конфиденциальности и политикой обработки файлов cookie.

MAX Дзен Телеграм Вконтакте vk