mobile_sound +7 (930) 655-55-90

Панели стеновые трехслойные Серия 1.020-1

Поделиться:
Фильтр по характеристикам
Длина (мм.)
keyboard_arrow_down
мм.
мм.
Ширина (мм.)
keyboard_arrow_down
мм.
мм.
Высота (мм.)
keyboard_arrow_down
мм.
мм.
Вес (кг.)
keyboard_arrow_down
кг.
кг.
Поделиться:

Завод "Бетон365" производит панели стеновые трехслойные серии 1.020-1 – современное решение для быстрого возведения энергоэффективных зданий различного назначения. Эти железобетонные конструкции сочетают несущую способность, теплоизоляционные свойства и долговечность, соответствуя строгим требованиям ГОСТ. Применение готовых трехслойных панелей позволяет оптимизировать сроки строительства, обеспечивая при этом высокую пространственную жесткость сооружения и равномерное распределение нагрузок.

В Москве и Московской области мы реализуем панели стеновые трехслойные серии 1.020-1 по конкурентной цене от производителя. Гарантируем соответствие продукции заявленным характеристикам и организуем доставку на объект в кратчайшие сроки. Чтобы купить качественные ЖБИ с оптимальным соотношением стоимости и надежности, обращайтесь к специалистам "Бетон365" для консультации и оформления заказа.

1ПС 30-12-2,5 тэ (1.020-1)
Панели стеновые трехслойные Серия 1.020-1
  • Длина 2980 мм.
  • Ширина 250 мм.
  • Высота 1185 мм.
  • Вес 1290 кг.
  • Объем бетона 0,494 м3
  • Геометрический объем 0,8828 м3
Цена: 19167 руб.
Подробнее
1ПС 30-12-3,0 тэ (1.020-1)
Панели стеновые трехслойные Серия 1.020-1
  • Длина 2980 мм.
  • Ширина 300 мм.
  • Высота 1185 мм.
  • Вес 1320 кг.
  • Объем бетона 0,494 м3
  • Геометрический объем 1,0594 м3
Цена: 19167 руб.
Подробнее
1ПС 30-13-2,5 тэ (1.020-1)
Панели стеновые трехслойные Серия 1.020-1
  • Длина 2980 мм.
  • Ширина 250 мм.
  • Высота 1285 мм.
  • Вес 1400 кг.
  • Объем бетона 0,536 м3
  • Геометрический объем 0,9573 м3
Цена: 20797 руб.
Подробнее
1ПС 30-15-2,5 тэ (1.020-1)
Панели стеновые трехслойные Серия 1.020-1
  • Длина 2980 мм.
  • Ширина 250 мм.
  • Высота 1485 мм.
  • Вес 1620 кг.
  • Объем бетона 0,648 м3
  • Геометрический объем 1,1063 м3
Цена: 25142 руб.
Подробнее
1ПС 30-13-3,0 тэ (1.020-1)
Панели стеновые трехслойные Серия 1.020-1
  • Длина 2980 мм.
  • Ширина 300 мм.
  • Высота 1285 мм.
  • Вес 1400 кг.
  • Объем бетона 0,536 м3
  • Геометрический объем 1,1488 м3
Цена: 20797 руб.
Подробнее
1ПС 30-15-2,5 тэ-1 (1.020-1)
Панели стеновые трехслойные Серия 1.020-1
  • Длина 2980 мм.
  • Ширина 250 мм.
  • Высота 1485 мм.
  • Вес 1620 кг.
  • Объем бетона 0,648 м3
  • Геометрический объем 1,1063 м3
Цена: 25142 руб.
Подробнее
1ПС 30-15-3,0 тэ (1.020-1)
Панели стеновые трехслойные Серия 1.020-1
  • Длина 2980 мм.
  • Ширина 300 мм.
  • Высота 1485 мм.
  • Вес 1660 кг.
  • Объем бетона 0,664 м3
  • Геометрический объем 1,3276 м3
Цена: 25763 руб.
Подробнее
1ПС 30-15-3,0 тэ-1 (1.020-1)
Панели стеновые трехслойные Серия 1.020-1
  • Длина 2980 мм.
  • Ширина 300 мм.
  • Высота 1485 мм.
  • Вес 1660 кг.
  • Объем бетона 0,664 м3
  • Геометрический объем 1,3276 м3
Цена: 25763 руб.
Подробнее
1ПС 30-18-2,5 тэ (1.020-1)
Панели стеновые трехслойные Серия 1.020-1
  • Длина 2980 мм.
  • Ширина 250 мм.
  • Высота 1785 мм.
  • Вес 1950 кг.
  • Объем бетона 0,78 м3
  • Геометрический объем 1,3298 м3
Цена: 30264 руб.
Подробнее
1ПС 30-18-3,0 тэ (1.020-1)
Панели стеновые трехслойные Серия 1.020-1
  • Длина 2980 мм.
  • Ширина 300 мм.
  • Высота 1785 мм.
  • Вес 1990 кг.
  • Объем бетона 0,796 м3
  • Геометрический объем 1,5958 м3
Цена: 30885 руб.
Подробнее
1ПС 30-18-3,0 тэ-1 (1.020-1)
Панели стеновые трехслойные Серия 1.020-1
  • Длина 2980 мм.
  • Ширина 300 мм.
  • Высота 1785 мм.
  • Вес 1990 кг.
  • Объем бетона 0,796 м3
  • Геометрический объем 1,5958 м3
Цена: 30885 руб.
Подробнее
1ПС 30-21-2,5 тэ (1.020-1)
Панели стеновые трехслойные Серия 1.020-1
  • Длина 2980 мм.
  • Ширина 250 мм.
  • Высота 2085 мм.
  • Вес 2280 кг.
  • Объем бетона 0,87 м3
  • Геометрический объем 1,5533 м3
Цена: 33756 руб.
Подробнее
1ПС 30-21-3,0 тэ (1.020-1)
Панели стеновые трехслойные Серия 1.020-1
  • Длина 2980 мм.
  • Ширина 300 мм.
  • Высота 2085 мм.
  • Вес 2320 кг.
  • Объем бетона 0,87 м3
  • Геометрический объем 1,864 м3
Цена: 33756 руб.
Подробнее
1ПС 30-18-2,5 тэ-1 (1.020-1)
Панели стеновые трехслойные Серия 1.020-1
  • Длина 2980 мм.
  • Ширина 250 мм.
  • Высота 1785 мм.
  • Вес 1950 кг.
  • Объем бетона 0,78 м3
  • Геометрический объем 1,3298 м3
Цена: 30264 руб.
Подробнее
1ПС 30-6-3,0 тэ (1.020-1)
Панели стеновые трехслойные Серия 1.020-1
  • Длина 2980 мм.
  • Ширина 300 мм.
  • Высота 585 мм.
  • Вес 650 кг.
  • Объем бетона 0,244 м3
  • Геометрический объем 0,523 м3
Цена: 9467 руб.
Подробнее
1ПС 30-9-2,5 тэ (1.020-1)
Панели стеновые трехслойные Серия 1.020-1
  • Длина 2980 мм.
  • Ширина 250 мм.
  • Высота 885 мм.
  • Вес 970 кг.
  • Объем бетона 0,369 м3
  • Геометрический объем 0,6593 м3
Цена: 14317 руб.
Подробнее
1ПС 30-6-2,5 тэ (1.020-1)
Панели стеновые трехслойные Серия 1.020-1
  • Длина 2980 мм.
  • Ширина 250 мм.
  • Высота 585 мм.
  • Вес 640 кг.
  • Объем бетона 0,244 м3
  • Геометрический объем 0,4358 м3
Цена: 9467 руб.
Подробнее
1ПС 45-12-2,5 тэ (1.020-1)
Панели стеновые трехслойные Серия 1.020-1
  • Длина 4480 мм.
  • Ширина 250 мм.
  • Высота 1185 мм.
  • Вес 1950 кг.
  • Объем бетона 0,743 м3
  • Геометрический объем 1,3272 м3
Цена: 28828 руб.
Подробнее
1ПС 45-12-3,0 тэ (1.020-1)
Панели стеновые трехслойные Серия 1.020-1
  • Длина 4480 мм.
  • Ширина 300 мм.
  • Высота 1185 мм.
  • Вес 1990 кг.
  • Объем бетона 0,743 м3
  • Геометрический объем 1,5926 м3
Цена: 28828 руб.
Подробнее
1ПС 45-13-2,5 тэ (1.020-1)
Панели стеновые трехслойные Серия 1.020-1
  • Длина 4480 мм.
  • Ширина 250 мм.
  • Высота 1285 мм.
  • Вес 2110 кг.
  • Объем бетона 0,806 м3
  • Геометрический объем 1,4392 м3
Цена: 31273 руб.
Подробнее
1ПС 30-9-3,0 тэ (1.020-1)
Панели стеновые трехслойные Серия 1.020-1
  • Длина 2980 мм.
  • Ширина 300 мм.
  • Высота 885 мм.
  • Вес 990 кг.
  • Объем бетона 0,369 м3
  • Геометрический объем 0,7912 м3
Цена: 14317 руб.
Подробнее
1ПС 45-15-2,5 тэ (1.020-1)
Панели стеновые трехслойные Серия 1.020-1
  • Длина 4480 мм.
  • Ширина 250 мм.
  • Высота 1485 мм.
  • Вес 2440 кг.
  • Объем бетона 0,976 м3
  • Геометрический объем 1,6632 м3
Цена: 37869 руб.
Подробнее
1ПС 45-13-3,0 тэ (1.020-1)
Панели стеновые трехслойные Серия 1.020-1
  • Длина 4480 мм.
  • Ширина 300 мм.
  • Высота 1285 мм.
  • Вес 2150 кг.
  • Объем бетона 0,806 м3
  • Геометрический объем 1,727 м3
Цена: 31273 руб.
Подробнее
1ПС 45-15-2,5 тэ-1 (1.020-1)
Панели стеновые трехслойные Серия 1.020-1
  • Длина 4480 мм.
  • Ширина 250 мм.
  • Высота 1485 мм.
  • Вес 2440 кг.
  • Объем бетона 0,976 м3
  • Геометрический объем 1,6632 м3
Цена: 37869 руб.
Подробнее
1ПС 45-15-3,0 тэ (1.020-1)
Панели стеновые трехслойные Серия 1.020-1
  • Длина 4480 мм.
  • Ширина 300 мм.
  • Высота 1485 мм.
  • Вес 2490 кг.
  • Объем бетона 0,996 м3
  • Геометрический объем 1,9958 м3
Цена: 38645 руб.
Подробнее
1ПС 45-15-3,0 тэ-1 (1.020-1)
Панели стеновые трехслойные Серия 1.020-1
  • Длина 4480 мм.
  • Ширина 300 мм.
  • Высота 1485 мм.
  • Вес 2490 кг.
  • Объем бетона 0,996 м3
  • Геометрический объем 1,9958 м3
Цена: 38645 руб.
Подробнее
1ПС 45-18-3,0 тэ (1.020-1)
Панели стеновые трехслойные Серия 1.020-1
  • Длина 4480 мм.
  • Ширина 300 мм.
  • Высота 1785 мм.
  • Вес 2990 кг.
  • Объем бетона 1,12 м3
  • Геометрический объем 2,399 м3
Цена: 43456 руб.
Подробнее
1ПС 45-18-2,5 тэ (1.020-1)
Панели стеновые трехслойные Серия 1.020-1
  • Длина 4480 мм.
  • Ширина 250 мм.
  • Высота 1785 мм.
  • Вес 2930 кг.
  • Объем бетона 1,12 м3
  • Геометрический объем 1,9992 м3
Цена: 43456 руб.
Подробнее
1ПС 45-21-3,0 тэ (1.020-1)
Панели стеновые трехслойные Серия 1.020-1
  • Длина 4480 мм.
  • Ширина 300 мм.
  • Высота 2085 мм.
  • Вес 3490 кг.
  • Объем бетона 1,308 м3
  • Геометрический объем 2,8022 м3
Цена: 50750 руб.
Подробнее
1ПС 45-6-2,5 тэ (1.020-1)
Панели стеновые трехслойные Серия 1.020-1
  • Длина 4480 мм.
  • Ширина 250 мм.
  • Высота 585 мм.
  • Вес 960 кг.
  • Объем бетона 0,367 м3
  • Геометрический объем 0,6552 м3
Цена: 14240 руб.
Подробнее
1ПС 45-21-2,5 тэ (1.020-1)
Панели стеновые трехслойные Серия 1.020-1
  • Длина 4480 мм.
  • Ширина 250 мм.
  • Высота 2085 мм.
  • Вес 3420 кг.
  • Объем бетона 1,308 м3
  • Геометрический объем 2,3352 м3
Цена: 50750 руб.
Подробнее
1ПС 45-6-3,0 тэ (1.020-1)
Панели стеновые трехслойные Серия 1.020-1
  • Длина 4480 мм.
  • Ширина 300 мм.
  • Высота 585 мм.
  • Вес 980 кг.
  • Объем бетона 0,367 м3
  • Геометрический объем 0,7862 м3
Цена: 14240 руб.
Подробнее
1ПС 45-9-2,5 тэ (1.020-1)
Панели стеновые трехслойные Серия 1.020-1
  • Длина 4480 мм.
  • Ширина 250 мм.
  • Высота 885 мм.
  • Вес 1450 кг.
  • Объем бетона 0,555 м3
  • Геометрический объем 0,9912 м3
Цена: 21534 руб.
Подробнее
1ПС 45-9-3,0 тэ (1.020-1)
Панели стеновые трехслойные Серия 1.020-1
  • Длина 4480 мм.
  • Ширина 300 мм.
  • Высота 885 мм.
  • Вес 1480 кг.
  • Объем бетона 0,555 м3
  • Геометрический объем 1,1894 м3
Цена: 21534 руб.
Подробнее
1ПС 60-12-2,5 тэ (1.020-1)
Панели стеновые трехслойные Серия 1.020-1
  • Длина 5980 мм.
  • Ширина 250 мм.
  • Высота 1185 мм.
  • Вес 2600 кг.
  • Объем бетона 0,992 м3
  • Геометрический объем 1,7716 м3
Цена: 38490 руб.
Подробнее
1ПС 60-12-3,0 тэ (1.020-1)
Панели стеновые трехслойные Серия 1.020-1
  • Длина 5980 мм.
  • Ширина 300 мм.
  • Высота 1185 мм.
  • Вес 2650 кг.
  • Объем бетона 0,992 м3
  • Геометрический объем 2,1259 м3
Цена: 38490 руб.
Подробнее
1ПС 60-12-3,0 тэа (1.020-1)
Панели стеновые трехслойные Серия 1.020-1
  • Длина 5980 мм.
  • Ширина 300 мм.
  • Высота 1185 мм.
  • Вес 2650 кг.
  • Объем бетона 0,992 м3
  • Геометрический объем 2,1259 м3
Цена: 38490 руб.
Подробнее
1ПС 60-13-2,5 тэ (1.020-1)
Панели стеновые трехслойные Серия 1.020-1
  • Длина 5980 мм.
  • Ширина 250 мм.
  • Высота 1285 мм.
  • Вес 2820 кг.
  • Объем бетона 1,076 м3
  • Геометрический объем 1,9211 м3
Цена: 41749 руб.
Подробнее
1ПС 60-13-2,5 тэа (1.020-1)
Панели стеновые трехслойные Серия 1.020-1
  • Длина 5980 мм.
  • Ширина 250 мм.
  • Высота 1285 мм.
  • Вес 2820 кг.
  • Объем бетона 1,076 м3
  • Геометрический объем 1,9211 м3
Цена: 41749 руб.
Подробнее
1ПС 60-15-2,5 тэ (1.020-1)
Панели стеновые трехслойные Серия 1.020-1
  • Длина 5980 мм.
  • Ширина 250 мм.
  • Высота 1485 мм.
  • Вес 3250 кг.
  • Объем бетона 1,3 м3
  • Геометрический объем 2,2201 м3
Цена: 50440 руб.
Подробнее
1ПС 60-13-3,0 тэа (1.020-1)
Панели стеновые трехслойные Серия 1.020-1
  • Длина 5980 мм.
  • Ширина 300 мм.
  • Высота 1285 мм.
  • Вес 2870 кг.
  • Объем бетона 1,076 м3
  • Геометрический объем 2,3053 м3
Цена: 41749 руб.
Подробнее
1ПС 60-13-3,0 тэ (1.020-1)
Панели стеновые трехслойные Серия 1.020-1
  • Длина 5980 мм.
  • Ширина 300 мм.
  • Высота 1285 мм.
  • Вес 2870 кг.
  • Объем бетона 1,076 м3
  • Геометрический объем 2,3053 м3
Цена: 41749 руб.
Подробнее
1ПС 60-15-3,0 тэ-1 (1.020-1)
Панели стеновые трехслойные Серия 1.020-1
  • Длина 5980 мм.
  • Ширина 300 мм.
  • Высота 1485 мм.
  • Вес 3320 кг.
  • Объем бетона 1,328 м3
  • Геометрический объем 2,6641 м3
Цена: 51526 руб.
Подробнее
1ПС 60-15-3,0 тэ (1.020-1)
Панели стеновые трехслойные Серия 1.020-1
  • Длина 5980 мм.
  • Ширина 300 мм.
  • Высота 1485 мм.
  • Вес 3320 кг.
  • Объем бетона 1,328 м3
  • Геометрический объем 2,6641 м3
Цена: 51526 руб.
Подробнее
1ПС 60-15-2,5 тэ-1 (1.020-1)
Панели стеновые трехслойные Серия 1.020-1
  • Длина 5980 мм.
  • Ширина 250 мм.
  • Высота 1485 мм.
  • Вес 3250 кг.
  • Объем бетона 1,3 м3
  • Геометрический объем 2,2201 м3
Цена: 50440 руб.
Подробнее
1ПС 60-15-2,5 тэа (1.020-1)
Панели стеновые трехслойные Серия 1.020-1
  • Длина 5980 мм.
  • Ширина 250 мм.
  • Высота 1485 мм.
  • Вес 3250 кг.
  • Объем бетона 1,3 м3
  • Геометрический объем 2,2201 м3
Цена: 50440 руб.
Подробнее
1ПС 60-15-3,0 тэа (1.020-1)
Панели стеновые трехслойные Серия 1.020-1
  • Длина 5980 мм.
  • Ширина 300 мм.
  • Высота 1485 мм.
  • Вес 3320 кг.
  • Объем бетона 1,328 м3
  • Геометрический объем 2,6641 м3
Цена: 51526 руб.
Подробнее
1ПС 60-18-2,5 тэ (1.020-1)
Панели стеновые трехслойные Серия 1.020-1
  • Длина 5980 мм.
  • Ширина 250 мм.
  • Высота 1785 мм.
  • Вес 3920 кг.
  • Объем бетона 1,568 м3
  • Геометрический объем 2,6686 м3
Цена: 60838 руб.
Подробнее
1ПС 60-18-2,5 тэ-1 (1.020-1)
Панели стеновые трехслойные Серия 1.020-1
  • Длина 5980 мм.
  • Ширина 250 мм.
  • Высота 1785 мм.
  • Вес 3920 кг.
  • Объем бетона 1,568 м3
  • Геометрический объем 2,6686 м3
Цена: 60838 руб.
Подробнее
1ПС 60-18-2,5 тэа (1.020-1)
Панели стеновые трехслойные Серия 1.020-1
  • Длина 5980 мм.
  • Ширина 250 мм.
  • Высота 1785 мм.
  • Вес 3920 кг.
  • Объем бетона 1,568 м3
  • Геометрический объем 2,6686 м3
Цена: 60838 руб.
Подробнее
1ПС 60-18-3,0 тэ (1.020-1)
Панели стеновые трехслойные Серия 1.020-1
  • Длина 5980 мм.
  • Ширина 300 мм.
  • Высота 1785 мм.
  • Вес 4000 кг.
  • Объем бетона 1,6 м3
  • Геометрический объем 3,2023 м3
Цена: 62080 руб.
Подробнее
1ПС 60-18-3,0 тэ-1 (1.020-1)
Панели стеновые трехслойные Серия 1.020-1
  • Длина 5980 мм.
  • Ширина 300 мм.
  • Высота 1785 мм.
  • Вес 4000 кг.
  • Объем бетона 1,6 м3
  • Геометрический объем 3,2023 м3
Цена: 62080 руб.
Подробнее
1ПС 60-21-2,5 тэ (1.020-1)
Панели стеновые трехслойные Серия 1.020-1
  • Длина 5980 мм.
  • Ширина 250 мм.
  • Высота 2085 мм.
  • Вес 4570 кг.
  • Объем бетона 1,746 м3
  • Геометрический объем 3,1171 м3
Цена: 67745 руб.
Подробнее
1ПС 60-21-2,5 тэа (1.020-1)
Панели стеновые трехслойные Серия 1.020-1
  • Длина 5980 мм.
  • Ширина 250 мм.
  • Высота 2085 мм.
  • Вес 4570 кг.
  • Объем бетона 1,746 м3
  • Геометрический объем 3,1171 м3
Цена: 67745 руб.
Подробнее
1ПС 60-18-3,0 тэа (1.020-1)
Панели стеновые трехслойные Серия 1.020-1
  • Длина 5980 мм.
  • Ширина 300 мм.
  • Высота 1785 мм.
  • Вес 4000 кг.
  • Объем бетона 1,6 м3
  • Геометрический объем 3,2023 м3
Цена: 62080 руб.
Подробнее
1ПС 60-21-3,0 тэ (1.020-1)
Панели стеновые трехслойные Серия 1.020-1
  • Длина 5980 мм.
  • Ширина 300 мм.
  • Высота 2085 мм.
  • Вес 4660 кг.
  • Объем бетона 1,746 м3
  • Геометрический объем 3,7405 м3
Цена: 67745 руб.
Подробнее
1ПС 60-21-3,0 тэа (1.020-1)
Панели стеновые трехслойные Серия 1.020-1
  • Длина 5980 мм.
  • Ширина 300 мм.
  • Высота 2085 мм.
  • Вес 4660 кг.
  • Объем бетона 1,746 м3
  • Геометрический объем 3,7405 м3
Цена: 67745 руб.
Подробнее
1ПС 60-6-2,5 тэ (1.020-1)
Панели стеновые трехслойные Серия 1.020-1
  • Длина 5980 мм.
  • Ширина 250 мм.
  • Высота 585 мм.
  • Вес 1280 кг.
  • Объем бетона 0,49 м3
  • Геометрический объем 0,8746 м3
Цена: 19012 руб.
Подробнее
1ПС 60-9-2,5 тэ (1.020-1)
Панели стеновые трехслойные Серия 1.020-1
  • Длина 5980 мм.
  • Ширина 250 мм.
  • Высота 885 мм.
  • Вес 1940 кг.
  • Объем бетона 0,741 м3
  • Геометрический объем 1,3231 м3
Цена: 28751 руб.
Подробнее
1ПС 60-6-3,0 тэ (1.020-1)
Панели стеновые трехслойные Серия 1.020-1
  • Длина 5980 мм.
  • Ширина 300 мм.
  • Высота 585 мм.
  • Вес 1310 кг.
  • Объем бетона 0,49 м3
  • Геометрический объем 1,0495 м3
Цена: 19012 руб.
Подробнее

Как правильно выбрать - Панели стеновые трехслойные Серия 1.020-1

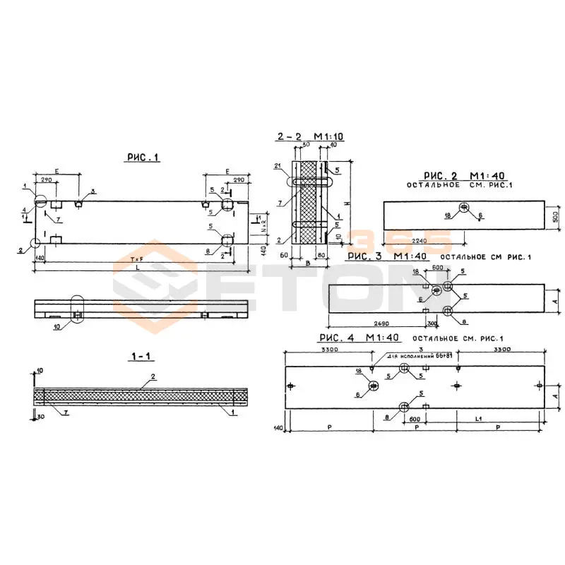
Панели стеновые трехслойные Серия 1.020-1 предназначены для возведения наружных стен жилых, общественных и промышленных зданий. Они выполняют ограждающую и теплоизоляционную функции, обеспечивая требуемое сопротивление теплопередаче. Долговечность и энергоэффективность здания в значительной степени определяются корректным подбором параметров этих панелей в соответствии с проектными решениями и климатическими условиями региона.

Критерии выбора

  • Конструкция и материалы: Обращайте внимание на марки бетона наружных и внутренних слоев (обычно не ниже В25), тип и толщину эффективного утеплителя (минераловатные плиты или пенополистирол), а также класс применяемой арматуры.
  • Теплотехнические характеристики: Ключевой параметр – приведенное сопротивление теплопередаче, которое должно соответствовать климатическому району строительства и требованиям актуальных СП.
  • Типоразмеры и конфигурация: Панели стеновые трехслойные по Серии 1.020-1 имеют строго регламентированные габариты и могут быть рядовыми, угловыми или доборными. Проверяйте соответствие проектным размерам и наличие необходимых монтажных петель и закладных деталей.
  • Морозостойкость и водонепроницаемость: Наружный слой бетона должен иметь марку по морозостойкости не ниже F150-F200 и марку по водонепроницаемости W6-W8 для надежной защиты утеплителя.
  • Нормативное соответствие: Изделие должно изготавливаться в строгом соответствии с рабочими чертежами Серии 1.020-1 и требованиями ГОСТ 31310-2015.

Рекомендации по подбору и монтажу

При составлении спецификации на панели стеновые трехслойные Серии 1.020-1 обязательно учитывайте архитектурные узлы примыканий к другим конструкциям (перекрытиям, колоннам). Запросите у производителя паспорта качества с протоколами испытаний контрольных образцов, особенно на прочность бетона и теплопроводность. Комплектность поставки – залог бесперебойного монтажа, поэтому сверяйте номенклатуру отгружаемых панелей с проектом.

На этапе монтажа критически важна правильная строповка за предусмотренные петли без перекоса. Перед установкой проверьте чистоту опорной поверхности и точность ее отметки. Стыки между панелями должны герметизироваться в соответствии с проектом, чтобы исключить образование мостиков холода. Особое внимание уделите анкеровке панелей к каркасу здания – это обеспечивает общую пространственную жесткость конструкции.

Ответы экспертов на ваши вопросы

Трехслойные стеновые панели серии 1.020-1 обладают рядом преимуществ: высокая заводская готовность (сокращение сроков монтажа), отличные теплотехнические характеристики благодаря эффективному утеплителю, повышенная долговечность за счет защищенного внутреннего слоя бетона, а также снижение нагрузки на фундамент по сравнению с однослойными конструкциями аналогичной несущей способности.

Конструкция панелей включает: наружный декоративно-защитный слой из тяжелого бетона толщиной 50-80 мм, средний слой - эффективный утеплитель (минераловатные плиты или пенополистирол) толщиной 100-200 мм в зависимости от климатического района, и внутренний несущий слой из тяжелого бетона толщиной 120-170 мм. Все слои соединены гибкими связями из нержавеющей или оцинкованной стали.

Панели серии 1.020-1 не рекомендуется применять: в зданиях с агрессивной средой без дополнительной защиты, в сейсмических районах с балльностью выше 7 без специальных расчетов, при температуре внутри помещений выше 100°C, а также в зданиях с относительной влажностью воздуха более 75% без устройства пароизоляции.

Монтаж выполняется с помощью кранов грузоподъемностью соответствующим массе панелей. Стыковка осуществляется через специальные монтажные петли и закладные детали. Вертикальные стыки заполняются уплотнительными материалами и герметизируются, горизонтальные стыки опираются на нижележащие конструкции. Обязательно устройство температурно-усадочных швов согласно проекту.

Панели транспортируются в вертикальном положении на специальных транспортных устройствах с надежным креплением. При складировании устанавливаются на прокладки толщиной не менее 50 мм с шагом не более 2,5 м. Запрещается складирование более чем в 2 яруса. Утеплитель должен быть защищен от увлажнения, а бетонные поверхности - от механических повреждений.

Ранее смотрели
Панели перекрытия ребристые Серия 1.220.1-2 ПР 30-12-8 АIII
ПР 30-12-8 АIII
Панели перекрытия ребристые Серия 1.220.1-2
МСП 60-30-16-8-6
МСП 60-30-16-8-6
Двухмодульные панели перекрытия Серия КУБ 2,5
Плиты тротуарные Серия 3.501-108 П 7 с (3.501-108)
П 7 с (3.501-108)
Плиты тротуарные Серия 3.501-108
Гипсобетонные и шлакобетонные перегородки Серия ИИ 03-04 ПГ 4 (ИИ 03-04)
ПГ 4 (ИИ 03-04)
Гипсобетонные и шлакобетонные перегородки Серия ИИ 03-04
Гипсобетонные и шлакобетонные перегородки Серия ИИ 03-04 ПГ 11 (ИИ 03-04)
ПГ 11 (ИИ 03-04)
Гипсобетонные и шлакобетонные перегородки Серия ИИ 03-04
Анкера ригельные Арх Л56-97 РАж 1 (Арх Л56-97)
РАж 1 (Арх Л56-97)
Анкера ригельные Арх Л56-97

Уведомление о файлах cookie

Мы используем файлы cookie для улучшения вашего опыта просмотра и анализа трафика. Нажимая "Принять все", вы соглашаетесь с нашей политикой конфиденциальности и политикой обработки файлов cookie.

Дзен Телеграм Вконтакте vk