mobile_sound +7 (930) 655-55-90

Панели подвала Серия ИИ 04-5

Поделиться:
Фильтр по характеристикам
Длина (мм.)
keyboard_arrow_down
мм.
мм.
Ширина (мм.)
keyboard_arrow_down
мм.
мм.
Высота (мм.)
keyboard_arrow_down
мм.
мм.
Вес (кг.)
keyboard_arrow_down
кг.
кг.
Поделиться:

Завод "Бетон365" производит панели подвала серии ИИ 04-5 – ключевые элементы для эффективного строительства подземных частей зданий. Эти железобетонные изделия обеспечивают высокую пространственную жесткость конструкции, равномерно распределяя нагрузку от несущих стен и перекрытий. Соответствие строгим ГОСТам и использование качественного армированного бетона гарантируют долговечность, устойчивость к влаге и механическим воздействиям, что особенно важно для эксплуатации в сложных грунтовых условиях Москвы.

Мы реализуем панели подвала ИИ 04-5 напрямую от производителя, что позволяет предложить конкурентную цену без посредников. Купить данную продукцию в Мск и Московской области можно с оперативной доставкой на объект и полным комплектом документов. Гарантируем соответствие заявленных характеристик и помощь в выборе оптимальных решений для вашего проекта – обращайтесь для расчета стоимости и оформления заказа!

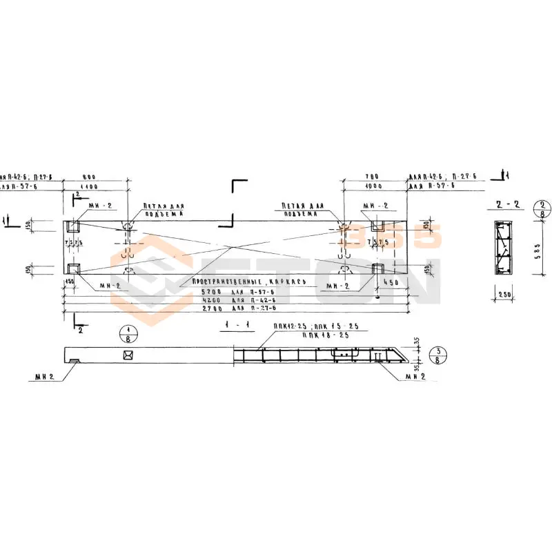
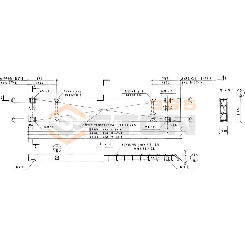
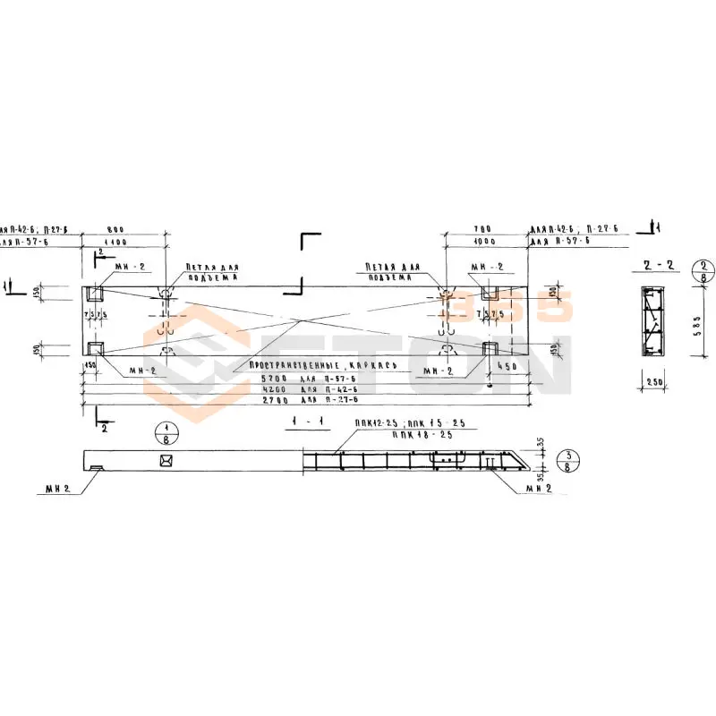
П 27-6
Панели подвала Серия ИИ 04-5
  • Длина 2700 мм.
  • Ширина 250 мм.
  • Высота 585 мм.
  • Вес 910 кг.
  • Объем бетона 0,38 м3
  • Геометрический объем 0,3949 м3
Цена: 12901 руб.
Подробнее
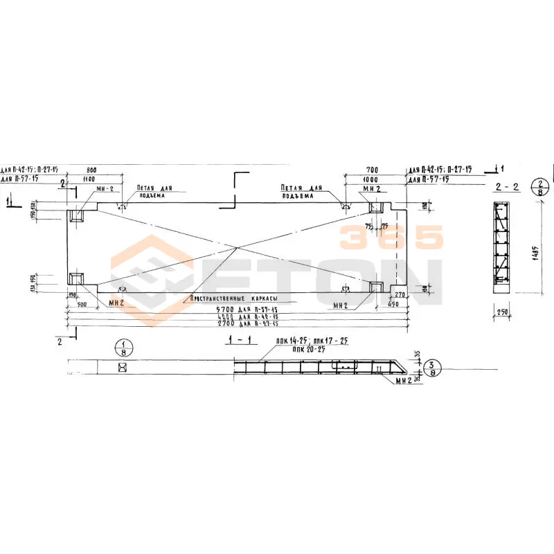
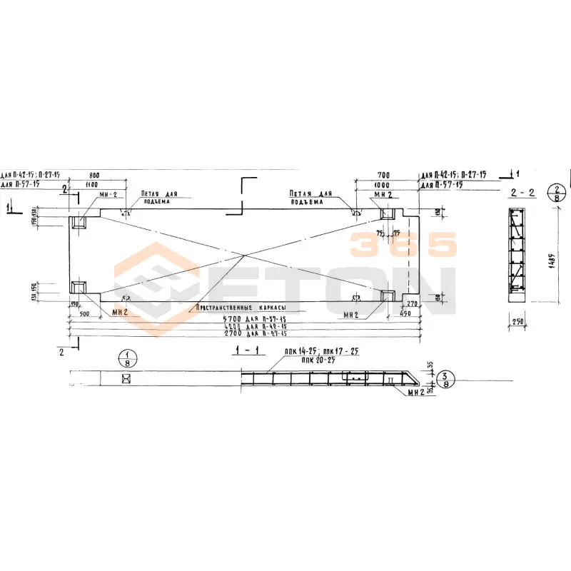
П 27-15
Панели подвала Серия ИИ 04-5
  • Длина 2700 мм.
  • Ширина 250 мм.
  • Высота 1485 мм.
  • Вес 2170 кг.
  • Объем бетона 0,91 м3
  • Геометрический объем 1,0024 м3
Цена: 30895 руб.
Подробнее
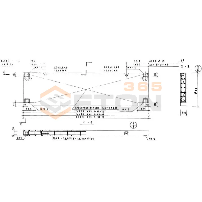
П 30-15
Панели подвала Серия ИИ 04-5
  • Длина 2980 мм.
  • Ширина 250 мм.
  • Высота 1485 мм.
  • Вес 2570 кг.
  • Объем бетона 1,07 м3
  • Геометрический объем 1,1063 м3
Цена: 36327 руб.
Подробнее
П 30-6
Панели подвала Серия ИИ 04-5
  • Длина 2980 мм.
  • Ширина 250 мм.
  • Высота 585 мм.
  • Вес 1050 кг.
  • Объем бетона 0,44 м3
  • Геометрический объем 0,4358 м3
Цена: 14938 руб.
Подробнее
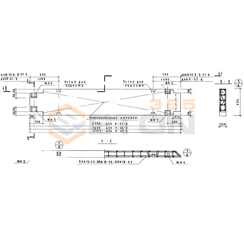
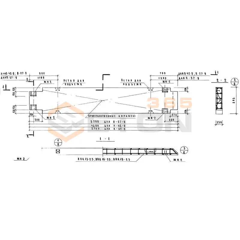
П 27-9
Панели подвала Серия ИИ 04-5
  • Длина 2700 мм.
  • Ширина 250 мм.
  • Высота 885 мм.
  • Вес 1250 кг.
  • Объем бетона 0,52 м3
  • Геометрический объем 0,5974 м3
Цена: 17654 руб.
Подробнее
П 42-6
Панели подвала Серия ИИ 04-5
  • Длина 4200 мм.
  • Ширина 250 мм.
  • Высота 585 мм.
  • Вес 1440 кг.
  • Объем бетона 0,6 м3
  • Геометрический объем 0,6142 м3
Цена: 20370 руб.
Подробнее
П 42-9
Панели подвала Серия ИИ 04-5
  • Длина 4200 мм.
  • Ширина 250 мм.
  • Высота 885 мм.
  • Вес 2040 кг.
  • Объем бетона 0,85 м3
  • Геометрический объем 0,9293 м3
Цена: 28858 руб.
Подробнее
П 45-15
Панели подвала Серия ИИ 04-5
  • Длина 4480 мм.
  • Ширина 250 мм.
  • Высота 1485 мм.
  • Вес 3910 кг.
  • Объем бетона 1,63 м3
  • Геометрический объем 1,6632 м3
Цена: 55339 руб.
Подробнее
П 45-9-1
Панели подвала Серия ИИ 04-5
  • Длина 4480 мм.
  • Ширина 250 мм.
  • Высота 885 мм.
  • Вес 2300 кг.
  • Объем бетона 0,96 м3
  • Геометрический объем 0,9912 м3
Цена: 32592 руб.
Подробнее
П 45-6
Панели подвала Серия ИИ 04-5
  • Длина 4480 мм.
  • Ширина 250 мм.
  • Высота 585 мм.
  • Вес 1570 кг.
  • Объем бетона 0,66 м3
  • Геометрический объем 0,6552 м3
Цена: 22407 руб.
Подробнее
П 30-9
Панели подвала Серия ИИ 04-5
  • Длина 2980 мм.
  • Ширина 250 мм.
  • Высота 885 мм.
  • Вес 1510 кг.
  • Объем бетона 0,627 м3
  • Геометрический объем 0,6593 м3
Цена: 21287 руб.
Подробнее
П 42-15
Панели подвала Серия ИИ 04-5
  • Длина 4200 мм.
  • Ширина 250 мм.
  • Высота 1485 мм.
  • Вес 3510 кг.
  • Объем бетона 1,46 м3
  • Геометрический объем 1,5593 м3
Цена: 49567 руб.
Подробнее
П 45-9-2
Панели подвала Серия ИИ 04-5
  • Длина 4480 мм.
  • Ширина 250 мм.
  • Высота 885 мм.
  • Вес 2300 кг.
  • Объем бетона 0,96 м3
  • Геометрический объем 0,9912 м3
Цена: 32592 руб.
Подробнее
П 57-6
Панели подвала Серия ИИ 04-5
  • Длина 5700 мм.
  • Ширина 250 мм.
  • Высота 585 мм.
  • Вес 2000 кг.
  • Объем бетона 0,83 м3
  • Геометрический объем 0,8336 м3
Цена: 28179 руб.
Подробнее
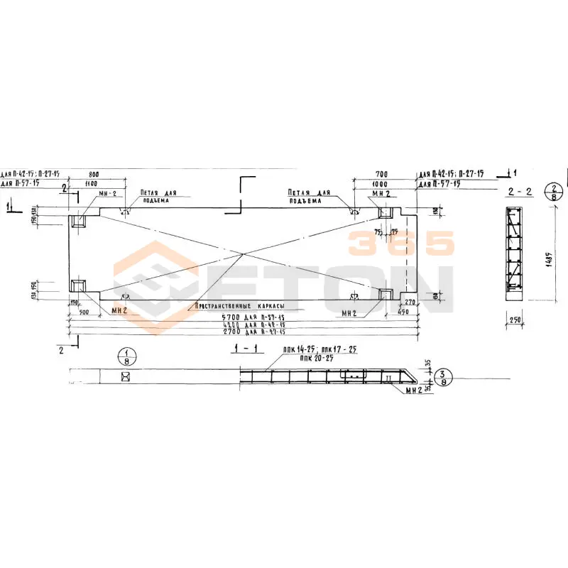
П 57-15
Панели подвала Серия ИИ 04-5
  • Длина 5700 мм.
  • Ширина 250 мм.
  • Высота 1485 мм.
  • Вес 4850 кг.
  • Объем бетона 2,02 м3
  • Геометрический объем 2,1161 м3
Цена: 68579 руб.
Подробнее
П 60-9-1
Панели подвала Серия ИИ 04-5
  • Длина 5980 мм.
  • Ширина 250 мм.
  • Высота 885 мм.
  • Вес 3090 кг.
  • Объем бетона 1,29 м3
  • Геометрический объем 1,3231 м3
Цена: 43796 руб.
Подробнее
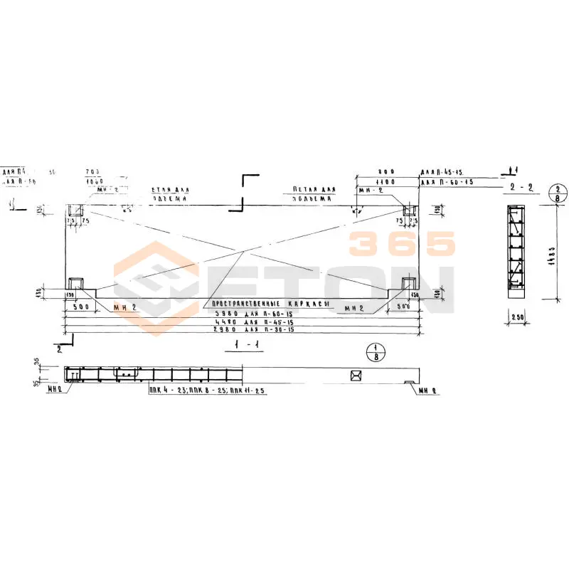
П 60-15
Панели подвала Серия ИИ 04-5
  • Длина 5980 мм.
  • Ширина 250 мм.
  • Высота 1485 мм.
  • Вес 5250 кг.
  • Объем бетона 2,19 м3
  • Геометрический объем 2,2201 м3
Цена: 74351 руб.
Подробнее
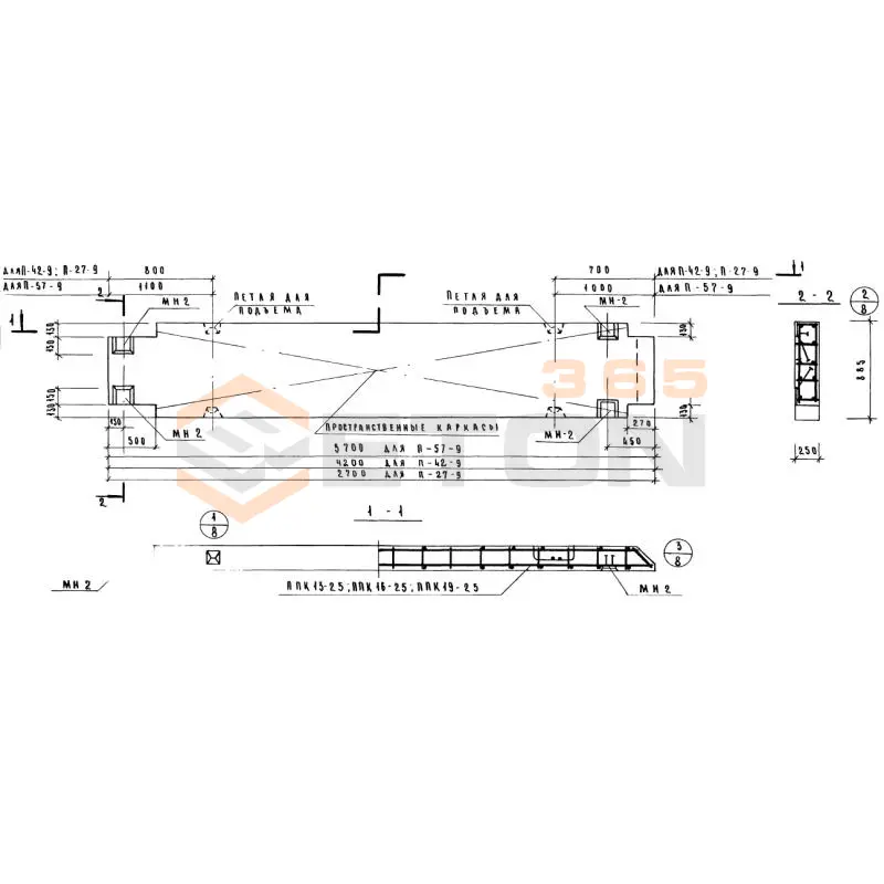
П 57-9
Панели подвала Серия ИИ 04-5
  • Длина 5700 мм.
  • Ширина 250 мм.
  • Высота 885 мм.
  • Вес 2840 кг.
  • Объем бетона 1,18 м3
  • Геометрический объем 1,2611 м3
Цена: 40061 руб.
Подробнее
П 60-6
Панели подвала Серия ИИ 04-5
  • Длина 5980 мм.
  • Ширина 250 мм.
  • Высота 585 мм.
  • Вес 2100 кг.
  • Объем бетона 0,88 м3
  • Геометрический объем 0,8746 м3
Цена: 29876 руб.
Подробнее
П 60-9-2
Панели подвала Серия ИИ 04-5
  • Длина 5980 мм.
  • Ширина 250 мм.
  • Высота 885 мм.
  • Вес 3090 кг.
  • Объем бетона 1,29 м3
  • Геометрический объем 1,3231 м3
Цена: 43796 руб.
Подробнее

Как правильно выбрать - Панели подвала Серия ИИ 04-5

Панели подвала Серия ИИ 04-5 представляют собой стеновые железобетонные изделия, предназначенные для возведения подземных частей зданий — стен технических подполий, подвалов и цокольных этажей. Их ключевая функция — формирование надежного ограждающего контура, воспринимающего давление грунта и обеспечивающего гидроизоляцию. Долговечность и устойчивость всей подземной конструкции напрямую зависят от соответствия выбранных панелей проектным нагрузкам и агрессивности грунтовых условий.

Критерии выбора

  • Класс бетона и защитные свойства: Изделия изготавливаются из тяжелого бетона класса не ниже В25. Критически важны показатели водонепроницаемости (W6-W8) и морозостойкости (F150-F200), которые должны соответствовать уровню агрессивности грунтовых вод на объекте.
  • Типоразмеры и конфигурация: Панели подвала по серии ИИ 04-5 имеют строго регламентированные габариты (длину, высоту, толщину). Необходимо сверять проектную спецификацию с номенклатурой завода-изготовителя, обращая внимание на прямые и доборные элементы.
  • Армирование и несущая способность: Конструкция армируется пространственными каркасами из стержневой арматуры классов А-III (А400) и А-I (А240). Расчетная несущая способность должна быть проверена на восприятие бокового давления грунта.
  • Наличие закладных и монтажных элементов: Обязательно наличие монтажных петель или отверстий для строповки, а также закладных деталей для соединения со смежными конструкциями (перекрытиями, фундаментными плитами).
  • Соответствие нормативной документации: Все панели должны изготавливаться в строгом соответствии с рабочими чертежами серии ИИ 04-5 и ГОСТ 13015-2012, что подтверждается паспортом качества на партию.

Рекомендации по подбору и монтажу

При составлении спецификации на панели подвала Серия ИИ 04-5 необходимо учитывать не только статические нагрузки, но и данные инженерно-геологических изысканий — химический состав грунтовых вод и их уровень. Это определяет требуемую марку бетона по водонепроницаемости. Приемку изделий на площадке следует сопровождать проверкой паспортов, визуальным контролем отсутствия сквозных трещин и раковин на лицевых поверхностях.

Монтаж начинают только на спланированное и уплотненное основание. Ключевой момент — обеспечение герметичности стыков между панелями. Для этого используется торкрет-бетон или инъектирование, а швы дополнительно защищаются наружной оклеечной или обмазочной гидроизоляцией. Анкеровка с плитами перекрытия должна выполняться в точном соответствии с узлами, указанными в проектной документации, для создания единой пространственной системы.

Ответы экспертов на ваши вопросы

Панели подвала серии ИИ 04-5 – это железобетонные изделия, предназначенные для возведения стен подвалов и технических подполий жилых, общественных и промышленных зданий. Основные характеристики:

  • Материал: тяжелый бетон классов по прочности на сжатие В15-В25.
  • Армирование: предварительно напряженная или ненапряженная арматура, обеспечивающая прочность и трещиностойкость.
  • Назначение: восприятие нагрузок от вышележащих конструкций и давления грунта, обеспечение гидроизоляции и теплозащиты подвала.
  • Типоразмеры: выпускаются стандартных размеров по длине, высоте и толщине, регламентированных серией.

Использование сборных панелей серии ИИ 04-5 имеет ряд преимуществ:

  1. Скорость возведения: Монтаж готовых изделий значительно сокращает сроки строительства по сравнению с устройством монолитных стен (установка опалубки, армирование, бетонирование, ожидание набора прочности).
  2. Высокое и стабильное качество: Панели изготавливаются в заводских условиях, что обеспечивает точную геометрию, проектные прочностные характеристики и марку бетона по водонепроницаемости.
  3. Снижение трудозатрат: Минимизируются "мокрые" процессы на стройплощадке.
  4. Всесезонность монтажа: Установка панелей может производиться в любое время года, в то время как монолитные работы зимой требуют специальных мер (прогрев, противоморозные добавки).

Гидроизоляция стыков (монтажных швов) между панелями – критически важный этап. Она обеспечивается комплексом мер:

  • Конструкция стыка: Панели часто имеют специальные профили (четверти, пазы) для формирования более надежного замкнутого контура шва.
  • Уплотнительные материалы: В швы закладываются уплотнительные шнуры (например, из вспененного полиэтилена) или прокладки для предотвращения протечек.
  • Герметизация: После монтажа швы заполняются герметиками (тиоколовыми, полиуретановыми) или цементно-полимерными составами с высокими адгезионными и эластичными свойствами.
  • Дополнительная защита: С наружной стороны часто выполняется оклеечная или обмазочная гидроизоляция по всей поверхности стены, включая стыки.

Панели серии ИИ 04-5 рассчитываются на восприятие следующих основных нагрузок:

  • Вертикальные нагрузки: от веса вышележащих этажей, перекрытий, кровли.
  • Горизонтальные нагрузки: боковое давление грунта, гидростатическое давление грунтовых вод.
  • Прочие воздействия: температурно-влажностные деформации, сейсмические воздействия (для сейсмических районов).

Подбор панелей для проекта осуществляется проектировщиком на основе:

  1. Расчетных нагрузок (сбор нагрузок).
  2. Глубины заложения подвала.
  3. Уровня грунтовых вод.
  4. Категории грунта.
  5. Сейсмичности района. Результатом подбора является конкретная марка панели из альбома серии ИИ 04-5, которая указывает ее типоразмер, класс бетона, схему армирования и расчетную несущую способность.

Транспортировка:

  • Перевозка осуществляется панелевозами или бортовыми автомобилями с использованием специальных траверс для предотвращения повреждений.
  • Панели перевозятся в рабочем (вертикальном) положении или с небольшим наклоном.
  • Необходимо надежное крепление для исключения смещений и динамических ударов.

Монтаж:

  1. Подготовка основания: Устройство выравнивающего слоя (бетонная подготовка) или фундаментных блоков с точной разметкой осей.
  2. Строповка: Подъем и установка производятся с помощью монтажных петель или специальных захватов. Строповка должна обеспечивать вертикальное положение панели при подъеме.
  3. Установка: Панель опускается на проектное место, выверяется по вертикали и осям, после чего временно раскрепляется подкосами.
  4. Соединение: Соседние панели соединяются между собой с помощью закладных деталей (сварка, болтовые соединения).
  5. Анкеровка: Верх панелей анкеруется с плитами перекрытия для создания единой пространственной системы.
  6. Заделка швов: После окончательного выверения и фиксации всего контура стен производится герметизация монтажных швов.
Ранее смотрели
МСП 60-30-16-10-8
МСП 60-30-16-10-8
Двухмодульные панели перекрытия Серия КУБ 2,5
Гипсобетонные и шлакобетонные перегородки Серия ИИ 03-04 ПШ 2 (ИИ 03-04)
ПШ 2 (ИИ 03-04)
Гипсобетонные и шлакобетонные перегородки Серия ИИ 03-04
ПШ 6 (ИИ 03-04)
ПШ 6 (ИИ 03-04)
Гипсобетонные и шлакобетонные перегородки Серия ИИ 03-04
Гипсобетонные и шлакобетонные перегородки Серия ИИ 03-04 ПШ 5 (ИИ 03-04)
ПШ 5 (ИИ 03-04)
Гипсобетонные и шлакобетонные перегородки Серия ИИ 03-04
МСП 49-30-16-8-6
МСП 49-30-16-8-6
Двухмодульные панели перекрытия Серия КУБ 2,5
Гипсобетонные и шлакобетонные перегородки Серия ИИ 03-04 ПГ 14 а (ИИ 03-04)
ПГ 14 а (ИИ 03-04)
Гипсобетонные и шлакобетонные перегородки Серия ИИ 03-04
Панели перекрытия ребристые Серия 1.220.1-2 ПР 30-12-8 АIII
ПР 30-12-8 АIII
Панели перекрытия ребристые Серия 1.220.1-2
МСП 60-30-16-8-6
МСП 60-30-16-8-6
Двухмодульные панели перекрытия Серия КУБ 2,5

Уведомление о файлах cookie

Мы используем файлы cookie для улучшения вашего опыта просмотра и анализа трафика. Нажимая "Принять все", вы соглашаетесь с нашей политикой конфиденциальности и политикой обработки файлов cookie.

Дзен Телеграм Вконтакте vk