mobile_sound +7 (930) 655-55-90

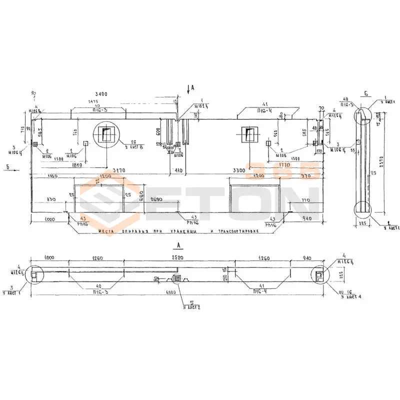
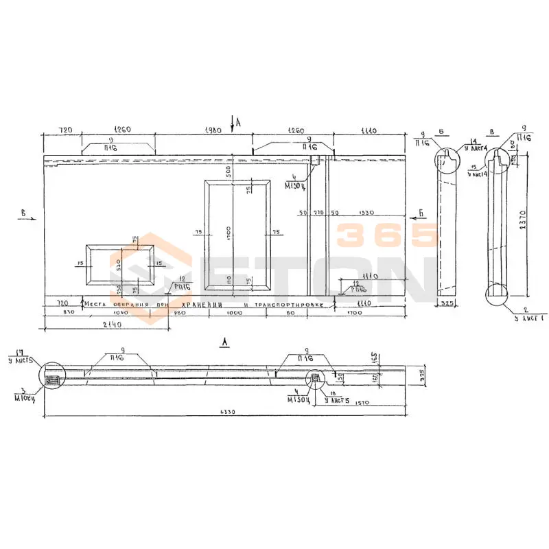
Панели наружных стен цокольные трехслойные Альбом 3РС 17-15

Поделиться:
Фильтр по характеристикам
Длина (мм.)
keyboard_arrow_down
мм.
мм.
Ширина (мм.)
keyboard_arrow_down
мм.
мм.
Высота (мм.)
keyboard_arrow_down
мм.
мм.
Вес (кг.)
keyboard_arrow_down
кг.
кг.
Объем бетона (м3)
keyboard_arrow_down
м3
м3
Поделиться:

Завод "Бетон365" производит панели наружных стен цокольные трехслойные Альбом 3РС 17-15 – современное решение для эффективного возведения несущих конструкций зданий различного назначения. Эти железобетонные изделия сочетают высокую прочность, соответствующую требованиям ГОСТ, с улучшенными теплоизоляционными характеристиками благодаря трехслойной структуре. Применение таких панелей обеспечивает равномерное распределение нагрузок, создает жесткий каркас сооружения и значительно сокращает сроки строительства за счет готовности к монтажу.

Реализуем панели наружных стен цокольные трехслойные Альбом 3РС 17-15 в Москве и МО по конкурентной цене от производителя. Предлагаем выгодные условия покупки с гарантией качества, оперативной доставкой на объект и профессиональными консультациями по выбору оптимальных решений для вашего строительного проекта. Свяжитесь с нами для расчета стоимости и оформления заказа!

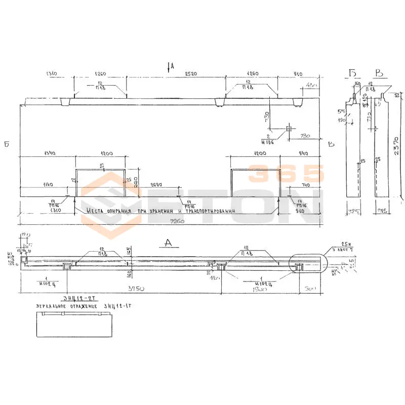
3НЦ 1-1 т (Альбом 3РС 17-15)
Панели наружных стен цокольные трехслойные Альбом 3РС 17-15
  • Длина 6980 мм.
  • Ширина 325 мм.
  • Высота 2370 мм.
  • Вес 6790 кг.
  • Объем бетона 5,05 м3
  • Геометрический объем 5,3763 м3
Цена: 171448 руб.
Подробнее
3НЦ 1-8 т (Альбом 3РС 17-15)
Панели наружных стен цокольные трехслойные Альбом 3РС 17-15
  • Длина 6980 мм.
  • Ширина 325 мм.
  • Высота 2370 мм.
  • Вес 6780 кг.
  • Объем бетона 5,045 м3
  • Геометрический объем 5,3763 м3
Цена: 171278 руб.
Подробнее
3НЦ 1-3 т (Альбом 3РС 17-15)
Панели наружных стен цокольные трехслойные Альбом 3РС 17-15
  • Длина 6980 мм.
  • Ширина 325 мм.
  • Высота 2370 мм.
  • Вес 6630 кг.
  • Объем бетона 4,99 м3
  • Геометрический объем 5,3763 м3
Цена: 169411 руб.
Подробнее
3НЦ 1-6 т (Альбом 3РС 17-15)
Панели наружных стен цокольные трехслойные Альбом 3РС 17-15
  • Длина 6980 мм.
  • Ширина 325 мм.
  • Высота 2370 мм.
  • Вес 6780 кг.
  • Объем бетона 5,05 м3
  • Геометрический объем 5,3763 м3
Цена: 171448 руб.
Подробнее
3НЦ 1-7 т (Альбом 3РС 17-15)
Панели наружных стен цокольные трехслойные Альбом 3РС 17-15
  • Длина 6980 мм.
  • Ширина 325 мм.
  • Высота 2370 мм.
  • Вес 6780 кг.
  • Объем бетона 5,06 м3
  • Геометрический объем 5,3763 м3
Цена: 171787 руб.
Подробнее
3НЦ 1-2 т (Альбом 3РС 17-15)
Панели наружных стен цокольные трехслойные Альбом 3РС 17-15
  • Длина 6980 мм.
  • Ширина 325 мм.
  • Высота 2370 мм.
  • Вес 6680 кг.
  • Объем бетона 5,01 м3
  • Геометрический объем 5,3763 м3
Цена: 170090 руб.
Подробнее
3НЦ 10-2 т (Альбом 3РС 17-15)
Панели наружных стен цокольные трехслойные Альбом 3РС 17-15
  • Длина 2980 мм.
  • Ширина 325 мм.
  • Высота 2370 мм.
  • Вес 3000 кг.
  • Объем бетона 2,23 м3
  • Геометрический объем 2,2953 м3
Цена: 75709 руб.
Подробнее
3НЦ 11-2 т (Альбом 3РС 17-15)
Панели наружных стен цокольные трехслойные Альбом 3РС 17-15
  • Длина 5260 мм.
  • Ширина 325 мм.
  • Высота 2370 мм.
  • Вес 5300 кг.
  • Объем бетона 3,84 м3
  • Геометрический объем 4,0515 м3
Цена: 130368 руб.
Подробнее
3НЦ 12-2 т (Альбом 3РС 17-15)
Панели наружных стен цокольные трехслойные Альбом 3РС 17-15
  • Длина 7260 мм.
  • Ширина 325 мм.
  • Высота 2370 мм.
  • Вес 7360 кг.
  • Объем бетона 5,39 м3
  • Геометрический объем 5,592 м3
Цена: 182991 руб.
Подробнее
3НЦ 12-1 т (Альбом 3РС 17-15)
Панели наружных стен цокольные трехслойные Альбом 3РС 17-15
  • Длина 7260 мм.
  • Ширина 325 мм.
  • Высота 2370 мм.
  • Вес 7360 кг.
  • Объем бетона 5,39 м3
  • Геометрический объем 5,592 м3
Цена: 182991 руб.
Подробнее
3НЦ 10-3 т (Альбом 3РС 17-15)
Панели наружных стен цокольные трехслойные Альбом 3РС 17-15
  • Длина 2980 мм.
  • Ширина 325 мм.
  • Высота 2370 мм.
  • Вес 3000 кг.
  • Объем бетона 2,23 м3
  • Геометрический объем 2,2953 м3
Цена: 75709 руб.
Подробнее
3НЦ 13-3 т (Альбом 3РС 17-15)
Панели наружных стен цокольные трехслойные Альбом 3РС 17-15
  • Длина 6740 мм.
  • Ширина 325 мм.
  • Высота 2370 мм.
  • Вес 6230 кг.
  • Объем бетона 4,865 м3
  • Геометрический объем 5,1915 м3
Цена: 165167 руб.
Подробнее
3НЦ 14-2 т (Альбом 3РС 17-15)
Панели наружных стен цокольные трехслойные Альбом 3РС 17-15
  • Длина 5260 мм.
  • Ширина 325 мм.
  • Высота 2370 мм.
  • Вес 5200 кг.
  • Объем бетона 3,75 м3
  • Геометрический объем 4,0515 м3
Цена: 127313 руб.
Подробнее
3НЦ 2-1 т (Альбом 3РС 17-15)
Панели наружных стен цокольные трехслойные Альбом 3РС 17-15
  • Длина 6180 мм.
  • Ширина 325 мм.
  • Высота 2370 мм.
  • Вес 6270 кг.
  • Объем бетона 4,54 м3
  • Геометрический объем 4,7601 м3
Цена: 154133 руб.
Подробнее
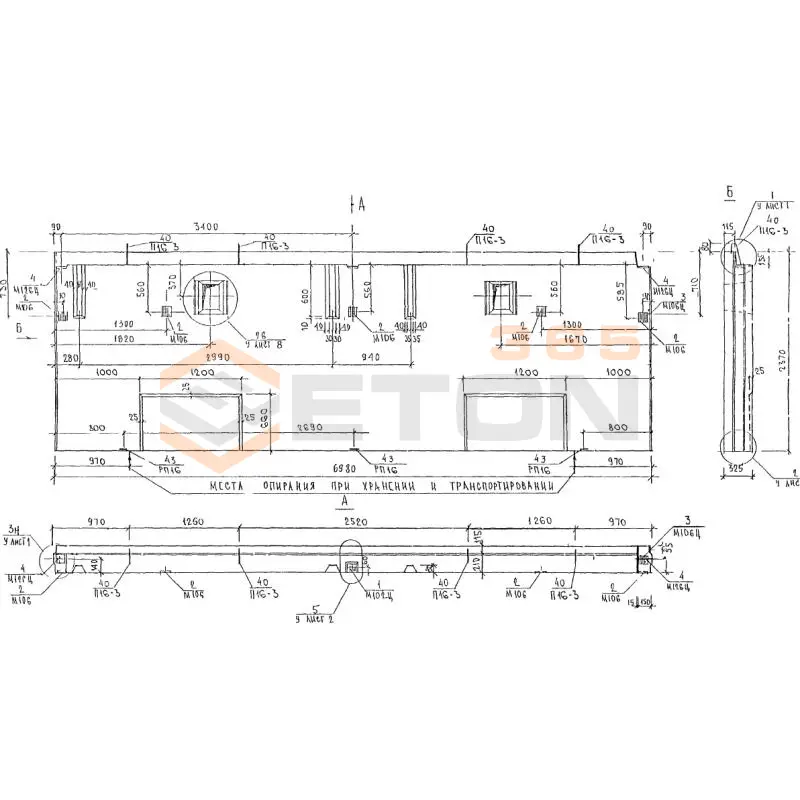
3НЦ 4-1 т (Альбом 3РС 17-15)
Панели наружных стен цокольные трехслойные Альбом 3РС 17-15
  • Длина 3030 мм.
  • Ширина 325 мм.
  • Высота 2370 мм.
  • Вес 2210 кг.
  • Объем бетона 2,08 м3
  • Геометрический объем 2,3339 м3
Цена: 70616 руб.
Подробнее
3НЦ 4-1 увт (Альбом 3РС 17-15)
Панели наружных стен цокольные трехслойные Альбом 3РС 17-15
  • Длина 3030 мм.
  • Ширина 325 мм.
  • Высота 2370 мм.
  • Вес 2420 кг.
  • Объем бетона 1,7 м3
  • Геометрический объем 2,3339 м3
Цена: 57715 руб.
Подробнее
3НЦ 7-1 т (Альбом 3РС 17-15)
Панели наружных стен цокольные трехслойные Альбом 3РС 17-15
  • Длина 6330 мм.
  • Ширина 325 мм.
  • Высота 2370 мм.
  • Вес 6070 кг.
  • Объем бетона 4,635 м3
  • Геометрический объем 4,8757 м3
Цена: 157358 руб.
Подробнее
3НЦ 7-1 вт (Альбом 3РС 17-15)
Панели наружных стен цокольные трехслойные Альбом 3РС 17-15
  • Длина 6330 мм.
  • Ширина 325 мм.
  • Высота 2370 мм.
  • Вес 5520 кг.
  • Объем бетона 3,875 м3
  • Геометрический объем 4,8757 м3
Цена: 131556 руб.
Подробнее
3НЦ 7-2 вт (Альбом 3РС 17-15)
Панели наружных стен цокольные трехслойные Альбом 3РС 17-15
  • Длина 6330 мм.
  • Ширина 325 мм.
  • Высота 2370 мм.
  • Вес 5660 кг.
  • Объем бетона 4,2 м3
  • Геометрический объем 4,8757 м3
Цена: 142590 руб.
Подробнее
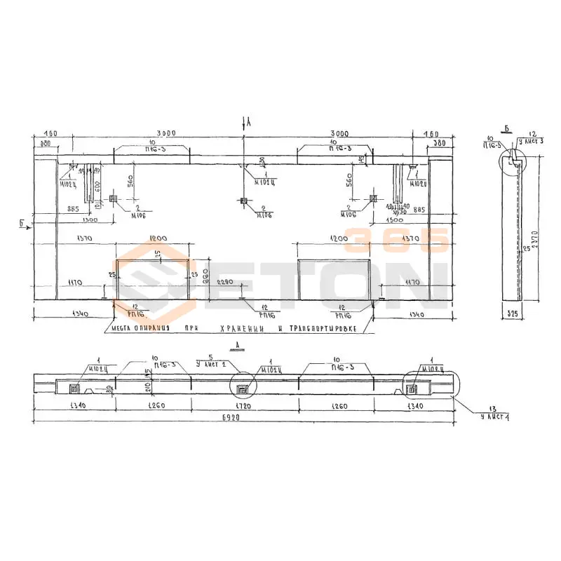
3НЦ 6-1 т (Альбом 3РС 17-15)
Панели наружных стен цокольные трехслойные Альбом 3РС 17-15
  • Длина 6920 мм.
  • Ширина 325 мм.
  • Высота 2370 мм.
  • Вес 6210 кг.
  • Объем бетона 5 м3
  • Геометрический объем 5,3301 м3
Цена: 169750 руб.
Подробнее
3НЦ 7-2 т (Альбом 3РС 17-15)
Панели наружных стен цокольные трехслойные Альбом 3РС 17-15
  • Длина 6330 мм.
  • Ширина 325 мм.
  • Высота 2370 мм.
  • Вес 5660 кг.
  • Объем бетона 4,2 м3
  • Геометрический объем 4,8757 м3
Цена: 142590 руб.
Подробнее
3НЦ 8-1 т (Альбом 3РС 17-15)
Панели наружных стен цокольные трехслойные Альбом 3РС 17-15
  • Длина 2400 мм.
  • Ширина 325 мм.
  • Высота 2370 мм.
  • Вес 2710 кг.
  • Объем бетона 1,795 м3
  • Геометрический объем 1,8486 м3
Цена: 60940 руб.
Подробнее
3НЦ 8-2 т (Альбом 3РС 17-15)
Панели наружных стен цокольные трехслойные Альбом 3РС 17-15
  • Длина 2400 мм.
  • Ширина 325 мм.
  • Высота 2370 мм.
  • Вес 2710 кг.
  • Объем бетона 1,795 м3
  • Геометрический объем 1,8486 м3
Цена: 60940 руб.
Подробнее
3НЦ 9-3 т (Альбом 3РС 17-15)
Панели наружных стен цокольные трехслойные Альбом 3РС 17-15
  • Длина 2400 мм.
  • Ширина 325 мм.
  • Высота 2370 мм.
  • Вес 2700 кг.
  • Объем бетона 1,79 м3
  • Геометрический объем 1,8486 м3
Цена: 60771 руб.
Подробнее

Как правильно выбрать - Панели наружных стен цокольные трехслойные Альбом 3РС 17-15

Панели наружных стен цокольные трехслойные Альбом 3РС 17-15 предназначены для возведения цокольной части зданий и совмещают несущую, ограждающую и теплоизоляционную функции. Их применяют в промышленном и гражданском строительстве, где требуется обеспечить высокую стойкость к грунтовой влаге, промерзанию и механическим воздействиям. Долговечность всей надземной конструкции во многом определяется корректным подбором параметров этих цокольных панелей в соответствии с проектными решениями и реальными условиями эксплуатации.

Критерии выбора

  • Конструкция и материалы: Проверьте соответствие внутреннего и наружного бетонных слоев (обычно тяжелый бетон класса В30-В35), тип и толщину эффективного утеплителя, а также класс арматуры для каркасов.
  • Марки бетона по морозостойкости и водонепроницаемости: Для цокольных элементов критически важны высокие показатели – не ниже F200 и W6, что обеспечивает защиту от циклического замораживания и капиллярного подсоса грунтовых вод.
  • Типоразмеры и конфигурация: Сверьте габаритные размеры, толщину панели, расположение и тип монтажных петель, а также наличие и схему расстановки необходимых закладных деталей для анкеровки.
  • Расчетные нагрузки: Уточните несущую способность изделия, включая восприятие вертикальных нагрузок от вышележащих этажей и горизонтального давления грунта.
  • Нормативная документация: Убедитесь, что панели изготовлены в строгом соответствии с рабочими чертежами серии 3РС 17-15 и требованиями актуальных ГОСТ на железобетонные конструкции.

Рекомендации по подбору и монтажу

При заказе панелей наружных стен цокольных трехслойных обязательно запрашивайте паспорт качества на партию, где указаны фактические прочностные характеристики бетона и марки по морозостойкости. В спецификации необходимо детализировать требуемое количество доборных элементов и панелей с отверстиями для пропуска инженерных коммуникаций, чтобы избежать нестыковок на объекте.

На этапе монтажа особое внимание уделите подготовке основания – оно должно быть выверено по горизонту и иметь надежную гидроизоляцию. Стыкование панелей между собой и с фундаментом должно обеспечивать проектную герметичность швов. Для этого используйте предусмотренные конструкцией замки и уплотнительные материалы, а анкеровку выполняйте в полном соответствии с рабочими чертежами альбома 3РС 17-15.

Ответы экспертов на ваши вопросы

Ответ: Панель является трехслойной конструкцией, состоящей из:

  1. Наружный слой (фасадный): Тонкий слой тяжелого или конструкционного бетона (толщиной 30-50 мм), выполняющий защитно-декоративную функцию. Может иметь фактурную отделку.
  2. Слой эффективного утеплителя: Слой пенополистирола или минераловатной плиты (толщина варьируется в зависимости от требуемого сопротивления теплопередаче). Этот слой обеспечивает теплозащиту здания.
  3. Внутренний несущий слой (основной): Изготовлен из тяжелого бетона класса не ниже В25. Именно этот слой воспринимает все основные нагрузки. Его толщина определяет несущую способность панели. Слои соединены между собой гибкими связями (обычно из стеклопластика или нержавеющей стали), которые обеспечивают монолитность конструкции, компенсируя разницу в температурных деформациях материалов.

Ответ: Цокольная панель, в отличие от стеновых панелей обычных этажей, воспринимает не только вертикальные нагрузки от вышележащих конструкций и горизонтальные (ветровые), но и значительное боковое давление от грунта обратной засыпки. Она работает как подпорная стенка. Поэтому ее внутренний несущий слой имеет повышенную толщину и прочность, а также проектируется с учетом агрессивного воздействия грунтовых вод и промерзания. Ключевое отличие — это расчет на давление грунта и повышенные требования к гидроизоляции.

Ответ: Согласно альбому 3РС 17-15, номинальная длина панелей составляет 6000 мм, а высота — 1200 мм или 1400 мм. Толщина является расчетной и зависит от толщины утеплителя и несущего слоя. Маркировка панелей расшифровывается следующим образом: например, 3ПС 6000.1200.300.

  • 3ПС — Панель Стеновая трехслойная.
  • 6000 — Длина в мм.
  • 1200 — Высота в мм.
  • 300 — Толщина в мм.

Ответ: Монтаж цокольных панелей требует особой тщательности из-за их расположения.

  1. Подготовка основания: Панели устанавливаются на выровненное основание (фундамент, цокольный ригель) по слою цементно-песчаного раствора.
  2. Крепление: Панели временно раскрепляются, а затем постоянно соединяются с несущими конструкциями с помощью закладных деталей и сварки.
  3. Герметизация стыков: Это критически важный этап. Вертикальные и горизонтальные стыки заполняются упругими герметиками (например, тиоколовыми или полиуретановыми), устойчивыми к влаге и перепадам температур. Конструкция стыка часто включает специальные гидроизоляционные прокладки (герниты) и наружные нащельники, которые защищают основной слой герметика от прямого воздействия внешней среды и механических повреждений. Обязательно устройство отсечной гидроизоляции в уровне примыкания панелей к фундаменту.

Ответ: Основные преимущества:

  1. Высокая заводская готовность: Панель поставляется на объект как готовое изделие с утеплителем и наружной отделкой, что значительно ускоряет процесс возведения здания (технология "завод-стройка").
  2. Энергоэффективность: Наличие слоя эффективного утеплителя уже в конструкции стены позволяет сразу выполнить требования по теплозащите без дополнительных работ.
  3. Прочность и долговечность: Несущий слой из тяжелого бетона, изготовленный в заводских условиях, обладает стабильно высокими прочностными характеристиками и морозостойкостью.
  4. Снижение "мокрых" процессов на стройплощадке: Отсутствует необходимость в укладке утеплителя и оштукатуривании фасада с нуля.
  5. Экономия трудозатрат и сроков строительства: Монтаж крупноразмерных панелей краном значительно быстрее кирпичной кладки или устройства монолитных стен.
Ранее смотрели
Гипсобетонные и шлакобетонные перегородки Серия ИИ 03-04 ПГ 6-13 а (ИИ 03-04)
ПГ 6-13 а (ИИ 03-04)
Гипсобетонные и шлакобетонные перегородки Серия ИИ 03-04
Гипсобетонные и шлакобетонные перегородки Серия ИИ 03-04 ПГ 2 а (ИИ 03-04)
ПГ 2 а (ИИ 03-04)
Гипсобетонные и шлакобетонные перегородки Серия ИИ 03-04
Гипсобетонные и шлакобетонные перегородки Серия ИИ 03-04 ПГ 1 а (ИИ 03-04)
ПГ 1 а (ИИ 03-04)
Гипсобетонные и шлакобетонные перегородки Серия ИИ 03-04
ПШ 6 а (ИИ 03-04)
ПШ 6 а (ИИ 03-04)
Гипсобетонные и шлакобетонные перегородки Серия ИИ 03-04
Гипсобетонные и шлакобетонные перегородки Серия ИИ 03-04 ПГ 10-13 а (ИИ 03-04)
ПГ 10-13 а (ИИ 03-04)
Гипсобетонные и шлакобетонные перегородки Серия ИИ 03-04
Гипсобетонные и шлакобетонные перегородки Серия ИИ 03-04 ПШ 4 (ИИ 03-04)
ПШ 4 (ИИ 03-04)
Гипсобетонные и шлакобетонные перегородки Серия ИИ 03-04
Гипсобетонные и шлакобетонные перегородки Серия ИИ 03-04 ПГ 15 а (ИИ 03-04)
ПГ 15 а (ИИ 03-04)
Гипсобетонные и шлакобетонные перегородки Серия ИИ 03-04
Гипсобетонные и шлакобетонные перегородки Серия ИИ 03-04 ПШ 1 (ИИ 03-04)
ПШ 1 (ИИ 03-04)
Гипсобетонные и шлакобетонные перегородки Серия ИИ 03-04

Уведомление о файлах cookie

Мы используем файлы cookie для улучшения вашего опыта просмотра и анализа трафика. Нажимая "Принять все", вы соглашаетесь с нашей политикой конфиденциальности и политикой обработки файлов cookie.

Дзен Телеграм Вконтакте vk