mobile_sound +7 (930) 655-55-90

Ступени Серия ИИ 03-02

Поделиться:
Фильтр по характеристикам
Длина (мм.)
keyboard_arrow_down
мм.
мм.
Ширина (мм.)
keyboard_arrow_down
мм.
мм.
Высота (мм.)
keyboard_arrow_down
мм.
мм.
Вес (кг.)
keyboard_arrow_down
кг.
кг.
Поделиться:

Ступени серии ИИ 03-02 от завода "Бетон365" — это готовое решение для быстрого и надежного обустройства входных групп и лестничных маршей в жилых и общественных зданиях. Изготовленные из тяжелого бетона с соблюдением требований ГОСТ, эти железобетонные изделия обеспечивают исключительную прочность и устойчивость к интенсивным эксплуатационным нагрузкам. Применение готовых ступеней позволяет оптимизировать строительные процессы, гарантируя точность геометрии и долговечность конструкции даже в условиях повышенной влажности и перепадов температур.

В Москве и Московской области вы можете купить ступени ИИ 03-02 непосредственно от производителя по конкурентной цене, что обеспечивает значительную экономию без посредников. Мы организуем оперативную доставку на объект и предоставляем гарантию на всю продукцию. Для расчета стоимости и оформления заказа достаточно связаться с нашими специалистами по телефону.

СВ 14
Ступени Серия ИИ 03-02
  • Длина 1445 мм.
  • Ширина 290 мм.
  • Высота 190 мм.
  • Вес 115 кг.
  • Объем бетона 0,046 м3
  • Геометрический объем 0,0796 м3
Цена: 1116 руб.
Подробнее
СВ 14-1
Ступени Серия ИИ 03-02
  • Длина 1350 мм.
  • Ширина 290 мм.
  • Высота 190 мм.
  • Вес 105 кг.
  • Объем бетона 0,042 м3
  • Геометрический объем 0,0744 м3
Цена: 1019 руб.
Подробнее
СВ 14-2
Ступени Серия ИИ 03-02
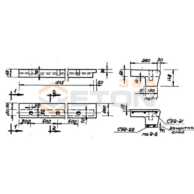
  • Длина 1545 мм.
  • Ширина 290 мм.
  • Высота 148 мм.
  • Вес 110 кг.
  • Объем бетона 0,044 м3
  • Геометрический объем 0,0663 м3
Цена: 1067 руб.
Подробнее
СН 14
Ступени Серия ИИ 03-02
  • Длина 1350 мм.
  • Ширина 310 мм.
  • Высота 124 мм.
  • Вес 75 кг.
  • Объем бетона 0,03 м3
  • Геометрический объем 0,0519 м3
Цена: 728 руб.
Подробнее
СО 14
Ступени Серия ИИ 03-02
  • Длина 1350 мм.
  • Ширина 380 мм.
  • Высота 190 мм.
  • Вес 150 кг.
  • Объем бетона 0,06 м3
  • Геометрический объем 0,0975 м3
Цена: 1455 руб.
Подробнее
СО 14 а
Ступени Серия ИИ 03-02
  • Длина 1350 мм.
  • Ширина 380 мм.
  • Высота 190 мм.
  • Вес 150 кг.
  • Объем бетона 0,06 м3
  • Геометрический объем 0,0975 м3
Цена: 1455 руб.
Подробнее

Как правильно выбрать - Ступени Серия ИИ 03-02

Ступени Серия ИИ 03-02 представляют собой стандартные железобетонные элементы, предназначенные для возведения наружных и внутренних лестниц в жилых, общественных и промышленных зданиях. Их ключевая функция — формирование безопасных и долговечных маршей. Долговечность всей лестничной конструкции напрямую определяется соответствием выбранных ступеней ИИ 03-02 проектным нагрузкам и агрессивности среды эксплуатации.

Критерии выбора

  • Марка бетона и показатели долговечности: Изделия изготавливаются из тяжелого бетона марки не ниже М300. Обращайте внимание на морозостойкость (F200 для наружных лестниц) и водонепроницаемость (W4).
  • Класс арматуры: Каркас ступеней выполняется из стальной арматуры класса А-III (А400). Проверяйте паспорт на соответствие.
  • Типоразмеры и конфигурация: Ступени ИИ 03-02 имеют стандартные размеры (ширина, высота подступенка и ширина проступи). Убедитесь, что геометрия соответствует рабочим чертежам. Изделия могут быть правыми (ЛС) или левыми (ЛСл).
  • Наличие монтажных элементов: Конструкция предусматривает закладные детали или петли для надежного крепления к косоурам или несущим балкам.
  • Расчетная нагрузка: Уточняйте расчетную нагрузку, на которую рассчитаны ступени, исходя из назначения здания и интенсивности людского потока.
  • Соответствие нормам: Все изделия должны строго соответствовать требованиям серии ИИ 03-02 и ГОСТ 8717.0-84.

Рекомендации по подбору и монтажу

При составлении спецификации на ступени ИИ 03-02 обязательно указывайте не только типоразмер, но и марку (ЛС/ЛСл) для корректного формирования лестничного марша. При приемке партии сверяйте фактические габариты с паспортными данными и визуально оцените качество бетонных поверхностей — отсутствие сколов и трещин критически важно для безопасности.

Монтаж ступеней ИИ 03-02 ведется на цементно-песчаный раствор по подготовленным несущим элементам (косоурам, балкам). Ключевой момент — обеспечение проектного уклона и плотного прилегания каждой ступени по всей площади опирания. Закладные детали должны быть надежно заанкерованы. Для наружных лестниц обязательна организация уклона проступи для водоотвода.

Ответы экспертов на ваши вопросы

Железобетонные ступени серии ИИ 03-02 обладают рядом преимуществ: высокая прочность и долговечность благодаря армированию, устойчивость к атмосферным воздействиям и перепадам температур, пожаробезопасность, стандартизированные размеры, обеспечивающие простоту монтажа, и относительно невысокая стоимость по сравнению с некоторыми другими материалами.

Производство и применение ступеней серии ИИ 03-02 регламентируется серией рабочих чертежей ИИ-03-02, а также общими строительными нормами и правилами, такими как СП (Своды Правил) и ГОСТы на бетонные и железобетонные конструкции (например, ГОСТ 13015-2003 "Изделия бетонные и железобетонные для строительства. Общие технические условия").

Типовые размеры ступеней серии ИИ 03-02 стандартизированы. Как правило, ширина проступи (горизонтальной плоскости) составляет 300 мм, а высота подступенка (вертикальной части) — 150 мм. Длина ступеней может варьироваться в зависимости от типоразмера (например, 1200 мм, 1500 мм). Изделия изготавливаются из тяжелого бетона класса не ниже В15 (М200) и армируются стальной сеткой.

Монтаж ступеней ИИ 03-02 осуществляется на подготовленные несущие конструкции (косоуры, тетивы) из железобетона или металла. Ступени укладываются на цементно-песчаный раствор. Важно обеспечить точное соответствие проекту и надежное опирание. Данная серия предназначена для устройства наружных и внутренних лестниц в жилых, общественных и промышленных зданиях с нормальными и слабоагрессивными условиями эксплуатации.

Качество ступеней серии ИИ 03-02 обеспечивается строгим соблюдением технологического процесса на заводе-изготовителе ЖБИ. Контроль включает в себя проверку качества бетонной смеси, правильности армирования, соблюдения геометрических размеров, прочности бетона (испытание контрольных образцов), а также внешнего вида изделий (отсутствие трещин, раковин). Изделия должны сопровождаться паспортом качества.

Ранее смотрели
Колонны железобетонные Серия 1.423.1-5/88 1К 120-7 м3 с
1К 120-7 м3 с
Колонны железобетонные Серия 1.423.1-5/88
Плиты ребристые серия 1.465.1-20 ( 1.465.1-7/84 ) 2ПГ 6-6 АIII
2ПГ 6-6 АIII
Плиты ребристые серия 1.465.1-20 ( 1.465.1-7/84 )
К 16в-12 т-22 (1.420-13)
К 16в-12 т-22 (1.420-13)
Колонны Серия 1.420-13
1РДР 6-86-30 АтVд
1РДР 6-86-30 АтVд
Ригели для опирания ребристых плит перекрытия и плит типа ТТ Серия 1.020.1-4
Панели парапета трехслойные Серия 1.138.1-18 3НЧ 60-25-30-150 т-1,1-2 (1.138.1-18)
3НЧ 60-25-30-150 т-1,1-2 (1.138.1-18)
Панели парапета трехслойные Серия 1.138.1-18
2ПСП 60-30-1,6-1 т
2ПСП 60-30-1,6-1 т
Панели внутренних цокольных стен Серия 1.220.1-2
Р 2-52-42 т
Р 2-52-42 т
Ригели связного каркаса с сечением колонн 30х30 см Серия ИИ 04-3
Балки Серия 3.501.1-165 Б 18 п 2в-д
Б 18 п 2в-д
Балки Серия 3.501.1-165

Уведомление о файлах cookie

Мы используем файлы cookie для улучшения вашего опыта просмотра и анализа трафика. Нажимая "Принять все", вы соглашаетесь с нашей политикой конфиденциальности и политикой обработки файлов cookie.

Дзен Телеграм Вконтакте vk