mobile_sound +7 (930) 655-55-90

Ступени основные Серия 1.155-1

Поделиться:
Фильтр по характеристикам
Длина (мм.)
keyboard_arrow_down
мм.
мм.
Ширина (мм.)
keyboard_arrow_down
мм.
мм.
Высота (мм.)
keyboard_arrow_down
мм.
мм.
Вес (кг.)
keyboard_arrow_down
кг.
кг.
Поделиться:

Завод "Бетон365" производит ступени основные серии 1.155-1 – надежные железобетонные элементы, которые служат основой для создания безопасных и долговечных лестничных маршей. Эти изделия изготавливаются в строгом соответствии с ГОСТ, что гарантирует их устойчивость к интенсивным нагрузкам и воздействию окружающей среды. Использование готовых ступеней значительно упрощает монтаж лестничных конструкций, сокращает сроки строительства и обеспечивает стабильность всей архитектурной композиции.

Мы реализуем ступени основные серии 1.155-1 по конкурентной цене от производителя в Москве и Московской области. Предлагаем выгодные условия для оптовых и розничных покупателей с гарантией качества на всю продукцию. Доставка осуществляется в кратчайшие сроки на любой объект. Чтобы купить эти железобетонные ступени или получить консультацию специалиста, просто свяжитесь с нами по телефону.

ЛС 11 (1.155-1)
Ступени основные Серия 1.155-1
  • Длина 1050 мм.
  • Ширина 380 мм.
  • Высота 148 мм.
  • Вес 113 кг.
  • Объем бетона 0,041 м3
  • Геометрический объем 0,0591 м3
Цена: 994 руб.
Подробнее
ЛС 11-17 (1.155-1)
Ступени основные Серия 1.155-1
  • Длина 1050 мм.
  • Ширина 340 мм.
  • Высота 171 мм.
  • Вес 110 кг.
  • Объем бетона 0,041 м3
  • Геометрический объем 0,061 м3
Цена: 994 руб.
Подробнее
ЛС 12 (1.155-1)
Ступени основные Серия 1.155-1
  • Длина 1200 мм.
  • Ширина 380 мм.
  • Высота 148 мм.
  • Вес 133 кг.
  • Объем бетона 0,047 м3
  • Геометрический объем 0,0675 м3
Цена: 1140 руб.
Подробнее
ЛС 12-17 (1.155-1)
Ступени основные Серия 1.155-1
  • Длина 1200 мм.
  • Ширина 340 мм.
  • Высота 171 мм.
  • Вес 130 кг.
  • Объем бетона 0,047 м3
  • Геометрический объем 0,0698 м3
Цена: 1140 руб.
Подробнее
ЛС 14 (1.155-1)
Ступени основные Серия 1.155-1
  • Длина 1350 мм.
  • Ширина 380 мм.
  • Высота 148 мм.
  • Вес 150 кг.
  • Объем бетона 0,053 м3
  • Геометрический объем 0,0759 м3
Цена: 1285 руб.
Подробнее
ЛС 15 (1.155-1)
Ступени основные Серия 1.155-1
  • Длина 1500 мм.
  • Ширина 380 мм.
  • Высота 148 мм.
  • Вес 168 кг.
  • Объем бетона 0,059 м3
  • Геометрический объем 0,0844 м3
Цена: 1431 руб.
Подробнее
ЛС 18 (1.155-1)
Ступени основные Серия 1.155-1
  • Длина 1750 мм.
  • Ширина 380 мм.
  • Высота 148 мм.
  • Вес 192 кг.
  • Объем бетона 0,07 м3
  • Геометрический объем 0,0984 м3
Цена: 1698 руб.
Подробнее
ЛС 9-17 (1.155-1)
Ступени основные Серия 1.155-1
  • Длина 900 мм.
  • Ширина 340 мм.
  • Высота 171 мм.
  • Вес 100 кг.
  • Объем бетона 0,035 м3
  • Геометрический объем 0,0523 м3
Цена: 849 руб.
Подробнее
ЛС 22 (1.155-1)
Ступени основные Серия 1.155-1
  • Длина 2200 мм.
  • Ширина 380 мм.
  • Высота 148 мм.
  • Вес 245 кг.
  • Объем бетона 0,086 м3
  • Геометрический объем 0,1237 м3
Цена: 2086 руб.
Подробнее

Как правильно выбрать - Ступени основные Серия 1.155-1

Ступени основные Серия 1.155-1 предназначены для возведения монолитных железобетонных лестниц в жилых, общественных и промышленных зданиях. Они служат несъемной опалубкой и несущим каркасом, обеспечивая точную геометрию маршей. Успешная эксплуатация лестничного узла целиком зависит от соответствия выбранных ступеней Серии 1.155-1 проектным нагрузкам и специфическим условиям строительной площадки.

Критерии выбора

  • Марка и класс бетона: Изделия изготавливаются из тяжелого бетона марки не ниже М300 (класс В22,5), что гарантирует высокую прочность на сжатие и истираемость.
  • Морозостойкость и водонепроницаемость: Для наружных лестниц или неотапливаемых помещений критически важна морозостойкость F200 и водонепроницаемость W4-W6.
  • Армирование: Каркас ступеней должен быть выполнен из арматурной стали класса А-III (А400С). Проверяйте наличие монтажных петель для безопасной строповки.
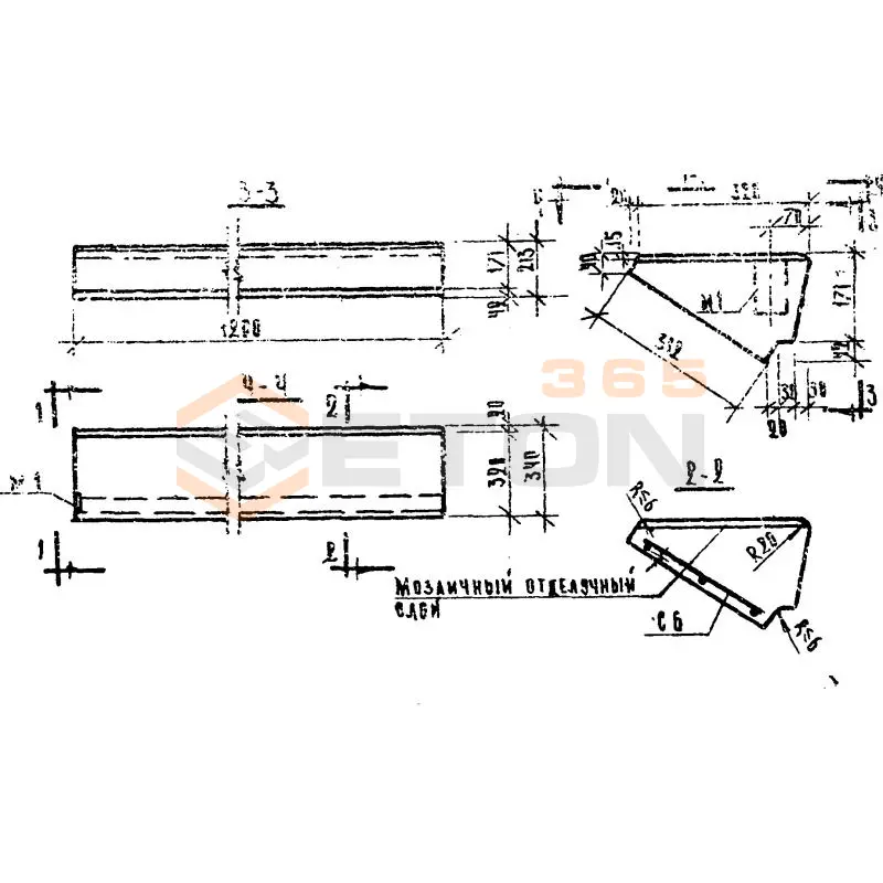
  • Геометрия и типоразмер: Строго сверяйте габаритные размеры (высоту подступенка и ширину проступи) с рабочими чертежами. Серия 1.155-1 включает стандартные размеры, их отклонения недопустимы.
  • Наличие закладных: Уточните необходимость и расположение закладных деталей для крепления ограждений, что избавит от последующего дорогостоящего алмазного сверления.
  • Соответствие нормативам: Все ступени должны иметь паспорт качества, подтверждающий изготовление в соответствии с серией 1.155-1 и ГОСТ 13015-2012.

Рекомендации по подбору и монтажу

При составлении спецификации на ступени основные по Серии 1.155-1 обязательно учитывайте направление подъема (левые или правые) и этапность монтажа. Заказывайте изделия единой заводской партией для исключения расхождения в оттенках бетона и геометрии. Требуйте от поставщика полный комплект технической документации.

На этапе монтажа ключевым является обеспечение надежного соединения ступеней с несущими балками (косоурами) и между собой. Арматурные выпуски должны быть качественно замоноличены. Перед бетонированием швов убедитесь в правильности установки всех элементов по уровню и в одной плоскости, используя контрольный шаблон. Это предотвратит образование перекосов и последующее растрескивание отделочного покрытия.

Ответы экспертов на ваши вопросы

Ступени серии 1.155-1 изготавливаются из тяжелого бетона класса В25-В30. Стандартная длина составляет 1200 мм и 1500 мм, ширина - 300 мм и 330 мм, высота - 150 мм. Рабочая арматура выполняется из стальной арматуры класса А-III. Масса изделий варьируется от 90 до 135 кг в зависимости от типоразмера. Поверхность ступеней имеет рифление для обеспечения безопасного передвижения.

Монтаж ступеней осуществляется на несущие конструкции лестничных маршей - косоуры или тетивы. Перед установкой необходимо проверить горизонтальность опорных поверхностей. Ступени укладываются на цементно-песчаный раствор марки не ниже М100. Обязательно соблюдение проектных уклонов и обеспечение водоотвода. Швы между ступенями должны быть равномерными и заполняться раствором.

Основные преимущества: высокая прочность и долговечность (срок службы более 50 лет), огнестойкость, устойчивость к атмосферным воздействиям, минимальные требования к обслуживанию. Рифленая поверхность обеспечивает безопасность при эксплуатации в любое время года. Стандартизированные размеры позволяют легко интегрировать изделия в типовые проекты.

Ступени серии 1.155-1 предназначены для наружных и внутренних лестниц с уклоном не более 1:2. Не рекомендуется применять в условиях агрессивных сред без дополнительной защиты. Максимальная расчетная нагрузка - 300 кгс/м². При монтаже в сейсмических районах требуется дополнительное армирование и специальные конструктивные решения.

Производство осуществляется согласно ГОСТ 9818-85 и серии 1.155-1. Контроль качества включает проверку прочности бетона, геометрических параметров, качества поверхности и армирования. Каждое изделие маркируется с указанием даты изготовления, марки бетона и номера партии. Сертификаты качества подтверждают соответствие требованиям нормативной документации.

Ранее смотрели
Лежни Серия 3.503-41 Л 2 (3.503-41)
Л 2 (3.503-41)
Лежни Серия 3.503-41
Лежни Серия 3.503-41 Л 5 (3.503-41)
Л 5 (3.503-41)
Лежни Серия 3.503-41
Фундаментные блоки сплошные с вырезом ФБВ серия 1.116.1-8 и ГОСТ 13579-78 ФБВ 9-5-6 с
ФБВ 9-5-6 с
Фундаментные блоки сплошные с вырезом ФБВ серия 1.116.1-8 и ГОСТ 13579-78
Межколонные плиты (МП) Серия 1.420.1-25 МП 2-1
МП 2-1
Межколонные плиты (МП) Серия 1.420.1-25
Лежни Серия 3.503-41 Л 4 АII (3.503-41)
Л 4 АII (3.503-41)
Лежни Серия 3.503-41
РПС 12-37,5-6 АIII
РПС 12-37,5-6 АIII
Полурамы Серия 1.822.1-6
ШЛН 12-40 (1.189.1-11)
ШЛН 12-40 (1.189.1-11)
Блоки шахт лифтов Серия 1.189.1-11
1ПР 1 п (ГОСТ 26992-86)
1ПР 1 п (ГОСТ 26992-86)
Прогоны железобетонные ГОСТ 26992-86

Уведомление о файлах cookie

Мы используем файлы cookie для улучшения вашего опыта просмотра и анализа трафика. Нажимая "Принять все", вы соглашаетесь с нашей политикой конфиденциальности и политикой обработки файлов cookie.

Дзен Телеграм Вконтакте vk