mobile_sound +7 (930) 655-55-90

Лестничные площадки Серия ИИ 41

Поделиться:
Фильтр по характеристикам
Длина (мм.)
keyboard_arrow_down
мм.
мм.
Ширина (мм.)
keyboard_arrow_down
мм.
мм.
Высота (мм.)
keyboard_arrow_down
мм.
мм.
Вес (кг.)
keyboard_arrow_down
кг.
кг.
Поделиться:

Завод "Бетон365" производит лестничные площадки серии ИИ 41 – ключевые элементы для создания безопасных и долговечных лестничных маршей в жилых и общественных зданиях. Эти железобетонные изделия изготавливаются в строгом соответствии с ГОСТ, обеспечивая равномерное распределение нагрузок и повышенную устойчивость конструкции. Применение готовых площадок значительно упрощает монтаж и сокращает сроки строительства, гарантируя надежность на десятилетия вперед.

Предлагаем купить лестничные площадки серии ИИ 41 в Москве и МО по выгодной цене от производителя. Вам доступна оперативная доставка на объект и гарантия качества на всю продукцию. Для уточнения характеристик и оформления заказа звоните нашим специалистам – поможем подобрать оптимальное решение для вашего проекта.

ЛП (ИИ 41)
Лестничные площадки Серия ИИ 41
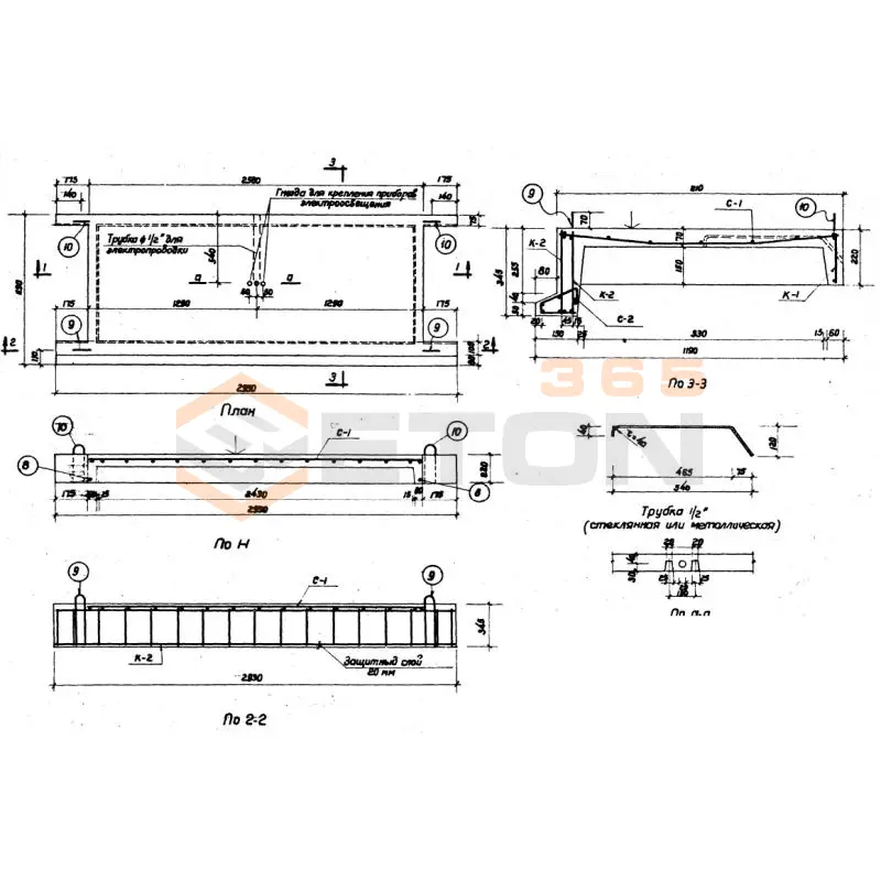
  • Длина 2930 мм.
  • Ширина 1190 мм.
  • Высота 345 мм.
  • Вес 860 кг.
  • Объем бетона 0,344 м3
  • Геометрический объем 1,2029 м3
Цена: 7675 руб.
Подробнее

Как правильно выбрать - Лестничные площадки Серия ИИ 41

Лестничные площадки Серия ИИ 41 — это горизонтальные железобетонные элементы, предназначенные для организации лестничных маршей в жилых, общественных и промышленных зданиях. Они служат опорой для лестничных маршей и обеспечивают безопасное перемещение между этажами. Надежность и долговечность всей лестничной клетки напрямую зависят от соответствия выбранных площадок проектным нагрузкам и условиям эксплуатации.

Критерии выбора

  • Марка бетона и прочностные характеристики: Изделия изготавливаются из тяжелого бетона марки не ниже М300, с морозостойкостью F200 и водонепроницаемостью W4 для обеспечения долговечности.
  • Класс арматуры: Применяется напрягаемая и ненапрягаемая арматура классов Ат-V, А-III, что гарантирует необходимую несущую способность.
  • Типоразмеры и конфигурация: Строгое соответствие габаритным размерам, указанным в серии ИИ 41. Проверяйте наличие и расположение монтажных петель, опорных площадок («лапок») для крепления маршей.
  • Расчетная нагрузка: Уточняйте расчетную равномерно распределенную нагрузку (например, 3600/4800 Па), которая должна соответствовать проектным значениям для конкретного здания.
  • Соответствие нормам: Обязательное соответствие рабочим чертежам серии ИИ 41 и ГОСТ 9818-2020 на сборные железобетонные лестничные марши и площадки.

Рекомендации по подбору и монтажу

При составлении спецификации на лестничные площадки Серия ИИ 41 обращайте внимание на индексацию изделий (например, 1ЛП, 2ЛП), которая указывает на их тип и ориентацию. Требуйте паспорт качества, где указаны фактические прочностные характеристики бетона и дата изготовления. Убедитесь, что поставка комплектная и включает все необходимые модификации для объекта.

На этапе монтажа критически важна правильная подготовка опорных поверхностей (консольных выступов в стенах или ригелей). Проверьте горизонтальность укладки с помощью нивелира. Надежное анкерование площадки к несущим конструкциям исключит ее смещение и появление трещин. При монтаже лестничных площадок Серия ИИ 41 следите за правильным опиранием маршей и герметизацией швов для предотвращения протечек.

Ответы экспертов на ваши вопросы

Лестничные площадки серии ИИ 41 представляют собой железобетонные изделия, предназначенные для монтажа лестничных маршей в жилых и общественных зданиях. Основные характеристики:

  • Стандартная длина: 1200-1400 мм
  • Ширина: 900-1200 мм
  • Толщина: 100-120 мм
  • Класс бетона: В15-В25
  • Марка по морозостойкости: F100-F150
  • Рабочая нагрузка: 300-400 кг/м²
  • Армирование: предварительно напряженная арматура класса А-III

При монтаже лестничных площадок серии ИИ 41 необходимо соблюдать следующие требования:

  • Укладка на подготовленное основание с выверкой по горизонтали
  • Обеспечение проектного положения относительно стен и лестничных маршей
  • Заделка швов и стыков цементно-песчаным раствором марки не ниже М100
  • Контроль несущей способности опорных конструкций
  • Соблюдение температурно-влажностного режима при производстве работ
  • Проверка качества анкеровки и закрепления

Основные преимущества лестничных площадок серии ИИ 41:

  • Высокая прочность и долговечность (срок службы 50+ лет)
  • Унификация размеров и стандартизация конструкции
  • Огнестойкость (предел огнестойкости REI 60-90)
  • Устойчивость к атмосферным воздействиям
  • Быстрота монтажа за счет типовых решений
  • Экономическая эффективность при серийном производстве
  • Соответствие требованиям СНиП и ГОСТ

Маркировка лестничных площадок серии ИИ 41 содержит следующую информацию:

  • Серия ИИ 41 - индекс типа изделия
  • Цифровое обозначение типоразмера (например, 1ЛП, 2ЛП)
  • Габаритные размеры в дециметрах
  • Несущая способность в кН/м²
  • Дата изготовления
  • Марка завода-изготовителя
  • Знак соответствия ГОСТ Пример маркировки: ИИ 41-1ЛП 12.9-300

Условия хранения и транспортировки лестничных площадок серии ИИ 41:

  • Хранение в штабелях высотой не более 2,5 м на ровной площадке
  • Прокладки между изделиями толщиной не менее 50 мм
  • Защита от прямого воздействия атмосферных осадков
  • Транспортировка в горизонтальном положении на специальных подкладках
  • Крепление груза при перевозке для исключения смещения
  • Запрещается сбрасывание изделий при разгрузке
  • Температурный режим хранения: от -40°C до +40°C
Ранее смотрели
Лестничные площадки плоские 1ЛП ГОСТ 9818-2015 1ЛП 22-16-4 ЛК (ГОСТ 9818-2015)
1ЛП 22-16-4 ЛК (ГОСТ 9818-2015)
Лестничные площадки плоские 1ЛП ГОСТ 9818-2015
Балки двускатные решетчатые Серия 1.462.1-3/80 1БДР 18-1 АтпVт п (1.462.1-3/80)
1БДР 18-1 АтпVт п (1.462.1-3/80)
Балки двускатные решетчатые Серия 1.462.1-3/80
Балки двускатные решетчатые Серия 1.462.1-3/80 1БДР 12-2 АтпVт н (1.462.1-3/80)
1БДР 12-2 АтпVт н (1.462.1-3/80)
Балки двускатные решетчатые Серия 1.462.1-3/80
Люки чугунные для смотровых колодцев ГОСТ 3634-99 Ремонтная вставка Р Т (С250)
Ремонтная вставка Р Т (С250)
Люки чугунные для смотровых колодцев ГОСТ 3634-99
2ПР 1 АтVск п (ГОСТ 26992-86)
2ПР 1 АтVск п (ГОСТ 26992-86)
Прогоны железобетонные ГОСТ 26992-86
2ПР 3 АтVск н (ГОСТ 26992-86)
2ПР 3 АтVск н (ГОСТ 26992-86)
Прогоны железобетонные ГОСТ 26992-86
Лестничные марши ребристые с полуплощадками ГОСТ 9818-2015 ЛМП 57-11-17-5-2 (ГОСТ 9818-2015)
ЛМП 57-11-17-5-2 (ГОСТ 9818-2015)
Лестничные марши ребристые с полуплощадками ГОСТ 9818-2015

Уведомление о файлах cookie

Мы используем файлы cookie для улучшения вашего опыта просмотра и анализа трафика. Нажимая "Принять все", вы соглашаетесь с нашей политикой конфиденциальности и политикой обработки файлов cookie.

MAX Дзен Телеграм Вконтакте vk