mobile_sound +7 (930) 655-55-90

Лестничные площадки ребристые 2ЛП ГОСТ 9818-2015

Поделиться:
Фильтр по характеристикам
Длина (мм.)
keyboard_arrow_down
мм.
мм.
Ширина (мм.)
keyboard_arrow_down
мм.
мм.
Высота (мм.)
keyboard_arrow_down
мм.
мм.
Вес (кг.)
keyboard_arrow_down
кг.
кг.
Поделиться:

Завод "Бетон365" производит лестничные площадки ребристые 2ЛП по ГОСТ 9818-2015 — ключевые элементы для создания безопасных и долговечных лестничных маршей в жилых и промышленных зданиях. Эти железобетонные изделия отличаются повышенной несущей способностью благодаря ребристой структуре, что обеспечивает оптимальное распределение нагрузок и устойчивость всей лестничной конструкции. Применение готовых площадок значительно ускоряет монтаж и повышает надежность объекта в целом.

Мы реализуем лестничные площадки 2ЛП в Москве и МО по выгодной цене от производителя, с гарантией соответствия ГОСТ. В каталоге представлены изделия с разными параметрами для различных строительных задач. Организуем доставку на объект и проконсультируем по выбору оптимального решения. Чтобы купить качественные ЖБИ без посредников — обращайтесь к нам!

2ЛП 22-13-4 К (ГОСТ 9818-2015)
Лестничные площадки ребристые 2ЛП ГОСТ 9818-2015
  • Длина 2200 мм.
  • Ширина 1300 мм.
  • Высота 320 мм.
  • Вес 980 кг.
  • Объем бетона 0,39 м3
  • Геометрический объем 0,9152 м3
Цена: 5675 руб.
Подробнее
2ЛП 22-13-4 (ГОСТ 9818-2015)
Лестничные площадки ребристые 2ЛП ГОСТ 9818-2015
  • Длина 2200 мм.
  • Ширина 1300 мм.
  • Высота 320 мм.
  • Вес 980 кг.
  • Объем бетона 0,39 м3
  • Геометрический объем 0,9152 м3
Цена: 5675 руб.
Подробнее
2ЛП 22-13-4 к (ГОСТ 9818-2015)
Лестничные площадки ребристые 2ЛП ГОСТ 9818-2015
  • Длина 2480 мм.
  • Ширина 1300 мм.
  • Высота 320 мм.
  • Вес 1030 кг.
  • Объем бетона 0,41 м3
  • Геометрический объем 1,0317 м3
Цена: 5966 руб.
Подробнее
2ЛП 22-13-4 кК (ГОСТ 9818-2015)
Лестничные площадки ребристые 2ЛП ГОСТ 9818-2015
  • Длина 2480 мм.
  • Ширина 1300 мм.
  • Высота 320 мм.
  • Вес 1030 кг.
  • Объем бетона 0,41 м3
  • Геометрический объем 1,0317 м3
Цена: 5966 руб.
Подробнее
2ЛП 22-13-4 кШ (ГОСТ 9818-2015)
Лестничные площадки ребристые 2ЛП ГОСТ 9818-2015
  • Длина 2480 мм.
  • Ширина 1300 мм.
  • Высота 320 мм.
  • Вес 1030 кг.
  • Объем бетона 0,41 м3
  • Геометрический объем 1,0317 м3
Цена: 5966 руб.
Подробнее
2ЛП 22-13-4 Л (ГОСТ 9818-2015)
Лестничные площадки ребристые 2ЛП ГОСТ 9818-2015
  • Длина 2200 мм.
  • Ширина 1300 мм.
  • Высота 320 мм.
  • Вес 840 кг.
  • Объем бетона 0,39 м3
  • Геометрический объем 0,9152 м3
Цена: 5675 руб.
Подробнее
2ЛП 22-13-4 Лк (ГОСТ 9818-2015)
Лестничные площадки ребристые 2ЛП ГОСТ 9818-2015
  • Длина 2480 мм.
  • Ширина 1300 мм.
  • Высота 320 мм.
  • Вес 900 кг.
  • Объем бетона 0,41 м3
  • Геометрический объем 1,0317 м3
Цена: 5966 руб.
Подробнее
2ЛП 22-13-4 ЛК (ГОСТ 9818-2015)
Лестничные площадки ребристые 2ЛП ГОСТ 9818-2015
  • Длина 2200 мм.
  • Ширина 1300 мм.
  • Высота 320 мм.
  • Вес 840 кг.
  • Объем бетона 0,39 м3
  • Геометрический объем 0,9152 м3
Цена: 5675 руб.
Подробнее
2ЛП 22-13-4 ЛкШ (ГОСТ 9818-2015)
Лестничные площадки ребристые 2ЛП ГОСТ 9818-2015
  • Длина 2480 мм.
  • Ширина 1300 мм.
  • Высота 320 мм.
  • Вес 900 кг.
  • Объем бетона 0,41 м3
  • Геометрический объем 1,0317 м3
Цена: 5966 руб.
Подробнее
2ЛП 22-13-4 ЛкК (ГОСТ 9818-2015)
Лестничные площадки ребристые 2ЛП ГОСТ 9818-2015
  • Длина 2480 мм.
  • Ширина 1300 мм.
  • Высота 320 мм.
  • Вес 900 кг.
  • Объем бетона 0,41 м3
  • Геометрический объем 1,0317 м3
Цена: 5966 руб.
Подробнее
2ЛП 22-13в-4 К (ГОСТ 9818-2015)
Лестничные площадки ребристые 2ЛП ГОСТ 9818-2015
  • Длина 2200 мм.
  • Ширина 1300 мм.
  • Высота 320 мм.
  • Вес 1000 кг.
  • Объем бетона 0,4 м3
  • Геометрический объем 0,9152 м3
Цена: 5820 руб.
Подробнее
2ЛП 22-13-4 Ш (ГОСТ 9818-2015)
Лестничные площадки ребристые 2ЛП ГОСТ 9818-2015
  • Длина 2200 мм.
  • Ширина 1300 мм.
  • Высота 320 мм.
  • Вес 980 кг.
  • Объем бетона 0,39 м3
  • Геометрический объем 0,9152 м3
Цена: 5675 руб.
Подробнее
2ЛП 22-13-4 ЛШ (ГОСТ 9818-2015)
Лестничные площадки ребристые 2ЛП ГОСТ 9818-2015
  • Длина 2200 мм.
  • Ширина 1300 мм.
  • Высота 320 мм.
  • Вес 840 кг.
  • Объем бетона 0,39 м3
  • Геометрический объем 0,9152 м3
Цена: 5675 руб.
Подробнее
2ЛП 22-13в-4 (ГОСТ 9818-2015)
Лестничные площадки ребристые 2ЛП ГОСТ 9818-2015
  • Длина 2200 мм.
  • Ширина 1300 мм.
  • Высота 320 мм.
  • Вес 1000 кг.
  • Объем бетона 0,4 м3
  • Геометрический объем 0,9152 м3
Цена: 5820 руб.
Подробнее
2ЛП 22-13в-4 кК (ГОСТ 9818-2015)
Лестничные площадки ребристые 2ЛП ГОСТ 9818-2015
  • Длина 2480 мм.
  • Ширина 1300 мм.
  • Высота 320 мм.
  • Вес 1050 кг.
  • Объем бетона 0,42 м3
  • Геометрический объем 1,0317 м3
Цена: 6111 руб.
Подробнее
2ЛП 22-13в-4 к (ГОСТ 9818-2015)
Лестничные площадки ребристые 2ЛП ГОСТ 9818-2015
  • Длина 2480 мм.
  • Ширина 1300 мм.
  • Высота 320 мм.
  • Вес 1050 кг.
  • Объем бетона 0,42 м3
  • Геометрический объем 1,0317 м3
Цена: 6111 руб.
Подробнее
2ЛП 22-13в-4 кШ (ГОСТ 9818-2015)
Лестничные площадки ребристые 2ЛП ГОСТ 9818-2015
  • Длина 2480 мм.
  • Ширина 1300 мм.
  • Высота 320 мм.
  • Вес 1050 кг.
  • Объем бетона 0,42 м3
  • Геометрический объем 1,0317 м3
Цена: 6111 руб.
Подробнее
2ЛП 22-13в-4 ЛК (ГОСТ 9818-2015)
Лестничные площадки ребристые 2ЛП ГОСТ 9818-2015
  • Длина 2200 мм.
  • Ширина 1300 мм.
  • Высота 320 мм.
  • Вес 840 кг.
  • Объем бетона 0,39 м3
  • Геометрический объем 0,9152 м3
Цена: 5675 руб.
Подробнее
2ЛП 22-13в-4 Л (ГОСТ 9818-2015)
Лестничные площадки ребристые 2ЛП ГОСТ 9818-2015
  • Длина 2200 мм.
  • Ширина 1300 мм.
  • Высота 320 мм.
  • Вес 840 кг.
  • Объем бетона 0,39 м3
  • Геометрический объем 0,9152 м3
Цена: 5675 руб.
Подробнее
2ЛП 22-13в-4 Лк (ГОСТ 9818-2015)
Лестничные площадки ребристые 2ЛП ГОСТ 9818-2015
  • Длина 2480 мм.
  • Ширина 1300 мм.
  • Высота 320 мм.
  • Вес 920 кг.
  • Объем бетона 0,42 м3
  • Геометрический объем 1,0317 м3
Цена: 6111 руб.
Подробнее
2ЛП 22-13в-4 ЛкК (ГОСТ 9818-2015)
Лестничные площадки ребристые 2ЛП ГОСТ 9818-2015
  • Длина 2480 мм.
  • Ширина 1300 мм.
  • Высота 320 мм.
  • Вес 920 кг.
  • Объем бетона 0,42 м3
  • Геометрический объем 1,0317 м3
Цена: 6111 руб.
Подробнее
2ЛП 22-13в-4 ЛкШ (ГОСТ 9818-2015)
Лестничные площадки ребристые 2ЛП ГОСТ 9818-2015
  • Длина 2480 мм.
  • Ширина 1300 мм.
  • Высота 320 мм.
  • Вес 920 кг.
  • Объем бетона 0,42 м3
  • Геометрический объем 1,0317 м3
Цена: 6111 руб.
Подробнее
2ЛП 22-13в-4 ЛШ (ГОСТ 9818-2015)
Лестничные площадки ребристые 2ЛП ГОСТ 9818-2015
  • Длина 2200 мм.
  • Ширина 1300 мм.
  • Высота 320 мм.
  • Вес 840 кг.
  • Объем бетона 0,39 м3
  • Геометрический объем 0,9152 м3
Цена: 5675 руб.
Подробнее
2ЛП 22-16-4 (ГОСТ 9818-2015)
Лестничные площадки ребристые 2ЛП ГОСТ 9818-2015
  • Длина 2200 мм.
  • Ширина 1600 мм.
  • Высота 320 мм.
  • Вес 1130 кг.
  • Объем бетона 0,45 м3
  • Геометрический объем 1,1264 м3
Цена: 6548 руб.
Подробнее
2ЛП 22-13в-4 Ш (ГОСТ 9818-2015)
Лестничные площадки ребристые 2ЛП ГОСТ 9818-2015
  • Длина 2200 мм.
  • Ширина 1300 мм.
  • Высота 320 мм.
  • Вес 1000 кг.
  • Объем бетона 0,4 м3
  • Геометрический объем 0,9152 м3
Цена: 5820 руб.
Подробнее
2ЛП 22-16-4 К (ГОСТ 9818-2015)
Лестничные площадки ребристые 2ЛП ГОСТ 9818-2015
  • Длина 2200 мм.
  • Ширина 1600 мм.
  • Высота 320 мм.
  • Вес 1130 кг.
  • Объем бетона 0,45 м3
  • Геометрический объем 1,1264 м3
Цена: 6548 руб.
Подробнее
2ЛП 22-16-4 к (ГОСТ 9818-2015)
Лестничные площадки ребристые 2ЛП ГОСТ 9818-2015
  • Длина 2480 мм.
  • Ширина 1600 мм.
  • Высота 320 мм.
  • Вес 1200 кг.
  • Объем бетона 0,48 м3
  • Геометрический объем 1,2698 м3
Цена: 6984 руб.
Подробнее
2ЛП 22-16-4 кК (ГОСТ 9818-2015)
Лестничные площадки ребристые 2ЛП ГОСТ 9818-2015
  • Длина 2480 мм.
  • Ширина 1600 мм.
  • Высота 320 мм.
  • Вес 1200 кг.
  • Объем бетона 0,48 м3
  • Геометрический объем 1,2698 м3
Цена: 6984 руб.
Подробнее
2ЛП 22-16-4 ЛК (ГОСТ 9818-2015)
Лестничные площадки ребристые 2ЛП ГОСТ 9818-2015
  • Длина 2200 мм.
  • Ширина 1600 мм.
  • Высота 320 мм.
  • Вес 990 кг.
  • Объем бетона 0,45 м3
  • Геометрический объем 1,1264 м3
Цена: 6548 руб.
Подробнее
2ЛП 22-16-4 кШ (ГОСТ 9818-2015)
Лестничные площадки ребристые 2ЛП ГОСТ 9818-2015
  • Длина 2480 мм.
  • Ширина 1600 мм.
  • Высота 320 мм.
  • Вес 1200 кг.
  • Объем бетона 0,48 м3
  • Геометрический объем 1,2698 м3
Цена: 6984 руб.
Подробнее
2ЛП 22-16-4 Л (ГОСТ 9818-2015)
Лестничные площадки ребристые 2ЛП ГОСТ 9818-2015
  • Длина 2200 мм.
  • Ширина 1600 мм.
  • Высота 320 мм.
  • Вес 990 кг.
  • Объем бетона 0,45 м3
  • Геометрический объем 1,1264 м3
Цена: 6548 руб.
Подробнее
2ЛП 22-16-4 Лк (ГОСТ 9818-2015)
Лестничные площадки ребристые 2ЛП ГОСТ 9818-2015
  • Длина 2480 мм.
  • Ширина 1600 мм.
  • Высота 320 мм.
  • Вес 1040 кг.
  • Объем бетона 0,48 м3
  • Геометрический объем 1,2698 м3
Цена: 6984 руб.
Подробнее
2ЛП 22-16-4 ЛкК (ГОСТ 9818-2015)
Лестничные площадки ребристые 2ЛП ГОСТ 9818-2015
  • Длина 2480 мм.
  • Ширина 1600 мм.
  • Высота 320 мм.
  • Вес 1040 кг.
  • Объем бетона 0,48 м3
  • Геометрический объем 1,2698 м3
Цена: 6984 руб.
Подробнее
2ЛП 22-16-4 ЛкШ (ГОСТ 9818-2015)
Лестничные площадки ребристые 2ЛП ГОСТ 9818-2015
  • Длина 2480 мм.
  • Ширина 1600 мм.
  • Высота 320 мм.
  • Вес 1040 кг.
  • Объем бетона 0,48 м3
  • Геометрический объем 1,2698 м3
Цена: 6984 руб.
Подробнее
2ЛП 22-16-4 ЛШ (ГОСТ 9818-2015)
Лестничные площадки ребристые 2ЛП ГОСТ 9818-2015
  • Длина 2200 мм.
  • Ширина 1600 мм.
  • Высота 320 мм.
  • Вес 990 кг.
  • Объем бетона 0,45 м3
  • Геометрический объем 1,1264 м3
Цена: 6548 руб.
Подробнее
2ЛП 22-16в-4 (ГОСТ 9818-2015)
Лестничные площадки ребристые 2ЛП ГОСТ 9818-2015
  • Длина 2200 мм.
  • Ширина 1600 мм.
  • Высота 320 мм.
  • Вес 1150 кг.
  • Объем бетона 0,46 м3
  • Геометрический объем 1,1264 м3
Цена: 6693 руб.
Подробнее
2ЛП 22-16-4 Ш (ГОСТ 9818-2015)
Лестничные площадки ребристые 2ЛП ГОСТ 9818-2015
  • Длина 2200 мм.
  • Ширина 1600 мм.
  • Высота 320 мм.
  • Вес 1130 кг.
  • Объем бетона 0,45 м3
  • Геометрический объем 1,1264 м3
Цена: 6548 руб.
Подробнее
2ЛП 22-16в-4 К (ГОСТ 9818-2015)
Лестничные площадки ребристые 2ЛП ГОСТ 9818-2015
  • Длина 2200 мм.
  • Ширина 1600 мм.
  • Высота 320 мм.
  • Вес 1150 кг.
  • Объем бетона 0,46 м3
  • Геометрический объем 1,1264 м3
Цена: 6693 руб.
Подробнее
2ЛП 22-16в-4 к (ГОСТ 9818-2015)
Лестничные площадки ребристые 2ЛП ГОСТ 9818-2015
  • Длина 2480 мм.
  • Ширина 1600 мм.
  • Высота 320 мм.
  • Вес 1230 кг.
  • Объем бетона 0,49 м3
  • Геометрический объем 1,2698 м3
Цена: 7130 руб.
Подробнее
2ЛП 22-16в-4 кК (ГОСТ 9818-2015)
Лестничные площадки ребристые 2ЛП ГОСТ 9818-2015
  • Длина 2480 мм.
  • Ширина 1600 мм.
  • Высота 320 мм.
  • Вес 1230 кг.
  • Объем бетона 0,49 м3
  • Геометрический объем 1,2698 м3
Цена: 7130 руб.
Подробнее
2ЛП 22-16в-4 кШ (ГОСТ 9818-2015)
Лестничные площадки ребристые 2ЛП ГОСТ 9818-2015
  • Длина 2480 мм.
  • Ширина 1600 мм.
  • Высота 320 мм.
  • Вес 1230 кг.
  • Объем бетона 0,49 м3
  • Геометрический объем 1,2698 м3
Цена: 7130 руб.
Подробнее
2ЛП 22-16в-4 Л (ГОСТ 9818-2015)
Лестничные площадки ребристые 2ЛП ГОСТ 9818-2015
  • Длина 2200 мм.
  • Ширина 1600 мм.
  • Высота 320 мм.
  • Вес 1010 кг.
  • Объем бетона 0,46 м3
  • Геометрический объем 1,1264 м3
Цена: 6693 руб.
Подробнее
2ЛП 22-16в-4 ЛК (ГОСТ 9818-2015)
Лестничные площадки ребристые 2ЛП ГОСТ 9818-2015
  • Длина 2200 мм.
  • Ширина 1600 мм.
  • Высота 320 мм.
  • Вес 1010 кг.
  • Объем бетона 0,46 м3
  • Геометрический объем 1,1264 м3
Цена: 6693 руб.
Подробнее
2ЛП 22-16в-4 Лк (ГОСТ 9818-2015)
Лестничные площадки ребристые 2ЛП ГОСТ 9818-2015
  • Длина 2480 мм.
  • Ширина 1600 мм.
  • Высота 320 мм.
  • Вес 1060 кг.
  • Объем бетона 0,49 м3
  • Геометрический объем 1,2698 м3
Цена: 7130 руб.
Подробнее
2ЛП 22-16в-4 ЛкК (ГОСТ 9818-2015)
Лестничные площадки ребристые 2ЛП ГОСТ 9818-2015
  • Длина 2480 мм.
  • Ширина 1600 мм.
  • Высота 320 мм.
  • Вес 1060 кг.
  • Объем бетона 0,49 м3
  • Геометрический объем 1,2698 м3
Цена: 7130 руб.
Подробнее
2ЛП 22-16в-4 ЛкШ (ГОСТ 9818-2015)
Лестничные площадки ребристые 2ЛП ГОСТ 9818-2015
  • Длина 2480 мм.
  • Ширина 1600 мм.
  • Высота 320 мм.
  • Вес 1060 кг.
  • Объем бетона 0,49 м3
  • Геометрический объем 1,2698 м3
Цена: 7130 руб.
Подробнее
2ЛП 22-16в-4 ЛШ (ГОСТ 9818-2015)
Лестничные площадки ребристые 2ЛП ГОСТ 9818-2015
  • Длина 2200 мм.
  • Ширина 1600 мм.
  • Высота 320 мм.
  • Вес 1010 кг.
  • Объем бетона 0,46 м3
  • Геометрический объем 1,1264 м3
Цена: 6693 руб.
Подробнее
2ЛП 22-16в-4 Ш (ГОСТ 9818-2015)
Лестничные площадки ребристые 2ЛП ГОСТ 9818-2015
  • Длина 2200 мм.
  • Ширина 1600 мм.
  • Высота 320 мм.
  • Вес 1150 кг.
  • Объем бетона 0,46 м3
  • Геометрический объем 1,1264 м3
Цена: 6693 руб.
Подробнее
2ЛП 22-19-4 (ГОСТ 9818-2015)
Лестничные площадки ребристые 2ЛП ГОСТ 9818-2015
  • Длина 2200 мм.
  • Ширина 1900 мм.
  • Высота 320 мм.
  • Вес 1300 кг.
  • Объем бетона 0,52 м3
  • Геометрический объем 1,3376 м3
Цена: 7566 руб.
Подробнее
2ЛП 22-19-4 К (ГОСТ 9818-2015)
Лестничные площадки ребристые 2ЛП ГОСТ 9818-2015
  • Длина 2200 мм.
  • Ширина 1900 мм.
  • Высота 320 мм.
  • Вес 1300 кг.
  • Объем бетона 0,52 м3
  • Геометрический объем 1,3376 м3
Цена: 7566 руб.
Подробнее
2ЛП 22-19-4 к (ГОСТ 9818-2015)
Лестничные площадки ребристые 2ЛП ГОСТ 9818-2015
  • Длина 2480 мм.
  • Ширина 1900 мм.
  • Высота 320 мм.
  • Вес 1380 кг.
  • Объем бетона 0,55 м3
  • Геометрический объем 1,5078 м3
Цена: 8003 руб.
Подробнее
2ЛП 22-19-4 кК (ГОСТ 9818-2015)
Лестничные площадки ребристые 2ЛП ГОСТ 9818-2015
  • Длина 2480 мм.
  • Ширина 1900 мм.
  • Высота 320 мм.
  • Вес 1380 кг.
  • Объем бетона 0,55 м3
  • Геометрический объем 1,5078 м3
Цена: 8003 руб.
Подробнее
2ЛП 22-19-4 ЛК (ГОСТ 9818-2015)
Лестничные площадки ребристые 2ЛП ГОСТ 9818-2015
  • Длина 2200 мм.
  • Ширина 1900 мм.
  • Высота 320 мм.
  • Вес 1130 кг.
  • Объем бетона 0,52 м3
  • Геометрический объем 1,3376 м3
Цена: 7566 руб.
Подробнее
2ЛП 22-19-4 Лк (ГОСТ 9818-2015)
Лестничные площадки ребристые 2ЛП ГОСТ 9818-2015
  • Длина 2480 мм.
  • Ширина 1900 мм.
  • Высота 320 мм.
  • Вес 1190 кг.
  • Объем бетона 0,55 м3
  • Геометрический объем 1,5078 м3
Цена: 8003 руб.
Подробнее
2ЛП 22-19-4 Л (ГОСТ 9818-2015)
Лестничные площадки ребристые 2ЛП ГОСТ 9818-2015
  • Длина 2200 мм.
  • Ширина 1900 мм.
  • Высота 320 мм.
  • Вес 1130 кг.
  • Объем бетона 0,52 м3
  • Геометрический объем 1,3376 м3
Цена: 7566 руб.
Подробнее
2ЛП 22-19-4 кШ (ГОСТ 9818-2015)
Лестничные площадки ребристые 2ЛП ГОСТ 9818-2015
  • Длина 2480 мм.
  • Ширина 1900 мм.
  • Высота 320 мм.
  • Вес 1380 кг.
  • Объем бетона 0,55 м3
  • Геометрический объем 1,5078 м3
Цена: 8003 руб.
Подробнее
2ЛП 22-19-4 ЛкК (ГОСТ 9818-2015)
Лестничные площадки ребристые 2ЛП ГОСТ 9818-2015
  • Длина 2480 мм.
  • Ширина 1900 мм.
  • Высота 320 мм.
  • Вес 1190 кг.
  • Объем бетона 0,55 м3
  • Геометрический объем 1,5078 м3
Цена: 8003 руб.
Подробнее
2ЛП 22-19-4 ЛкШ (ГОСТ 9818-2015)
Лестничные площадки ребристые 2ЛП ГОСТ 9818-2015
  • Длина 2480 мм.
  • Ширина 1900 мм.
  • Высота 320 мм.
  • Вес 1190 кг.
  • Объем бетона 0,55 м3
  • Геометрический объем 1,5078 м3
Цена: 8003 руб.
Подробнее
2ЛП 22-19-4 ЛШ (ГОСТ 9818-2015)
Лестничные площадки ребристые 2ЛП ГОСТ 9818-2015
  • Длина 2200 мм.
  • Ширина 1900 мм.
  • Высота 320 мм.
  • Вес 1130 кг.
  • Объем бетона 0,52 м3
  • Геометрический объем 1,3376 м3
Цена: 7566 руб.
Подробнее
2ЛП 22-19в-4 (ГОСТ 9818-2015)
Лестничные площадки ребристые 2ЛП ГОСТ 9818-2015
  • Длина 2200 мм.
  • Ширина 1900 мм.
  • Высота 320 мм.
  • Вес 1330 кг.
  • Объем бетона 0,53 м3
  • Геометрический объем 1,3376 м3
Цена: 7712 руб.
Подробнее

Как правильно выбрать - Лестничные площадки ребристые 2ЛП ГОСТ 9818-2015

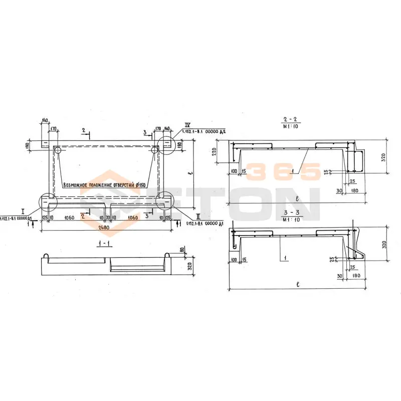
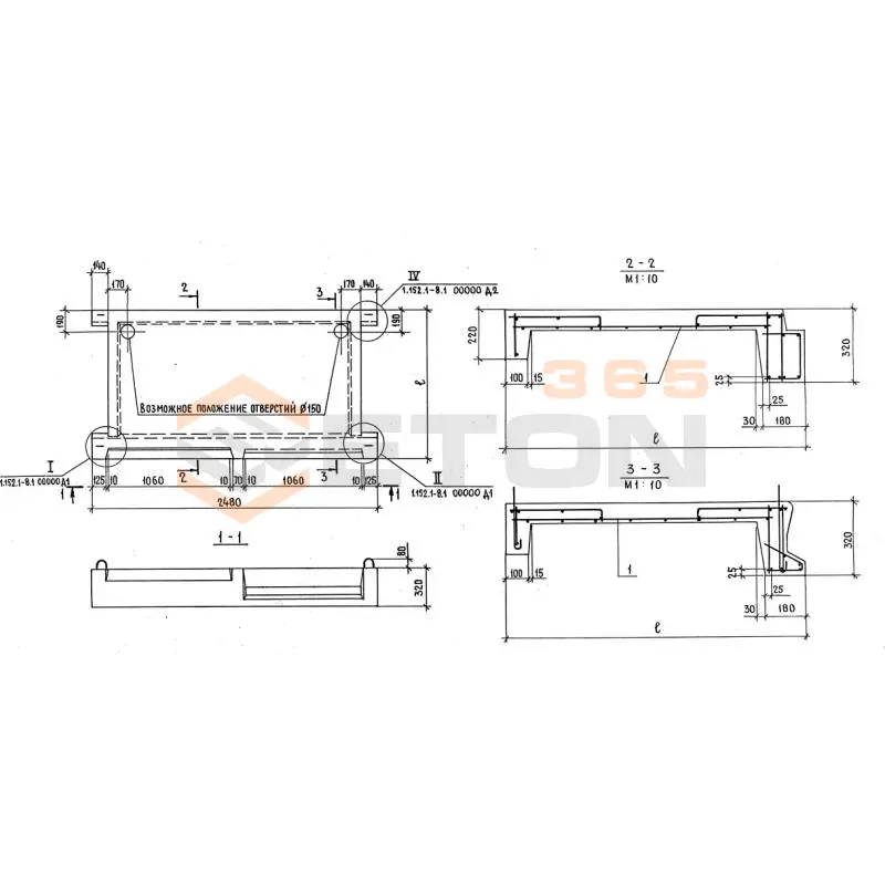
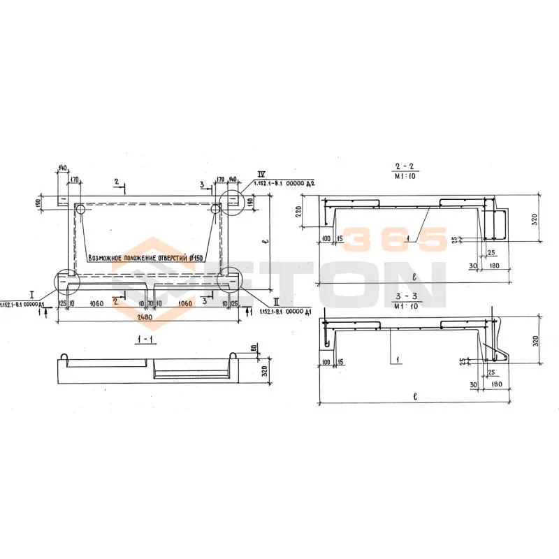
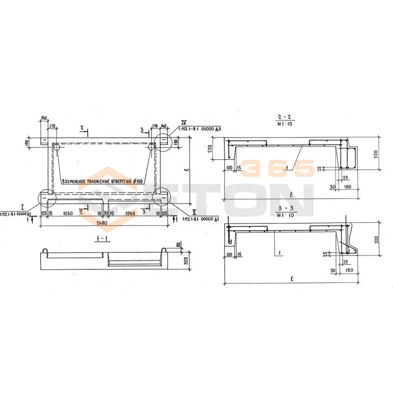
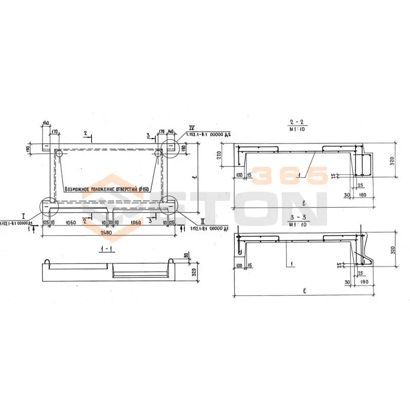
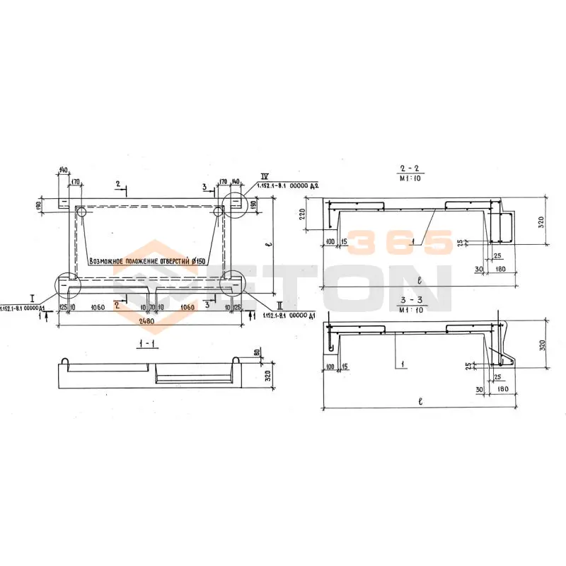
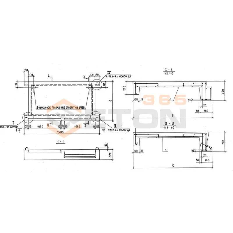
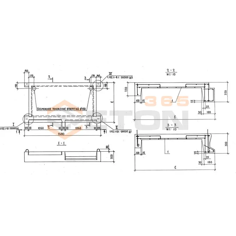
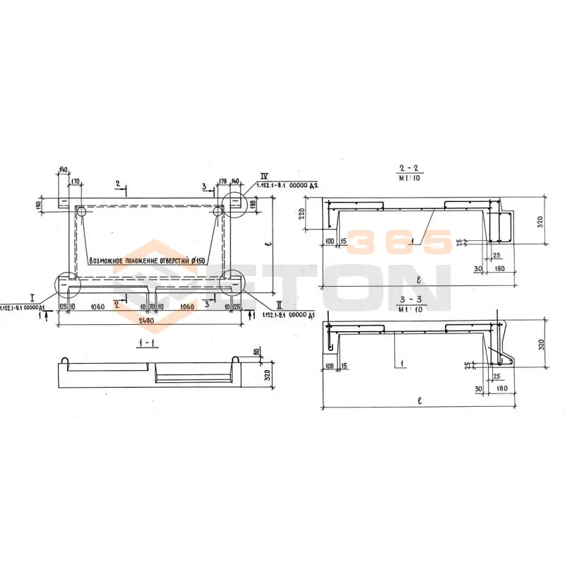
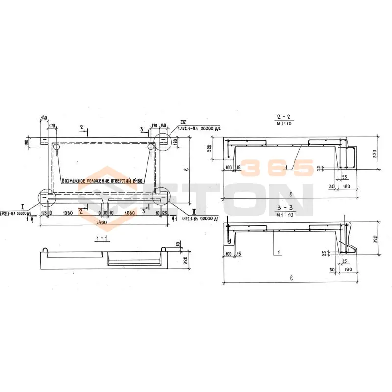
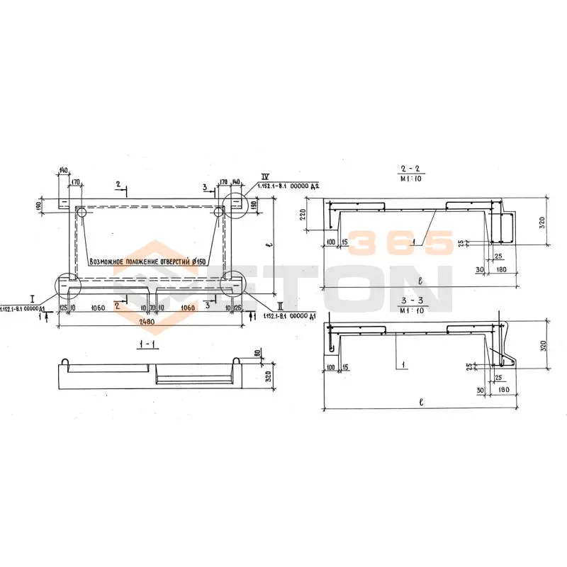
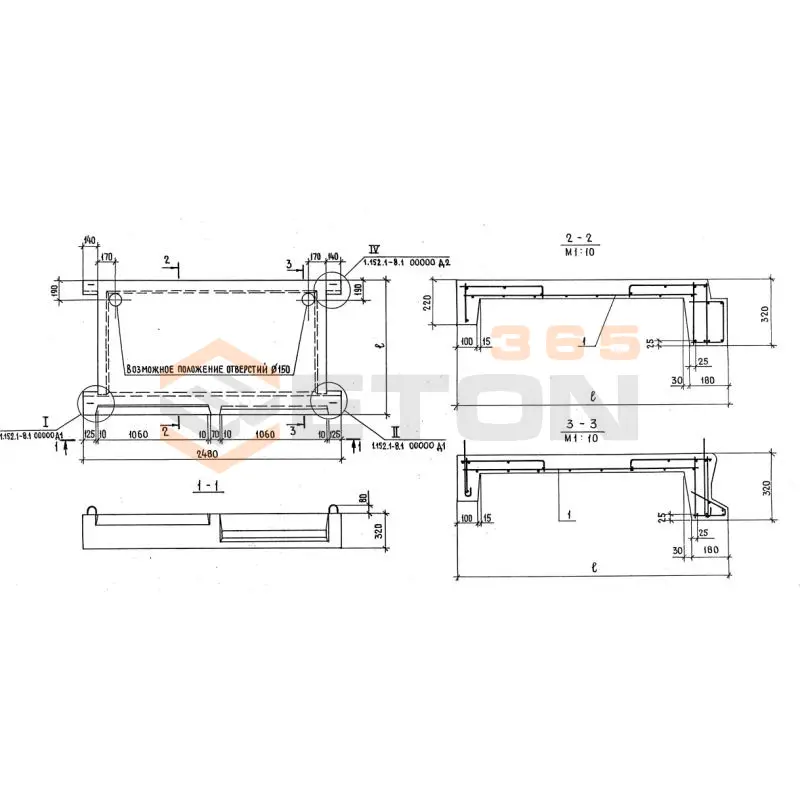
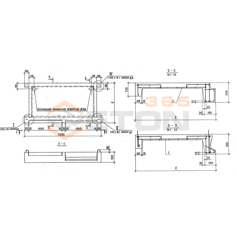
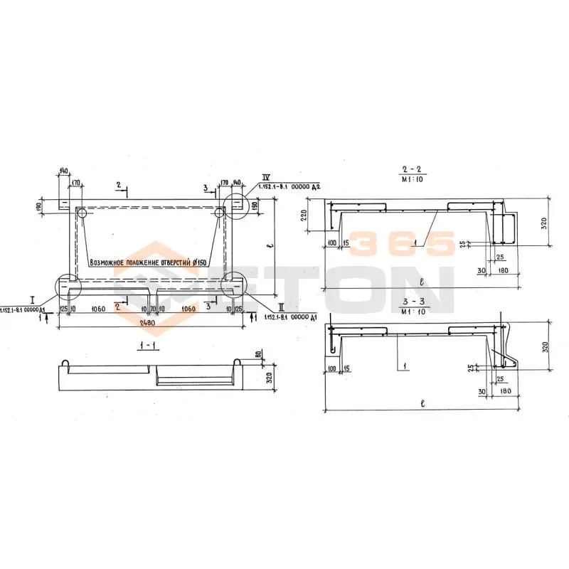
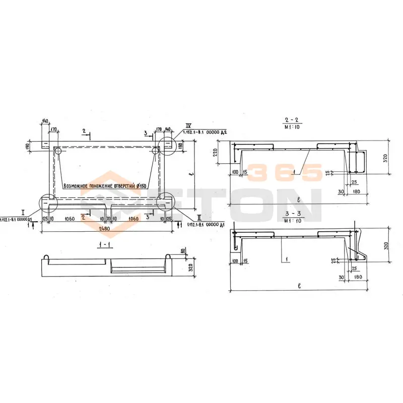
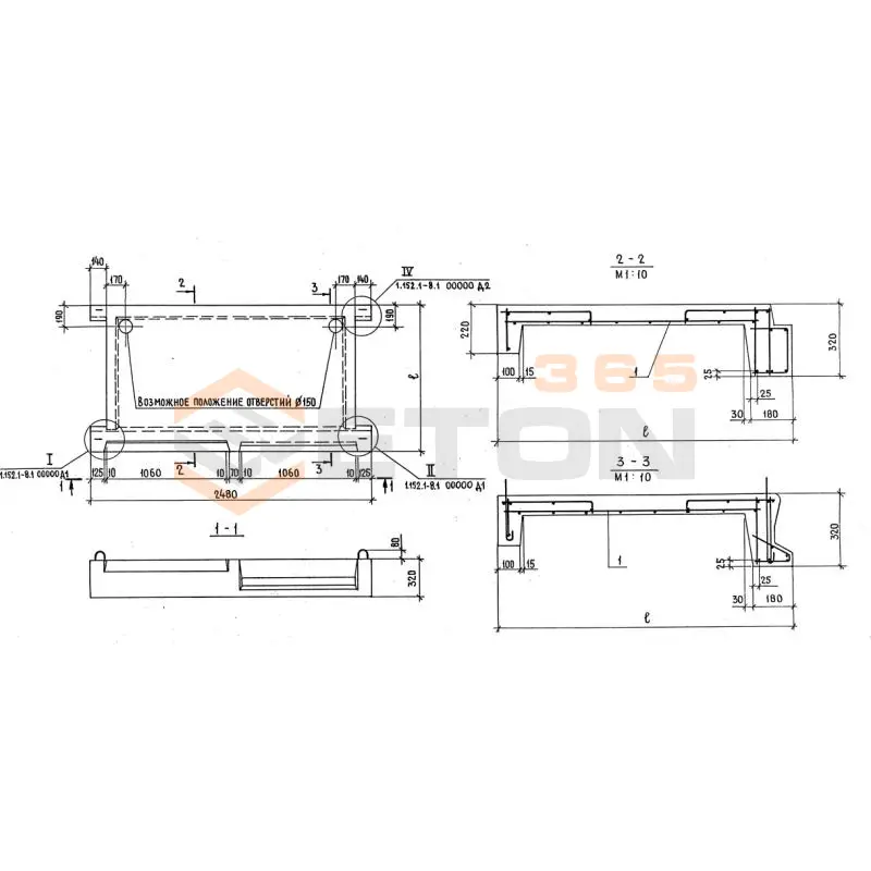
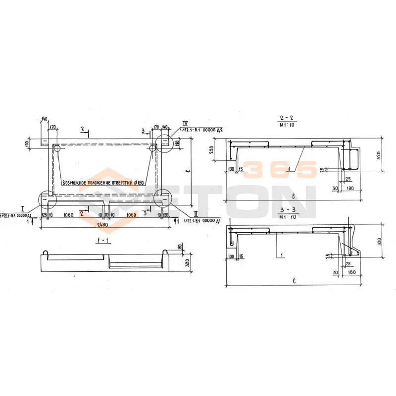
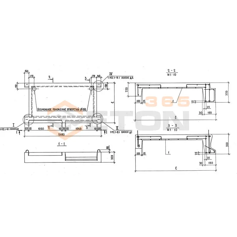
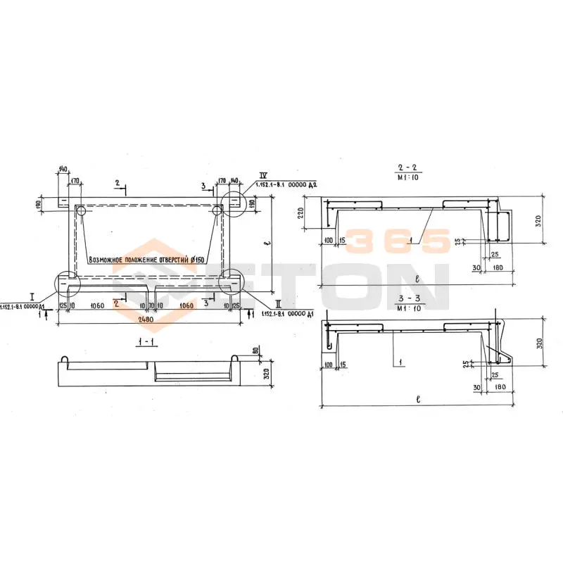
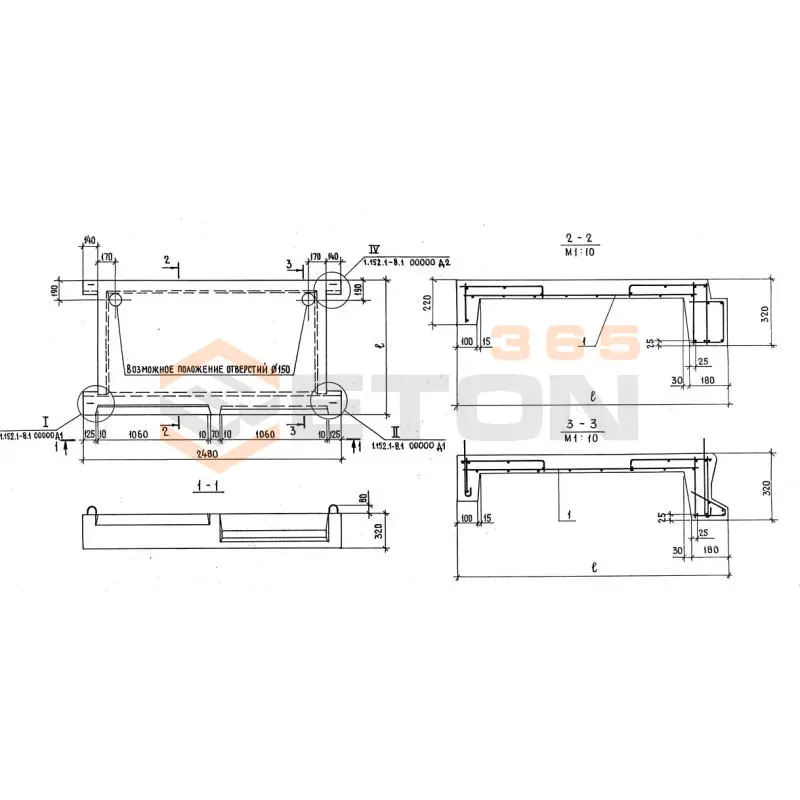
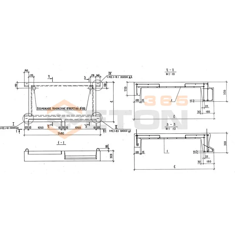
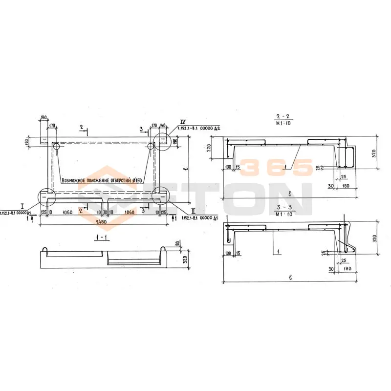
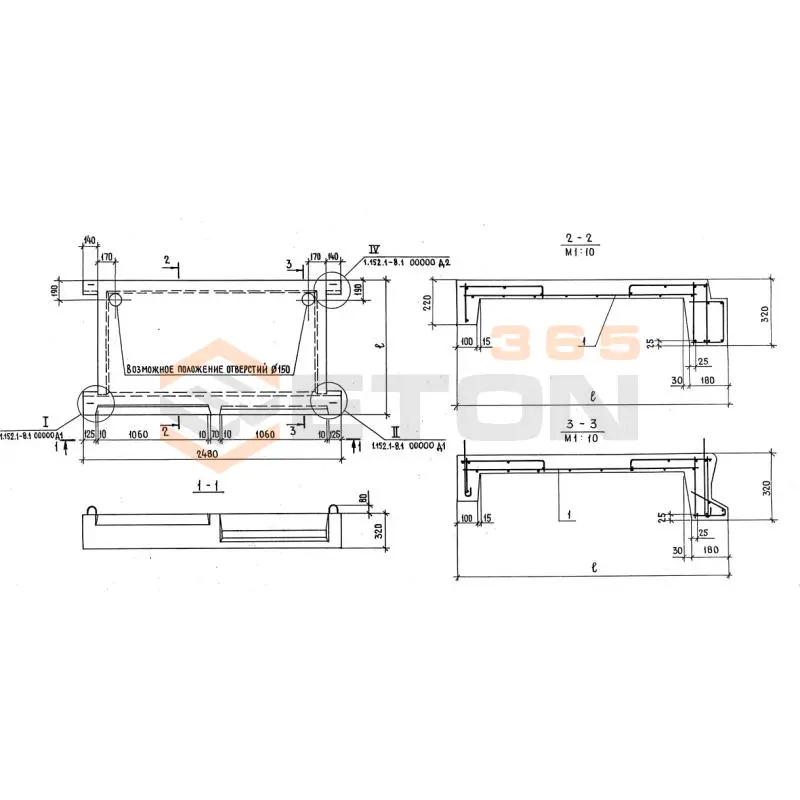
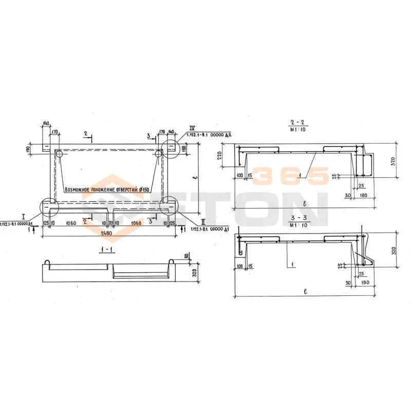
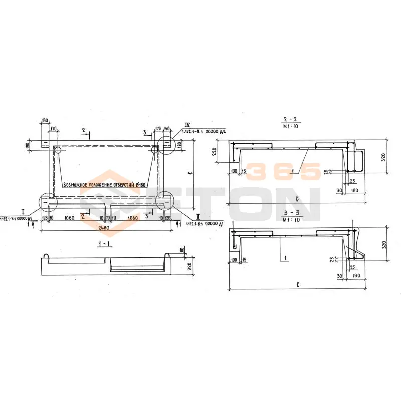
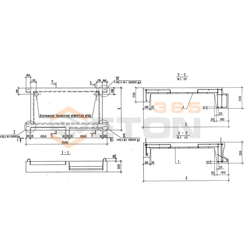
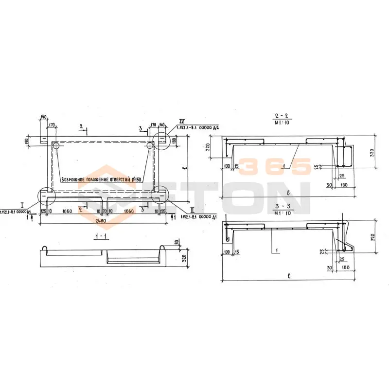
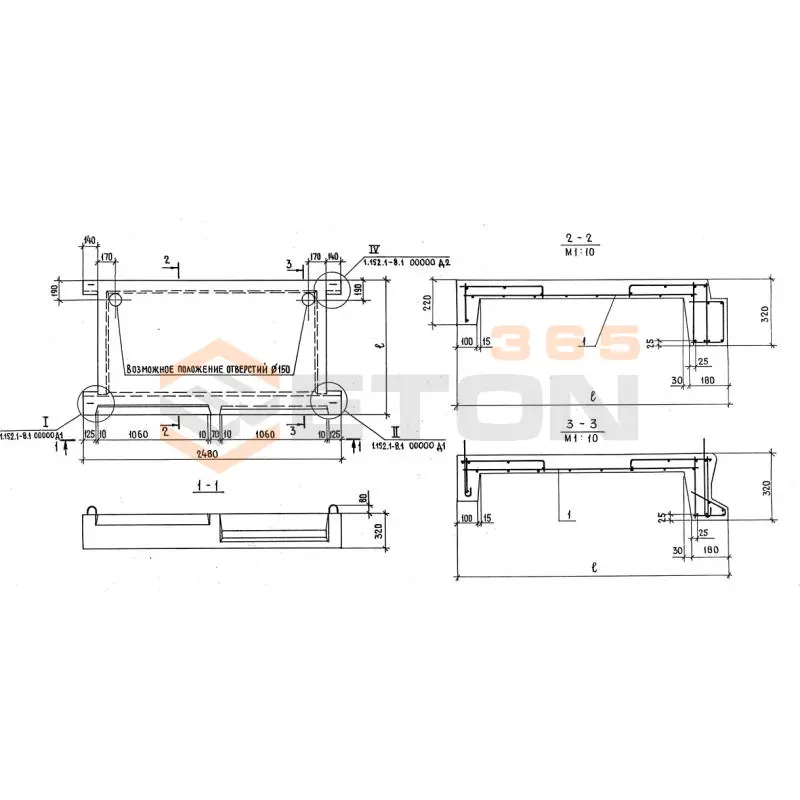
Лестничные площадки ребристые 2ЛП ГОСТ 9818-2015 – это несущие горизонтальные элементы лестничных маршей, предназначенные для монтажа в жилых, общественных и промышленных зданиях. Они служат опорой для лестничных маршей и формируют межэтажные переходы. Их ключевая функция – восприятие и передача нагрузок от людей и оборудования на несущие конструкции здания. Долговечность и безопасность всей лестничной клетки определяются грамотным подбором ребристых лестничных площадок 2ЛП в соответствии с проектными расчетами и реальными условиями эксплуатации.

Критерии выбора

  • Марка бетона и класс арматуры: Изделия изготавливаются из тяжелого бетона марки не ниже М300 (В22.5) с предварительно напряженной арматурой класса Ат-V. Обязательно уточняйте проектные требования к прочности.
  • Морозостойкость и водонепроницаемость: Для большинства регионов стандартом являются показатели F200 и W4, но для зданий с особыми условиями (сырые подвалы, неотапливаемые объекты) эти параметры могут быть повышены.
  • Геометрические параметры и конфигурация: Строго сверяйте длину, ширину и высоту изделия с рабочими чертежами. Обращайте внимание на расположение и размеры опорных площадок («полочек») для монтажа лестничных маршей.
  • Наличие и тип монтажных петель: Проверьте соответствие петель проектным нагрузкам на отрыв и их расположение для безопасной и удобной строповки.
  • Расчетная нагрузка: Убедитесь, что несущая способность выбранной лестничной площадки 2ЛП покрывает как постоянные, так и временные (пешеходные) нагрузки, заложенные в проекте.
  • Соответствие нормам: Обязательно требование – поставка изделий с паспортом качества, подтверждающим соответствие ГОСТ 9818-2015 и проектным сериям.

Рекомендации по подбору и монтажу

При закупке лестничных площадок ребристых 2ЛП требуйте от производителя полный комплект документации, включая паспорт с указанием фактических прочностных характеристик бетона и результатов испытаний. Особое внимание уделите визуальному контролю: на рабочих поверхностях не должно быть трещин, а арматура не должна быть оголена. При составлении спецификации учитывайте необходимость одновременной поставки всех элементов лестничного марша для обеспечения их полной стыковки.

На этапе монтажа критически важна точная подготовка опорных поверхностей (консолей стен или ригелей). Убедитесь, что глубина опирания соответствует проекту. Перед укладкой проверьте горизонтальность опоры. После установки ребристых лестничных площадок 2ЛП ГОСТ 9818-2015 немедленно замонолитьте стыки с несущими конструкциями проектным раствором, чтобы обеспечить совместную работу и равномерное распределение нагрузок. Не допускайте эксплуатацию лестницы до набора замоноличивающим составом проектной прочности.

Ответы экспертов на ваши вопросы

Основные технические характеристики включают:

  • Тип: 2ЛП (двухмаршевая лестничная площадка)
  • Наличие продольных ребер жесткости на нижней поверхности
  • Стандартные длины: от 2200 до 3600 мм
  • Стандартные ширины: от 1050 до 1500 мм
  • Высота сечения: 120-150 мм
  • Класс бетона: не ниже В25
  • Марка по морозостойкости: F100-F200
  • Марка по водонепроницаемости: W4-W6
  • Расчетная нагрузка: 3,5 кПа (360 кгс/м²)
  • Масса: от 700 до 1500 кг в зависимости от размеров

Ребристые лестничные площадки 2ЛП обладают следующими преимуществами:

  • Повышенная прочность и жесткость благодаря ребрам жесткости
  • Уменьшенный вес конструкции при сохранении несущей способности
  • Улучшенные теплотехнические характеристики
  • Стойкость к деформациям и трещинообразованию
  • Упрощенный монтаж за счет стандартизированных размеров
  • Долговечность и надежность в эксплуатации
  • Соответствие требованиям пожарной безопасности

Правильный монтаж включает следующие этапы:

  1. Подготовка опорных поверхностей и проверка их горизонтальности
  2. Укладка цементно-песчаного раствора марки М100 на опорные поверхности
  3. Установка площадки краном с точным позиционированием по проектным отметкам
  4. Проверка горизонтальности установленной площадки
  5. Анкеровка к несущим конструкциям здания
  6. Заделка швов и стыков цементным раствором
  7. Контроль качества монтажа и соответствия проектным требованиям

Требования к транспортировке и хранению:

  • Транспортировка должна осуществляться в рабочем положении (плашмя)
  • Укладка в транспортном средстве штабелем не более 3-4 изделий
  • Обязательное использование прокладок между изделиями
  • Крепление от смещения при транспортировке
  • Хранение на ровной подготовленной площадке
  • Укладка штабелем высотой не более 2 метров
  • Защита от воздействия атмосферных осадков
  • Исключение точечных нагрузок на поверхность изделий

Особенности армирования:

  • Применение сварных арматурных сеток из стержней класса А400-А500
  • Диаметр рабочих стержней: 8-12 мм
  • Диаметр распределительных стержней: 5-8 мм
  • Защитный слой бетона: не менее 20 мм
  • Дополнительное армирование в зонах опирания
  • Армирование ребер жесткости продольными стержнями
  • Использование монтажных петель из арматуры класса А240
  • Контроль качества сварных соединений
Ранее смотрели
Блоки шахт лифтов Серия 1.089.1-1 БШЛ 100-33 п-1
БШЛ 100-33 п-1
Блоки шахт лифтов Серия 1.089.1-1
К 7-10 и (ПС 334)
К 7-10 и (ПС 334)
Кольца колодцев стеновые Альбом ПС 334
Плиты тротуарные ТП 501-259 ТП 9 (ТП 501-259)
ТП 9 (ТП 501-259)
Плиты тротуарные ТП 501-259
1Вв 42-10-2 л
1Вв 42-10-2 л
Изделия для стеновых панелей верхние и нижние Серия 1.131-17
Блоки шахт лифтов Серия 1.089.1-1 БШЛ 100-30-4 б
БШЛ 100-30-4 б
Блоки шахт лифтов Серия 1.089.1-1
НГ 25а-1
НГ 25а-1
Г-образные конструкции с ныряющей вертикальной стенкой Серия 3.820.1-73
Плиты тротуарные ТП 501-259 ТП 14 (ТП 501-259)
ТП 14 (ТП 501-259)
Плиты тротуарные ТП 501-259
Панели перекрытий ребристые Альбом ВИ 37-76 БП 217 (Альбом ВИ 37-76)
БП 217 (Альбом ВИ 37-76)
Панели перекрытий ребристые Альбом ВИ 37-76

Уведомление о файлах cookie

Мы используем файлы cookie для улучшения вашего опыта просмотра и анализа трафика. Нажимая "Принять все", вы соглашаетесь с нашей политикой конфиденциальности и политикой обработки файлов cookie.

Дзен Телеграм Вконтакте vk