mobile_sound +7 (930) 655-55-90

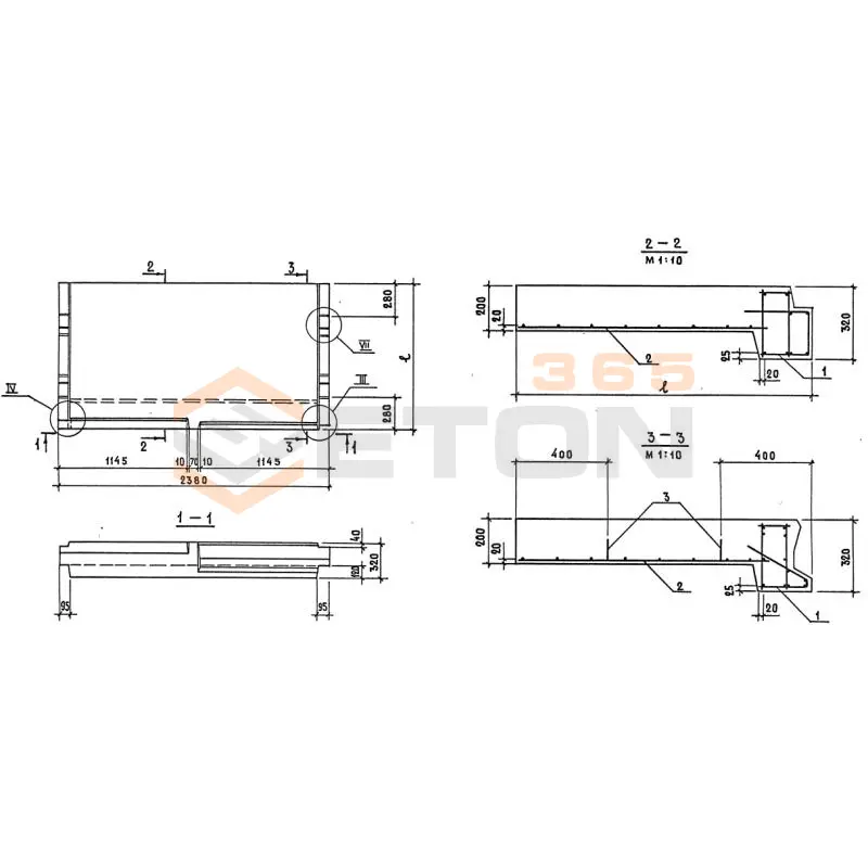
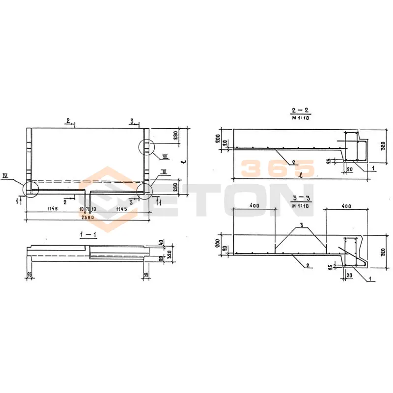
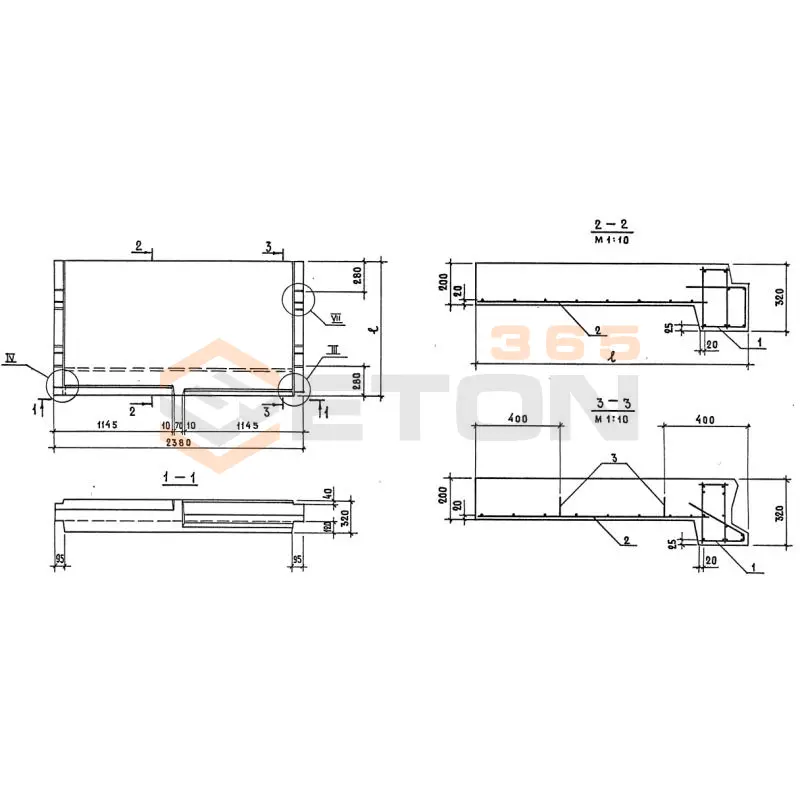
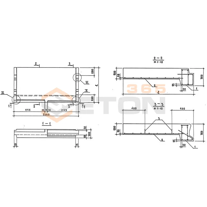
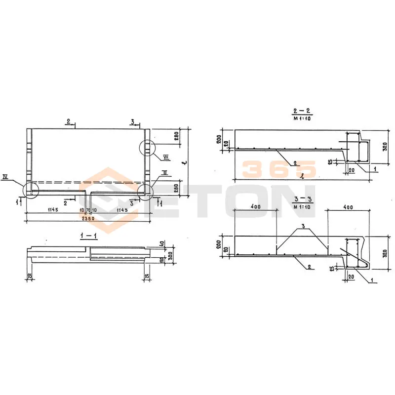
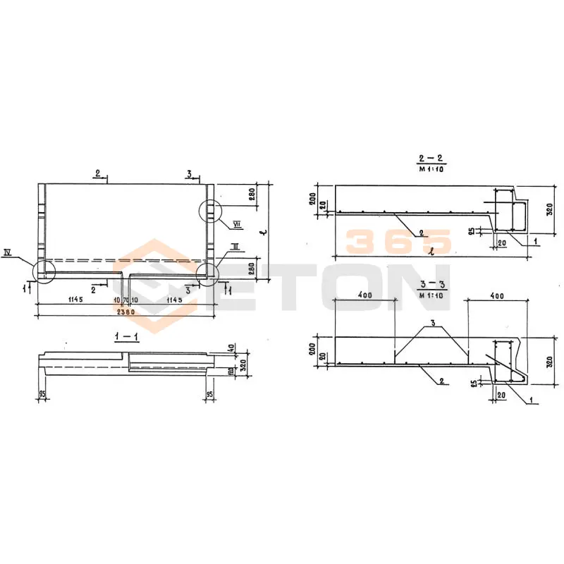
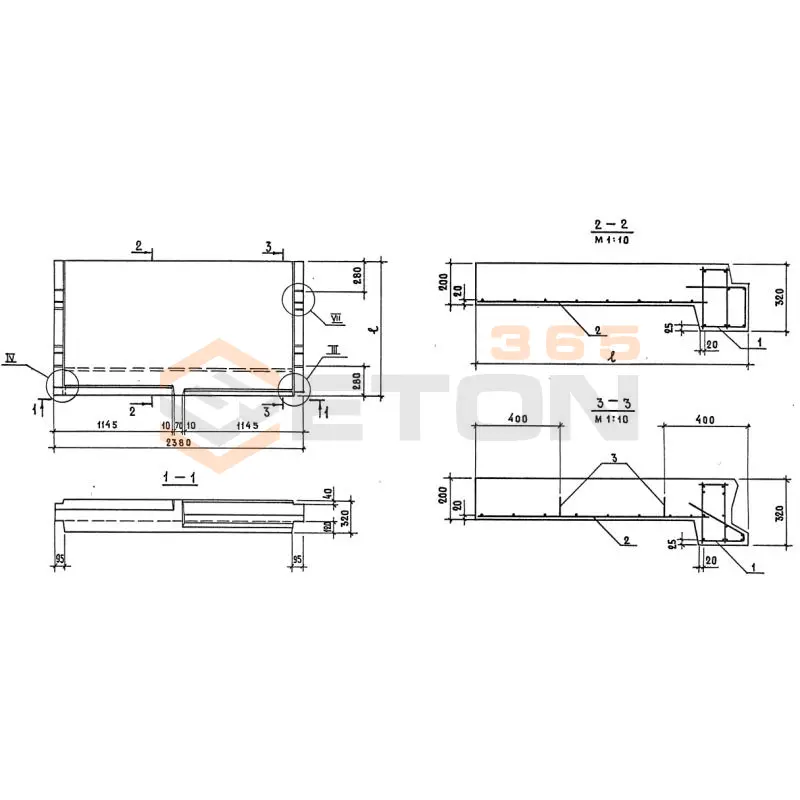
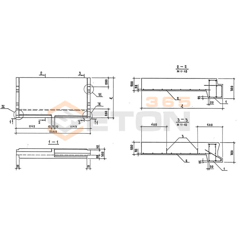
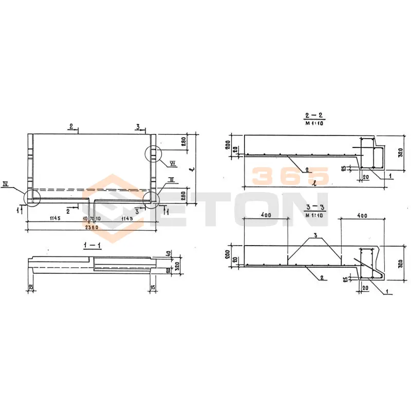
Лестничные площадки плоские 1ЛП ГОСТ 9818-85

Поделиться:
Фильтр по характеристикам
Длина (мм.)
keyboard_arrow_down
мм.
мм.
Ширина (мм.)
keyboard_arrow_down
мм.
мм.
Высота (мм.)
keyboard_arrow_down
мм.
мм.
Вес (кг.)
keyboard_arrow_down
кг.
кг.
Поделиться:

Завод "Бетон365" производит плоские лестничные площадки 1ЛП по ГОСТ 9818-85 — ключевые элементы для создания безопасных и функциональных лестничных маршей в жилых и промышленных зданиях. Эти железобетонные изделия обеспечивают равномерное распределение нагрузок между лестничными пролетами, повышая общую жесткость конструкции и ускоряя монтаж. Соответствие строгим государственным стандартам гарантирует долговечность, устойчивость к износу и возможность использования в объектах любой сложности.

Мы реализуем лестничные площадки 1ЛП в Москве и Московской области по конкурентной цене от производителя, что позволяет сэкономить на посредниках. Предлагаем удобную доставку на объект и гарантируем соответствие продукции заявленным характеристикам. Чтобы купить надежные железобетонные изделия с оперативной отгрузкой, обратитесь к нашим специалистам для уточнения деталей заказа!

1ЛП 22-13-4 (ГОСТ 9818-85)
Лестничные площадки плоские 1ЛП ГОСТ 9818-85
  • Длина 2200 мм.
  • Ширина 1300 мм.
  • Высота 320 мм.
  • Вес 1485 кг.
  • Объем бетона 0,594 м3
  • Геометрический объем 0,9152 м3
Цена: 9795 руб.
Подробнее
1ЛП 22-13-4 к (ГОСТ 9818-85)
Лестничные площадки плоские 1ЛП ГОСТ 9818-85
  • Длина 2200 мм.
  • Ширина 1300 мм.
  • Высота 320 мм.
  • Вес 1485 кг.
  • Объем бетона 0,594 м3
  • Геометрический объем 0,9152 м3
Цена: 9795 руб.
Подробнее
1ЛП 22-13-4 л (ГОСТ 9818-85)
Лестничные площадки плоские 1ЛП ГОСТ 9818-85
  • Длина 2200 мм.
  • Ширина 1300 мм.
  • Высота 320 мм.
  • Вес 1485 кг.
  • Объем бетона 0,594 м3
  • Геометрический объем 0,9152 м3
Цена: 9795 руб.
Подробнее
1ЛП 22-13-4 ш (ГОСТ 9818-85)
Лестничные площадки плоские 1ЛП ГОСТ 9818-85
  • Длина 2200 мм.
  • Ширина 1300 мм.
  • Высота 320 мм.
  • Вес 1485 кг.
  • Объем бетона 0,594 м3
  • Геометрический объем 0,9152 м3
Цена: 9795 руб.
Подробнее
1ЛП 22-13-4 лк (ГОСТ 9818-85)
Лестничные площадки плоские 1ЛП ГОСТ 9818-85
  • Длина 2200 мм.
  • Ширина 1300 мм.
  • Высота 320 мм.
  • Вес 1485 кг.
  • Объем бетона 0,594 м3
  • Геометрический объем 0,9152 м3
Цена: 9795 руб.
Подробнее
1ЛП 22-13-4 лш (ГОСТ 9818-85)
Лестничные площадки плоские 1ЛП ГОСТ 9818-85
  • Длина 2200 мм.
  • Ширина 1300 мм.
  • Высота 320 мм.
  • Вес 1485 кг.
  • Объем бетона 0,594 м3
  • Геометрический объем 0,9152 м3
Цена: 9795 руб.
Подробнее
1ЛП 22-16-4 (ГОСТ 9818-85)
Лестничные площадки плоские 1ЛП ГОСТ 9818-85
  • Длина 2200 мм.
  • Ширина 1600 мм.
  • Высота 320 мм.
  • Вес 1815 кг.
  • Объем бетона 0,726 м3
  • Геометрический объем 1,1264 м3
Цена: 11972 руб.
Подробнее
1ЛП 22-16-4 к (ГОСТ 9818-85)
Лестничные площадки плоские 1ЛП ГОСТ 9818-85
  • Длина 2200 мм.
  • Ширина 1600 мм.
  • Высота 320 мм.
  • Вес 1815 кг.
  • Объем бетона 0,726 м3
  • Геометрический объем 1,1264 м3
Цена: 11972 руб.
Подробнее
1ЛП 22-16-4 лк (ГОСТ 9818-85)
Лестничные площадки плоские 1ЛП ГОСТ 9818-85
  • Длина 2200 мм.
  • Ширина 1600 мм.
  • Высота 320 мм.
  • Вес 1815 кг.
  • Объем бетона 0,726 м3
  • Геометрический объем 1,1264 м3
Цена: 11972 руб.
Подробнее
1ЛП 22-16-4 л (ГОСТ 9818-85)
Лестничные площадки плоские 1ЛП ГОСТ 9818-85
  • Длина 2200 мм.
  • Ширина 1600 мм.
  • Высота 320 мм.
  • Вес 1815 кг.
  • Объем бетона 0,726 м3
  • Геометрический объем 1,1264 м3
Цена: 11972 руб.
Подробнее
1ЛП 22-16-4 лш (ГОСТ 9818-85)
Лестничные площадки плоские 1ЛП ГОСТ 9818-85
  • Длина 2200 мм.
  • Ширина 1600 мм.
  • Высота 320 мм.
  • Вес 1815 кг.
  • Объем бетона 0,726 м3
  • Геометрический объем 1,1264 м3
Цена: 11972 руб.
Подробнее
1ЛП 22-16-4 ш (ГОСТ 9818-85)
Лестничные площадки плоские 1ЛП ГОСТ 9818-85
  • Длина 2200 мм.
  • Ширина 1600 мм.
  • Высота 320 мм.
  • Вес 1815 кг.
  • Объем бетона 0,726 м3
  • Геометрический объем 1,1264 м3
Цена: 11972 руб.
Подробнее
1ЛП 22-19-4 (ГОСТ 9818-85)
Лестничные площадки плоские 1ЛП ГОСТ 9818-85
  • Длина 2200 мм.
  • Ширина 1900 мм.
  • Высота 320 мм.
  • Вес 2145 кг.
  • Объем бетона 0,858 м3
  • Геометрический объем 1,3376 м3
Цена: 14148 руб.
Подробнее
1ЛП 22-19-4 к (ГОСТ 9818-85)
Лестничные площадки плоские 1ЛП ГОСТ 9818-85
  • Длина 2200 мм.
  • Ширина 1900 мм.
  • Высота 320 мм.
  • Вес 2145 кг.
  • Объем бетона 0,858 м3
  • Геометрический объем 1,3376 м3
Цена: 14148 руб.
Подробнее
1ЛП 22-19-4 лк (ГОСТ 9818-85)
Лестничные площадки плоские 1ЛП ГОСТ 9818-85
  • Длина 2200 мм.
  • Ширина 1900 мм.
  • Высота 320 мм.
  • Вес 2145 кг.
  • Объем бетона 0,858 м3
  • Геометрический объем 1,3376 м3
Цена: 14148 руб.
Подробнее
1ЛП 22-19-4 лш (ГОСТ 9818-85)
Лестничные площадки плоские 1ЛП ГОСТ 9818-85
  • Длина 2200 мм.
  • Ширина 1900 мм.
  • Высота 320 мм.
  • Вес 2145 кг.
  • Объем бетона 0,858 м3
  • Геометрический объем 1,3376 м3
Цена: 14148 руб.
Подробнее
1ЛП 22-19-4 ш (ГОСТ 9818-85)
Лестничные площадки плоские 1ЛП ГОСТ 9818-85
  • Длина 2200 мм.
  • Ширина 1900 мм.
  • Высота 320 мм.
  • Вес 2145 кг.
  • Объем бетона 0,858 м3
  • Геометрический объем 1,3376 м3
Цена: 14148 руб.
Подробнее
1ЛП 22-19-4 л (ГОСТ 9818-85)
Лестничные площадки плоские 1ЛП ГОСТ 9818-85
  • Длина 2200 мм.
  • Ширина 1900 мм.
  • Высота 320 мм.
  • Вес 2145 кг.
  • Объем бетона 0,858 м3
  • Геометрический объем 1,3376 м3
Цена: 14148 руб.
Подробнее
1ЛП 22-22-4 к (ГОСТ 9818-85)
Лестничные площадки плоские 1ЛП ГОСТ 9818-85
  • Длина 2200 мм.
  • Ширина 2200 мм.
  • Высота 320 мм.
  • Вес 2365 кг.
  • Объем бетона 0,946 м3
  • Геометрический объем 1,5488 м3
Цена: 15600 руб.
Подробнее
1ЛП 22-22-4 (ГОСТ 9818-85)
Лестничные площадки плоские 1ЛП ГОСТ 9818-85
  • Длина 2200 мм.
  • Ширина 2200 мм.
  • Высота 320 мм.
  • Вес 2365 кг.
  • Объем бетона 0,946 м3
  • Геометрический объем 1,5488 м3
Цена: 15600 руб.
Подробнее
1ЛП 22-22-4 л (ГОСТ 9818-85)
Лестничные площадки плоские 1ЛП ГОСТ 9818-85
  • Длина 2200 мм.
  • Ширина 2200 мм.
  • Высота 320 мм.
  • Вес 2365 кг.
  • Объем бетона 0,946 м3
  • Геометрический объем 1,5488 м3
Цена: 15600 руб.
Подробнее
1ЛП 24-13-4 к (ГОСТ 9818-85)
Лестничные площадки плоские 1ЛП ГОСТ 9818-85
  • Длина 2380 мм.
  • Ширина 1300 мм.
  • Высота 320 мм.
  • Вес 1590 кг.
  • Объем бетона 0,636 м3
  • Геометрический объем 0,9901 м3
Цена: 10488 руб.
Подробнее
1ЛП 24-13-4 (ГОСТ 9818-85)
Лестничные площадки плоские 1ЛП ГОСТ 9818-85
  • Длина 2380 мм.
  • Ширина 1300 мм.
  • Высота 320 мм.
  • Вес 1590 кг.
  • Объем бетона 0,636 м3
  • Геометрический объем 0,9901 м3
Цена: 10488 руб.
Подробнее
1ЛП 22-22-4 лк (ГОСТ 9818-85)
Лестничные площадки плоские 1ЛП ГОСТ 9818-85
  • Длина 2200 мм.
  • Ширина 2200 мм.
  • Высота 320 мм.
  • Вес 2365 кг.
  • Объем бетона 0,946 м3
  • Геометрический объем 1,5488 м3
Цена: 15600 руб.
Подробнее
1ЛП 22-22-4 ш (ГОСТ 9818-85)
Лестничные площадки плоские 1ЛП ГОСТ 9818-85
  • Длина 2200 мм.
  • Ширина 2200 мм.
  • Высота 320 мм.
  • Вес 2365 кг.
  • Объем бетона 0,946 м3
  • Геометрический объем 1,5488 м3
Цена: 15600 руб.
Подробнее
1ЛП 22-22-4 лш (ГОСТ 9818-85)
Лестничные площадки плоские 1ЛП ГОСТ 9818-85
  • Длина 2200 мм.
  • Ширина 2200 мм.
  • Высота 320 мм.
  • Вес 2365 кг.
  • Объем бетона 0,946 м3
  • Геометрический объем 1,5488 м3
Цена: 15600 руб.
Подробнее
1ЛП 24-13-4 л (ГОСТ 9818-85)
Лестничные площадки плоские 1ЛП ГОСТ 9818-85
  • Длина 2380 мм.
  • Ширина 1300 мм.
  • Высота 320 мм.
  • Вес 1590 кг.
  • Объем бетона 0,636 м3
  • Геометрический объем 0,9901 м3
Цена: 10488 руб.
Подробнее
1ЛП 24-13-4 ш (ГОСТ 9818-85)
Лестничные площадки плоские 1ЛП ГОСТ 9818-85
  • Длина 2380 мм.
  • Ширина 1300 мм.
  • Высота 320 мм.
  • Вес 1590 кг.
  • Объем бетона 0,636 м3
  • Геометрический объем 0,9901 м3
Цена: 10488 руб.
Подробнее
1ЛП 24-13-4 лш (ГОСТ 9818-85)
Лестничные площадки плоские 1ЛП ГОСТ 9818-85
  • Длина 2380 мм.
  • Ширина 1300 мм.
  • Высота 320 мм.
  • Вес 1590 кг.
  • Объем бетона 0,636 м3
  • Геометрический объем 0,9901 м3
Цена: 10488 руб.
Подробнее
1ЛП 24-13-4 лк (ГОСТ 9818-85)
Лестничные площадки плоские 1ЛП ГОСТ 9818-85
  • Длина 2380 мм.
  • Ширина 1300 мм.
  • Высота 320 мм.
  • Вес 1590 кг.
  • Объем бетона 0,636 м3
  • Геометрический объем 0,9901 м3
Цена: 10488 руб.
Подробнее
1ЛП 24-13в-4 к (ГОСТ 9818-85)
Лестничные площадки плоские 1ЛП ГОСТ 9818-85
  • Длина 2380 мм.
  • Ширина 1300 мм.
  • Высота 320 мм.
  • Вес 1590 кг.
  • Объем бетона 0,636 м3
  • Геометрический объем 0,9901 м3
Цена: 10488 руб.
Подробнее
1ЛП 24-13в-4 (ГОСТ 9818-85)
Лестничные площадки плоские 1ЛП ГОСТ 9818-85
  • Длина 2380 мм.
  • Ширина 1300 мм.
  • Высота 320 мм.
  • Вес 1590 кг.
  • Объем бетона 0,636 м3
  • Геометрический объем 0,9901 м3
Цена: 10488 руб.
Подробнее
1ЛП 24-13в-4 л (ГОСТ 9818-85)
Лестничные площадки плоские 1ЛП ГОСТ 9818-85
  • Длина 2380 мм.
  • Ширина 1300 мм.
  • Высота 320 мм.
  • Вес 1590 кг.
  • Объем бетона 0,636 м3
  • Геометрический объем 0,9901 м3
Цена: 10488 руб.
Подробнее
1ЛП 24-13в-4 лк (ГОСТ 9818-85)
Лестничные площадки плоские 1ЛП ГОСТ 9818-85
  • Длина 2380 мм.
  • Ширина 1300 мм.
  • Высота 320 мм.
  • Вес 1590 кг.
  • Объем бетона 0,636 м3
  • Геометрический объем 0,9901 м3
Цена: 10488 руб.
Подробнее
1ЛП 24-13в-4 ш (ГОСТ 9818-85)
Лестничные площадки плоские 1ЛП ГОСТ 9818-85
  • Длина 2380 мм.
  • Ширина 1300 мм.
  • Высота 320 мм.
  • Вес 1590 кг.
  • Объем бетона 0,636 м3
  • Геометрический объем 0,9901 м3
Цена: 10488 руб.
Подробнее
1ЛП 24-13в-4 лш (ГОСТ 9818-85)
Лестничные площадки плоские 1ЛП ГОСТ 9818-85
  • Длина 2380 мм.
  • Ширина 1300 мм.
  • Высота 320 мм.
  • Вес 1590 кг.
  • Объем бетона 0,636 м3
  • Геометрический объем 0,9901 м3
Цена: 10488 руб.
Подробнее
1ЛП 24-16-4 (ГОСТ 9818-85)
Лестничные площадки плоские 1ЛП ГОСТ 9818-85
  • Длина 2380 мм.
  • Ширина 1600 мм.
  • Высота 320 мм.
  • Вес 1950 кг.
  • Объем бетона 0,78 м3
  • Геометрический объем 1,2186 м3
Цена: 12862 руб.
Подробнее
1ЛП 24-16-4 к (ГОСТ 9818-85)
Лестничные площадки плоские 1ЛП ГОСТ 9818-85
  • Длина 2380 мм.
  • Ширина 1600 мм.
  • Высота 320 мм.
  • Вес 1950 кг.
  • Объем бетона 0,78 м3
  • Геометрический объем 1,2186 м3
Цена: 12862 руб.
Подробнее
1ЛП 24-16-4 лк (ГОСТ 9818-85)
Лестничные площадки плоские 1ЛП ГОСТ 9818-85
  • Длина 2380 мм.
  • Ширина 1600 мм.
  • Высота 320 мм.
  • Вес 1950 кг.
  • Объем бетона 0,78 м3
  • Геометрический объем 1,2186 м3
Цена: 12862 руб.
Подробнее
1ЛП 24-16-4 ш (ГОСТ 9818-85)
Лестничные площадки плоские 1ЛП ГОСТ 9818-85
  • Длина 2380 мм.
  • Ширина 1600 мм.
  • Высота 320 мм.
  • Вес 1950 кг.
  • Объем бетона 0,78 м3
  • Геометрический объем 1,2186 м3
Цена: 12862 руб.
Подробнее
1ЛП 24-16-4 л (ГОСТ 9818-85)
Лестничные площадки плоские 1ЛП ГОСТ 9818-85
  • Длина 2380 мм.
  • Ширина 1600 мм.
  • Высота 320 мм.
  • Вес 1950 кг.
  • Объем бетона 0,78 м3
  • Геометрический объем 1,2186 м3
Цена: 12862 руб.
Подробнее
1ЛП 24-16-4 лш (ГОСТ 9818-85)
Лестничные площадки плоские 1ЛП ГОСТ 9818-85
  • Длина 2380 мм.
  • Ширина 1600 мм.
  • Высота 320 мм.
  • Вес 1950 кг.
  • Объем бетона 0,78 м3
  • Геометрический объем 1,2186 м3
Цена: 12862 руб.
Подробнее
1ЛП 24-16в-4 к (ГОСТ 9818-85)
Лестничные площадки плоские 1ЛП ГОСТ 9818-85
  • Длина 2380 мм.
  • Ширина 1600 мм.
  • Высота 320 мм.
  • Вес 1950 кг.
  • Объем бетона 0,78 м3
  • Геометрический объем 1,2186 м3
Цена: 12862 руб.
Подробнее
1ЛП 24-16в-4 (ГОСТ 9818-85)
Лестничные площадки плоские 1ЛП ГОСТ 9818-85
  • Длина 2380 мм.
  • Ширина 1600 мм.
  • Высота 320 мм.
  • Вес 1950 кг.
  • Объем бетона 0,78 м3
  • Геометрический объем 1,2186 м3
Цена: 12862 руб.
Подробнее
1ЛП 24-19-4 к (ГОСТ 9818-85)
Лестничные площадки плоские 1ЛП ГОСТ 9818-85
  • Длина 2380 мм.
  • Ширина 1900 мм.
  • Высота 320 мм.
  • Вес 1900 кг.
  • Объем бетона 0,76 м3
  • Геометрический объем 1,447 м3
Цена: 12532 руб.
Подробнее
1ЛП 24-16в-4 л (ГОСТ 9818-85)
Лестничные площадки плоские 1ЛП ГОСТ 9818-85
  • Длина 2380 мм.
  • Ширина 1600 мм.
  • Высота 320 мм.
  • Вес 1950 кг.
  • Объем бетона 0,78 м3
  • Геометрический объем 1,2186 м3
Цена: 12862 руб.
Подробнее
1ЛП 24-16в-4 лш (ГОСТ 9818-85)
Лестничные площадки плоские 1ЛП ГОСТ 9818-85
  • Длина 2380 мм.
  • Ширина 1600 мм.
  • Высота 320 мм.
  • Вес 1950 кг.
  • Объем бетона 0,78 м3
  • Геометрический объем 1,2186 м3
Цена: 12862 руб.
Подробнее
1ЛП 24-16в-4 лк (ГОСТ 9818-85)
Лестничные площадки плоские 1ЛП ГОСТ 9818-85
  • Длина 2380 мм.
  • Ширина 1600 мм.
  • Высота 320 мм.
  • Вес 1950 кг.
  • Объем бетона 0,78 м3
  • Геометрический объем 1,2186 м3
Цена: 12862 руб.
Подробнее
1ЛП 24-19-4 (ГОСТ 9818-85)
Лестничные площадки плоские 1ЛП ГОСТ 9818-85
  • Длина 2380 мм.
  • Ширина 1900 мм.
  • Высота 320 мм.
  • Вес 1900 кг.
  • Объем бетона 0,76 м3
  • Геометрический объем 1,447 м3
Цена: 12532 руб.
Подробнее
1ЛП 24-16в-4 ш (ГОСТ 9818-85)
Лестничные площадки плоские 1ЛП ГОСТ 9818-85
  • Длина 2380 мм.
  • Ширина 1600 мм.
  • Высота 320 мм.
  • Вес 1950 кг.
  • Объем бетона 0,78 м3
  • Геометрический объем 1,2186 м3
Цена: 12862 руб.
Подробнее
1ЛП 24-19-4 л (ГОСТ 9818-85)
Лестничные площадки плоские 1ЛП ГОСТ 9818-85
  • Длина 2380 мм.
  • Ширина 1900 мм.
  • Высота 320 мм.
  • Вес 1900 кг.
  • Объем бетона 0,76 м3
  • Геометрический объем 1,447 м3
Цена: 12532 руб.
Подробнее
1ЛП 24-19-4 лш (ГОСТ 9818-85)
Лестничные площадки плоские 1ЛП ГОСТ 9818-85
  • Длина 2380 мм.
  • Ширина 1900 мм.
  • Высота 320 мм.
  • Вес 1900 кг.
  • Объем бетона 0,76 м3
  • Геометрический объем 1,447 м3
Цена: 12532 руб.
Подробнее
1ЛП 24-19в-4 (ГОСТ 9818-85)
Лестничные площадки плоские 1ЛП ГОСТ 9818-85
  • Длина 2380 мм.
  • Ширина 1900 мм.
  • Высота 320 мм.
  • Вес 1900 кг.
  • Объем бетона 0,76 м3
  • Геометрический объем 1,447 м3
Цена: 12532 руб.
Подробнее
1ЛП 24-19-4 ш (ГОСТ 9818-85)
Лестничные площадки плоские 1ЛП ГОСТ 9818-85
  • Длина 2380 мм.
  • Ширина 1900 мм.
  • Высота 320 мм.
  • Вес 1900 кг.
  • Объем бетона 0,76 м3
  • Геометрический объем 1,447 м3
Цена: 12532 руб.
Подробнее
1ЛП 24-19в-4 к (ГОСТ 9818-85)
Лестничные площадки плоские 1ЛП ГОСТ 9818-85
  • Длина 2380 мм.
  • Ширина 1900 мм.
  • Высота 320 мм.
  • Вес 1900 кг.
  • Объем бетона 0,76 м3
  • Геометрический объем 1,447 м3
Цена: 12532 руб.
Подробнее
1ЛП 24-19-4 лк (ГОСТ 9818-85)
Лестничные площадки плоские 1ЛП ГОСТ 9818-85
  • Длина 2380 мм.
  • Ширина 1900 мм.
  • Высота 320 мм.
  • Вес 1900 кг.
  • Объем бетона 0,76 м3
  • Геометрический объем 1,447 м3
Цена: 12532 руб.
Подробнее
1ЛП 24-19в-4 л (ГОСТ 9818-85)
Лестничные площадки плоские 1ЛП ГОСТ 9818-85
  • Длина 2380 мм.
  • Ширина 1900 мм.
  • Высота 320 мм.
  • Вес 1900 кг.
  • Объем бетона 0,76 м3
  • Геометрический объем 1,447 м3
Цена: 12532 руб.
Подробнее
1ЛП 24-19в-4 лк (ГОСТ 9818-85)
Лестничные площадки плоские 1ЛП ГОСТ 9818-85
  • Длина 2380 мм.
  • Ширина 1900 мм.
  • Высота 320 мм.
  • Вес 1900 кг.
  • Объем бетона 0,76 м3
  • Геометрический объем 1,447 м3
Цена: 12532 руб.
Подробнее
1ЛП 24-19в-4 ш (ГОСТ 9818-85)
Лестничные площадки плоские 1ЛП ГОСТ 9818-85
  • Длина 2380 мм.
  • Ширина 1900 мм.
  • Высота 320 мм.
  • Вес 1900 кг.
  • Объем бетона 0,76 м3
  • Геометрический объем 1,447 м3
Цена: 12532 руб.
Подробнее
1ЛП 24-22-4 к (ГОСТ 9818-85)
Лестничные площадки плоские 1ЛП ГОСТ 9818-85
  • Длина 2380 мм.
  • Ширина 2200 мм.
  • Высота 320 мм.
  • Вес 2530 кг.
  • Объем бетона 1,012 м3
  • Геометрический объем 1,6755 м3
Цена: 16688 руб.
Подробнее

Как правильно выбрать - Лестничные площадки плоские 1ЛП ГОСТ 9818-85

Лестничные площадки плоские 1ЛП ГОСТ 9818-85 представляют собой горизонтальные элементы лестничных маршей, предназначенные для монтажа в жилых, общественных и промышленных зданиях. Они служат опорной конструкцией для лестничных маршей и обеспечивают безопасное перемещение между этажами. Надежность всей лестничной клетки напрямую зависит от правильного выбора типоразмера и технических характеристик лестничных площадок 1ЛП.

Критерии выбора

  • Марка бетона и прочностные характеристики: Изделия изготавливаются из тяжелого бетона марки не ниже М300, с классом по прочности на сжатие В22.5 (В25). Обязательны показатели морозостойкости F200 и водонепроницаемости W4 для эксплуатации в условиях переменной влажности.
  • Армирование: Каркас выполняется из стальной арматуры классов А-I и А-III, что обеспечивает восприятие расчетных нагрузок и устойчивость к изгибающим моментам.
  • Геометрические параметры и конфигурация: Строгое соответствие типоразмеру по длине, ширине и толщине согласно рабочим чертежам серии. Наличие четырех монтажных петель для безопасной строповки.
  • Расчетная нагрузка: Учет нормативной и монтажной нагрузки, указанной в проектной документации. Несущая способность должна соответствовать эксплуатационным требованиям здания.
  • Соответствие нормам: Обязательное наличие паспорта изделия, подтверждающего изготовление в соответствии с ГОСТ 9818-85 и серийными чертежами.

Рекомендации по подбору и монтажу

При составлении спецификации на лестничные площадки типа 1ЛП необходимо проверить сопрягаемые размеры с лестничными маршами (серии 1.050.1-1, 1.151.1-1 и др.). Убедитесь, что в проекте учтены монтажные зазоры и предусмотрена анкеровка площадки к несущим конструкциям здания. Приемку партии сопровождайте проверкой геометрии и отсутствия трещин на поверхности изделий.

Монтаж плоских лестничных площадок 1ЛП требует точной установки по проектным отметкам и выверки горизонтального положения. Перед укладкой растворной постели подготовьте опорные поверхности. Крепление осуществляется через закладные детали или анкерными болтами, указанными в проекте. Правильный подбор и монтаж лестничных площадок 1ЛП ГОСТ 9818-85 – залог долговечности и безопасности лестничного узла.

Ответы экспертов на ваши вопросы

Ответ: Лестничная площадка 1ЛП — это железобетонное изделие прямоугольной формы, предназначенное для монтажа между маршами лестниц в зданиях. Основные характеристики:

  • Материал: тяжелый бетон классов по прочности на сжатие В15-В25.
  • Армирование: предварительно напряженная или ненапряженная арматурная сталь (в зависимости от модификации).
  • Размеры: стандартная длина 1200-1800 мм, ширина 900-1200 мм, толщина 60-100 мм (точные габариты зависят от маркировки).
  • Нагрузка: расчетная временная нагрузка 300-400 кгс/м² (3-4 кПа) для жилых зданий.
  • Маркировка: включает тип (1ЛП), габаритные размеры в дециметрах, несущую способность и ссылку на ГОСТ.

Ответ: В рамках типа 1ЛП существуют модификации, отличающиеся конструкцией и армированием:

  1. С предварительно напряженной арматурой — для повышения трещиностойкости и несущей способности.
  2. С ненапряженной арматурой — стандартное исполнение для типовых нагрузок.
  3. С монтажными петлями или отверстиями — для удобства подъема и установки.
  4. С рифленой или гладкой поверхностью — для обеспечения противоскользящих свойств. Различия касаются несущей способности, веса и области применения (например, напряженные изделия используются при повышенных нагрузках).

Ответ: Монтаж лестничной площадки 1ЛП требует соблюдения следующих правил:

  1. Подготовка опор: площадка укладывается на несущие стены или балки, которые должны быть выровнены по горизонтали.
  2. Глубина опирания: минимальная глубина опирания на стену — 120 мм.
  3. Раствор: используется цементно-песчаный раствор марки не ниже М100 для заполнения швов и выравнивания.
  4. Анкеровка: при необходимости площадка анкеруется к стенам или балкам.
  5. Контроль: после монтажа проверяется горизонтальность и соответствие проектным отметкам.

Ответ: Типичные дефекты и методы их выявления:

  1. Трещины: визуальный осмотр — не допускаются трещины шириной более 0,2 мм.
  2. Отклонения в размерах: проверка рулеткой или шаблоном — допустимые отклонения ±5 мм по длине/ширине, ±3 мм по толщине.
  3. Сколы углов и ребер: осмотр — глубина сколов не должна превышать 10 мм.
  4. Качество поверхности: отсутствие раковин, наплывов бетона, оголенной арматуры.
  5. Маркировка: должна быть четкой и соответствовать ГОСТ.

Ответ: Лестничные площадки 1ЛП применяются в:

  • Жилых зданиях — в многоквартирных домах средней этажности.
  • Общественных зданиях — школах, больницах, офисах.
  • Промышленных объектах — вспомогательные лестницы. Ограничения:
  • Не используются в зданиях с повышенной влажностью без дополнительной гидроизоляции.
  • Не применяются для лестниц с интенсивным движением тяжелых грузов (например, в складах с погрузочной техникой).
  • Требуют защиты от агрессивных сред в химической промышленности.
Ранее смотрели
Панели оград железобетонные Серия Б 3.017.1-2.99 1-3П 200-60-5 м
1-3П 200-60-5 м
Панели оград железобетонные Серия Б 3.017.1-2.99
Блоки шахт лифтов Серия 1.089.1-1 БШЛ 100-30-2
БШЛ 100-30-2
Блоки шахт лифтов Серия 1.089.1-1
1Вв 72-10-2 л
1Вв 72-10-2 л
Изделия для стеновых панелей верхние и нижние Серия 1.131-17
С 5 Вб
С 5 Вб
Столбы оград Серия 3.017-1
ШЛ 32-9 а
ШЛ 32-9 а
Блоки шахт лифтов Серия 1.189-6
Камни для кладки стен ГОСТ 6133-84 СКШ 2
СКШ 2
Камни для кладки стен ГОСТ 6133-84
Блоки шахт лифтов Серия 1.089.1-1 БШЛ 100-30-5 б
БШЛ 100-30-5 б
Блоки шахт лифтов Серия 1.089.1-1
Лестничные площадки плоские 1ЛП ГОСТ 9818-2015 1ЛП 22-13-4 ЛШ (ГОСТ 9818-2015)
1ЛП 22-13-4 ЛШ (ГОСТ 9818-2015)
Лестничные площадки плоские 1ЛП ГОСТ 9818-2015

Уведомление о файлах cookie

Мы используем файлы cookie для улучшения вашего опыта просмотра и анализа трафика. Нажимая "Принять все", вы соглашаетесь с нашей политикой конфиденциальности и политикой обработки файлов cookie.

Дзен Телеграм Вконтакте vk