mobile_sound +7 (930) 655-55-90

Козырьки входов Серия 1.238-1

Поделиться:
Фильтр по характеристикам
Длина (мм.)
keyboard_arrow_down
мм.
мм.
Ширина (мм.)
keyboard_arrow_down
мм.
мм.
Высота (мм.)
keyboard_arrow_down
мм.
мм.
Вес (кг.)
keyboard_arrow_down
кг.
кг.
Поделиться:

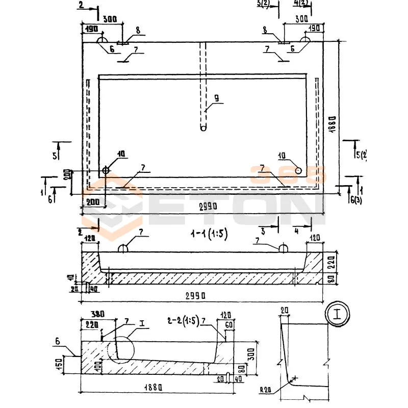
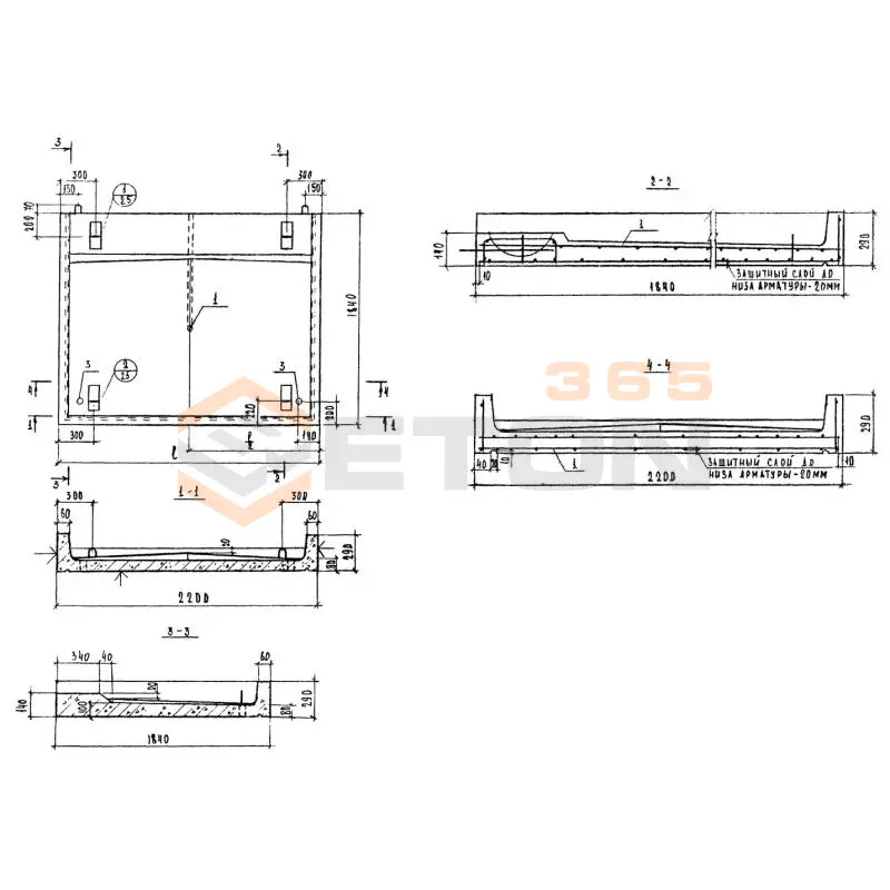
Завод "Бетон365" производит козырьки входов серии 1.238-1 — готовые железобетонные конструкции, обеспечивающие надежную защиту входных групп от атмосферных воздействий. Эти изделия отличаются повышенной прочностью и долговечностью благодаря строгому соблюдению ГОСТов и использованию качественного армированного бетона. Готовые козырьки не только выполняют практическую функцию, но и придают архитектурному облику здания завершенный вид, одновременно распределяя нагрузку и упрощая процесс монтажа.

В Москве и Московской области вы можете купить козырьки входов серии 1.238-1 непосредственно от производителя по конкурентной цене, что гарантирует отсутствие посреднических наценок. Мы обеспечиваем оперативную доставку на объект и предоставляем сертификаты качества на всю продукцию. Для уточнения характеристик и оформления заказа обратитесь к нашим специалистам — поможем подобрать оптимальное решение для вашего проекта.

КВ 18-16 т
Козырьки входов Серия 1.238-1
  • Длина 1550 мм.
  • Ширина 1840 мм.
  • Высота 140 мм.
  • Вес 750 кг.
  • Объем бетона 0,3 м3
  • Геометрический объем 0,3993 м3
Цена: 10185 руб.
Подробнее
КВ 16-1
Козырьки входов Серия 1.238-1
  • Длина 1550 мм.
  • Ширина 1840 мм.
  • Высота 140 мм.
  • Вес 800 кг.
  • Объем бетона 0,32 м3
  • Геометрический объем 0,3993 м3
Цена: 10864 руб.
Подробнее
КВ 16
Козырьки входов Серия 1.238-1
  • Длина 1550 мм.
  • Ширина 1840 мм.
  • Высота 140 мм.
  • Вес 750 кг.
  • Объем бетона 0,3 м3
  • Геометрический объем 0,3993 м3
Цена: 10185 руб.
Подробнее
КВ 18-19-6
Козырьки входов Серия 1.238-1
  • Длина 1780 мм.
  • Ширина 1880 мм.
  • Высота 150 мм.
  • Вес 875 кг.
  • Объем бетона 0,35 м3
  • Геометрический объем 0,502 м3
Цена: 11883 руб.
Подробнее
КВ 18-19-13
Козырьки входов Серия 1.238-1
  • Длина 1780 мм.
  • Ширина 1880 мм.
  • Высота 150 мм.
  • Вес 875 кг.
  • Объем бетона 0,35 м3
  • Геометрический объем 0,502 м3
Цена: 11883 руб.
Подробнее
КВ 18-16 т-1
Козырьки входов Серия 1.238-1
  • Длина 1550 мм.
  • Ширина 1840 мм.
  • Высота 140 мм.
  • Вес 800 кг.
  • Объем бетона 0,32 м3
  • Геометрический объем 0,3993 м3
Цена: 10864 руб.
Подробнее
КВ 18-28 т
Козырьки входов Серия 1.238-1
  • Длина 2790 мм.
  • Ширина 1840 мм.
  • Высота 140 мм.
  • Вес 1330 кг.
  • Объем бетона 0,532 м3
  • Геометрический объем 0,7187 м3
Цена: 18061 руб.
Подробнее
КВ 22-1
Козырьки входов Серия 1.238-1
  • Длина 2200 мм.
  • Ширина 1840 мм.
  • Высота 140 мм.
  • Вес 1100 кг.
  • Объем бетона 0,44 м3
  • Геометрический объем 0,5667 м3
Цена: 14938 руб.
Подробнее
КВ 18-22 т-1
Козырьки входов Серия 1.238-1
  • Длина 2200 мм.
  • Ширина 1840 мм.
  • Высота 140 мм.
  • Вес 1100 кг.
  • Объем бетона 0,44 м3
  • Геометрический объем 0,5667 м3
Цена: 14938 руб.
Подробнее
КВ 22
Козырьки входов Серия 1.238-1
  • Длина 2200 мм.
  • Ширина 1840 мм.
  • Высота 140 мм.
  • Вес 1050 кг.
  • Объем бетона 0,42 м3
  • Геометрический объем 0,5667 м3
Цена: 14259 руб.
Подробнее
КВ 18-22 т
Козырьки входов Серия 1.238-1
  • Длина 2200 мм.
  • Ширина 1840 мм.
  • Высота 140 мм.
  • Вес 1050 кг.
  • Объем бетона 0,42 м3
  • Геометрический объем 0,5667 м3
Цена: 14259 руб.
Подробнее
КВ 18-22 т-2
Козырьки входов Серия 1.238-1
  • Длина 2200 мм.
  • Ширина 1840 мм.
  • Высота 140 мм.
  • Вес 1250 кг.
  • Объем бетона 0,5 м3
  • Геометрический объем 0,5667 м3
Цена: 16975 руб.
Подробнее
КВ 24-19-13
Козырьки входов Серия 1.238-1
  • Длина 2390 мм.
  • Ширина 1880 мм.
  • Высота 150 мм.
  • Вес 1165 кг.
  • Объем бетона 0,47 м3
  • Геометрический объем 0,674 м3
Цена: 15957 руб.
Подробнее
КВ 22-2
Козырьки входов Серия 1.238-1
  • Длина 2200 мм.
  • Ширина 1840 мм.
  • Высота 140 мм.
  • Вес 1250 кг.
  • Объем бетона 0,5 м3
  • Геометрический объем 0,5667 м3
Цена: 16975 руб.
Подробнее
КВ 24-19-13-1
Козырьки входов Серия 1.238-1
  • Длина 2390 мм.
  • Ширина 1880 мм.
  • Высота 150 мм.
  • Вес 1220 кг.
  • Объем бетона 0,5 м3
  • Геометрический объем 0,674 м3
Цена: 16975 руб.
Подробнее
КВ 24-19-6-1
Козырьки входов Серия 1.238-1
  • Длина 2390 мм.
  • Ширина 1880 мм.
  • Высота 150 мм.
  • Вес 1220 кг.
  • Объем бетона 0,5 м3
  • Геометрический объем 0,674 м3
Цена: 16975 руб.
Подробнее
КВ 24-19-6
Козырьки входов Серия 1.238-1
  • Длина 2390 мм.
  • Ширина 1880 мм.
  • Высота 150 мм.
  • Вес 1165 кг.
  • Объем бетона 0,47 м3
  • Геометрический объем 0,674 м3
Цена: 15957 руб.
Подробнее
КВ 28
Козырьки входов Серия 1.238-1
  • Длина 2790 мм.
  • Ширина 1840 мм.
  • Высота 140 мм.
  • Вес 1330 кг.
  • Объем бетона 0,532 м3
  • Геометрический объем 0,7187 м3
Цена: 18061 руб.
Подробнее
КВ 30-19-13-1
Козырьки входов Серия 1.238-1
  • Длина 2990 мм.
  • Ширина 1880 мм.
  • Высота 150 мм.
  • Вес 1535 кг.
  • Объем бетона 0,62 м3
  • Геометрический объем 0,8432 м3
Цена: 21049 руб.
Подробнее
КВ 30-19-13-2
Козырьки входов Серия 1.238-1
  • Длина 2990 мм.
  • Ширина 1880 мм.
  • Высота 300 мм.
  • Вес 2275 кг.
  • Объем бетона 0,95 м3
  • Геометрический объем 1,6864 м3
Цена: 32253 руб.
Подробнее
КВ 30-19-13
Козырьки входов Серия 1.238-1
  • Длина 2990 мм.
  • Ширина 1880 мм.
  • Высота 150 мм.
  • Вес 1470 кг.
  • Объем бетона 0,59 м3
  • Геометрический объем 0,8432 м3
Цена: 20031 руб.
Подробнее
КВ 30-19-6-2
Козырьки входов Серия 1.238-1
  • Длина 2990 мм.
  • Ширина 1880 мм.
  • Высота 300 мм.
  • Вес 2275 кг.
  • Объем бетона 0,95 м3
  • Геометрический объем 1,6864 м3
Цена: 32253 руб.
Подробнее
КВ 30-19-6
Козырьки входов Серия 1.238-1
  • Длина 2990 мм.
  • Ширина 1880 мм.
  • Высота 150 мм.
  • Вес 1470 кг.
  • Объем бетона 0,59 м3
  • Геометрический объем 0,8432 м3
Цена: 20031 руб.
Подробнее
КВ 30-19-6-1
Козырьки входов Серия 1.238-1
  • Длина 2990 мм.
  • Ширина 1880 мм.
  • Высота 150 мм.
  • Вес 1535 кг.
  • Объем бетона 0,62 м3
  • Геометрический объем 0,8432 м3
Цена: 21049 руб.
Подробнее

Как правильно выбрать - Козырьки входов Серия 1.238-1

Козырьки входов Серия 1.238-1 предназначены для защиты входных групп зданий от атмосферных осадков. Они применяются в жилых, общественных и административных зданиях, обеспечивая архитектурную выразительность и безопасность пешеходов. Долговечность и надежность всей конструкции напрямую зависят от грамотного подбора изделий в соответствии с проектными решениями и климатическими особенностями региона.

Критерии выбора

  • Марка бетона и показатели долговечности: Изделия изготавливаются из тяжелого бетона марки не ниже М300. Обращайте внимание на морозостойкость (F200) и водонепроницаемость (W4), что критично для эксплуатации на фасаде.
  • Армирование: Каркас выполняется из стальной арматуры классов А-I и А-III. Проверяйте паспорт на соответствие проектной схеме армирования.
  • Типоразмеры и конфигурация: Серия 1.238-1 включает козырьки различной длины и ширины. Важно выбрать размер, соответствующий габаритам входной группы, и убедиться в наличии проектных монтажных петель или закладных деталей для крепления.
  • Расчетные нагрузки: Учитывайте снеговую и ветровую нагрузку для вашего района строительства. Конструкция козырьков должна им соответствовать.
  • Нормативная база: Все изделия должны строго соответствовать требованиям серии 1.238-1 и сопровождаться паспортом качества.

Рекомендации по подбору и монтажу

При закупке козырьков входов по серии 1.238-1 тщательно сверяйте спецификацию с рабочими чертежами, обращая особое внимание на маркировку и геометрию. Обязательно запрашивайте паспорта качества на партию, где указаны фактические прочностные характеристики бетона и результаты контроля трещиностойкости.

На этапе монтажа критически важна надежная анкеровка к несущей стене здания. Основание (стена) должно быть рассчитано на восприятие опрокидывающего момента. Для предотвращения застоя воды и протечек обеспечьте проектный уклон козырька и герметизацию монтажных швов с применением эластичных материалов, устойчивых к температурным деформациям.

Ответы экспертов на ваши вопросы

Козырьки серии 1.238-1 обладают несколькими ключевыми преимуществами:

  • Высокая прочность и долговечность благодаря использованию железобетона
  • Универсальность применения для различных типов зданий
  • Стандартизированные размеры упрощают проектирование и монтаж
  • Хорошая устойчивость к атмосферным воздействиям
  • Не требуют сложного обслуживания в процессе эксплуатации

Производство и применение козырьков серии 1.238-1 регламентируется:

  • Серийной документацией 1.238-1
  • ГОСТ 13015-2012 "Изделия бетонные и железобетонные для строительства"
  • СП 31-103-99 "Здания и сооружения"
  • Техническими условиями производителя
  • Местными строительными нормами и правилами

В серии 1.238-1 предусмотрены следующие основные типоразмеры:

  • Длина от 1200 до 3000 мм с шагом 300 мм
  • Ширина стандартная 1500 мм
  • Высота конструкции варьируется в зависимости от модификации
  • Различают правые и левые исполнения относительно фасада здания
  • Возможны варианты с дополнительными элементами крепления

Монтаж козырьков серии 1.238-1 включает следующие этапы:

  1. Подготовка места установки и проверка несущей способности стены
  2. Разметка точек крепления согласно проектной документации
  3. Установка закладных деталей или анкерных болтов
  4. Подъем и фиксация козырька с помощью грузоподъемной техники
  5. Выверка положения по горизонтали и вертикали
  6. Окончательное закрепление и герметизация стыков
  7. Проверка надежности крепления и качества монтажа

Эксплуатация козырьков серии 1.238-1 имеет следующие особенности:

  • Регулярный визуальный осмотр на наличие трещин и повреждений
  • Очистка поверхности от загрязнений и снега в зимний период
  • Контроль состояния защитного покрытия и своевременное его восстановление
  • Проверка надежности креплений не реже 1 раза в 2 года
  • Запрещается превышение расчетных нагрузок на конструкцию
  • При обнаружении дефектов требуется немедленное устранение

Уведомление о файлах cookie

Мы используем файлы cookie для улучшения вашего опыта просмотра и анализа трафика. Нажимая "Принять все", вы соглашаетесь с нашей политикой конфиденциальности и политикой обработки файлов cookie.

MAX Дзен Телеграм Вконтакте vk